[Review] JRY Condominium Rama9 คอนโดแนวใหม่สไตล์บูติคพร้อมระบบป้องกันอาคารเกิดแผ่นดินไหว
ซอย 17 ถนนพระราม9 แขวงบางกะปิ เขตห้วยขวาง กรุงเทพมหานคร

Review Info
เห็นโครงการคอนโดผุดเยอะไปหมดวันนี้เลยจะมารีวิวคอนโดแนวใหม่ให้คุณรู้สึกเสมือนได้ใช้ชีวิตในบูติครีสอร์ท (Boutique Resort) ใจกลางเมือง JRY Condominium คอนโดมิเนียมสูง 8 ชั้น ให้คุณใช้ชีวิตหรูหรา และสะดวกสบาย ตั้งอยู่ที่ซอย 17 ถนนพระราม 9 ตรงข้ามกับโรงเรียน
Location
ที่ตั้งโครงการ JRY Condominium Rama9
การเดินทาง
จาก MRT สถานีพระราม9 ต่อแท็กซี่แล้วบอกไปพระราม9ซอย 17ได้เลย
หรือเดินทางด้วยรถยนต์ส่วนตัวพอถึงแยกฟอร์จูนให้เลี้ยวขวาเพื่อมุ่งหน้าเข้าถนนพระรามเก้า
วิ่งตรงเข้าสู่ถนนพระราม9
จะเห็นกรมโยธาธิการและผังเมืองของกระทรวงมหาดไทยด้านซ้าย
วิ่งชิดซ้ายไว้ถ้าไม่งั้นจะเลยขึ้นสะพานไปศรีนครินทร์ได้
ผ่านตึกKPNด้านซ้ายมือด้วย
ไม่นานก็ถึงพระราม9 ซอย17 จะมีเซเว่นในซอย
วิ่งตรงมาสักพักสังเกตโรงเรียน สมาคมไทย-ญี่ปุ่นด้านขวามือเลย3แยกไปจะถึงโครงการ
โครงการJRY RAMA9 สำนักงานชายจะอยู่ฝั่งตรงข้ามของโครงการเลย
การเดินทางด้วยMRT ลงสถานีศูนย์วัฒนธรรมก็ไปได้เช่นกัน
เดินมาต่อพี่วินมอเตอร์ไซค์เพียง 5 นาที หรือประมาณ 30 บาทเท่านั้นเอง
Insight
เจาะลึกภาพรวมโครงการ JRY Condominium Rama9
นี่คือโมเดลของโครงการมี 8 ชั้นค่ะ
แปลนชั้น 1 มีที่จอดรถอยู่รอบๆ อาคาร และตัวอาคารอยู่ตรงกลางของโครงการ
แปลนชั้น 2 จะเห็นว่าแต่ละสีก็จะแบ่งตามประเภทของห้อง มีส่วนกลางคือสระว่ายน้ำและสวนหย่อม
แปลนชั้น 3 ก็จะแบ่งสีตามประเภทของห้องเห็นได้ชัดว่ามีลักษณะเป็นรูปตัวU
แปลนชั้น 4-6 โครงสร้างเดียวกับชั้น3เหมือนกัน
แปลนชั้น 7 สีเปลี่ยนไปตามประเภทของห้อง
แปลนชั้น 8 ชั้นบนสุดของโครงการ
อันนี้เป็นแบบห้องประเภท A ขนาด31.80ตร.ม.
แบบห้องประเภท B ขนาด34.50 ตร.ม.
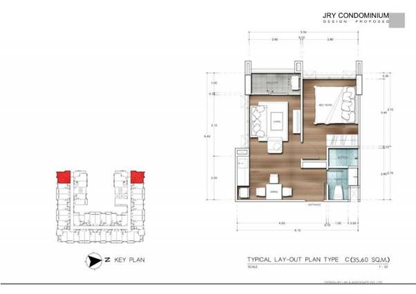
แบบห้องประเภท C ขนาด 35.60 ตร.ม.
แบบห้องประเภท D
แบบสุดท้ายประเภท E ขนาด 60.40 ตร.ม.
1 BR 34.5 sq.m.
ห้องตัวอย่าง 1 ห้องนอน ขนาด 34.5 ตารางเมตร แบบที่ 1
โครงการนี้ยังอยู่ในการก่อสร้าง ดังนั้นเราจะสามารถดูได้แค่ห้องตัวอย่างในเซลแกลลอรี่ ซึ่งในตอนนี้มีให้เข้าชมได้เพียงห้องเดียวค่ะ คือห้องแบบ B ขนาด 34.50 ตร.ม.
ภาพรวมของห้องด้านซ้ายจะเป็นมุมครัวและด้านขวาเป็นห้องน้ำถัดเข้าเป็นห้องนั่งเล่นและห้องนอน
ประตูเป็นระบบ Digital Door Lock แบบใส่รหัส และใช้คีย์การ์ดกับลูกบิดแบบก้านโยก
เปิดประตูมาเจอชั้นเก็บของและตู้ใส่รองเท้าค่ะ แผงคัทเอาท์จะซ่อนไว้ในตู้ด้านบนเพื่อความสวยงามค่ะ ชั้นเก็บรองเท้าเก๋มากดูสะดวกสบายตาด้วยเป็นแบบเปิดออก
ห้องครัวตกแต่งสไตล์โมเดิร์นโดยเน้นโทน ขาว-ดำ พื้นจะเป็นพื้นไม้ลามิเนตยาวไปจนถึงโซนรับแขกค่ะ
สวิทช์ไฟก็แบบนี้จ้าสีโดดเด่นตัดกับผนังชัดเจนดี
ปลั๊กไฟค่ะหน้าตาแปลกประหลาดใช่มั้ยล่ะ แต่เค้าบอกเปลี่ยนเป็นแบบStandardได้จ้าคือ3ตาแบบปกติบ้านเรานั้นเอง
โซนห้องครัว
มุมครัวจากห้องนั่งเล่น ครัวเป็นแบบ Soft close
แชนเดอเลียเล็ก ๆ เหนือโต๊ะทานข้าวเป็นของตกแต่งนะคะ ทางโครงการไม่ได้แถมมา
เป็นครัวขนาดเล็กแบบติดผนัง
มีอ่างล้างจานต่อท่อน้ำโดยตรง ช่องที่คว่ำจานและช่องใส่ไมโครเวฟหรือเตาอบได้ด้วยดูสะดวกและทันสมัยดีค่ะ
เครื่องดูดควันของElectroluxแบบPull
-
Outค่ะ
อ่างล้างจานเป็นแสตนเลสจ้าดูลึก
แต่ไม่มีที่พักจานมาให้ ส่วนท็อปเป็นแกรนิตเทียมค่ะ ซึ่งทนน้ำและทนการกระแทกได้ดีค่ะ
ตู้เย็นของElectroluxค่ะ
โต๊ะอาหารแบบชิดผนังสำหรับ2ที่ขาโต๊ะทำจากเหล็กดูแข็งแรงทนทานและใช้ท๊อปกระจกสีดำดูเรียบหรู
ทำความสะอาดง่าย แต่ก็จะเห็นคราบได้ง่ายเช่นกัน
โครงการเลือกใช้ชุดโต๊ะเก้าอี้อีกสีหนึ่งกับผนังทำให้ชุดเฟอร์นิเจอร์ดูโดดเด่น
ด้านล้างมีปลั๊กไฟด้วย นั่นหมายความว่าโต๊ะนี้อาจจะใช้เป็นโต๊ะทำงานได้ด้วยค่ะ
โซนห้องนั่งเล่น
**
**
โซฟาที่ทางโครงการแถมมาค่ะ เป็นสีน้ำตาลเข้ม
โต๊ะกลางแบบใสที่ทำให้เราเห็นห้องได้กว้างมากขึ้น และสามารถวางของเปียกได้ดีกว่าผิวลามิเนต
ห้องตัวอย่างคงเป็นห้องมุมค่ะ เลยได้กระจกเพิ่มมาอีกด้านหนึ่ง
ถ้าสังเกตดี ๆ จะเห็นระเบียงแบบกระจกด้วยค่ะ เพื่อให้สามารถรับวิวได้เต็มที่
ระยะห่างระหว่างโซฟากับทีวีประมาณ 2
.
5 เมตรตกแต่งครบชุด
บริเวณระเบียงค่ะ โดยมีปลั๊กไฟ ท่อน้ำทิ้งและก็อกน้ำเตรียมติด
เครื่องซักผ้า
ไว้ให้แล้วค่ะ
ฝ้าสูง2.5เมตรใส่ไฟดาน์วไลท์2ดวงติดกัน Built-in ชั้นวางของสูงพร้องแอร์ของDAIKIN
เห็นว่าบนแอร์ยังมีไฟดาวน์ไลท์อีก2ดวงแต่ไม่ติดกันพร้อมมีไฟซ่อนจากฝ้าอีกด้วยเพิ่มลูกเล่นไปอีกค่ะ
ปลั๊กจะเป็นสายโทรศัพท์กับสายทีวีและปลั๊กไฟค่ะ ติดแนวเดียวกันสะดวกต่อการติดตั้งดีจ้า ข้างๆ2อันนั้นเป็นสวิทช์ไฟใช้สะดวกดีเช่นกัน ส่วนชั้นวางทีวีเป็นแบบBuild-inติดผนังค่ะ
โซนห้องนอน
**
**
**
ถัดจากห้องนั่งเล่นก็คือประตูห้องนอนค่ะ
**
**
**
**
ประตูห้องนอนเป็นแบบก้านโยกรูปตัวLและมีกุญแจล๊อคด้วยค่ะ
**
**
**
เปิดประตูห้องนอนเข้ามาเจอเตียงขนาด 6 ฟุตได้ ปลายเตียงเหลือพื้นที่ให้เดินเล็กน้อย ถ้าจะติดทีวีแนะนำให้ติดแบบแขวนผนังและไม่ต้องมีชั้นวางใด ๆ เลยจะดีกว่าค่ะ
มุมนี้เห็นโต๊ะตั้งโคมไฟตรงหัวเตียงค่ะ
ในห้องตัวอย่างตู้เสื้อผ้าเป็นแบบประตูเปิดแต่เค้าบอกว่าเปลี่ยนเป็นบานสไลด์ได้ค่ะ
ไฟดาวน์ไลท์ในห้องนอนค่ะ มีแบบเป็นคู่ตรงกลางข้างในเพดานและกรอบนอกแบบเดี่ยวค่ะ
กรอบหน้าต่างแบบอลูมีเนียม เป็นแบบบานกระทุ้งค่ะ
โซนห้องน้ำ
**
**
โซนแห้งก็จะเจอสุขภัณฑ์พร้อมสายชำระแบบแสตนเลส
เหนือชักโครกเป็นราวแขวนผ้าค่ะ
มีพัดลมดูดอากาศด้วยค่ะ
มีการยกธรณีประตูห้องน้ำขึ้นมานิดหน่อยค่ะ ห้องน้ำจะติดกับประตูออกไปนอกห้อง ซึ่งปูประเบื้องเอาไว้
กระจกBuilt
-
inเพิ่มชั้นวางของแบบมีลูกเล่นนิดหน่อย มีปลั๊กอยู่ข้างๆสำหรับไดร์หรือที่โกนหนวดไฟฟ้าด้วยค่ะ
อ่างล้างหน้าของ KOLHER บนท็อปแกรนิตเทียม หน้าตาเก๋ใช้ได้ทีเดียวค่ะ
เคาน์เตอร์ชั้นเก็บของใต้อ่างล้างหน้าค่ะ
**
ห้องน้ำแยกส่วนเปียกกับส่วนแห้งชัดเจนด้วยฉากกั้นอาบน้ำประตูกระจก ใช้แบบ Stopper ด้วยค่ะ
**
**
**
**
ฝักบัวแบบด้ามจับ คันโยกอยู่ด้านล่างสามารถบิดเพื่อปรับระดับอุณหภูมิน้ำได้เอง
**
**
**
Environment
สภาพแวดล้อมรอบโครงการ JRY Condominium Rama 9
JRY พระราม 9 อยู่ในซอยที่สามารถทะลุได้หลายเส้นทางค่ะ แต่ในซอย17 ถนนพระราม9 เป็นถนนส่วนบุคคลจึงไม่ค่อยมีร้านค้ามากนัก ถ้าจะออกไปซื้อของต้องออกไปห้างสรรพสินค้า หรือร้านสะดวกซื้อที่อยู่ติดถนนใหญ่เท่านั้น
3 แยกคือเลี้ยวซ้ายไปทางถนนประดิษฐ์มนูธรรมได้และตรงออกไปพระราม 9 ซอย 17 ค่ะ มีศูนย์แพทย์พัฒนาด้วย
บนถนนรัชดาก็จะมีBig-C Extra
The Street รัชดาค่ะ
Analysis
วิเคราะห์โครงก
าร
JRY Condominium Rama9
- ทำเล
ที่ตั้งโครงการอยู่ช่วงกลางๆ ของถนนพระราม 9 ไม่ได้อยู่ติดถนนใหญ่ ต้องเข้าซอยไปประมาณ 1 กม. ภายในซอยมีคอนโดฯ บ้านเรือน สถานศึกษา และบริษัทเอกชน แต่ก็ไม่วุ่นวาย หรือจอแจ แต่ถนนเป็นแบบสองเลนรถสวนกัน
แต่ซอยดังกล่าวเป็นซอยที่เข้า-ออกไปได้หลายทาง หากออกไปทางปากซอย พระราม 9 ซอย 17 ก็จะสามารถไปขึ้นทางด่วนเพื่อไปยังสุวรรณภูมิได้ หากออกไปทางท้ายซอยจะไปบรรจบกับเส้นที่จะวิ่งไปเหม่งจ๋าย ไปรามคำแหงได้
โครงการอยู่กลางซอยที่เป็นซอยลัดสามารถไปออกถนนหลักได้หลายทาง แต่ไม่มีร้านค้ามากเท่าไหร่ จะไปทางพระราม9หรือออกทางรัชดาก็ได้โดยใช้เวลาเพียง5นาที
สภาพแวดล้อม : บริเวณโดยรอบโครงการจะเป็นย่านพักอาศัย โรงงาน และโรงเรียน มีความปลอดภัยในบริเวณหน้าโครงการเงียบสงบมีความเป็นส่วนตัว แต่อาจจะเปลี่ยวในตอนดึก ๆ
เซ็นทรัล พลาซ่า แกรนด์ พระราม 9, Vanessa & Avenue, The Street รัชดาภิเษก, RCA Plaza, ฟอร์จูน, The Shoppes Grand Rama 9, ตลาดนัดหน้า อ.ส.ม.ท.
แบบห้อง :
สตูดิโอ ขนาด 20- 25 ตร.ม. 1 ห้องนอน 30 ตร.ม. 2 ห้องนอน 50 ตร.ม.
มีความหลากหลายของแบบห้อง แต่เสียดายมีห้องตัวอย่างแค่ห้องเดียว ควรดูแปลนห้องก่อนที่จะไปดูห้องจริงดีกว่าค่ะ
สิ่งอำนวยควาสะดวก :
Lobby ห้องสมุด สระว่ายน้ำ ฟิตเนส สวนพักผ่อน + พื้นที่สีเขียว ประตู Digital Door Lock ลิฟท์โดยสาร 2 ตัว Shuttle Bus กล้องวงจรปิด Auto Access Card รปภ. 24 ชม. ครบครันเหมือนโครงการอื่นดีค่ะ
ราคา : สตูดิโอ ขนาด 20- 25 ตร.ม. ค่าเช่าเฉลี่ย 12,000 บาทต่อเดือน 1 ห้องนอน 30 ตร.ม. ค่าเช่าเฉลี่ย 20,000 – 25,000 บาทต่อเดือน 2 ห้องนอน 50 ตร.ม. ค่าเช่าเฉลี่ย 30,000 บาทขึ้นไปต่อเดือน
โครงการนี้เน้นขายต่างชาติเป็นหลักค่ะเหมาะสำหรับอยู่เป็นครอบครัว หรือคนที่กำลังสนใจโครงการในโซนพระราม 9 อยู่ แต่ต้องการความเป็นส่วนตัวสูงและเงียบสงบ โครงการตั้งอยู่ในทำเลที่เป็นย่าน CBD อีกแห่งหนึ่งของกรุงเทพฯ แม้จะอยู่ในซอยแต่ก็มีแหล่งความเจริญทั้งห้างสรรพสินค้า สำนักงานขนาดใหญ่ และแหล่งที่อยู่อาศัยมากมาย รวมทั้งมีเส้นทางการเดินทางที่สะดวกสบาย เข้าออกได้หลายทาง รวมถึงอยู่ไม่ไกลจากสถานีรถไฟฟ้า MRT กลุ่มเป้าหมายจากทั้งกลุ่มผู้เช่าชาวต่างชาติและคนไทยที่เอาลูกมาเข้า ร.ร. นานาชาติแถวนั้นด้วย อย่างไรก็ดี หากซื้อเพื่อพักอาศัยเองอาจจะเหมาะกับคนที่มีรถส่วนตัว หรือทำงานในช่วงกลางวัน เพราะคอนโดที่อยู่กลางซอยมักจะเปลี่ยวในตอนกลางคืนค่ะ
JRY Condominium Rama9
585c88c71de72e4ccececceb
jry-condominium-rama9


























































