[Review] พาไปชมโครงการคอนโดพร้อมอยู่ The One Plus Condominium ซอยหัวหมาก 20 ราคาเริ่มต้น 1 ล้าน จาก 99 Real Estate
ถนนรามคำแหง แขวงหัวหมาก เขตบางกะปิ กรุงเทพมหานคร 10240

Review info
The One Plus คอนโดมิเนียม @หัวหมาก20 คอนโดสร้างเสร็จพร้อมอยู่จาก 99 Real Estate Group
สวัสดีค่ะ แฟนๆESTOPOLISทุกคน วันนี้เราจะพาไปดูโครงการคอนโดพร้อมอยู่ The One Plus คอนโดมิเนียม ในซอยหัวหมาก 20 ราคาโครงการเริ่มต้นเพียง 999,000 บาท (รีวิวเดือนตุลาคม 2559) เป็นคอนโด Low-Rise 8 ชั้น บนทำเลย่าน รามคำแหง – หัวหมาก ในย่านหัวหมากใกล้แนวรถไฟฟ้าสายสีเหลืองเพียง 3 นาทีจากสถานีศรีกรีฑา ที่สามารถมุ่งสู่ใจกลางเมืองได้อย่างสะดวกสบายและเป็นที่สนใจของเหล่านักลงทุนหรือชาวคอนโดอย่างเรา
Project Insight
Project Insight - เจาะลึกภาพรวมโครงการ The One Plus คอนโดมิเนียม @หัวหมาก20
ภาพจำลองโครงการ
The One Plus คอนโดมิเนียม @หัวหมาก20 เป็นคอนโดมิเนียม Low Rise 8 ชั้น ตั้งบนพื้นที่ดิน 3 งาน 96.00 ตร.วา ของบริษัท บริษัท ไนน์ตี้ไนน์ เรียลเอสเตท กรุ๊ป จำกัด ซึ่งโครงการเดอะ วัน พลัส คอนโดมิเนียมนี้เป็นโครงการแรก แล้วก็ตามหลังมาด้วยคอนโดในแบรนด์เดอะ วัน พลัส รุ่นน้องอีก 2 โครงการ ในทำเลหัวหมากเช่นกัน
Master Plan ของโครงการ จากภาพเป็นพื้นที่ชั้นล่าง ซึ่งจะเป็นพื้นที่จอดรถทั้งหมด และมีประตูขึ้นอาคาร ที่จอดรถของโครงการจอดได้40% รวมซ้อนคัน หรือประมาณ 55 คัน
แปลนอาคารชั้น 2 ค่ะ ตรงกลางจะเป็นส่วนกลาง คือสระว่ายน้ำ ห้องฟิตเนส และนิติบุคคล และมียูนิตห้องพักในชั้นนี้ 17 ห้อง
แปลนชั้น 3 ค่ะ ส่วนชั้น 4-8 เป็นยูนิตห้องพักอาศัย 20 ห้องเหมือนกันเลยค่ะ ห้องของโครงการจะเริ่มตั้งแต่ชั้น 2 ถึงชั้น 8 รวมแล้วเป็น 7 ชั้นนะคะ
ส่วนแบบห้องในโครงการก็มี 3 แบบ
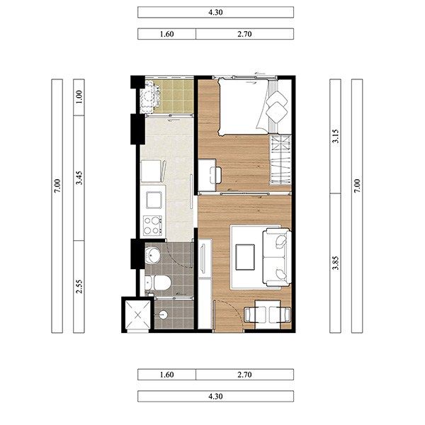
แปลนห้องแบบ 1ห้องนอน ขนาด 29 ตารางเมตร หน้ากว้าง 5.15 เมตร
แปลนห้องแบบ 1ห้องนอน ขนาด 29 ตารางเมตรเช่นกัน แต่จะได้ห้องหน้าแคบกว่าแบบแรก กว้าง 4.3 เมตร
และแปลนห้อง 1 ห้องนอน ขนาด 32 ตารางเมตรค่ะ Lay Out ห้องโดยรวมเหมือนกัน แต่จะไห้หน้ากว้างมากกว่า
มาดูที่อาคารจริงกันบ้าง เริ่มกันที่ด้านหน้าโครงการ ประตูโครงการตรงทางเข้าออกเป็นไม้กระดก แบบอัตโนมือ คือมีเจ้าหน้าที่ รปภ.เปิดให้ค่ะ
ด้านหน้าประตูจะมีระบบรักษาความปลอดภัยตลอด 24 ชั่วโมง
ที่จอดรถบริเวณชั้นล่างของอาคาร
ประตูทางเข้าอาคารค่ะ อยู่ตรงที่จอดรถ ด้านในเป็นลิฟท์
ด้านข้างประตูเป็น Mail Box ติดกันเป็นบันไดหนีไฟ
มีกล่องแสดงความคิดเห็นไว้ให้ลูกบ้านด้วย
ประตูทางเข้าหลักใช้ระบบ Key card ค่ะ
ลิฟต์โดยสารในอาคารมีให้ 2 ตัว
หน้าตาที่กดลิฟต์ เป็นระบบสัมผัส
ด้านในลิฟต์เป็นแบบสัมผัสเช่นกัน โดยแตะคีย์การ์ดก่อน เพื่อกดชั้น
เรามาเริ่มกันที่ชั้น 2 ซึ่งมีพื้นที่ส่วนกลางอยู่
ด้านข้างลิฟต์จะเป็นห้องทิ้งขยะค่ะ
ติดกับโถงลิฟท์เป็นยูนิตร้านค้า แต่ยังไม่เปิดให้บริการ
ระหว่างประตูห้องพักแต่ละห้องจะมีช่อง service ไฟฟ้าและท่อน้ำค่ะ
ระเบียงทางซ้ายของร้านค้า ปลายระเบียงเป็นประจกใส ตอนกลางวันช่วยให้ทางเดินในอาคารสว่างดีค่ะ มีบันไดหนีไฟอยู่ด้วย
ส่วนอีกด้านปลายทางเดินเป็นบันไดหนีไฟอีกทางหนึ่ง
เยื้องกับร้านค้าจะเป็นห้องบริการเครื่องซักผ้า
ห้องซักผ้าปิดด้วยประตูกระจกบานเลื่อน ลูกบ้านในโครงการสามารถมาใช้บริการได้ตลอดค่ะ
ด้านในมีเครื่องซักผ้า เครื่องอบผ้า ตู้กดน้ำ และมีโต๊ะเก้าอี้ไว้ให้นั่งรอค่ะ
เครื่องซักผ้าที่โครงการมีให้ก็มี 2 ขนาด แบบ 30 และ 40 กิโลกรัม อย่างละ 3 ครื่อง
มาอีกฝั่งตรงข้ามกับลิฟต์ จะเห็นห้องทำงานนิติบุคคลค่ะ
หน้าห้องนิติบุคคลเป็นบันไดทางขึ้นสระว่ายน้ำ
มีส่วนแนวตั้งเล็กๆไว้บังสายตาจากห้องพักที่อยู่ชั้น 2
สระว่ายน้ำอยู่ตรงกลางอาคารระหว่างปีกซ้ายและปีกขวา ห้องด้านในก็จะได้วิวสระไป
ลงมาจากสระ ทางเดินข้างห้องนิติฯ เป็นทางไปห้องน้ำและห้องออกกำลังกายค่ะ
มีล๊อกเกอร์ใส่ของก่อนใช้บริการ
ติดกันเป็นห้องน้ำ แยกหญิงชาย
ห้องน้ำเป็นแบบอาบน้ำด้วยในตัว เข้าได้ทีละ 1 คนนะคะ
ถัดไปเป็นห้องฟิตเนสค่ะ
มี ฎระเบียบของห้องออกกำลังกายก่อนเข้าใช้บริการติดไว้หน้าห้อง
เครื่องเล่นในห้องมี 6 เครื่องค่ะ มี Cadio 5 เครื่อง และ weight training 1 เครื่อง
เครื่องวิ่งสายพานหันหน้าออกไปทางสระว่ายน้ำ
ต่อไปเราขึ้นมาที่ชั้น 8 กันค่ะ เราจะขึ้นไปดูสวนด้านบนดาดฟ้ากัน พอขึ้นมาข้างบนแล้ว พื้นที่ที่ชั้น 2 เป็นสระว่ายน้ำ ชั้นบนนี้จะได้เป็น single corridor โครงการทำเป็นผนังกระจกไว้ ทำให้ทางเดินสว่างดีค่ะ
เราเลี้ยวมาทางปีกซ้าย เพื่อไปที่บันไดหนีไฟ ขึ้นไปที่ดาดฟ้าค่ะ
เราขึ้นบันไดมาอีก 1 ชั้น
ดาดฟ้าด้านบนนี้จะเปิดให้ขึ้นมาได้ถึง 2 ทุ่มค่ะ
ขึ้นมาด้านบนนี้ ถ้าไม่ติดว่าแดดร้อน อากาศด้านบนดีมากเลยค่ะ ลมเย็นสบาย
จากฝั่งนี้มองเห็นวิวฝั่งถนนศรีนครินทร์ ส่วนดาดฟ้าปีกขวาไม่มีสวนนะคะ เป็นดาดฟ้าปกติ
1 BR 29 Sq.M.
Room foe Sale - ชมห้องจริงโครงการ The One Plus คอนโดมิเนียม @หัวหมาก20
มาดูห้องจริงที่ทางโครงการขายให้กับลูกค้ากันค่ะ สำหรับห้องนี้ได้โปรแบบFully Furnished ได้เฟอร์นิเจอร์เต็มห้อง
ประตูห้องได้เป็นบานไม้ มีตาแมว และมือจับแบบก้านโยก
ห้องโถงค่ะ ห้องนี้เป็นแบบ 29 ตารางเมตร 1 ห้องนอน เปิดมาส่วนแรกจะเป็น Living Area
พื้นในห้องเป็นลามิเนตลายไม้ สีและลายค่อนข้างแปลกหน่อย สีตัดกันชัดเจน แต่ก็สวยดีค่ะ
ด้านหนึ่งเป็น Sideboard และตู้เก็บของแบบ Built-In
มีปลั๊กไฟและช่องสำหรับเสียบสายเคเบิลให้
อีกด้านหนึ่งเป็นโซฟาแบบ 2 ที่นั่ง และโต๊ะทานข้าว 2 ที่นั่งเช่นกัน
ไฟในห้องได้เป็นดาวไลท์
ต่อไปเราไปดูในห้องนอนกับค่ะ ห้องนอนกั้นด้วยประตูบานสไลด์แบบกระจกฝ้า 3 ตอน ช่วยให้แสงจากหน้าต่างยังเข้ามาให้ห้อง แต่ก็ได้ความเป็นส่วนตัวด้วย ไม่ต้องติดม่านก็ได้
รางประตูห้องนอนเป็นแบบไม่ซ่อนรางนะคะ ต้องเดินข้าม
หน้าต่างในห้องนอนเป็นบาน fix และบานสไลด์ 2 ฝั้ง ติดแอร์เหนือหน้าต่าง 1 ตัว
เตียงแบบบิวท์อินขนาด 5 ฟุต ชิดผนังด้านใน
มองไปทางหัวเตียง มีที่ว่างข้างเตียงพอวางโต๊ะเล็กๆได้ และมีปลั๊กสำหรับเสียบโคมไฟหรือชาร์จแบตได้
ส่วนปลายเตียงเป็นโต๊ะเครื่องแป้งและตู้เสื้อผ้า
ตู้เสื้อผ้าเป็นแบบบานเปิด 3 บาน Built-In ขึ้นไปจนถึงเพดาน
ต่อไปมาดูห้องครัวกันค่ะ ประตูทางเข้าห้องครัวอยู่ด้านนอกห้องนอน ติดกับชั้นวางทีวี
พื้นในครัวเป็นพื้นกระเบื้องสีขาวขนาด 30x30 ซม.
ต้านในมีทางออกไประเบียง
เคาท์เตอร์ครัวได้เตาไฟฟ้า 2 หัวพร้อมเครื่องดูดควัน และอ่างล้างจานแบบ 1 หลุม
ช่องเก็บของบนเคาท์เตอร์มีหลายช่องค่ะ เก็บของได้เยอะ
ข้างเคาท์เตอร์เป็นประตูบานกระจกออกไปที่ระเบียง
พื้นที่ระเบียงขนาด 150x100 ซม.
สวิตซ์ไฟระเบียงอยู่ด้านใน ก่อนออกประตูค่ะ
ด้านนอกมีก๊อกน้ำและปลั๊กไฟสำหรับติดตั้งเครื่องซักผ้าไว้ให้ CDUแอร์ติดไว้ด้านบน ราวกันตกเป็นราวเหล็กสีดำ
ไฟระเบียงเป็นดาวน์ไลท์ 1 ดวงค่ะ
มองจากระเบียงเข้ามาในห้อง อีกด้านเป็นห้องน้ำค่ะ
ห้องน้ำเข้าจากส่วนของห้องครัว ซึ่งเป็นข้อดีสำหรับการทำความสะอาด ซักล้าง หรือเวลามีแขกไปใครมา เพราะบางโครงการห้องน้ำอยู่ในห้องนอน สะดวกกับการใช้งานของเจ้าของห้องจริง แต่เวลามีแขกมา ก็ต้องผ่านห้องนอนเราไปก่อน
ด้านในห้องน้ำได้ฟังก์ชั่นแยกส่วนเปียก ส่วนแห้ง
พื้นห้องน้ำเป็นกระเบื้องด้านสีเทา
ส่วนเปียกและส่วนแห้งด้านในแบ่งด้วยบานสไลด์กั้น Shower Box
สุขภัณฑ์ในห้องน้ำได้ของ Nahm ก่อผนังหลังชักโครงออกมาก สามารถวางของได้อีก
ด้านใน Shower Box พื้นที่ประมาณ90x130 ซม. กั้นด้านบานสไลด์ 2 บาน แต่เปิดได้ด้านเดียว
Shower Box กั้นพื้นขึ้นมาประมาณ 10 ซม. รวมขอบประตู กันน้ำกระเด็น
ในฝนห้องน้ำก็ได้เป็นดาวน์ไลท์ มีระบบระบายอากาศ
ฝักบัวได้แบบ Hand Shower มีที่วางสบู่มาให้ แต่แนะนำให้ติดชั้นเพิ่มนะคะ
ร่องระบายน้ำในShower Box
Environment
Environment - สภาพแวดล้อมรอบโครงการ The One Plus คอนโดมิเนียม @หัวหมาก20
พื้นที่โดยรอบโครงการเป็นชุมชนที่พักอาศัย และออฟฟิสบริษัทในด้านถนนศรีนครินทร์ ส่วนในด้านหัวหมากก็เป็นโครงการคอนโด ร้านอาหาร ตลาดและมหาวิทยาลัย ซึ่งสามารถอ่านได้จากรีวิวโครงการ The One Plus D โครงการรุ่นน้องจากผู้พัฒนาเดียวกัน ในทำเลเดียวกัน ที่ ESTOPOLIS เคยมารีวิวแล้ว
Location
Location – ที่ตั้งโครงการ The One Plus คอนโดมิเนียม @หัวหมาก20
แผนที่โครงการ The One Plus คอนโดมิเนียม @หัวหมาก20 ตัวโครงการอยู่ในซอยหัวหมาก 20 แต่สำนักงานขายจะอยู่ติดถนนหัวหมากค่ะ
การเดินทาง
การเดินทางมายังโครงการในวันนี้เราจะใช้เส้นทางเดียวกันกับตอนที่เรามารีวิวโครงการ The One Plus D (เดอะ วัน พลัส ดี) นะคะ
โดยเริ่มจากแยกเทพลีลา ด้านหน้ามหาวิทยาลัยรามคำแหง แล้วเลี้ยวขวามาทางคลองตันค่ะ
พอเลี้ยวมานิดนึงจะผ่านหน้ามหาวิทยาลัยรามคำแหงหัวหมาก ตรงมาเจอป้ายทางลัดถนนพระราม9 ซอยเสรี2 เราก็เลี้ยวซ้ายมาได้เลยค่ะ
เข้าซอยมาแล้วจะเป็นถนน4เลน ในช่วงชั่วโมงเร่งด่วนอาจจะติดนิดหน่อย เพราะทางนี้สามารถไปทะลุออกได้ทั้งพระราม9 พัฒนาการ และถนนศรีนครินทร์ค่ะ
ตรงมาจะเห็นป้ายไปถนนศรีนครินทร์ กรุงเทพกรีฑา และเลี้ยวขวาพระราม9 ให้ตรงมาถึงสามแยกก่อนนะคะ แล้วเลี้ยวซ้าย
พอถึงสามแยกจะมีปั๊มเชลล์ และป้อมตำรวจอยู่ ก็เลี้ยวซ้ายมาได้เลย
ตรงมาเรื่อยๆ จะผ่านประตูหลังของมหาวิทยาลัยรามคำแหง และสนามกีฬาราชมังคลากีฬาสถานค่ะ
เราขับยาวมาต่อกันที่โค้งหน้ามหาวิทยาลัยอัสสัมชัญ หรือ ABAC หัวหมากค่ะ โค้งขวาตามทางมาเลย
ตรงมาเรื่อยๆ มองไปไกลๆจะเห็นอาคารของโรงพยาบาลสมิติเวช ศรีนครินทร์ค่ะ
ขับมาเรื่อยๆสังเกตุซ้ายมือจะมีป้ายซอยหัวหมาก 20 ซึ่งสามารถเป็นเส้นทางลัดไปออกถนนรามคำแหงได้ ให้เลี้ยวซ้ายเข้าซอยมาเลยค่ะ
เลี้ยวเข้ามาในซอยแล้วจะเจอกับบ้านพักอาศัยและอาคารพาณิชย์สองฝั่งถนน และมีอาคารอพาร์ทเมนท์อยู่ใกล้กับมุมแยก 1 ที่เราจะต้องเลี้ยวขวาค่ะ
ขับมาเจอซอยหัวหมาก 20 แยก 1 ก็เลี้ยวขวาเข้ามาได้เลยค่ะ
เลี้ยวเข้ามาในซอยยังเป็นพื้นที่ดินเปล่าค่ะ มีแค่ปากซอยที่เป็นบ้านคน
เข้ามาเกือบสุดซอยก็จะเจอกับโครงการอยู่ทางซ้ายมือค่ะ
แล้วก็ถึงตัวโครงการ The One Plus คอนโดมิเนียม @หัวหมาก20 ค่ะ
Analysis
Project analysis - วิเคราะห์โครงการ The One Plus คอนโดมิเนียม @หัวหมาก20
ทำเล: โครงการตั้งอยู่บนเส้นหัวหมาก ในซอยหัวหมาก 20 ลึกเข้าไปในซอยประมาณ 50 เมตร ซึ่งเส้นหัวหมากมีความเงียบสงบ และไม่ค่อยพลุกพล่านเท่าแถวๆ เส้นรามคำแหง เนื่องจากย่านรามคำแหงเป็นพื้นที่ไลฟ์สไตล์ทำให้มีห้างสรรพสินค้าชั้นนำมากมายไ ซึ่งทุกคนก็ต่างรู้ดีว่าเป็นย่านที่มีผู้คนอาศัย และทำกิจกรรมต่างๆ อยู่บริเวณนี้ตลอด 24 ชม. ด้านการเดินทางก็สะดวกสบายเนื่องจากที่ตั้งโครงการอยู่ใกล้ทางแยกยกระดับศรีนครินทร์ – กรุงเทพกรีฑา ประกอบกับทำเลที่ตั้งของโครงการอยู่กึ่งกลางระหว่างเส้นรามคำแหง กับเส้นพระราม 9 ทำให้สามารถเดินทางได้อย่างหลากหลายเส้นทางไม่ว่าจะจุดขึ้น-ลงทางด่วนพระราม 9 หรือใช้มอเตอร์เวย์ วงแหวนรอบนอก อีกทั้งยังอยู่ห่าง จากรถไฟฟ้าสายสีเหลือง (ลาดพร้าว – สำโรง) สถานีศรีกรีฑา 3 นาที (สายอานาคต) รวมถึงรถไฟฟ้าสายสีส้ม (บางขุนนนท์ – มีนบุรี) สถานีหัวหมาก (สายอานาคต) และ Airport Rail Link สถานีหัวหมาก
สภาพแวดล้อม : สภาพแวดล้อมโดยรอบของโครงการ ส่วนใหญ่จะเป็นพื้นที่บ้านพักอาศัยและโครงการคอนโดมิเนียม ไม่พลุกพล่าน ทำเลรอบนอกเป็นแหล่งทำงาน ใกล้กับบริษัทใหญ่ๆเช่น โอสถสภา FBT Greensport และร้านอาหาร จึงจะคึกคักหน่อยในช่วงกลางวัน และเป็นแหล่งรวมสถานที่แฮงก์เอาท์ในตอนกลางคืนของเหล่านักศึกษา เพราะใกล้กับมหาวิทยาลัยรามคำแหง และABAC หรือในบางวันก็จะคึกคักเป็นพิเศษถ้ามีรายการแข่งขันกีฬาที่ กกท. แต่ก็อาจจะเจอรถติดนิดหนึ่งโดยเฉพาะวันที่มีแข่งฟุตบอลทีมชาติ ส่วนสถานที่อำนวยความสะดวกก็มีทั้ง The Nine ที่อยู่ติดกับถนนพระรามเก้า และ The Mall รามคำแหง, BigC รามคำแหง มี Malor Hollywood อยู่ใกล้ๆเดอะมอลล์รามฯ หรือจะข้ามไปเดอะมอลล์บางกะปิก็ได้ ถ้าข้ามไปฝั่งศรีนครินทร์ก็มีทั้งห้าง Tanya Park, Second Sqare ศรีนครินทร์, และ Paradise Park เส้นพัฒนาการก็มี Tesco Lotus พัฒนาการ ติดกับ London Street และแยกพัฒนาการก็มี Max Value และ Community Mall ให้ใช้บริการ ถือว่าสภาพแวดล้อมและความสะดวกสะบายค่อนข้างครบเลยทีเดียว
แบบห้อง: โครงการมีแบบห้อง 3 แบบ เป็นแบบ 1 ห้องนอนขนาด 29 ตร.ม. 2 แบบ กั้นด้วยประตูบานเลื่อน และแบบ 1 ห้องนอน 32 ตร.ม. ซึ่งถือว่าเป็นแบบห้องมาตรฐานของคอนโดสมัยนี้ Lay Out ของห้องก็ใช้งานได้โอเค ห้องน้ำอยู่ในส่วนครัว ไม่ต้องเข้าไปวุ่นวายในห้องนอน พื้นที่ห้องเหมาะสำหรับคนโสด หรืออาจจะมีคู่ แต่ไม่เหมาะกับการอยู่เป็นครอบครัวที่มีลูกเข้าวัยประถมแล้ว
สิ่งอำนวยความสะดวก: สิ่งอำนวยความสะดวกในโครงการก็ให้มาตามมาตรฐานสมัยนิยมที่คอนโดทั่วไปให้มา มีสระว่ายน้ำ ห้องออกกำลังกาย ร้านค้า สวนบนดาดฟ้า และMail box สำหรับพื้นที่ส่วนกลางของโครงการที่ให้มา ถึงแม้ว่าจะไม่มากนัก แต่จำนวนห้องพักที่เปิดขายก็ไม่ได้เยอะเกินไป ส่วนใหญ่ลูกบ้านที่พักอยู่ก็จะออกไปห้างสรรพสินค้ารอบๆโครงการในวันหยุด
The One Plus Condominium หัวหมาก20 จุดเด่นสำคัญของโครงการนี้คงเป็นเรื่องของทำเลที่ตั้งที่ใกล้กับจุดเชื่อมต่อเรื่องการเดินทาง เพราะอยู่ในทำเลที่ กำลังจะมีเส้นทางรถไฟฟ้าสายสีเหลือง และสายสีส้ม ซึ่งในอนาคตจะมีส่วนช่วยเรื่องการจราจรในแถบนี้มาก เนื่องจากย่านถนนลาดพร้าว-บางกะปิ มีจำนวนประชากรอยู่อาศัยหนาแน่นมาก ต้องการระบบขนส่งมวลชนที่ไปเชื่อมต่อกับรถไฟฟ้ามหานครสายเฉลิมรัชมงคล เพื่อเชื่อมแหล่งที่อยู่อาศัยและแหล่งงานสำคัญอย่าง บางกะปิ ลาดพร้าว และรัชดาฯ อีกทั้งยังต่อเนื่องไปยังศูนย์กลางธุรกิจอื่นๆ โดยทำเลนี้คาดว่าจะมีการขยายตัวสูง บริเวณหัวหมากน่าจะเหมาะกับการอยู่อาศัยมากกว่า อีกทั้งการอยู่ติดกับเส้นรามคำแหงทำให้พื้นที่ไลฟ์สไตล์ต่างๆ ของเส้นรวมคำแหงก็เหมือนกับเป็นพื้นที่ไลฟ์สไตล์ของเส้นหัวหมากเช่นกัน ประกอบกับทำเลที่เป็นจุดกึ่งกลางทำให้สามารถออกไปยังเส้นพระราม 9 ได้อีกเส้น และที่สำคัญการที่จะมีรถไฟฟ้าสายสีเหลือง (ลาดพร้าว – สำโรง) ในอนาคตก็ทำให้สะดวกสบายสำหรับการเดินทางเข้าเมือง เพราะที่ตั้งของโครงการอยู่ใกล้กับสถานีศรีกรีฑาเพียง 3 นาที สำหรับคนที่ใช้รถส่วนตัวก็ใกล้จุดขึ้น-ลงมอเตอร์เวย์หรือจะเชื่อมไปถนนพระรามเก้า ศรีนครินทร์และพัฒนาการได้้ อีกทั้งในเรื่องของราคาที่เปิดมาเพียง 999,000 บาท ทำให้ห้องชุดในโครงการดังกล่าวอยู่ในระดับราคาที่สามารถจับต้องได้ และที่สำคัญคือตอนนี้โครงการขายหมดไปแล้วอย่างรวดเร็ว
The One Plus @Huamark20
58aeb2b81de72e13cc79e406
the-one-plus-huamark20


















































































