[Review] HYDE Heritage Thonglor คอนโดหรูระดับ Super Luxury ที่สุดของความ ‘พิเศษ’ ย่านทองหล่อ
ถนนสุขุมวิท แขวงคลองตันเหนือ เขตวัฒนา กรุงเทพมหานคร
Grande Asset Hotels and Property Company Limited

HIGHLIGHTS
ครั้งแรกในไทย กับเซอร์วิสเรสซิเดนซ์
ชั้นนำระดับสากลจาก Valor
- เซอร์วิสระดับโรงแรมจาก Valor ครั้งแรกในประเทศไทย ที่จะเข้ามาช่วยให้ชีวิตของคุณสะดวกสบายได้มากกว่าที่เคยสัมผัส
- ครอบคลุม ครบครัน ทุกการใช้งานในชีวิตประจำวัน ด้วย Facilities จัดเต็มมากถึง 8 ชั้น รวม 28 ฟังก์ชัน
- มั่นใจได้ในคุณภาพและดีไซน์ ด้วยพาร์ทเนอร์ยักษ์ใหญ่ที่มาช่วยรังสรรค์ความพิเศษอย่าง Sumitomo ซึ่งมีประวัติความเป็นมายาวนานกว่า 300 ปี
- Location อยู่ห่างจาก BTS ทองหล่อเพียง 250 เมตร ถือเป็นทำเลทองใจกลางเมืองที่ใครก็ต่างใฝ่ฝัน
- มาพร้อมระบบ Home Automation ที่ให้คุณจัดการเรื่องทุกอย่างได้ง่ายดาย เพียงแค่ปลายนิ้ว
Project Review
พบโครงการคอนโดมิเนียมระดับ Super Luxury ใจกลางทำเลทองอย่าง ‘ทองหล่อ-เอกมัย’ กับ HYDE Heritage Thonglor เรสซิเดนซ์สุด Exclusive ที่ให้คุณพบกับประสบการณ์การพักอาศัยเสมือนโรงแรมระดับ 5 ดาวได้ในทุก ๆ วัน ด้วยเซอร์วิสชั้นนำระดับสากลจาก Valor แห่งแรกในประเทศไทย พร้อมมาตรฐานการก่อสร้างจากบริษัทชั้นนำของประเทศญี่ปุ่นอย่าง Sumitomo ที่ได้รับความไว้วางใจในวงการก่อสร้างทั้งในยุโรป และเอเชีย ด้วยดีกรีความเป็นผู้เชี่ยวชาญในวงการมายาวนานกว่า 300 ปี คุณจึงมั่นใจได้เลยว่า…. พื้นที่อยู่อาศัยของ ‘HYDE Heritage Thonglor’ จะเป็นที่สุดในเรื่องของการอยู่อาศัยเพื่อคนเมืองอย่างแท้จริง
รายละเอียดโครงการ HYDE Heritage Thonglor
ชื่อโครงการ : HYDE Heritage Thonglor (ไฮด์ เฮอริเทจ ทองหล่อ)
เจ้าของโครงการ : Grand Star Company Limited (A Thai-Japanese Partnership By 3 Leading Developers)
- Grande Asset Hotels & Property Pcl.
- Sumitomo Forestry Co.,Ltd.
- Property Perfect Pcl.
ที่ตั้งโครงการ : ถนนสุขุมวิท แขวงคลองตันเหนือ เขตวัฒนา กรุงเทพมหานคร
พื้นที่โครงการ : 2-2-18 ไร่
ลักษณะโครงการ : High Rise สูง 45 ชั้น 1 อาคาร
จำนวนห้อง : 311 ยูนิต
รูปแบบห้อง :
- 1 Bedroom (Type A : 40.00 - 43.20 Sq.m.)
- 1 Bedroom (Type B : 50.70 - 58.70 Sq.m.)
- 2 Bedrooms (Type C : 68.20 - 86.80 Sq.m.)
- 3 Bedrooms (Type D : 111.30 - 186.00 Sq.m.)
- Duplex Penthouse (234.00 - 326.00 Sq.m.)
- Penthouse (357.00 Sq.m.)
ที่จอดรถ : 100% (Conventional & Automatic Parking)
ราคาเริ่มต้น : 9.6 ล้านบาท
Floor Plan และพื้นที่ส่วนกลาง โครงการ HYDE Heritage Thonglor
โครงการ HYDE Heritage Thonglor ตั้งอยู่ติดกับถนนสุขุมวิท ห่างจาก BTS ทองหล่อเพียง 250 เมตร พร้อมรายล้อมไปด้วยแหล่งไลฟ์สไตล์, แฮงก์เอาต์, ความบันเทิง และความสะดวกสบายครบครัน ตามแบบฉบับทำเลทองสำหรับผู้ที่หลงไหลในไลฟ์สไตล์สุดคึกคัก
เริ่มต้นสำรวจแปลนโครงการ HYDE Heritage Thonglor ที่บริเวณชั้น 1 กัน จากทางเข้าโครงการจะมี ลักษณะการเดินรถเป็นแบบทางเดียว โดยด้านหน้าสุดของทางเข้าจะเป็น ‘จุด Drop Off’ ที่สามารถเดินเชื่อมต่อเข้าสู่ Grand Lobby Lounge ได้ทันที ถัดจากจุด Drop Off เข้าไปจึงจะเป็นพื้นที่จอดรถทั้งแบบ Smart Parking, Automated Parking Supercar และ Parking
นอกจากนี้ยังมี ‘พื้นที่พิเศษอีกหนึ่งจุด’ อยู่ทางด้านหลังสุดของอาคาร โดยพื้นที่ส่วนนี้จะสงวนสิทธิไว้ให้เฉพาะลูกบ้านของโครงการเท่านั้น ภายในมี Private VIP Storage และ Private Storage ให้สำหรับทุกยูนิต (ซึ่งจะมีขนาดแตกต่างกันไปตาม Type ห้อง) อีกทั้งยังมี Laundry Room, Parcel Room และ Smart Lockers อยู่ที่บริเวณชั้นนี้ด้วย
สำหรับพื้นที่ชั้น 2 จะเป็นชั้นที่สงวนไว้ให้เฉพาะลูกบ้านของทางโครงการเช่นเดียวกัน โดยเราสามารถเดินขึ้นบันไดที่อยู่บริเวณ Grand Lobby Lounge เพื่อเชื่อมต่อเข้ามาใช้งานได้ทันที
- พื้นที่จอดรถสำหรับ Penshouse จะจัดไว้ให้จำนวน 2 คัน ส่วนห้อง 3 Bedrooms จะได้ 1 คัน
- มีจุดบริการ EV Charging Station ให้ทั้งหมด 6 หัว รองรับรถได้ทั้งหมด 12 คัน
- โถงลิฟท์ใช้ระบบคีย์การ์ดในการใช้งาน จึงสะดวกสบาย และให้ความปลอดภัยสูงสุด
เมื่อเข้ามาถึงบริเวณทางเข้าโครงการ HYDE Heritage Thonglor เราก็จะพบกับมุม Garden ที่มีสระน้ำ และสวนสวยสีเขียวอยู่บริเวณด้านหน้าก่อนเป็นลำดับแรก โดยบริเวณนี้จะมีจุด Drop-Off ให้ลูกบ้านทุกคนสามารถลงจากรถ แล้วเชื่อมต่อเข้าไปยังโถง Lobby ด้านในได้ทันที
ขยับไปดูตรงส่วนของจุดจอดรถ ที่เมื่อเราขับรถตรงเข้าไปจะเจอกับทางลงไปยัง ลานจอดรถแบบ Conventional ทั้งหมด 53 ช่องจอด และยังมีในส่วนของลิฟท์จอดรถแบบ Automatic Parking ให้ถึง 240 ช่องจอด พร้อมด้วยพื้นที่พิเศษสำหรับ Supercar อีกจำนวน 6 ช่องจอดอยู่ในบริเวณเดียวกัน
“สร้างความประทับใจได้ไม่รู้จบ” ด้วยพื้นที่ต้อนรับอย่าง Grand Lobby Lounge ดูสง่างามและโอ่โถง ด้วยความสูงจากพื้นถึงเพดาน 14 เมตร ทำให้ล็อบบี้แห่งนี้มีทั้งความ Glam และ Luxury เหมาะกับการใช้ต้อนรับแขกคนสำคัญ หากใครต้องการพื้นที่สำหรับนั่งชิลล์ในวันสบาย ๆ หรือนั่งรอรถส่วนตัวสำหรับวันพิเศษของคุณ ที่บริเวณชั้น 2 ก็มีส่วน “Private Grand Lobby Lounge” สำหรับลูกบ้านโดยเฉพาะ คอยต้อนรับอยู่เสมอ
ต่อด้วย Private Storage ที่ทางโครงการ HYDE Heritage Thonglor ใส่ใจเพิ่มความรายละเอียดให้กับพื้นที่เก็บของของคุณ ด้วยตู้เก็บของส่วนตัวสำหรับทุกยูนิต เอาไว้ใช้เก็บของชิ้นใหญ่ที่ไม่ค่อยได้ใช้งานบ่อยนัก อาทิ กระเป๋าเดินทาง หรืออุปกรณ์กีฬา โดยที่เราไม่ต้องเปลืองพื้นที่ภายในห้องพักอาศัย ซึ่งทางโครงการจะแบ่งขนาด Storage ตาม Type ห้อง ดังนี้...
- 1 Bedroom และ 2 Bedrooms = 0.55x0.9x1.0 เมตร
- 3 Bedrooms = 0.68x0.9x3.0 เมตร
- Penthouses = 1.80x0.9x3.0 เมตร
ขยับขึ้นมาสำรวจต่อกันที่บริเวณชั้น 7 ซึ่งจะเป็นพื้นที่ของ Facilities ทั้งชั้น ประกอบด้วย HYDE Garden และ Glass House Lounge ส่วนพักผ่อนแบบ Outdoor เมื่อถัดเข้าไปในอาคารจะเจอพื้นที่ในส่วนของการทำงานอย่าง Library และ Co-Working Space, พื้นที่นั่งพักผ่อน Grand Lounge ที่สามารถจัดปาร์ตี้แบบส่วนตัวได้, รวมไปถึงห้องจิบชา Tea Lounge, ห้องสำหรับคุณหนูอย่าง Kids Learning Space, พื้นที่เสริมความงามอย่างห้อง Manicure & Pedicure, Salon Room และ Spa ซึ่งเราสามารถให้ช่างเข้ามาดูแลจัดการเรื่องความงามกันได้ถึงที่ นอกจากนี้ยังมี Theater Room สำหรับรับชมภาพยนตร์แบบเต็มอรรถรสอีกด้วย
สำหรับพื้นที่ HYDE Garden นี้ จะเป็นสวนหย่อมแสนร่มรื่น ที่โอบล้อมด้วยสายน้ำ และวิวสวย ๆ ของเมือง ซึ่งคุณสามารถออกมาสูดอากาศ และนั่งพักผ่อนหย่อนใจให้คลายเหนื่อยล้าในพื้นที่นี้ได้ทุกวัน
นอกจาก HYDE Garden แล้ว พื้นที่ส่วน Outdoor ของโครงการก็ยังจะมี Glass House สุดอลังการด้วยโครงสร้างกระจกใสทั่วทั้งเรือน มาพร้อมกับพื้นที่พักผ่อนไว้นั่งชม City View สวย ๆ แล้วค่อยเติมความสดชื่นด้วยพันธุ์ไม้ประดับที่ตกแต่งอยู่ด้านบนเพดาน บอกเลยว่า… เรือนกระจกแห่งนี้จะต้องกลายเป็นมุมโปรดของใครหลายคนแน่นอน เพราะนอกจากบรรยากาศจะดีแล้ว เรายังไม่ต้องห่วงเรื่องสภาพอากาศ เนื่องจากทางโครงการได้ทำการติดตั้งเครื่องปรับอากาศเอาไว้ ให้เราได้พักผ่อนกันแบบยาว ๆ
คราวนี้มาต่อที่ด้านในอาคารกันบ้าง กับ Library วิวสวนสวย ที่ให้เราเข้ามาสร้างสมาธิท่ามกลางบรรยากาศอันเงียบสงบ พร้อมด้วยจุดพักสายตา ที่มองออกไปเห็นธรรมชาติสีเขียวด้านนอกได้ตลอดเวลา รับรองว่า... สามารถสร้างความประทับใจให้กับการอ่านหนังสือเล่มโปรดของคุณได้อย่างแน่นอน
ฝั่งตรงข้ามกับ Library ก็เป็นอีกหนึ่งมุมพักผ่อนที่น่าประทับใจอย่าง Tea Lounge ซึ่งมาในโทนสีอ่อนหวาน โอ่โถง พร้อมมุมนั่งพักผ่อนที่เราสามารถชมบรรยากาศด้านนอก ได้อย่างเปิดโล่งอีกเช่นเคย ไม่ว่าคุณจะชวนกลุ่มเพื่อนมา Meeting แบบเป็นกันเอง หรือนั่งจิบชากับคนรู้ใจ ก็ล้วนดื่มด่ำกับความพิเศษแสนเรียบง่ายนี้ได้ทุก ๆ วัน
นอกจากนี้ก็ยังมีพื้นที่สำหรับการดูแลตัวเองอย่าง Manicure & Pedicure, Salon Room และ Spa คอยรองรับอยู่ ซึ่งจะช่วยให้คุณได้หันมาดูแลตัวเองกันอย่างเต็มรูปแบบ ด้วยช่างส่วนตัวที่รู้ใจ โดยคุณสามารถเรียกผู้ดูแลมาช่วยเสริมความงามได้ตลอดเวลาเลย
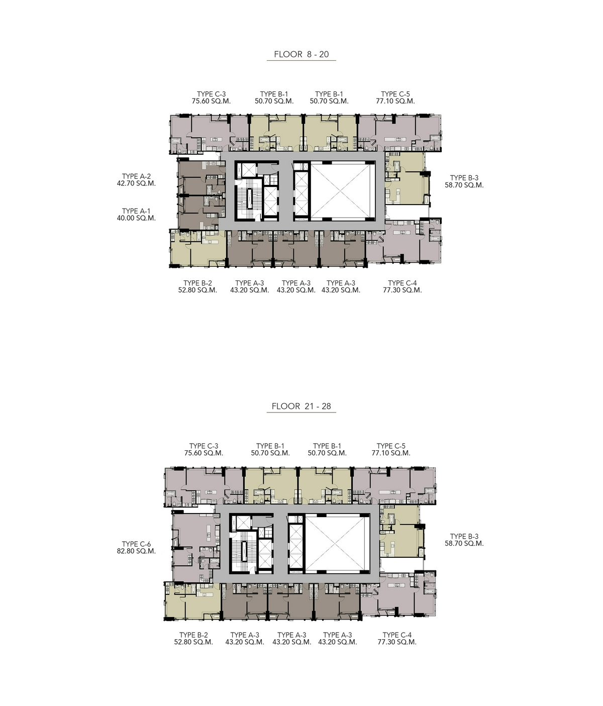
ชั้น 8 - ชั้น 20 จะเป็นพื้นที่พักอาศัยแบบเต็มชั้น ซึ่งแต่ละชั้นจะมีจำนวนยูนิตและ Type ห้องเหมือนกันทุกประการ โดยแต่ละชั้นจะมีทั้งหมด 12 ยูนิต ประกอบไปด้วย…
- Type A-1 ขนาด 40.00 ตารางเมตร : จำนวน 1 ห้อง
- Type A-2 ขนาด 42.70 ตารางเมตร : จำนวน 1 ห้อง
- Type A-3 ขนาด 43.20 ตารางเมตร : จำนวน 3 ห้อง
- Type B-1 ขนาด 50.70 ตารางเมตร : จำนวน 2 ห้อง
- Type B-2 ขนาด 52.80 ตารางเมตร : จำนวน 1 ห้อง
- Type B-3 ขนาด 58.70 ตารางเมตร : จำนวน 1 ห้อง
- Type C-3 ขนาด 75.60 ตารางเมตร : จำนวน 1 ห้อง
- Type C-4 ขนาด 77.30 ตารางเมตร : จำนวน 1 ห้อง
- Type C-5 ขนาด 77.10 ตารางเมตร : จำนวน 1 ห้อง
ส่วนชั้น 21 - ชั้น 28 จะมีลักษณะแปลนเหมือนกับชั้น 8 - ชั้น 20 เพียงแต่บริเวณห้อง Type A-1 และ Type A-2 จะเปลี่ยนเป็น Type C-6 ขนาด 82.80 ตารางเมตรเท่านั้นเอง
ทางด้านของความเป็นส่วนตัว ชั้นพักอาศัยจะเป็นแบบ Single Corridor ในลักษณะของโถงทางเดินที่มีห้องอยู่ฝั่งเดียว ทำให้การใช้ชีวิตของคุณมีความไพรเวทค่อนข้างสูง อีกทั้งจำนวนยูนิตสูงสุดต่อชั้นก็ยังมีเพียง 12 ยูนิตเท่านั้น
สำหรับชั้น 29 จะเป็นชั้นที่มีพื้นที่พักอาศัยอยู่รวมกับพื้นที่ส่วนกลางอย่าง HYDE Sky Garden โดยชั้นนี้จะมีจำนวนห้องพักอาศัยอยู่ที่ 6 ยูนิต และมีพื้นที่ของสวนสีเขียวตั้งอยู่ในบริเวณเดียวกัน จึงทำให้ชั้นนี้ค่อนข้างมีความเป็นส่วนตัว พร้อมได้ใกล้ชิดธรรมชาติเป็นพิเศษ
โดยจะมี Type ห้องดังต่อไปนี้…
- Type C-1B ขนาด 68.20 ตารางเมตร : จำนวน 1 ห้อง
- Type C-2 ขนาด 72.50 ตารางเมตร : จำนวน 1 ห้อง
- Type C-3 ขนาด 75.60 ตารางเมตร : จำนวน 1 ห้อง
- Type C-6 ขนาด 82.80 ตารางเมตร : จำนวน 1 ห้อง
- Type D-2 ขนาด 125.60 ตารางเมตร : จำนวน 1 ห้อง
- Type D-7 ขนาด 186.00 ตารางเมตร : จำนวน 1 ห้อง
สำหรับชั้น 30 - ชั้น 36 จะมีจำนวนห้องพักอาศัยอยู่ที่ 7 ยูนิต ดังนี้…
- Type A-3 ขนาด 43.20 ตารางเมตร : จำนวน 1 ห้อง
- Type B-2 ขนาด 52.80 ตารางเมตร : จำนวน 1 ห้อง
- Type C-1A ขนาด 68.20 ตารางเมตร : จำนวน 1 ห้อง
- Type C-3 ขนาด 75.60 ตารางเมตร : จำนวน 1 ห้อง
- Type C-6 ขนาด 82.80 ตารางเมตร : จำนวน 1 ห้อง
- Type C-7 ขนาด 86.80 ตารางเมตร : จำนวน 1 ห้อง
- Type D-3 ขนาด 138.40 ตารางเมตร : จำนวน 1 ห้อง
ส่วนชั้นที่ 37 และชั้น 38 จะมีจำนวนยูนิตน้อยที่สุดต่อชั้นอยู่ที่ 4 ยูนิต ดังนี้…
- Type D-1 ขนาด 111.30 ตารางเมตร : จำนวน 1 ห้อง
- Type D-4 ขนาด 143.10 ตารางเมตร : จำนวน 1 ห้อง
- Type D-5 ขนาด 159.10 ตารางเมตร : จำนวน 1 ห้อง
- Type D-6 ขนาด 160.30 ตารางเมตร : จำนวน 1 ห้อง
ถัดขึ้นมาที่ชั้น 39 จะเป็นส่วนของห้อง Sauna ส่วนชั้นที่ 40 จะเป็นสระว่ายน้ำระบบเกลือ Sky Pool 360 องศา โดยแบ่งเป็นสระผู้ใหญ่ขนาด 5x25 เมตร ที่เราสามารถว่ายน้ำออกกำลังกายได้เต็มที่ และยังมีส่วนของ Kids Pool สำหรับคุณหนู ๆ ,ส่วนของ Jacuzzi และ Hot Tub ที่มีระบบแรงดันน้ำสำหรับการผ่อนคลายความเมื่อยล้า พร้อมด้วย Daybed สำหรับนอนชิลล์ ๆ ริมสระ แถมคุณยังสามารถเทควิวสวยของบางกระเจ้าได้อีกด้วย
ปิดท้ายด้วย Facilities บนชั้น 41 ที่คุณสามารถเดินเชื่อมต่อขึ้นมาจากบันไดวน ตรงบริเวณชั้น 40 ได้ทันที โดยชั้นนี้ทั้งหมดจะเป็นส่วนของ Grand Gym ที่นอกจากจะมีอุปกรณ์สำหรับออกกำลังกายครบครันแล้ว ก็ยังมี Boxing Room สำหรับคนที่ชื่นชอบกายออกกำลังแบบคาร์ดิโอ, Yoga Room สำหรับหนุ่ม ๆ สาว ๆ และ Experiential Golf Simulator สำหรับพัตต์กอล์ฟในร่มแบบเสมือนจริงด้วย
ชั้น 42 และชั้น 43 จะเป็นส่วนของห้อง Penthouses Duplex 3 ยูนิต ได้แก่...
- Type P-1 ขนาด 234.00 ตารางเมตร : จำนวน 1 ห้อง
- Type P-2 ขนาด 234.00 ตารางเมตร : จำนวน 1 ห้อง
- Type P-3 ขนาด 326.00 ตารางเมตร : จำนวน 1 ห้อง
ก่อนจะขึ้นไปยังชั้นบนสุดที่ชั้น 44 กับ Penthouses สุดอลังการทั้งชั้น อย่างห้อง Type P-3 ขนาด 357.00 ตารางเมตร
Facilities ครบครัน มาพร้อมกับ
เซอร์วิสที่ยอดเยี่ยมจาก 'Valor'
Valor Hospitality Partners เป็นองค์กรที่ให้บริการแบบครบวงจรในธุรกิจ Hospitality ที่ไม่ว่าจะเป็นธุรกิจโรงแรม, เซอร์วิส เรสซิเดนซ์ หรืออสังหาริมทรัพย์อื่น ๆ โดย Valor จะมีจุดเด่น คือ การบริหารโรงแรมและเซอร์วิส เรสซิเดนส์ ที่ได้รับการยอมรับอย่างกว้างขวางในระดับสากล โดยเฉพาะเรื่องของการมีวิสัยทัศน์ที่แตกต่าง ซึ่งปัจจุบัน Valor มีสำนักงานตั้งอยู่ใน 5 ภูมิภาคทั่วโลก โดยมีโรงแรม และอสังหาริมทรัพย์ภายใต้การบริหารมากกว่า 150 แห่ง
สำหรับโครงการ HYDE Heritage Thonglor นับเป็นเรสซิเดนซ์แห่งแรกในไทย ที่จะให้คุณได้สัมผัสกับความประทับใจจากเซอร์วิสของ Valor ทั้งหมดดังนี้...
ขอบเขตในการบริการแบบมาตรฐาน
- บริการแผนกต้อนรับ และเจ้าหน้าที่บริการอำนวยความสะดวกตลอด 24 ชั่วโมง
- การจัดการฝึกอบรมให้กับพนักงานต้อนรับ และเจ้าหน้าที่บริการ เพื่อให้ความพร้อมในการให้บริการที่ได้มาตรฐานสูงสุด
- ให้การต้อนรับและทักทายในทุกโอกาส เพื่อให้ผู้อยู่อาศัย หรือผู้ใช้บริการมีความรู้สึกที่อบอุ่นและเป็นกันเอง
- บริการจัดการตู้จดหมาย รวมถึงการรับจดหมาย หรือพัสดุต่าง ๆ โดยมีบริการแจ้งเตือนเมื่อมีพัสดุ หรือเอกสารสำคัญ
- สื่อสารข้อมูลที่จำเป็นต่าง ๆ ให้กับผู้อยู่อาศัย และหน่วยงานที่เกี่ยวข้อง
- บริการช่วยเหลือ และประสานงานรถรับส่ง สถานีบีทีเอส
- บริการช่วยเหลือในการสำรองร้านอาหาร, สปา หรือร้านเสริมสวย
- บริการช่วยเหลือ และประสานงานกับผู้ให้บริการ Food Delivery ชั้นนำ
- ดูแลรักษาพื้นที่ส่วนกลาง รวมถึงจัดเตรียมสื่อสิ่งพิมพ์ที่น่าสนใจต่าง ๆ ให้กับผู้อยู่อาศัย และผู้มาใช้บริการ
- บริการสำรองพื้นที่ประชุมภายใน
- ประสานงานกับทีมงานที่เกี่ยวข้องในกรณีที่ต้องการความช่วยเหลือทางเทคนิค หรืออุปกรณ์ต่าง ๆ ภายในห้องพัก และพื้นที่ส่วนกลาง
การบริการที่มีการคิดค่าใช้จ่ายเพิ่มเติมกับทางผู้พักอาศัย หรือผู้ใช้บริการ
- บริการทำความสะอาดห้องพัก (รายวัน, รายสัปดาห์, รายเดือน)
- บริการ ซัก รีด ครบวงจร
- บริการจัดเลี้ยงต่าง ๆ
- บริการอาหารเช้าในห้องพัก หรือ ณ พื้นที่ส่วนกลางในบริเวณที่กำหนด
- บริการจัดหาผู้ฝึกสอนส่วนตัวในด้านฟิตเนส , โยคะ และอื่น ๆ
- บริการจัดหาผู้ให้บริการพี่เลี้ยงเด็ก
- บริการช่วยเหลือในการจัดซื้อเฟอร์นิเจอร์ หรืออุปกรณ์ต่าง ๆ ภายในห้องพัก
- บริการช่วยเหลือในการซื้อสินค้าต่าง ๆ
- บริการเหนือระดับเฉพาะบุคคลจากผู้ช่วยส่วนตัว
- บริการจัดส่งสินค้า หรือพัสดุต่าง ๆ ในประเทศและนอกประเทศ
- บริการแปลเอกสาร
- บริการประสานงานเพื่อช่วยเหลือผู้เจ็บป่วย หรือต้องการการดูแลสุขภาพเป็นการพิเศษ
- บริการรถรับส่งสนามบิน และสถานที่อื่น ๆ
- บริการให้คำปรึกษา และช่วยเหลือในการปล่อยเช่าห้องพักและจัดหาผู้เช่า
- บริการเสิร์ฟอาหารในห้องพัก
- บริการช่วยเหลือในการสำรองตั๋วเครื่องบิน
- บริการจัดหาผู้ให้บริการล้างรถถึงสถานที่
- บริการจัดหาดอกไม้ตกแต่ง เพื่องานอีเวนต์ต่าง ๆ
- บริการสำรองผู้ให้บริการด้านเสริมความงามต่าง ๆ จากภายนอก
- บริการสำรองผู้ให้บริการสปา และนวดจากภายนอก
- บริการให้คำปรึกษาด้านอื่น ๆ เช่น สถานที่ท่องเที่ยว, ร้านอาหาร, แหล่งชอปปิง
Room Review
1 Bedroom Type B-1 ขนาด 50.7 ตร.ม.
สำหรับแปลนห้อง 1 Bedroom Type B-1 ขนาด 50.7 ตร.ม. จะแบ่งสัดส่วนระหว่างพื้นที่ใช้งาน และพื้นที่ส่วนตัวออกจากกันอย่างชัดเจน... เมื่อเข้าไปบริเวณด้านในห้องพักจะเจอกับ ‘ส่วนครัวเปิด’ เป็นจุดแรก ถัดไปด้านหน้าจะเป็นพื้นที่ของ ‘ห้องนั่งเล่น’ ที่เชื่อมกับ ‘ระเบียง’ ขนาดใหญ่ ส่วนทางด้านขวามือของห้องพักจึงจะเป็นพื้นที่ส่วนตัวอย่าง ‘Master Bedroom’ ที่มี ‘Master Bathroom’ อยู่ภายในตัว
เปิดประตูเข้าสู่ห้อง 1 Bedroom Type B-1 ขนาด 50.7 ตร.ม. ผ่านกลอนระบบดิจิทัลจาก Yale ที่ให้ความสะดวกสบายทั้งเทคโนโลยีสแกนลายนิ้วมือ, รหัส และคีย์การ์ด เมื่อเข้ามายังด้านในห้องแล้ว ฝั่งซ้ายมือจะเป็นตู้จัดเก็บรองเท้า และอุปกรณ์ต่าง ๆ ส่วนขวามือจะเป็นพื้นที่ส่วนครัวเปิด ที่เชื่อมต่อเข้าไปยังพื้นที่ห้องนั่งเล่น และระเบียงตามลำดับ
สำหรับพื้นห้องบริเวณนี้ทั้งหมดจะเป็นวัสดุกระเบื้อง Porcelain สีอ่อน ส่วนเพดานห้องจะให้ความสูงโปร่ง มากถึง 3 เมตร นอกจากนี้บานกระจกบริเวณห้องนั่งเล่นยังมีความสูงจุใจ สามารถเปิดรับแสงธรรมชาติจากด้านนอก ให้ส่องสว่างเข้ามาภายในห้องพักได้อย่างเต็มที่
สำหรับตู้เก็บของที่ทางโครงการให้มานั้น จะอยู่บริเวณหน้าทางเข้า ในลักษณะของตู้บานสูงเต็มพื้นที่ห้อง ภายในแบ่งชั้นจัดเก็บของไว้ให้เป็นอย่างดี เหมาะสำหรับใช้จัดเก็บกระเป๋าใบโปรด, รองเท้า, หมวก หรือ Accessories ที่ต้องการหยิบใช้งานง่าย ๆ ก่อนออกจากห้อง
- พื้นผิวหน้าบานเป็นวัสดุซาตินสเตน กันรอยนิ้วมือ โทนสี Copper ที่ให้ความคลาสสิก เรียบหรู
นอกจากจะแบ่งสัดส่วนของชั้นจัดเก็บไว้ให้อย่างดีแล้ว ทาง HYDE Heritage Thonglor ก็ยังใส่ใจในรายละเอียด ลงลึกไปถึงเทคโนโลยีในการจัดเก็บรองเท้า เพื่อให้เราใช้งานได้อย่างง่ายดาย และสะดวกสบายขึ้น ด้วย Fitting ชั้นวางรองเท้าจากแบรนด์ Panasonic พร้อมเพิ่มส่วนของ Hook และ Basket สเตนเลสสำหรับแขวนเครื่องประดับ, เข็มขัด, และข้าวของกระจุกกระจิกอื่น ๆ ให้เป็นระเบียบเข้ามาด้วย
ย้ายมาต่อกันในส่วนของ ‘ครัวเปิด’ กันบ้าง สำหรับห้อง 1 Bedroom แล้ว ถือว่าครัวของห้อง Type นี้จะมีขนาดที่ค่อนข้างใหญ่พอสมควร เหมาะจะพาเพื่อน ๆ มาปาร์ตี้ในวันหยุดสุดสัปดาห์ได้แบบสบาย ๆ
โดยส่วนของเคาน์เตอร์ครัวจะออกแบบมาในลักษณะเข้ามุม เต็มพื้นที่ห้อง มาพร้อมกับตู้เก็บของทั้งแบบตั้งพื้น และแขวนผนัง ส่วนบริเวณหน้าบานซาตินก็มีความสวยงามอีกเช่นเเคย ขยับไปเป็นมุมโต๊ะทานข้าวที่เชื่อมต่อมาจากตัวเคาน์เตอร์ นับเป็นการออกแบบที่เรียบง่าย แต่ให้ฟังก์ชันการใช้งานที่ครบถ้วน และสวยงาม
ภายในตู้ยังคงดีไซน์ให้มีชั้นจัดเก็บที่เพียงพอต่อความต้องการ ช่วยให้เราจัดเก็บวัตถุดิบ, เครื่องปรุง, อาหารแห้ง, ภาชนะ และอุปกรณ์สำหรับงานครัวต่าง ๆ ได้อย่างเป็นสัดส่วน เรียบร้อย และสามารถหยิบใช้งานได้สะดวก
ตลอดจนดีเทลต่าง ๆ ก็ยังใส่ใจ เพื่อให้คุณได้สัมผัสกับความสะดวกสบายในการใช้งานมากที่สุด โดยออกแบบมาให้ทั้งช่องแบ่งสำหรับจัดเก็บช้อนส้อม, ชั้นวางของพร้อมมือจับ สำหรับดึงลงมาเพื่อการหยิบใช้งานที่สะดวก, ชั้นวางของ Built in ติดบานตู้ สะดวกต่อการหยิบใช้งาน, ตะแกรงสำหรับเก็บอุปกรณ์ทำความสะอาด ไปจนถึงถังขยะพร้อมฝาปิดมิดชิด
ส่วนพื้นที่สำหรับการใช้งานครัวก็กว้างขวาง สามารถวางขวดเครื่องปรุง, เครื่องใช้ไฟฟ้า, อุปกรณ์ทำครัวได้เต็มที่ รับรองว่า... เตรียมอาหารสะดวกสบายแน่นอน โดยวัสดุท็อปครัวและ Backsplash จะเป็นหินควอตซ์ ที่โดดเด่นเรื่องความเเข็งแรง ทนทาน ทนต่อรอยขีดข่วน เหมาะกับงานครัวทุกประเภท
สำหรับชุดครัวที่ทางโครงการ HYDE Heritage Thonglor ให้มา จะมีอ่างล้างจานพร้อมก็อกน้ำ และตู้เย็นบิลต์อินจากแบรนด์ Kuppersbusch
ส่วนบริเวณด้านล่างเคาน์เตอร์จะเป็นเตาอบจาก Kuppersbusch ที่โครงการบิลต์อินมาให้อย่างสวยงาม แถมยังใช้งานง่าย หยิบจับถนัดมือ
ถัดมาเป็นส่วนของเตาไฟฟ้าขนาด 2 หัว พร้อมเครื่องดูดควันจากแบรนด์ชั้นนำอย่าง Kuppersbusch อีกเช่นเดียวกัน จึงทำให้การเข้าครัวของเรานั้นสนุก และสมบูรณ์แบบยิ่งขึ้น
มาสำรวจต่อที่ ‘พื้นที่ห้องนั่งเล่น’ ซึ่งจะเป็นพื้นที่โล่งกว้าง สำหรับให้ลูกบ้านได้ตกแต่ง และดีไซน์การใช้งานต่าง ๆ ให้ออกมาตามรสนิยมความชอบของตนเอง โดยทางโครงการจะติดตั้งระบบ Cable TV และปลั๊กไฟเอาไว้ให้เรียบร้อย โดยเราสามารถบิลต์อินชั้นวางทีวีเพิ่มเติม หรือเลือกรูปแบบโซฟาที่ชอบได้เอง โดยไม่ต้องกังวลเรื่องขนาดพื้นที่เลย
ถัดจากส่วนของห้องนั่งเล่นไป จะเป็นพื้นที่โล่งบริเวณหน้าประตูระเบียง ซึ่งคุณสามารถออกแบบพื้นที่ส่วนนี้ให้กลายมาเป็นมุมนั่งทำงานได้ง่าย ๆ ด้วยการเพิ่มตู้เก็บหนังสือ และโต๊ะทำงานพร้อมเก้าอี้ที่นั่งสบายสักตัว บอกเลยว่า... การได้นั่งทำงานในบรรยากาศดี ๆ จะช่วยให้คุณผ่อนคลาย พักสมอง และพักสายตาจากความเครียดในยามที่เหนื่อยล้าได้อีกด้วย
ระเบียงห้องถูกแบ่งออกเป็น 2 ส่วน โดยฝั่งซ้ายจะมีประตูบานเล็ก ที่สามารถเปิดออกไปเชื่อมกับห้องนั่งเล่นได้ ส่วนราวกันตกในบริเวณนี้จะเป็นกระจกบานใสแบบ Flamess ที่มีความสวยงาม เรียบหรู ไม่บดบังทัศนียภาพ ถัดไปฝั่งขวาจะเป็นพื้นที่สำหรับแขวนแอร์คอมเพรสเซอร์ ซึ่งจะกั้นด้วยประตูระแนง ช่วยป้องกันไม่ให้นกเข้ามาสร้างความเสียหาย ทั้งยังดูเป็นระเบียบ เรียบร้อยในตัว
กลับเข้ามาภายในห้องพักกันอีกครั้ง โดยบริเวณพื้นที่โล่งด้านหน้าประตูระเบียง ติดกับเคาน์เตอร์ครัว ทางโครงการได้ออกแบบให้เป็นห้องซักผ้าขนาดพอเหมาะ สำหรับใช้วางเครื่องซักผ้าได้ทั้งแบบฝาหน้าและฝาบน แถมยังเหลือพื้นที่ด้านบนให้เราเพิ่มบิลต์อินชั้นวาง ทำเป็นพื้นที่จัดเก็บของได้อีกค่อนข้างเยอะ
ต่อด้วยพื้นที่พักผ่อนสุดไพรเวทอย่าง ‘ห้อง Master Bedroom’ ที่มีสัดส่วนกว้างขวาง พื้นปูด้วย Engineering Wood โทนสีอ่อน ดูอบอุ่น สบายตา ฝั่งซ้ายมือจะเป็นพื้นที่วางเตียงขนาดใหญ่ ส่วนทางด้านขวาจะเป็นส่วนของ Walk-In Closet และ Master Bathroom ตามลำดับ
บริเวณปลายเตียง ทางโครงการจะติดตั้ง Cable TV พร้อมปลั๊กไฟเอาไว้ให้เรียบร้อย เราจึงสามารถติดตั้งทีวีแบบแขวนผนังเพิ่มเติมได้เองทันที เพราะคงไม่มีอะไรจะดีไปกว่า การได้พักผ่อนบนเตียงนุ่ม ๆ กับภาพยนตร์เรื่องดีสักเรื่อง แถมวิวเมืองยามค่ำคืนยังสวยงาม สามารถมองเห็นผ่านหน้าต่างบานใหญ่ ที่อยู่ริมสุดของห้องได้อย่างชัดเจนอีกด้วย
เมื่อมองไปอีกฝั่งหนึ่งของห้องนอน จะเป็นส่วนของ Walk-In Closet และ Master Bathroom
พร้อมแบ่งบานตู้ออกเป็น 4 บาน โดยในห้องตัวอย่างนี้จะตกแต่งพื้นที่ด้านในสุดเป็นโต๊ะเครื่องแป้ง ซึ่งเราเองก็สามารถบิลต์อินเพิ่มเติมได้เช่นกัน
ภายในของตู้เสื้อผ้า ถูกออกแบบ จัดแบ่งพื้นที่สำหรับการจัดเก็บไว้อย่างครบถ้วน ทุกฟังก์ชัน ทั้งราวแขวนเสื้อ, ราวแขวนกางเกง, ชั้นวางของ, ช่องใส่เครื่องประดับ ฯลฯ บอกเลยว่า เป็นความใส่ใจในรายละเอียดที่พิเศษไม่เหมือนใคร
ทางโครงการเลือกใช้อ่างล้างหน้าจากเป็นแบรนด์ TOTO ติดตั้งพร้อมก็อกน้ำจากแบรนด์ Hansgrohe ส่วนวัสดุท็อปอ่างล้างหน้าจะเป็นหินธรรมชาติ ที่มีโทนสีลงตัว เข้ากันกับตู้ไม้ลามิเนตด้านใต้ และทางด้านของกระจกเงาเองก็ให้มาใหญ่จุใจ มีขนาดเต็มความยาวผนัง เราจึงใช้งาน ส่องความเรียบร้อยได้อย่างเต็มที่
พื้นที่จัดเก็บก็ให้มาอย่างจุใจไม่แพ้กัน ทั้งพื้นที่ใต้เคาน์เตอร์อ่างล้างหน้า, ด้านในตู้กระจก ตลอดจนบริเวณขอบอ่างที่สามารถวางขวดสบู่ ของใช้ได้หลากหลาย ดังนั้น ไม่ว่าเครื่องสำอาง หรือผลิตภัณฑ์ดูแลผิว และเส้นผมของคุณจะเยอะแค่ไหน พื้นที่ภายในห้องน้ำก็ออกแบบมาให้เราจัดเก็บได้อย่างสมบูรณ์แบบ โดยที่คุณไม่จำเป็นต้องติดตั้งชั้นจัดเก็บของเพิ่มเติมเลย
โถสุขภัณฑ์จากแบรนด์ TOTO Washlet ที่มีนวัตกรรมล้ำสมัย เหมาะกับการใช้งานของคนรุ่นใหม่ มาพร้อมเซ็นเซอร์ตรวจจับ เปิด-ปิดฝาชักโครกแบบอัตโนมัติ, ก้านฉีดชำระอัตโนมัติ, ลมเป่าแห้ง และระบบการใช้งานแบบอื่น ๆ ที่จะมาช่วยสร้างความสะดวกสบายให้กับไลฟ์สไตล์ของคุณ
Bathtub สำหรับให้เราแช่น้ำพักผ่อน คลายความเหนื่อยล้า ก็มาจากแบรนด์ TOTO อีกเช่นเคย โดยขนาดของอ่างจะอยู่ที่ 1.5 เมตร พร้อมด้วยก้านฝักบัวสำหรับใช้งานเฉพาะจุด อีกทั้งยังมีความพิเศษอยู่ที่กระจกภายในห้อง ที่สามารถเลือกเปิดเป็นโหมดขุ่น และใสได้ตามความต้องการ
- หากวันไหนอยากเปลี่ยนบรรยากาศมาแช่น้ำอุ่น ๆ ชมวิวเมืองยามค่ำคืน ก็ลองเลือกโหมดกระจกใส ที่ช่วยให้เรามองออกไปยังหน้าต่างของห้องนอนดู รับรองว่า… คุณจะเพลิดเพลินกับการพักผ่อนนี้ จนเกือบลืมเวลาเลยทีเดียว
ปิดท้ายห้อง Master Bathroom ด้วยส่วนของ Shower Box ที่มี Partition กั้นแยกระหว่างส่วนเปียกและส่วนแห้งให้เรียบร้อย ซึ่งบริเวณราวจับด้านหน้า จะสามารถใช้แขวนผ้าเช็ดตัวได้ในตัว
โดยทางโครงการ HYDE Heritage Thonglor จะติดตั้ง Rain Shower และ Hand Shower จากแบรนด์ Hansgrohe มาให้พร้อม Drop Wall สำหรับวางขวดสบู่ และแชมพู โดยผนังบริเวณนี้จะมาในโทนสีดำลายหินอ่อน ตัดโทนสีขาวของตัวห้อง จึงช่วยให้ห้องดูมีมิติมากยิ่งขึ้น
แน่นอนว่า สำหรับเรสซิเดนซ์ยุคใหม่นั้น เทคโนโลยี Home Automation ดูจะเป็นสิ่งที่ขาดไปไม่ได้ เพราะนอกจากจะช่วยอำนวยความสะดวกให้กับเราแล้ว ยังช่วยให้เราอุ่นใจได้ทุกเมื่อ แม้จะไม่ได้อยู่ภายในห้องพักก็ตาม โดยเราสามารถตรวจสอบสภาพห้องผ่านทางกล้องวงจรปิดในแอปพลิเคชัน, สามารถปิด-เปิดไฟฟ้าภายในห้องได้จากโทรศัพท์มือถือ และยังสามารถเปิดเพลง เช็กสภาพอากาศ รวมถึงเรื่องอื่น ๆ ผ่านหน้าจอได้ทันทีอีกด้วย
2 Bedroom Type C-3 ขนาด 75.6 ตร.ม.
มาต่อที่ห้องแบบ 2 Bedrooms Type C-3 ขนาด 75.6 ตร.ม. กัน โดยแปลนห้องType นี้จะมีลักษณะแบบหน้ากว้าง จากประตูเข้ามาทางด้านซ้ายมือสุดจะเป็น ‘ห้องนอนเล็ก’ พร้อม 'ห้องน้ำ' ในตัว ส่วนบริเวณกลางห้องจะรวมพื้นที่ใช้งาน 4 ฟังก์ชันไว้ด้วยกัน ทั้ง ‘ครัวเปิด’ , ‘มุมโต๊ะทานข้าว’, ‘ห้องนั่งเล่น’ และ ’ระเบียง’ ส่วนขวามือสุดจะเป็นพื้นที่ส่วนตัวขนาดใหญ่อย่างห้อง ‘Master Bedroom’ ที่มาพร้อมกับ ‘Master Bathroom’ ภายในตัวนั่นเอง
- ด้วยลักษณะห้องแบบหน้ากว้างนี่เอง จึงทำให้ห้องมีพื้นที่ใช้สอยค่อนข้างกว้างขวาง สามารถจัดแบ่งการอยู่อาศัย 2-4 คนได้แบบสบาย ๆ ซึ่งจะเหมาะทั้งครอบครัวเริ่มต้น และครอบครัวใหญ่เลยทีเดียว
เพื่อให้เห็นภาพการใช้ชีวิตที่ชัดเจนขึ้น เราจึงขอเริ่มต้นสำรวจภายในห้องตัวอย่างกันเลยดีกว่า โดยพื้นที่ด้านซ้ายมือสุดจะเป็นห้องนอนเล็ก ที่เชื่อมต่อกับห้องน้ำ ส่วนบริเวณตรงกลางห้องจะเชื่อมพื้นที่อย่าง ห้องครัว, มุมโต๊ะทานข้าว, ห้องนั่งเล่น และระเบียงเข้าไว้ด้วยกัน
- วิวที่ได้จะเป็นแบบพาโนรามิค ที่มีกระจกบานยาวคอยเชื่อมต่อถึงกัน ตามขนาดความกว้างของห้องต่าง ๆ ทำให้คุณได้ครอบครองทัศนียภาพอันสวยงามนี้ในทุก ๆ วัน
สำหรับทางเข้าห้องน้ำในห้องนอนเล็กนั้น ทางโครงการก็ได้ออกแบบให้สามารถเข้าใช้งานได้ 2 ทาง ทั้งจากภายในห้องนอน และส่วนของห้องนั่งเล่นโดยตรง ซึ่งเหมาะกับการใช้รองรับแขก แบบที่ไม่ต้องเดินผ่านห้องส่วนตัวของเรานั่นเอง
ภายใน ‘ห้องน้ำรับรอง’ จะมีขนาดและการจัดวางใกล้เคียงกับห้อง Type แรกโดยจะไม่มีส่วนของ Bathtub มาให้ ทางด้าน Top อ่างล้างหน้าเองก็ยังคงเป็นวัสดุแบบเดียวกันกับห้อง Type แรก เพียงแต่โทนการตกแต่งของห้องนี้ จะเน้นเป็นลวดลายหินอ่อนสีขาวล้วนทั่วทั้งตัวห้อง
สำหรับบริเวณเคาน์เตอร์อ่างล้างหน้า และบานกระจกเงา ก็ให้พื้นที่จัดเก็บของมาแบบจุใจเช่นกัน สามารถใช้วางเครื่องสำอางค์ ตลอดจนผลิตภัณฑ์ทำความสะอาดผิวได้อย่างเพียงพอ หรือหากใครจะเพิ่มต้นไม้ประดับ, เทียนหอมกลิ่นอโรมาไว้ช่วยสร้างบรรยากาศ ก็นับเป็นการสร้างความประทับใจให้กับแขกที่มาเยือนได้เป็นอย่างดี ส่วนโถสุขภัณฑ์ในห้องนี้จะได้เป็นระบบธรรมดาจากแบรนด์ TOTO
Shower Box มาพร้อมกับ Partition, Rain Shower, Hand Shower และ Drop Wall ที่มีวัสดุ และแบรนด์เดียวกันกับห้อง Type แรกทุกประการ
‘ห้องนอนเล็ก’ มาพร้อมพื้นที่วางเตียงขนาดใหญ่ อยู่คู่กับตู้เสื้อผ้าบิลต์อินขนาดเต็มความสูงห้อง ส่วนบริเวณปลายเตียงก็ได้ติดตั้งปลั๊กไฟ และระบบ Cable TV ไว้ให้พร้อม เราจึงสามารถแขวนทีวีติดผนัง เพื่อนอนชมความบันเทิงบนเตียงส่วนตัวได้เลย
ในส่วนของตู้เสื้อผ้าที่ทางโครงการบิลต์อินมาให้นั้น จะยังคงคอนเซ็ปต์เรื่องการจัดแบ่งพื้นที่เก็บของมาให้เป็นอย่างดี แม้ตู้จะมี 3 หน้าบาน แต่ก็สามารถแขวนเสื้อผ้า และจัดเก็บเครื่องประดับได้เต็มที่เหมือนกัน
จากห้องตัวอย่างจะเห็นว่า... ยังมีพื้นที่ข้างเตียงเหลือค่อนข้างมาก คุณจึงสามารถตกแต่งเพิ่มเติม ทำเป็นมุมโต๊ะเครื่องแป้งได้ หรือจะขยับเตียงชิดตู้เสื้อผ้าอีกสักหน่อย แล้วค่อยเพิ่มโต๊ะนั่งทำงานเข้าไป เอาไว้นั่งชมวิวเพลิน ๆ ระหว่างทำงานก็ดูดีไม่แพ้กัน เพราะด้วยขนาดห้องที่ค่อนข้างกว้าง เราจึงสามารถดีไซน์พื้นที่ใช้สอยให้ตรงกับไลฟ์สไตล์ที่ต้องการได้เลย
อีกหนึ่งความพิเศษของห้องนอนเล็ก ที่มีพื้นที่ใช้สอยกว้างขวางไม่แพ้ห้อง Master Bedroom แล้ว บริเวณปลายเตียงยังมีประตูที่สามารถเปิดออกไปยังส่วนของระเบียงได้อีกด้วย
จากระเบียงด้านนอก ก็เชื่อมต่อเข้าสู่พื้นที่ขนาดใหญ่ใจกลางห้อง โดยพื้นที่ติดประตูกระจกนี้จะสามารถวางโต๊ะทานข้าวขนาดใหญ่ได้ตามต้องการ พร้อมด้วยบรรยากาศอบอุ่นที่ให้คุณดื่มด่ำกับ City View ผ่านประตูกระจกบานเลื่อนได้ชัดเจน ช่วยเปลี่ยนมื้ออาหารให้กลายเป็นมื้อพิเศษได้ทุกวัน
ถัดมาเป็น ‘ครัวเปิดขนาดใหญ่’ ที่มาพร้อมพื้นที่เตรียมอาหารสไตล์ไอร์แลนด์แบบจุใจ พร้อมฟังก์ชันสำหรับการใช้งานที่ครบครัน บอกเลยว่า… เหมาะกับครอบครัว และคนที่ชื่นชอบการทำอาหารแน่นอน เพราะคุณจะได้ใช้พื้นที่ทั้งหมดเสมือนครัวใหญ่ในบ้านเลยทีเดียว
Top เคาน์เตอร์ครัวกว้างขวาง พร้อมวางด้วยวัสดุหินควอตซ์สีขาว ดูเรียบหรู และมีซิงก์สำหรับล้างจานให้ถึง 2 ซิงก์ เพื่อการใช้งานที่สะดวกสบาย ตอบโจทย์ทั้งการเตรียมวัตถุดิบ และทำความสะอาดภาชนะ
บริเวณใต้เคาน์เตอร์ครัวจะแบ่งพื้นที่ และช่องจัดเก็บให้ในตัว ส่วนบานตู้จะเปิด-ปิดแบบ Soft Close พร้อมมีลิ้นชักเรียบร้อย ครบทั้งช่องจัดเก็บช้อนส้อม, ชั้นวางของ, ตะแกรงสำหรับจัดเก็บอุปกรณ์ทำครัว และถังขยะพร้อมฝาปิด ช่วยให้คุณบริหารพื้นที่จัดเก็บได้เป็นระเบียบมากขึ้น
ถัดไปยังชุดครัวบิลต์อินด้านใน โดยส่วนนี้จะได้เป็นเคาน์เตอร์ตั้งพื้นและตู้แขวนผนัง พร้อมด้วยลิ้นชัก และช่องจัดเก็บจำนวนมากอีกเช่นกัน ไม่ว่าจะเป็นเครื่องใช้ไฟฟ้าสำหรับทำครัว, ภาชนะสำหรับใส่อาหาร, วัตถุดิบแห้ง หรือขวดเครื่องปรุงต่าง ๆ ก็สามารถเลือกวางบนชั้นได้อย่างเป็นระเบียบ เวลาจะหยิบใช้งานก็สะดวก
นอกจากนี้ทางโครงการยังติดตั้งเตาไฟฟ้าขนาด 4 หัว พร้อมเตาอบจากแบรนด์ Kuppersbusch มาเพิ่มให้ด้วย บอกเลยว่า… อาหารมื้อใหญ่ ๆ อย่างงานปาร์ตี้ในวันสำคัญ ก็จะไม่ใช่ปัญหาสำหรับคุณอีกต่อไป
สำหรับตู้เก็บของด้านข้างเคาน์เตอร์ครัว ก็ให้ฟังก์ชันการใช้งานมาแบบอเนกประสงค์ และครบครัน เริ่มด้วย…
- ซ้ายมือสุดจะเป็นตู้เย็นแบบ 2 ประตูจากแบรนด์ Kuppersbusch ที่บริเวณด้านบนจะถูกออกแบบให้เป็นตู้สำหรับเก็บของจำนวน 2 ชั้น
- ตรงกลางเป็นพื้นที่สำหรับวางเครื่องซักผ้า สามารถเลือกได้ทั้งฝาหน้าและฝาบน ซึ่งจะมาพร้อมกับตะแกรงวางของสเตนเลส บริเวณหน้าบานประตู เหมาะสำหรับใช้วางอุปกรณ์ทำความสะอาดต่าง ๆ ส่วนด้านบนเป็นตู้ 2 ชั้น ไว้ใช้เก็บของเพิ่มเติม
- ขวามือสุดจะเป็นชั้นเก็บรองเท้า Fitting จากแบรนด์ Panasonic ที่มาพร้อมชั้นเก็บของอีกเช่นเดียวกัน
อีกหนึ่งพื้นที่แสนพิเศษที่อยู่ข้างกันจะเป็น ‘ห้องนั่งเล่น’ มุมสำหรับให้ทุกคนในครอบครัวได้ออกมาใช้เวลาร่วมกัน โดยส่วนนี้เราจะสามารถบิลต์โฮมเธียร์เตอร์เพิ่มเติม เพื่อช่วยเพิ่มอรรถรสในการรับชมภาพยนตร์เรื่องโปรดของคุณให้พิเศษยิ่งขึ้น
และถ้ามีชุดโซฟาที่ชอบ ที่ถูกใจด้วยแล้วละก็ ยิ่งลงตัว ซึ่งเราสามารถเลือกขนาด และการใช้งานที่ต้องการได้เอง ไม่ว่าจะเป็นโซฟาเบดแบบเข้ามุม ไว้นั่งยืดขา หรือจะเป็นเก้าอี้นวดดี ๆ สักตัว ก็ล้วนช่วยเนรมิตห้องนั่งเล่น ให้กลายเป็นมุมพักผ่อนของทุกคนได้ไม่ยากเลย
ปิดท้ายกันด้วยห้อง ‘Master Bedroom’ ขนาดใหญ่ ที่มาพร้อมวิวแบบพาโนรามิก และ Master Bathroom ในตัว เมื่อเข้าไปด้านในแล้ว… ฝั่งซ้ายมือของห้องจะเป็นพื้นที่สำหรับใช้วางเตียงขนาดใหญ่ ที่สามารถเลือกวางเตียงขนาด 6 ฟุต ได้สบาย ๆ โดยที่ยังเหลือพื้นรอบเตียงให้ใช้งานได้หลากหลาย ไม่ว่าจะวางโต๊ะหัวเตียงทั้งสองฝั่ง หรือวางที่นั่งตัวยาวไว้ตรงปลายเตียงก็ดูดี
บริเวณปลายเตียงติดหน้าต่างกระจกบานใหญ่ ที่ให้วิวสวยกว่า 180 องศา นับว่าเหมาะอย่างยิ่งที่จะวางโต๊ะทำงานตัวยาวไว้มุมนี้ เพื่อให้คุณได้นั่งทำงานใกล้ชิดกับวิวเมืองที่สวยงาม ทั้งยามกลางวันและกลางคืน ส่วนด้านขวามือของห้องจะเป็น Master Bathroom ที่มาพร้อมกระจกอัจฉริยะ สามารถปรับเปลี่ยนเป็นกระจกใส หรือขุ่นได้ตามความต้องการ
บริเวณทางเข้า Master Bathroom จะเป็นมุมของตู้เสื้อผ้าแบบ Walk-In Closet ขนาดใหญ่แบบ floor to ceiling height พร้อมแบ่งสัดส่วนการจัดเก็บไว้ให้ครบถ้วน ทั้งราวแขวนผ้า, ลิ้นชัก และชั้นวางของ คุณจึงสามารถจัดเก็บเสื้อผ้า, เครื่องประดับ และกระเป๋าใบโปรดได้จบ ครบในที่เดียว
เมื่อเข้ามาในห้อง ‘Master Bathroom’ จะแบ่งออกเป็นโซนเปียกและแห้งชัดเจน โดยส่วนแห้งนั้นจะประกอบไปด้วย โถสุขภัณฑ์ระบบอัตโนมัติจากแบรนด์ TOTO washlet และอ่างล้างหน้า พร้อมกระจกเงาที่ซ่อนชั้นวางของไว้ด้านใน เช่นเดียวกับห้อง Type แรก
โซนเปียกกั้นปิดด้วย Partition กระจกใส พร้อมวาง Bathtub จากแบรนด์ TOTO ไว้ด้านใน ส่วนฝั่งขวาจะติดตั้ง Rain Shower และ Hand Shower ตามมาตรฐานเดียวกับห้อง Type แรกทุกประการ
1 Bedroom Type A3 ขนาด 43.2 ตร.ม.
แต่สำหรับใครที่อยากได้ห้องขนาดลงตัวกับการอยู่อาศัยคนเดียว โดยไม่เน้นการใช้งานครัวมากนัก ห้อง 1 Bedroom Type A ขนาด 40.00-43.20 ตร.ม. ก็ถือเป็น Type เริ่มต้นที่น่าสนใจมากทีเดียว เพราะสามารถตอบโจทย์การใช้งานได้ครบครันไม่แพ้ห้องใหญ่ ๆ แถมยังมีความกะทัดรัด ดูแลง่าย และถ้าใครอยากรู้ว่า ห้อง 1 Bedroom Type A จะน่าอยู่ขนาดไหน ก็สามารถตามเอสโตไปดูบรรยากาศภายในห้องตัวอย่างกันได้เลย...
Location & Lifestyle
โครงการ HYDE Heritage Thonglor ตั้งอยู่ติดถนนสุขุมวิท บริเวณซอยสุขุมวิท 59 ซึ่งเป็นจุดกึ่งกลางระหว่าง 2 ทำเลทองอย่าง ‘ถนนทองหล่อ’ และ ‘ถนนเอกมัย’ ทำให้การเดินทาง ตลอดจนการใช้ชีวิตต่าง ๆ เป็นไปอย่างสะดวกสบาย
พร้อมตั้งอยู่ใกล้รถไฟฟ้า BTS สถานีทองหล่อ และ BTS สถานีเอกมัย ในระยะทางเพียง 250 เมตรเท่านั้น แถมยังตอบโจทย์การใช้รถยนต์ส่วนตัว เนื่องจากเป็นย่านที่มีเส้นทางลัดมากมายให้คุณเลือกใช้ เพื่อไปถึงจุดหมายปลายทางได้ในระยะเวลาอันรวดเร็วอีกด้วย
สำหรับบรรยากาศโดยรวมของทำเล ‘ทองหล่อ-เอกมัย’ นั้น ก็เรียกได้ว่าเป็นหนึ่งสถานที่ที่คึกคักไปด้วยผู้คน ทั้งชาวไทยและชาวต่างชาติ พร้อมมีแหล่งท่องเที่ยวมากมาย ตอบโจทย์ไลฟ์สไตล์เช้าจรดค่ำ อีกทั้งยังเป็นแหล่งรวบรวมร้านอาหารรสชาติเยี่ยม หลากหลายสัญชาติที่ใคร ๆ ก็ต่างยอมรับ
ขณะเดียวกัน ทองหล่อ-เอกมัยก็เป็นแหล่งที่ตั้งของออฟฟิศชั้นนำใจกลางกรุงเทพฯ ซึ่งถือได้ว่าโครงการ HYDE Heritage Thonglor เป็นหนึ่งโครงการที่น่าสนใจ ตั้งอยู่ในทำเลที่ครบรส ครบเครื่อง เหมาะสำหรับไลฟ์สไตล์ชีวิตคนเมืองอย่างแท้จริง
ตอบโจทย์ชีวิตประจำวันครบครัน ด้วยทำเลศักยภาพ ที่เป็นมากกว่าเรสซิเดนเชียล
Office Building
บริเวณด้านหน้าโครงการ HYDE Heritage Thonglor จะเป็นสถานที่ตั้งของ UNESCO Bangkok ภายในมีบรรยากาศที่ค่อนข้างร่มรื่นไปด้วยต้นไม้ ช่วยทำให้บรรยากาศโดยรอบของโครงการดูสดชื่น และสดใส
ถัดไปอีกเล็กน้อยจะเป็นที่ตั้งของโครงการ T-ONE อาคารสำนักงานเกรด A ดีไซน์สวย ที่บริเวณชั้นล่างจะมี Retail Space สำหรับชอปปิง ไปจนถึงร้านอาหาร, ร้านสะดวกซื้อ และบริการธนาคารครบครัน
Hospital
ส่วนเรื่องของสุขภาพก็อุ่นใจได้ เพราะบริเวณรอบ ๆ โครงการจะรายล้อมไปด้วยสถานพยาบาลชั้นนำระดับสากลมากมาย ที่จะทำให้คุณมั่นใจในเรื่องของบริการ และความปลอดภัยทุกครั้งที่ได้มาเยือน ไม่ว่าจะเป็นโรงพยาบาลกรุงเทพ, โรงพยาบาลสมิติเวช, โรงพยาบาลคามิลเลี่ยน, โรงพยาบาลบํารุงราษฎร์ และโรงพยาบาลสุขุมวิท นั่นเอง
Lifestyle
ใกล้กับโครงการ HYDE Heritage Thonglor เพียง 200 เมตร จะเป็นสถานที่ตั้งของ Major Cineplex Sukhumvit ศูนย์รวมความบันเทิงชั้นนำ ที่มาพร้อมกับ 8 โรงภาพยนตร์ระบบดิจิตอลระดับ World Class ที่สมบูรณ์แบบทั้งภาพและเสียง บอกเลยว่า เหมาะจะแวะมาผ่อนคลายความเครียดในช่วงเวลาหลังเลิกงาน หรือวันหยุดสุดสัปดาห์เป็นที่สุด นอกจากนี้ยังมีโซนของร้านอาหาร และแหล่งชอปปิงไว้คอยรองรับความต้องการอยู่ภายในด้วย
ขยับจากโครงการไปอีกเล็กน้อย แค่ 500 เมตรคุณก็สามารถเข้าถึงไลฟ์สไตล์สุดคึกคัก ที่มีชื่อเสียงที่สุดในกรุงเทพมหานครอย่าง ทองหล่อ ได้แล้ว และไม่ว่าคุณจะตามหาร้านกาแฟดี ๆ ที่มีเอกลักษณ์ทั้งเรื่องรสชาติและบรรยากาศ หรือมองหาสถานที่แฮงก์เอาต์สำหรับปาร์ตี้กับกลุ่มเพื่อน ในบรรยากาศแบบไนท์ไลฟ์ ที่ ‘ทองหล่อ’ ก็พร้อมตอบสนองทุกความบันเทิงให้คุณได้ไม่รู้จบ ตลอดเช้าจรดค่ำ....
ทางฝั่ง ‘เอกมัย’ ก็ไม่น้อยหน้า เพราะแค่ขยับจากตัวโครงการ HYDE Heritage Thonglor ไปเพียง 500 เมตร คุณก็จะสามารถเข้าถึง Gateway Ekamai ศูนย์การค้าติดรถไฟฟ้าใจกลางเมือง แบบครบวงจรได้แล้ว ภายในประกอบไปด้วย ร้านค้าแฟชันสำหรับชอปปิง, มุมสนุกที่ช่วยเสริมสร้างพัฒนาการของเด็ก ๆ, ร้านอาหารชั้นนำ โดยเฉพาะอาหารสัญชาติญี่ปุ่น ซึ่งบอกเลยว่า... ที่นี่ได้รวมร้านเด็ดที่คุณไม่ควรพลาดไว้มากมาย สามารถตอบโจทย์ไลฟ์สไตล์ และชีวิตประจำวันของทุกคนในครอบครัวได้เป็นอย่างดี
Park
ปิดท้ายด้วยพื้นที่สีเขียวสำหรับคนเมืองอย่าง อุทยานเบญจสิริ ที่อยู่ใกล้กับโครงการ HYDE Heritage Thonglor เพียง 2 สถานีเท่านั้น เหมาะสำหรับผู้ที่กำลังมองหาสถานที่ออกกำลังกาย ท่ามกลางบรรยากาศธรรมชาติสุดร่มรื่น ให้เราสูดอากาศหายใจกันได้เต็มปอด วันไหนว่าง ๆ ก็ลองเปลี่ยนบรรยากาศแวะมาวิ่งเบา ๆ ช่วงหลังเลิกงานกันได้ เพราะนอกจากจะได้เหงื่อจากการออกกำลังแล้ว คุณยังจะได้รับความสุข จากธรรมชาติรอบตัวกลับไปอีกด้วย
หากคุณกำลังตามหาเรสซิเดนเชียล ที่ให้คุณมากกว่าแค่การเป็นที่อยู่อาศัย แต่ยังพร้อมดูแล-ใส่ใจคุณด้วยเซอร์วิสชั้นเยี่ยม จากผู้เชี่ยวชาญที่ได้รับการไว้วางใจจากหลากหลายประเทศทั่วโลกอยู่ล่ะก็... โครงการ HYDE Heritage Thonglor จะสามารถเป็นคำตอบของการอยู่อาศัยที่ดีที่สุด ให้คุณได้อย่างแน่นอน
ลงทะเบียนเพื่อรับสิทธิพิเศษได้ที่ คลิก
ไฮด์ เฮอริเทจ ทองหล่อ
5dd38de7a2c46d20734a867f
20005208

































































































