[Review] [Preview] เติมเต็มทุกความสมบูรณ์ให้ชีวิตที่ La Citta Delre Thonglor 16
ซอยทองหล่อ 16 ถนนทองหล่อ แขวงคลองตันเหนือ เขตวัฒนา กรุงเทพมหานคร
Hongnakorn Property

Project Info
จะดีแค่ไหนถ้าได้ใช้ชีวิตอยู่บนทำเลศักยภาพไปพร้อม ๆ กับการอยู่คอนโดสุดหรูที่เติมเต็มทุกความสมบูรณ์ได้ในทุกรูปแบบการใช้ชีวิต ?
ตักตวงทุกความสมบูรณ์ให้ครบทั้งนอกบ้านและในบ้าน
โครงการ La Citta Delre Thonglor 16 ถือเป็นอีกหนึ่งคอนโดสุดหรู บนพื้นที่ในฝันใจกลางเมือง และด้วยพื้นที่ที่กว้างกว่าคอนโดตามมาตรฐานถึง 2 เท่า คอนโดแห่งนี้จึงเปรียบเสมือน 'บ้าน' ที่จะเติมเต็มการใช้ชีวิตของคุณให้สมบูรณ์ยิ่งขึ้น
La Citta Delre Thonglor 16 : เติมเต็มความสมบูรณ์ในพื้นที่ส่วนตัว
La Citta Delre Thonglor 16 เป็นโครงการสุดหรูจาก Hongnakorn Property ดีเวลลอปเปอร์ที่มุ่งเน้นการพัฒนาธุรกิจอสังหาริมทรัพย์โดยใส่ใจในทุกรายละเอียด
ทาง 'หงส์นคร' ใส่ใจรายละเอียดในการออกแบบ La Citta Delre Thonglor 16 ให้เน้นความเป็นส่วนตัวอย่างสูงสุด มีการทำแนวรั้วต้นไม้สูงร่มรื่นตลอดโครงการ ช่วยลดมลพิษทางอากาศและบดบังเสียงรบกวนจากภายนอกได้เป็นอย่างดี
นอกจากนั้นตัวโครงการยังตั้งอยู่ในซอยทองหล่อ 16 ซึ่งซอยนี้เป็นซอยที่สงบ ปลอดถัย ทางเข้าของโครงการอยู่ห่างจากสิ่งอำนวยความสะดวกบนถนนทองหล่อเพียง 200 เมตร ถือเป็นระยะที่ทำให้ได้สัมผัสกับการผสมผสานระหว่างความสงบผ่อนคลายและสีสันของถนนทองหล่อได้อย่างลงตัว
รายละเอียดโครงการ La Citta Delre Thonglor 16
- ที่ตั้งโครงการ : ซอยทองหล่อ 16 ถนนทองหล่อ วัฒนา กรุงเทพมหานคร
- พื้นที่ : 1-2-8 ไร่
- ลักษณะอาคาร : Low Rise 2 อาคาร สูง 8 ชั้น
- จำนวนยูนิต : 51 ยูนิต
- แบบห้อง : 1 - 4 ห้องนอน 74 - 380 ตารางเมตร
พื้นที่
A1 พื้นที่ใช้สอย 224.27 ตารางเมตร
A2 พื้นที่ใช้สอย 257.86 ตารางเมตร
A3 พื้นที่ใช้สอย 386.79 ตารางเมตร
B1 พื้นที่ใช้สอย 74.3 ตารางเมตร
B2 พื้นที่ใช้สอย 122.18 ตารางเมตร
B3 พื้นที่ใช้สอย 116.6 ตารางเมตร
B4 พื้นที่ใช้สอย 147.1 ตารางเมตร
B5 พื้นที่ใช้สอย 169.01 ตารางเมตร
B6 พื้นที่ใช้สอย 184.27 ตารางเมตร
B7 พื้นที่ใช้สอย 194.47 ตารางเมตร
B8 พื้นที่ใช้สอย 218.91 ตารางเมตร
- ราคาต่อตารางเมตร : 250,000 - 280,000 บาท
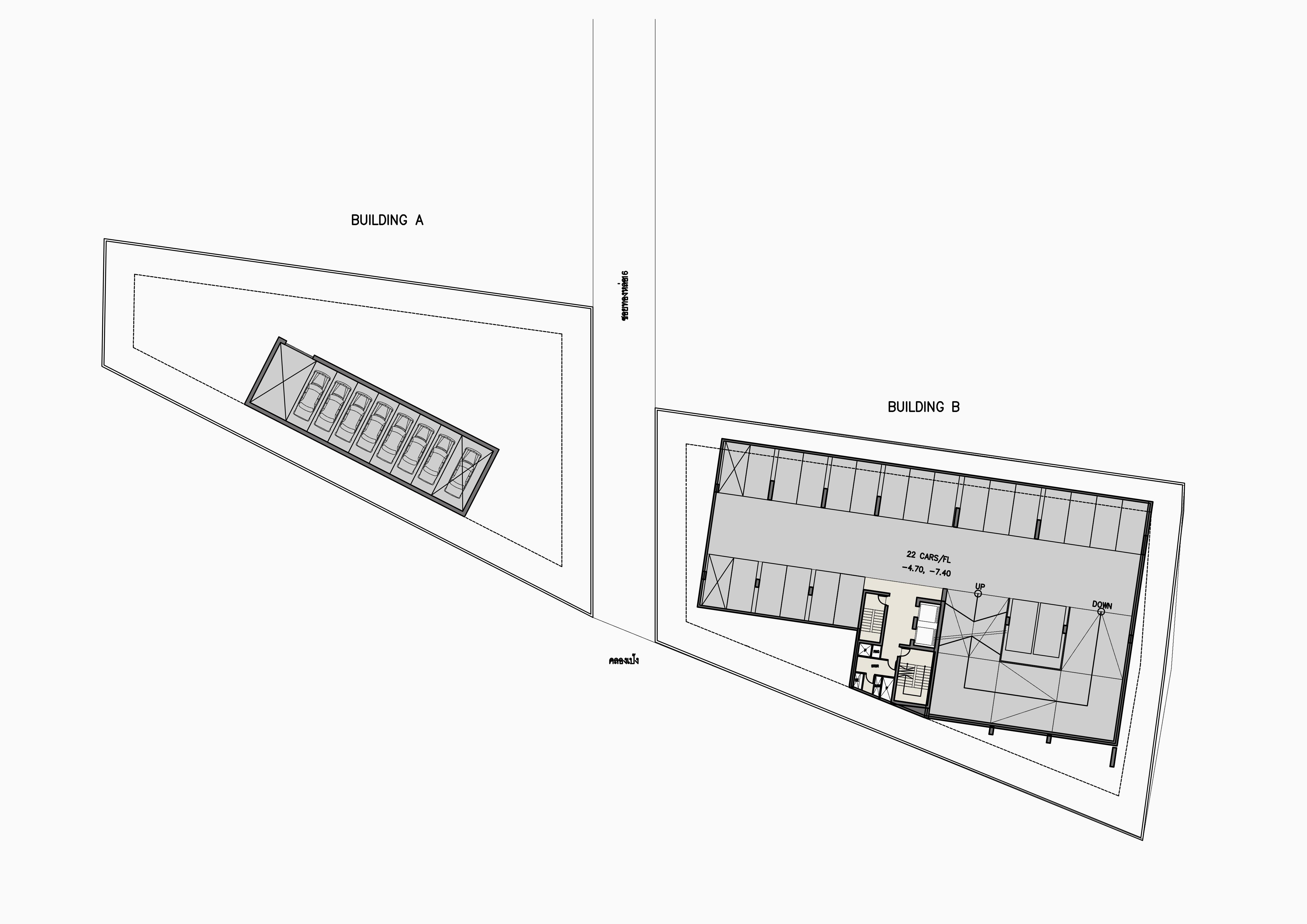
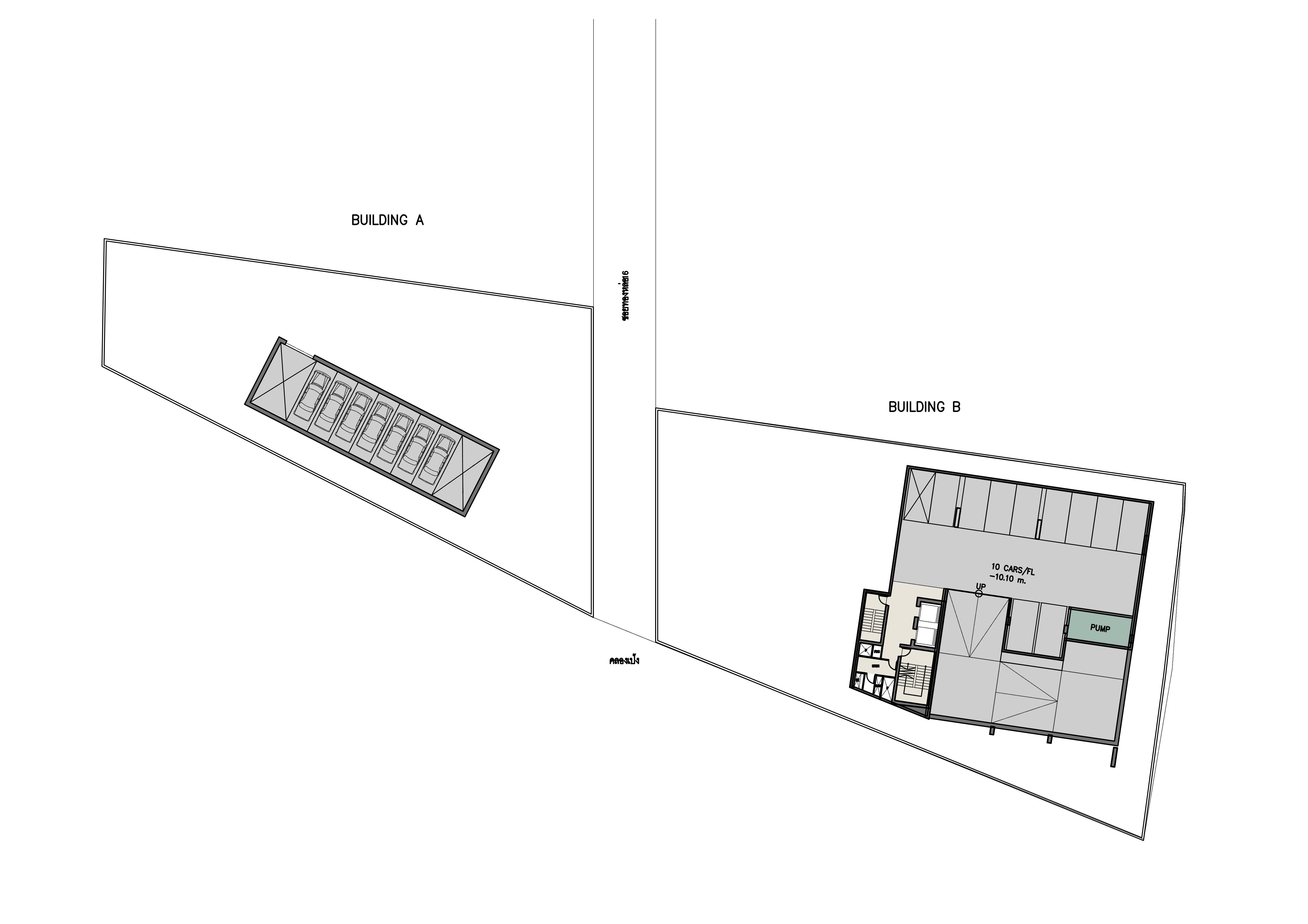
- จำนวนที่จอดรถ : ที่จอดรถมากกว่า 200% ของจำนวนห้องทั้งหมด แบ่งออกเป็น traditional parking space พร้อมทั้งยังมีระบบจอดรถที่ทันสมัยแบบ mechanical parking
แผนผังของอาคาร La Citta Delre Thonglor 16
ตัวอย่างบรรยากาศจำลองของคอนโด La Citta Delre Thonglor 16




โครงการ La Citta Delre Thonglor 16 จะเน้นความสดชื่นผ่อนคลาย ด้วยพื้นที่สีเขียวของต้นไม้อันเขียวชอุ่มรอบโครงการด้วยพื้นที่พักผ่อนขนาดใหญ่บน rooftop ของทั้งสองอาคาร ซึ่งแบ่งออกเป็นสอง zone โดยมี fun& family zone สำหรับครอบครัวที่มีเด็กเล็กและ health & lifestyle zone สำหรับผู้ที่ชอบกิจกรรมออกกำลังกายด้วยเครื่องเล่นนานาชนิด
ผังห้องของคอนโด La Citta Delre Thonglor 16
ภาพห้องตัวอย่างของคอนโด La Citta Delre Thonglor 16
La Citta Delre Thonglor 16 ให้ความสำคัญกับความเป็นส่วนตัวสูง จึงออกแบบให้มีผนังกันเสียงระหว่างห้องถึง 2 ชั้น พร้อมประตูกันเสียงจากภายนอก โดยประตูหน้าห้องเป็นประตูที่ทำจากไม้จริงและมีการเพิ่มชั้นยางเพื่อกันเสียงรบกวน
ให้ความรู้สึกโปร่งสบายด้วยเพดานสูงถึง 2.7 เมตร พร้อมหน้าต่างกระจกสูงจากพื้นจรดฝ้าเพดาน แบบ Floor-to-Ceiling และออกแบบให้มีพื้นที่สีเขียวริมระเบียง เพื่อเพิ่มมุมมองผ่อนคลายสบายตา
เพียบพร้อมและหรูหราด้วยพื้นที่ Island kitchen อุปกรณ์ครบครันทุกยูนิต ออกแบบให้มีความโดดเด่นเฉพาะตัว
ทางโครงการ La Citta Delre Thonglor 16 ให้อิสระทุกรูปแบบการใช้ชีวิต ด้วยห้องที่ดีไซน์แบบ Adjustable Function เพื่อตอบโจทย์ทุกความต้องการของลูกบ้านโดยเฉพาะแบบ Adjustable Function ที่ทุกยูนิตจะได้ระบบแอร์แบบ VRF เพื่อระเบียงที่สวยงามและประหยัดพื้นที่ติดตั้ง นอกจากนี้ทางโครงการยังให้พื้นไม้สักจริงในการปูพื้นในทุกบริเวณที่เป็นไม้อีกด้วย
จุดเด่นของคอนโด La Citta Delre Thonglor 16
- ทำเลที่ตั้ง : La Citta Delre Thonglor 16 ตั้งอยู่ในซอยทองหล่อ 16 ที่มีระยะห่างจากถนนใหญ่เพียง 200 เมตร เป็นศูนย์กลางแห่งไลฟ์สไตล์และแรงบันดาลใจในการคิดริเริ่มสร้างสรรค์ โดยมีทั้ง Seen Space, J Avenue, Arena 10, Eight, Penny’s Balcony, the Taste, the Commons, 72 Courtyard ซึ่งทั้งหมดนี้อยู่ห่างจากโครงการไม่เกิน 800 เมตร
- รูปแบบห้อง : ห้องมีขนาดเริ่มต้นของยูนิตใหญ่กว่าคอนโดทั่วไป ตัวห้องถูกออกแบบมาให้อยู่อย่างสบายและพร้อมที่จะรองรับการมาเยือนของแขกได้เป็นอย่างดี
- การออกแบบ : มีการออกแบบตัวอาคารโดยสถาปนิกชั้นนำอย่าง A49 เพื่อให้อาคารภายนอกสามารถปกป้องพื้นที่ภายในและผู้พักอาศัยจากแสงแดดรวมถึงปัญหาของน้ำฝนสำหรับคอนโดได้อย่างดี
- สิ่งอำนวยความสะดวก : อุปกรณ์ออกกำลังกายที่เทียบเท่าโรงแรมระดับ 5 ดาว รวมถึงพื้นที่จอดรถที่มี 200%
- ความเป็นส่วนตัว : มีจำนวนห้องพักรวมทั้งสองอาคารเพียง 51 ยูนิต จึงทำให้เกิดความส่วนตัวของการใช้ชีวิตอย่างสูงสุด
สรุปภาพรวมของคอนโด La Citta Delre Thonglor 16
La Citta Delre Thonglor 16 ตั้งอยู่บนทำเลศักยภาพอย่าง ถนนทองหล่อ ซึ่งนับเป็นศูนย์กลางการใช้ชีวิตของคนเมืองที่แวดล้อมไปด้วยสิ่งอำนวยความสะดวกต่าง ๆ และการคมนาคมที่ครบครันผสานด้วยจุดเด่นของโครงการที่ให้ความสำคัญกับความเงียบสงบท่ามกลางธรรมชาติและต้นไม้เขียวขจี รวมถึง facilities ที่จัดมาให้ระดับ 5 ดาว จึงทำให้ La Citta Delre Thonglor 16 เป็นคอนโดหนึ่งที่จะสร้างความสมบูรณ์ให้กับชีวิตคุณได้อย่างเต็มที่
และด้วยศักยภาพของทำเลที่ตั้งและศักยภาพของตัวโครงการเอง La Citta Delre Thonglor 16 จึงเป็นคอนโดที่เหมาะสำหรับคนที่มีกำลังซื้อสูงอย่างวัยทำงานที่มีความมั่นคงแล้ว, ครอบครัวที่มีเด็กเล็ก และนักลงทุนอสังหาริมทรัพย์ที่ต้องการลงทุนในคอนโดมิเนียมเพื่อปล่อยเช่าให้กับชาวต่างชาติหรือขายต่อเป็นหลัก
ปัจจุบันทางโครงการได้เริ่มเคลียร์พื้นที่สำหรับสร้าง La Citta Delre Thonglor 16 แล้ว คาดว่าจะสร้างเสร็จภายในไตรมาสที่ 1 ของปี 2563 หากมีความคืบหน้า Estopolis จะนำมาอัพเดตกันอีกครั้ง หรือถ้าใครสนใจข้อมูลเพิ่มเติมของ La Citta Delre Thonglor 16 ก็สามารถติดต่อกับทางหงส์นครผ่านช่องทางต่าง ๆ ดังต่อไปนี้
- Contact : 02-714-7947
- E-mail : lacitta.sale@gmail.com
- www.hongnakornproperty.com
ความสมบูรณ์ของการใช้ชีวิตของคุณคืออะไร ?
คำตอบของหลาย ๆ คนคงคิดถึงสถานที่ที่ตอบโจทย์การใช้ชีวิตและไลฟ์สไตล์ของตัวเอง และถ้าหากกล่าวถึงทำเลที่สมบูรณ์ของคนกรุงเทพมหานคร ก็ต้องยอมรับว่าคงจะมีชื่อของ 'ทองหล่อ' อยู่ในอันดับต้นๆ ของทำเลยอดฮิตอย่างแน่นอน
ทองหล่อ เป็นทำเลทองค้างฟ้าที่มีการพัฒนาขยายตัวอย่างต่อเนื่องภายหลังจากการเข้ามาของรถไฟฟ้าสายหลัก โดยเฉพาะทำเลในบริเวณ 'ถนนทองหล่อ' ซึ่งเป็นถนนระยะ 2 กิโลเมตรเศษที่พาดผ่านระหว่างถนนสุขุมวิทและถนนเพชรบุรี โดยถนนเส้นนี้อยู่ใกล้กับรถไฟฟ้า BTS สถานีทองหล่อจึงได้รับความสนใจเป็นพิเศษจากนักพัฒนาที่ดิน
ไม่ใช่เพียงแค่ลักษณะทางกายภาพเท่านั้นที่เป็นจุดเด่นของทำเลแห่งนี้ แต่การใช้ชีวิตและไลฟ์สไตล์ของคนในบริเวณนี้ยังเป็นอีกจุดเด่นที่ทำให้คนส่วนใหญ่สนใจในพื้นที่แห่งนี้ เชื่อว่าความคิดแรกของหลายคนที่มีต่อ 'ถนนทองหล่อ' หรือ 'ซอยสุขุมวิท 55' คงจะเป็นภาพของชาวต่างชาติ และไลฟ์สไตล์ไฮเอนด์ของคนเมืองเป็นอย่างแรก แต่ความจริงแล้วตลอดเส้นทางของถนนเส้นนี้ยังมีหลาย ๆ สถานที่ที่เอื้อต่อครอบครัวยุคใหม่อยู่อีกด้วย
ทำความรู้จักกับ 'ถนนทองหล่อ'
จากการประเมินราคาที่ดินของกรมธนารักษ์ในปี 2559 - 2562 ของถนนทองหล่อ มีราคาเฉลี่ยอยู่ที่ 105,000 บาท/ตารางเมตร ตามข้อมูลของ www.area.co.th พบว่าราคาที่ดินบริเวณถนนทองหล่อของปี 2560 สูงขึ้นจากปี 2553 เกือบ 100% และถึงแม้ราคาที่ดินบริเวณนี้จะเป็นราคาที่สูงและยังคงสูงอย่างต่อเนื่อง แต่ก็ไม่ได้ทำให้ความต้องการของนักพัฒนาที่ดินลดลงแต่อย่างใด จนในปัจจุบันเหลือที่ดินว่างรอการพัฒนาในบริเวณนั้นอีกเพียงเล็กน้อยเท่านั้น วันนี้ทาง Estopolis จึงอยากพาทุกคนไปทำความรู้จักในทุกแง่มุมของถนนทองหล่อไปพร้อม ๆ กัน
เริ่มต้นกันที่ BTS ทองหล่อ มองจากบนสถานีจะเห็นป้าย 'ซอยสุขุมวิท 55' หรือที่รู้จักกันในชื่อ 'ถนนทองหล่อ' ถนนเส้นนี้ถูกตั้งชื่อตามชื่อเดิมของ พล.ร.ต.ทหาร ขำหิรัญ หนึ่งในสมาชิกคณะราษฎรซึ่งกระทำการปฏิวัติสยาม เมื่อปี 2475 โดยมีชื่อเดิมว่า 'ทองหล่อ ขำหิรัญ' ซึ่งเป็นเจ้าของที่ดินนี้ในขณะนั้น
ภาพที่จะเห็นจนชินตาคือจะมีชาวต่างชาติที่เป็นทั้งนักท่องเที่ยว คนทำงาน รวมไปถึงกลุ่มครอบครัวเดินทางเข้ามาพักอาศัยในย่านทองหล่อเป็นจำนวนมาก เรียกได้ว่า ย่านนี้เป็นย่านของชาวต่างชาติ โดยเฉพาะชาวญี่ปุ่นที่ส่วนใหญ่เข้ามาลงทุนทำธุรกิจในประเทศไทย
ถนนทองหล่อเป็นถนนกว้าง 6 เลน จึงทำให้สามารถเดินทางได้อย่างสะดวกสบาย
นอกจากนี้ยังมีวินมอเตอร์ไซค์อยู่ตลอดเส้นทาง และมีรถประจำทางสาย 1019 ให้บริการในระยะจากต้นซอยจนถึงท้ายซอย ถือว่าระบบคมนาคมในถนนเส้นนี้สะดวกสบายมากเลยทีเดียว
แต่สำหรับในวันนี้ Estopolis ของเราจะใช้วิธีการเดินเท้าเข้าสำรวจทำเลทองหล่อนี้ โดยทาง Goodwalk ให้คะแนนศักยภาพการเดินเท้าของทองหล่ออยู่ในระดับสูง จากการเดินเองก็พบว่า ถนนเส้นนี้เป็นถนนที่เดินง่ายจริง ๆ แล้วก็จะมีร้านอาหาร ร้านสะดวกซื้อ และสิ่งอำนวยความสะดวกอยู่ตลอดทางจึงไม่ทำให้รู้สึกว่าการเดินในซอยนี้มีระยะทางที่ไกลเลย
ถนนทองหล่อ แหล่งรวม Community Mall ตอบโจทย์ทุกไลฟ์สไตล์คนเมือง
ถึงแม้ถนนทองหล่อจะมีความยาวเพียง 2 กิโลเมตรเศษ แต่ตลอดเส้นทางก็จะมี Community Mall อยู่ระหว่างทางอยู่มากมาย โดยวันนี้เราจะพาคุณไปพบกับ Community Mall บนถนนเส้นนี้ เราเชื่อว่า ต้องมีสักที่ที่ตรงกับไลฟ์สไตล์การใช้ชีวิตของคุณอย่างแน่นอน
The Eight Thonglor : Community Mall สไตล์ Luxury![เติมเต็มทุกความสมบูรณ์ให้ชีวิตที่ La Citta Delre Thonglor 16]()

เริ่มกันที่ Community Mall สุดหรูอย่าง The Eight Thonglor ที่ตกแต่งในสไตล์ Luxury มีความหรูหราอยู่ในทุกพื้นที่ โดยรวบรวมเอาซุปเปอร์มาร์เก็ตที่เปิดตลอด 24 ชั่วโมง, ศูนย์สุขภาพ-ความงาม, ศูนย์ศิลปะและร้านค้าหัตถกรรมเอาไว้ด้วยกัน
นอกจากร้านค้าที่กล่าวมาแล้ว ก็ยังมีร้านอาหารคาวหวานมีชื่อทั้งไทยและนานาชาติให้ได้เลือกสรรเหมาะสำหรับโอกาสพิเศษที่จะพาคนที่คุณรักมาดินเนอร์ในวันหยุด
หากใครต้องการพบปะเพื่อแลกเปลี่ยนความคิดเห็นและต้องการหาพื้นที่ในการทำกิจกรรมร่วมกันที่ The Eight Thonglor ก็ถือเป็นอีกทางเลือกหนึ่งที่น่าสนใจ
The Taste Thonglor : Community Mall ร้านอาหารหลายสัญชาติ![เติมเต็มทุกความสมบูรณ์ให้ชีวิตที่ La Citta Delre Thonglor 16]()

ทองหล่อเป็นแหล่งรวมชาวต่างชาติ จึงไม่ใช่เรื่องแปลกที่จะมีร้านอาหารจากหลาย ๆ สัญชาติอยู่ในทำเลนี้ อย่าง 'The Taste Thonglor' ก็ถือเป็นอีก Community Mall ที่ตอบโจทย์เรื่องปากท้อง เพราะที่นี่ได้รวบรวมร้านอาหารดังจากทั่วทุกมุมโลกเอาไว้ให้คุณได้เลือกลิ้มชิมรสกันได้ในที่เดียว
ยกตัวอย่างร้านอาหารเจ้าเด็ดอย่าง 'ร้านเชฟกระทะเหล็ก' ร้านอาหารที่รวบรวมเมนูจากสุดยอดเชฟจากรายการดังอย่างรายการ เชฟกระทะเหล็ก เอาไว้ เรียกได้ว่า มาที่ร้านนี้จะได้ทานอาหารที่ทั้งรสชาติดีและมีคุณภาพอย่างแน่นอน
ต่อมาที่ร้านที่เราอยากแนะนำในวันนี้คือ 'ร้าน Hamakatsu' ร้านหมูทอดสูตรดั้งเดิมจากจังหวัดนางาซากิ ประเทศญี่ปุ่น ภายในร้านให้บรรยากาศความเป็นญี่ปุ่นอย่างแท้จริง ไม่ว่าจะเป็นการเลือกเฟอร์นิเจอร์ตกแต่งหรือภาชนะที่ใช้ในร้านก็มีกลิ่นอายความเป็นญี่ปุ่นอย่างแท้จริงอยู่ในนั้น
สำหรับอาหารของที่นี่ก็ตอบโจทย์คนรักอาหารญี่ปุ่นอย่างแท้จริง โดยมีเมนูแนะนำอย่างข้าวหมูทอดสูตรดั้งเดิมของทางร้าน และที่สำคัญที่นี่จะให้ลูกค้าได้สัมผัสกรรมวิธีในการปรุงอาหารด้วยตัวเองอีกด้วย
J Avenue : Community Mall สุดชิคบนทำเลไพร์มของทองหล่อ
บริเวณปากซอยทองหล่อ 15 ซึ่งถือเป็นพื้นที่ไพร์มของถนนทองหล่อ มีศูนย์การค้าแบบเปิดอย่าง J Avenue ตั้งอยู่ โดยที่นี่ถือเป็นต้นแบบ Lifestyle Shopping Center แห่งแรกของประเทศไทย เพราะภายใน J Avenue เป็นที่แรกที่รวบรวมร้านค้ามากมาย ทั้งเสื้อผ้า, ของใช้เบ็ดเตล็ด, ซูปเปอร์มาร์เก็ต และบริการหลากหลายรูปแบบเอาไว้ในที่แห่งนี้
ส่วนบรรยากาศภายในก็เหมาะสำหรับคนที่ชอบบรรยากาศความร่มรื่นของต้นไม้และอยากสัมผัสกับธรรมชาติก็สามารถมาใช้พื้นที่ส่วนกลางของที่นี่ได้
The Commons : Community Mall ของคนรักธรรมชาติ![เติมเต็มทุกความสมบูรณ์ให้ชีวิตที่ La Citta Delre Thonglor 16]()

ถัดมาในซอยทองหล่อ 17 จะเป็นที่ตั้งของ The Commons เป็น Community Mall ที่มีรูปแบบค่อนข้างแตกต่างจากที่อื่น ๆ ในย่านนี้ โดยเน้นการตกแต่งสไตล์ Loft ภายใต้แนวคิด Wholesome living หรือ 'ความมีชีวิตชีวา' เป็นหลัก
เข้ามาทีแรกจะเจอกับบรรยากาศร่มรื่นเหมือนอยู่ในสวนและได้ใกล้ชิดกับธรรมชาติด้วยพื้นที่สีเขียวตลอดทั้งโครงการ ส่วนด้านการตกแต่งด้วยสีโทนกลางอย่างสีน้ำตาลและขาวเพื่อความสบายตา
The Commons มีการแชร์พื้นที่ส่วนกลางให้เป็นพื้นที่ทำงานและพบปะพูดคุย โดยที่นี่ถูกแบ่งเป็น 4 โซนไล่จากชั้นล่างขึ้นไปจนถึงชั้นบนสุด ได้แก่ Market, Village, Play Yard และ Top Yard
เริ่มต้นกันที่โซน Market เป็นตลาดชิค ๆ ติดแอร์ที่รวบรวมเอาร้านอาหารหลากหลายสไตล์ มีให้เลือกทั้งแบบไทยและเทศ
โซนต่อมาเป็นโซน Village ที่จะรวบรวมทั้งร้านอาหาร คาเฟ่ ของใช้ และเสื้อผ้าต่าง ๆ เอาไว้ด้วยกัน
ต่อมาเป็นโซน Play Yard ซึ่งเป็นพื้นที่รองรับการทำกิจกรรมสำหรับครอบครัว โดยเฉพาะเด็ก ๆ ที่จะมีแหล่งสันทนาการด้านดนตรีและศิลปะไว้ให้เด็ก ๆ ได้ใช้เวลาว่างให้เกิดประโยชน์
โซนสุดท้ายของ The Commons คือโซน Top Yard ซึ่งเป็นลานหญ้ากิจกรรมด้านบนสุด ให้อารมณ์เหมือนเป็นสนามหลังบ้าน ซึ่งสามารถจัดกิจกรรมได้และถือเป็นโซนที่ถูกจัดเอาไว้สำหรับเรียนรู้สิ่งใหม่ ๆ ด้วยตนเองอีกด้วย
ถนนทองหล่อ แหล่งรวมร้านอาหารชื่อดังตอบโจทย์ทุกไลฟ์สไตล์
นอกจาก Community Mall ต่าง ๆ จะมีร้านอาหารให้เลือกมากมายแล้ว ตลอดเส้นทางบนถนนทองหล่อยังเต็มไปด้วย street food คาเฟ่ ร้านชิลเอ้าท์ ไปจนถึงร้านอาหารระดับภัตรคาร เรียกได้ว่าถ้าอยู่ในถนนทองหล่อแล้วจะได้ทานอาหารอร่อย ๆ แบบไม่ซ้ำกันในแต่ละวันเลยล่ะ
ด้วยความที่มีชาวต่างชาติเยอะในย่านนี้ รายการอาหารส่วนใหญ่ของหลาย ๆ ร้านจึงเป็นรูปแบบ 3 ภาษา คือภาษาไทย ภาษาอังกฤษ และภาษาญี่ปุ่น เพื่อความพร้อมในการให้บริการชาวต่างชาติอีกด้วย
หรือใครที่ชอบทำอาหารอยู่ที่บ้าน และต้องการวัตถุดิบก็มี Makro food service หรือ Tops ให้ทั้งพ่อบ้านแม่บ้านไปเลือกจับจ่ายกันได้
ถนนทองหล่อกับครอบครัวยุคใหม่ที่ต้องการใช้ชีวิตใกล้เมือง
สิ่งสำคัญสำหรับครอบครัวยุคใหม่คงจะหนีไม่พ้นการมีสถานศึกษาดี ๆ และสถานที่เสริมสร้างความคิดและจินตนาการให้กับบุตรหลานได้อย่างเต็มที่ ถนนทองหล่อจึงเป็นจุดเริ่มต้นที่ดีสำหรับเสริมสร้างความพร้อมให้ครอบครัวยุคใหม่
ถ้าคุณเลือกที่จะอยู่ในถนนทองหล่อจะมีโรงเรียนเตรียมพร้อมเข้าสู่ช่วงปฐมวัยของเด็กอยู่ในย่านนี้ด้วย เหมาะสำหรับครอบครัวยุคใหม่ที่กังวลว่าจะไม่มีเวลาให้ลูกในเวลาที่ต้องไปทำงาน
นอกจากนั้นบริเวณซอยทองหล่อ 3 จะมีพื้นที่ขนาด 2 ไร่นิด ๆ ที่เคยเป็น Root Garden แต่ในปัจจุบันถูกนำมาปรับเปลี่ยนใหม่ให้กลายเป็น ‘สวนครูองุ่น เมลิก’ สวนสาธารณะที่เต็มไปด้วยพื้นที่สีเขียวเหมาะสำหรับเด็ก ๆ ได้เรียนรู้ธรรมชาติ และมีเครื่องเล่นที่ออกแบบมาเพื่อเด็กอย่างแท้จริง
ถนนทองหล่อกับความปลอดภัยในพื้นที่
นอกจากความสะดวกสบายและการคมนาคมที่ดีแล้ว ปัจจัยที่ต้องนำมาพิจารณาศักยภาพของทำเลคือเรื่องของความปลอดภัย ซึ่ง ถนนทองหล่อ ถือว่าเป็นอีกหนึ่งทำเลที่มีปัจจัยสนับสนุนในด้านความปลอดภัยอย่างครบถ้วน
เริ่มจากการมีสถานพยาบาลในทำเล โดยโรงพยาบาลหลักบนถนนทองหล่อจะเป็น โรงพยาบาลคามิลเลียน จัดเป็นโรงพยาบาลเอกชนขนาดใหญ่ที่ไม่แสวงหาผลกำไร มีจำนวนเตียง 120 เตียง เปิดให้บริการรักษาพยาบาลผู้ป่วยอุบัติเหตุและทั่วไปตลอด 24 ชั่วโมง
ส่วนอีกหนึ่งความปลอดภัยที่ทำให้ประชาชนอุ่นใจก็คือสถานีตำรวจ โดยถนนทองหล่อมี สถานีตำรวจทองหล่อ เปิดให้บริการเพื่อสร้างความอุ่นใจในชีวิตและทรัพย์สินให้กับผู้ที่อาศัยในย่านนี้ได้เป็นอย่างมาก
ถนนทองหล่อ ถนนแห่งทางลัด

จุดเด่นอีกอย่างของถนนทองหล่อคือการที่ 'ซอยทองหล่อ' หลาย ๆ ซอยเป็นทางลัดทะลุออกไปยังซอยอื่น ๆ หรือถนนเส้นอื่น ๆ ได้อีกหลายเส้นทาง ยกตัวอย่างเช่น ซอยทองหล่อ 23 ที่สามารถลัดออกไปยังโรงพยาบาลสมิติเวช ซึ่งอยู่ซอยสุขุมวิท 49 ได้ หรือแม้แต่ตัวถนนทองหล่อเองยังเป็นทางลัดจากถนนสุขุมวิทไปยังถนนเพชรบุรีด้วยเช่นกัน เป็นต้น
ทำเลบริเวณ 'ถนนทองหล่อ' มีทั้งไลฟ์สไตล์ สิ่งอำนวยความสะดวก การคมนาคมที่ดี และความปลอดภัย ซึ่งเป็นสิ่งที่เข้าถึงและสามารถจับต้องได้แล้ว จึงไม่ใช่เรื่องแปลกที่ทำเลทองหล่อกลายเป็นทำเลในฝันของใครหลายคน
สำหรับคนที่สนใจในเรื่องของการลงทุนในคอนโด สามารถติดตามบทความอื่นๆเพิ่มเติมได้ที่ :
ลา ซิตต้า ทองหล่อ 16
5ae17cbd81c2abdf64d0b8de
la-citta-delre-thonglor-16-ลา-ซิตต้า-ทองหล่อ![รูปหน้าปก [Preview] เติมเต็มทุกความสมบูรณ์ให้ชีวิตที่ La Citta Delre Thonglor 16](https://static.estopolis.com/review/5ae17f3181c2abdf64d0dc51_5ae18dea15f0207a38e6af3f.jpg)




























































