[Review] ‘PORCH Condominium’ คอนโดติดรถไฟฟ้าสายสีชมพู ที่ทุกความสะดวกสบาย จะอยู่ใกล้เพียงเอื้อมมือ
ซอยแจ้งวัฒนะ 12 แยก 2 ถนนแจ้งวัฒนะ แขวงทุ่งสองห้อง เขตหลักสี่ กรุงเทพมหานคร
วันฮันเดรดแอนด์ไรซ์ซิ่ง

HIGHLIGHTS
ทำเลศักยภาพ ตรงข้ามศูนย์ราชการฯ แจ้งวัฒนะ
- เดินทางสะดวก ติด MRT สถานีแจ้งวัฒนะ 14 เพียง 250 เมตร พร้อมใกล้จุดขึ้น-ลงทางพิเศษอุดรรัถยาและทางยกระดับอุตราภิมุข
- Fully Fitted ให้เฟอร์นิเจอร์ และสุขภัณฑ์จากแบรนด์ชั้นนำ คุณภาพดี ทั้งฝารองนั่ง Washlet จากแบรนด์ TOTO, ชุดครัวจาก MEX และอื่น ๆ
- จำนวนยูนิตรวมเพียง 101 ยูนิต ให้ความเป็นส่วนตัวสูง
- ตั้งอยู่ในทำเลที่ตอบทุกโจทย์การใช้ชีวิต รายล้อมไปด้วยแหล่งงาน, สถานพยาบาล, สถานศึกษา และห้างสรรพสินค้าชั้นนำ
Project Review
เปิดรับฟังก์ชันการอยู่อาศัยที่ตอบโจทย์ชีวิตทันสมัย
ด้วยดีไซน์ที่ให้ผลลัพธ์เป็นความหรูหราในรูปแบบ ‘Modern Classic’ ที่เรียบง่าย ได้กลิ่นอายความมินิมอลจาง ๆ ตามแบบฉบับของคนรุ่นใหม่ มุ่งเน้นความปลอดโปร่ง และอยู่สบายสูงสุด...
และไม่ว่าคุณจะอยากชาร์จพลังในวันที่เหนื่อยล้า, ตามหาความคิดสร้างสรรค์ให้ชีวิตไม่หยุดนิ่ง, ปิดสวิตซ์ละทิ้งความวุ่นวาย หรือต้องการความสะดวกสบายที่อยู่ใกล้แค่เอื้อม... หากทั้งหมดนี้ คือ นิยามความลงตัวที่คุณกำลังตามหาอยู่ล่ะก็ PORCH Condominium ก็พร้อมให้คุณโอบกอดความสุขสุดเรียบง่าย และไลฟ์สไตล์อิสระทั้งหมดนี้ ‘ในแบบของคุณเอง’
รายละเอียดโครงการ PORCH Condominium
ชื่อโครงการ : PORCH Condominium (พอร์ช คอนโดมิเนียม)
เจ้าของโครงการ : บริษัท วันฮันเดรดแอนด์ไรซ์ซิ่ง บาย เดอะ ไรซ์ พร๊อพเพอร์ตี้ จำกัด
ที่ตั้งโครงการ : ซอยแจ้งวัฒนะ 12 แยก 2 แขวงทุ่งสองห้อง เขตหลักสี่ กรุงเทพฯ
พื้นที่โครงการ : 3 งาน 73 ตารางวา (373 ตารางวา)
ลักษณะโครงการ : คอนโดมิเนียม 7 ชั้น 1 อาคาร
จำนวนห้อง : 101 ยูนิต
รูปแบบห้อง :
- TYPE AA 1-Bedroom : ขนาด 29.20 ตารางเมตร
- TYPE AB, AC, AD และ AE 1-Bedroom : ขนาด 29.40 ตารางเมตร
- TYPE XA 1-Bedroom : ขนาด 30.00 ตารางเมตร
- TYPE AF 1-Bedroom : ขนาด 31.20 ตารางเมตร
- TYPE XB 1-Bedroom : ขนาด 32.60 ตารางเมตร
- TYPE YY 1-Bedroom : ขนาด 33.60 ตารางเมตร
- TYPE ZZ Bedroom Plus : ขนาด 41.00 ตารางเมตร
ที่จอดรถ : ประมาณ 38 คัน (ไม่รวมจอดซ้อนคัน)
ราคาเริ่มต้น : 1.99 ล้านบาท*
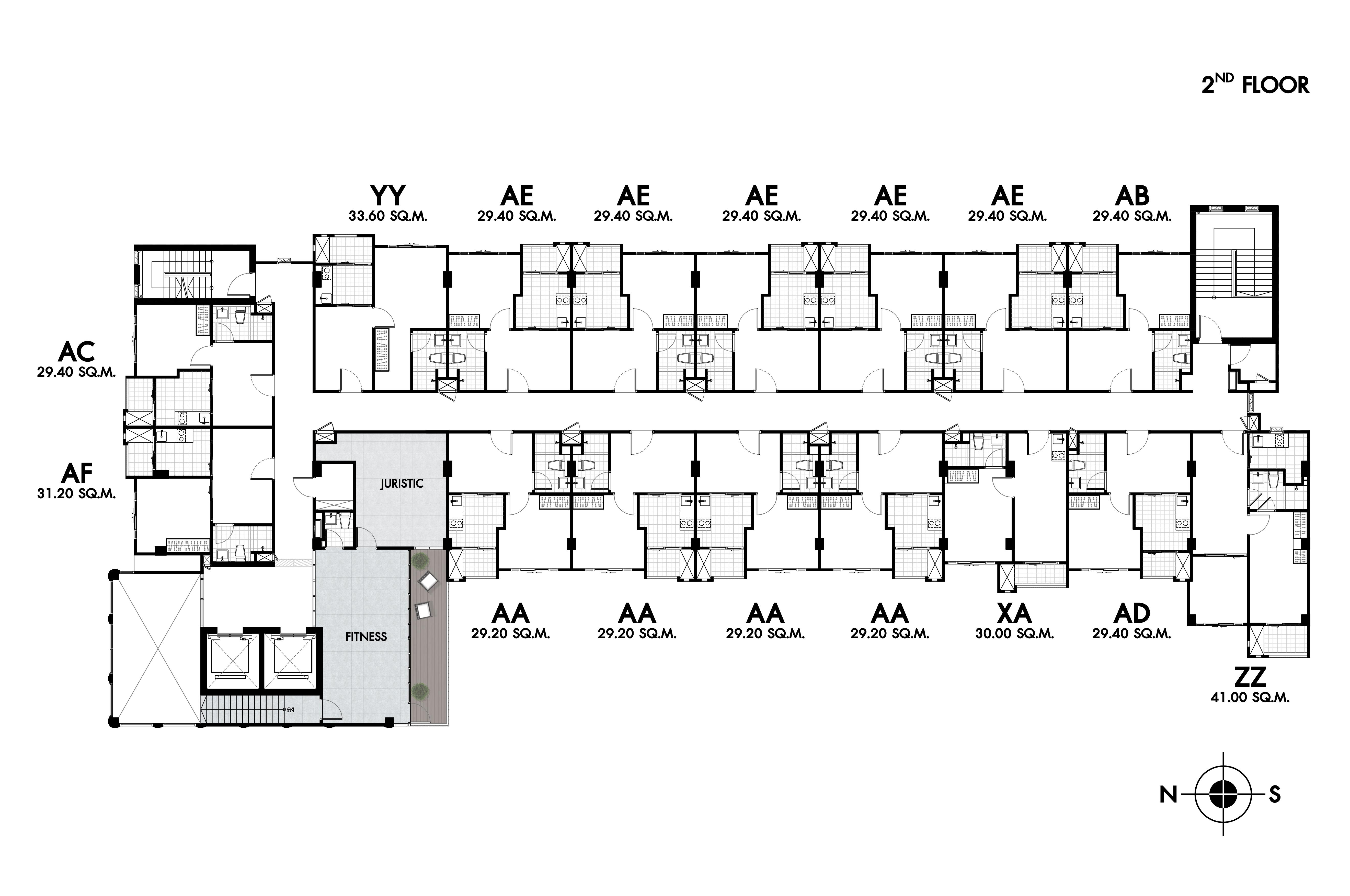
Floor Plan โครงการ PORCH Condominium
เริ่มสำรวจพื้นที่ส่วนแรกกันที่แปลนโครงการชั้น Ground Floor โดยลักษณะอาคารของ PORCH Condominium จะเป็นแบบตอนลึกอยู่ติดกับถนนบริเวณหน้าทางเข้า เมื่อขยับเข้าไปจะเจอกับ ‘ล็อบบี้‘ แบบ DOUBLE SPACE ที่เชื่อมต่อกับโถงลิฟท์ 2 ตัวก่อนเป็นอันดับแรก ถัดไปด้านหลังจึงเป็นส่วนของสระว่ายน้ำระบบเกลือ พร้อมด้วยพื้นที่สำหรับนั่งเล่นพักผ่อน
สำหรับพื้นที่จอดรถทั้งหมดของโครงการก็จะอยู่ที่ชั้นนี้ด้วยเช่นกัน สามารถรองรับการจอดได้ทั้งหมดประมาณ 38 คัน พร้อมมีบันไดหนีไฟติดตั้งอยู่บริเวณด้านหน้าทางเข้า และด้านในสุดของอาคาร ซึ่งเราสามารถใช้เดินขึ้นลงแทนลิฟท์ได้ทันที ในกรณีที่ชั้นพักอาศัยนั้นไม่ได้อยู่สูงมากนัก
โครงการ PORCH Condominium ตั้งอยู่ภายในซอยแจ้งวัฒนะ 12 แยก 2 เมื่อเลี้ยวเข้ามาด้านในก็จะเจอทางเข้าโครงการอยู่ทางขวามือ ห่างจากปากซอยแจ้งวัฒนะ 12 ประมาณ 250 เมตรเท่านั้น เราจึงสามารถเดินเท้าออกไปใช้บริการระบบขนส่งสาธารณะต่าง ๆ ได้สะดวก ทั้งนี้ที่ตั้งของโครงการยังอยู่ฝั่งขาเข้าเมืองที่มุ่งหน้าไปทางหลักสี่ จึงยิ่งทำให้การเดินทางเข้าเมืองนั้นเป็นไปอย่างสะดวกสบายมากขึ้นด้วย
บริเวณด้านหน้าโครงการจะมีช่องทางเดินรถแบบเข้า-ออกทางเดียว เพื่อให้เราใช้เข้าไปสู่พื้นที่จอดรถใต้อาคาร ที่สามารถรองรับการจอดแบบไม่ซ้อนคันได้ประมาณ 38 คัน และอาจขยับเข้าไปจอดเพิ่มเติมได้อีกบางส่วน ข้างกันจะมีทางเข้าล็อบบี้อยู่ทางด้านหน้าโครงการ หรือจะเดินเข้าจากทางลานจอดรถเลยก็ได้เช่นกัน
- ต้อนรับคุณกลับบ้าน และสร้างความประทับใจแรกพบให้แก่ผู้มาเยือน ด้วยล็อบบี้ส่วนกลางที่โอ่โถงด้วยดีไซน์เพดานสูงโปร่งพิเศษ
ขยับมาที่ชั้น 2 ของล็อบบี้ ก็จะเป็นที่ตั้งของพื้นที่ส่วนกลางสำหรับการออกกำลังกาย อย่าง ‘ห้องฟิตเนส’ ซึ่งจะอยู่ตรงกับห้องนิติบุคคล โดยส่วนของการพักอาศัยทั้งหมดจะสามารถเข้ามาใช้บริการส่วนนี้ได้
- ‘ฟิตเนส’ ถูกออกแบบเป็นห้องกระจกใสเต็มบาน มองออกไปเห็นวิวสระว่ายน้ำ และสวนสีเขียวได้ชัดเจน รวมถึงมีส่วนระเบียงให้เดินออกมานั่งเล่นรับลมได้อีกด้วย
สระว่ายน้ำของ PORCH Condominium จะเป็นแบบระบบเกลือ มีขนาดกว้างประมาณ 4.5 เมตร ยาว 15.30 เมตร และมีความลึกอยู่ที่ประมาณ 1.20 เมตร เราจึงใช้ว่ายเพื่อออกกำลังกายได้แบบสบาย ๆ ส่วนบริเวณรอบ ๆ สระก็จะมีมุมนั่งเล่นไว้ให้ลูกบ้านมานั่งเปลี่ยนบรรยากาศ ผ่อนคลายความเครียดจากการทำงานอีกด้วย
- ใส่ใจสุขภาพคุณด้วยส่วนกลางเพื่อการพักผ่อนและออกกำลังกาย ทั้งสระว่ายน้ำระบบเกลือ, ห้องฟิตเนสวิวสวย และสวนหย่อมที่เปิดมุมมองคุณสู่สีสันเมือง ที่ผนวกรวมกับย่านชุมชน และธรรมชาติได้อย่างลงตัว
แล้วมาสำรวจกันต่อที่ส่วนของพื้นที่พักอาศัยดูบ้าง สำหรับยูนิตพักอาศัยของโครงการ PORCH Condominium จะเริ่มตั้งแต่ชั้น 2 เป็นต้นไป โดยแต่ละชั้นจะมีจำนวนห้องพักอาศัยทั้งหมด 17 ยูนิต
เว้นแต่เพียงชั้น 2 เท่านั้นที่จะมีส่วนเชื่อมต่อกับพื้นที่ส่วนกลาง อย่าง ฟิตเนสและนิติบุคคล จึงทำให้จำนวนห้องพักอาศัยของชั้นนี้จะอยู่ที่ 16 ยูนิต ซึ่งประกอบด้วยห้อง 1 Bedroom ขนาดต่าง ๆ ตั้งแต่ 29.20 - 33.60 ตารางเมตร และ Bedroom Plus อีก 1 ห้องที่มุมอาคาร
- TYPE AA 1-Bedroom : ขนาด 29.20 ตารางเมตร จำนวน 4 ยูนิต
- TYPE AB 1-Bedroom : ขนาด 29.40 ตารางเมตร จำนวน 1 ยูนิต
- TYPE AC 1-Bedroom : ขนาด 29.40 ตารางเมตร จำนวน 1 ยูนิต
- TYPE AD 1-Bedroom : ขนาด 29.40 ตารางเมตร จำนวน 1 ยูนิต
- TYPE AE 1-Bedroom : ขนาด 29.40 ตารางเมตร จำนวน 5 ยูนิต
- TYPE XA 1-Bedroom : ขนาด 30.00 ตารางเมตร จำนวน 1 ยูนิต
- TYPE AF 1-Bedroom : ขนาด 31.20 ตารางเมตร จำนวน 1 ยูนิต
- TYPE YY 1-Bedroom : ขนาด 33.60 ตารางเมตร จำนวน 1 ยูนิต
- TYPE ZZ Bedroom Plus : ขนาด 41.00 ตารางเมตร จำนวน 1 ยูนิต
ส่วนชั้น 3 - 7 จะค่อนข้างมีความเป็นส่วนตัว เนื่องจากเป็นพื้นที่พักอาศัยทั้งชั้นรวม 17 ยูนิต ประกอบด้วย...
- TYPE AA 1-Bedroom : ขนาด 29.20 ตารางเมตร จำนวน 4 ยูนิต
- TYPE AB 1-Bedroom : ขนาด 29.40 ตารางเมตร จำนวน 1 ยูนิต
- TYPE AC 1-Bedroom : ขนาด 29.40 ตารางเมตร จำนวน 1 ยูนิต
- TYPE AD 1-Bedroom : ขนาด 29.40 ตารางเมตร จำนวน 1 ยูนิต
- TYPE AE 1-Bedroom : ขนาด 29.40 ตารางเมตร จำนวน 5 ยูนิต
- TYPE XA 1-Bedroom : ขนาด 30.00 ตารางเมตร จำนวน 1 ยูนิต
- TYPE AF 1-Bedroom : ขนาด 31.20 ตารางเมตร จำนวน 1 ยูนิต
- TYPE XB 1-Bedroom : ขนาด 32.60 ตารางเมตร จำนวน 1 ยูนิต
- TYPE YY 1-Bedroom : ขนาด 33.60 ตารางเมตร จำนวน 1 ยูนิต
- TYPE ZZ Bedroom Plus : ขนาด 41.00 ตารางเมตร จำนวน 1 ยูนิต
ปิดท้ายที่ชั้นบนสุดอย่าง Rooftop ซึ่งจะเป็นพื้นที่ของงานระบบน้ำประปา ทั้งแท็งก์สำรองน้ำและปั๊มน้ำ ตลอดจนตกแต่งเป็นพื้นที่สำหรับพักผ่อนไว้ให้ด้วย
โดยส่วนของพื้นที่พักผ่อนบนชั้น Rooftop นี้ จะออกแบบเป็นสวนหย่อมสีเขียว ให้ลูกบ้านขึ้นมานั่งเล่นเปลี่ยนบรรยากาศร่วมกันได้เต็มที่ มีสนามหญ้า และร่มเงาต้นไม้ช่วยคลายร้อน
Room Review
TYPE ZZ Bedroom Plus ขนาด 41.00 ตร.ม.
ห้อง Type ZZ Bedroom Plus ขนาด 41.00 ตร.ม. มีลักษณะเป็นห้องสี่เหลี่ยมพื้นผ้าตอนลึก เน้นสเปซในส่วนพื้นที่พักผ่อนอย่างห้องนั่งเล่นและห้องนอนเป็นพิเศษ
เมื่อเปิดเข้ามา เราจะพบกับ ‘ส่วนนั่งเล่น’ ก่อนเป็นอันดับแรก ทางด้านซ้ายมือจากทางเข้าจะเป็นส่วนครัวปิดตามด้วยห้องน้ำ โดยห้องน้ำของห้อง Type นี้ จะสามารถเชื่อมต่อได้ทั้งจากทางห้องนั่งเล่นและ Master Bedroom ข้อดีคือเมื่อมีแขกเข้ามาที่ห้องของเรา ก็สามารถเลือกใช้ทางเข้าจากบริเวณห้องนั่งเล่นได้ โดยไม่จำเป็นต้องเข้าผ่านห้องส่วนตัวอย่างห้องนอนของเรา
ส่วนระเบียงก็อยู่บริเวณเดียวกันกับห้อง Master Bedroom ทำให้สามารถใช้พื้นที่ส่วนระเบียงในการพักผ่อนอย่างเป็นส่วนตัวได้ ส่วนห้องนอนขนาดเล็กอีกห้องจะอยู่ติดกันกับส่วนนั่งเล่น มีขนาดพอเหมาะสำหรับเตียงเดี่ยว สามารถใช้เป็นห้องนอนของลูก ๆ หรือใช้สำหรับรับรองแขกได้
- ห้อง Type ZZ เหมาะกับการอยู่อาศัยเป็นครอบครัว 2-3 คน ต้องการพื้นที่พักผ่อนอย่างห้องนอนและห้องนั่งเล่นที่มีขนาดใหญ่เป็นพิเศษ ต้องการความเป็นส่วนตัว และทำอาหารทานเองเป็นประจำ
ด้านในสุดจะเป็น ‘ห้องนอนส่วนตัว’ ที่มาพร้อมหน้าต่างกระจกใสแบบเต็มบาน ทำหน้าที่เปิดรับแสงธรรมชาติระหว่างวันได้อย่างเต็มที่ โดยบริเวณระหว่างห้องนอนกับห้องนั่งเล่น จะกั้นด้วยประตูกระจกบานสไลด์ ซึ่งเป็นทางผ่านให้แสงจากด้านนอกส่องเข้ามาถึงโซนห้องนั่งเล่นได้สบาย ๆ บวกกับระยะฝ้าเพดานที่สูงถึง 2.6 เมตร จึงยิ่งทำให้ห้องดูโปร่งโล่ง สบายตาเป็นพิเศษ
สำหรับใครที่อยากมีพื้นที่เก็บของเพิ่มเติม ก็อาจเลือกบิลต์อินชั้นเก็บของเท่ ๆ ไว้ตรงบริเวณหน้าทางเข้า หรือจะบิลต์อินโต๊ะทานข้าวแบบเคาน์เตอร์บาร์ ก็ช่วยประหยัดพื้นที่ส่วนนี้ได้เช่นกัน และหากเรารู้จักตกแต่ง บริหารสัดส่วนพื้นที่ให้ดีล่ะก็ จะสามารถสร้างสรรค์การใช้งานต่าง ๆ ได้อีกเยอะ เพราะพื้นที่ห้องนั่งเล่นที่โครงการให้มานั้น ค่อนข้างกว้างพอสมควรเลย
ทางฝั่งซ้ายมือของห้องจะจัดวางเป็น ‘ครัวแบบปิด’ อยู่ติดกับ ‘ห้องน้ำ’ เพื่อความสะดวกสบายในการดูแลรักษา โดยครัวแบบปิดนี้จะกั้นด้วยประตูกระจกแบบบานสไลด์ เพื่อช่วยป้องกันกลิ่น และควันของอาหารลอยออกมารบกวนส่วนอื่น ๆ ภายในห้องด้วย
ภายในห้องครัวจะมีพื้นที่กว้างพอให้วางเคาน์เตอร์ครัวทางด้านซ้ายได้สบาย ๆ ส่วนบริเวณด้านในสุดจะเว้นพื้นที่ไว้ให้เราใช้วางตู้เย็นขนาดใหญ่ ซึ่งเคาน์เตอร์ครัวที่จัดวางไว้ในห้องตัวอย่าง จะเป็นเพียงไอเดียการตกแต่งเท่านั้น โดยเคาน์เตอร์ครัวจริงที่ทางโครงการให้จะมีขนาดกว้าง 130 เซนติเมตร จากแบรนด์ SB Furniture พร้อมเว้นช่องสำหรับใส่ไมโครเวฟ และตู้บิลต์อินสำหรับจัดเก็บของใช้ต่าง ๆ ทั้งด้านล่างและด้านบนให้ครบ
สำหรับอุปกรณ์ไฟฟ้าภายในห้องครัวที่ทางโครงการให้นั้น จะมีเตาไฟฟ้าขนาด 2 หัว พร้อมเครื่องดูดควันระบบหมุนเวียนยี่ห้อ MEX (หรือเทียบเท่า) ส่วนอ่างล้างจานจะให้เป็นวัสดุสเตนเลสอย่างดี พร้อมติดตั้งก๊อกน้ำทรงสูง เพื่อความสะดวกในการใช้งาน
นอกจากนี้ภายในครัวของห้อง Type ZZ ยังจัดพื้นที่ไว้สำหรับใช้วางเครื่องซักผ้าโดยเฉพาะ ซึ่งเราสามารถเลือกใช้ได้ทั้งฝาหน้าและฝาบน พร้อมวางระบบท่อน้ำเอาไว้ให้เรียบร้อย ขณะเดียวกันเรายังสามารถต่อเติมชั้นเก็บของแขวนผนัง ไว้ใช้วางอุปกรณ์ซักผ้าเพิ่มเติมเองได้ เพื่อช่วยให้งานซักล้างแต่ละครั้งสะดวกสบายมากขึ้น
ขยับจากห้องครัวออกมายังส่วนนั่งเล่นอีกครั้ง โดยบริเวณนี้จะเป็นเสมือนจุดศูนย์กลางในการเชื่อมต่อชีวิตกับทุกๆ ส่วนของห้อง สามารถใช้เป็นได้ทั้งห้องสำหรับรับแขก และห้องสำหรับพักผ่อนร่วมกันภายในครอบครัว ซึ่งเราสามารถจัดวางโซฟา L-Shape ขนาดใหญ่ไว้ที่บริเวณนี้ได้แบบสบาย ๆ พร้อมโต๊ะกลาง, ชั้นวางของ หรือเฟอร์นิเจอร์ตกแต่งอื่น ๆ เพิ่มเติมได้อีกหลายชิ้นโดยไม่ทำให้ห้องอึดอัด
- โซฟาในห้องตัวอย่าง จะหันหน้าเข้าผนังที่คั่นกลางระหว่างห้องน้ำกับห้อง Master Bedroom ซึ่งทางโครงการได้ทำการติดตั้งระบบสำหรับ Digital TV และเครื่องปรับอากาศเอาไว้ให้ด้วย หากใครต้องการติดตั้งโทรทัศน์, เครื่องเล่น หรือชั้นวางก็สามารถเลือกดีไซน์และขนาดที่เหมาะสมเองได้เลย
จากห้องนั่งเล่นก็ก้าวเข้ามาใน ‘ห้องน้ำ’ ซึ่งเราจะพบกับอ่างล้างหน้า และกระจกเงาก่อนเป็นอันดับแรก แล้วจึงเป็นโถสุขภัณฑ์พร้อมแกนใส่ทิชชู่อยู่ติดกัน โดยบริเวณนี้จะเป็นโซนแห้งที่กั้นด้วย Partition กระจกใส เพื่อช่วยป้องกันไม่ให้น้ำกระเด็นออกมาด้านนอก ก่อนจะขยับไปเจอ Shower Box ที่อยู่ด้านในสุด
สำหรับสุขภัณฑ์ห้องน้ำที่ทางโครงการติดตั้งให้ จะเป็นแบรนด์คุณภาพชั้นนำทั้งหมด ไม่ว่าจะเป็น…
- อ่างล้างหน้าจากแบรนด์ MOGEN ที่มาพร้อมชั้นวางของในตัว
- ก๊อกน้ำบริเวณอ่างล้างหน้าจากแบรนด์ Hafele อย่างดี
- ส่วนโถสุขภัณฑ์ที่โครงการ PORCH Condominium เลือกใช้จะมาจากแบรนด์ TOTO พร้อม Washlet ระบบไฟฟ้า ที่ให้ความสะดวกสบายที่มากกว่า
สำหรับฉากกั้นอาบน้ำเป็นกระจกนิรภัยจากแบรนด์ Duscholux โดยด้านหน้าจะมีราวจับให้จับได้ถนัดมือ และยังสามารถใช้แขวนผ้าขนหนูได้ในตัว ส่วนพื้นห้องน้ำเป็นกระเบื้องเกลซพอร์ซเลน ที่มีความแข็งแรง ทนทาน รองรับน้ำหนักได้ดี แถนยังลดการดูดซึมน้ำอีกด้วย
ในส่วนของ Shower Box ทางโครงการจะติดตั้งฝักบัวจากแบรนด์ Hafele ให้ทั้งแบบ Hand Shower และ Rain Shower พร้อมชั้นวางขวดแชมพู, ครีมอาบน้ำ และที่วางสบู่ก้อนในตัว หากยังไม่จุใจ ด้านในสุดก็ยังมีช่องวางของแบบ Drop Wall ให้เราใช้วางของเพิ่มเติมได้ด้วย
- สำหรับสาว ๆ คนไหนที่มีเสื้อผ้า เครื่องประดับเยอะ ก็สามารถจัดวาง และตกแต่งพื้นที่บริเวณหน้าตู้เสื้อผ้าให้เป็น Closet Island เพิ่มเติมได้ เนื่องจากพื้นที่บริเวณนี้จะยังเหลือเนื้อที่ค่อนข้างกว้างพอสมควรเลย
สำหรับตู้เสื้อผ้าที่ให้ภายในห้อง Master Bedroom จะเป็นเฟอร์นิเจอร์แบรนด์ SB Furniture ขนาด 130 x 60 x 230 เซนติเมตร พร้อมจัดแบ่งฟังก์ชันจัดเก็บเสื้อผ้าด้านในมาให้เรียบร้อย เพื่อความเป็นระเบียบในการใช้สอย
ขยับมาดูพื้นที่สำหรับใช้วางเตียงนอนกันต่อ โดยบริเวณปลายเตียงทางโครงการจะติดตั้งระบบ Digital TV และเครื่องปรับอากาศเอาไว้ให้ตรงผนังห้อง เราจึงสามารถติดทีวีแขวนผนัง ไว้ใช้ผ่อนคลาย นอนดูหนังบนเตียงนุ่ม ๆ ได้ทันที
ออกมายืนสูดอากาศที่ระเบียงห้อง ซึ่งจะมีขนาดกว้างขวางเพียงพอให้เราตกแต่งเป็นมุมนั่งเล่น โดยการจัดวางโซฟาดีไซน์เก๋แบบในห้องตัวอย่าง หรือจะเพิ่มเติมโต๊ะกาแฟตัวเล็กเข้าไป เพื่อใช้เป็นมุมที่นั่งจิบกาแฟยามเช้า หรืออ่านหนังสือชิลล์ ๆ ก็ดี
- ระเบียงของห้องแต่ละยูนิต จะมีก๊อกน้ำมาให้ใช้ล้างทำความสะอาดอุปกรณ์อื่น ๆ ได้สะดวก โดยไม่จำเป็นต้องเข้าไปใช้ห้องน้ำให้เลอะเทอะ โดยส่วนนี้ทางโครงการก็ได้ทำรางสำหรับระบายน้ำพร้อม Floor Drain เอาไว้ให้แล้วเรียบร้อย
ติดกับห้อง Master Bedroom ก็จะเป็น‘ห้องนอนเล็ก’ ที่มีทางเข้าเป็นประตูบานเลื่อนกระจกใสแทน ประตูเปิด-ปิดเหมือนในห้อง Master Bedroom ซึ่งจะให้ความเปิดโล่งในการอยู่อาศัย แต่ถ้าใครอยากเพิ่มความเป็นส่วนตัวขึ้นมาอีกนิด ก็สามารถติดตั้งผ้าม่าน, มู่ลี่ หรือติดฟิล์มทึบที่กระจกเพิ่มอีกชั้นก็ได้เหมือนกัน
ภายในห้องจะมีบรรยากาศปลอดโปร่ง โดยฝั่งขวามือของห้องจะเป็นพื้นที่สำหรับวางตู้เสื้อผ้า และถัดเข้าไปด้านในสุดติดกับหน้าต่าง จึงเป็นพื้นที่สำหรับวางเตียงเดี่ยวขนาดประมาณ 3.5 ฟุต ซึ่งทางโครงการก็ได้ติดตั้งเครื่องปรับอากาศเอาไว้ให้อีก 1 ตัว อยู่บริเวณปลายเตียง
สำหรับตู้เสื้อผ้าที่ทางโครงการให้ ก็จะคล้ายกับของห้อง Master Bedroom โดยมีความกว้างอยู่ที่ 100 เซนติเมตร และยังสามารถใช้เก็บเสื้อผ้า รวมถึงเครื่องใช้ต่าง ๆ ได้เพียงพอสำหรับหนึ่งคน
เมื่อหันกลับไปมองที่ผนังฝั่งหัวเตียง ก็จะเห็นชั้นวางของแบบ Built in ที่ทางโครงการได้ตกแต่งเพิ่มเติม เหมาะสำหรับคนที่มีของตกแต่ง หรือของสะสมเยอะ ๆ ซึ่งใครจะปรับเป็นตู้เก็บของแบบบานเปิด-ปิดแทน ก็ช่วยป้องกันฝุ่น และทำให้ห้องดูเรียบร้อยขึ้นได้
TYPE AE 1-Bedroom ขนาด 29.40 ตร.ม.
สำหรับห้อง Type AE 1-Bedroom ขนาด 29.40 ตร.ม. จะมีแปลนห้องแบบสี่เหลี่ยมจัตุรัส ที่แบ่งพื้นที่ใช้สอยของแต่ละห้องในสัดส่วนที่ใกล้เคียงกัน พร้อมจัดวางห้องต่าง ๆ ไว้อย่างเป็นสัดส่วน เหมาะสำหรับการอยู่อาศัยทุกไลฟ์สไตล์
เมื่อเปิดประตูเข้าไปจะเจอกับ ‘ห้องนั่งเล่น’ คอยต้อนรับการกลับมาของทุกคน ส่วนทางขวามือจะเป็น ‘ห้องน้ำ’ ที่ถัดเข้าไปจะเจอกับพื้นที่ของ ‘ห้องนอน’ และ ‘ห้องครัว’ อยู่ข้างกัน
โดยห้องครัวของห้อง Type AE จะเป็นแบบปิดที่มีพื้นที่ค่อนข้างกว้าง เพียงพอให้จัดวางโต๊ะทานข้าวสำหรับ 2 ที่นั่งได้เหลือเฟือ ส่วนระเบียงห้องก็จะเชื่อมต่อกับห้องครัว สามารถเปิดเพื่อระบายกลิ่นได้ ซึ่งจะเหมาะสำหรับคนที่ชอบทำอาหารทานเองเป็นประจำ ส่วนบริเวณระเบียงมีที่ให้วางเครื่องซักผ้าได้ทั้งฝาหน้าและฝาบน สามารถใช้เป็นพื้นที่ซักล้างและตากผ้าได้ในตัว
- ห้อง Type นี้จะเหมาะสำหรับการอยู่อาศัย 1-2 คน และค่อนข้างให้ความเป็นส่วนตัว ด้วยพื้นที่ห้องนอนที่แยกออกจากโซนนั่งเล่นด้วยประตูบานเปิด-ปิดมิดชิด ที่ช่วยลดเรื่องแสง และเสียงรบกวนจากกิจกรรมในห้องนั่งเล่นได้เป็นอย่างดี
เมื่อเปิดประตูห้อง Type AE เข้ามาจะเจอกับ ‘ห้องนั่งเล่น’ ที่มี ‘ห้องน้ำ’ อยู่ทางขวามือ ถัดไปจากห้องน้ำเข้าไปจึงจะเป็น ‘ห้องนอน’ และ ‘ครัวปิด’ ตามลำดับ โดยมีพื้นที่ระเบียงอยู่เชื่อมต่อกับส่วนของห้องครัวอีกทีหนึ่ง ช่วยให้ห้องดูกว้าง โปร่งโล่ง และสว่างขึ้นด้วยแสงธรรมชาติที่ส่องเข้ามาจากนอกระเบียง ผ่านกระจกใสเต็มบาน ทอดยาวมาถึงห้องนั่งเล่นได้เต็มที่
ส่วนของห้องนั่งเล่นมีขนาดค่อนข้างกว้างขวาง สามารถติดตั้งชั้นวางทีวี และวางโซฟาขนาดใหญ่พร้อมโต๊ะกลางได้แบบสบาย ๆ โดยที่ยังมีพื้นที่ใช้สอยเหลืออยู่เยอะ ซึ่งทางโครงการจะติดตั้งระบบสำหรับ Digital TV และเครื่องปรับอากาศเอาไว้ให้เรียบร้อย เราจึงเลือกวางทีวีกับชั้นวางของเพิ่มเติมได้ทันที หรือจะบิลต์อินเป็นตู้เก็บของพร้อมติดทีวีแขวนผนังไว้ภายใน ก็ประหยัดพื้นที่ห้องได้เป็นอย่างดี
ถัดจากโซนนั่งเล่นไปจะเป็น ‘ห้องครัว’ ที่ปิดกั้นด้วยประตูกระจกบานสไลด์ ซึ่งจะช่วยป้องกันควัน และกลิ่นอาหารอันไม่พึงประสงค์ไม่ให้เข้ามารบกวนภายในพื้นที่พักผ่อนได้
พื้นที่ใช้สอยภายในห้องครัวจะมีขนาดกว้างขวาง สามารถวางชุดโต๊ะบาร์สำหรับ 2 ที่นั่งคู่กับเคาน์เตอร์ทำครัว เพื่อใช้เป็นมุมนั่งทานข้าวภายในตัวได้สบาย ๆ
- ส่วนบริเวณผนังทางด้านบน ก็จะสามารถติดตั้งชั้นวางของ เพื่อใช้เพิ่มพื้นที่จัดเก็บอุปกรณ์ทำครัว และอาหารแห้งได้ด้วย
สำหรับเคาน์เตอร์ครัวในห้องตัวอย่าง ทางโครงการจะจัดวางไว้เป็นแนวทางการตกแต่ง และแสดงถึงขนาดของพื้นที่ครัวให้ชัดเจนมากขึ้น โดยเคาน์เตอร์จริงที่ทางโครงการให้นั้นจะมีลักษณะเป็นชุดครัวบิลต์อินครบชุดจากแบรนด์ SB Furniture มีเคาน์เตอร์ด้านล่างพร้อมช่องใส่ไมโครเวฟ และตู้แบบแขวนผนังสำหรับใช้จัดเก็บอุปกรณ์ครัว อยู่ด้านบน
ส่วนเครื่องใช้ไฟฟ้าที่โครงการ PORCH Condominium ให้มาด้วยนั้นก็ค่อนข้างครบครันทั้ง เครื่องดูดควันระบบหมุนเวียน พร้อมเตาไฟฟ้าขนาด 2 หัวยี่ห้อ MEX ,อ่างล้างจาน และก๊อกน้ำสเตนเลสอย่างดี โดยด้านในสุดติดกับเคาน์เตอร์ครัว จะเว้นพื้นที่ไว้สำหรับใช้วางตู้เย็นขนาดใหญ่
ออกมายังส่วนของระเบียงจะมีพื้นที่สำหรับวางเครื่องซักผ้า พร้อมระบบน้ำ และรางระบาย พร้อม Floor Drain เอาไว้ให้เรียบร้อย เราจึงหมดกังวลเรื่องน้ำไหลเปื้อนทั่วระเบียง นอกจากนี้พื้นที่ระเบียงของห้อง Type AE ยังมีขนาดที่กว้างพอให้วางราวตากผ้า หรือถ้าใครอยากประหยัดพื้นที่ ก็สามารถติดตั้งราวแบบแขวนผนังแทนได้
กลับเข้ามาสำรวจกันต่อที่ ‘ห้องนอน’ พื้นที่ส่วนตัวขนาดใหญ่ ซึ่งเราสามารถวางเตียงนอน 5-6 ฟุตได้เหลือเฟือ โดยที่ยังมีพื้นที่รอบเตียงให้เดินไปมาได้สะดวก และยังมีพื้นที่พอให้วางโต๊ะทำงานตรงบริเวณปลายเตียงเพิ่มได้อีกด้วย
สำหรับห้องนอนของห้อง Type AE ทางโครงการจะติดตั้งเครื่องปรับอากาศมาให้ 1 เครื่อง พร้อมด้วยตู้เสื้อผ้าขนาด 130x60x230 เซนติเมตร ซึ่งมีขนาดใหญ่เกือบเต็มความสูงห้อง และเรายังสามารถเพิ่มราวแขวน หรือจัดระเบียบตู้เสื้อผ้าได้ด้วยกล่องเก็บของเพิ่มเติม โดยตู้เสื้อผ้าที่เห็นในห้องตัวอย่างจะเป็นเพียงแนวทางการตกแต่งห้องเท่านั้น
- สำหรับใครที่อยากมีพื้นที่สำหรับจัดเก็บเพิ่มเติม ไว้จัดระเบียบของใช้ ของสะสมก็สามารถติดตั้งชั้นวางแบบแขวนผนังเพิ่มเติมได้
ในส่วนของห้องน้ำ Type AE จะแตกต่างจาก Type ZZ เล็กน้อย โดยบริเวณด้านข้างโถสุขภัณฑ์ จะมีช่องว่างสำหรับบิวต์ชั้นวางของเพิ่มเติม สามารถวางได้ทั้งอุปกรณ์ทำความสะอาดห้องน้ำ, เครื่องสำอาง, วางเทียนหอม หรือจะใช้วางไม้ประดับ เพื่อเพิ่มความสดชื่นก็สามารถทำได้สบาย
- โถสุขภัณฑ์ที่ทางโครงการติดตั้งให้ จะมาจากแบรนด์ TOTO พร้อมเพิ่มความสะดวกสบายให้กับชีวิตทันสมัย ด้วยฝารองนั่ง และก้านฉีดชำระอัตโนมัติ (Washlet) เพื่อการใช้งานที่ง่าย และสะดวกมากยิ่งขึ้น
นอกจากนี้ยังมีราวแขวนผ้าขนหนูจากแบรนด์ Hafele อยู่ตรงบริเวณด้านข้างอ่างล้างหน้า ก่อนจะเดินเข้าไปยังส่วนของ Shower Box ที่ทางโครงการ PORCH Condominium ได้ติดตั้งฝักบัวอาบน้ำจาก Hafele ให้ทั้งแบบ Rain Shower และ Hand Shower โดยชุดฝักบัวที่ได้จะเป็นรูปแบบเดียวกันกับห้อง Type ZZ
สำหรับกลอนประตูที่โครงการ PORCH Condominium ใช้จะเป็น Digital Door Lock จากแบรนด์ COLT ที่ทำงานได้ 2 ระบบ ทั้งการใส่รหัส, เปิด-ปิดด้วยคีย์การ์ด
Location
โครงการ PORCH Condominium ตั้งอยู่บนถนนแจ้งวัฒนะฝั่งขาเข้าเมือง หรือฝั่งถนนแจ้งวัฒนะมุ่งหน้าไปทางหลักสี่ ซึ่งเราสามารถเดินทางเชื่อมต่อไปยังถนนวิภาวดี-รังสิต, ถนนรามอินทรา และถนนพหลโยธินได้สะดวกสบาย ทั้งยังอยู่ใกล้กับทางพิเศษอุดรรัถยาและทางยกระดับอุตราภิมุข ที่จะช่วยย่นระยะเวลาในการเดินทางเข้าเมืองให้รวดเร็วมากยิ่งขึ้น
ในอนาคตบริเวณหน้าซอยแจ้งวัฒนะ 12 ซึ่งเป็นที่ตั้งของโครงการ กำลังจะมีรถไฟฟ้าสายสีชมพู ตัดผ่าน โดยมีสถานีแจ้งวัฒนะ 14 เป็นสถานีที่ใกล้ที่สุด พร้อมเป็นตัวช่วยที่จะพาเราไปเชื่อมต่อกับเส้นทางอื่น ๆ อย่าง รถไฟฟ้าสายสีม่วง (เตาปูน – บางบัวทอง), รถไฟฟ้าสายสีแดง (บางซื่อ – รังสิต) และรถไฟฟ้าสายสีเขียว (สะพานใหม่ – คูคต) ทำให้การเดินทางและการใช้ชีวิตในโซนแจ้งวัฒนะมีความสะดวกสบายเพิ่มมากขึ้นเป็นอย่างมาก
นอกจากนี้ ถนนเส้นแจ้งวัฒนะ ยังเป็นที่ตั้งของสถานที่สำคัญ อย่าง สถานที่ราชการ, รัฐวิสาหกิจ และอาคารสำนักงานมากมาย ทำให้บริการขนส่งมวลชนอย่างรถเมล์, รถตู้, รถสองแถว, วินมอเตอร์ไซค์ ในย่านแจ้งวัฒนะแห่งนี้มีความครบครัน สามารถเลือกใช้บริการได้มากมาย หลากหลายเส้นทาง ไม่ว่าจะเข้าหรือออกใจกลางเมืองก็สะดวกสบาย ประหยัดเวลาและค่าใช้จ่ายมากทีเดียว
ด้วยความครบครันต่าง ๆ เหล่านี้ จึงทำให้ ‘แจ้งวัฒนะ’ กลายเป็นทำเลที่เหมาะทั้งการซื้อเพื่ออยู่อาศัยเอง และการลงทุนเพื่อปล่อยเช่า เนื่องจากทำเลโดยรอบยังมีศักยภาพในการเติบโตได้อีกมาก
เส้นแจ้งวัฒนะที่รายล้อมไปด้วยสถานที่สำคัญและแหล่งไลฟ์สไตล์มากมาย
นอกจาก ‘การเดินทาง’ จะมีตัวเลือกมากมายแล้ว บริเวณโดยรอบของโครงการก็ยังรายล้อมไปด้วยสถานที่สำคัญต่าง ๆ อีกหลายแห่งด้วย
‘แหล่งงาน’ ทั้งสถานที่ราชการ, รัฐวิสาหกิจ และอาคารสำนักงานชั้นนำ
ตลอดความยาวของถนนเส้นแจ้งวัฒนะ จะแบ่งออกเป็นช่วงของจังหวัดนนทบุรีและกรุงเทพฯ ด้วยลักษณะของพื้นที่ที่เชื่อมติดกับเขตเมือง จึงทำให้มีภาคธุรกิจ และองค์กรสำคัญ ๆ กระจายตัวเข้ามาสู่พื้นที่บริเวณโดยรอบของถนนแจ้งวัฒนะ ทั้งสถานที่ราชการและรัฐวิสาหกิจ อาทิ การประปาส่วนภูมิภาค, กรมทหารราบ 11, ทีโอทีสำนักงานใหญ่, ไปรษณีย์ไทย และศูนย์ราชการฯ แจ้งวัฒนะ ซึ่งดูแล้วก็ไม่ต่างจากเขตเศรษฐกิจของกรุงเทพฯ ชั้นในมากนัก
นอกจากนี้ก็ยังมีตึกอาคารสำนักงานชั้นนำ ทั้งจัสมิน อินเตอร์เนชั่นแนล ทาวเวอร์, อาคารซอฟต์แวร์ปาร์ค และอาคารสำนักงานอื่น ๆ ที่ตั้งอยู่ภายในเมืองทองอีกมากมาย ถือได้ว่า… ถนนแจ้งวัฒนะเป็นแหล่งงานที่สำคัญอีกแห่งหนึ่งของกรุงเทพมหานครเลยก็ว่าได้
โดยจะมี ศูนย์ราชการฯ แจ้งวัฒนะ เป็นอาคารที่อยู่ใกล้กับโครงการ PORCH Condominium มากที่สุด เพียงแค่ข้ามฝั่งไปประมาณ 500 เมตรเท่านั้น และนอกจากจะเป็นสถานที่ทำงานขององค์กร และหน่วยงานสำคัญต่าง ๆ แล้ว ที่บริเวณชั้น 5 อาคาร B ก็ยังมี ‘Sky Running’ ลู่วิ่งในร่มสำหรับคนที่อยากหาพื้นที่วิ่งออกกำลังกาย ซึ่งจะเปิดให้บริการทุกวัน ตั้งแต่เวลา 6.00-22.00 น. โดยไม่มีค่าใช้จ่าย ไม่ว่าจะเลือกวิ่งตอนเช้าก่อนออกไปทำงาน หรือกลับมาฟิตร่างกายในช่วงเย็น ก็สามารถเลือกเวลาสะดวกของคุณได้เลย
- วิ่งออกกำลังเสร็จแล้ว หากอยากพักทานอาหาร, ดื่มเครื่องดื่มเติมความสดชื่น หรือหาซื้อของติดไม้ติดมือกลับห้อง ภายในอาคาร B ก็ยังมีตลาดนัด, ร้านอาหาร, ร้านค้า, คาเฟ่ และร้านสะดวกซื้อ เปิดให้บริการอยู่ด้วยเช่นกัน
ทำเลที่อุ่นใจ อยู่ใกล้ ‘สถานพยาบาล’
นอกจากนี้เรายังปลอดภัย และอุ่นใจได้ทุกเมื่อ เพราะโครงการ PORCH Condominium ตั้งอยู่ในซอยที่เชื่อมต่อกับโรงพยาบาลมงกุฎวัฒนะ สามารถเดินถึงได้ในระยะทางเพียง 100 เมตรเท่านั้น หากเกิดเจ็บป่วยขึ้นมา ทางโรงพยาบาลก็มีแผนกต่าง ๆ พร้อมด้วยแพทย์เฉพาะทางทุกสาขา ไว้คอยให้บริการอยู่ตลอด 24 ชม.
‘ไลฟ์สไตล์ชั้นนำ’ เข้าถึงได้ ใกล้เพียง 600 เมตร
หากใครชื่นชอบการชอปปิง กิน เที่ยว บริเวณโดยรอบโครงการ PORCH Condominium จะรายล้อมไปด้วยห้างสรรพสินค้าชั้นนำ, คอมมูนิตี มอลล์ รวมไปถึงตลาดนัดโต้รุ่งอีกหลากหลาย จึงมั่นใจได้เลยว่า… คุณจะได้รับทั้งความสนุก, ความอร่อย และความบันเทิงอย่างครบครัน แถมอยู่ใกล้เพียงแค่เอื้อมมือ
เริ่มจาก The Avenue ที่ใกล้กับตัวโครงการ PORCH Condominium เพียง 600 เมตร คอมมูนิตีมอลล์หนึ่งเดียวที่ติดถนนแจ้งวัฒนะ พร้อมด้วยไลฟ์สไตล์ความบันเทิงที่ตอบสนองผู้คนได้อย่างครบครัน ไม่ว่าจะเป็นร้านค้า, ร้านอาหาร หรือแม้แต่โรงภาพยนตร์ Major Cineplex
เปิดให้บริการทุกวัน ตั้งแต่เวลา 10:00-22:00 น.
ขยับเข้ามาสำรวจภายในเมืองทองธานีกันบ้าง นอกจากย่านเมืองทองจะเต็มไปด้วยแหล่งที่อยู่อาศัย, อาคารสำนักงาน, ฮอลล์จัดแสดง และศูนย์การประชุมแล้ว ภายในเมืองทองก็ยังมี Community mall, ห้างสรรพสินค้า และตลาดนัดขนาดใหญ่คอยเปิดให้บริการตอบโจทย์ความต้องการของชุมชนในย่านนี้ด้วย
เริ่มต้นกันที่ BEEHIVE Lifestyle Mall ที่ครบครันด้วยร้านค้าหลากหลายสไตล์, ร้านอาหารนานาชาติ และซูเปอร์มาร์เก็ตขนาดใหญ่ ทั้งยังมีสถานที่ออกกำลังกาย พร้อมร้านค้าวัตถุดิบออร์แกนิกเพื่อสุขภาพ, ร้านอาหารหลากหลายเชื้อชาติ ที่มีความแปลกใหม่และหลากหลาย, สถานบริการเพื่อความงาม รวมไปถึงร้านขายหนังสือให้เลือกสรร
อีกทั้งยังมีรถบริการรับ-ส่งฟรีทั้งหมด 9 จุด อยู่ภายในเมืองทองธานี เรียกว่า สะดวกง่ายดายสำหรับผู้ที่อยากเดินชอป เดินเที่ยวตามสถานที่ต่าง ๆ ในเมืองทองธานี ไม่ว่าจะเป็น Impact Challenger, Cosmo Bazaar, Outlet Square และอื่น ๆ อีกมากมาย
เปิดให้บริการทุกวัน ตั้งแต่เวลา 10:00-22:00 น.
ต่อกันที่ Cosmo Bazaar แหล่งชอปปิงแห่งใหม่ใจกลางเมืองทองธานี ที่มีทั้งร้านค้าอุปกรณ์ไอที, ร้านเกมส์, ร้านค้า และร้านอาหารชื่อดังต่าง ๆ มากมาย รวมถึงศูนย์รวมความบันเทิงสำหรับทุกคนที่มาเยือน ไม่ว่าจะเป็น....
- Hero City ศูนย์รวมเครื่องเล่นเกมส์สุดล้ำ ที่ทันสมัยที่สุดในประเทศไทย
- โรงภาพยนตร์ SF Cinema
- MaxValu ซูเปอร์มาร์เก็ตสาขาที่ใหญ่ที่สุดในประเทศไทย บนพื้นที่กว่า 3,000 ตารางเมตร
- Jetts 24 Hour Fitness สถานที่ออกกำลังกายแนวใหม่ ที่เปิดให้บริการตลอด 24 ชั่วโมง
เปิดให้บริการทุกวัน ตั้งแต่เวลา 10:00-22:00 น.
และถ้าคุณกำลังตามหาไลฟ์สไตล์สบาย ๆ ยามเย็น ตลาดนัดมะลิ ก็เป็นอีกหนึ่งแลนด์มาร์กภายในเมืองทองธานีที่ไม่ควรพลาด โดยที่นี่จะมีให้เลือกทั้งร้านอาหาร Street Food และร้านนั่งชิลล์สำหรับจิบเครื่องดื่ม รวมไปถึงมีเสื้อผ้าแฟชัน และเครื่องประดับต่าง ๆ มากมายให้เดินเลือก เดินชอปสินค้ากันแบบจุใจอีกด้วย
เปิดให้บริการทุกวัน ตั้งแต่เวลา 17:00-23:00 น.
สำหรับศูนย์การค้าขนาดใหญ่บนถนนแจ้งวัฒนะ ที่รวบรวมไลฟ์สไตล์ไว้หลากหลาย ก็ต้องยกให้กับ Central Plaza Chaengwattana ที่ด้านในได้รวบรวมความบันเทิงสำหรับช่วงเวลาพักผ่อนเอาไว้มากมาย ไม่ว่าจะเป็นโรงภาพยนตร์ชั้นนำอย่าง SF X Cinema, Sound Check ห้องคาราโอเกะสำหรับเวลาผ่อนคลายหลังเลิกงาน, Fun Planet เกมส์เซ็นเตอร์สำหรับทุกเพศทุกวัย
นอกจากนี้ก็ยังมีร้านค้าทั้งเสื้อผ้า เครื่องประดับแฟชัน, ข้าวของเครื่องใช้ภายในบ้านต่างๆ, บริการด้านธุรกรรม, สถานเสริมความงาม, ร้านอาหาร และซูเปอร์มาร์เก็ต ฯลฯ
รวมไปถึงมุม Co-Working Space พร้อม Wi-Fi ฟรี ให้นั่งอ่านหนังสือ ทำงานชิลล์ ๆ อีกด้วย
ตามหาวัตถุดิบ และของใช้ส่วนตัวได้ง่าย ๆ ใกล้ ‘ห้างสรรพสินค้า’ ชั้นนำ
Big C Supercenter ห้างสรรพสินค้าที่ใกล้โครงการ PORCH Condominium มากที่สุด สามารถเดินถึงได้ภายในระยะเวลาเพียง 3 นาที จึงช่วยให้การซื้อหาวัตดุดิบทั้งของสด และของแห้งนั้นเป็นไปอย่างสะดวกสบาย นอกจากนี้ก็ยังมีบริการด้านธุรกรรม และร้านอาหารไว้ให้เราฝากท้องกันในยามเร่งรีบอีกด้วย
ใกล้ ๆ กับโครงการ PORCH Condominium จะมีศูนย์การค้าส่ง Makro ที่จำหน่ายสินค้าคุณภาพ ราคาถูก ไว้เป็นทางเลือกสำหรับการเลือกซื้ออาหารแห้ง และของใช้ส่วนตัวต่าง ๆ อีกทางหนึ่งด้วย
สำหรับผู้ที่สนใจ สามารถลงทะเบียนได้ที่ https://porchcondo.com/Register
พิเศษ! สำหรับลูกค้าที่จองซื้อตั้งแต่วันที่
24 เม.ย. 62 - 30 มิ.ย. 62
รับ iPhone XS 64GB
มูลค่าประมาณ 39,900 บาท จำนวน 1 เครื่อง
ติดต่อสอบถามเพิ่มเติม โทร. 02-575-1177
พอร์ช คอนโดมิเนียม
5cc28cb03cb6d0934039b18a
20005072































































