[Review] พลัมคอนโด รามคำแหง สเตชั่น (Plum Condo Ramkamhang Station)
ถนนรามคำแหง แขวงสวนหลวง เขตสวนหลวง กรุงเทพมหานคร

พลัมคอนโด รามคำแหง สเตชั่น (Plum Condo Ramkamhang Station)
พลัมคอนโด รามคำแหง สเตชั่น (Plum Condo Ramkamhang Station) คอนโด High Rise 33 ชั้น จำนวน 1,003 ยูนิต ใกล้ Airport Rial Link รามคำแหง ที่เดินทางเพียง 1 สถานีถึงอโศก และ 5 สถานีถึงทองหล่อ “เชื่อมชีวิต ติดไลฟ์สไตล์ง่าย” แม้บริเวณใกล้เคียงจะไม่ได้มีแหล่งช้อปปิ้งมากมายเท่ากับโครงการอื่นๆ แต่การคมนาคมของ พลัมคอนโด รามคำแหง สเตชั่น กลับตอบโจทย์ให้คนที่อยู่อาศัยในพื้นที่ได้เป็นอย่างดี เพียง 250 เมตรก็สามารถเชื่อมต่อ Airport Rial Link รามคำแหง ได้ไม่ยาก ในส่วนของห้อง มีทั้งหมด 4 แบบ โดยเริ่มตั้งแต่ 22.5 – 46 ตร.ม. ราคาเริ่มต้นที่ 1.85 ล้านบาท
Location
Location Plum Condo Ramkamhang Station
สถานที่ตั้งของตัวโครงการ พลัมคอนโด รามคำแหง สเตชั่น อยู่ในทำเลที่ดีของย่านรามคำแหง ตั้งอยู่บนถนนรามคำแหงฝั่งขาเข้า ติดซอยรามคำแหง 2 เขตสวนหลวง สิ่งที่โดดเด่นที่สุดก็คืออยู่ห่างจากสถานีรถไฟฟ้าแอร์พอร์ตเรลลิ้งค์ รามคำแหง เพียง 250 เมตร สามารถเดินเท้าไปถึงได้โดยง่าย สามารถเดินทางมาได้ทั้งจากถนนเส้นเพชรบุรี - พัฒนาการ และจากฝั่งนอกเมืองอย่างถนนศรีนครินทร์ ใกล้ทางด่วนพิเศษสองสาย คือ ทางด่วนพิเศษรามอินทรา - อาจณรงค์ และทางด่วนพิเศษศรีรัช
สภาพแวดล้อมรายล้อมด้วยความอุดมสมบูรณ์ทุกรูปแบบ ตั้งแต่ทรัพยากรด้านอาหารการกินไปจนถึงสิ่งอำนวยความสะดวกอื่น ๆ เช่น โรงพยาบาล สถานศึกษา สถานีตำรวจ หรือแม้แต่ห้างสรรพสินค้า สะดวกทั้งการเดินทางและการใช้ชีวิตอยู่ แถมจะเดินทางเข้าหรือออกจากเมืองก็เป็นไปได้อย่างไม่ลำบาก ย่านรามคำแหงยังสามารถเชื่อมต่อไปถึงโซนพระราม 9 อโศก เอกมัย ทองหล่อ ได้โดยง่าย สามารถเรียกได้ว่าเป็นทำเลที่รายล้อมไปด้วยความสะดวกสบายทุกรูปแบบครบครัน
สถานที่สำคัญใกล้ตัวโครงการ โครงการ พลัมคอนโด รามคำแหง สเตชั่น
- Nasa Street ศูนย์การค้าขนาดย่อม ติดกับสถานีรถไฟฟ้าแอร์พอร์ตลิ้งค์รามคำแหง , 250 ม.
- Major Cineplex รามคำแหง
- รพ.คามิลเลียน : 2.7 กม.
- อาคารที่ทำการการไฟฟ้านครหลวง เขตบางกะปิ 200 ม.
- ม.รามคำแหง : 2 กม.
- ม.อัสสัมชัน วิทยาเขตหัวหมาก : 3 กม.
- The Mall รามคำแหง : 1.4 กม.
- Food Land รามคำแหง : 1 กม.
วิธีการเดินทางไป พลัมคอนโด รามคำแหง สเตชั่น
วิธีการเดินทางที่สะดวกที่สุดก็คือเดินทางมาจากถนนรามคำแหง ซึ่งสามารถเลือกมาได้หลากเส้นทาง ทั้งจากถนนเพชรบุรีและถนนศรีนครินทร์
จากจุดเริ่มต้นถนนรามคำแหง ให้มุ่งหน้าตรงไปยังแยกรามคำแหง
ตัวโครงการจะอยู่ถนนฝั่งขวามือ จุดสังเกตคือป้ายบอกชื่อ โครงการ พลัมคอนโด รามคำแหง สเตชั่น เป็นสีส้มสด
กลับรถไปยังฝั่งตรงข้ามเพื่อไปยังโครงการ พลัมคอนโด รามคำแหง สเตชั่น
Sale Gallery กับที่ตั้งจริงของโครงการจะอยู่ติดกัน ซึ่งด้านหน้าเป็นส่วนของ Sale Gallery มีพื้นที่จอดรถที่กว้างขวาง
รู้จักวิธีการเดินทางมายังโครงการ พลัมคอนโด รามคำแหง สเตชั่น กันแล้ว ลองมาดูการเดินทางจากโครงการไปยังสถานที่สำคัญๆ กัน โดยเริ่มจาก Airport Link สถานีรามคำแหง สำหรับสถานที่แรกที่แนะนำสำหรับคนชอบไปเที่ยวหรือช้อปปิ้งในย่านดัง คือการนั่งจากสถานี Airport Link สถานีรามคำแหง ไปยังสถานี Airport Link มักกะสัน ซึ่งอยู่เชื่อมต่อกับสถานี MRT เพชรบุรี หากต้องการไปเซนทรัล พระราม 9 ก็สามารถนั่ง MRT เพชรบุรี มาลงสถานนีนี้พระราม 9 เพียงสถานีเดียวเท่านั้น ในกรณี
Location environment
เจาะลึกสภาพแวดล้อมโครงการ
สิ่งแรกที่พบหลังจากออกจากที่ตั้งโครงการ พลัมคอนโด รามคำแหง สเตชั่น ก็คือป้ายรถเมล์ ซึ่งป้ายรถเมล์ส่วนใหญ่จะมีแผงลอยขายอาหารตั้งอยู่บ้าง แต่น่าเสียดายที่ป้ายนี้ดูจะเงียบเหงาไปหน่อย ยังดีที่มีรถเมล์วิ่งเกือบทั้งคืน
เราจะมองเห็นเซเว่นอีเลฟเว่นอยู่ฝั่งตรงข้าม เป็นสาขาที่ใกล้ที่สุด
สภาพการจราจรที่ย่านรามคำแหงโดยทั่วไปแล้วมีลักษณะที่ไม่ค่อยคล่องตัวมากนัก และเป็นแบบนี้ไปแทบจะตลอดวัน แต่ก็ไม่ได้ถึงกับติดแน่นไม่ไปไหนเลย สำหรับผู้เช่าอาศัยและคนที่มีธุระต้องผ่านหรือย่านนี้อาจจำเป็นต้องวางแผนการเดินทางให้รอบคอบยิ่งขึ้น
รถแท็กซี่มีให้บริการค่อนข้างหนาแน่น วิ่งตลอดวันเช่นกัน สามารถเรียกใช้บริการได้ไม่ยาก
เราจะเห็นร้านสะดวกซื้อ เซเว่น อีเลฟเว่นอยู่ฝั่งตรงข้าม
ทิวทัศน์เมื่อมองจากสะพานลอยหน้าโครงการ พลัมคอนโด รามคำแหง สเตชั่น ลงไปยังถนนรามคำแหงฝั่งมุ่งหน้าไปแยกรามคำแหง เราจะเห้นที่ทำการของการไฟฟ้าครหลวงเขตบางกะปิ สำหรับผู้ที่เลือกอาศัยในย่านทำเลนี้คงหมดห่วงเรื่องปัญหาเรื่องพลังงานไฟฟ้าในครัวเรือน
รถเมล์เมื่อมองจากบนสะพานลอย
ทิวทิศน์เมื่อมองจากสะพานลอยไปยังสถานีรามคำแหง
เมื่อมองไปยังถนนฝั่งมุ่งหน้าไปแยกรามคำแหง
สะพานลอยมีไฟโคมที่คอยให้แสงสว่างตอนกลางคืนสม่ำเสมออยู่ทุกจุด หมดกังวลเรื่องความปลอดภัย
เดินถัดมาเราจะพบโชว์รูมและศูนย์บริการลูกค้า Volvo แบบครบวงจร
มุ่งหน้าต่อไปยังแยกถนนรามคำแหง - กำแพงเพชร เราจะพบกับอาคารโรงแรม Nasa Vegas โรงแรมนี้มีร้านกาแฟที่เปิด 24 ชั่วโมง เป็นที่นิยมสำหรับนักท่องเที่ยวเพราะอยู่ใกล้ airport link แต่การตั้งอยู่ใกล้เกินไปก็ทำให้มีข้อเสียที่เลี่ยงไม่ได้ด้านมลภาวะทางเสียง

ห่างออกจากตัวโครงการ พลัมคอนโด รามคำแหง สเตชั่น เป็นระยะทางโดยประมาณ 250 เมตร เราจะพบกับ Nasa Street ศูนย์การค้าขนาดย่อม ที่เป็นตัวเชื่อมระหว่างทางเท้ากับสถานี airport link รามคำแหง เปิดให้บริการตั้งแต่เวลา 10.00 น. - 20.00 น
จุดสังเกตที่โดดเด่นก็คือร้าน star bucks สาขาใหญ่ ที่มีคนเข้ามาใช้บริการตลอดวัน
ด้านหน้าโครงการยังเป็นจุดจอดรับของรถเมล์ที่วิ่งประจำสายอีกด้วย
ทิวทัศน์เมื่อมองจากโครงการออกไปยังถนน ฝั่งตรงข้ามก็คือโรงแรม Nasa Vegas แขกที่มาพักเมื่อตื่นเช้าแล้วก็สามารถเดินข้าม Sky Walk มารับประทานอาหารเช้าแกล้มกาแฟที่ Starbucks ได้ทันที หรือจะเดินเชื่อมไปยัง airport link ต่อก็ยังถือว่าสะดวกสบาย
Nasa Street ยังเป็นจุดเชื่อมต่อระหว่างทางเท้าไปยังสถานีรถไฟฟ้าแอร์พอร์ตลิ้งค์รามคำแหงอีกด้วย
โครงเหล็กที่นำมาหุ้มเสาภายใน Nasa Street ตกแต่งแนวสถานีรถไฟโบราณ
บรรยากาศภายใน Nasa Street ที่ไม่ไกลจากตัวโครงการ พลัมคอนโด รามคำแหง สเตชั่น มากนัก ระยะเดินเพียง 250 เมตรเท่านั้น
นอกจากนี้ยังเป็นป้ายจอดรถไฟสถานีรามคำแหงอีกด้วย
ภายในตัว Nasa Street มีพื้นที่โล่งกว้างขวาง เหมาะสำหรับจัดกิจกรรมทางการตลาด และยังช่วยให้บรรยากาศดูโปร่ง สบาย
ด้วยความเป็นสถานีรถไฟ Nasa Street เล่น Gimmick การตกแต่งและการใช้ประโยชน์ไปพร้อมกันด้วยการนำม้านั่งรถไฟที่เราคุ้นเคยมาจัดตั้งไว้
จากที่ปรากฏ Nasa Street เป็นศูนย์การค้าที่มีผู้คนค่อนข้างเบาบาง แต่ก็ไม่เงียบเหงาเพราะมีผู้สัญจรผ่านเข้ามาใช้บริการตลอดเวลาจาก Airport Link ร้านรวงมีให้เลือกสรรไม่มาก แต่ก็ไม่ขาดแคลน
Subway ร้านขายแซนด์วิชชื่อดังสไตล์ NewYork อยู่ติดกับบันไดเลื่อนชั้น G
ร้านสะดวกซื้อ เซเว่นอีเลฟเว่น
บรรยากาศร้านแผงลอยด้านหน้า เป็นอีกแหล่งช้อปปิ้งหนึ่งที่ผู้อาศัยโครงการ พลัมคอนโด รามคำแหง สเตชั่น จะสามารถเดินมาละลายทรัพย์ได้
ตู้ ATM ธนาคารไทยพานิชย์และกรุงไทยมีให้บริการอยู่ที่ชั้น G
ด้วยการเป็นศูนย์การค้า พื้นที่ด้านหน้าบริเวณลานกว้างถูกใช้เป็นพื้นที่ค้าขายแผงลอยสำหรับสินค้าประเภทกิ๊ฟท์ช็อปและเครื่องแต่งกายที่ขายตลอดวัน
เมื่อขึ้นมายังชั้นที่สูงขึ้น จะสังเกตได้ว่างภายใน Nasa Street มีพื้นที่กว้างขวางยิ่งนัก แต่ยังไม่มีเจ้าของธุรกิจหรือผู้ประกอบการเข้ามาลงทุนเลย
ส่วนเชื่อมต่อรถไฟฟ้า Airport Link ที่อยู่ติดกับ Nasa Street
ตู้บริการขายเหรียญโดยสาร
ร้านค้าที่เปิดให้บริการรายย่อยภายในอาคารชั้นสอง
ร้านฝั่งซ้าย Bob’s hair salon ร้านทำผมที่ดังในเรื่องการตัดทรงบ็อบและทรงวินเทจ ส่วนขวามือเป็น Shubagker ร้านขายกระเป๋าและผลิตภัณฑ์ประเภทเครื่องหนัง
เราจะพบม้านั่งลักษณะที่เห็นด้านล่างอยู่ทั่วทุกชั้นของ Nasa Street
KoShabu ร้านอาหารบุฟเฟ่ต์ชาบู สำหรับสายกินและชอบสังสรรด้วยราคาไม่แพงนัก
Foodyard เป็น Foodcourt ของศูนย์การค้านี้ ตั้งอยู่ชั้นบนสุด มีอาหารนานาชนิดให้เลือกสรร
ลักษณะของ Foodyard ชั้นบนสุด มีอาหารให้เลือกหลากชนิด
Rent a Coat ร้านสำหรับเช่าเสื้อกันหนาว และเสื้อโค้ทสำหรับการใช้สวมใส่ในประเทศที่หนาวเหน็บ
ป้ายโฆษณาพื้นที่ออฟฟิศให้เช่าภายใน Nasa Street
นอกจากนั้นยังมีท่าเรือรามหนึ่งอยู่ถัดออกไปจากสถานีในระยะที่สามารถเดินไปได้ เรียกได้ว่าสะดวกสบายทุกวิธีการเดินทาง
ถัดจากสถานีเราจะพบอาคาร UM Tower เป็นอาคารออฟฟิศที่มีชั้นล่างเป็นธนาคารอิสลามแห่งประเทศไทย
และที่หน้าอาคารยังเป็นตู้ ATM 24 ชั่วโมงของทั้งธนาคารไทยพานิชย์ กสิกร และบัวหลวงอีกด้วย
โดยรวมแล้วนี่อาจเป็นหนึ่งในโซนที่สะดวกต่อการเดินทางที่สุดในย่านรามคำแหง และยิ่งอยู่ใกล้กับสถานีแอร์พอร์ตลิ้งค์ ยิ่งทำให้ดึงดูดทรัพยากรด้านต่าง ๆ ทั้งร้านค้าและสิ่งอำนวยความสะดวกอื่น ๆ เข้ามาในละแวกใกล้เคียง เส้นรามคำแหงเป็นถนนที่ค่อนข้างมีการจราจรที่แน่นหนาตลอดทั้งวัน ผู้สัญจรผ่านจึงอาจต้องพิจารณาแผนการเดินทางให้ถี่ถ้วนก่อนออกเดินทาง
Project Insight
เจาะลึกลักษณะอาคาร
โครงการ Plum Condo รามคำแหงสเตชั่น เป็นคอนโด High Rise หนึ่งอาคาร สูง 33 ชั้น จำนวนยูนิตทั้งสิ้น 1,003 ยูนิตเนื่้อที่ 5-1-64.3 ไร่ ตัวอาคารหันหน้าออกถนนรามคำแหง สำหรับพื้นที่ในการจอดรถคิดเป็น 46 % รวมซ้อนคัน สระว่ายน้ำ 30x5 เมตร ลึก 1.2 เมตร เป็นแบบระบบเกลือ
สิ่งที่โครงการมีให้ >> สปริงเกอร์/ Smoke detector /wallpaper / ชุดครัว / แอร์ / ลิฟต์แบบล็อกชั้น โดยใช้ Key gard / มี CCTV ทุกชั้น พร้อมทั้งมีรปภ.ดูแลความปลอดภัย 24 ชม.
1st_Floor
ผังอาคารชั้น 1 - 5 จะเป็นพื้นที่ส่วนของลานจอดรถ ผังอาคารชั้นหนึ่งมีลานจอดรถล้อมรอบตัวอาคาร และมีสวนหย่อมขนาดเล็กอยู่ที่บริเวณทิศตะวันออกเฉียงเหนือของตัวอาคาร
6th_Floor
ผังอาคารชั้น 6 จะเป็นพื้นที่ส่วนกลางของตัวอาคาร มีลิฟท์ที่สามารถเข้ามาถึงในส่วนนี้ได้จากทั้งสองฝั่งตัวอาคาร พื้นที่ส่วนกลางของตัวอาคารประกอบไปด้วยสระว่ายน้ำยาว 30 เมตร และที่พิเศษคือนอกจากห้องฟิตเนสมาตรฐาน ยังมีห้่องออกกำลังกายเฉพาะทางที่แยกตามประเภทกีฬาอย่างห้องตีปิงปอง ห้องชกมวย ห้องโยคะ แลกห้องซาวน่า และยังมีบริเวณห้องซักรีดและเครื่องซักผ้าหยอดเหรียญให้ลูกบ้านได้เข้ามาใช้บริการอีกด้วย
7-32nd_Floor
ถัดไปเป็นชั้น 7 - 32 จะเป็นส่วนของห้องพักอาศัยทั้งหมด แตละชั้นจะมีจำนวนยูนิตรวมทั้งสิ้น 38 ยูนิต ผังอาคารส่วนทิศตตะวันออกเฉียงเหนือจะเป็นบริเวณที่ตั้งของห้องขนาด 26 ตารางเมตร ในปีกอาคารฝั่งตรงข้ามก็จะเป็นที่ตั้งของห้องขนาดเล็กเช่นกันคือ 22.5 ตารางเมตร ส่วนห้องขนาดกลางและขนาดใหญ่ที่สุดจะอยู่บริเวณใกล้ลิฟท์ทั้งสองฝั่ง ซึ่งการมีลิฟท์ทั้งสองฝั่งปีกอาคารทำให้การเดินเท้าภายในชั้นของลูกบ้านไม่ยากลำบากนัก และทำให้ลูกบ้านห้องอื่นไม่ต้องเดินเพ่นพ่านผ่านในบริเวณอาคารที่ไม่ได้อยู่ในละแวกห้องตัวเอง
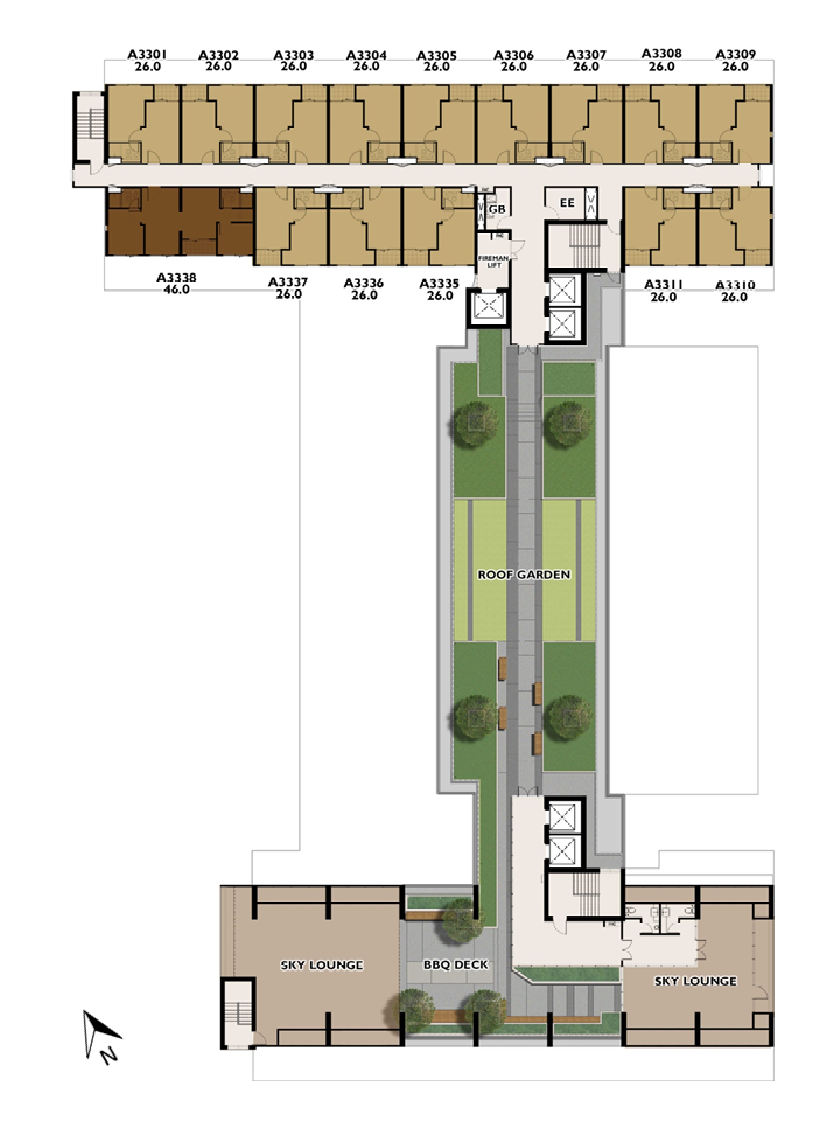
33th_Floor
อาคารชั้น 33 เป็นส่วนของสวนหย่อมลอยฟ้า พื้นที่อาคารบริเวณช่วงทิศตะวันออกเฉียงเหนือเป็นลักษณะเดิม คือเป็นส่วนของห้องพักขนาด 26 และ 46 ตารางเมตร ส่วนปีกฝั่งทิศใต้ลงมาจะเป็นส่วนของสวนลอยฟ้าและ Sky Lounge สองจุดที่ทิศตะวันตกเฉียงใต้และทิศตะวันออก โดยมีจำนวนยูนิตทั้งสิ้น 15 ยูนิต
Showroom
showroom
สำหรับ Showroom หรือ sale gallery ของโครงการ Plum Condo Ramkamhang Station คือสีส้มสด เราจะสังเกตเห็นได้ตั้งแต่ป้าย Sale Gallery
บอลลูนสีส้มเป็นอีกจุดเด่นหนึ่งที่สังเกตเห็นได้จากระยะไกล
บรรยากาศภายใน Sale Gallery ตกแต่งด้วยสีโทนสว่าง ขาวสลับกับเขียวใบเตย
ทำให้แสงสว่างในรอบบริเวณเพียงพอและดูโปร่งสบาย
เราจะเห็นแบบจำลองโครงการตั้งอยู่ในบริเวณนั้น
ลักษณะอาคารเป็นอาคารเดี่ยวสูง 33 ชั้น ฝั่งหนึ่งของอาคารติดกันกับรางรถไฟฟ้าแอร์พอร์ตลิ้งค์
ความโดดเด่นที่โครงการชูมาเป็นจุดขายอยู่ที่สถานีรถไฟฟ้าแอร์พอร์ตลิ้งค์ที่ิอยู่ละแวกใกล้เคียงสถานีถึงขั้นเดินไปถึงได้ไม่ยาก
จากแผนที่จะสังเกตเห็นสถานที่สำคัญใกล้เคียงได้แก่ Big C รางรถไฟฟ้าแอร์พอร์ตลิ้งค์ และถนนรามคำแหง เราจะเห็นได้ว่าสามารถเดินทางไปหาเส้นรถไฟฟ้า BTS สายสุขุมวิทได้ไม่ยาก
แบบจำลองตัวอาคาร ใช้สีของผิวนอกอาคารเป็นสีน้ำตาล เข้ากันได้ดีกับสีเขียวจากสวนลอยฟ้า และสีส้มสดจากสัญลักษณ์ของตัวโครงการ สำหรับลักษณะห้องมีด้วยกัน 4 แบบ คือ 1 Bedroom 3 แบบ และ 2 Bedroom 1 แบบ ตัวโครงการขายแบบ Fully Fitted และ Fully Furnished โดยทางโครงการได้มอบชุดครัว , สุขภัณฑ์ครบชุด และวอลเปเปอร์มาให้ 1 Bedroom 22.50 ตร.ม. เป็นห้องแบบเดียวที่มีการตกแต่งแบบ Fully Furnished ให้ ส่วนห้อง 1 Bedroom ขนาด 26 ตร.ม. และ 2 Bedroom 46 ตร.ม. แบบห้อง combined จะเป็นห้องแบบ Fully Fitted
ห้องตัวอย่าง 1 Bedroom 22 ตร.ม.
IMG_6678
ห้องขนาด 22 ตร.ม. เป็นลักษณะห้องที่มีจำนวนยูนิตสูงเป็นอันดับสองรองจากห้อง 26 ตร.ม. เหมาะกับการอยู่อาศัยที่ไม่เกินสองคน ตัวห้องนอนแยกส่วนจากบริเวณที่พักอาศัยที่เป็นโซนรับแขกด้วย Partition กระจกใส มีพื้นที่ว่างอยู่บริเวณฝั่งขวาของตัว Partition เพียงพอสำหรับตั้งโต๊ะทำงานหรือเป็น Workspace ขนาดเล็กได้ ห้องมีบรรยากาศโปร่งสบายจากฝ้าเพดานความสูง 2.55 เมตร ซึ่งมากกว่าขนาดมาตรฐานอยู่เล็กน้อยประตูเข้าห้องแบบก้านโยก ธรณียกสูง 2 ซม. เต้าเสียบปลั๊กไฟมีทั้งหมด 4 จุด คือ หลังทีวี โต๊ะทำงาน ข้างหัวเตียง และตรงเคาน์เตอร์ครัวสวิตซ์ไฟมี 5 จุด คือทางเข้าห้องรับแขก ตรงห้องนอน ทางออกระเบียง ทางเข้าห้องนำ ห้องครัว
IMG6776
ทางด้านซ้ายมือของ Partition กระจกใส จะเป็นบริเวณสำหรับการประกอบและรับประทานอาหาร ความกว้างของห้องเพียงพอต่อจำนวนผู้อยู่อาศัยไม่เกิน 2 คน ตู้เสื้อผ้าฝั่งปลายเตียงมีขนาด110 * 255 ซม.

ลักษณะห้องเมื่อมองจากหน้าประตูไปยัง Partition ห้องนอน หากลดขนาดโซฟา เราจะได้พื้นที่เพิ่มสำหรับส่วนของ Workspace สำหรับใครที่ต้องการพื้นที่ในการทำงานที่มากกว่าเดิม โซฟาขนาดที่เหมาะสมกับบริเวณอยู่ที่ 145 * 75 ซม.

ลักษณะของห้องนอนหลังบานกั้น Partition เหมาะสมที่สุดกับเตียงขนาด 5 ฟุต ฝั่งซ้ายมือของเตียงจะเป็นหน้าต่างบานเลื่อนขนาดใหญ่พร้อมราวแขวนผ้าม่านใต้ตำแหน่งของเครื่องปรับอากาศ
IMG_6683
มุมมองจากฝั่งปลายเตียง
IMG_6684
หากต้องการพื้นที่ของห้องเพิ่มมากขึ้นกว่าเดิม เราสามารถลดขนาดเตียงลงเพื่อเพิ่มที่ใช้สอยภายในห้องนอนได้ อาจเลือกใช้เตียง 4 ฟุตสำหรับนอนคนเดียวแทน

ห้องนอนและบริเวณสำหรับรับแขกที่ถูกแบ่งครึ่งโดย Partition กระจกใส ขนาดของโต๊ะทำงานที่เหมาะสมอยู่ที่ 88*55 ซม.

ระยะห่างจากโซฟาถึงทีวีอยู่ที 180 เซนติเมตร หากติดตั้งทีวีขนาด 32 นิ้ว ขึ้นไปจะเป็นขนาดที่พอดีกับสัดส่วนและทำให้การรับชมมีความสบายตามากขึ้น
IMG6778
เมื่อมองจากโซฟาไปยังผนังห้องฝั่งทีวี พื้นที่หน้าชั้นวางทีวีกว้างขวางพอจะวางโต๊ะตัวเล็กได้

ห้องครัวที่อยู่ติดกับห้องน้ำจะมีข้อเสียเรื่องกลิ่นรบกวนได้ ถัดมาเป็นพื้นที่สำหรับใช้รับประทานอาหารขนาดเล็ก ช่องไมโครเวฟมีขนาด 38*58 ซม.
IMG_6690
พื้นที่สำหรับรับประทานอาหารค่อนข้างมีเนื้อที่น้อย เมื่อวางตู้เย็นลงแล้วจะสังเกตได้ว่าแทบจะเปิดประตูตู้เย็นโดยไม่ชนเก้าอี้ไม่ได้เลย พื้นที่ว่างสำหรับวางตู้เย็นเหมาะสมสำหรับตู้เย็นขนาด 95*70 ซม
พื้นที่สำหรับรับประทานอาหาร เป็นมุมเล็ก ๆ ที่ใช้ผนังส่วนกั้นห้องนอนกับบริเวณครัวมาตั้งโต๊ะตัวเล็ก ๆ เรียกได้ว่าพอมีที่สำหรับทานอาหารอยู่บ้าง แต่ก็จะไม่ใช่บริเวณที่ใช้งานได้อย่างสะดวกสบายและมีประสิทธิภาพนัก
IMG_6694
พื้นที่ระเบียงของห้อง ทางโครงการได้ติดสติ๊กเกอร์จำลองรูปเครื่องซักผ้าและคอนดิชั่นแอร์แบบแขวนบนเพื่อให้ผู้เข้าชมห้องตัวอย่างจำลองภาพในหัวได้ แต่ก็เมื่อติดตั้งทั้งสองอย่างลงบนระเบียงจริง ๆ แล้ว ภาพที่ออกมาก็จะมีพื้นที่ระเบียงที่คับแคบลงในระดับหนึ่งเลยทีเดียว ธรณีประตูไปยังระเบียงสูง 12 ซม. ระเบียงสูง 110 ซม. กว้าง 1.45*1ม.

มุมมองจากระเบียงเมื่อมองกลับเข้าไปยังห้อง ระเบียงห้องสูง 2.80 ม.

มุมมองจากห้องครัวเมื่อมองออกไปยังบริเวณห้องน้ำและห้องรับแขก จะสังเกตได้ว่าบริเวณห้องครัวมีความสว่างที่ไม่มากเท่ากับห้องรับแขก แต่ก็อาจจะช่วยในเรื่องบรรยากาศการรับประทานอาหาร แต่เราสามารถติดตั้งหลอดไฟเพิ่มความสว่าง หรือหาโคมตั้งพื้นมาตั้งเพื่อเพิ่มแสงสว่างและสร้างบรรยากาศไปในตัวได้

บริเวณสำหรับรับประทานอาหาร ทางโครงการได้จัดวางจานจำลองไว้ให้เพื่อให้ผู้เข้าชมห้องตัวอย่างได้เห็นถึงมิติโดยรวมของขนาดโต๊ะอาหารเวลาใช้งานจริง โต๊ะอาหารตัวนี้มีขนาด 75*75 ซม.

บริเวณ Pantry ครัว ในห้องตัวอย่างไม่ได้มีการติดตั้งเตาไฟฟ้าหรืออุปกรณ์ดูดควันไว้ให้ แต่ทางโครงการจะแถมให้ในห้องจริง อ่างล้างจานยี่ห้อ HAFELE ขนาด40*27ซม. top ครัวสูง 125 * 60 ซม.
IMG_6699
ห้องน้ำขนาดมาตรฐาน พื้นและผนังปูด้วยกระเบื้องกัน สุขภัณฑ์ครบชุดของทางโครงการ เพดานห้องน้ำสูง 2.3 เมตร กระจกห้องน้ำกว้าง 130 ซม. ความสูงจรดเพดาน ธรณีประตูห้องน้ำสูง 15 ซม. ธรณีโซนเปียกสูง 5 ซม. เคาน์เตอร์ที่ยื่นมีขนาด 20 ซม. กระเบื้องห้องน้ำมีขนาด 30*30 ซม.
IMG_6700
ฝักบัวพื้นที่บริเวณโซนเปียก ทางโครงการไม่ได้ติดตั้งกระจกนิรภัยกั้นน้ำ หรือราวแขวนผ้ากันน้ำมาให้ในห้องตัวอย่าง
IMG_6701
มุมมองจากฝั่งฝักบัว เมื่อมองไปยังบริเวณโซนแห้ง

โดยรวมแล้ววางแปลนห้องได้ค่อนข้างเป็นสัดส่วนชัดเจน แต่พื้นที่ใช้สอยบริเวณโซนรับประทานอาหารมีน้อยไปหน่อย อาจจะไม่เหมาะสมกับผู้เช่าอาศัยที่ชื่นชอบในการประกอบอาหารทานเองนัก
IMG_6703
ลักษณะของห้องครัวและโซนรับประทานอาหาร เมื่อมองออกมาจากห้องน้ำ
ห้องตัวอย่าง 1 Bedroom 26 ตร.ม.
IMG_6590
Type นี้มีจำนวนห้องนอนเท่าเดิม แต่จะได้พื้นที่เพิ่มในบริเวณห้องรับแขก ห้องครัว และบริเวณรับประทานอาหารเต้าเสียบปลั๊กไฟมีทั้งหมด 4 จุด คือ หลังทีวี โต๊ะทำงาน ข้างโต๊ะอาหาร และตรงเคาน์เตอร์ครัว และข้างหัวเตียง สวิตซ์ไฟมี 5 จุด คือทางเข้าห้องรับแขก ตรงห้องนอน ทางออกระเบียง ทางเข้าห้องนำ ห้องครัว
IMG_6592
บรรยากาศห้องเมื่อมองจากห้องครัวออกไปยังประตูหน้า จะมีลักษณะเป็นโถงยาว พื้นที่ใช้สอยส่วนนี้เอื้อให้สามารถประยุกต์ปรับเปลี่ยนได้หลากหลายตามความประสงค์ของเจ้าของห้อง
IMG_6595
บริเวณฝั่งซ้ายมือของประตูห้อง ทางโครงการได้ตกแต่งให้เป็นมุมสำหรับดูทีวี มีการกรุกระจกด้านหลังเพื่อเพิ่มมิติโปร่งให้กับห้อง และยังปูด้วยพรมขนาดใหญ่เพื่อเพิ่มบรรยากาศให้ดูพักผ่อนสบายมากขึ้น

เคาน์เตอร์วางโทรทัศน์ฝั่งตรงข้ามโซฟา บริเวณผนังฝั่งนี้จะเหมาะสมที่สุดกับโทรทัศน์ขนาด 32 นิ้ว พื้นที่จากโซฟาไปยังเคาน์เตอร์

ลึกเข้าไปด้านหลังผนังฝั่งหน้าโทรทัศน์ จะเป็นที่ตั้งของห้องนอนและห้องน้ำในห้องนอน

ลักษณะของห้องเมื่อมองจากมั่งโซฟาหน้าโทรทัศน์ เราจะเห็นความแตกต่างระหว่างสอง Type นี้คือตรงที่จะสลับที่กันระหว่างบริเวณห้องครัวและห้องนอน และห้องนอนใช้การแบ่งสัดส่วนแบบผนังทึบ ไม่ใช่เป็น Partition กระจกใส

และจะย้ายพื้นที่ Workspace ไปไว้ในห้องนอน ทำให้เราได้พื้นที่เพิ่มบริเวณโถงระหว่างห้องรับแขกกับห้องครัว
IMG_6617
พื้นที่รับประทานอาหารที่กว้างขวางขึ้น แต่เมื่อใช้งานจริง ๆ อาจต้องลดขนาดแจกันลง
IMG_6597
ส่วน Pantry ครัวยังมีขนาดเท่าเดิม เหมาะกับการประกอบอาหารที่ไม่ต้องใช้พื้นที่มาก มื้ออาหารเล็ก ๆ อาจไม่เหมาะสมกับการจัดปาร์ตี้กับเพื่อน ๆ

ลักษณะของเคาน์เตอร์ด้านหน้าตรง Top ครัว มีขนาด 120*60 ซม

ลักษณะของระเบียง ขนาดความกว้างระเบียงสูง 110 ม. กว้าง 175*100 ซม.

พื้นที่รับประทานอาหารที่มีขนาดและลักษณะที่ใช้งานได้สะดวกขึ้นมากกว่าห้อง Type ที่ 1 เราจะเห็นว่าสามารถตั้งโต๊ะที่มีขนาดใหญ่ขึ้นและสามารถนั่งหันหน้าเข้าหากันได้แล้ว
IMG_6601
ห้องต่อมาเป็นห้องนอนที่อยู่โซนชั้นใน มีลักษณะค่อนข้างกว้างขวาง เพียงพอกับการใช้งาน และยังมีพื้นที่ เพียงพอสำหรับวาง workspace เล็ก ๆ อยู่ที่ฝั่งขวาของเตียงนอน

ห้องนอนเหมาะสมพอดีที่สุดกับเตียงขนาด 5 ฟุต ด้านหลังของเตียง ทางห้องตัวอย่างได้ติดตั้งกระจกเงา สะท้อนผนังฝั่งปลายเตียง ทำให้ห้องดูไม่ทึบมากจนเกินไป

ลักษณะของ workspace เมื่อมองจากฝั่งปลายเตียง
IMG_6606
Workspace ที่อยู่ฝั่งขวามือของเตียง หากใครต้องการขยายพื้นที่ส่วนนี้ อาจต้องปรับเปลี่ยนขนาดเตียงให้เล็กลงเพื่อเพิ่มขนาดของโต๊ะหรือพื้นที่ใช้สอยอื่นตามต้องการ

ลักษณะของห้องน้ำในห้องนอน เมื่อมองจากฝั่งปลายเตียงออกไป ข้อดีของการมีห้องน้ำในห้องนอนก็คือจะเพิ่มความสะดวกสบายในการออกไปเข้าถึงห้องน้ำของเจ้าของห้อง แต่สำหรับแขกอาจไม่สะดวกและไม่เป็นส่วนตัวนัก ตู้เสื้อผ้าที่เห็นมีขนาด 120*255 ซม.

โดยรวมแล้วห้องนอนของ Type นี้จะมีความคุ้มค่ากว่าห้อง Type 22 Sqm. ค่อนข้างมาก ด้วยปริมาณพื้นที่ใช้สอยที่ได้และการวางแปลนห้องที่ค่อนข้างน่าพอใจ ปัญหาอย่างเดียวที่มีน่าจะเป็นห้องน้ำที่ไม่ได้แยกออกจากตัวห้องนอน แขกที่จ้องการมา

ลักษณะของห้องนอนเมื่อมองออกไปจากฝั่งหน้าต่างข้างเตียงนอน

ผนังปลายเตียงเหมาะสมสำหรับโทรทัศน์แบบแขวนขนาด 19 นิ้ว ทางฝั่งขวาจะสังเกตได้ว่าเป็นชั้นวางของเล็ก ๆ เราสามารถประยุกต์ทำเป็นชั้นหนังสือหรือหาตู้มาตั้ง ก็จะเพิ่มพื้นที่ในการจัดเก็บของได้ดี

เราสามารถประยุกต์ทำเป็นชั้นหนังสือหรือหาตู้มาตั้ง ก็จะเพิ่มพื้นที่ในการจัดเก็บของได้ดี

พื้นที่รวมจริง ๆ ของห้องนอนอยู่ที่ … ตรม. ทางห้องตัวอย่างติดตั้งกระจกบานใหญ่เอาไว้ทำให้ดูกว้างขวางและไม่ทึบตันจนเกินไป

ตำแหน่งของเครื่องปรับอากาศติดแบบหันขนานเตียง ซึ่งส่งผลดีกับสุขภาพเจ้าของห้องมากกว่าติดแบบตรงหัวเตียงและท้ายเตียง

มาต่อกันที่ห้องน้ำของ Type นี้ มีลักษณะโดยรวมเหมือน Type 22Sqm. ไม่ผิดเพี้ยน สุขภัณฑ์ครบชุด ประกอบไปด้วยโถสุขภัณฑ์ อ่างล้างมือ และฝักบัวแบบ Hand Shower แต่เราจะไม่มีอุปกรณ์สำหรับกั้นโซนเปียกโซนแห้ง ผู้เช่าอาศัยอาจต้องหาอุปกรณ์อบ่างราวแขนผ้าหรือกระจกนิรภัยมาติดตั้งเอาเอง
IMG_6609
มุมมองจากโซนเปียกมองออกไปยังผนังฝั่งตรงข้าม เราจะเห็นราวแขวนผ้าเช็ดตัวติดตั้งอยู่ในโซนแห้ง ซึ่งเป็นสิ่งที่ไม่ควรทำ แต่ผู้เช่าอาศัยก็สามารถหาราวแขวนผ้าเช็ดตัวมาติดตั้งเองได้ที่ฝั่งเดียวกับโซนฝักบัว

ลักษณะของห้องน้ำฝั่งที่เป็นโซนสำหรับอาบน้ำ

โดยรวมแล้ว ห้อง Type นี้มีความคุ้มค่าเหมาะสมมากกว่า Type 22 Sqm. มีพื้นที่ใช้สอยที่มากขึ้น เป็นตัวเลือกที่น่าสนใจสำหรับคนที่กำลังเลือกหาห้องแบบ 1 Bedroom เรียกได้ว่าอยู่กันสองคนกำลังสบาย
ห้องตัวอย่าง Combined ขนาด 46 ตร.ม.

ห้องสุดท้ายเป็นห้องแบบ Combine มีพื้นที่ใช้สอย 46 ตร.ม. มีสองห้องนอน สองห้องน้ำ เหมาะสำหรับครอบครัว พ่อแม่ลูกอยู่กัน 3 - 4 คนกำลังสบาย หน้ากว้างใหญ่ มีห้องนอนอยู่บริเวณมุมทั้งหมด เต้าเสียบปลั๊กไฟมีทั้งหมด 9 จุด คือ หลังทีวี โต๊ะทำงาน ข้างโต๊ะอาหาร และตรงเคาน์เตอร์ครัวหลังทีวีห้องนอนห้องเล็ก ตู้เก็บของ ระเบียง ข้างหัวเตียงห้องนอนใหญ่ และข้างหัวเตียงห้องนอนเล็ก สวิตซ์ไฟมี 6 จุด คือทางเข้าห้องรับแขก ตรงห้องนอนใหญ่ ห้องน้ำในห้องนอนใหญ่ ทางออก

เมื่อเดินเข้าประตูห้องมาสิ่งที่จะเห็นสิ่งแรกคือพื้นที่สำหรับรับประทานอาหารขนาดเหมาะเจาะ สามารถรับประทานอาหารด้วยกันทั้งครอบครัวได้สบาย และห้องแบบ Combine ยังโดดเด่นด้วยพื้นที่ประกอบอาหารขนาดใหญ่ขึ้น โต๊ะอาหาร 120*80 สามารถนั่งได้ 4 ที่นั่ง
IMG_6624
พื้นที่ห้องรับแขกกว้างขวางขึ้นมากและติดกับหน้าต่างบานใหญ่สุดขอบผนัง เพิ่มความผ่อนคลายและโปร่งสบายให้กับห้องทั้งห้องเป็นอย่างมาก มุมโทรทัศน์นี้สามารถประยุกต์ทำเป็นโฮมเธียเตอร์ได้ด้วยการติดตั้งเครื่องเสียงและเพิ่มขนาดของจอโทรทัศน์ให้ใหญ่ขึ้น

หน้ากว้างสำหรับผนังวางโซฟามีขนาดค่อนข้างกว้าง เมื่อวางโซฟาแล้ว ระยะห่างระหว่างโซฟากับโทรทัศน์อยู่ที่...เบื้องหน้าโซฟาสามารถวางโต๊ะกาแฟขนาดกลางได้โดยยังเหลือพื้นที่มากมาย

เครื่องปรับอากาศติดอยู่เหนือหน้าต่างฝั่งซ้ายของโทรทัศน์ สังเกตได้ว่าบริเวณดูโทรทัศน์ถูกออกแบบมาให้เป็นสัดส่วนของพื้นที่ปิด ซึ่งจะช่วยเพิ่มสมาธิจดจ่อกับกิจกรรมได้ดีขึ้น น่าจะเป็นมุมโปรดของใครหลายคนได้ไม่ยาก เหมาะสมสำหรับโทรทัศน์ขนาด 45 นิ้ว

โถงบริเวณหน้าประตูห้องเชื่อมต่อกันระหว่างพื้นที่รับประทานอาหารและบริเวณสำหรับวางโทรทัศน์
IMG_6630
ลักษณะของโถงเหมาะแก่การรับแขกเป็นที่สุด ถ้าไปนอกเหนือจากนี้ก็จะเป็นห้องครัวและห้องนอนของเจ้าบ้าน

พื้นที่รับประทานอาหารเพียงพอต่อการตั้งโต๊ะเก้าอี้สำหรับสี่คนได้สบาย

สำหรับในมุมนี้ หากครอบครัวไหนต้องการเพิ่มพื้นที่รับประทานอาหาร ก็สามารถย้ายเข้าไปตั้งในห้องครัวได้แบบครัวสไตล์ตะวันตกที่มีบริเวณรับประทานอาหารอยู่ร่วมกับบริเวณประกอบอาหาร โดยแยกอิสระออกจากห้องนั่งเล่น

ถัดจากโถงรับแขกตามแปลนห้องฝั่งซ้ายจะเป็นบริเวณของห้องครัวที่ค่อนข้างกว้างขวาง เหมาะแก่การประกอบอาหารทุกรูปแบบ ทุกช่วงปริมาณ

ลักษณะโดยรวมของห้องครัว มีพื้นที่ใช้สอยพอเพียงกว้างขวางสำหรับห้องคอนโดมิเนียม เอื้อต่อการประกอบอาหารได้ทุกรูปแบบ

แต่ Workspace ของห้อง Type นี้จะอยู่บริเวณเดียวกันกับห้องครัว ซึ่งจริง ๆ แล้วเป็นวิธีการวางแปลนที่ไม่เหมาะสมถูกต้องนัก แต่สำหรับคนที่ชอบกินไปทำงานไปก็อาจจะเข้ากันได้ดีกับรูปแบบการใช้ชีวิต

ลักษณะของ Workspace ฝั่งซ้ายมือติดกับ workspace จะเป็นระเบียง ขนาดความกว้างของระเบียงคือ 240*100 ซม. กับห้อง Type อื่น ๆ โต๊ะทำงาน 110*40 ซม.
IMG_6639
ผนังฝั่ง workspace เหลือพื้นที่ใช้สอยมากพอสมควร เหมาะสมกับการประยุกต์ปรับเปลี่ยนเป็นมุมอื่น ๆ ตามความต้องการของเจ้าของห้องได้

สภาพโดยรวมพื้นที่บริเวณผนังฝั่งที่กั้นระหว่างห้องครัว + workspace กับห้องรับแขกฝั่งตรงข้ามโทรทัศน์

หากเจ้าของห้องที่ไม่นิยมนำงานกลับมาทำจริงจังที่บ้าน หรือต้องการใช้ workspace ที่มีบริเวณเฉพาะเจาะจง ก็สามารถปรับเปลี่ยนห้องครัวให้เป็นห้องครัว + ห้องรับประทานอาหารแบบครัวตะวันตกได้

ลักษณะของเคาน์เตอร์ครัว พร้อมเตาไฟฟ้าจำนวนสองหัว และเครื่องดูดควันแบบหมุนเวียนในอาคาร สังเกตได้ว่าผนังฝั่งซ้ายมือจะเหลือพื้นที่ให้เราเก็บอุปกรณ์เครื่องใช้ได้

มุมมองจากห้องครัวเมื่อมองไปยังห้องนอนขนาดเล็ก

ห้องนอนเล็กฝั่งติดกับห้องครัว เหมาะสมจะทำเป็นห้องเด็ก หรือห้องนอนแยก เพียงพอเหมาะสมกับเตียงขนาดเล็ก 3.5 ฟุต

ฝั่งซ้ายของเตียงนอนจะติดกับหน้าต่างบานเลื่อน จึงต้องดูทิศทางแดดของแปลนห้องดี ๆ เพื่อหลีกเลี่ยงแสงรบกวนในยามเช้า ฝั่งขวาของเตียงนอนติดกับตู้เสื้อผ้า

ฝั่งปลายเตียงนอนเช่นเดียวกันกับห้องนอน Type อื่น ๆ คือจะเหลือพื้นที่สำหรับจัดเก็บของค่อนข้างมาก เหมาะสมกับการทำชั้นวางของหรือชั้นหนังสือขนาดย่อม

ลักษณะของผนังฝั่งปลายเตียงเมื่อมองจากหัวเตียง เราจะเห็นพื้นที่ใช้สอยทั้งหมดของผนังได้

มุมมองจากฝั่งห้องนอนเล็ก เมื่อมองทะลุไปยังโถงของทุกห้องที่เหลือ

ลักษณะของห้องน้ำข้างห้องนอนเล็ก ประกอบไปด้วยโถสุขภัณฑ์ขนาดมาตรฐาน อ่างล้างมือ และฝักบัวมือ

พื้นที่บริเวณโซนเปียกแยกออกจากโซนแห้งโดยมีธรณีกันน้ำให้ แต่ไม่มีกระจกนิรภัยหรือราวแขวนม่านพลาสติกกันน้ำ

ลักษณะของโซนเปียก ทางโครงการได้มอบทื่วางสบู่มาให้ติดกับฝักบัว แต่ก็อาจไม่เพียงพอกับการใช้งานจริง ผู้เช่าอาศัยต้องหาชั้นวางเสริมมาเพื่อวางเครื่องเวชสำอางค์ส่วนตัวเพิ่มเติมเอาเอง

กลับมาที่โถงรับแขก ส่วนต่อไปที่จะพูดถึงก็คือห้องนอน Master Bedroom ที่อยู่ติดกับบริเวณรับประทานอาหาร

ตามแปลนห้อง ห้อง master bedroom จะอยู่ติดกับห้องรับแขก ถัดไปทางซ้ายมือของโซนดูโทรทัศน์

ผนังฝั่งซ้ายมือของประตูทางเข้าห้องจะเป็นบริเวณเล็ก ๆ ทำหรับชั้นวางของ ส่วนมากจะเป็นของประดับตกแต่งจำพวกกรอบรูปหรือจองแต่งห้อง

มุมมองจากฝั่งในห้องนอนเมื่อมองออกมุมแทยงออกไปยังบริเวณห้องรับแขก ปลายเตียงไม่มีตู้วางขวางสามารถเดินได้สบายเพราะกว้าง 45 ซม.

ห้องนอน Master Bedroom มีขนาดค่อนข้างใหญ่ เหมาะสำหรับเตียงขนาด 5 ฟุต ฝั่งซ้ายของเตียงจะติดกับตู้เสื้อผ้า และเป็นห้องน้ำในห้องนอนใหญ่
IMG_6658
ฝั่งขวาของเตียงจะติดกับหน้าต่างบานเลื่อน อยู่เหนือหน้าต่างจะเป็นเครื่ิองปรับอากาศที่ทางโครงการได้มอบให้

ฝั่งปลายเตียงจะเหมาะสมกับโทรทัศน์แบบแขวน 32 นิ้ว หากใครที่ไม่ชอบการดูโทรทัศน์จากเตียงก็สามารถเปลี่ยนผนังนี้ให้เป็นกรอบรูปหรือวิธีการตกแต่งผนังแบบอื่นได้
IMG_6663
ฝั่งหัวเตียง ทางโครงการได้ติดตั้งกระจกเงาเอาไว้เพื่อสะท้อนให้ห้องดูโปร่งสบายขึ้น

เตียงนอนขนาด 6 ฟุต เหมาะสมกับการนอนสองถึงสามคน

มุมมองจากฝั่งข้างเตียงมองออกไปยังห้องน้ำ

ห้องน้ำในห้องนอนเป็นลักษณะเดียวกันกับห้องน้ำของห้อง Type อื่น ๆ ของทางโครงการนี้ ประกอบไปด้วยโถสุขภัณฑ์ขนาดมาตรฐาน อ่างล้างมือ และฝักบัวมือในโซนเปียก
Project analysis
โครงการ Plum Condo รามคำแหง สเตชั่น
ทำเล : โครงการตั้งอยู่บนหนึ่งในทำเลที่ดีที่สุดในย่านรามคำแหง อยู่ใกล้กับรถไฟฟ้า Airport Link สถานีรามคำแหง ที่เชื่อมไปยังย่านพลุกพล่านอย่างพญาไท และยังสามารถเชื่อมต่อไปยังท่าอากาศยานสุวรรณภูมิได้ในระยะเวลาเพียง 25 นาที
สภาพแวดล้อม : แม้ว่า Plum Condo Ramkamhang Station ไม่ได้ตั้งอยู่ใจกลางย่านเศรษฐกิจของรามคำแหง แต่ระยะทางการเดินทางในการเชื่อมต่อสถานที่สำคัญต่างๆ นั้นค่อนข้างสะดวกสบายไม่น้อย อีกทั้งยังมีแหล่งให้ช้อปปิ้งอย่าง Nasa Street แม่ว่าจะไม่ได้ใหญ่โตเท่าไหร่นักแต่ก็นับว่าเป็นแหล่งพักผ่อนชั้นดีอีกที่หนึ่ง นอกจากนี้สภาพแวดล้อมใกล้ๆ กับโครงการสิ่งที่จะสามารถเห็นได้คือชาวมุสลิมที่อยู่อาศัยอย่างหนาแน่นอีกย่านหนึ่ง นอกจากนี้ยังมีชาวต่างชาติที่มาพักอาศัยค่อนข้างเยอะ สังเกตได้จาก Nasa Street ซึ่งจะมีชาวต่างชาติเข้ามาใช้บริการนั่งตามร้านกาแฟและร้านอาหารเป็นจำนวนมาก
แบบห้อง : มีให้เลือกทั้งแบบ 1 bedroom และแบบ 2 bedroom (Combined) ขนาดของห้องมี 4 ขนาดคือ 1 Bedroom ขนาด 22.50 ตร.ม.,26 ตร.ม, 39 ตร.ม. และ 49 ตร.ม. (Combined) ซึ่งห้องขนาด 29 ตร.ม.นั้นเป็นห้องแบบ 1 Bed Plus โดยมีห้องเอนกประสงค์ 1 ห้อง ส่วนห้อง Combined นั้นมี 2 ห้องนอน 2 ห้องน้ำ พื้นที่การใช้สอยจะกว้างกว่า 2 เท่าและเป็นสัดส่วนกว่าห้องอื่นๆ จากรูปแบบและขนาดของห้องพักของโครงการ พลัมคอนโด รามคำแหง สเตชั่น ถือว่าครอบคลุมความต้องการของกลุ่มผู้ต้องการที่อาศัยในระดับหนึ่ง ไม่ว่าจะป็นคนโสดวัยทำงาน คนมีคู่ หรือคนที่อยู่กันเป็นครอบครัวใหญ่
ราคา : สำหรับราคาของโครงการ พลัมคอนโด รามคำแหง สเตชั่น เริ่มต้นที่ 1.85 ล้านบาท ราคา ณ 31 มี.ค.60 ราคาเฉลี่ยต่อตารางเมตร 86,000 บาท เมื่อพิจารณาจากทำเลที่สามารถเชื่อมต่อไปยังสถานที่สำคัญๆ อย่างพญาไท เพชรบุรี ด้วย Airport Link สถานีรามคำแหง ถือว่าราคาของโครงการค่อนข้างคุ้มค่าและน่าสนใจ
สิ่งอำนวยความสะดวก : Plum Condo Ramkamhang Station มีสิ่งอำนวยความสะดวกสบายให้กับผู้าศย ตั้งแต่ชั้น G ทีมี Front Garden เป็นส่วนที่ไว้สำหรับพักผ่อน, Deck Lobby , Living Loungeห้องรับรองขนาดใหญ่พร้อมกับโซนนั่งเล่นอ่านหนังสือ, Mail Box ชั้น 6 เป็น สระว่ายน้ำ ขนาด 30x5 เมตร ระบบเกลือ, ฟิตเนสริมสระว่ายน้ำ, ห้องต่อยมวย, ห้องเล่นปิงปองที่สามารถเล่นได้ในยามว่าง, ซาวน่า, ห้องโยคะ, สวน และชั้นที่ 33 ได้แก่ สวนลอยฟ้าที่ให้ได้ชมวิวสวยจากตัวอาคารด้านบน, BBQ Deck ที่สามารถชวนเพื่อนมาปาร์ตี้รับลมสบายๆ ที่ชั้นบนสุดของอาคาร และ Sky Lounge สำหรับนั่งชมความงามจากแสงไฟในยามค่ำคืน
สรุป : ตัวโครงการมีความสะดวกสบายทัั้งการเดินทางและสิ่งอำนวยความสะดวกทุกรูปแบบโดยเฉพาะกับระบบขนส่งมวลชนอย่างแอร์พอร์ตลิ้งค์และเรือด่วนคลองแสนแสบ ถือว่า Plum Condo รามคำแหง station ถือเป็นทำเลที่น่าสนใจมากสำหรับคนที่มองหาที่อยู่ย่านรามคำแหง
พลัม คอนโด รามคำแหง สเตชั่น
58f6dcee719b2bc4ff135850
plum-condo-ramkamhang-station-พลัม-คอนโด-รามคำแหง-สเตชั่น

Location Plum Condo Ramkamhang Station





























































































