[Review] ชีวาทัย เพชรเกษม 27 (Chewathai Phetkasem 27) คอนโด High rise ย่านบางแค เดินทางง่าย ใกล้รถไฟฟ้า BTS สถานีบางหว้า
ถนนเพชรเกษม แขวงบางหว้า เขตภาษีเจริญ กรุงเทพมหานคร
Chewathai PLC (ชีวาทัย)

Review info
ฝั่งธนบุรี เดี๋ยวนี้ก็บูมไม่ใช่น้อยในเรื่องของอสังหาริมทรัพย์ เนื่อจากฝั่งธนบุรีเริ่มมีความเจริญเข้าถึง มีการก่อสร้างรถไฟฟ้าส่วนต่อขยายหลายสายด้วยกัน ทำให้มีศักยภาพที่สามารถรองรับการเจริญเติบโตของเมืองได้มากขึ้น ชีวาทัย เพชรเกษม 27 (Chewathai Phetkasem 27) เองก็เป็นหนึ่งในโครงการคอนโดมิเนียมที่คว้าเอาพื้นที่ใกล้กับรถไฟฟ้าสถานีบางหว้าเอาไว้ได้ แต่ถึงจะเป็นคอนโดใกล้รถไฟฟ้า แต่ราคาก็ไม่ได้แรงอย่างที่คิด เนื่องจากกลุ่มเป้าหมายเป็นคนในพื้นที่ทั้งนักเรียน นักศึกษา และอาจารย์ ของมหาวิทยาลัยสยาม ซึ่งก็เป็นผลดีต่อนักลงทุนที่อยากได้คอนโดราคาเบาๆ แต่มีศักยภาพพัฒนาที่สูงพอจะทำกำไรให้ได้เป็นกอบเป็นกำ
ด้วยความน่าสนใจทั้งหมดที่กล่าวมา ในวันนี้เราจึงไม่รอช้า ไปทำการรีวิวคอนโด ชีวาทัย เพชรเกษม 27 (Chewathai Phetkasem 27) มาฝากกัน ซึ่งรายละเอียดจะเป็นอย่างไรติดตามชมได้ในรีวิวฉบับนี้เลย
ข้อมูลโครงการ ชีวาทัย เพชรเกษม 27 (Chewathai Phetkasem 27)
ราคาเมื่อวันที่ 23/02/2017
studio พื้นที่ใช้สอย 24 ตร.ม. ราคาเริ่มต้นที่ 2.2 ล้านบาท
1 Bedroom พื้นที่ใช้สอย 26-32 ตร.ม. ราคาเริ่มต้นที่ 2.39 ล้านบาท
2 Bedroom พื้นที่ใช้สอย 42-43 ตร.ม. ราคาเริ่มต้นที่ 3.79 ล้านบาท
ชีวาทัย เพชรเกษม 27 (Chewathai Phetkasem 27)
ชื่อโครงการ ชีวาทัย (Chewathai)
ที่ตั้งโครงการ ถนนเพชรเกษม เขตภาษีเจริญ กรุงเทพมหานคร
ราคาเริ่มต้น 2.2 ล้านบาท
Location
ที่ตั้งโครงการ ชีวาทัย เพชรเกษม 27 (Chewathai Phetkasem 27)
คอนโด ชีวาทัย เพชรเกษม 27 (Chewathai Phetkasem 27) ตั้งอยู่ติดกับถนนเพชรเกษม ใกล้กับซอยเพชรเกษม 27 ห่างจากรถไฟฟ้า BTS สถานีบางหว้า เพียง 300 เมตร ซึ่งในอนาคตสถานีบางหว้านี้จะกลายเป็นสถานี interchange ระหว่างรถไฟฟ้าสายสัน้ำเงิน และสายสีเขียว ซึ่งจะช่วยย่นระยะเวลาในการเเดินทางเข้า-ออกเมืองให้สั้นลงได้ด้วย
แผนที่จากคอนโด ชีวาทัย เพชรเกษม 27 (Chewathai Phetkasem 27) ตั้งอยู่บนถนนเพชรเกษม เขตภาษีเจริญ กรุงเทพมหานคร
ถนนเพชรเกษม ถือเป็นถนนเส้นสำคัญเส้นหนึ่งในย่านฝั่งธนบุรี นื่จากเป็นถนนเส้นยาวที่เชื่อมต่อกับถนนอีกหลายสายไม่ว่าจะเป็น ถนนกัลปพฤกษ์ ถนนราชพฤกษ์ ถนนกาญจนาภิเษก หรือถนนพุทธมณฑล ซึ่งเชื่อมต่อถึงถนนบรมราชชนนี มุ่งหน้าสู่จังหวัดนครปฐมได้ หรือจะขับตรงไปเรื่อยๆ ก็จะไปโผล่อำเภออ้อมน้อย ของจังหวัดสมุทรสาคร ซึ่งเป็นแถบชานเมืองที่เริ่มเจริญแล้วในขณะนี้ ส่วนฝั่งขาเข้าเมือง ถนนเพชรเกษมจะเชื่อมต่อไปถึงวงเวียนใหญ่จับต่อไปยังสาทร เข้าสู่ตัวเมืองย่านทองหล่อและอโศกได้ง่าย แต่ในช่วงนี้รถจะค่อนข้างติดหน่อย เนื่องจากช่วงนี้ยังมีการก่อสร้างสถานีรถไฟฟ้าส่วนต่อขยายสายสีน้ำเงินช่วงหัวลำโพง-บางแค ทำให้ต้องปิดการจราจรบางส่วน แต่ถ้ารู้เส้นทางเลี่ยง หรือหนีไปใช้รถไฟฟ้าแทนก็ยังถือว่า เดินทางได้สะดวกในระดับหนึ่ง
ที่มาภาพ http://news.mthai.com/pic-news/infographics/391147.html จุดเด่นของโครงการ ชีวาทัย เพชรเกษม 27 (Chewathai Phetkasem 27) อย่างหนึ่งคือ เป็นโครงการที่อยู่ใกล้กับรถไฟฟ้า สถานีบางหว้าในระยะเดินถึง สถานีรถไฟฟ้าจะอยู่ห่างจากโครงการไปประมาณ 300 เมตร เท่านั้น และในอนาคตสถานีบางหว้าจะกลายเป็นสถานี interchange ของรถไฟฟ้าทั้งสายสีน้ำเงิน และรถไฟฟ้าสายสีเขียว ซึ่งวิ่งผ่าน CBD ของกรุงเทพมหานคร ทำให้เดินทางได้สะดวกสบายมากยิ่งขึ้น และทำให้สถานีบางหว้ากลายเป็นสถานีสำคัญของฝั่งธนบุรีไปโดยปริยาย ในปัจจุบันรถไฟฟ้าสายสีน้ำเงิน ซึ่งเป็นรถไฟฟ้าส่วนต่อขยายจากหัวลำโพง-บางแค กำลังอยู่ในช่วงก่อสร้างและคาดว่าจะแล้วเสร็จประมาณปี 2563 และแน่นอนเมื่อรถไฟฟ้าสร้างเสร็จแถบบางแคจะกลายเป็นย่านที่เจริญขึ้นมากกว่าที่เป็นอยู่อย่างแน่นอน
ที่มาภาพ http://oknation.nationtv.tv/blog/singha-BTS/2014/04/25/entry-1 นอกจากการเดินทางด้วยรถยนต์ รถไฟฟ้า หรือว่ารถโดยสารประจำทางอื่นๆ แล้ว ไม่ไกลจากคอนโดก็มีท่าเรือสะพานตากสิน-เพชรเกษม ให้บริการอยู่ที่คลองภาษีเจริญ เป็นโครงการทดลองเดินเรือในคองภาษีเจริญ มีทั้งหมด 15 ท่าด้วยกัน ซึ่งก็ช่วยอำนวยความสะะดวกให้สำหรับคนที่ต้องารท่องเที่ยวริมฝั่งคลอง หรือจำเป็นต้องเดินทางไปทำงาน และต้องการเลี่ยงรถติด
การเดินทางจากรถไฟฟ้า BTS สถานีบางหว้า - ชีวาทัย เพชรเกษม 27 (Chewathai Phetkasem 27)
เริ่มต้นการเดินทางจากรถไฟฟ้า BTS สถานีบางหว้า โดยจะเริ่มจากทางออกที่ 4
ทางออกที่ 4 จะมีป้ายบอกทางไปท่าเรือสะพานตากสิน-เพชรเกษมไว้ให้ด้วย
ตามทาง Sky walk จะเห็นการก่อสร้างแนวรถไฟฟ้าสายสีน้ำเงินช่วงหัวลำโพง- บางแค ที่จะมาเชื่อมต่อกับสถานีรถไฟฟ้าสายสีเขียวของสถานีบางหว้าในอนาคต ซึ่คาดว่าจะสร้างแล้วเร็จและเปิดให้ใช้บริการได้ในปี 2563 ที่จะถึงนี้
ลงมาถึงด้านล่างเรียบร้อยแล้ว ถ้าเดินย้อนไปตามทางในภาพ แล้วเลี้ยวซ้ายจะไปเจอท่าเรือ สะพานตากสิน-เพชรเกษม แต่เดี๋ยวเราจะพาไปสำรวจกันทีหลัง
ลงมาด้านล่างฝั่งซ้ายมีจะเป็นพื้นที่ของพ่อค้า แม่ขายมาจับจองพื้นที่ขายของกัน ส่วนฝั่งขวาจะเป็นถนนเพชรเกษม ซึ่งกำลังอยู่ในช่วงของการก่อสร้างรถไฟฟ้า จึงต้องกั้นเป็นพื้นที่ก่อสร้างไว้
เดินเลยมาไม่ถึง 200 เมตร จะเจอกับป้ายรถประจำทางแบบชั่วคราว ด้านหลังจะเป็นร้านขายของแผงลอย และมี 7-11 เปิดให้บริการอยู่ด้วย
จากตัวสถานี BTS บางหว้า เดินไปถึงตัวโครงการใช้ระยะเวลาไม่ถึง 10 นาที เพราะระยะใกล้เพียง 300 ม. ริมฟุตบาทจะเป็นอาคารพาณิชย์สูง 2-3 ชั้น ด้านล่างจะเปิดเป็นร้านค้าประเภทต่างๆ มากมาย
เดินต่อมาจนเกือบจะถึงซอยเพชรเกษม 27 ฝั่งตรงข้ามจะเป็นมหาวิทยาลัยสยาม
เดินถัดมาจึงจะเป็นปากซอยเพชรเกษม 27 แต่ตัวโครงการไม่ได้อยู่ด้านในซอย แต่จะอยู่ติดถนนใหญ่ เลยซอยไปอีกนิด
จากบริเวณปากซอยเพชรเกษม 27 จะเห็นสะพานลอย ส่วนอาคารสีขาวสลับดำ ด้านขวามือจะเป็น Sale gallery ของ ชีวาทัย เพชรเกษม 27 (Chewathai Phetkasem 27)
Sale gallery จะตั้งอยู่ด้านหน้าของอาคารที่กำลังก่อสร้างอยู่ในขณะนี้ โดยคาดว่าโครงการจะสร้างแล้วเสร็จประมาณ เดือนสิงหาคม ในปี 2561
เดี๋ยวจะพาเข้าไปเยี่ยมชมด้านในกันสักเล็กน้อย ตามมาชมพร้อมๆ กันเลย
ภายใน Sale gallery ตกแต่งดูหรูหรา จัดเตรียมโต๊ะเก้าอี้ไว้รับรองคาอนข้างเยอะ ภายในจะมีพนักงานคอยให้ข้อมูล สามารถเเวะเข้ามาสอบถามกันได้ด้วยตัวเอง
ส่วนห้องตัวอย่างจะอยู่ที่ชั้น 2 มีให้ดูกันจุใจทั้ง 3 รูปแบบ เริ่มต้นที่ห้อง Studio ไปจนถึงห้องแบบ 2 ห้องนอนเลยทีเดียว ซึ่งเราจะพาเข้าไปสำรวจกันแน่นอน ติดตามต่อได้ในหัวข้อ Showroom
Environment
สภาพแวดล้อมรอบโครงการ ชีวาทัย เพชรเกษม 27 (Chewathai Phetkasem 27)
คอนโด ชีวาทัย เพชรเกษม 27 (Chewathai Phetkasem 27) หันหน้าอาคารเข้าถนนเพชรเกษม ส่วนด้านหลังอาคารจะมีคลองภาษีเจริญไหลผ่าน อาคารรอบด้านส่วนมากยังเป็นที่อยู่อาศัยแนวราบ แต่ก็มีอาคารสูงที่อยู่ใกล้ๆ กันคือ คอนโดศุภาลัย พาร์ค ราชพฤกษ์-เพชรเกษม สูงประมาณ 35 ชั้น ส่วนความอุดมสมบูรณ์โดยรอบโครงการก็มีให้เห็นครบถ้วน ไม่ว่าจะเป็น สถานศึกษา โรงพยาบาล ห้างสรรพสินค้า รวมถึงความสะดวกสบายด้นการคมนาคมก็มีให้บริการอยู่ใกล้ๆ
มาสำรวจสภาพแวดล้อมรอบโครงการกันต่อ ชีวาทัย เพชรเกษม 27 (Chewathai Phetkasem 27) ถือว่าตั้งอยู่ในทำเลที่ถือเป็น CBD ของฝั่งธนบุรี ทำให้รอบด้านคึกคัก และมีศักยภาพในการพัฒนาที่ค่อนข้างสูงในทุกๆ ด้าน
บริเวณด้านหน้าของโครงการ ซึ่งติดกับถนนเพชรเกษมจะเห็นว่า มีการก่อสร้างเส้นทางรถไฟฟ้าอยู่ในขณะนี้ ซึ่งก็ทำให้รถติดบ้างในช่วงเวลาเร่งด่วน ส่วนความของย่านนี้อยู่ที่กลุ่มศึกษา อาจารย์ของมหาวิทยาลัยสยาม และคนกลุ่มนี้ก็เป็นกลุ่มคนที่เลือกซื้อคอนโด ชีวาทัย เพชรเกษม 27 เพื่อการอยู่อาศัยเป็นส่วนใหญ่
เราจะพาเดินย้อนกลับไปทางเดิม แต่คราวนี้จะพาสำรวจสภาพแวดล้อม และความอุดมสมบูรณ์ของทำเลในย่านนี้แทน
บรรยากาศภายในซอยเพชรเกษม 27 เป็นซอยเล็กๆ ของชุมชนดั้งเดิมในย่านนี้
ด้านในซอยมีสถานที่เล่นกีฬาและออกกำลังกายของคนในชุมชนด้วย
ถัดมาจะเจอเข้ากับร้านค้า ร้านอาหาร ร้านทำผม ราคาค่อนข้างย่อมเยา แถมยังอร่อย ซึ่งทั้งหมดนี้ได้อานิสงค์มาจากคอนโดอยู่ใกล้กับมหาวิทยาลัย ราคาค่าครองชีพจึงเป็นราคาเบาๆ เพื่อจูงใจนักศึกษา
ตรงข้ามร้านอาหารจะเป็นมหาวิทยาลัยสยาม เปิดสอนในระดับปริญญาตรีและบัณฑิตศึกษาทั้งหลักสูตร
บริเวณนี้ก็มีป้ายรถประจำทางอยู่หนึ่งจุด ช่วงเวลาเช้าและเย็นคนเยอะพอสมควร รถที่มีมาจอดรับผู้โดยสารก็มีทั้งรถเมล์ รถสองแถว รถแท็กซี่ หรือจะเรียกใช้บริการรถมอเตอร์ไซค์ก็ได้ สะดวกเหมือนกัน
ใกล้สถานีรถไฟฟ้าเข้าไปอีกจะเป็นคอนโด ศุภาลัย พาร์ค ราชพฤกษ์-เพชรเกษม เป็นคอนโด high rise สูงประมาณ 35 ชั้น
บริเวณป้ายรถประจำทางชั่วคราว ใกล้กับ BTS ก็คึกคักไม่น้อย มีของขายตลอดทางส่วนมากจะเป็นรถเข็นแผงลอยยาวไปจนถึงตรงสถานี และมี 7-11 เปิดให้บริการอยู่ด้วย
นอกจากร้านแบบแผงลอยแล้วใต้ตึกเองก็มีร้านขายอาหารตามสั่ง ร้านก๋วยเตี๋ยวเปิดให้บริการรับฝากท้องอยู่ด้วย
เดินย้อนกลับมาทางสถานีกันหน่อยดีกว่า เราจะพาไปสำรวจบริเวณท่าเรือสะพานตากสิน-เพชรเกษม ว่าตั้งอยู่ตรงไหน
บริเวณสถานีจะเป็นจุดคอยรับ-ส่งผู้โดยสารให้ฟรีด้วยรถตู้สีส้มสดใสของห้างสรรพสินค้า ซีคอนบางแค ถ้าใครจะเดินทางไปห้างซีคอนบางแคก็ลองมาใช้บริการดูได้ เริ่มให้บริการตั้งแต่ช่วง 6.00 น. - 20.00 น.
จะมีป้ายบอกทางไปท่าสะพานตากสิน-เพชรเกษม เดินเลียบคลองไปทางขวามือเลย
ทางเดินไปยังท่าเรือสะพานตากสิน-เพชรเกษม เวลากลางคืนหรือช่วงเช้า-มืดอาจจะเปลี่ยวไปสักหน่อย ถ้าจำเป็นต้องโดยสารเรือจริงๆ แนะนำให้ใช้บริการพี่วินมอเตอร์ไซค์จะปลอดภัยกว่า
เดินมาจนสุดทางเดิน จะเป็นทางกลับรถใต้สะพาน ให้เดินตรงมายังริมคลอง จะเจอกับท่าเรือพอดี ค่าบริการของเรือจะอยู่ที่ 15 บาทก็ถือว่าเป็นเส้นทางเลี่ยงรถติดที่ดีอีกเส้นทางหนึ่ง
เดินวนมาตามทางกลับรถจะเป็นคอนโดมิเนียมหรู เป็นของโครงการ the president สาทร-ราชพฤกษ์ มีสามเฟสด้วยกันสร้างอยู่ติดกันเลย
ด้านหลังเป็นพื้นที่กำลังก่อสร้างเฟช 3 ก็เริ่มขึ้นให้เห็นเป็นรูปเป็นร่างบ้างแล้ว
ฝั่งถนนเพชรเกษมซอย 25⁄2 จะเป็นหมู่บ้านบางไผ่ทองนิเวศน์ในซอยจะเป็นอาคารพาณิชย์ มีร้านค้าอยู่บ้างประปราย ด้านในมีข้าวมันไก่เจ้าดังอยู่ด้วย ชื่อร้าน ข้าวมันไก่ บางไผ่ทอง ลองแวะชิมกันได้
ถัดจากหมู่บ้านบางไผ่ทองนิเวศน์จะเป็นปั๊มน้ำมัน PT
ส่วนห้างสรรพสินค้าที่ใกล้ที่สุดจะเป็น ซีคอน บางแค ซึ่งในอดีตเคยเป็นห้างฟิวเจอร์ พาร์ค บางแคมาก่อนจะทำการปรับปรุงใหม่ให้ทันสมัยมากขึ้น
ป้ายรถเมล์ด้านหน้าห้าง คนขึ้น-ลงค่อนข้างเยอะทีเดียว แต่ถ้าเดินทางมาจากโครงการ อาจจะเดินไปใช้บริการรถตู้ที่มาจอดรับ-ส่งแทนก็ได้ ส่งตรงถึงลานจอดด้านในอาคารเลย
ห้างซีคอน กลายเป็นห้างยอดฮิตของคนในย่านนี้ มีร้านค้ามาเปิดตัวมากมาย
ใครที่เป็นสายเกาหลีน่าจะชื่นชอบห้างนี้เพราะมีร้าน บิงซู บุฟเฟต์ต่างๆ เปิดอยู่เยอะทีเดียว
บรรยากาศด้านหน้าทางเข้า ช่วงเวลาเย็นคนค่อนข้างเยอะทีเดียว ส่วนมากเป็นนักเรียน นักศึกษา เพราะแถวนี้อยู่ใกล้กับสถานศึกษาหลายแห่ง
Insight
เจาะลึกภาพรวมโครงการ ชีวาทัย เพชรเกษม 27 (Chewathai Phetkasem 27)
คอนโด ชีวาทัย เพชรเกษม 27 (Chewathai Phetkasem 27) เป็นคอนโดมิเนียมประเภท High rise สูง 26 ชั้น จำนวน 1 อาคาร จาก บริษัท ชีวาทัย จำกัด (มหาชน) ทางดิเวลลอปเปอร์ต้องการออกแบบคอนโดให้เป็นรีสอร์ทคอนโด ผสมผสานพื้นที่การอยู่อาศัยไว้กับพื้นที่สีเขียวของธรรมชาติ พร้อมทั้งเติมเต็มไลฟ์สไตล์ในการใช้ชีวิตด้วยทำเลที่ใกล้ทั้งที่ทำงาน มหาวิทยาลัย เดินทาได้ง่ายทั้งทางบกและทางน้ำ รวมถึงอยู่ใกล้แหล่งชอปปิง กิน เที่ยว ครบวงจรบนถนนเพชรเกษม ย่านบางแคนี้เอง
ผังอาคาร ชีวาทัย เพชรเกษม 27 (Chewathai Phetkasem 27)
สำหรับ master plan คอนโดจะตั้งอยู่บนพื้นที่ขนาด 4-0-36 ไร่ หันหน้าเข้าหาถนนเพชรเกษม รอบนอกเป็นพื้นที่สีเขียวให้ความร่มรื่นแก่ผู้อยู่อาศัย เข้ามาด้านใจะเป็นร้านค้าสะดวกซื้อ 2 ชั้นจำนวนทั้งหมด 14 ร้าน ฝั่งขวามือของร้านสะดวกซื้อจะเป็นทางเข้าอาคาร เมื่อเข้ามาจะเจอกับล็อบบี้ ห้องเอนกประสงค์ โถงลิฟต์ ห้อง Mail box ห้องนิติบุคคล รวมถึงห้องน้ำส่วนกลางก็มีให้ใช้งานด้วยเช่นกัน ส่วนด้านหลังจะเป็นลานจอดรถ ซึ่งมีให้ด้วยกัน 3 ชั้น ดังนี้
ผังอาคารลานจอดรถทั้ง 3 ชั้น คิดเป็น 38% หรือ 245 คัน (ไม่รวมการจอดแบบซ้อนคัน) ใช้ระบบคีย์การ์ด ในการเข้า-ออกโครงการ เพราะฉะนั้นไม่ต้องกกังวลเรื่องการโจรกรรม หรือความปลอดภัยด้านอื่นๆ
สำหรับในชั้น 4 จะเป็นพื้นที่ส่วนกลางหลักของโครงการ ประกอบไปด้วยสระว่ายน้ำ สวนลอยฟ้า และฟิตเนส ในชั้นนี้จะมีจำนวนยูนิตรวมอยู่ด้วยอีก 22 ยูนิต ซึ่งใครี่เลือกซื้อยูนิตที่อยู่ในชั้นนี้ ก็มีทั้งข้อดีและข้อเสียนะคะ ข้อดีคือ อยู่ใกล้ๆส่วนกลาง ใกล้พื้นดิน ขึ้น-ลงได้สะดวก แต่ก็มีข้เสียตรงที่ไม่ค่อยเป็นส่วนตัว มีคนพลุกพล่าน เพราะเป็นชั้นของส่วนกลาง ถ้าเเป็นชอบชอบความสงบมากๆ อาจจะเลือกซ้อชั้นที่อยู่สูงขึ้นไปอีกหน่อยจะดีกว่า
ภาพบรรยากาศจำลองของสระว่ายน้ำ ในชั้น 4 ของคอนโด ชีวาทัย เพชรเกษม 27
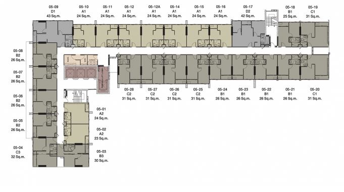
ส่วนที่ 5-26 เป็นส่วนของห้องพักทั้งหมด มีจำนวนชั้นละ 28 ยูนิต โดยยูนิตส่วนใหญ่จะเป็นห้องแบบ 1 ห้องนอน ในแต่ละชั้นจะมีห้อง Studdio ประมาณ 9 ยูนิต ส่วนห้องแบบ 2 ห้องนอนจะเป็นห้องมุม มีให้เลือกชั้นละ 2 ยูนิตเท่านั้น ส่วนโถงลิฟต์จะอยู่ค่อนมาทางฝั่งซ้ายมือ คนที่อยู่ฝั่งตรงข้ามอย่าง ห้องมุมฝั่งขวามืออาจจะต้องเดินมาใช้บริการลิฟต์กันไกลหน่อย
ผังห้อง ชีวาทัย เพชรเกษม 27 (Chewathai Phetkasem 27)
สำหรับประเภทห้องของโครงการ ชีวาทัย เพชรเกษม 27 (Chewathai Phetkasem 27) มีให้เลือกอยู่ 3 แบบ ดังนี้ studio พื้นที่ใช้สอย 23-26 ตร.ม. 1 Bedroom พื้นที่ใช้สอย 26-32 ตร.ม. 2 Bedroom พื้นที่ใช้สอย 42-43 ตร.ม. ทางโครงการขายแบบ Fully furnished ให้ทั้งเฟอร์นิเจอร์ เครื่องปรับอากาศ ชุดครัว และเครื่องใช้ไฟฟ้าอย่างตู้เย็น ไมโครเวฟ และทีวีขนาด 40 นิ้วด้วย
สำหรับห้องพักขนาดเล็กที่สุดจะเป็นห้องแบบ studio ขนาดใช้สอยประมาณ 23 ตารางเมตร รูปแบบผังห้องจะมีอยู่ 2 แบบ แบบแรกจะเป็นห้องรูปสี่เหลี่ยมจัตรัส อีกแบบจะเป็นสี่เหลี่ยมผืนผ้า เลือกได้ตามความชอบ
ห้องในแบบ 1 ห้องนอนจะมีการวางผังห้องต่างกันตามทิศและตำแหน่งของอาคาร โดยจะมีขนาดเริ่มที่ 26-32 ตารางเมตร แต่ฟังก์ชันโดยรวมที่ได้จะเหมือนๆ กัน
2 ห้องนอนจะมีขนาด 43 ตารางเมตร มีลักษณะแผงให้เลือก 2 แบบ โดยห้องแบบแรกจะเป็นห้องมุมของอาคาร ส่วนห้องด้านล่างจะเป็นห้องใหญ่ติดกับบันไดหนีไฟ
โมเดลจำลองอาคาร ชีวาทัย เพชรเกษม 27 (Chewathai Phetkasem 27)
ชีวาทัย เพชรเกษม 27 (Chewathai Phetkasem 27) เป็นคอนโด High rise สูง 26 ชั้น หันหน้าอาคารเข้ากับถนนเพชรเกษม ด้านหลังติดกับคลองภาษีเจริญ ส่วนด้านข้างจะเป็นที่อยู่อาศัยแนวราบ
การตกแต่งเป็นสไตล์โมเดิร์นทันสมัย เน้นฟังก์ชันการใช้สอย เหมาะกับไลฟ์สไตล์ของคนยุคใหม่
อาคารจอดรถจะเริ่มในชั้น 1-3 ของอาคาร
นอกจากที่จอดในอาคารเเล้ว ด้านข้างยังจัดทำที่จอดรถแบบกลางแจ้งไว้ให้เพิ่มเติมด้วย ส่วนบนอาคารในชั้น 4 ด้านหน้าอาคารจะจัดเป็นสวนลอยฟ้าให้ลูกบ้านได้ใช้นั่งพักผ่อนในยามว่าง
ด้านหลังอาคารติดกับคลองภาษีเจริญมีการจัดทำพื้นที่สีเขียวให้ความร่มรื่นเพิ่มเติมด้วย
สำหรับพื้นที่ส่วนกลางหลักจะอยู่ที่ชั้น 4 ทั้งหมด แต่จะอยู่ทางฝั่งทิศตะวันตกของอาคารเป็นหลัก ประกอบด้วยสระว่ายน้ำ และฟิตเนส โดยสระว่ายน้ำจะเป็นแบบกลางแจ้ง ช่วงเย็นๆ อาจจะโดนแดดเยอะหน่อย เลี่ยงใช้ในช่วงหัวค่ำหรือเช้าๆ จะดีกว่า
studio 24 Sq.m.
ห้องแบบ studio ขนาด 24 ตร.ม.
สำหรับห้องตัวอย่างที่เราได้เข้าไปเยี่ยมชมในวันนี้มีครบทั้ง 3 แบบ โดยจะเริ่มต้นกันที่แบบ Studio ขนาด 23 ตารางเมตรก่อนเป็นอันดับแรก ห้องแบบ Studio เมื่อเปิดประตูเข้าไปจะเจอกับห้องนั่งเล่น ซึ่งเชื่อมต่อถึงห้องนอนเป็นอันดับแรก ส่วนฝั่งซ้ายมือจะเป็นพื้นที่ของห้องครัว ห้องน้ำ และระเบียง แม้ห้องจะมีขนาดเล็ก แต่จัดวางและออกแบบมาได้ค่อนข้างดีทีเดียว ทำให้ไม่รู้สึกอึดอัดเวลาอยู่อาศัยจริง
พื้นห้องจะปูด้วยไม้ลามิเนต ห้องตัวอย่างไม่ได้ยกพื้นสูงขึ้นจากพื้นหน้าห้อง ก็ต้องคอยระวังในเรื่องของฝุ่นข้างนอกจะปลิวเข้ามาในห้อง เวลาเเม่บ้านทำความสะอาด แต่ก็ต้องลองสอบถามกับทางโครงการว่า ห้องจริงจะยกพื้นให้เพิ่มเติมด้วยหรือไม่
ภาพ 360 องศาแสดงภาพบรรยากาศโดยรวมของห้องสตูดิโอ ดูได้จากเปิดประตูเข้ามาก็จะเป็นมุมห้องนั่งเล่น และต่อด้วยห้องนอนเลย ส่วนมุมครัวก็จะถูกแยกไว้เป็นอีกมุมหนึ่ง
เข้ามาข้างในห้องจะเจอกับมุมนั่งเล่นที่สามารถวางโซฟาขนาดนั่งสองคนได้ ซึ่งทางโครงการมีแถมมาให้แล้ว
ตรงข้ามจะมีชั้นวางทีวีระยะห่างจากโซฟาไปยังทีวีมีระยะ 1 เมตร สามารถวางทีวีขนาด 26 นิ้วได้สบาย ซึ่งโครงการก็แถมทีวีมาให้เช่นเดียวกัน เป็นทีวี LED ของ Sumsung หรือเทียบเท่า
ด้านบนทีวีจะเป็นกล่องควบคุมไฟ ตรงนี้สามารถตกแต่งชั้นลอยเพิ่มได้
มุมนี้มองจากประตู เมื่อเปิดประตูเข้ามาบรรยากาศข้างในห้องก็เป็นแบบนี้ มุมห้องนอนกับมุมนั่งนั่งเล่นจะถูกจัดอยู่ในโซนเดียวกัน
ถึงจะจัดให้อยู่ในโซนเดียวกัน ก็ไม่ทำให้อึดอัดมาก ยังเหลือพื้นที่ใช้สอยนิดหน่อย เฟอร์นิเจอร์ไม่อัดยัดเยียด เบียดกันจนเกินไป
ผนังด้านบนมุมนั่งเล่นสามารถตกแต่งเพิ่มเติม ทำเป็นชั้นลอยได้ หรือเพิ่มตู้เก็บของแบบชั้นลอยได้ ตามห้องตัวอย่าง
เตียงนอนที่มีให้เป็นเตียงขนาด 5 ฟุต มุมของเตียงนอนฝั่งหนึ่งจะอยู่ติดหน้าต่าง ทำให้เห็นวิวที่สวยงามภายนอกห้อง
ตู้เสื้อผ้าที่มีมาให้จะเป็นตู้สองบานเลื่อนปกติ ไม่เหมือนในห้องตัวอย่าง
ช่องทางเดินระหว่างเตียงนอนกับตู้ค่อนข้างที่จะแคบ ทำให้เดินได้ไม่ค่อยสะดวกเท่าไร
ช่องว่างระหว่างหน้าต่างและเตียงจะกว้างกว่าบริเวณปลายเตียงนิดหน่อย ส่วนนี้จะเดินได้สะดวก แถมยังสามารถหาชั้นหรือโคมไฟมาตกแต่งเพิ่มเติมได้ด้วย
หน้าต่างในห้องจะเป็นกระจกบานเลื่อนผสมกับบานฟิกซ์ ถือเป็นช่องแสงที่ทำให้ห้องสว่างในเวลากลางวัน
ตัวล็อกของหน้าต่างเป็นแบบดันปุ่มขึ้น-ลง
สวิตช์ไฟในห้องจะเป็นแบบกดลงเปิดแบบมาตรฐาน ส่วนปลั๊กไฟก็จะเป็นแบบสามตาของ schneider
มองจากห้องนอนไปจะเจอกับครัว
ภาพ 360 องศา แสดงบรรยากาศภาพรวมของในครัว ห้องครัวแยกโซนมาจากห้องนอนกับห้องนั่งเล่น ห้องตัวอย่างไม่ได้ติดประตูกั้นครัวมาให้ดู ก็ต้องสอบถามกับพนักงานว่า ห้องจริงะกั้นให้ครัวกลายเป็นระบบปิดด้วยไหม แต่ถ้าไม่ติดให้ ผู้อาศัยสามารถติดประตูเพิ่มเองได้ เวลาทำอาการกลิ่นจะได้ไม่รบกวนออกมานอกห้อง
ภายในห้องห้องครัวจะมีเคาน์เตอร์เอนประสงค์พร้อมกับตู้เย็นขนาด 8.4 คิวและไมโครเวฟมาให้
ด้านบนจะเป็นชั้นวางของแบบมีประตูปิดและชั้นลอยอีก 1 ชั้น สามารถเก็บของจานชามได้
อ่างล้างจานจะเป็นแบบ 1 หลุม ไม่มีที่พักจานมาให้
ใต้อ่างล้างจานจะเป็นช่องไว้เก็บของเหมือนกัน แต่จะมีท่อระบายซ่อนไว้อยู่ สามารถเก็บของชิ้นใหญ่ๆ ได้เล็กน้อย ส่วนลิ้นชักสองช่องก็เป็นที่สำหรับเก็บจานเก็บช้อน โดยตรงกลางจะเป็นชั้นสำหรับวางไมโครเวฟ ซึ่งทางโครงการก็มีไมโครเวฟแถมมาให้
จุดวางตู้เย็นขนาด 8.4 คิวบิกฟุต อยู่บริเวณข้างๆ กับเคาน์เตอร์ครัวเป็นจุดที่เหมาะสมและเป็นสัดส่วนดี
โต๊ะสำหรับรับประทานอาหารทางโครงการมีมีให้ขนาด 2 ที่ จัดวางในมุมนี้ถือว่ากำลังดี
ยูนิตนี้มีประตูระเบียงที่ห้องครัว โดยประตูระเบียงจะเป็นประตูกระจกบานเลื่อน กรอบอลูมิเนียม
ระบบล็อกของประตูกระจกระเบียงจะเป็นแบบดันขึ้น-ลงเหมือนกับหน้าต่างในมุมห้องนอน
มากันที่ระเบียง พื้นระเบียงจะยกต่ำลงกว่าตัวห้อง เพื่อป้องกันน้ำจากระเบียงไหลเข้ามาในครัว
แอร์คอมเพรสเซอร์ถูกหันหน้าออกไปยังนอกอาคารทำให้ระเบียงไม่ร้อนจนเกินไป พร้อมติดระเเนงบังสายตาไว้ให้แล้ว
มาที่ห้องน้ำกัน ภาพ 360 องศาแสดงให้เห็นถึงบรรยากาศรอบๆ ห้องน้ำ
พื้นห้องน้ำจะถูกยกให้ต่ำลงเหมือนกับระเบียง เพื่อป้องกันน้ำไหลเข้ามาให้ห้องนอน
ห้องน้ำที่นี่จะเป็นแบบอ่างล้างหน้าเดี่ยวไม่มีเคาน์เตอร์อะไรทั้งนั้น กระจกที่ให้มากับโครงการเป็นกระจกบานเดี่ยวเล็กๆ ไม่เต็มบาน
สุขภัณฑ์เป็นชักโครกแบบระบบการปล่อยน้ำสองอย่าง ตัวนี้ช่วยในเรื่องของการเลือกใช้น้ำได้ดี จะน้ำเยอะน้ำน้อยก็เลือกปล่อยได้
สายฉีดชำระค่อนข้างจะทนต่อการใช้งานก้านไม่หักง่าย เพราะรูปทรงโค้งมนเข้ากับรูป ก้านกดไม่ชี้ออกมามากเกินไป
ระบบวาล์วน้ำระหว่างสายชำระและชักโครกจะใช้ตัวเดียวกัน ตัวนี้จะมีปัญหาหากวาล์วน้ำเสียก็จะใช้ไม่ได้ทั้งสองอย่าง
ราวแขวนผ้าเช็ดตัวจะอยู่ด้านข้างโถสุขภัณฑ์
มุมอาบน้ำจะกั้นให้สูงขึ้นนิดหน่อยเพื่อป้องกันให้น้ำไหลออกมาเลอะกับบริเวณสุขภัณฑ์และอ่างล้างหน้า
ฝักบัวที่ให้จะเป็นฝักบัวแบบด้ามจับปรับระดับความสูงได้
ฝัักบัวเป็นของ Hand shower ของ Kudos จับถนัดมือดี
1 BR 26 sq.m.
ห้องแบบ 1 ห้องนอน ขนาด 26 ตร.ม.
ห้องต่อมาที่จะพาเข้าไปสำรวจคือ ห้องแบบ 1 ห้องนอนขนาด 26 ตารางเมตร เปิดประตูเข้าไปส่วนแรกจะเจอห้องครัว เป็นแบบระบบเปิด ซึ่งเหมาะกับการประกอบอาหารเบาๆ มากกว่าอาหารที่มีกลิ่นหรือควันมาก เนืองจากทางคอนโดไม่ได้แถมเครื่องดูดควัน และห้องครัวยังอยู่ใกล้กับห้องนั่งเล่นอีก ถ้าทำอาหารหนักๆ ควันและกลิ่นอาจจะลอยไปติดเฟอร์นิเจอร์ได้ ทางที่ดีเน้นการทำอาหารง่ายๆ และเปิดประตูระเบียงเพิ่ม เพื่อระบายกลิ่นจะดีกว่า ส่วนห้องนอนจะอยู่ทางขวามือ ด้านในจะเป็นห้องน้ำอีกที ตรงนี้อาจจะทำให้รู้สึกไม่เป็นส่วนตัวเพราะแขกไปใครมาจะใช้ห้องน้ำจำเป็นต้องเปิดผ่านเข้าห้องนอนของเราก่อน
บรรยากาศภายในห้องแบบ 360 องศา พื้นภายในห้องจะเป็นพื้นไม้ลามิเนตสีตามภาพ ผนังในห้องจริงจะเป็นผนังฉาบเรียบทาสีขาว ลักษณะเลย์เอาท์ของห้องจะเป็นแนวลึกเข้าไป ฟังก์ชันโดยรวมมีให้เหมือนห้องแรก แต่ห้องนี้จะกั้นห้องนอนออกไปให้เป็นสัดส่วนมากขึ้น แต่ครัวจะกลายเป็นครัวระบบเปิด และชื่อมต่อถึงห้องนั่งเล่นแทน
ส่วนแรกที่เจอจะเป็นโซนครัว การวางโซนครัวไว้ด้านหน้าติดกับประตูทางเข้าห้องก็สะดวกเวลาซื้อของทำอาหารมาแล้วสามารถนำมาเก็บได้เลย ไม่ต้องเดินถือไปวางไว้ที่อื่น ทางคอนโด ชีวาทัย เพชรเกษม 27 แถมชุดครัวมาให้ตามภาพ และยังได้โต๊ะรับประทานอาหารที่ตั้งอยู่ทางซ้ายมือด้วย แต่หน้าตาของจริงอาจจะเปลี่ยนแปลงไปเล็กน้อย
ชุดครัวขนาดกะทัดรัด แยกตู้ชิ้นบนและชิ้นล่างให้ ทางโครงการติดตั้งอ่างล้างจานแบบหลุมเดี่ยว ไม่มีที่พักจานมาให้ นอกจากนี้ยังแถมไมโครเวฟ ดิจิทัล ของ sunsung หรือเทียบเท่าให้ด้วย แต่จะไม่มีเตาไฟฟ้า เครื่องดูดควันมาให้ ตรงนี้ต้องติดตั้งเพิ่มกันเอง
แผงควบคุมไฟจะซ่อนอยู่ภายในตู้ชิ้นบน
ตรงข้ามกับชุดครัวจะเป็นที่วางตู้เย็น พื้นที่ค่อนข้างกว้าง สามารถวางตู้ขนาดใหญ่ได้ ซึ่งทางโครงการแถมตู้เย็นแบบ 2 ประตู ขนาด 8.4 คิวบิกฟุตมาให้ แต่ถ้าใครอยากได้ใหญ่กว่านี้ก็ต้องลองวัดพื้นที่ไปแล้วหาซื้อเพิ่มเติมกันเอง
มาถึงส่วนของห้องนั่งเล่นที่อยู่ติดกัน พื้นที่ห้องนั่งเล่นไม่ได้กว้างมาก ขนาดประมาณ 2x2 เมตร ระยะห่างระหว่างโซฟา-ทีวีอยู่ที่่ 1 เมตร ทางโครงการใจดีแถมให้ทั้งชั้นวางทีวี โซฟาแบบ 2 ที่นั่ง และยังแถมทีวี LED มาให้ด้วย
ผนังในห้องจริงจะเป็นผนังฉาบเรียบทาสีขาว ไม่ได้มีชั้น Built-in มาให้เหมือนในภาพ แต่ก็ถือเป็นไอเดียที่ดีสำหรับการตกแต่งคอนโด โดยการทำชั้น Built-in ที่ผนัง เพื่อเพิ่มพื้นที่สำหรับการวางของโดยไม่ต้องซื้อเฟอร์นิเจอร์มาวางเพิ่มให้เปลืองพื้นที่ในห้อง
ติดกับห้องนั่งเล่นจะเป็นระเบียง กั้นด้วยประตูกระจกบานเลื่อนแบบ 2 ทาง ทำให้ห้องสว่างขึ้นในช่วงเวลากลางวัน แต่ถ้าใครกลัวว่าห้องจะร้อนเกิน ก็แนะนำให้ซื้อม่านกัน UV มาติดตั้งเพิ่ม และเลือกเวลาในการเปิด-ปิดม่านแทน
พื้นระเบียงจะลดระดับลงจากพื้นห้องเล็กน้อย เพื่อกันน้ำจากด้านนอกไหลย้อนเข้ามาในห้อง
พื้นระเบียงด้านนอกเป็นกระเบื้องผิวหยายขนาด 30x30 ซม. พื้นที่กว้างระดับหนึ่งพอให้วางเครื่องซักผ้าได้
คอมเพรสเซอร์แอร์จะเป็นแบบแขวนกับผนัง หันหน้าออกนอกระเบียง ทำให้ระเบียงไม่ร้อน สามารถออกมายืนรับลมได้สบายๆ
กลับเข้ามาในห้องกันอีกรอบ เพราะโซนต่อไปที่จะพาไปชมกันต่อก็คือ ห้องนอน ซึ่งตั้งอยู่ตรงข้ามกับห้องนั่งเล่นพอดี
บรรยากาศภายในห้องนอน ห้องจริงผนังจะเป็นผนังฉาบเรียบทาสีขาวมาให้ ส่วนเฟอร์นิเจอร์ที่ได้จะมีแอร์ เตียง และตู้เสื้อผ้า
เตียงที่ได้จะเป็นเตียขนาด 5 ฟุต ด้านล่างเตียงมีลิ้นชักไว้ให้ใส่ของเพิ่มเติมได้ด้วย
พื้นที่ปลายเตียเหลืออยู่ประมาณ 35 ซม. พอให้เดินผ่านได้ แต่ถ้าใครอยากซื้อทีวีมาตั้งเพิ่ม แนะนำให้ซื้อแบบแขวนผนังมาติดจะดีกว่าเเบบตั้งโต๊ะ ไม่อย่างนั้นจะไม่เหลือพื้นที่ปลายเตียงไว้ให้เดินผ่านเลย
ตำแหน่งแอร์วางไว้ให้ความเย็นตกลงเตียงพอดี ข้อดีคือเย็นแน่นอน แต่บางทีอาจจะเย็นเกินไปจนทำให้ไม่สบายได้ ส่วนหน้าต่างของห้องจะเป็นบานเลื่อนผสมบานฟิกซ์ สามารถเปิดออกไปรับลมได้
สำหรับตู้เสื้อผ้าของจริงจะได้แบบบานสไลด์ หน้าตาไม่เหมือนในภาพ ส่วนฝั่งซ้ายมือของห้องจะเป็นห้องน้ำ เดี๋วตามเข้าไปสำรวจพร้อมๆ กันเลย
พื้นห้องน้ำจะทำการยกธรณีประตูขึ้นมา เพื่อป้องกันน้ำจากด้านในกระเด็นออกมาด้านนอก พร้อมทำตัวจบด้วยกระเบื้องสีดำมาให้เรียบร้อย
ห้องน้ำปูด้วยกระเบื้องขนาด 60x60 ซม. ทั้งที่ผนังและที่พื้น เพื่อให้ง่ายต่อการทำความสะอาดคราบสกปรกที่เกิดจากไคลสบู่ ส่วนสุขภัณฑ์ที่ได้จะมีอ่างล้างหน้า กระจกเงา โถสุขภัณฑ์ สายฉีดชำระ ที่ใส่กระดาษทิชชู่ ราวแขวนผ้า และฝักบัว
อ่างล้างหน้าจะเป็นอ่างพร้อมขาตั้งลอย ข้อดีคือ มีขนาดกะทัดรัดเหมือนกับอ่างล้างหน้าแบบแขวนผนัง แต่จะมีส่วนของขาตั้งลอยที่ช่วยปกปิดท่อน้ำทิ้ง เพื่อความสวยงาม และทนทานมากยิ่งขึ้น เหมือนกับอ่างล้างหน้าแบบตั้งพื้น พร้อมกับติดกระจกเงามาให้เรียบร้อย
หันไปฝั่งตรงข้ามอ่างจะเป็นที่ตั้งของโถสุขภัณฑ์ของ American standard ด้านข้างติดตั้งสายฉีดชำระ ที่ใส่กระดาษทิชชู่ และราวแขวนผ้ามาให้ หยิบใช้งานได้สะดวก
ตรงข้ามกับประตูทางเข้าจะเป็นโซนอาบน้ำ ทางโครงการไม่ได้กั้นกระจกมาให้ ตรงนี้สามารถติดตั้งเพิ่มเองได้ เพื่อกั้นน้ำกระเด็นออกมาเลอะในโซนแห้ง ลดภาระในการทำความสะอาดได้ในระดับหนึ่ง
ฝักบัวที่ทางคอนโด ชีวาทัย เพชรเกษม 27 จัดไว้ให้จะเป็นแแบบ Hand shower ของ Kudos ตรงข้ามทำเป็นช่องวางของให้ ไม่จำเป็นต้องติดชั้นเพิ่มเลย
2 BR 43 sq.m.
ห้องแบบ 2 ห้องนอน ขนาด 43 ตร.ม.
ส่วนห้องสุดท้ายจะเป็นห้อง 2 ห้องนอน ขนาด 43 ตารางเมตร เป็นขนาดห้องที่ใหญ่ที่สุดของโครงการ ฟังก์ชันภายในห้องจะแยกออกมาเป็นสัดส่วนมากกว่าเดิม เมื่อก้าวเข้าห้อไปจะเจอกับห้องน้ำอยู่ทางขวามือ มองตรงไปเป็นห้องนอนใหญ่ ส่วนซ้ายมือเป็นพื้นที่ครัว อยู่ติดกับระเบียง ตรงนี้ดีหน่อย เวลาทำอาหารจะได้ระบายกลิ่นได้ไวขึ้น ส่วนห้องนั่งเล่นจะอยู่ตรงข้ามครัว ถัดเข้าไปจะเป็นห้องนอนเล็กตามลำดับ
ภาพ 360 แสดงให้เห็นถึงบรรยากาศรอบๆ ห้อง ห้องไซส์นี้เป็นไซส์ที่ใหญ่ที่สุดของโครงการ พื้นห้องปูด้วยไม้ลามิเนต ผนังห้องจริงจะเป็นผนังฉาบเรียบสีขาว ฝ้าเพดานของห้องสูง 2.4 เมตร ตามมาตรฐานของคอนโดทั่วไป
เข้ามาในห้องดูจากมุมประตู ห้องจะมีหลายส่วน หลายฟังก์ชัน ให้ความรู้สึกเหมือนอยู่ในบ้าน โดยด้านขวามือจะเจอห้องน้ำเป็นห้องแรก เป็นห้องน้ำที่ใช้รวมทั้งผู้อยู่อาศัยและแขกที่มาเยี่ยมเยียน
ภาพ 360 องศาแสดงให้เห็นถึงภาพรวมรอบๆ ห้องน้ำ ห้องน้ำห้องนี้ดูกว้างใหญ่ดี ให้สุขภัณฑ์มาครบถ้วน พร้อมกับแยกส่วนปียกและส่วนแห้งออกมาจากกันเรียบร้อย
ธรณีประตูห้องน้ำถูกยกให้สูงขึ้นเพื่อป้องกันน้ำไหลออกมา เป็นมาตรฐานที่ห้องน้ำทั่วไปทำกัน
อ่างล้างหน้า กับโถสุขภัณฑ์ถูกจัดอยู่ในคนละมุมกัน เห็นได้ชัดเลยว่าห้องกว้าง จนเหลือพื้นที่จัดวางไว้คนละมุม
อีกมุมหนึ่งของอ่างล้างหน้าจะเป็นมุมอาบน้ำ ห้องน้ำของโครงการจนี้จะไม่มีกระจกกั้นมาให้ ตรงนี้อาจจะมีในเรื่องของน้ำที่กระเด็นออกมาโดนมุมอื่นในห้องน้ำ ทำให้ห้องน้ำเปียกไปทั้งห้องได้ แนะนำให้กั้นกระจกเพิ่มเติมจะสะดวกต่อการทำความสะอาดมากกว่า
โซนเปียกกับโซนแห้งจะทำการยกธรณีที่พื้นขึ้นมาให้ ตรงนี้ติดตั้งกระจกเพิ่มได้เลย รับรองว่า ไม่มีปัญหาน้ำไหลย้อนออกมาด้านนอกแน่นอน
ฝักบัวในห้องน้ำนี้ก็เป็นฝักบัวแบบ Hand shower ของ Kudos เหมือนกับห้องอื่นๆ
ถัดจากห้องน้ำจะเป็นห้องนอนใหญ่ เดี๋ยวเข้าไปชมกันเลย
ห้องนอนใหญ่ ดูจากภาพ 360 องศาแสดงให้เห็นถึงบรรยากาศโดยรวมของห้อง ขนาดกว้างขวางดี ตกแต่งได้เยอะทีเดียว พื้นห้องจะปูด้วยลามิเนตเชื่อมต่อมาจากพื้นทางด้านนอก ผนังในห้องจริงจะเป็นผนังฉาบเรียบทาสีขาวธรรมดา
เครื่องปรับอากาศถูกติดตั้งไว้บริเวณบนประตู จุดนี้เป็นจุดที่ความเย็นจะกระจายทั่วห้องได้ดี เพราะห้องค่อนข้างที่จะโล่งและเตียงนอนก็หันหน้ารับกันพอดี
เตียงนอนขนาด 5 ฟุตที่ทางโครงการมีมาให้ มุมของเตียงนอนติดกับหน้าต่างพอดี ในส่วนนี้ทำให้เห็นวิวห้องนอนเวลาอยู่บนเตียงได้เลย
ด้านตรงข้างเตียงจะมีขนาดที่กว้างพอสมควรเดินได้แบบสบาย แม้จะมีชั้นวางทีวีตั้งอยู่ แต่ระยะห่างจากเตียงก็ยังกว้างถึง 0.9 เมตรสามารถวางทีวีขนาด 40 นิ้วได้อย่างสบายๆ
ระยะห่างจากตู้เสื้อผ้ากับเตียงนอน ไม่แคบจนเกินไป สามารถซื้อโต๊ะข้างหัวเตียงมาตั้งเพิ่มเติมได้
มุมนี้ในภาพจะเป็นตู้เสื้อผ้า แต่ตู้เสื้อผ้าที่โครงการให้มารจะไม่เป็นแบบในห้องตัวอย่าง ตู้เสื้อผ้าจะเป็นตู้ธรรมดาแบบประตูบานเลื่อนสองบาน จะถูกจัดให้อยู่ในมุมนี้
เตียงนอนจะจัดให้ชิดกับหน้าต่างไปเลยฝั่งหนึ่ง ถ้าใครกลัวร้อนอาจจะเขยิบเตียงอออกอีกสักหน่อยก็ได้
ในห้องนอนใหญ่จะไม่มีระเบียง จะมีเพียงแค่หน้าต่างเท่านั้น
ออกมาจากห้องนอนใหญ่ก็เป็นในส่วนของมุมครัว ห้องนั่งเล่นและห้องนอนเล็ก
ในส่วนของมุมครัวนั้น ทางโครงการจะมีโต๊ะรับประทานอหารแบบ 4 ที่มาให้ มุมรับประทานอาหารจะอยู่ใต้เครื่องปรับอากาศของห้องโถงพอดี
หากมองผ่านโต๊ะไปจะเยื้องกับมุมนั่งเล่น ห้องนอนเล็ก และครัวตามลำดับ
มุมครัวนั้นจะถูกกั้นไว้เป็นมุมอีกทีนึง เพื่อความสวยงามและแยกเป็นสัดส่วนของห้อง นี่เป็นภาพ 360 องศาแสดงให้เห็นถึงบรรยากาศโดยรอบ
มุมครัว การวางของเคาน์เตอร์ครัวและตู้เย็นจะเหมือนกันกับห้องที่ผ่านมา โดยตู้เย็นที่ได้จะได้ขนาด 8.4 คิวบิกฟุต
อ่างล้างจานที่ได้เป็นแบบหนึ่งหลุม ไม่มีที่พักจานให้ และไม่มีเตาไฟฟ้า รวมถึงเครื่องดูดควันมาให้ด้วย พื้นที่ว่างสามารถวางเตาไฟฟ้าหรือกาต้มน้ำได้
อ่างล้างจานจะมีขนาดมตรฐาน จะเป็นอ่างแบบสเตนเลสทั่วไป
ชั้นด้านบนจะเป็นชั้นแบบ Built-in ประตูบานเปิดคู่ สามารถใช้เก็บวัตถุดิบในการทำอาหารได้ หยิบใช้สะดวกดี
พื้นที่ของห้องครัวจะอยู่ติดกับระเบียง ซึ่งเป็นข้อดีที่จะช่วยระบายกลิ่น และอากาศหลังจากทำอาหารได้เร็วขึ้น
พื้นที่ระเบียงเป็นแนวยาว ปูด้วยกระเบื้องขนาด 30x30 ซม. ฝั่งขวาจะวางคอมเพรสแอร์แอร์ ส่วนฝั่งซ้ายทำระบบท่อให้สำหรับวางเครื่องซักผ้า ซึ่งเมื่อวางแล้วก็เหลือพื้นที่ให้ยืนอยู่นิดเดียว
ห้องนี้ติดตั้งแอร์ไว้ 3 ตัวจึงวางคอเพรสเซอร์แอร์ตั้งพื้นไว้ตัวนึง และอีก 2 ตัวเป็นแบบแขวนผนัง คอมเพรสเซอร์ทั้งหมดจะหันเป่าออกนอกระเบียงทั้งหมด ทำให้ระเบียงไม่ร้อน
เดินย้อนกลับมาดูห้องนั่งเล่นกันต่อ ดูเหมือนโครงการนี้จะไม่ค่อยเน้นพื้นที่ตรงส่วนห้องนั่งเล่นสักเท่าไร มีให้ขนาดกะทัดรัด ระยะห่างจากโซฟาถึงทีวีอยู่ที่ 1.3 เมตร ทางโครงการใจดีแถมทีวีขนาด 40 นิ้ว โซฟา และชั้นวางทีวีมาให้ แต่สเปคอาจจะไม่ได้เหมือนในภาพซะทีเดียว
สำหรับใครที่ชอบตกแต่งคอนโดด้วยของกระจุกกระจิก อาจจะใช้วิธีแขวนทีวีไว้กับผนัง เพื่อใช้พื้นที่บนชั้นเพื่อวางของตกแต่งแทน
เข้ามาดูห้องนอนเล็กกัน ห้องนี้เหมาะจะทำเป็นห้องนอนลูกๆ หรือจะเปลี่ยนเป็นห้องทำงานก็ดูเข้าท่าดี างโครงการ ชีวาทัย เพชรเกษม 27 จะแถมเฟอร์นิเจอร์ให้เป็นเตียงนอน ตู้เสื้อผ้า และแอร์ให้ 1 ตัว
เตียงนอนเป็นไซส์ขนาด 3.5 ฟุต ขนาดเล็กเหมาะสำหรับนอนแค่คนเดียว
พื้นที่ระหว่างเตียงและชั้นด้านข้าง กว้างพอให้เดินผ่านได้สบายๆ ส่วนปลายเตียงจะเป็นหน้าต่าง ซึ่งเป็นช่องแสงธรรมชาติทำให้ห้องสว่างขึ้น
ฝั่งขวามือของเตียงจะเป็นที่ตั้งของตู้เสื้อผ้า ห้องจริงจะได้ตู้เสื้อผ้าแบบบานสไลด์ 1 บาน ไม่ได้ตกแต่งมาให้เหมือนในห้องตัวอย่าง
หน้าต่างของห้องเป็นหน้าต่างเต็มความกว้างของผนัง แถมยังทำเป็นหน้าต่างเข้ามุมให้ด้วย ซึ่งช่วยทำให้ห้องดูกว้าง และได้รับแสงสว่างที่เพียงพอ
Analysis
วิเคราะห์โครงการ ชีวาทัย เพชรเกษม 27 (Chewathai Phetkasem 27)
ทำเล : คอนโด ชีวาทัย เพชรเกษม 27 (Chewathai Phetkasem 27) ตั้งอยู่ในเขตภาษีเจริญ อยู่ใกล้กับปากซอยเพชรเกษม 27 ตรงข้ามกับมหาวิทยาลัยสยาม โดยถนนเส้นหลักที่ใช้ในการสัญจรของคนในย่านนี้ก็คือ ถนนเพชรเกษม เป็นถนนสายยาวที่เริ่มต้นจากวงเวียนใหญ่ ผ่านท่าพระ จรัญสนิทวงศ์ ตรงเข้ามาถึงย่านบางแค และสามารถขับต่อไปถึงจังหวัดสมุทรสาคร หรือจะเลี้ยวต่อไปยังถนนพุทธมณฑลเพื่อเข้าสู่จังหวัดนครปฐมก็ได้ นอกจากนี้ ถนนเพชรเกษมยังเป็นถนนเส้นสำคัญที่เชื่อมต่อถึงจังหวัดทางภาคตะวันตก และภาคใต้ของไทยได้ด้วย
การเดินทางด้วยรถยนต์ส่วนตัวบนถนนเพชรเกษมนั้นสะดวกสบาย เนื่องจากมีถนนสายรองที่เชื่อมต่อถึงได้หลายเส้นทางด้วยกัน ไมว่าจะเป็น ถนนกัลปพฤกษ์ ถนนราชพฤกษ์ ถนนกาญจนาภิเษก หรือถนนพุทธมณฑล ซึ่งเชื่อมต่อถึงถนนบรมราชชนนี ทั้งหมดนี้เป็นถนนเส้นสำคัญของคนที่อยู่อาศัยในฝั่งธนบุรีทั้งสิ้น แต่ช่วงนี้อาจจะต้องเผชิญปัญหากับรถติดหนักหน่อย เนื่องจากถนนปิดช่อการจราจรเพื่อก่อสร้างรถไฟฟ้าสายใหม่ ดังนั้นการเดินทางจึงควรเผื่อเวลาสำหรับการเดินทางไว้ให้ดี หรือศึกษาเส้นทางเลี่ยงรถติดไปยังถนนสายรองแทน ก็จะช่วยทำให้การเดินทางสะดวกสบายมากขึ้น
สำหรับใครที่โดยสารรถไฟฟ้า ในการเข้า-ออกเมืองเป็นประจำ คอนโดชีวาทัย เพชรเกษม 27 ก็อยู่ใกล้กับสถานีรถไฟฟ้า BTS สถานีบางหว้า เพียง 300 เมตรเท่านั้น สามารถเดินเท้าไปถึงได้ง่าย นอกจากนี้ในอนาคต สถานีบางหว้าจะกลายเป็สถานี interchange ของรถไฟฟ้าสายสีเขียว และสายสีน้ำเงิน ทำให้ย่านนี้ยิ่งมีศักยภาพในการพัฒนาที่สูงยิ่งขึ้นไปอีก
นอกจากรถไฟฟ้าแล้ว การโดยสารเรือก็เป็นอีกทางเลือกหนึ่งที่น่าสนใจ ใกล้ๆ กับโครงการจะมีท่าเรือ สะพานตากสิน-เพชรเกษม ให้บริการอยู่ที่คลองภาษีเจริญ ก็ถือว่า สะดวกไม่ต้องไปเผชิญหน้ากับรถติดให้เสียเวลา ส่วนรถโดยสารประจำทาง รถแท็กซี่ หรือวินมอเตอร์ไซค์ก็มีให้บริการเช่นกัน ก็เลือกวิธีการเดินทางได้หลากหลาย หลีกเลี่ยงรถติดได้ในชั่วโมงเร่งด่วน
สภาพแวดล้อม : รอบโครงการ ชีวาทัย เพชรเกษม 27 (Chewathai Phetkasem 27) เต็มไปด้วยร้านอาหารและของกินมากมาย เนื่องจากคอนโดตั้งอยู่ในทำเลที่ใกล้รถไฟฟ้าและมหาวิทยาลัย ด้านราคาก็ย่อมเยา เพราะกลุ่มลูกค้าส่วนมากจะเป็นนักเรียน นักศึกษา เราจึงได้อนิสงค์ด้านค่าครองชีพที่ถูกลงไปด้วย
สำหรับใครที่อยากจับจ่ายซื้อสอยของสด ไม่ไกลกันก็มีตลาดสดบางแค เป็นตลาดเก่าแก่ของคนในย่านนี้ แต่ถ้าใครอยากเดินเล่น ห้างที่อยู่ใกล้ๆ หน่อยก็จะเป็น ห้างซีคอนบางแค ซึ่งปรับปรุงจากห้างฟิวเจอร์พาร์ค บางแคในอดีต ไกลไปอีกจะเป็นเดอะมอลล์บางแค ห้างใหญ่อีกห้างที่อยู่มานานคู่กับย่านบางแคนี้เลยก็ว่าได้
แบบห้อง : แบบห้องของโครงการมีให้เลือก 3 แบบ คือ Studio 1 bedroom และ 2 bedrooms ไซส์ห้องเริ่มต้นที่ 24 ตารางเมตร ไปจนถึงขนาด 43 ตารางเมตร ก็ถือว่ามีให้เลือกหลากหลายรองรับความต้องกการของผู้อยู่อาศัยได้หลายรูปแบบ ด้านวัสดุก็มีให้ตามมาตรฐานของคอนโดมิเนียมทั่วไป ไม่ได้โดดเด่นมากนัก ทางโครงการขายแบบ Fully Furnished ก็จริงแต่ชุดครัวจะไม่ได้ให้เตาไฟฟ้าและเครื่องดูดควัน ตรงนี้ต้องไปติดตั้งเพิ่มเติมกันเอง
สิ่งอำนวยความสะดวก : ได้มาตามมาตรฐนของคอนโดทั่วไป ประกอบด้วย ร้านค้า ล็อบบี้ สระว่ายน้ำ ฟิตเนส สวนลอยฟ้า Mail box และลู่วิ่งออกกำลังกาย ด้านความปลอดภัยก็มีการติดกล้อง CCTV มีระบบรักษาความปลอดภัยตลอด 24 ชั่วโมง รวมถึงการใช้ระบบคีย์การ์ดในการเข้า - ออกโครงการ
ราคา : เริ่มต้นที่ 2.2 ล้านบาท ตกอยู่ที่ตารางเมตรละ 88,000 บาท ก็ถือว่าสมน้ำสมเนื้อกับทำเลที่ใกล้รถไฟฟ้า ซึ่งในอนาคตจะคึกคักยิ่งขึ้นเพราะกลายเป็นสถานี interchange โครงการเป็นโครงการติดถนนใหญ่ เดินทางง่าย เดินทางได้หลากหลายวิธีทั้งรถเมล์ รถยนต์ รถไฟฟ้า หรือว่าเรือ ก็มีให้เลือกตามความสะดวก ก็เหมาะจะซื้อไว้เพื่ออยู่เองและหวังเก็งกำไรในระยะยาวด้วยเช่นเดียวกัน
คอนโด ชีวาทัย เพชรเกษม 27 (Chewathai Phetkasem 27) เหมาะสำหรับผู้ที่ทำงานอยู่ในแถบบางแคหรือฝั่งธนบุรี ใช้ถนนเพชรเกษม เพื่อเดินทางไปทำงานเป็นประจำ ต้องการคอนโดที่อยู่ติดกับรถไฟฟ้า เน้นการซื้อคอนโดเพื่อการอยู่อาศัยแบบสงบและเป็นส่วนตัว มีงบประมาณในกระเป๋าประมาณ 2.3 ล้านขึ้นไป
ชีวาทัย เพชรเกษม 27 (Chewathai Phetkasem 27)
58b62de31de72e0e22093627
chewathai-phetkasem-27-ชีวาทัย-เพชรเกษม





























































































































































