[Review] Mirage สุขุมวิท27 คอนโด Low Rise 8 ชั้น ทำเลใจกลางเมืองในย่านธุรกิจ
ซอยสุขุมวิท 27 (ซอยประภัสสร) ถนนสุขุมวิท แขวงคลองตันเหนือ เขตวัฒนา กรุงเทพมหานคร

Information - ข้อมูลโครงการ
Mirage สุขุมวิท27 คอนโด low rise 8 ชั้น ใจกลางเมืองในย่านธุรกิจ อโศก พร้อมพงศ์ แวดล้อมไปด้วยสถานที่อำนวยความสะดวก โครงการนี้อยู่ระหว่าง BTS อโศก กับ BTS พร้อมพงษ์ เหมาะสำหรับการพักผ่อนอย่างเต็มที่โดยการผสมผสานกันระหว่างงานสถาปัตยกรรม และงานศิลปะเข้าไว้ด้วยกัน ผนวกกับ Asian Cultural Design มาใช้ในการออกแบบพื้นที่ส่วนต่างๆ ของโครงการ ทั้ง lobby รวมถึงความต่อเนื่องไปยัง facilities ไปถึง outdoor swimming pool ซึ่งสอดแทรกความเป็น Tropical Design
Location
ที่ตั้งโครงการ Mirage สุขุมวิท

การเดินทาง

เส้นสีเหลืองคือแนวเส้นรถไฟฟ้าค่ะ มาจากสถานีอโศกเดินสกายวอล์คมาฝั่งตึก Interchange Tower แล้วเดินต่อมาที่ซอย 27 หรือจะต่อวินมอเตอร์ไซค์ก็ไม่ไกลมากค่ะ

เดินทางมาจากเส้นอโศกมนตรีนะคะ ให้เลี้ยวซ้ายเข้าเส้นสุขุมวิทมุ่งหน้าไปเส้นพร้อมพงษ์

มุ่งหน้าเข้าสู่ถนนสุขุมวิทขึ้นไปทางสถานีพร้อมพงษ์

ชิดซ้ายไว้ค่ะจะเจอซอยที่มีตึกร้างขนาดใหญ่เป็นจุดสังเกตชัดเจนเลยค่ะและมีโรงแรม Radisson Plaza เลี้ยวซ้ายเข้าซอยสุขุมวิท 27 เลยค่ะ
ซอยสุขุมวิท 27 จะตรงกับทางออกของซอยสุขุมวิท 20 พอดีค่ะ
เข้าซอยมาประมาณ 50 เมตร จะเห็นโครงการทางด้านขวามือเลยค่ะ
Insight
เจาะลึกภาพรวมโครงการ Mirage สุขุมวิท 27
อาคารภายนอกของโครงการค่ะ ลักษณะเป็นสี่เหลี่ยมผืนผ้าค่ะ มาดูแปลนจะได้เห็นภาพที่ชัดเจนยิ่งขึ้นค่ะ
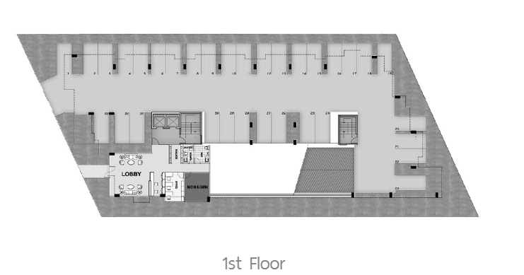
แปลน Ground Floor ชั้น1 เป็น Lobby ชั้น 1-3 เป็นลานจอดรถค่ะ
แปลนชั้น 2th Floor Plan จะเป็นส่วนกลางคือสระว่ายน้ำ สวนหย่อม ห้องสมุด และห้องฟิตเนสค่ะ
แปลนชั้น 3th – 8th Floor Plan ค่ะ
ต่อมาเป็นแปลนห้องค่ะ
แปลนห้อง TYPA A 49 Units 35.00 sq.m
แปลนห้อง TYPA B 7 Units 41.00 sq.m
แปลนห้อง TYPA C1 14 Units 50.00 sq.m
แปลนห้อง TYPA C2 7 Units 53.00 sq.m
แปลนห้อง TYPA C3 6 Units 45.00 sq.m
แปลนห้อง TYPA C4 1 Units 44.00 sq.m
แปลนห้อง TYPA D1 6 Units 63.50 sq.m
แปลนห้อง TYPA D2 6 Units 72.00 sq.m
แปลนห้อง TYPA D3 1 Units 70.00 sq.m
แปลนห้อง TYPA E1 7 Units 65.25 sq.m
แปลนห้อง TYPA E2 5 Units 55.00 sq.m
แปลนห้อง TYPA E3 1 Units 54.25 sq.m
แปลนห้องโดยรวมเห็นได้ว่ามีการแบ่งสัดส่วนที่ชัดเจนมีการใช้พื้นที่ใช้สอยให้คุ้มค่าจัดสรรปันส่วนให้สะดวกแก่ผู้ใช้งานดีค่ะ
2 BR 63.50 sq.m
ห้องตัวอย่าง 2 ห้องนอน 2 ห้องน้ำ ขนาด 63.50 ตารางเมตร
ห้อง 2 Bed 65.25 ตารางเมตร เป็นสองห้องนอนที่จัดมาดีและพื้นที่คุ้มค่าดีเมื่อเทียบกับห้อง Type อื่นที่ขนาดใหญ่กว่าบ้างหรือขนาดห้องไม่สมดุลแบบห้องนี้บ้างนะครับ ห้องนี้เป็นห้องที่จัดมาดีFunctionครบเหมาะจะอยู่ได้ 2-4 คน ครัวแยก ระเบียงโล่ง คอมแอร์แยก ห้องน้ำของห้องนอนใหญ่ Function ครบ มีอ่างอาบน้ำดเวยค่ะ
มาดูห้องตัวอย่างกันค่ะ เปิดประตูเข้ามาจะเห็นส่วนโต๊ะอาหารกับห้องนั่งเล่นและระเบียงค่ะ
ประตูเป็นระบบ access keycard ค่ะ
สวิชต์เปิด-ปิดไฟอยู่ติดกับประตูทางเข้าห้องเลยค่ะ
มองจากมุมห้องนั่งเล่นย้อนไปประตูทางเข้าค่ะ มีตู้ใส่รองเท้าสีเงินอยู่ใต้แอร์ จะเห็นห้องครัวอยู่ในส่วนหลังประตูและมีประตูกระจกบานเลื่อนกั้นด้วย ถัดไปติดกันเป็นส่วนห้องน้ำค่ะ
มาดูส่วนห้องครัวกันค่ะ
pantry ครัวเป็นรูปตัว L กั้นด้วยประตูกระจกบานเลื่อนอะลูมิเนียมสีดำ
Buil-in ด้วยชั้นวางของและช่องใส่เตาอบหรือไมโครเวฟด้านบน ใช้สีขาวตัดกับพื้นเคาน์เตอร์ครัวสีดำ ทำความสะอาดและไม่เลอง่ายด้วยค่ะ
บานพับเปิด-ปิดเป็นแบบ Soft-close สีขาวทั้งข้างในและข้างนอกเป็นผิวกลอสด้วยดูสะอาดหรูหราดีค่ะ ชั้นวางของก็เยอะสามารถวางของได้เยอะประหยัดพื้นที่ได้อีกค่ะ
เซฟตี้คัทจะซ่อนอยู่ในตู้เก็บของด้านบน ดูมิดชิดไม่ได้วางด้านนอกทำให้ไม่อันตรายค่ะ
ชั้นวางเตาอบหรือไมโครเวฟยื่นออกมาด้านบน อยู่ในระดับที่สูงกว่าหัวนิดหน่อยอาจจะต้องระวังในเรื่องของการนำอาหารออกเวลาร้อนเพราะมองไม่เห็นในระดับสายตาได้ค่ะ เครื่องดูดควันทางด้านขวาแบบระบายออกนอกอาคารด้วยค่ะ
ซิงก์อ่างล้างจานแบบหลุมเดียว สีเงินแสตนเลส ก๊อกน้ำแบบหัวเดียวเปิด-ปิดแบบบิดไปทางด้านซ้ายหรือขวา
ช่องเก็บช้อน-ส้อมอยู่ชั้นด้านล่างหยิบง่ายพอดีมือ เตาไฟฟ้าแบบคู่ด้านบนมาพร้อมเครื่องดูดควันด้วยค่ะ
จะเห็นว่ามีพื้นที่สำหรับเครื่องซักผ้าด้วย ตำแหน่งการจัดวางชิดผนัง ดีในแง่การใช้พื้นที่ค่ะ
ตกแต่งด้วยที่แควนผ้ากันเปื้อนกับที่ใส่หนังสือสูตรอาหาร สีดำตัดกับผนังสีขาว เข้ากับชุดครัวเลยค่ะ
เต้าเสียบปลั๊กไฟสำหรับเสียบกับตู้เย็นหรือเตาอบอยู่มุมด้านบนเคาน์เตอร์ครัวค่ะ
มาต่อกันที่ห้องนั่งเล่นค่ะ
ชุดโซฟาดูทีวีจัดแบบวางบน Side Board ถ้าเราเอา Side Board ออก และแขวนทีวีที่ผนังพื้นที่จะดูกว้างขึ้นอีกพอสมควร มีไฟดาวนืไลท์ 4 ดวงในห้องนั่งเล่น
โซฟาอยู่ติดกับประตูทางออกระเบียงค่ะ ฝ้าสูงประมาณ 2.45 เมตรค่ะ
โต๊ะกลางและชั้นวางทีวี สามารถวางทีวีได้ประมาณ 40 นิ้วค่ะ ตกแต่งสไตล์โมเดิร์นด้วยตู้วางทีวีสีดำ โต๊ะกลางพื้นลายไม้
ตู้วางทีวียังมีชั้นเก็บของสามารถเก็บหนังสือหรือนิตยสารได้ประหยัดพื้นที่โต๊ะกลางด้วยค่ะ
ดูส่วนระเบียงกันค่ะ
ข้างนอกระเบียงเป็นกระเบื้องกันลื่น พื้นลดระดับเล็กน้อย ปรับ Slope ลาดลง
ส่วนบานประตูเป็นประตูกระจกตัดแสงกรอบอลูมิเนียมสีดำพร้อมตัวล็อค
มีธรณีกั้นระเบียงประมาณ 1-2 นิ้วค่ะ
ตะแกรงเหล็กราวกั้นระเบียง ด้านบนเป็นไม้เพื่อสำหรับวางมือหรือเท้าแขนค่ะ
คอมแอร์ วางอยู่ด้านในผนังฝั่งนี้ มีประตูปิดมิดชิดเรียบร้อย ไม่ให้เกะกะสายตา
ทางมุมด้านขวามือเป็นเต้าเสียบปลั๊กไฟสำหรับติดตั้งเครื่องซักผ้าและก๊อกน้ำต่อกับเครื่องซักผ้าได้ค่ะ
เพดานด้านบนปูเป็นไม้ระแนงซ่อนไฟดาวน์ไลท์ 2 ดวงค่ะ
ต่อกันที่ห้องนอนใหญ่กันก่อนค่ะ เข้ามาจะเจอกับเตียงขนาด 5 ฟุต และมีเก้าอี้ 1 ตัวค่ะ
โครงเตียงเป็นแบบเมลามีนไม่แข็งเหมือนแบบเหล็กค่ะ เวลานอนจึงนุ่มสบายกว่าค่ะ
ปลายเตียงเป็นทีวีแบบแขวนผนังและด้านขวาเป็นตู้เสื้อผ้าแบบกลอสสีน้ำตาลทองตรงกับห้องน้ำภายในห้องค่ะ
ทีวีแขวนผนังช่วยประหยัดพื้นที่ปลายเตียงได้ค่ะ ใต้ทีวีมีเต้าเสียบปลั๊กไฟและรูเชื่อมต่อกับสัญญาณทีวีพร้อมเก้าอี้วางเข้ามุม 1 ตัว
โต๊ะหัวเตียงวางโคมไฟและมีเต้าเสียบปลั๊กไฟดว้ยค่ะ ติดกับหน้าต่างบานกระจก
บานกระจกเป็นแบบดันออกเพื่อเปิด-ปิด สีดำแบบอลูมิเนียม
มาต่อกันที่ห้องนอนเล็กค่ะ เปิดประตูไปจะเห็นเตียงชิดผนังและชั้นวาง Buil-in พร้อมหน้าต่างกระจกบานคู่
เตียงขนาด 2-3 ฟุต วางชิดผนังด้านในและมีโต๊ะหัวเตียงพร้อมโคมไฟด้วยค่ะ
ด้านบนเป็นเครื่องปรับอากาศและไฟดาวน์ไลท์ติดหน้าต่างกระจกค่ะ
ปลายเตียงด้านตรงข้ามเป็นชั้นวางของ Buil-in มีเต้าเสียบปลั๊กไฟและรูเชื่อมต่อสำหรับทีวีแขวนผนังด้วยนะคะ
ห้องน้ำใหญ่อยู่ติดกับห้องครัวมีอ่างอาบน้ำด้วยค่ะ
อ่างอาบน้ำขนาด 160 cm แบบฝังชิดผนังด้านใน
ก๊อกน้ำแบบปรับความร้อน-เย็นมาพร้อมกับผนังกระจกกั้นน้ำออกด้วยค่ะ
โถสุขภัณฑ์ American Standard
สายชำระแบบอ่อนเป็นแสตนเลส
อ่างล้างหน้าแบบฝังบนเคาน์เตอร์แกรนิตสีดำ กระจกแบบ 8 เหลี่ยม ด้านข้างเป็นปลั๊กเปิด-ปิดไฟดาวน์ไลท์และเต้าเสียบปลั๊กมีที่ปิดค่ะ
ประตูกระจกของ Hafele มียางกั้นแบบ Soft-close กันกระแทกก้วยค่ะ
Facilities
สิ่งอำนวยความสะดวกภายในโครงการ Mirage สุขุมวิท 27
ส่วนต้อนรับค่ะตกแต่งด้วยหน้าต่างบานกระจกรอบด้าน ล้อมรอบด้วยสวนหย่อมให้ความสบายตา ร่มเย็น ให้ความสบายตาน่ามองดีค่ะ
โซฟาต้อนรับในส่วนของแผนกต้อนรับลูกค้าค่ะ ใช้สีดำตัดกับกระจกหน้าต่างและโต๊ะกลางที่ตกแต่งด้วยกระจกและลายหินอ่อน
สระว่ายน้ำแบบระบบน้ำล้น สามารถว่ายออกกำลังกายได้ถ้าว่ายจากด้านยาวค่ะ
มีเตียงผ้าใบด้วยค่ะ ห้องที่อยู่ติดกับส่วนกลางอาจจะต้องทนฟังเสียงรบกวนจากการใช้บริการของลูกบ้านคนอื่นๆค่ะ เพราะใกล้กับส่วนกลางมากๆ
มีฝักบัวแบบ Rain Shower ให้ล้างตัวก่อนและหลังลงใช้บริการสระว่ายน้ำค่ะ
เดินลงจากสระว่ายน้ำจะเจอห้องฟิตเนส มีเครื่องวิ่ง 2 เครื่อง เครื่องปั่นจักรยาน 2 เครื่อง
ดัมเบลมีหลายขนาดแบ่งกันได้สำหรับทั้งผู้หญิงและผู้ชาย ช่วงเวลาตอนเช้าและหัวค่ำอาจจะต้องแย่งกันเพราะไม่ทั่วถึงสำหรับทุกคน
ทางด้านลานจอดรถใต้อาคารมีรปภ.รักษาความปลอดภัยคอยตรวจตราอยู่ตลอด 24 ชม.
ที่จอดรถใต้อาคารสำหรับผู้อยู่อาศัยแต่ละห้องเลยค่ะ
ในส่วนของ mail-box แยกส่วนของแต่ละห้องชัดเจนเลยค่ะ
อุปกรณ์ดับเพลิงสำหรับเหตุการณ์ฉุกเฉินค่ะ
ทางบรรไดหนีไฟก็สามารถใช้ได้ค่ะ
Environment
สภาพแวดล้อมรอบโครงการ Mirage สุขุมวิท 27
Mirage สุขุมวิท 27 เป็นโครงการที่อยู่ในทำเลค่อนข้างดี ทำเลโครงการดีมาก เดินไปรถไฟฟ้า BTS และ MRT ได้ที่สถานีอโศกหรือจะเดินไป Emporium ก็พอเดินได้ ริมถนนสุขุมวิทช่วงแถวนี้ เดินง่าย มีร้านค้าเยอะ ปลอดภัยตั้งแต่เช้าจรดค่ำ การเดินทางโดยไม่ใช้รถนี่สะดวกเพราะโครงการเป็นซอยที่นับว่าสะดวกแบบมากๆ เพราะมันลัดไปทองหล่อ เพชรบุรีได้โดยไม่ต้องผ่านออกมาที่สุขุมวิทเลย
ความอุดมสมบูรณ์รอบๆโครงการนี้เรียกว่า อุดมสมบูรณ์มากๆ มีร้านอาหาร มินิมาร์ท ร้านค้าขายของแนวญี่ปุ่น Villa Super Market หรือจะเดินไป Terminal21 ก็ยังได้ เรียกว่าสมบูรณ์สุดๆ แต่ราคาข้าวของจะแพงหน่อยนะและนี่ยังไม่นับปากซอยที่จะเปิดเป็นโรงแรม 2 ข้างซ้ายขวาเลย ซึ่งเราคงสามารถพึ่งพาได้ทั้ง ร้านอาหารและบริการซักรีดของโรงแรม และ มี รปภ เฝ้าหน้าปากซอยและในซอย ตลอด 24 ชั่วโมงเลย
เริ่มต้นจากแยกอโศกกันค่ะ ห้างสรรพสินค้า Terminal21 ติดกับสถานีรถไฟฟ้าอโศกและรถไฟใต้ดินสุขุมวิท
เดิน Sky-walk มาฝั่งตึก Interchange เลยค่ะ
ถ้ามาจากรถไฟฟ้าใต้ดินก็เดินขึ้นมาทางฝั่งตึก Interchange
ทางลงมาจากสถานีรถไฟฟ้าก็จะเจอพี่ๆมอเตอร์ไซค์รับจ้างคอยให้บริการค่ะถ้าไม่อยากเดินก็ใช้บริการได้
เดินไปตามทางเดินก็มีร้านขายยาเป็น Shop เล็กๆ 2-3 ร้านค้าค่ะ
มีปั๊มน้ำมันเชลล์อยู่ติดกับสุขุมวิท 23 ด้วยค่ะ
ซอยสุขุมวิท 23 ก็มีร้านค้าแผงลอยตามริมทางฟุตบาท 2 ข้างทางเลยค่ะ นี่แคืต้นซอยนะคะเพราะกลางๆซอยมีร้านอาหารชื่อดังหลายร้านเลยค่ะ
เดินขึ้นมาอีกหน่อยจะเจอตึก Jasmine City มีสตาร์บัคอยู่ข้างหน้าตึกเลยค่ะ
นอกจากสตาร์บัคแล้วยังมีร้านอาหารอิตาเลียนและร้านอาหารญี่ปุ่นด้วยค่ะ
ชั้นใต้ดินยังมีร้านสะดวกซื้อ MaxValu เปิดบริการ 24 ชม.เลยค่ะ และมีร้าน OfficeMate ขายอุปกรณ์เครื่องเขียนต่างๆด้วยค่ะ
ร้านสะดวกซื้อ MaxValu เปิดบริการ 24 ชม.เลยค่ะ
ข้างๆกันยังมีร้านอาหารญี่ปุ่นด้วยค่ะ
เดินต่อมาอีกหน่อยเจออาคารกลาสเฮ้าส์มีธนาคารยูโอบี ธนาคารธนชาติ ศูนย์ตรวจเครดิตบูโร
มีธนาคาร ธอศ และทรูคอฟฟี่ด้านในคาเฟ่ยังเป็นร้านอาหารด้วยนะคะ
ธนาคารยูโอบีและธนาคารธนชาติอยู่ติดกันเลยค่ะ
ตรงตึกกลาสเฮ้าส์มีมอเตอร์ไซค์วินบริการด้วยนะคะ
ซอยสุขุมวิท 25 เป็นซอยตันมีร้านก๋วยเตี๋ยวเรือต่อชามข้างหน้าซอยเลยค่ะ
ด้านในเป็นโรงแรม Preme Hostel และร้านอาหารค่ะ
เดินขึ้นมาเรื่อยๆจะเจอแฟมิลี่มาร์ท ร้านสูท และร้านตัดผมด้วยค่ะ
โรงแรม Radisson BLU อยู่ตรงด้านซ้ายมือของซอยสุขุมวิท 27 เลยค่ะ
ตรงซอยสุขุมวิท 27 ทางเข้าจะเป็นตึกร้างเก่าขนาดใหญ่ที่เหมือนทางโครงการสร้างไม่เสร็จ ตกดึกจะน่ากลัวมากค่ะซอยนี้ตรงทางเข้าจะมืด เปลี่ยว ถ้าเดินอาจต้องระมัดระวังเรื่องความปลอดภัยค่ะ
บริเวณนี้เป็นย่านธุรกิจและร้านค้าร้านอาหารมีผู้คนเดินพลุกพล่านตลอดทั้งวัน ตอนกลางวันจะเป็นพนักงานบริษัท คนทำงาน และนักท่องเที่ยวหลากหลายเชื้อชาติ ตอนกลางคืนถึงแม้จะไม่ใช่ย่านสถานบันเทิงแต่ยังคงมีนักท่องเที่ยวเดินกันอยู่ ทำให้สามารถเดินได้ตลอดทั้งเส้นทางแต่ต้องระมัดระวังการฉกชิงวิ่งราวหรือการโจรกรรมที่อาจจะเกิดขึ้นได้ตลอดเวลา ทั้งนี้ ย่านนี้ยังรายล้อมไปด้วยห้างสรรรพสินค้าและชาวต่างชาติที่อาศัยอยู่ คุณภาพของผู้คนที่อาศัยในย่านนี้ต่างจากภายนอกเมืองอาจทำให้พื้นที่ในบริเวรนี้มีราคาสูงและจำกัดต่อราคาด้วยค่ะ
Analysis
วิเคราะห์โครงการ Mirage สุขุมวิท 27
ทำเล : ทำเลโครงการดีมาก8ค่ะสามารถเดินไปรถไฟฟ้า BTS และ MRT ได้เลย ที่สถานีอโศก หรือจะเดินไป EmporiumและEmquatier ก็พอเดินได้ ริมถนนสุขุมวิทช่วงแถวนี้ เดินง่าย มีร้านค้าเยอะ ปลอดภัยตั้งแต่เช้าจรดค่ำ ส่วนการเดินทางโดยรถส่วนตัว ถ้าไม่ติดว่า หน้าโครงการเป็นซอยเล็กแค่พอดีรถสวนกับความน่าเบื่อของช่วงรถติดตอนเช้าเย็น ก็นับว่าสะดวกแบบมากๆ เพราะมันลัดไปทองหล่อ เพชรบุรีได้ โดยไม่ต้องผ่านออกมาที่สุขุมวิทเลย ที่จอดรถระดับ 57% แบบเข้าซองก็น่าจะเพียงพอเพราะทำเลแบบนี้คนเช่าต่างชาติและคนไม่ใช้รถน่าจะเยอะอยู่
สภาพแวดล้อม : ความอุดมสมบูรณ์รอบๆโครงการนี้เรียกว่าอุดมสมบูรณ์มากๆ มีร้านอาหาร มินิมาร์ท ร้านค้าขายของแนวญี่ปุ่น Villa Super Market หรือจะเดินไป Terminal21 ก็ยังได้ เรียกว่าสมบูรณ์สุดๆ แต่ราคาข้าวของจะแพงหน่อยนะและนี่ยังไม่นับปากซอยที่จะเปิดเป็นโรงแรม 2 ข้างซ้ายขวาเลย ซึ่งเราคงสามารถพึ่งพาได้ทั้งร้านอาหารและบริการซักรีดของโรงแรมและมีรปภเฝ้าหน้าปากซอยและในซอยตลอด 24 ชั่วโมงเลย
แบบห้อง :
1 ห้องนอน 1 ห้องน้ำ 35-50 ตารงเมตร
2 ห้องนอน 2 ห้องน้ำ 63.5-80 ตารางเมตร
แปลนห้องมีความหลากหลายทำให้ตัวเลือกในการเข้าอยู่อาศัยมีมากขึ้น สามารถเลือกตามประโยชน์ในการใช้สอยกับจำนวนสมาชิกในครอบครัวได้
สิ่งอำนวยความสะดวก:
สระว่ายน้ำ
ห้องออกกำลังกาย
ห้องสมุด
สวนหย่อม
ลิฟท์โดยสาร 2 ตัว
ที่จอดรถเข้าช่องจอด 67 คัน (57%)
ระบบ CCTV / Access Card
ราคาเริ่มต้น : 5.4 ล้านบาท
ราคาต่อตารางเมตรเริ่มต้นประมาณ 98,500 บาท
Mirage สุขุมวิท27
585c88c11de72e4ccececc65
mirage-สุขุมวิท27





























































































