[Review] ฟีล คอนโด ปิ่นเกล้า-จรัญฯ 59 (Feel Condo) คอนโด Low Rise ใกล้รถไฟฟ้าสถานีสิรินธร
ซอยจรัญสนิทวงศ์ 59 แขวง บางบำหรุ เขต บางพลัด กรุงเทพมหานคร

Review info
สวัสดีค่ะ วันนี้เราจะพาทุกท่านไปชมโครงการทางฝั่งธนบุรีที่มาเปิดทำเลในย่านปิ่นเกล้าบริเวณซอยจรัญสนิทวงศ์กับโครงการ ฟีล คอนโด ปิ่นเกล้า-จรัญฯ 59 (Feel Condo)คอนโด Low Rise สูง 5 ชั้น 2 อาคาร ตั้งอยู่ภายใน ซอยจรัญสนิทวงศ์ 59 อยู่ใกล้กับรถไฟฟ้าในอนาคตอย่าง รถไฟฟ้าสายสีน้ำเงินส่วนต่อขยายสถานีสิรินธร อยากรู้ว่าตัวโครงการเป็นอย่างไรตามไปอ่านรีวิวโครงการด้วยกันเลยค่ะ
ข้อมูลโครงการ ฟีล คอนโด ปิ่นเกล้า-จรัญฯ 59 (Feel Condo) โดยละเอียด
ชื่อโครงการ
Feel Condominium Pinklao - Charan 59
ราคาห้องเริ่มต้น
1.74 ล้านบาท
ราคาเฉลี่ยต่อ ตร.ม.
62,000 บาท/ตร.ม. (ราคาห้องโปรโมชั่นในปัจจุบัน)
เว็บไซต์โครงการ
เบอร์โทรติดต่อ
0844395703, 0991531212
วงเงินกู้ 100%
N/A
ราคาเมื่อวันที่ 17/11/2016
1 Bedroom พื้นที่ใช้สอย 24 ตารางเมตร ราคาเริ่มต้นที่ 1.74 ล้านบาท
Location
ที่ตั้งโครงการฟีล คอนโด ปิ่นเกล้า-จรัญฯ 59 (Feel Condo)
แผนที่จากโครงการ ฟีล คอนโด ปิ่นเกล้า-จรัญฯ 59 (Feel Condo) ตั้งอยู่บนถนนจรัญสนิทวงศ์ แขวงบางบำหรุ เขตบางพลัด กรุงเทพมหานคร อยู่ก่อนถึงสี่แยกบางพลัด ตัวโครงการตั้งอยู่ในซอยจรัญสนิทวงศ์ 59 ลึกเข้าไปในซอยประมาณ 200 ม.
โครงการตั้งอยู่ในย่านฝั่งธนบุรีซึ่งในอดีตเป็นแหล่งชุมชนดั้งเดิมค่ะ แต่ในปัจจุบันมีความเจริญมากขึ้น มีแผนการที่จะสร้างรถไฟฟ้าตัดผ่าน ทำให้พื้นที่ฝั่งธนบุรีมีความคึกคัก และเริ่มมีการสร้างคอนโดมิเนียมขึ้นมาหลายโครงการแล้ว ส่วนตัวโครงการ ฟีล คอนโด ปิ่นเกล้า-จรัญฯ 59 (Feel Condo) จะตั้งอยู่ในช่วงถนนจรัญสนิทวงศ์ ซึ่งเชื่อมต่อกับถนนในย่านฝั่งธนบุรีและถนนสำหรับเข้าเมืองได้ สำหรับถนนที่เชื่อมต่อถึงได้ก็จะมี
เส้นทางฝั่งทิศใต้ ถนนบรมราชชนนี และถนนสมเด็จพระปิ่นเกล้า มีจุดตัดของถนนจะอยู่ที่แยกบรมราชชนนี โดยถนนสมเด็จพระปิ่นเกล้ายังสามารถเชื่อมต่อไปยังถนนพระราม 3 ได้อีกด้วย
เส้นทางฝั่งทิศเหนือ ถ้าวิ่งขึ้นไปทางเหนือจะเชื่อมต่อกับถนนสิรินธร ซึ่งบรรจบกับถนนราชวิถี โดยผ่านสี่แยกบางพลัดค่ะ
การเดินทางด้วยรถยนต์ส่วนตัวนั้นสะดวกในระดับนึงค่ะ เนื่องจากถนนจรัญสนิทวงศ์สามารถตัดผ่านไปยังถนนสายต่างๆ อย่างที่บอกกันไปแล้ว จึงทำให้เดินทางไปไหนมาไหนได้ง่ายพอสมควร ตัวโครงการตั้งอยู่บริเวณที่ใกล้กับจุดตัดของถนนทั้งสี่แยกบางพลัด ซึ่งเป็นจุดบรรจบกันของถนนสินรินธร (เชื่อมต่อไปยังถนนกาญนาภิเษกได้) กับถนนราชวิถีที่สามารถมุ่งหน้าไปยังอนุสาวรีย์ได้ อีกแยกนึงที่่อยู่ใกล้ก็คือแยกบรมราชชนนี ซึ่งเป็นจุดบรรจบกันของถนนสมเด็จพระปิ่นเกล้ากับถนนบรมราชชนนี ที่มุ่งหน้าไปยังถนนกาญจนาภิเษก และย่านปริมณฑลอย่างนครปฐม, สมุทรสาครได้ ส่วนตัวถนนจรัญสนิทวงศ์เอง ถ้าขับขึ้นไปทางทิศเหนือจะมุ่งหน้าไปยังวงศ์สว่างได้ แต่ถ้าขับลงมาทางทิศใต้จะมุ่งหน้าไปยังรัชดาภิเษกได้ค่ะ
สำหรับใครที่ไม่มีรถยนต์ส่วนตัวก็ใช่ว่าจะไม่สะดวกสบายนะคะ แต่เป็นความสะดวกสบายที่ต้องรอกันสักหน่อย เพราะถนนจรัญสนิทวงศ์นี้อยู่ในระหว่างการก่อสร้างรถไฟฟ้าส่วนต่อขยายสายสีน้ำเงินช่วงบางซื่อ-ท่าพระ สถานที่ที่ใกล้ที่สุดคือ สถานีสิรินธร อยู่ห่างจากตัวโครงการประมาณ 400-800 เมตร โดยสถานีสิรินธรนี้ยังเป็นสถานี interchange กับรถไฟฟ้าสายสีแดงสถานีสิรินธรอีกด้วย ก็ถือว่าเป็นคอนโดที่ตั้งอยู่ในทำเลแสนสะดวกในด้านการคมนาคมนะคะ ถ้าจับจองพื้นที่เพื่อรอให้รถไฟฟ้าสร้างเสร็จได้ก็ถือว่าคุ้มค่ากับการลงทุน
แล้วในช่วงรอนี้เราจะใช้อะไรกันล่ะ นอกจากรถเมล์ที่มีให้นั่งกันแล้ว ก็ยังมีเรือที่คนในละแวกนี้ใช้บริการกันเป็นประจำด้วยค่ะ โดยท่าเรือที่ใกล้ที่สุดจะเป็น ท่าเรือสะพานกรุงธนฯ ห่างจากตัวโครงการไปประมาณ 1.7 กม. โดยสารสองแถวไปก็ถึง ถือว่าเป็นอีกหนึ่งทางเลือกสำหรับคนทำงานในเมือง ที่ไม่ต้องไปผจญกับรถติดบนถนน เปลี่ยนมาเป็นโดยสารเรือเข้าเมืองแทนได้ในเวลาเร่งด่วน
การเดินทาง
เส้นทางการเดินทางเราเลือกขับรถยนต์ส่วนตัวจากถนนราชวิถี ผ่านสะพานกรุงธน หรือที่เรารู้จักกันดีในชื่อของสะพานซังฮี้ ซึ่งเป็นสะพานข้ามแม่น้ำเจ้าพระยามายังฝั่งธนบุรี เมื่อข้ามสะพานมาแล้วให้ขับตรงมาเรื่อยๆ จนกระทั่งเจอกับสี่แยกบางพลัด ให้เลี้ยวซ้ายเข้าสู่ถนนจรัญสนิทวงศ์ ซอยจะอยู่ฝั่งตรงข้ามค่ะ ให้ขับชิดขวาเพื่อเตรียมตัวกลับรถ เข้าสู่ซอยจรัญสนิทวงศ์ 59 และตรงเข้าไปในซอยประมาณ 200 เมตรก็จะถึงที่ตั้งโครงการ ฟีล คอนโด ปิ่นเกล้า-จรัญฯ 59 (Feel Condo) แล้วค่ะ
Environment
สภาพแวดล้อมรอบโครงการฟีล คอนโด ปิ่นเกล้า-จรัญฯ 59 (Feel Condo)
สภาพแวดล้อมรอบๆ โครงการจะเป็นย่านชุมชนดั้งเดิมค่ะ เป็นบ้านพัก อพาร์ทเมนต์ หอพัก ซึ่งอยู่อาศัยกันมานานแล้ว บรรยากาศจึงมีความเงียบสงบเป็นส่วนตัว เหมาะกับคนที่ไม่ชอบความวุ่นวายและความพลุกพล่าน ถือเป็นซอยที่เหมาะกับการอยู่อาศัยอย่างแท้จริงค่ะ
พื้นที่โดยรอบของโครงการในทิศใต้ ตะวันออกและตะวันตกจะอยู่ติดกับถนนทั้งที่เป็นถนนซอยจรัญสนิทวงศ์และซอยย่อย ส่วนในทิศเหนือจะอยู่ติดกับที่อยู่อาศัยประเภทบ้านเดียวค่ะ ด้านวิวก็ไม่ได้มีอะไรเป็นพิเศษ เพราะเป็นอาคาร Low Rise สูงแค่ 5 ชั้น แต่ในระยะประชิดในทางทิศตะวันตกจะมีอพาร์ทเมนต์สูง 5 ชั้นเหมือนกัน สร้างอยู่ใกล้กัน ทำให้ห้องพักทางฝั่งนี้โดนบล็อกวิวในระยะใกล้ค่ะ ส่วนความเจริญอื่นๆ จะอยู่บนถนนจรัญสนิทวงศ์ ซึ่งสามารถลัดเลาะไปยังสถานที่ต่างๆ อย่างห้างเมเจอร์ ปิ่นเกล้า และตั้งฮั่วเส็งได้ค่ะ
เริ่มต้นการสำรวจสภาพเเวดล้อมกันที่สำนักงานขายของ ฟีล คอนโด ปิ่นเกล้า-จรัญฯ 59 (Feel Condo) ซึ่งอยู่ภายในซอยจรัญสนิทวงศ์ 59 ห่างจากปากซอยมาประมาณ 200 เมตรค่ะ ด้านหลังสำนักงานขายเป็นตัวอาคารของโครงการที่กำลังก่อสร้างอยู่ในขณะนี้ด้วยค่ะ
โครงการนี้เริ่มก่อสร้างตั้งแต่ช่วงเดือนกุมภาพันธ์ 2559 และคาดว่าจะสร้างแล้วเสร็จประมาณเดือนพฤษภาคม 2560 ค่ะ
ด้านหน้าตัวโครงการจะเป็นบ้านเดี่ยวและอาคารสูงประมาณ 4 ชัั้น
ส่วนด้านข้างของโครงการทั้งฝั่งซ้ายและขวาจะเป็นซอยย่อยเล็กๆ ซึ่งเป็นซอยตัน ทางฝั่งซ้ายมือตามภาพจะอยู่ติดกับอพาร์ทเมนต์สูง 5 ชั้น ห้องทางฝั่งนี้เลยจะโดนบล็อกวิวไปส่วนนึงเลย และถ้าขับลึกเข้าไปในซอยก็เป็นบ้านเดี่ยวค่ะ
เดี๋ยวเราจะพาเดินเข้าไปในซอยจรัญสนิทวงศ์ 59 ก่อนนะคะ ตัวซอยจะเป็นซอยเล็กๆ ให้รถวิ่งสวนกัน ไม่มีทางเดินเท้าให้ใช้งาน เวลาเดินก็ต้องระวังรถกันหน่อยนะคะ
ตัวซอยค่อนข้างเงียบสงบเหมาะกับการอยู่อาศัยอย่างแท้จริงค่ะ อาคารสูงๆ ก็ไม่มีให้เห็น สูงที่สุดก็แค่ 5 ชั้นเท่านั้นเองค่ะ นอกนั้นจะเป็นบ้านเดี่ยวที่อยู่กันมานานแล้ว
เดินตรงมาเรื่อยๆ ก็เจอกับซอยย่อยอีกแล้วค่ะ
ซอยย่อยมักจะเป็นซอยตันด้วย
เข้ามาอีกนิดจะเป็นอาคารพักอาศัยสูงประมาณ 3-4 ชั้น ซึ่งเป็นพื้นที่ส่วนบุคคลค่ะ
บรรยากาศภายในซอยค่ะ เงียบๆ เป็นส่วนตัว ไม่พลุกพล่านดีค่ะ
แต่ซอยนี้จะมีปัญหาเรื่องการเข้า-ออกนิดหน่อยนะคะ เพราะเป็นซอยขนาดเล็ก เวลาขับรถสวนกันอาจจะต้องเบี่ยงรถหรือชะลอหลบกันบ้าง และถ้ามีคนอยู่อาศัยมากขึ้นอาจจะทำให้เกิดรถติดภายในซอยช่วงชั่วโมงเร่งด่วนได้
ต่อไปเดินย้อนออกมาทางปากซอยกันนะคะ ตรงนี้เป็นบริษัทไซแอนติฟิค ซัพพลาย จำกัด จำหน่ายเกี่ยวกับเครื่องมือทางวิทยาศาสตร์ค่ะ
จะเห็นว่าใกล้ๆ กับปากซอยมีการจอดรถบริเวณถนนด้วย ตรงนี้ทำให้เราลำบากเวลาขับรถหรือเดินเข้า-ออกอยู่เหมือนกัน
ตรงนี้มีร้านขายอาหารตามสั่งอยู่ด้วยค่ะ ในซอยอาจจะไม่ได้มีของกินอยู่เยอะมากนะคะ แต่ก็ยังพอมีรถขายอาหารหรือร้านอาหารข้างทางอยู่บ้าง
ออกมาจนถึงปากซอยจะเป็นอพาร์ทเมนต์ฉัตรนิสาสูงประมาณ 5 ชั้นค่ะ ด้านล่างเปิดเป็นร้านค้าเล็กๆ มีร้านกาแฟ ขายเครื่องดื่มและมินิมาร์ทค่ะ
ถึงปากซอยแล้วค่ะ ถนนหลักที่ใช้จะเป็นถนนจรัญสนิทวงศ์ ซึ่งกำลังก่อสร้างทางเดินรถไฟฟ้าอยู่ในขณะนี้
เราเลือกเดินมาทางขวามือของซอยจรัญสนิทวงศ์ 59 นะคะ ตรงนี้จะมีสะพานลอยข้ามไปยังฝั่งตรงข้ามได้
บริเวณสะพานจะเป็นที่ตั้งของกรมที่ดิน กระทรวงมหาดไทย
แหงนหน้ามองด้านบนจะเป็นเส้นทางเดินรถไฟฟ้าส่วนต่อขยายของสายสีน้ำเงิน ดูเป็นรูปเป็นร่างขึ้นมาแล้ว
เดินตรงมาอีกหน่อจะเป็นอาคารชั่วคราวของคณะสถาปัตยกรรมศาสตร์ของมหาวิทยาลัยศิลปากร
เยื้องกับคณะสถาปัตยกรรมศาสตร์จะเป็นป้ายรถประจำทางค่ะ เดินมาจากปากซอยของโครงการฟีล คอนโด ปิ่นเกล้า-จรัญฯ 59 (Feel Condo) แค่ 100 เมตรก็ถึง
เดินตรงมาอีกจะเจอกับธนาคารกรุงเทพ สาขาบางยี่ขัน
บริเวณนี้เป็นทางสำหรับกลับรถด้วยค่ะ ตรงข้ามเป็นโชว์รูมโตโยต้าค่ะ
บริเวณฟุตบาทที่ติดกับถนนหลักจะคึกคักขึ้นมาหน่อยค่ะ ใต้อาคารพาณิชย์ต่างก็เปิดเป็นร้านค้าบ้าง มีร้านอาหารให้ฝากท้องกันบ้างประปราย
ช่วงซอยที่อุดมสมบูรณ์มากๆจะเป็นช่วงซอยจรัญสนิทวงศ์ 57⁄1 ค่ะ หน้าปากซอยมีร้านพิซซ่าเปิดให้บริการอยู่ด้วย
ในซอยก็มีรถเข็นจอดอยู่ ตอนเย็นๆ คงจะมีแม่ค้าเข็นออกมาค้าขายอาหารกันอยู่เยอะพอสมควร
แต่ในช่วงเวลากลางวันเองก็มีร้านอาหารข้างทางให้เห็นอยู่บ้างนะคะ ถือว่าหาของกินได้ไม่ยากเท่าไร
เดินตรงมาเรื่อยๆ ก่อนจะถึงซอยจรัญสนิทวงศ์ 57 หรือซอยวัดรวกบางบำหรุ จะเจอกับ 7-11 เลยซอยจรัญสนิทวงศ์ 57 ไปอีกนิดก็จะเป็นสะพานลอยข้ามฟากค่ะ เดี๋ยวเราจะขอขึ้นไปเก็บบรรยากาศบนสะพานลอยมาให้ชมกันสักหน่อยนะคะ
ขึ้นมาบนสะพานลอยกันเเล้ว ภาพที่เห็นจะเป็นถนนจรัญสนิทวงศ์มุ่งหน้าไปยังแยกบางพลัด ซึ่งเป็นจุดตัดระหว่างถนนสิรินธรและถนนราชวิถีค่ะ การก่อสร้างรถไฟฟ้าทำให้ต้องปิดช่องจราจรไป 1 ช่อง ทำให้ช่วงเร่งด่วนรถติดอยู่เหมือนกัน
ส่วนฝั่งนี้จะเป็นสภาพถนนที่มุ่งหน้าไปยังแยกบรมราชชนนี ซึ่งเป็นจุดตัดระหว่างถนนสมเด็จพระปิ่นเกล้ากับถนนบรมราชชนนีค่ะ
มองจากบนสะพานลอยจะเห็นว่า ฝั่งซอยคู่ดูจะอุดมสมบูรณ์กว่าฝั่งซอยคี่เล็กน้อย เดี๋ยวเราลองลงไปสำรวจกันดีกว่าค่ะ
ลงมาฝั่งซอยคู่ก็จะเจอจุดรอรถโดยสารประจำทาง และร้านค้าแผงลอย
อาหารฝั่งนี้มีเยอะกว่า ก่อนจะกลับบ้านก็สามารถแวะมาซื้อก่อนได้ค่ะ ยังอยู่ในระยะที่เดินถึงง่าย
ร้านอาหารมีหลากหลายทั้งส้มตำ ไก่ย่าง ข้าวแกง ส่วนมากเป็นอาหารจานด่วนที่ซื้อง่ายขายคล่อง
เดินย้อนมาอีกนิดจะเป็นโครงการ ธนา แอสโทเรีย (Thana Astoria) ซึ่งตั้งอยู่บริเวณซอยจรัญสนิทวงศ์ 46 ติดอยู่กับถนนใหญ่เลยค่ะ
Insight
เจาะลึกภาพรวมโครงการฟีล คอนโด ปิ่นเกล้า-จรัญฯ 59 (Feel Condo)
โครงการ ฟีล คอนโด ปิ่นเกล้า-จรัญฯ 59 (Feel Condo) เป็นคอนโดมิเนียมประเภท Low Rise สูง 5 ชั้นจำนวน 2 อาคาร ตั้งอยู่บนที่ดินขนาด 1-0-70 ไร่ มีจำนวนยูนิตทั้งหมด 79 ยูนิต จากบริษัท ไลฟ์ อิมเมจ คอนโดมิเนียม จำกัด ดิเวลลอปเปอร์ในกลุ่มฟีล พร็อพเพอร์ตี้ ซึ่งเป็นกลุ่มพัฒนาอสังหาริมทรัพย์ประเภทบ้านทาวน์เฮ้าส์ บ้านเดี่ยว และอาคารชุด
ลักษณะการออกแบบอาคารเป็นรูปตัว L หน้าอาคารเปิดโล่งทำเป็นลานจอดรถแบบกลางแจ้ง ด้านการตกแต่งจะสไตล์ Modern เน้นโทนสีขาวและสีเทาเป็นหลักค่ะ
Master plan
มาดู Master plan กันเลยนะคะ ทางเข้าหลักของคอนโดจะเป็นถนนของซอยจรัญสนิทวงศ์ 59 ถัดจากทางเข้า-ออกจะเป็นลานจอดรถแบบกลางแจ้งและใต้อาคารอีกนิดหน่อย โดยพื้นที่จอดรถทั้งหมดคิดเป็น 50% รวมการจอดแบบซ้อนคัน ด้านซ้ายมือแบ่งพื้นที่ให้จอดรถจักรยานยนต์ไว้ด้วยอีกประมาณ 10 กว่าคัน ส่วนทางเข้าอาคารจะใช้ทางเข้าของอาคาร A เข้าไปแล้วจะเจอกับล็อบบี้ ด้านซ้ายของล็อบบี้จะเป็นห้องนิติบุคคล ถัดไปเป็นฟิตเนส ส่วนสระว่ายน้ำจะต้องเดินไปใช้ด้านหลังอาคาร โดยเลี้ยวมาทางขวามือผ่านโถงลิฟต์ ซึ่งการเข้า-ออกจะใช้ระบบ key Card ทั้งหมดค่ะ
ลิฟต์โดยสารของที่นี่ให้อาคารละ 1 ตัวแบบไม่ล็อกชั้น (ตัวซ้ายเป็นของอาคาร A ตัวขวาเป็นของอาคาร B) ในชั้นล่างนี้จะมียูนิตพักอาศัยอยู่ 9 ยูนิต จะอยู่ที่อาคาร B เท่านั้นนะคะ ห้องด้านล่างนี้จะสะดวกในการใช้ Facilities แต่อาจจะต้องเจอกับความพลุกพล่านและเสียงรบกวนอยู่บ่อยๆ
ภาพจำลองบรรยากาศของอาคารค่ะ ด้านล่างจะเป็นส่วนของ Facilities ทั้งหมด
แผนผังอาคาร
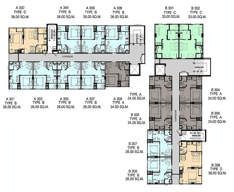
มาดูชั้น 2-4 กันต่อนะคะ ชั้นบนจะแยกอาคารกัน เพื่อลดความหนาแน่นและเพื่อความปลอดภัย ภายในอาคารส่วนของอาคาร A จะมียูนิตทั้งหมด 9 ยูนิต ส่วนมากเป็นห้องขนาด 26 ตร.ม. ค่ะ จะมีแค่ห้องมุมบนซ้ายที่เป็นห้องขนาด 38 ตร.ม. และห้องมุมขวาล่าง ขนาด 24 ตร.ม. ลิฟต์จะอยู่ริมอาคารอยู่ตรงข้ามกับบันได้หนีไฟจุดแรก เวลาใช้งานก็ไม่ไปต้องยืนรอหน้าห้องใคร ส่วนบันได้หนีไฟอีกจุดจะอยู่ช่วงกลางตึก ซึ่งเป็นตำแหน่งที่เหมาะสมดีค่ะ
อาคาร B มีจำนวนยูนิตอยู่ที่ 9 ยูนิตเท่ากับอาคาร A แต่ดูจะหนาแน่นกว่าอาคาร A อยู่สักหน่อยค่ะ เพราะมีห้องขนาดใหญ่ทั้ง 33 ตร.ม.และ 38 ตร.ม. ตั้งอยู่บริเวณมุมอาคาร ใครที่เล็งห้องขนาด 33 ตร.ม.คงจะต้องคิดหนักกันหน่อยนะคะ เพราะห้องวางตัวอยู่ใกล้กับโถงเข้าลิฟต์เลย ใครจะไปจะมาก็ต้องผ่านหน้าห้อง อาจจะทำให้รู้สึกไม่เป็นส่วนตัวเท่าที่ควร
มาดูชั้น 5 ของ ฟีล คอนโด ปิ่นเกล้า-จรัญฯ 59 (Feel Condo) กันค่ะ ด้วยจำนวนยูนิตที่ไม่เยอะ และสูงแค่ 5 ชั้นก็ทำให้ความหนาแน่นในการใช้ลิฟต์ลดลงไปบ้าง บางคนอยากจะออกกำลังกายก็สามารถเดินขึ้นลงบันไดหนีไฟแทนได้เหมือนกัน ส่วนจำนวนยูนิตบนชั้น 5 จะอยู่ที่ 8 ยูนิตค่ะ แต่ทั้ง 2 อาคารจะได้ห้องมุมขนาด 52 ตร.ม. มาแทน
แผนผังห้อง
ห้องของโครงการ ฟีล คอนโด ปิ่นเกล้า-จรัญฯ 59 (Feel Condo) จะมีให้เลือกอยู่ 2 แบบ 5 type ดังนี้
แบบแรกเป็นห้อง 1 Bedroom พื้นที่ใช้สอย 24 ตร.ม. ขนาดเล็กกะทัดรัด เหมาะจะอยู่กันแค่ 1-2 คน เป็นไซส์มาตรฐานของคอนโดสมัยนี้ที่เน้นการทำห้องเล็กแต่ใช้ประโยชน์ได้สูงสุด การจัดวางฟังก์ชันภายในห้องถือว่าทำได้ค่อนข้างดีและลงตัว เริ่มจากห้องนั่งเล่น ซึ่งมีพื้นที่เชื่อมต่อกับห้องนอน โดยมีประตูกระจกบานเลื่อนกั้นแยกออกจากกันแต่ก็ยังคงความต่อเนื่องของพื้นที่ไว้ ห้องจึงดูโปร่ง ส่วนครัวจะอยู่อีกฝั่งของห้อง อยู่ใกล้กับห้องน้ำและระเบียง ซึ่งช่วยในการระบายกลิ่นได้ส่วนหนึ่ง แต่ก็ยังไม่เหมาะกับการทำอาหารหนักๆ อยู่ดีเพราะครัวเป็นแบบเปิดค่ะ
แบบต่อมาคือ 1 Bedroom พื้นที่ใช้สอย 26 ตร.ม. พื้นที่ในแต่ละส่วนใหญ่ขึ้นมาอีกหน่อย แต่วางฟังก์ชันเหมือนกับห้องแบบแรกเลยค่ะ
ห้องขนาดต่อมาเป็นแบบ 1 Bedroom พื้นที่ใช้สอย 33 ตร.ม. เป็นห้องมุมของอาคาร B นอกจากจะได้ห้องที่ขนาดกว้างขึ้นแล้ว ยังแบ่งพื้นที่ต่างๆให้เปิดสัดส่วนมากยิ่งขึ้นด้วยการก่ออิฐกั้นห้องนอนแยก ส่วนครัวก็สามารถกั้นประตูแยกให้เป็นครัวปิดได้ด้วย
ห้องใน Type D จะเป็นห้องหน้ากว้าง 8.10 เมตร ค่ะ เป็นห้องแบบ 1 Bedroom พื้นที่ใช้สอย 38 ตร.ม. เข้าห้องมาจะเจอส่วนของห้องนั่งเล่น ขวามือเป็นห้องครัวที่อยู่ติดกับระเบียงและห้องน้ำ อีกฝั่งกั้นเป็นห้องนอนขนาดใหญ่มาให้ แถมยังมีระเบียงแยกให้ในห้องนอนอีกด้วยค่ะ
ห้องแบบ 2 Bedrooms พื้นที่ใช้สอย 52 ตร.ม. เป็นแบบที่ใหญ่ที่สุดแล้วค่ะ เป็นห้อง 2 ห้องนอน 2 ห้องน้ำ เหมาะกับอยู่อาศัยกันเป็นครอบครัว เปิดประตูเข้ามาจะเจอพื้นที่ของห้องนั่งเล่นก่อนเป็นอันดับแรก ห้องแบ่งเป็นโซนพักผ่อนและโซนทำกิจกรรมแยกกันเป็นสัดส่วนดี โดยฝั่งซ้ายมือจะเป็นห้องนอนใหญ่ (มีห้องน้ำในตัว) และห้องนอนเล็ก ส่วนฝั่งขวาจะเป็นครัวซึ่งมีพื้นที่ติดกับห้องน้ำและระเบียงซักล้าง
โมเดลของโครงการ ฟีล คอนโด ปิ่นเกล้า-จรัญฯ 59 (Feel Condo)
มาดูโมเดลจำลองอาคารของโครงการกันบ้างนะคะ เริ่มต้นกันที่ทางเข้าของโครงการกันก่อนเลย ทางเข้าจะแยกเป็นซอยย่อยจากซอยจรัญสนิทวงศ์ 59 เมื่อขับรถเข้ามาจะเจอกับลานจอดรถกลางแจ้ง ส่วนที่พักอาศัยจะแบ่งออกเป็นอาคาร A และอาคาร B สูง 5 ชั้นทางเข้าล็อบบี้จะอยู่ที่อาคาร A ตามภาพค่ะ การแยกออกเป็น 2 อาคารเเบบนี้ก็เพื่อลดความหนาแน่นในการอยู่อาศัย และเพื่อความปลอดภัยของผู้อาศัยด้วยค่ะ
ชั้นล่างจะเป็นชั้นของ Facilities ทั้งล็อบบี้ ห้องนิติบุคคล ฟิตเนส และสระว่ายน้ำ ทางโครงการทำทางเข้า-ออกไว้ทางเดียวที่อาคาร A โดยอาคาร B จะต้องใช้ทางเชื่อมบริเวณชั้น 1 ในการเข้า-ออก
อาคารเป็นรูปตัว L หันหน้ามาทางซอยย่อยค่ะ สำหรับอาคาร A นั้นส่วนใหญ่จะเป็นห้องแบบ 1 Bedroom พื้นที่ใช้สอย 26 ตร.ม. (สีส้ม) รองลงมาเป็นห้องแบบ 1 Bedroom พื้นที่ใช้สอย 24 ตร.ม. (สีเขียว) และในชั้น 5 จะมีห้องแบบ 2 Bedroom พื้นที่ใช้สอย 52 ตร.ม. (สีแดง) ซึ่งเป็นห้องมุมจำนวน 1 ยูนิต
ส่วนอาคาร B จะมีจำนวนยูนิตในห้องแบบ 1 Bedroom พื้นที่ใช้สอย 26 ตร.ม. (สีส้ม) และ 1 Bedroom พื้นที่ใช้สอย 24 ตร.ม. (สีเขียว) ใกล้เคียงกันค่ะ และก็มีห้อง 2 Bedroom พื้นที่ใช้สอย 52 ตร.ม. (สีแดง) ซึ่งเป็นห้องมุมจำนวน 1 ยูนิต เหมือนกับอาคาร A
มาดูอีกมุมกันนะคะ ด้านนี้เป็นด้านหลังอาคาร A จะส่วนมากห้องพักจะเป็น 1 Bedroom พื้นที่ใช้สอย 26 ตร.ม. (สีส้ม) ส่วนห้องมุมจะเป็นห้องแบบ 1 Bedroom พื้นที่ใช้สอย 38 ตร.ม. (สีฟ้า) ส่วนอาคาร B ห้องมุมจะเป็นห้อง 1 Bedroom พื้นที่ใช้สอย 33 ตร.ม. (สีชมพู) ค่ะ
ด้านหลังอาคาร A จะเป็นที่ตั้งของสระว่ายน้ำค่ะ ขนาดไม่ใหญ่ ไม่เล็กประมาณ 3.5 x 10 ม. ลึก 1.2 ม. ลักษณะเป็นสระ Outdoor ระบบเกลือ ด้านข้างมีเฉลียงสำหรับมานั่งเล่นพักผ่อนได้
สำหรับอาคาร B จะเป็นห้องแบบ 1 Bedroom ทั้งหมดค่ะ เริ่มต้นตั้งแต่ขนาด 24-38 ตร.ม.
1 BR 26 sq.m.
ห้องตัวอย่างแบบ 1 Bedroom พื้นที่ใช้สอย 26 ตร.ม.
ห้องตัวอย่างที่ทางฟีล คอนโด ปิ่นเกล้า-จรัญฯ 59 (Feel Condo) จัดไว้ให้ชมมีแค่ห้องเดียวนะคะ เป็นแบบ 1 Bedroom ขนาด 26 ตารางเมตร รูปสี่เหลี่ยมจัตุรัส เป็นแปลนมาตรฐานที่พบเห็นกันบ่อยๆ สำหรับห้องไซส์เล็ก ทางโครงการขายแบบ Fully Fitted ได้เฟอร์นิเจอร์เป็นตู้เสื้อผ้าแบบ Built-in และเคาน์เตอร์ครัว เหมาะสำหรับคนที่มีงบในการแต่งห้องเองค่ะ
การจัดพื้นที่ในห้องแบ่งเป็น 5 ส่วนหลักๆ ได้แก่ ห้องนั่งเล่น ห้องครัว ห้องนอน ห้องน้ำและระเบียงซักล้าง เมื่อเปิดประตูเข้ามาจะเจอกับพื้นที่ส่วนห้องนั่งเล่น เชื่อมต่อไปยังห้องนอน ซึ่งกั้นแยกส่วนด้วยประตูกระจกบานเลื่อน ทำให้ห้องดูโปร่งและกว้าง อีกฝั่งของห้องจะเป็นห้องครัว ห้องน้ำและระเบียงซักล้าง โดยห้องครัวจะเป็นครัวแบบเปิด เหมาะที่จะทำอาหารแบบเบาๆ ซ้ายมือของครัวจะเป็นห้องน้ำ ส่วนขวามือจะเป็นพื้นที่ระเบียงซักล้าง
ทางโครงการตั้งประตูทางเข้าไว้ให้ชมด้วยค่ะ วัสดุเป็น HDF (High Density Fiber) ที่สามารถทนความชื้นได้ดี พร้อมกับติดตาแมวไว้ให้ส่อง เพื่อความปลอดภัย
ด้ามจับเป็นสเตนเลสก้านโยก พร้อมรูกุญแจเสียบล็อกห้องจากด้านนอก
มาชมภาพ 360 องศา เพื่อให้เห็นภาพรวมของห้องนะคะ เนื่องจากห้องนี้เป็นห้องตัวอย่างจึงตกแต่งมาแบบจัดเต็ม แต่ในห้องจริงจะมาแบบห้องโล่งๆ มีเพียงตู้เสื้อผ้าและเคาน์เตอร์ครัวมาให้ แต่เราก็สามารถดูวิธีการตกแต่งในห้องตัวอย่างไว้เป็นไอเดียได้ค่ะ
สำหรับห้องในโครงการนี้ความสูงของฝ้าจนถึงเพดานอยู่ที่ 2.5 เมตร เป็นความสูงตามมาตรฐานของคคอนโดมิเนียมสมัยนี้ ไฟที่ได้เป็นโคมซาลาเปา ส่วนผนังเป็นแบบฉาบเรียบทาสีค่ะ
หน้าประตูทางเข้าทำตัวจบขอบด้วยไม้สำเร็จรูป ส่วนพื้นใช้วัสดุเป็นลามิเนตลายไม้สีตามภาพค่ะ
ส่วนแรกที่จะพาไปชมกันจะเป็นห้องนั่งเล่นค่ะ ขนาด 2.9 x 2.6 เมตร เชื่อมต่อกับห้องนอน ซึ่งกั้นแยกกันด้วยประตูกระจกบานเลื่อน
มุมนี้อาจจะหาโซฟาตัวยาวแบบ 3 ที่นั่งมาวาง หรือจะจัดแบ่งพื้นที่เป็นโซฟาแบบ 2 ที่นั่งและทำเป็นมุมทำงานเหมือนกับห้องตัวอย่างก็ได้ค่ะ ส่วนด้านหลังที่เห็นเป็นบานหน้าต่าง ในห้องจริงจะเป็นผนังทึบแทนนะคะ
อีกด้านจะเป็นพื้นที่ว่างพร้อมติดตั้งปลั๊กไฟและช่องรับสัญญาณทีวีให้สำหรับต่อทีวีได้ค่ะ อาจจะหาตู้ลอย,ตู้ Built-in มาตั้งแบบในภาพก็ได้ แต่ขนาดต้องไม่กว้างเกิน 1.5 เมตรนะคะ ไม่อย่านั้นจะกินมุมทางเดินด้านข้างไป ทำให้เดินเข้าไปใช้ห้องครัวไม่สะดวก แต่ถ้าใครไม่อยากซื้อเฟอร์นิเจอร์ก็อาจจะลองติดเป็นทีวีแบบแขวนผนัง ก็ดูเข้าท่าดีเหมือนกันค่ะ
ด้านบนจะทำเป็นชั้น Built-in สำหรับวางหนังสือหรือกรอบรูปตกแต่งก็ได้ค่ะ ส่วนแผงควบคุมไฟจะติดอยู่ที่มุมประตูอาจจะสูงเกินไปหน่อย เวลาจะใช้งานต้องปีนเก้าอี้ขึ้นไปเปิด-ปิดกัน ลำบากนิดนึงนะคะ
ระยะห่างจากโซฟาถึงชั้นวางทีวีอยู่ที่ 1.6 เมตรค่ะ ซื้อทีวีขนาดตั้งแต่ 26-42 นิ้วกำลังพอดี ดูได้สบายตา
ส่วนต่อไปจะเป็นห้องนอนค่ะ กั้นด้วยประตูกระจกขุ่นบานเลื่อน 3 ตอน แยกให้ห้องนอนมีความเป็นส่วนตัวมากขึ้น แต่ยังคงความต่อเนื่องของฟังก์ชันภายในห้องไว้ ทำให้ห้องขนาดเล็กดูกว้างมากยิ่งขึ้น และยังช่วยให้ห้องนั่งเล่นสว่าง เนื่องจากห้องนอนมีช่องแสงเป็นหน้าต่างบานใหญ่ แสงจึงส่องผ่านมาถึงห้องนั่งเล่นได้ดี ช่วยประหยัดไฟไปในตัว
ด้ามจับเป็นแบบเซาะร่อง กรอบอลูมิเนียม
ชมภาพ 360 องศากันค่ะ ภายในห้องจริงสิ่งที่ได้จะมีเพียงตู้เสื้อผ้า Built-in เท่านั้น ห้องจะเป็นห้องโล่งๆ ขนาด 2.85 x 2.65 เมตร พื้นปูด้วยลามิเนตเช่นเดียวกับห้องนั่งเล่น ผนังฉาบเรียบทาสี โคมไฟเป็นโคมซาลาเปาตามที่เห็นในภาพค่ะ
ขนาดเตียงที่เหมาะสมกับห้องขนาดนี้จะอยู่ที่ 5 ฟุต พอนอนได้ 2 คนแบบชิดๆ กันก็ดูอบอุ่นดีค่ะ แต่ถ้าใครอยากจะซื้อเตียงที่ขนาดใหญ่กว่านี้อาจจะไม่เหมาะ เพราะทำให้ห้องดูแคบ และไม่เหลือที่ให้เดินรอบๆ เตียง
พื้นที่ปลายเตียงเหลือให้เดินผ่านได้อย่างที่บอก กว้างประมาณ 55 ซม.
ที่ปลายเตียงทำปลั๊กไฟสำหรับติดตั้งทีวีไว้ให้ด้วยค่ะ แนะนำให้เลือกใช้ทีวีแบบแขวนผนังจะดีกว่าตั้งโต๊ะค่ะ เพราะจะได้เหลือทางไว้ให้เดินผ่านได้บ้าง และสำหรับสาวๆ คนไหนชอบการแต่งหน้า ก็อาจจะทำมุมแต่งหน้าด้วยการติดกระจกกับผนังและทำชั้นสำหรับวางเครื่องสำอางและเครื่องประดับได้ตามภาพ
ตู้เสื้อผ้าที่ทางฟีล คอนโด ปิ่นเกล้า-จรัญฯ 59 (Feel Condo) ให้ จะเป็นแบบบานเลื่อน Built-in เข้ากับผนัง ด้ามจับจะเป็นสเตนเลสยื่นออกมาให้จับได้ถนัดมือแต่ดูแล้วขนาดค่อนข้างเล็กนะคะ คนที่มีเสื้อผ้าเยอะๆ อาจจะต้องใช้วิธีพับเก็บหรือหาตู้มาใส่เพิ่มเติม
บริเวณหัวเตียงฝั่งหน้าต่างยังเหลือพื้นที่อยู่เล็กน้อย สามารถหาโต๊ะข้างหัวเตียงมาตั้งได้
หน้าต่างห้องนอนขนาดค่อนข้างใหญ่ทีเดียวค่ะ เป็นหน้าต่างบานเลื่อนเปิดออกได้ 2 ทางผสมกับกระจกบานฟิซ์แนวนอน
มองจากมุมห้องครัวค่ะ จะเห็นว่า ฝั่งที่ติดกับประตูก็เหลือพื้นที่ให้วางโต๊ะหรือตู้ข้างหัวเตียงได้เหมือนกัน ส่วนรางของประตูบานเลื่อนก็เป็นแบบเก็บขอบ เดินเข้า-ออกรับรองว่าไม่สะดุด ไม่เจ็บเท้าแน่นอน
ไปดูห้องครัวกันต่อเลยดีกว่าค่ะ ห้องครัวจะอยู่ติดกับห้องน้ำ ซึ่งทำผนังเเบบปาดมุม เพื่อทำให้ทางเดินเข้าห้องครัวดูกว้างมากขึ้น แต่ก็ทำให้ไม่สามารถติดตั้งประตูให้เป็นครัวแบบปิดได้ ครัวจึงไม่เหมาะกับการทำอาหารที่มีควันหรือมีกลิ่นแรงๆ สักเท่าไร
ชมภาพแบบ 360 กันค่ะ ไฟห้องครัวก็เป็นโคมซาลาเปาเช่นเดียวกับส่วนอื่น พื้นห้องครัวปูด้วยลามิเนตลายไม้ ดูสวยงามดีค่ะ แต่ก็ต้องคอยควบคุมเรื่องความชื้น ทางที่ดีอย่าให้โดนน้ำหรือถ้าทำหกก็รีบเช็ดจะดีกว่า เพราะเมื่อพื้นประเภทนี้โดนน้ำบ่อยๆ จะเกิดการบวมน้ำได้
สิ่งที่ได้จากทางโครงการ ฟีล คอนโด ปิ่นเกล้า-จรัญฯ 59 (Feel Condo) ในส่วนครัวก็จะมีเคาน์เตอร์ครัว สเปคตามภาพค่ะ
ด้านบนเป็นตู้แบบบานเปิด ด้านในแบ่งเป็นช่องๆ สำหรับให้วางของได้
ด้านล่างเป็นเคาน์เตอร์สำหรับประกอบอาหารค่ะ ทางโครงการให้อ่างล้างจานแบบฝังลงบนเคาน์เตอร์จาก Preme แต่ไม่ได้แถมเตาและเครื่องดูดควันมาให้ ต้องติดตั้งเพิ่มกันเอง
ขนาดของอ่างเมื่อเทียบกับฝ่ามือก็ค่อนข้างลึกและกว้างพอสมควรค่ะ ด้านข้างอ่างไม่มีที่พักจานมาให้ อาจจะทำชั้นแขวนเพิ่มสำหรับใช้พักจานชามที่ล้างแล้ว
ด้านหลังปูกระเบื้องกันคราบสกปรกอันเกิดจากการทำอาหารมาให้เรียบร้อยดี พร้อมกับติดปลั๊กไฟมาให้บนเคาน์เตอร์ด้วยอีก 1 จุด
ด้านล่างเป็นตู้บานเปิดแบบ Soft-close แบ่งเป็นตู้ใต้อ่างล้างจาน สำหรับวางของและซ่อมแซมระบบท่อของอ่าง, ตู้เก็บของด้านข้าง, ลิ้นชักใส่ช้อนส้อม และช่องวางไมโครเวฟ
ประตูตู้เป็นแบบไร้ด้ามจับ ข้อดีคือ เวลาใช้งานไม่ต้องกลัวว่าด้ามจับจะหลุดออกตามอายุการใช้งาน
เยื้องๆ กับเคาน์เตอร์ครัวเป็นพื้นที่โล่ง สามารถซื้อโต๊ะรับประทานอาหารมาตั้งได้ แต่แนะนำให้เลือกซื้อโต๊ะแบบพับเก็บและขยายออกมาจะดีกว่านะคะ จะได้พับเก็บเวลาไม่ต้องการใช้งาน ทำให้มีพื้นที่ทางเดินกว้างมากขึ้น
พื้นที่วางตู้เย็นจะอยู่ด้านข้างเคาน์เตอร์ครัวค่ะ กว้าง 70x100 ซม. สามารถวางตู้เย็นขนาดประมาณ 7.4 คิวบิกฟุตได้พอดี แต่พยายามอย่าวางใกล้กับระเบียงมากนะคะ เพราะตู้เย็นจะโดนความร้อนจากอากาศด้านนอก ทำให้ทำงานหนักมากกว่าปกติและกินไฟมากขึ้น
เหนือประตูระเบียงทำการติดแอร์ไว้ให้ดูเป็นตัวอย่างด้วยค่ะ การติดแอร์ในตำแหน่งนี้จะมีทั้งข้อดีและข้อเสีย คือจะทำความสะอาด และเดินงานระบบง่ายค่ะ แต่ก็จะทำให้เครื่องทำงานหนักขึ้น เนื่องจากได้รับความร้อนจากภายนอกคอนโดแบบเต็มๆ
ถัดจากห้องครัวจะเป็นพื้นที่ระเบียงกั้นด้วยประตูกระจกบานเลื่อน 2 ตอน การที่วางผังห้องให้ระเบียงอยู่ใกล้กับครัวจะช่วยในเรื่องของการระบายอากาศเวลาทำอาหารได้ในระดับนึงด้วย แต่ก็ไม่ได้มากถึงขนาดขจัดกลิ่นและควันจนหมดได้ ยังไงก็ควรจะติดตั้งเครื่องดูดควันหรือกั้นห้องเพิ่มอยู่ดี
ด้ามจับเป็นแบบเซาะร่องพร้อมตัวล็อกแบบมาตรฐานค่ะ
มีการเพิ่มฟังก์ชันให้มีตัวเปิด-ปิดด้านข้างมาให้ เป็นการล็อกแบบ 2 ชั้น ซึ่งช่วยเพิ่มความปลอดภัยให้มากขึ้นค่ะ
พื้นระเบียงปูด้วยกระเบื้องเซรามิกสีเทาขนาด 30x30 ซม. มีการยกธรณีประตูขึ้นมา 8 ซม. พร้อมกับดรอปพื้นระเบียงลงไปจากพื้นห้องเล็กน้อย เพื่อป้องกันน้ำและความชื้นจากภายนอกเข้ามาภายในห้อง
พื้นระเบียงกว้างประมาณ 1x1.8 ม. ตั้งเครื่องซักผ้าแล้วก็ยังพอมีที่ให้ยืนตากผ้าบ้างค่ะ
คอมเพรสเซอร์แอร์จะติดตั้งแบบแขวนหันหน้าเข้าระเบียง ข้อดีคือทำให้ผ้าที่ตากไว้แห้งเร็ว แต่ระเบียงจะร้อนสักหน่อยค่ะ
ราวกันตกเป็นเหล็กพ่นสีขาว สูงประมาณ 95 ซม. เวลายืนใกล้ๆ ในชั้นสูงๆ อาจจะรู้สึกหวาดเสียวอยู่บ้างค่ะ
ชมภาพ 360 องศากันอีกมุมนึงนะคะ ถัดจากระเบียงและห้องครัวมาจะเป็นห้องน้ำค่ะ
ด้านหน้าห้องน้ำก่อธรณีขึ้นมาสูงขึ้นมา 8 ซม. ทำตัวจบเก็บงานมาเรียบร้อยดี
ภายในห้องน้ำปูด้วยกระเบื้องเซารามิกขนาด 30x30 ซม. ส่วนผนังปูด้วยกระเบื้องขนาด 60x60 ซม. ไฟในห้องน้ำจะเป็นไฟดาวน์ไลท์ จำนวน 2 ดวง ติดเครื่องระบายอากาศภายในห้องน้ำมาให้เพื่อป้องกันกลิ่นเพื่ออันไม่พึงประสงค์ นอกจากนั้นยังมีการแยกส่วนเปียกและส่วนแห้งออกจากกันเพื่อให้ง่ายต่อการทำความสะอาดด้วยค่ะ
มาดูส่วนแห้งก่อนเลยนะคะ สุขภัณฑ์ในส่วนนี้จะมีอ่างล้างหน้า กระจกเงา โถสุขภัณฑ์ สายฉีดชำระ ที่ใสกระดาษทิชชู่และราวแขวนผ้าค่ะ
อ่างจะเป็นอ่างแบบแขวนผนังของ Charmer พร้อมก๊อกน้ำจาก Cotto วางตัวยาวไปตามผนัง รอบๆ อ่างมีพื้นที่ให้วางของอยู่เยอะเลยค่ะ แทบไม่ต้องซื้อชั้นมาติดเพิ่มเติมเลย
ขนาดอ่างเมื่อเทียบกับฝ่ามือค่ะ ก็ไม่ใหญ่ไม่เล็กจนเกินไป
ก๊อกเป็นแบบหมุนจาก Cotto
พื้นที่ตั้งโถสุขภัณฑ์ก็ไม่แคบจนเกินไป นั่งทำธุระส่วนตัวได้สบายๆ ไม่อึดอัด ส่วนยี่ห้อจะเป็นของ Cotto ด้านข้างติดสายฉีดชำระและที่ใส่กระดาษทิชชู่มาให้ หยิบใช้ได้สะดวกดี
โถสุขภัณฑ์จะมีปุ่มวาล์วปรับระดับน้ำ 2 ระดับ ทั้งแบบถ่ายเบาและถ่ายหนัก ช่วยในเรื่องประหยัดน้ำได้ดีค่ะ ส่วนวาล์วปิด-เปิดระบบน้ำจะใช้ร่วมกันกับสายฉีดชำระ เวลาอุปกรณ์อย่างใดอย่างหนึ่งชำรุดก็อาจจะต้องลำบากกันหน่อยนะคะ เพราะสุขภัณฑ์อีกชิ้นก็จะใช้ไม่ได้ตามไปด้วย
หน้าตาของสายฉีดชำระจาก Cotto ค่ะ
เหนือโถสุขภัณฑ์จะมีราวแขวนผ้าติดไว้ให้
ต่อไปจะเป็นพื้นที่ส่วนเปียกค่ะ จะติดตั้งฝักบัวและที่วางสบู่มาให้
พื้นที่กว้างประมาณ 80x100 ซม. ยกธรณีขึ้นมาสูงประมาณ 6 ซม. กันน้ำไหลย้อนออกมา ทางฟีล คอนโด ปิ่นเกล้า-จรัญฯ 59 (Feel Condo) ไม่ได้กั้นกระจกมาให้เพราะพื้นที่มีมีจำกัด แต่สามารถติดม่านพลาสติกกันน้ำกระเด็นเพิ่มได้ค่ะ
ฝักบัวเป็นแบบ Hand Shower สายอ่อนของ Cotto
ขนาดฝักบัวกำลังพอดีมือค่ะ ไม่เล็กไม่ใหญ่จนเกินไป
ด้านข้างฝักบัวได้ทำระบบท่อเตรียมไว้สำหรับติดตั้งเครื่องทำน้ำร้อนเรียบร้อยแล้วค่ะ
Analysis
วิเคราะห์โครงการ ฟีล คอนโด ปิ่นเกล้า-จรัญฯ 59 (Feel Condo)
ทำเล : *โครงการ _ฟีล คอนโด ปิ่นเกล้า-จรัญฯ 59 (Feel Condo) *_ตั้งอยู่ในซอยจรัญสนิทวงศ์ 59 ลึกเข้าไปในซอยประมาณ 200 เมตร ถือว่าเป็นทำเลใจกลางปิ่นเกล้าที่เดินทางสะดวกมากเลยค่ะ เพราะซอยจรัญสนิทวงศ์ 59 ตั้งอยู่บนแยกบรมราชชนนี, จุดเชื่อมถนนราชวิถี (โดยใช้สะพานกรุงธนบุรีหรือสะพานซังฮี้ขับเข้าเมืองมุ่งหน้าไปยังอนุสาวรีย์ได้) และถนนสิรินธร แต่ต้องทำใจเรื่องของการจราจรที่ติดขัดสักหน่อยนะคะ เพราะย่านนี้กำลังอยู่ในช่วงก่อสร้างรถไฟฟ้าส่วนต่อขยายสายสีน้ำเงินอยู่ทำให้ช่องการจราจรเหลือน้อย บวกกับปริมาณรถที่มากเป็นทุนเดิมอยู่แล้ว ทำให้การเดินทางติดขัดบ้างในชั่วโมงเร่งด่วน แต่ถ้าในอนาคตที่รถไฟฟ้าสายสีน้ำเงินต่อขยายช่วงบางซื่อ – ท่าพระสร้างแล้วเสร็จ ตัวคอนโดจะอยู่ใกล้กับสถานีสิรินธร ซึ่งเป็นสถานี Interchange กับรถไฟฟ้าสายสีแดงสถานีสิรินธรในระยะประมาณ 400-800 เมตรค่ะ พูดได้ว่าเป็นโครงการที่อยู่ใกล้กับรถไฟฟ้าอีกแห่งค่ะ
ส่วนการเดินทางโดยระบบขนส่งสาธารณะในปัจจุบันก็ต้องพึ่งพี่วินมอเตอร์ไซค์ แท็กซี่ รถสองแถวและรถโดยสารประจำทาง ซึ่งมีให้บริการอยู่ตลอดทั้งวัน ก็ถือว่าไม่ได้ลำบากเท่าไรนักค่ะ
สภาพแวดล้อม : สภาพแวดล้อมรอบๆ โครงการเป็นย่านชุมชนเก่าของคนในพื้นที่นี้ค่ะ เข้าไปในซอยจรัญสนิทวงศ์ 59 จะเป็นพื้นที่ส่วนบุคคล ตัวโครงการมีจำนวนยูนิตที่น้อย โดยจำนวนยูนิตที่สูงสุดต่อชั้นอยู่ที่ 9 ยูนิตเท่านั้น ทำให้มีความเงียบสงบและเป็นส่วนตัวมาก เหมาะกับคนที่อยากอาศัยอยู่ในคอนโดที่มีคนน้อย ไม่พลุกพล่าน
ถ้าออกมาจากซอยจรัญสนิทวงศ์ 59 ก็ยังพอมีร้านอาหารใต้ตึกแถว หรือในซอยย่อยๆ ขายอยู่บ้างค่ะ แต่ถ้าอยากจะกินลม ชมบรรยากาศ ก็สามารถขับรถเดินทางไปบริเวณสะพานซังฮี้ ซึ่งมีร้านอาหารเปิดอยู่มากมายบริเวณริมแม่น้ำเจ้าพระยา สำหรับใครที่ชอบชอปปิงก็มีห้างสรรพสินค้าอยู่บ้างเช่น ห้างเซ็นทรัล ปิ่นเกล้า, เมเจอร์ ปิ่นเกล้า, พาต้าปิ่นเกล้า หรือถ้าใกล้ๆ หน่อยจะเป็นห้างตั้งฮั่วเส็ง และเทสโก้ โลตัส สาขาบางพลัดค่ะ
แบบห้อง : ฟีล คอนโด ปิ่นเกล้า-จรัญฯ 59 (Feel Condo) มีแบบห้องให้เลือก 2 แบบ 5 type ด้วยกันค่ะ แบ่งเป็นห้องแบบ 1 Bedroom พื้นที่ใช้สอยเริ่มตั้งแต่ 24, 26, 33 และ38 ตร.ม. ส่วน 2 Bedrooms จะมีแค่ Type เดียวขนาด 52 ตร.ม.ค่ะ ห้องขนาด 24, 26, 33 ตารางเมตรจะเป็นห้องรูปสี่เหลี่ยมจัตุรัส แต่ทางคอนโดจัดวางฟังก์ชันภายในห้องได้ลงตัวแม้จะมีพื้นที่จำกัด ส่วนห้องอีก 2 แบบที่เหลือจะเป็นห้องหน้ากว้างทำให้ห้องดูโล่งดี ทางโครงการขายแบบ Fully Fitted ให้เคาน์เตอร์ครัว และตู้เสื้อผ้าแบบ Built-in มาค่ะ นอกนั้นจะต้องซื้อเพิ่มเติมเอง จึงควรคำนวณงบประมาณสำหรับการตกแต่งไว้ด้วย
สิ่งอำนวยความสะดวก : ด้าน Facilities ให้มาไม่มากไม่น้อยจนเกินไปค่ะ มีสระว่ายน้ำและฟิตเนสให้ ก็ถือว่าเพียงพอต่อจำนวนยูนิตห้องที่มี ส่วนด้านระบบรักษาความปลอดภัยก็มีกล้อง CCTV รปภ. คอยตรวจตราความปลอดภัย และใช้ระบบ Key Card ในการเข้าออกอาคาร
ราคา : ราคาเริ่มต้นที่ 1.74 ล้านบาท เฉลี่ยต่อตารางเมตรอยู่ที่ 62,000 บาท ก็ถือว่าสมน้ำสมเนื้อดีค่ะ เป็นราคาที่รับได้เมื่อเทียบกับศักยภาพด้านทำเลที่มีแววพัฒนาในอนาคต ซื้อเก็บไว้ลงทุนก็ไม่เสียหาย แต่ถ้ามองถึงความสะดวกสบายสำหรับคนที่ยังไม่มีรถก็อาจจะรู้สึกว่าลำบากอยู่ที่ต้องโดยสารรถเมล์ไปไหนมาไหน แต่เมื่อรถไฟฟ้าเสร็จราคาห้องประมาณนี้อาจจะไม่มีแล้วนะคะในย่านนี้ ซื้อไว้รอความเจริญก็ไม่เสียหายค่ะ
โครงการฟีล คอนโด ปิ่นเกล้า-จรัญฯ 59 (Feel Condo) เหมาะสำหรับผู้ที่ต้องการคอนโดประเภท Low Rise ราคาเบาๆ สบายกระเป๋าประมาณ 1.8 ล้านบาทขึ้นไป เน้นเพื่อการอยู่อาศัยแบบเป็นส่วนตัว หรือลงทุนเพื่อปล่อยเช่า มีงบประมาณเหลือสำหรับการตกแต่งห้อง มีรถยนต์ส่วนตัว แต่ในอนาคตที่รถไฟฟ้าสร้างเสร็จก็จะอยู่ใกล้กับรถไฟฟ้าทำให้เดินทางสะดวกมากขึ้น
ฟีล คอนโด ปิ่นเกล้า-จรัญฯ 59 (Feel Condo)
585c88b91de72e4ccececbb3
ฟีล-คอนโด-ปิ่นเกล้า-จรัญฯ-59-feel-condo


















































































































