[Review] ริชพาร์ค3 @ เจ้าพระยา คอนโด High Rise วิวสวยติดแม่เจ้าพระยา ใกล้สถานีรถไฟฟ้าไทรม้า 100 เมตร
ถนนรัตนาธิเบศร์ ตำบลไทรม้า อำเภอเมืองนนทบุรี จังหวัดนนทบุรี

Infomation
ริชพาร์ค3 @ เจ้าพระยา คอนโด High Rise วิวสวยติดแม่เจ้าพระยา ใกล้สถานีรถไฟฟ้าไทรม้า 100 เมตร
ริชพาร์ค3 @เจ้าพระยา รีวิวคอนโด High Rise 33 ชั้น วิวสวยโค้งน้ำเจ้าพระยา 360 องศา สะดวกสบายใกล้สถานีรถไฟฟ้าไทรม้า 100 เมตร ( สถานีรถไฟฟ้าสายสีม่วง ) และส่วนกลางที่ประกอบด้วย สระว่ายน้ำขนาดใหญ่ ฟิตเนส และสวนลอยฟ้าสำหรับชมวิวรอบๆ โครงการได้อย่างชัดเจน สำหรับห้องพักอาศัยมีการออกแบบห้องภายใต้แนวคิด Concept Tropical Style ที่แยกทุกๆ ฟังก์ชั่นออกเป็นสัดส่วนได้อย่างชัดเจน เช่น แยกห้องครัว ห้องนั่งเล่น มีโซนอาบน้ำ ฯลฯ ซึ่งรูปแบบของห้องเป็นแบบ 1 ห้องนอน มีทั้งหมด 4 TYPE ให้เลือกตามไลฟ์สไตล์ความชอบของแต่ละคน
ชื่อโครงการ
Rich Park3 @Chaophraya (ริชพาร์ค3 @ เจ้าพระยา)
เว็บไซต์โครงการ
เบอร์โทรติดต่อ
02-886-1817
Location
Location - ที่ตั้งโครงการ ริชพาร์ค3 @เจ้าพระยา
สำหรับการรีวิวคอนโดในครั้งนี้ จะพาทุกคนออกนอกเขตกรุงุเทพมหานครไปเล็กน้อยไปชมคอนโด High Rise วิวสวยใกล้แม่เจ้าพระยาเพียง 550 เมตร เท่านั้น ซึ่งก็คือโครงการ ริชพาร์ค3 @เจ้าพระยา นั่นเองค่ะ
โครงการริชพาร์ค3 @เจ้าพระยา ตั้งอยู่บนพื้นที่ 2 ไร่ 86 ตารางวา บริเวณเชิงสะพานพระนั่งเกล้า ถ.รัตนาธิเบศร์ ต.ไทรม้า อ.เมือง จ.นนทบุรี ห่างจากสถานีรถไฟฟ้าสายสีม่วง สถานีไทรม้าเพียง 100 เมตร และเซ็นทรัลรัตนาธิเบศร์ 3 กม. ค่ะ
การเดินทางด้วยรถยนต์ส่วนตัว ( การเดินทางไปโครงการ ริชพาร์ค3 @เจ้าพระยา )
ก่อนจะรีวิวคอนโด ริชพาร์ค3 @เจ้าพระยา จะพาทุกคนไปศึกษาเรื่องการเดินทางไปโครงการ ริชพาร์ค3 @ เจ้าพระยา กันก่อนนะคะ ถึงแม้ว่าจะไม่ได้อยู่ในตัวกทม.แต่การเดินทางนั้นค่อนข้างสะดวกสบายเลยค่ะ เพราะที่ตั้งโครงการติดถนนรัตนาธิเบศร์ การเดินทางสามารถนั่งรถไฟฟ้าสายสีม่วงได้ค่ะโดยลงที่สถานีไทรม้า และสามารถต่อไปยังสถานีอื่นๆ ได้อีก 14 สถานีที่เป็นสายสีม่วงด้วยกันค่ะ ส่วนเรื่องรถโดยสารนั้นมีรถเมล์ที่มาจากทางฝั่งบางบัวทองสาย 18 134 และ 203 ส่วนรถเมล์ที่มาจากทางฝั่งเซ็นทรัลรัตนาธิเบศร์คือสาย 18 134 177ร และ 203 ค่ะ
สำหรับการเดินทางด้วยรถยนต์ส่วนตัวนั้นก็ค่อนข้างสะดวกสบายแต่การจราจรอาจมีติดบ้างตามระยะเวลาความเร่งด่วน ซึ่งจะขอแนะนำการเดินทางง่ายๆ โดยเริ่มจากแยกแครายค่ะ
ซึ่งหากใครที่มาจากถนนงามวงศ์วานเจอแยกแครายให้ตรงมาเลยนะคะ ส่วนใครที่มาจากถนนติวานนท์ที่มาจากด้านฝั่งสหกรณ์ออมทรัพย์ สำนักงานปลัดกระทรวงสาธารณสุข และสถาบันโรคทรวงอก กรมการแพทย์ เมื่อเจอแยกแครายให้เลี้ยวขวาค่ะ ส่วนใครที่มาจากถนนติวานนท์ ฝั่งกระทรวงสาธารณสุข ให้เลี้ยวซ้ายค่ะ
ตรงมาฝั่งขวามือจะสังเกตเห็นโลตัส รัตนาธิเบศร์ค่ะ
ระหว่างการเดินทางจะเห็นป้ายบอกทางไปบิ๊กซี รัตนาธิเบศร์
ขับตรงไปเรื่อยๆ นะคะ
สังเกตว่าให้ขับเรียบไปกับเส้นทางรถไฟฟ้าสายสีม่วงเลยนะคะ เพราะเตรียมตัวขึ้นสะพานพระนั่งเกล้า แต่หากไม่ขับเข้าเลนส์ด้านในนี้จะขับเลนส์นอกก็ได้นะคะแต่ว่าการจราจรจะค่อนข้างแออัดอีกทั้งยังเจอแยกไฟแดงเยอะ แต่ก็สามารถข้ามแม่น้ำเจ้าพระยาเพื่อจะไปโครงการ Rich Park3 @ Chaophraya ได้เหมือนกันค่ะ
เมื่อเห็นถนนยกระดับแนะนำให้ขับขึ้นเลยนะคะเพราะถนนด้านบนจะรถจะโล่งและสะดวกกว่าค่ะ
ขับขึ้นสะพานพระนั่งเกล้า
ลงจากสะพานพระนั่งเกล้าโครงการ Rich Park3 @ Chaophraya จะอยู่ด้านขวามือค่ะ ซึ่งเราจะต้องขับรถตรงไปเพื่อยูเทิร์น ประมาณ 900 เมตรค่ะ
เมื่อขับรถตรงไปจะเห็นสถานีไทรม้าค่ะ
ให้เบี่ยงออกไปเลนส์ซ้ายค่ะ สังเกตจะมี 7 -11 อยู่ซ้ายมือค่ะ
ขับตรงไปเตรียมชิดขวาค่ะ
เมื่อชิดขวาแล้วจะเห็นป้ายกลับรถให้กลับรถเลยค่ะ ด้านซ้ายมือจะมี 7 -11 และร้านอาหารต่างๆ
กลับรถใต้สะพาน
ขับตรงไปประมาณ 1 กม. ค่ะ
ก่อนถึงโครงการ Rich Park3 @ Chaophraya ซ้ายมือจะเห็นทางขึ้นสถานีรถไฟฟ้าไทรม้าค่ะ
ขับไปอีกนิดจะเห็นร้านขายของชำค่ะ ซึ่งสังเกตจะเห็นว่ามีบริการส่งไปรษณีย์ด้วยนะคะ
จะเห็นสะพานลอยอยู่ด้านหน้าให้ชะลอรถนะคะเพราะโครงการ ริชพาร์ค3 @เจ้าพระยาอยู่ซ้ายมือถัดจากสะพานลอยค่ะ
จะเห็นป้ายโครงการ ริชพาร์ค3 @เจ้าพระยา อยู่ด้านหน้าค่ะ
เลี้ยวซ้ายเข้าโครงการ ริชพาร์ค3 @เจ้าพระยา
Environment
Location environment - สำรวจโลเคชั่นรอบโครงการ ริชพาร์ค3 @เจ้าพระยา
ก่อนจะพาเข้าชมโครงการเรามาลองสำรวจโลเคชั่นรอบๆ ของโครงการ ริชพาร์ค3 @เจ้าพระยา กันก่อนนะคะ ว่าในรัศมี 5 กม. ที่สะดวกแก่การเดินทางนั้นมีสถานที่ไหนบ้างที่อยู่ใกล้
ที่แรกจะเป็นที่ไหนไปไม่ได้คือสถานีไทรม้า ซึ่งเป็นสถานีรถไฟฟ้าสายสีม่วงที่เปิดทำการเมื่อเดือนสิงหาคมที่ผ่านมาค่ะ
ทางขึ้นสถานีไทรม้าห่างจากโครงการเพียง 80 เมตรเท่านั้นรวมๆ เดินขึ้นเพื่อไปตัวสถานีก็ 100 เมตร โดยประมาณค่ะ
ข้ามไปฝั่งตรงข้ามของโครงการค่ะประมาณ 120 เมตร ที่ขาดไม่ได้เลยคือร้านสะดวกซื้อ 7-11 ซึ่งอยู่ใกล้กับสถานีไทรม้าแต่ต้องเดินลงมาอีกฝั่งหนึ่งของสถานีนะคะ ในกรณีขับรถเพื่อไปยูเทิร์นเข้าโครงการจะผ่าน 7-11 ตรงนี้ค่ะสามารถแวะได้ค่ะ
ไม่ไกลจาก 7-11 นัก มีคลินิกรักษาโรคผิวหนังและทันตกรรมค่ะ
ไม่ห่างกันมากนักเป็นร้านอาหารตามสั่งและร้านก๋วยเตี๋ยวค่ะ
สำหรับผู้ใช้รถก็มีปั้มน้ำมันให้บริการด้วยนะคะ
ระหว่างทางกลับรถนี้ยังมีร้านขายยาและมีคลินิกเฉพาะทางด้านหัวใจค่ะ
ห่างจากโครงการประมาณ 1 กม.ตรงข้ามกับที่กลับรถเป็น 7-11 อีกหนึ่งที่ค่ะ ข้อแนะนำหากต้องการเข้า 7-11 สาขานี้ควรจอดรถก่อนถึง ยูเทิร์น ประมาณ 10 เมตรแล้วเดินเข้านะคะ เพราะด้านหน้าเป็นขอบเส้นจราจรขาวแดงแปลว่าจอดไม่ได้ หากจะขับเลยไปอีกก็ต้องขับรถไกลขึ้นเพื่อไปกลับรถยูเทิร์นถัดไป ดังนั้นควรหาที่จอดก่อนถึงยูเทิร์นแรกค่ะ
สำหรับร้านค้าที่ใกล้กับโครงการ ริชพาร์ค3 @เจ้าพระยา ที่สุดก็น่าจะเป็นตรงนี้เลยค่ะ ก่อนถึงโครงการเพียงไม่กี่ก้าวเท่านั้น
พาข้ามไปอีกฝั่งขอแม่น้ำเจ้าพระยาประมาณ 2.5 กม.เป็น Grand Home Mart สำหรับคนที่อยากแต่งบ้านก็สามารถแวะเข้าชมได้นะคะ
ห่างจาก Grand Home Mart ประมาณ 500 เมตร ก็จะเป็น เซ็นทรัล รัตนาธิเบศร์ แหล่งช้อปปิ้งไลฟ์สไตล์คนเมืองนั่นเองค่ะ ระยะห่างจากโครงการ 3 กม.เท่านั้น ภายในก็มีร้านหนังสือ ศูนย์อาหาร เสื้อผ้าแฟชั่น ของแบรนด์เนม รวมทั้งจุดพักผ่อนหย่อนใจในยามว่างหรือวันหยุดค่ะ หรือต้องการนั่งรถไฟฟ้ามาก็สามารถมาลงตรงสถานีรถไฟฟ้าแยกนนทบุรี 1 ได้แล้วเดินต่อเพียงเล็กน้อยเท่านั้นค่ะ
ถัดไปอีกประมาณ 2 กม. รวมระยะทางกลับรถ เป็นบิ๊กซี รัตนาธิเบศร์ค่ะ หากต้องการความสะดวกสบายไม่ต้องขับรถมาเองก็สามารถนั่งรถไฟฟ้าสายสีม่วงมาลงสถานีรถไฟฟ้าบางกระสอได้ค่ะ
Insight
Project Insight - เจาะลึกภาพรวมโครงการ ริชพาร์ค3 @เจ้าพระยา
มาถึงช่วงเจาะลึกโครงการ Rich Park3 @ Chaophraya ก่อนจะพาทุกคนเข้าชมห้องตัวอย่างขอพาทุกคนดูรอบๆ ตัวโครงการกันก่อนตั้งทางเข้าโครงการเลยนะคะ
เมื่อขับรถเข้าโครงการแล้วจะเจอกับระบบรักษาความปลอดภัยขั้นแรกคือการสแกนบัตรกับเครื่องทาบบัตร มีไม้กระดกกั้นรถ และกล้อง CCTV สำหรับคนนอกนั้นจะต้องแลกบัตรประชาชนกับรปภ.ค่ะ
เมื่อเข้ามาถึงโครงการแล้วขออนุญาตแนะนำโมเดลโดยอธิบายตัวอย่างคร่าวๆ นะคะว่าแต่ละทิศแต่ละชั้นมีอะไรบ้าง มาดูกันเรื่องทิศกันก่อนนะคะ ด้านหน้าของโครงการหันไปทางทิศใต้ติดกับถนนรัตนาธิเบศร์ ด้านหลังเป็นทิศเหนือติดกับหมู่บ้านไม่มีตึกสูงมาบัง ทิศตะวันออกติดกับหมู่บ้าน ถัดไปอีกราว 550 เมตรเป็นแม่เจ้าพระยาค่ะ ทิศนี้ไม่มีตึกสูงวิวฝั่งนี้ค่อนข้างสวยค่ะได้ทั้งวิวแม่น้ำและวิวสะพานพระนั่งเกล้า และทิศตะวันตกติดกับบ้านเรือนผู้คนและคอนโดสร้างใหม่ซึ่งไม่ใกล้กันนัก
ต่อไปมาดูกันต่อที่ตัวอาคารของโครงการ ริชพาร์ค3 @เจ้าพระยา กันบ้างนะคะว่าแต่ละชั้นมีผังการจัดวางแบบไหนบ้าง
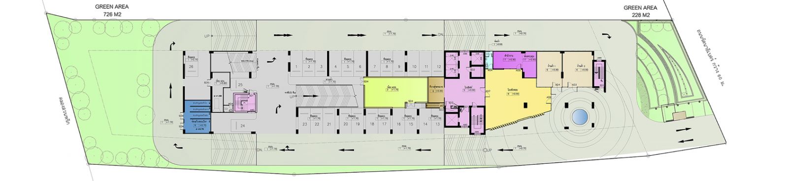
ชั้นล่างด้านหน้าของโครงการประกอบด้วยลานจอดรถ โถ่งรับรอง ห้องน้ำแยกชายหญิง ร้านค้า สำนักงาน ห้องควบคุม ห้องmailbox และโถงลิฟต์ ด้านหลังทางทิศเหนือเป็นห้องเก็บขยะและบันไดหนีไฟ
ชั้น 2-7 เป็นลานจอดรถเกือบทั้งหมดคะ แต่ทางโครงการมีการเว้นพื้นที่บางส่วนของบริเวณชั้น 2 ไว้ซึ่งในอนาคตอาจจะทำอย่างอื่นด้วย อันนี้ต้องรอดูกันอีกทีค่ะ
ชั้น 8 จะแบ่งออกเป็น 2 ฝั่งด้วยกันค่ะ ฝั่งทิศเหนือเป็นส่วนกลางที่ประกอบไปด้วย สระว่ายน้ำขนาด 12 x 22 เมตร สระเด็กขนาด 5 x 5 เมตร ฟิตเนส ห้องน้ำแยกชายหญิง ด้านฝั่งทิศใต้ด้านหน้าของตัวอาคารชั้น 8 จะเป็นห้องพักอาศัย
ในส่วนของที่พักอาศัยจะเริ่มที่ชั้น 9 - 33 ค่ะ แบบห้องสังเกตได้จากสีในรูปได้ดังนี้ค่ะ สีส่มจะเป็นห้องแบบ TYPE A ขนาด 32.0 ตร.ม. หน้ากว้างประมาณ 7.60 เมตร สีออกเทาๆ จะเป็น TYPE B ขนาด ประมาณ 28.0-30.0 ตร.ม. หน้ากว้างประมาณ 5.2 เมตร และสีเหลืองเป็นห้องแบบ TYPE C ขนาดประมาณ 28.0-30.0 ตร.ม. หน้ากว้างประมาณ 3.8 เมตรค่ะ
ด้านบนดาดฟ้าทางโครงการริชพาร์ค3 @ เจ้าพระยาได้ทำเป็นสวนลอยฟ้า เป็นสวนของส่วนกลางค่ะลูกบ้านสามารถขึ้นไปใช้เพื่อชมทัศนียภาพรอบๆ คอนโด
เมื่อทราบว่าแต่ละชั้นมีแบบแปลนลักษณะเป็นอย่างไรกันไปแล้ว ต่อไปจะพาไปชมรีวิวคอนโด ริชพาร์ค3 @ เจ้าพระยา ภาพบรรยากาศจริงกันค่ะ
ต่อจากเมื่อขับรถเข้ามาจากข้างหน้าโครงการผ่านไม้กระดก สแกนบัตรเข้าเรียบร้อยแล้วต่อไปก็ไปที่ลานจอดรถกันค่ะ โดยลักษณะการวนรถขึ้นตัวอาคารจอดรถฝั่งทิศเหนือจะขับรถวนขวาค่ะ ทางด้านทิศใต้จะขับรถวนด้านซ้ายค่ะ
ที่จอดรถเริ่มตั้งแต่ชั้นล่างสุดค่ะ
ตัวอาคารจอดรถค่อนข้างโล่งเพดานสูงไม่อึดอัดหรือรู้สึกคับแคบค่ะ
ช่องจอดรถค่อนข้างกว้างค่ะ
ลานจอดรถทิศใต้รถขับขึ้นตัวอาคารวนซ้ายมือค่ะ
ลานจอดรถของทุกชั้นจะมีประตูทางเชื่อมเข้าสู่โถงลิฟต์เพื่อขึ้นห้องพัก โดยต้องใช้คีย์การ์ดค่ะ
ฝั่งตรงข้ามของทางเข้าโถงลิฟต์จะเป็นทางเข้าออกบันไดหนีไฟและลิฟต์ขนส่ง นอกจากนี้ยังมีตู้นิรภัยป้องกันเหตุไฟไหม้อีกด้วยค่ะ
ออกมาจากลานจอดรถมาชมภายในตัวอาคารกันบ้างค่ะ เมื่อเดินเข้ามาตัวอาคารสิ่งแรกที่จะเห็นคือน้ำพุขนาดไม่ใหญ่มากตั้งอยู่ตรงทางเดินเข้าสู่ตัวอาคารค่ะ
ใต้ตัวอาคารด้านหน้าเมื่อเดินเข้าไปด้านในจะเห็นเค้าเตอร์อยู่ใกล้ๆ กับประตูเข้าอาคาร ที่เป็นจุดสแกนคีย์การ์ดค่ะ
ด้านขวามือจะเป็นสำนักขายของโครงการ
ถัดจากห้องสำนักงานขายเป็น Mailbox และห้องน้ำแยกหญิงแยกชายสำหรับแขกที่มารออยู่บริเวณโถงด้านหน้านี้
กล่องจดหมายมีความปลอดภัยค่ะมีกุญแจสำหรับล็อคเพื่อป้องกันจดหมายหรือเอกสารหายค่ะ
มองออกมาจากห้อง Mailbox จะเป็นชุดโต๊ะ โซฟารับแขกค่ะในกรณีที่มีแขกมารอพบด้านล่าง
ประตูทางเข้าตัวอาคารเป็นแบบสแกนคีย์การ์ดค่ะ
โถงลิฟต์ด้านล่างจะมีไฟเปิดให้สลัวๆ หน่อยนะคะ ซึ่งลิฟต์โดยสารมีทั้งหมด 3 ตัวค่ะ ดังนั้นห้องขวามือห้องแรกจะเป็นห้องไฟฟ้านั่นเองค่ะ
หน้าตาปุ่มกดเรียกลิฟต์ค่ะ
ภายในลิฟต์ค่อนข้างกว้างสามารถจุคนได้ประมาณ 8 คน ภายในมีการกรุผนังด้วยกระจกเงาและที่สำคัญมีราวจับที่สามารถช่วยเหลือคนชราหรือผู้ป่วยได้อีกด้วยค่ะ
ลิฟต์เป็นลิฟต์แบบล็อคชั้น โดยใช้บัตรคีย์การ์ดสแกนก่อนค่ะจึงจะสามารถกดเลือกชั้นได้
สำหรับโถงลิฟต์ด้านบนจะค่อนข้างสว่างเพราะได้รับแสงจากภายนอกผ่านหน้าต่างเข้ามา
ใกล้กับลิฟต์จะเป็นห้องไฟฟ้าที่ใช้สำหรับควบคุมค่ะ
ตรงข้ามกับลิฟต์จะเป็นประตูทางออกไปสู่บันไดหนีไฟและลิฟต์ขนส่ง
ใกล้ๆ กับประตูบันไดหนีไฟจะเป็นห้องขยะค่ะ
ห้องค่อนข้างแคบมีถังขยะแยกสีเหลือง เขียว เพื่อแยกประเภทของขยะอยู่จำนวน 2 ถังค่ะ
เดินออกมาสู่โถงทางเดินจะสังเกตว่ามีไฟดาวน์ไลท์สลับไปมากับเครื่องตรวจจับความร้อนและสปริงเกอร์ค่ะ
โถงทางเดินก็ยังมีตู้ดับเพลิงนิรภัยให้ด้วยค่ะ ส่วนด้านซ้ายมือที่เห็นเป็นประตูนั้นคือบันไดหนีไฟซึ่งอยู่อีกมุมหนึ่งของตัวอาคาร โดยบันไดหนีไฟของโครงการ ริชพาร์ค3 @ เจ้าพระยา จะมีอยู่ 3 จุดด้วยกันค่ะคือ ใกล้ๆ กับลิฟต์ตรงกลางอาคาร 1 จุด ฝั่งทางด้านทิศเหนือ 1 จุด และด้านทิศใต้อีก 1 จุดค่ะ
ประตูทางออกไปยังบันไดหนีไฟนั้นเปิดได้ทางเดียวคือพลักออกค่ะ แต่ไม่สามารถเปิดจากด้านนอกได้เพื่อป้องการบุกรุกจากคนนอกค่ะ
โถงทางเดินของบันไดหนีไฟค่อนข้างกว้างและโล่งค่ะ
มาดูกันต่อที่ชั้น 8 ซึ่งเป็นชั้นส่วนกลางค่ะ จากที่ได้บอกตอนต้นไปแล้วว่าชั้น 8 มีส่วนของที่พักอาศัยด้วยดังนั้นเรื่องห้องพักอาศัยจะไม่ขอกล่าวถึงนะคะ มาชมรีวิวคอนโด ริชพาร์ค3 @ เจ้าพระยา ในส่วนของส่วนกลางกันค่ะ
เมื่อเดินออกจากลิฟต์ของชั้น 8 จะเห็นโถงค่อนข้างกว้างค่ะ มีห้องทิ้งขยะ และบันไดหนีไฟแล้วยังมีประตูทางเข้าที่พักของชั้น 8 ด้วยนะคะ
เมื่อเดินเข้ามาด้านขวามือก่อนถึงสระว่ายน้ำและฟิตเนสจะมีโซฟานั่งพักผ่อนสามารถชมวิวฝั่งสะพานพระนั่งเกล้าและวิวแม่น้ำเจ้าพระยาค่ะ
บริเวณที่นั่งมีเต้าเสียบปลั๊กไฟให้ด้วยนะคะ
มีการตกแต่งด้วยต้นไม้สร้างความรู้สึกผ่อนคลายให้ขณะนั่งพักผ่อน
ตรงข้ามกับฝั่งโซฟที่นั่งเป็นห้องน้ำแยกชายแยกหญิงค่ะ
ข้างในมีห้องส้วมและห้องอาบน้ำให้ค่ะ
มีอ่างล้างหน้าจำนวน 2 อ่างกระจกกว้าง
ห้องส้วมมี 3 ห้องค่ะ
ห้องล้างตัวหรืออาบน้ำจำนวน 2 ห้อง
มาดูกันที่ห้องฟิตเนสค่ะ เครื่องเล่นที่นี่ค่อนข้างครบครันแต่เมื่อเทียบกับจำนวนผู้อาศัยแล้วจำนวนเครื่องเล่นค่อนข้างน้อยนิดหนึ่งค่ะ
มีดัมเบลที่เหมาะกับทั้งผู้หญิงและผู้ชายมีหลากหลายขนาดให้เลือกเล่นค่ะ
บริเวณรอบๆ ห้องฟิตเนสรวมทั้งหน้าเครื่องเล่นมเต้าเสียบปลั๊กให้ด้วยนะคะ ในกรณีที่เรากำลังเล่นเครื่องเล่นอยู่แล้วอยากชาร์ตแบตมือถือค่ะ
ติดกับห้องฟิตเนสเป็นสระว่ายน้ำระบบเกลือขนาด 12x22 เมตร เป็นสระค่อนข้างใหญ่ค่ะ
จากรูปจะเห็นว่าพื้นที่ของห้องฟิตเนสจะตั้งอยู่ในบริเวณของสระว่ายน้ำเวลาเราเล่นฟิตเนสก็จะเห็นวิวแม่น้ำเจ้าพระยาและวิวสระว่ายน้ำค่ะ
นอกจากนี้ยังสระเด็กขนาด 5x5 เมตรให้ด้วย
มีเตียงและโต๊ะสำหรับพักผ่อนข้างสระว่ายน้ำ
อีกมุมมองของสระว่ายน้ำค่ะใกล้กับบันไดหนีไฟฝั่งทิศเหนือของโครงการ
ตรงบันไดหนีไฟจะมีตู้เก็บอุปกรณ์ดับเพลิงอยู่ใกล้ๆ ค่ะ
ใกล้ๆ กับบันไดหนีไฟมีที่นั่งสำหรับชมวิวรอบๆ โครงการ โดยโครงการ ริชพาร์ค3 @ เจ้าพระยามีการออกแบบให้เป็นพื้นที่สีเขียวเพื่อให้ผู้ใช้รู้สึกผ่อนคลายได้พักผ่อนจริงๆ
สำหรับระเบียงของชั้นส่วนกลางนี้เป็นระเบียงกระจกหนาแข็งแรงปลอดภัย วัตถประสงค์เพื่อให้ผู้ใช้บริเวณส่วนกลางนี้สามารถเห็นวิวรอบๆ โครงการได้ ซึ่งวิวส่วนใหญ่เป็นวิวหมู่บ้าน หากอยู่ชั้นสูงขึ้นไปก็จะสามารถมองเห็นวิวแม่น้ำเจ้าพระยาได้ชัดเจนขึ้นค่ะ
Showroom
Showroom - สำนักงานขาย และห้องตัวอย่าง
สำหรับสำนักงานขายจะอยู่ด้านล่างโครงการก่อนถึงทางเข้าตัวอาคาร สังเกตจะอยู่ขวามือ
ห้องสำนักงานขายเป็นห้องกระจก เปิดทำการ 09.00-19.00 น.
ภายในห้องสำนักงานขายมีโมเดลของโครงการริชพาร์ค3 @ เจ้าพระยา ตั้งอยู่ ซึ่งเป็นโมเดลที่อธิบายรายละเอียดของโครงการและบริเวณรอบๆ ได้ค่อนข้างชัดเจนค่ะ
ห้องตัวอย่าง 1 ห้องนอน TYPE A
ห้องตัวอย่าง 1 ห้องนอน TYPE A ขนาด 32.0 ตร.ม. หน้ากว้างประมาณ 7.60 เมตร
มาถึงการเจาะลึกโครงการกันแล้ว ห้องแรกที่เราจะพาไปชมเป็นห้องตัวอย่าง 1 ห้องนอน TYPE A ขนาด 32.0 ตร.ม. หน้ากว้างประมาณ 7.60 เมตร ดูจากผังของห้องแล้วเป็นสัดส่วนดีค่ะ
มุมมองภาพ 360 องศา เมื่อเปิดประตูเข้าไปตรงกลางจะเป็นห้องนั่งเล่น ขวามือจะเป็นห้องน้ำถัดไปเป็นห้องนอน ซ้ายมือเป็นโต๊ะกินข้าว มองไปเห็นห้องครัวซึ่งทะลุออกไปยังระเบียงค่ะ
สำหรับประตูห้องนั้นเป็นลูกบิดค่ะ
บานประตูเป็นประตูไม้อัดแข็งแรงแบบ HDF
มีช่องตาแมวให้ด้วยค่ะ
พื้นห้องมีการยกธรณีกั้นระหว่างพื้นโถงทางเดินด้านนอก ข้อดีคือช่วยป้องกันในเรื่องของฝุ่นและน้ำหกจากด้านนอกค่ะ
มี door stopper ให้ด้วยนะคะ
เมื่อเปิดประตูเข้าไปจะเจอกับมุมผนังของห้องนอนค่ะ เยื้องๆ ซ้ายมือของภาพที่เห็นนั้นเป็นห้องนั้งเล่นค่ะ พื้นห้องปูด้วยกระเบื้องแกรนิตโต้ขนาด 60x60 ซม.สีขาวนวล
ติดกับประตูทางเข้ามีสวิตซ์ไฟห้องนั่งเล่นและบริเวณโต๊ะกินข้าว และสามารถติดที่แขวนรีโมทแอร์ได้ด้วยค่ะ
ไฟในห้องเป็นไฟดาวน์ไลท์มี Smoke Detector ซึ่งเป็นอุปกรณ์สำหรับแจ้งเตือนเหตุการณ์อัคคีภัยให้รวมทั้งสปริงเกอร์ค่ะ เพดานสูง 2.4 เมตร
ภาพมุมกว้างโซนซ้ายของห้องจะเห็นโต๊ะกินข้าวอยู่ซ้ายสุดติดกับผนังห้องใกล้กับประตูทางเข้า ถัดไปเป็นประตูทางเข้าห้องครัวค่ะ และเป็นโซนนั่งเล่น
โต๊ะกินข้าวอยู่ติดกับตรงประตูทางเข้าค่ะ สำหรับโต๊ะมีขนาด 80 x 80 ซม.เป็นโต๊ะที่สามารถขยายพื้นที่ในการใช้งานได้ค่ะคือดึงผนังข้างๆ ขอบโต๊ะขึ้นมากาง ก็จะได้โต๊ะขนาด 160 x 80 ซม ค่ะ
รูปนี้เป็นภาพเมื่อพับโต๊ะแล้วค่ะ สำหรับโต๊ะอาหารนั้นจะมีลิ้นชัก 3 ช่องให้ค่ะ หากใครสนใจก็สามารถหาซื้อได้ตามร้านขายเฟอร์นิเจอร์นะคะ ในส่วนของโครงการไม่ได้แถมให้ค่ะ
อีกมุมของโต๊ะอาหารจะเห็นประตูทางเข้าห้องครัวค่ะ ซึ่งห้องครัวนั้นจะขอกล่าวหลังจากห้องนั่งเล่นค่ะ
สำหรับโซนนั่งเล่นนั้น ห้องตัวอย่างอยู่ติดฝั่งทิศตะวันออกวิวจะเป็นวิวโค้งแม่น้ำเจ้าพระยาและสะพานพระนั่งเกล้า ระยะห่างระหว่างโซฟาและจอทีวีค่อนข้างแคบดังนั้นจึงไม่เหมาะที่จะใช้เป็นโซฟาเบด
ผนังฝั่งโซฟายาวประมาณ 2.35 เมตร โครงการมีการบิ้วท์ตู้ติดเป็นผนังด้านหลังและชั้นโชว์ของทำให้โซนนั่งเล่นมีความกว้างเพียง 2.45 เมตรเท่านั้นเมื่อว่างโซฟาและโต๊ะเล็กเข้าไปก็จะพอดีค่ะไม่แคบจนเกินไป
ตู้บิ้วท์จะเป็น 6 บล็อกค่ะ สามารถเก็บหนังสือ ซีดี หรือข้าวของต่างๆ ได้ค่ะ
ฝั่งทีวีจะติดแอร์ด้านบนและติดทีวีแบบแขวน ซึ่งในกรณที่น้ำแอร์หยดก็อาจจะโดนจอได้ดังนั้นเวลาติดตั้งแอร์ก็สามารถบอกช่างให้เลื่อนแอร์ได้ค่ะ ส่วนโต๊ะที่วางนั้นมีขนาด 80 x 80 ซม.ค่ะ
ใต้จุดติดตั้งทีวีมีเต้าเสียบปลั๊กให้และช่องเสียบสัญญาณทีวีและสายโทรศัพท์ให้ค่ะ
หน้าต่างใกล้กับโซฟาเป็นแบบบานกระทุ้ง
ตัวล็อกเป็นแบบมือจับค่ะ
พาไปชมห้องครัวกันต่อนะคะ ทางเข้าห้องครัวจะอยู่ระหว่างโต๊ะอาหารและโซนนั่งเล่น
มุมมอง 360 องศาของห้องครัว
ห้องครัวเป็นครัวแบบปิดค่ะ ประตูเป็นประตูบานเลื่อนกระจกรางบน
ชุดครัวเป็นแบบบิ้วท์อินที่โครงการแถมมาให้ค่ะ
ผนังกรุด้วยกระเบื้องป้องกันการเปื้อนขณะทำอาหาร top ครัวกว้าง 175x60 ซม.
ฝั่งซ้ายมีเต้าเสียบปลั๊กให้ค่ะสามารถวางอุปกรณ์เครื่องใช้ไฟฟ้าได้
ด้านบนมีตู้บิ้วท์ให้จำนวน 2 ตู้ ตู้ละ 2 ชั้น มีชั้นลอยสำหรับวางไมโครเวฟและอุปกรณ์ต่างๆ สำหรับช่องวางไมโครเวฟมีขนาด 63x40 ซม.ค่ะ
ซิงค์ล้างจานเป็นแบบ 1 หลุม
จากภาพจะเห็นว่ามุมของชั้นลอยที่วางไมโครเวฟจะยื่นมาตรงซิงค์ล้างจานซึ่งมีระยะห่างเพียง 45 ซม.เท่านั้น หากยืนล้างจานหรือล้างผักอาจจะต้องระวังไม่ให้เหลี่ยมชนศีรษะหรือยืนชิดฝังขวาไว้ค่ะ
ด้านล่างเป็นตู้เก็บของหรือเก็บถังขยะที่ทิ้งเศษอาหารค่ะ
ด้านซ้ายล่างก็มีตู้อีกช่องที่สามารถเก็บอุปกรณ์ หม้อ กระทะ ถ้วยชามได้เช่นกันค่ะ
ฝั่งขวาของชุดครัวเป็นตู้เย็นค่ะ ซึ่งพื้นที่สำหรับตั้งตู้เย็นนั้นกว้าง 75 ซม.
มองออกไปด้านนอกเป็นระเบียงค่ะ
ประตูเป็นประตูกระจกบานเลื่อนยกธรณีสูง พื้นปูด้วยกระเบื้องขนาด 30x30 ซม.
ระเบียงสูง118 ซม.ซึ่งถือว่าสูงมากค่ะ
ต่อจากระเบียงจะเห็นว่ามีพื้นยื่นออกไปด้านนอกประมาณ 110 ซม.ค่ะ ซึ่งทุกห้องที่อยู่ฝั่งทิศตะวันออกจะมีพื้นที่ยื่นออกมาแบบนี้เหมือนกันเกือบทั้งหมดค่ะ ข้อดีสามารถวางต้นไม้เล็กๆ หรือตากรองเท้า ไม่แนะนำให้ตากผ้าหรือต้นไม้ใหญ่นะคะ
ระเบียงด้านซ้ายมีการติดตั้งคอมเพรสเซอร์แอร์ ซึ่งห้องตัวอย่างนั้นหันแอร์ออกด้านข้างค่ะ หากผู้อาศัยต้องการการเบี่ยงลมออกก็สามารถติดตั้งกริลแอร์ได้ค่ะ หรือลองสอบถามนิติของอาคารดูนะคะว่าพื้นระเบียงที่ยื่นออกไปสามารถติดตั้งคอมเพรสเซอร์แอร์ ได้หรือไม่ หากทำได้พื้นที่ของระเบียงก็จะเหลือเยอะมากๆ เลยล่ะค่ะ
พากลับเข้ามาด้านในห้อง นี่เป็นมุมมองจากฝั่งประตูครัวและโต๊ะอาหารจะเห็นประตูห้องนอนอยู่ด้านซ้ายมือและประตูห้องน้ำอยู่ฝั่งขวามือค่ะ ซึ่งจะขอพาเข้าไปดูห้องน้ำก่อนนะคะ
มุมมอง 360 องศาของห้องน้ำ
ห้องน้ำแบ่งโซนแห้งและโซนเปียกค่ะ ประตูทางเข้าห้องน้ำจะอยู่ขวามือใกล้กับประตูทางเข้าของห้อง
พื้นของห้องน้ำปูด้วยกระเบื้องขนาด 30x30 ซม. ถูกปรับระดับให้ต่ำกว่าพื้นห้องด้านนอก
ประตูเป็นแบบลูกบิด
ไฟด้านในเป็นไฟดาวน์ไลท์ 2 ดวง พร้อมกับพัดลมระบายอากาศ
ขวามือของห้องน้ำเป็นอ่างล้างหน้าขนาด 70x45 ซม.และกระจกขนาด 100x80 ซม.ค่อนข้างกว้างสามารถวางขวดโลชั่นได้ค่ะ
ด้านล่างของอ่างล้างหน้ามีการวางระบบเป็นท่อแบบดักกลิ่นค่ะ
ซ้ายมือของอ่างล้างหน้าเป็นโถสุขภัณฑ์ค่ะ มีสายฉีดและที่ใส่กระดาษชำระ
ถัดจากโซนแห้งเป็นโซนเปียกค่ะ
โซนเปียกหรือห้องอาบน้ำ มีขนาด 110 x 95 ซม.กั้นด้วยกระจกฝ้า ข้อแนะนำเวลาเปิดประตูให้ระวังอย่าให้ขอบประตูกระแทกผนังด้านซ้ายเพราะอาจเสี่ยงทำให้กระจกกั้นแตกได้ค่ะ เพราะกระจกค่อนข้างบาง
พื้นปูด้วยกระเบื้องลายไม้ มีการยกธรณีสูงกั้น
ฝักบัวเป็นยี่ห้อ American Standard แบบสายอ่อน ( hand shower )
มีชั้นวางสบูให้ยี่ห้อ American Standard
ฝักบัวปรับระดับของน้ำไม่ได้ค่ะหากต้องการแบบที่ปรับระดับได้ก็สามารถติดต่อช่างมาเพื่อเปลี่ยนค่ะ
วาล์วน้ำนั้นเป็นยี่ห้อ American Standard เหมือนกันค่ะ ในส่วนของเครื่องทำน้ำอุ่นนั้นผู้อาศัยจะต้องติดตั้งเองค่ะ
สำหรับห้องนอนนั้นประตูทางเข้าจะยู่ใกล้กับจอทีวีค่ะ
มุมมอง 360 องศาของห้องนอน
อีกมุมมองภายในห้องนอนจะมีโต๊ะเครื่องแป้ง ตู้เสื้อผ้า ซึ่งทั้งหมดนี้โครงการไม่ได้แถมให้นะคะ แต่ตกแต่งเป็นตัวอย่าให้ดูค่ะ
ประตูของห้องนอนเหมือนกับประตูเข้าห้อง พื้นเป็นลามิเนตมี door stopper
เตียงภายในเป็นเตียงขนาด 5 ฟุต แต่ก็สามารถวางเตียงขนาด 6 ฟุตได้เช่นกันค่ะเพราะพื้นที่ห้องค่อนข้างกว้างพอสมควรโดยมีขนาด 310x320 ซม.
หน้าต่างเป็นแบบบานกระทุ้ง 2 บาน
ที่จับและตัวล็อกเป็นก้านจับหมุนได้
ฝั่งขวามือของหัวเตียงติดกับตู้เสื้อผ้ากว้างขนาด 140 ซม.สูงติดเพดาน 240 ซม.
บานประตูตู้เสื้อเป็นแบบบานเลื่อนค่ะติกกระจกเงาทั้งสองฝั่ง ภายใต้มีลิ้นชักจำนวน 2 ชั้น มีราวแขวนสแตนเลส และชั้นวางของด้านบนค่ะ
ลิ้นชักสำหรับใส่ของกะจุกกระจิกหรือเสื้อผ้าชิ้นเล็กๆ
ฝั่งซ้ายของตู้เสื้อผ้าเป็นราวแขวนเช่นกันค่ะ ด้านล่างเป็นช่องและชั้นมีไว้สำหรับวางตะกร้าหรือกล่องเสื้อผ้าก็ได้เช่นกันค่ะ
โต๊ะเครื่องแป้งกว้างประมาณ 75 ซม.ค่ะติดกระจกสูงถึงเพดาน
มีลิ้นชักและเก้าอี้
มุมมองภาพปลายเตียงเป็นประตูทางเข้าห้องนอนค่ะ มีสวิตซ์ไฟ ด้านบนฝั่งขวาติดแอร์ กลางผนังสามารถติดตั้งทีวีแบบแขวนได้ค่ะเพราะเค้ามีเต้าเสียบปลั๊กและช่องรับสัญญาณให้ค่ะ
สรุปในส่วนของห้องตัวอย่าง 1 ห้องนอน TYPE A ขนาด 32.0 ตร.ม. หน้ากว้างประมาณ 7.60 เมตร สิ่งที่โครงการมีให้จะเป็นชุดครัวกว้างขนาด 175 ซม.เท่านั้นนะคะ ไม่มีวอลเปเปอร์ ไม่มีแอร์ ไม่มีเครื่องทำน้ำอุ่น ไม่มีตู้เสื้อผ้า ไม่มีโต๊ะเครื่องแป้ง ไม่มีเฟอร์นิเจอร์ค่ะ ผู้ซื้อต้องจัดการเองค่ะ
ห้องตัวอย่าง 1 ห้องนอน TYPE B
ห้องตัวอย่าง 1 ห้องนอน TYPE B ขนาด ประมาณ 28.0-30.0 ตร.ม. หน้ากว้างประมาณ 5.2 เมตร
ห้องตัวอย่าง 1 ห้องนอน TYPE B ( กรอบสีแดง ) ขนาดห้องประมาณ 28.0-30.0 ตร.ม. หน้ากว้างประมาณ 5.2 เมตร ซึ่งทางฝั่งทิศตะวันออกจะมี 2 ห้องคือ ห้องริมสุดด้านทิศเหนือ-ใต้ ส่วนทิศตะวันตกจะมี 6 ห้องคือ ตรงกลาง 4 ห้อง และริมสุดทิศเหนือ-ใต้ 2 ห้องค่ะ
มุมมอง 360 องศา
สำหรับวัสดุประตูห้องเป็นเหมือนห้อง TYPE A ค่ะ พื้นเป็นพื้นกระเบื้องขนาดเท่ากัน เมื่อเปิดประตูห้องจะเห็นประตูห้องนอน โซนขวามือจะเป็นชุดครัว โซฟานั่งเล่น ตู้เย็นและโต๊ะอาหารที่ใกล้กับประตูทางเข้า ส่วนห้องน้ำจะอยู่ด้านซ้ายมือเมื่อเปิดประตูเข้ามาค่ะ ซึ่งในรูปจะไม่เห็น
อีกมุมมองหนึ่งเมื่อหันมองกลับไปยังประตูทางเข้าจะเห็นโต๊ะอาหารและตู้เย็น
สำหรับโต๊ะอาหารจะเป็นเหมือนกันกับห้องตัวอย่างห้องแรกเลยนะคะ ขนาดเท่ากันคือสามารถกางผนังโต๊ะด้านข้างออกมาได้ ซึ่งเป็นข้อดีสำหรับห้องที่มีพื้นที่น้อยค่ะ
ตัวอย่างโต๊ะกินข้าวเมื่อกางแล้วค่ะ
ใกล้โต๊ะกินข้าวจะเป็นชุดโซฟานั่งเล่นหรือสำหรับรับแขกค่ะ
อีกมุมมองหนึ่งของชุดโซฟานั่งเล่น
ตรงข้ามกันกับโซฟาเป็นโซนทีวีค่ะ จะสังเกตว่าห้องตัวอย่างจะติดตั้งทีวีแบบแขวนจอมากกว่าการตั้งบนชั้นวาง
ชั้นด้านล่างทีวีมีตู้เก็บของและลิ้นชัก ซึ่งต่างจากห้อง TYPE A จะมีตู้แบบบิ้วท์ให้ด้านหลังโซฟา และนี่ก็คือความต่างของการเลือกเฟอร์นิเจอร์ในการจัดห้องแต่ละแบบ ซึ่งสามารถนำไปใช้เป็นไอเดียต่อไปได้ค่ะ
อีกมุมมองฝั่งขวาของห้องค่ะ
ถัดจากโซฟาเป็นโซนครัวค่ะซึ่งมีผนังกั้นไว้ แต่ไม่มีประตูบานเลื่อนนะคะ เป็นครัวแบบเปิดค่ะ
โซนครัวมีขนาด 205x150 ซม. TOP ครัวมีขนาด150x60 ซม.
มีตู้ลอยให้เหมือนห้องแรกจำนวน 2 ตู้
ส่วนของ TOP ครัวจะแคบกว่าห้อง TYPE A ผนังเป็นกระเบื้องเมื่อเศษอาหารกระเด็นก็สามารถทำความสะอาดได้ง่าย ด้านบนเป็นชั้นสำหรับวางไมโครเวฟมีเต้าเสียบปลั๊กไฟให้ด้วยค่ะ
สำหรับซิงค์ล้างจานเป็นแบบ 1 หลุมค่ะ
ด้านล้างเป็นตู้เหมือนกับชุดครัวของห้อง TYPE A พื้นของห้องเป็นกระเบื้องทำความสะอาดได้ง่ายค่ะ
ถัดออกไปจากโซนครัวเป็นระเบียงค่ะ
ระเบียงของห้องสูงประมาณ 130 ซม. สูงมากเลยทีเดียว มองข้ามออกไปพื้นของระเบียงห้องจะยื่นออกไปราวๆ เกือบ 2 เมตรค่ะ ดูๆ ไปแล้วสามารถตั้งราวตากผ้าขนาดใหญ่ได้เลยค่ะแต่ก็ไม่แนะนำเพราะสุดขอบพื้นไม่มีระเบียงกั้นค่อนข้างอันตรายค่ะ
คอมเพรสเซอร์แอร์หันเข้าด้านข้างค่ะ
มุมมอง 360 องศาของห้องนอน
มาชมห้องนอนกันต่อค่ะ สำหรับประตูทางเข้าห้องนอนนั้นติดกับโซนทีวีและชั้นวางของ จากรูปจะเห็นได้ว่าชั้นวางของจะบังตรงประตูทางเข้าเล็กน้อย
ห้องนี้มีการจัดวางเตียงขนาด 5 ฟุตค่ะ หรือเพิ่มเป็น 6 ฟุตก็ได้ค่ะ หน้าต่างเป็นหน้าต่างขนาดและรูปแบบเดียวกันกับห้อง TYPE A
หัวเตียงเป็นแบบแบบ Built in กรุผนังลายไม้
ซ้ายมือของหัวเตียงเป็นโต๊ะเครื่องแป้งค่ะกว้างประมาณ 65 ซม. มีสวิตซ์ไฟและเต้าเสียบปลั๊กให้ด้วยคะ่
ตู้เสื้อผ้าเป็นประตูติดกระจกเกือบเต็มบานค่ะ ด้านในเหมือนกับตู้เสื้อผ้าห้อง TYPE A ค่ะ
สรุปสำหรับห้องนอนนั้นจะเป็นห้องโล่งทั้งหมดค่ะ แต่มีเต้าเสียบและปลั๊กให้เท่านั้นนะคะ หากใครมีไอเดียในการอกกแบบห้องนอนที่สวยและเจ๋งกว่าห้องตัวอย่างก็ลองออกแบบได้เลยค่ะ
พาออกมาจากห้องนอนไปชมห้องน้ำกัน ซึ่งห้องน้ำจะอยู่ด้านซ้ายมือของประตูห้อง อยู่ใกล้กับโซนทีวี
มุมมอง 360 องศา ของห้องน้ำ
พื้นห้องน้ำเป็นกระเบื้องสีดำขนาด 30x30 ซม. การมีปรับระดับพื้นห้องให้ต่ำกว่าพื้นห้องด้านนอก
หน้าต่างห้องน้ำกว้างกว่าห้อง TYPE A
อ่างล้างหน้ากว้างกว่าห้อง TYPE A
พื้นที่ในการวางโถสุขภัณฑ์ค่อนข้างเป็นสัดส่วนและกว้างค่ะ วัสดุต่างๆ เหมือนกันกับห้อง TYPE A ทั้งหมดค่ะ
พื้นโซนแห้งและโซนเปียกจะไม่เหมือนกันนะคะ โซนเปียกเป็นกระเบื้องสีดำส่วนโซนแห้งนั้นเป็นกระเบื้องลายไม้ค่ะ มีการยกธรณีประตูสูงขึ้นพร้อมกับฉากกั้นเป็นกระจกฝ้าเหมือนกับห้อง TYPE A ค่ะ
ฝักบัวเป็นแบบ Hand Shower ค่ะ ไม่มีเครื่องทำน้ำอุ่นให้นะคะ ต้องติดตั้งเอง
ภาพรวมของห้องตัวอย่าง 1 ห้องนอน TYPE B ขนาด ประมาณ 28.0-30.0 ตร.ม. หน้ากว้างประมาณ 5.2 เมตร เป็นห้องที่มีการจัดสัดส่วนพอใช้ค่ะ แต่เมื่อเทียบกับห้อง TYPE A แล้วห้องTYPE B นี้จะดูด้อยกว่ามากไม่ว่าจะเป็นเรื่องของห้องครัวเพราะเป็นห้องครัวแบบเปิดดังนั้นเรื่องกลิ่นในขณะทำอาหารก็จะเป็นปัญหา และเรื่องตู้เย็นที่มีการจัดวางตรงมุมห้องซึ่งอยู่ไกลจากตู้เย็นเมื่อต้องการประกอบอาหารหากไม่ได้หยิบวัตถุดิบมาครบก็ต้องเสียเวลาเดินกลับไปเอาใหม่ค่ะ อีกอย่างเรื่องประตูทางเข้าห้องนอนที่ติดกับชั้นวางด้านล่างทีวีทำให้เดินเข้าออกห้องนอนค่อนข้างลำบาก ดังนั้นวิธีแก้ปัญหาสำหรับห้อง TYPE B นี้คือการจัดห้องใหม่นั่นเองค่ะ เพราะที่เราพาชมนี้เป็นเพียงตัวอย่างการจัดห้องของโครงการเท่านั้น ส่วนห้องจริงที่เราจะได้รับเป็นห้องเปล่าเราสามารถดีไซน์ห้องได้ตามใจชอบเลยค่ะ
ห้องตัวอย่าง 1 ห้องนอน TYPE C
ห้องตัวอย่าง 1 ห้องนอน TYPE C ขนาด 28.0-30.0 ตร.ม. หน้ากว้างประมาณ 3.80 เมตร
พื้นห้องยกธรณีกั้นระหว่างพื้นโถงทางเดินด้านนอกค่ะ
บานประตูเป็นประตูไม้อัดแข็งแรงแบบ HDF มีช่องตาแมวให้ค่ะ
เมื่อเปิดประตูเข้าไปจะเห็นประตูทางเข้าห้องนอนค่ะ
เพดานสูง 2.4 เมตร ไฟเป็นไฟดาว์นไลท์ มีSmoke Detector สำหรับแจ้งเตือนเหตุการณ์อัคคีภัย รวมทั้งมีสปริงเกอร์ให้ค่ะ
มุมมองเมื่อเดินเข้ามาด้านในแล้วหันมองกลับไปยังประตูทางเข้าของห้องพักค่ะ จากภาพซ้ายมือของภาพเป็นประตูทางเข้าห้องน้ำ ขวามือของภาพเป็นโซนครัว ซึ่งเป็นครัวแบบเปิดค่ะ
มีสวิตซ์ไฟและที่แขวนรีโมทแอร์
สำหรับห้องนี้ขอพาไปชมในส่วนของน้ำกันก่อนนะคะ พื้นห้องน้ำและการปรับระดับพื้นจะเหมือนกันทุกห้องเลยค่ะ ปูด้วยกระเบื้องขนาด 30x30 ซม.
มุมมองเมื่อเปิดประตูห้องน้ำเข้ามา
ขวามือของห้องน้ำเป็นอ่างล้างหน้าและกระจกเงากว้างสูงชนเพดาน
อ่างล้างหน้าจะกว้างมากค่ะ กว้างกว่าห้องอื่น เพราะห้องน้ำของห้อง TYPE C มีขนาด 1.35x1.75 เมตร จากรูปทำให้สามารถวางขวดโลชั่นหรือแม้กระทั่งต้นไม้ขนาดเล็กได้อีกด้วยค่ะ
ก๊อกน้ำเป็นของ American Standard
โซนโถสุขภัณฑ์ค่อนข้างกว้างค่ะ มีท่อระบายอยู่ด้านข้างใกล้กับสายฉีด
ราวแขวนผ้าจะอยู่ในโซนเปียกค่ะ
มีการยกพื้นสูงเพื่อเป็นธรณีกั้นระหว่างโซนเปียกและโซนแห้ง
ประตูกั้นโซนเปียกควรเปิดเบาๆ นะคะเพราะขอบประตูอาจจะชนเข้ากับผนังได้เนื่องจากไม่มี door stopper
ฝักบัวเป็นแบบสายอ่อน ( hand shower )ยี่ห้อ American Standard
เมื่อเดินออกมาจากห้องน้ำก็จะเห็นชุดครัวค่ะ ตู้เย็น และโต๊ะกินข้าว
สำหรับชุดครัวนั้นรูปแบบจะคล้ายๆ กับชุดครัวของห้อง TYPE A และ B ค่ะ ท็อปเคาน์เตอร์ครัว กว้าง 125 ซม.มีชั้นลอยและตู้ลอยด้านบน ซึ่งตู้ลอยด้านบนสุดจะครอบคลุมไปถึงด้านบนของตู้เย็นซึ่งมีขนาดกว้าง 2 เมตร ส่วนด้านล่างเป็นตู้สำหรับเก็บของค่ะ
เมื่อเปิดประตูตู้ทั้งหมดก็เป็นแบบนี้นั่นเองค่ะ สำหรับชุดครัวของห้องนี้ทางโครงการใจดีแถมให้ค่ะ
ซิงค์ล้างจานเป็นแบบหลุมเดี่ยว
มาดูกันต่อที่โซนโต๊ะกินข้าว ซึ่งอยู่ถัดจากตู้เย็น รูปแบบโต๊ะจะเป็นเหมือนกันทุกห้องค่ะ
ด้านบนของโต๊ะกินข้าวเป็นชั้นลอยค่ะสามารถตั้งของโชว์ได้แต่ไม่ขอแนะนำนะคะ เพราะอาจหล่นลงมาโดนศีรษะได้ขณะนั่งทานข้าว
ตรงข้ามกับฝั่งโต๊ะกินข้าวนั้นเป็นโซนนั่งเล่นที่สามารถมองทะลุเห็นภายในห้องนอนได้ค่ะ
สำหรับโซนนั่งเล่นนี้มีขนาด 2.10x1.75 เมตร ซึ่งโครงการมีการติดวอลเปเปอร์ให้ห้องดูมีมิติและได้อารมณ์ของการพักผ่อนได้อย่างสวยงามค่ะ
ด้านหลังโซฟาจะเห็นห้องนอนซึ่งเราสามารถติดม่านได้นะคะ และใกล้ๆ กับโต๊ะสีขาวข้างโซฟาจะมีเต้าเสียบปลั๊กไฟให้ด้วยค่ะ สำหรับโซนนั่งเล่นดูทีวีนี้ไม่เหมาะกับการวางโซฟาเบดนะคะเพราะระยะระหว่างหน้าจอและโซฟาค่อนข้างแคบ
สำหรับชั้นวางของใต้ทีวีซึ่งเป็นแบบแขวนนั้น โครงการใช้ชั้นวางแบบมี 2 ลิ้นชักค่ะ
ใต้ทีวีมีเต้าเสียบปลั๊กไฟ ช่องเสียบสัญาณทีวี และช่องเสียบสายโทรศัพท์ค่ะ
ต่อไปจะพาเข้าไปชมห้องนอนกันต่อเลยค่ะ ซึ่งประตูทางเข้าห้องนอนนั้นอยู่ใกล้ๆ กับโซนนั่งเล่นนั่นเองค่ะ
ประตูห้องนอนเป็นแบบเดียวกันกับประตูทางเข้าแต่ตัวจับเป็นแบบลูกบิด
เมื่อเปิดประตูเข้ามาขวามือจะเห็นเตียงขนาด 5 ฟุตค่ะ ห้องจริงจะไม่มีเฟอร์นิเจอร์ใดๆ จึงสามารถวางเตียงขนาดคิงไซส์ได้ค่ะ เพาะห้องนอนของ TYPE C กว้างมากๆ ค่ะซึ่งกว้างกว่าห้อง TYPE อื่นๆ
หัวเตียงมีการบิ้วท์เป็นผนังไม้และเป็นชั้นสามารถวางของได้
อีกมุมมองของห้องนอนจะเห็นว่าเมื่ออยู่ในห้องนอนจะมองเห็นโซนนั่งเล่นดูทีวีได้ ดังนั้นหากต้องการความเป็นส่วนก็สามารถติดม่านได้ค่ะ
สำหรับโต๊ะเครื่องแป้งจะอยู่ด้านขวามือใกล้ๆ กับหัวเตียง มีลิ้นชัดแต่กระจกไม่สูงชนเพดานเหมือนห้องอื่นนะคะ ซึ่งหากหนุ่มๆ สาวๆ ที่ชอบแต่งตัวก็อาจจะติดกระจกให้สูงขึ้นอีกก็ได้ค่ะ
สำหรับตู้เส้อผ้านั้นจะอยู่ใกล้กับประตูทางเข้าห้องนอนค่ะ
ตู้เสื้อผ้ากว้าง 125 ซม. ลึกเขาไป ประมาณ 60 ซม. ซึ่งสามารถจุเสื้อผ้าได้มากพอสมควร โดยตู้เสื้อผ้าของห้องนี้มีขนาดกว้างห้องอื่นๆ การใช้งานเป็นประตูแบบเปิดไม่ใช่บานเลื่อน ข้างในมีชั้นวางเสื้อผ้าค่อนข้างเยอะพอสมควร มีลิ้นชั้น 3 ชั้น ซึ่งในกรณีที่เราอยากได้ตู้เสื้อผ้าแบบห้องตัวอย่างก็สามารถให้ช่างมา Built ให้ได้คะ
ฝั่งปลายเตียงเป็นประตูออกไปยังระเบียงด้านนอกค่ะ ซึ่งประตูมีขนาดเล็กกว่าห้องอื่นๆ คือกว้างเพียง 70 ซม.เท่านั้น จากรูปจะเห็นว่าผนังห้องมีเต้าเสียบปลั๊กและช่องเสียบสัญญาณทีวีให้ค่ะ
ประตูทางออกระเบียงเป็นประตูกระจกบานเลื่อน มีระบบล็อกแบบบิดค่ะ
สำหรับธรณีกั้นค่อนข้างสูงค่ะ ประมาณ 10 ซม.
ด้านนอกของระเบียงมีก๊อกน้ำและเต้าเสียบปลั๊กไฟให้สำหรับคนที่ต้องการตั้งเครื่องซักผ้า แต่พื้นที่ของระเบียงห้องนี้ค่อนข้างแคบกว่าห้องอื่นๆ นะคะ คือ 150x130 ซม. เลยไม่ค่อยเหมาะแก่การตากผ้าเท่าไหร่นัก
ด้วยพื้นที่ของระเบียงที่ค่อนข้างแคบและมีคอมเพรสเซอร์แอร์ 2 ตัวด้านบนยิ่งทำให้ระเบียงดูแคบมากยิ่งขึ้น
ถัดจากด้านนอกของระเบียงห้อง พื้นจะยื่นออกไปประมาณ 1 เมตรค่ะ ซึ่งแต่ละห้องจะมีรั้วเหล็กกั้นไว้ ในส่วนนี้ผู้อาศัยต้องสอบถามนิติของอาคารก่อนนะคะว่าเราในฐานะลูกบ้านสามารถทำอะไรได้บ้างและไม่สามารถทำอะไรได้บ้างกับพื้นระเบียงที่ยื่นออกไปนี้ แต่คิดว่าการตากผ้าเล็กๆ น้อยนั้นสามารถทำได้ค่ะ ซึ่งห้องที่อยู่ฝั่งด้านทิศตะวันตกแบบนี้เวลาตากผ้าแล้วผ้าจะแห้งเร็วกว่าห้องฝั่งทิศตะวันออกค่ะ
นี่เเป็นวิวของห้อง TYPE B และ TYPE C ค่ะ ซึ่งอยู่ทางฝั่งทิศตะวันตก
วิวฝั่งทิศเหนือจะค่อนข้างโล่งค่ะเพราะมีที่ดินว่างเปล่าและยังไม่มีสิ่งปลูกสร้างมากนัก
Analysis
Project analysis - วิเคราะห์โครงการ ริชพาร์ค3 @เจ้าพระยา
ทำเล : โครงการ Rich Park @ Chaophraya ทำเลใกล้สถานีรถไฟฟ้าไทรม้าสายสีม่วงและแม่น้ำเจ้าพระยา เป็นโครงการที่ค่อนข้างสะดวกสบายในเรื่องของการเดินทางไม่ว่าจะเป็นรถไฟฟ้าหรือรถโดยสารที่มีผ่านอยู่ตลอดเวลาเพราะอยู่ติดกับถนนรัตนาธิเบศร์ซึ่งเป็นถนนใหญ่ นอกจากอยุ๋ใกล้เส้นทางคมนาคมที่สะดวกสบายแล้วยังตั้งอยู่บนพื้นที่ที่มีทำเลที่กล่าวได้ว่ามีวิวที่สวยงามเหมาะกับการเป็นคอนโด High Rise เพราะด้วยทิศการตั้งของตัวอาคารที่ตั้งอยู่ในแนวทิศตะวันออกและทิศตะวันตก ซึ่งฝั่งห้องทิศตะวันออกนั้นจะเห็นวิวสวยงามของฝั่งแม่น้ำเจ้าพระยาและสะพานพระนั่งเกล้า ผู้อาศัยที่อยู๋ชั้นที่ 20 ขึ้นไปนั้นจะเห็นวิวค่อนข้างชัดเจนค่ะ แต่ด้วยอาคารจอดรอดที่มีถึง 7 ชั้น ดังนั้นเรื่องทัศนียภาพของผู้อาศัยชั้นล่างๆ ลงมาจะไม่ค่อยเป็นปัญหานักเพราะอาคารอื่นใกล้ๆ กับตัวตึกขอโครงการ ริชพาร์ค3 @เจ้าพระยา ฝั่งนี้ไม่ค่อยสูง ในส่วนของฝั่งทิศตะวันตกเป็นวิวที่มองค่อนข้างโล่งกว้างด้านฝั่งทิศตะวันตกเฉียงเหนือเป็นวิวหมู่บ้านส่วนทิศตะวันตกเฉียงใต้เป็นวิวสถานีรถไฟฟ้าไทร้ม้า และคอนโดใหม่ที่กำลังสร้างค่ะ
ในเรื่องของทิศทางลมและแดด เนื่องจากตัวอาคารนั้นไม่มีอาคารหรือคอนโดอื่นๆ มาบังเรื่องการรับลมรับแดดจึงถือว่ารับไปเต็มๆ เลยค่ะ โดยฝั่งทิศตะวันตกเฉียงใต้ของตึกจะรับลมค่อนข้างดีในช่วงต้นๆ ปี ส่วนปลายปีจะเป็นฝั่งทิศเหนือและตะวันออกเฉียงเหนือ ซึ่งจากแนวการตั้งของตัวอาคารนั้นอิทธิพลลมประจำปีอาจจะไม่ได้ส่งผอะไรมากนักแต่ในเรื่องของแดดนั้นฝั่งทิศตะวันตกจะรับแดดไปเต็มๆ
สภาพแวดล้อม : สำหรับสภาพแวดล้อมบริเวณโครงการ Rich Park @ Chaophraya ถึงแม้จะตั้งอยู่ที่นนทบุรีแต่ความเจริญด้านการคมนาคมและไม่ไกลจากแหล่งช้อปปิ้งมากนักจึงทำให้ผู้ที่อาศัยสามารถเดินทางได้ไม่ยากและไม่ต้องเดินทางเข้าตัวกรุงเทพฯ ให้ต้องลำบากค่ะ เช่น หากต้องการเดินห้างใกล้สุดก็จะเป็น เซ็นทรัล รัตนาธิเบศร์ที่ห่างเพียง 3 กม.ซึ่งสามารถนั่งรถไฟฟ้าสถานีไทรม้าที่ห่างจากคอนโดราว 100 เมตร ไปลงที่สถานีแยกนนทบุรี 1 ได้ค่ะ หรือนั่งรถสองแถมว หากต้องการความสะดวกสายก็ขับรถไปได้ค่ะ ส่วนโรงพยาบาลที่ใกล้ที่สุดจะเป็น รพ.พระนั่งเกล้า ที่ห่างจากคอนโดริชพาร์ค3 @เจ้าพระยา ประมาณ 4 กม. เท่านั้นค่ะ แต่ในกรณีเรื่องร้านอาหารการกินหรือร้านสะดวกซื้อนั้นกล่าวได้ว่าอาจจะต้องเดินไกลหรือลำบากนิดหนึ่งเพราะร้านอาหารตามสั่งที่อยู่ใกล้ๆ โครงการค่อนข้างน้อยและไม่เพียงพอเมื่อเทียบกับจำนวนผู้อาศัยค่ะ แต่หากต้องการกินอาหารที่หลากหลายมากขึ้นก็อาจจะต้องขับวนตรงบริเวณใกล้ๆ กับสถานีรถไฟฟ้าไทรม้า เพราะแถวๆ นั้นมีร้านอาหารตามสั่ง มีร้านบะหมี่ และร้านสะดวกซื้ออย่าง 7- 11 ขับต่อไปอีกตรงบริเวณยูเทิร์นประมาณ 900 เมตร จะมีร้านอาหารให้เลือกซื้อกินมากขึ้นพร้อมกับ 7-11 อีก 1 จุดค่ะ ดังนั้นแนะนำผู้ที่ไม่ชอบออกไปไหนไกลๆ จากที่พักก็ควรซื้ออาหารมาทำกินเองนะคะเพราะครัวเป็นแบบปิดเรื่องกินของอาหารจึงไม่ค่อยเป็นปัญหาเท่าไหร่ค่ะ
แบบห้อง : แบบห้องของโครงการ Rich Park @ Chaophraya มีอยู่ 3 แบบแปลนด้วยกัน ดังนี้ค่ะ Type A เป็น 1 ห้องนอน 1 ห้องน้ำ ขนาด 32 ตร.ม.,Type B : 1 ห้องนอน 1 ห้องน้ำ 28-30 ตร.ม., และ Type C : 1 ห้องนอน 1 ห้องน้ำ 28-30 ตร.ม ทุกห้องเป็นห้องแบบ Fully Fitted โดยมี ชุดครัวแบบ Built in ให้เท่านั้นนะคะ ไม่มีวอลเปเปอร์ ไม่มีแอร์ให้ค่ะ แต่คุยกับเจ้าหน้าที่เห็นบอกว่าเฟอร์นิเจอร์หรือการตกแต่งต่างๆ ทางโครงการจะมีการจัดโปรโมชั่นขึ้นในแต่ละเดือน สำหรับลูกบ้านที่ยังไม่ได้ย้ายเข้าหรือยังไม่ได้ตกแต่งก็สามารถรอฟังโปรโมชั่นได้ค่ะเผื่อได้ในราคาย่อมเยากว่าที่อื่นก็สามารถสอบถามทางโครงการได้ค่ะ แต่หากคิดอีกแง่หนึ่งของคนที่ชอบออกแบบหรือชอบแต่งห้องเองอยู่แล้ว ห้องแบบ Fully Fitted จึงเหมาะมากค่ะ กลับมาต่อในเรื่องของแบบห้องกันค่ะ จากที่ได้ชมห้องจริงแล้วแต่ละห้องมีจุดเด่นจุดด้อยที่แตกต่างกันขึ้นอยู่กับความชอบของผู้ซื้อด้วยค่ะ เช่น ห้อง TPYE C จะเป็นห้องหน้าแคบแต่จะห้องจะลึกยาว แต่ระเบียงแคบไม่เหมาะกับการตากผ้าเท่าไรนัก ส่วนห้อง TYPE A และ B หน้าห้องจะกว้างกว่า ที่ดูเป็นสัดส่วนที่สุดก็จะเป็นห้อง TYPE A
สิ่งอำนวยความสะดวก : Rich Park @ Chaophraya ใส่ใจการใช้ชีวิตของผู้อาศัยด้วยการคำนึงถึงสิ่งอำนวยความสะดวกสบายไม่ว่าจะเป็นร้านค้า 2 ห้อง หรือส่วนกลางที่ประกอบด้วย สระว่ายน้ำขนาดใหญ่, Fitness ที่จอดรถ 7 ชั้น ลิฟต์โดยสาร 3 ตัวแบบบล็อกชั้น ลิฟต์ดับเพลิง 1 ตัว บันไดหนีไฟ ถังดับเพลิง พื้นที่สีเขียว สวนดาดฟ้าสำหรับชมวิว ระบบโทรทัศน์วงจรปิด 24 ชั่วโมง (CCTV) รวมทั้งเจ้าหน้าที่รักษาความปลอดภัยตลอด 24 ชั่วโมง
ราคา : เริ่มต้นที่ 2 ล้านบาท ถึงแม้ว่า Rich Park @ Chaophraya จะไม่ได้อยู่ในตัวกรุงเทพมหานคร แต่เรื่องราคานั้นก็ไม่ได้ต่ำกว่าราคาคอนโดที่อยู่ใจกลางเมืองนักเพราะด้วยทำเลที่ตั้ง บรรยากาศ วิวรอบๆ เป็นวิวสวยมองเห็นแม่น้ำเจ้าพระยา และหมู่บ้านรอบๆ ประกอบกับอยู่ใกล้สถานีรถไฟฟ้าไทรม้าเพียง 100 เมตร และตั้งอยู่ติดกับถนนใหญ่ ( ถนนรัตนาธิเบศร์ ) จึงทำให้คอนโดมีความน่าสนใจไม่น้อย อีกทั้งยังสามารถตอบโจทย์สำหรับคนที่ไม่มีรถส่วนตัวเพราะการเดินทางค่อนข้างสะดวกสบายด้วยรถไฟฟ้าสายสีม่วง
สำหรับโครงการ ริชพาร์ค3 @เจ้าพระยา มี บริษัท ริชี่เพลส 2002 จำกัด (มหาชน) เป็นผู้พัฒนา ด้วยประสบการณ์ในการสร้างคอนโดและบ้านจึงทำให้บริษัท ริชี่เพลส 2002 จำกัด (มหาชน) ได้รับการยอมรับโดยเฉพาะคามใจใส่ในเรื่องของวิถีชีวิตด้านการเดินทางนั้น จะสังเกตได้ว่าโครงการส่วนใหญ่จะสะดวกสบายในเรื่องของการเดินทางไม่ว่าเป็นรถไฟฟ้า BTS MRT หรือแม้กระทั่งทางด่วนและถนนที่สามารถเชื่อมต่อเส้นทางหลายสาย ซึ่งนับว่าเป็นจุดเด่นของโครงการที่พัฒนาโดยบริษัท ริชี่เพลส 2002 จำกัด (มหาชน) ค่ะ ในเรื่องของด้านคุณภาพวัสดุและ facility ต่างๆ แล้วมีการใส่ใจและเข้าถึงความต้องการของผู้พักอาศัยค่อนข้างมาก
ริชพาร์ค แอท เจ้าพระยา
586dfb2c1de72e71386cf0f9
rich-park3-chaophraya-ริชพาร์ค3-เจ้าพระยา


















































































































































































































































