[Review] รีวิว Plum condo พลัมคอนโด โชคชัย 4 คอนโด Low Rise รายล้อมด้วยแหล่งช้อป กิน เที่ยว ใกล้รถไฟฟ้าสายอนาคตสายสีเหลือง - สีเขียว
ถนนโชคชัย 4 แขวงลาดพร้าว เขตลาดพร้าว กรุงเทพมหานคร
Pruksa Real Estate PLC

infomation
พลัมคอนโด โชคชัย 4 คอนโดใหม่ Low Rise ที่เข้าถึงไลฟ์สไตล์ เข้าใจชีวิตของผู้อาศัย โดยมีแหล่ง กิน ชอป ในวันว่างและสังสรรค์ในวันสบาย อีกทั้งยังสะดวกสบายเพราะมีรถเข้าออกซอยตลอดเวลา และยังใกล้กับรถไฟฟ้าสายอนาคตสีเหลืองและสีเหลือง เพียง 2 กม. เท่านั้น ตอบโจทย์ความต้องการการใช้ชีวิตอย่างลงตัวในสไตล์คนเมือง โดยมีแนวคิดคือ
Live ..ตอบโจทย์ความสมดุลย์ของคุณภาพชีวิตการทำงานและอยู่อาศัย พร้อมสิ่งอำนวยความสะดวกครบครัน Play ..ให้คุณได้สนุกสนาน และสังสรรค์ในวันว่างกับเพื่อนพ้อง Eat .. เต็มอิ่มกับร้านอาหารเจ้าดังมากมายที่รายล้อม ใกล้แค่เดิน
Location
ที่ตั้งโครงการ Plum Condo โชคชัย 4
ในยุคสมัยที่ผู้คนต้องการความสะดวกสบายและไลฟ์สไตล์เป็นของตัวเอง ยิ่งโดยเฉพาะการตัดสินใจเลือกคอนโดนั้นก็ยิ่งทำให้เห็นไลฟ์สไตล์ของตัวเองมากยิ่งขึ้น ดังนั้นวันนี้เราจะพาทุกคนไปชมคอนโดหนึ่งที่สามารถตอบโจทย์ใครหลายคนได้ ไม่ว่าจะเป็นเรื่องการเดินทาง อาหารการกิน แหล่งจับจ่าย ช้อปปิ้ง และที่พูดมานี้ก็คือ โครงการ Plum Condo โชคชัย 4 นั่นเองค่ะ
Plum Condo โชคชัย 4 ตั้งอยู่บนถนนโชคชัย 4 บนพื้นที่ 4 ไร่ 1งาน 91.8 ตารางวา อยู่ใกล้กับแหล่งช้อปปิ้ง ร้านอาหารมากมาย นับว่าเป็นแหล่งที่อุดมสมบูรณ์ไม่น้อย
แผนที่โครงการ
โครงการ พลัมคอนโด โชคชัย 4 ตั้งอยู่บนถนนโชคชัย 4 จุดสังเกตที่ตั้งของโครงการจะอยู่ตรงกันข้ามกับโชคชัย 4 ซอย 48 ค่ะ และหากดูจากแผนที่จะเห็นว่าการเดินทางค่อนข้างสะดวกสบายเพราะเชื่อมต่อกับถนนสายหลักหลายสายเลยค่ะคือ ถนนลาดพร้าว ถนนรัชดาภิเษก ถนนเอกมัย-รามอินทรา ถนนเกษตร-นวมินทร์ ซึ่งสามารถขับรถทะลุถึงกันทั้งหมดไม่ต้องเสียเวลาอ้อมไกลค่ะ
เนื่องจากปัจจุบันโครงการพลัมคอนโด โชคชัย 4 กำลังอยู่ในช่วงดำเนินการก่อสร้าง ดังนั้นการเข้าชม sales gallery จึงต้องเดินทางไปอีกสถานที่คือ กรีน พลาซ่า วังหิน 77 ซึ่งอยู่ห่างจากที่ตั้งโครงการ Plum Condo โชคชัย 4 ประมาณ 1.9 กม. ค่ะ
1.2 การเดินทางด้วยรถยนต์ส่วนตัว ( การเดินทางไปโครงการ Plum Condo โชคชัย 4 )
สำหรับการเดินทางไปโครงการ Plum Condo โชคชัย 4 นั้นจะขอเริ่มจากสถานีตำรวจนครบาล โชคชัย 4 บนถนนลาดพร้าวใกล้ๆ ลาดพร้าว ซอย 53 นะคะ
หากขับรถมาจากสี่แยกรัชดาประมาณ 2 กม. จะสังเกตเห็นสถานีตำรวจนครบาล โชคชัย 4 อยู่ฝั่งซ้ายมือค่ะให้ขับรถตรงไปค่ะ
จะเห็นแยกไฟแดงข้างหน้า แนะนำให้ขับรถชิดเลนซ้ายนะคะ เพราะจะต้องเลี้ยวซ้าย ให้สังเกตป้ายข้างหน้า ด้านบนบอกว่า ‘ ทางลัด รามอินทรา - ลาดปลาเค้า ’ แต่เห็นป้ายก็รู้แล้วใช่มั้ยคะว่าเส้นทางที่เราจะไปนั้นนอกจากจะไปที่ตั้งโครงการพลัมคอนโด โชคชัย 4 แล้วยังสามารถไปเส้นทางอื่นได้อีกด้วย
เมื่อเลี้ยวซ้ายจากสามแยกไฟแดงแล้วให้ขับตามทางมาเรื่อยๆ ซึ่งการจราจรมีการบังคับโค้งซ้ายใกล้ๆ กับตลาดโชคชัย 4 ให้ขับตามทา’มาเลยค่ะ สองข้างฝั่งถนนจะเป็นห้างร้านอาคารพาณิชย์ ซึ่งมีร้านอาหาร ร้านขายเฟอร์นิเจอร์ ร้านขายของชำ อื่นๆ มากมาย
ให้ขับรถตรงไปเรื่อยๆ ประมาณ 1 กม. ระหว่างทางจะเจอรพ.เปาโล เมเมเรียล โชคชัย 4 อยู่ซ้ายมือค่ะ
ขับรถตรงมาเรื่อยๆ ประมาณ 1 กม. ที่ตั้งโครงการ พลัมคอนโด โชคชัย 4 อยู่ด้านซ้ายมือค่ะ
ที่ก่อสร้างโครงการมีการกั้นรั้วสูงแข็งแรงเอาไว้พร้อมป้ายแจ้งชื่อโครงการอย่างเห็นได้ชัดเจนค่ะ
ที่ตั้งโครงการ Plum Condo โชคชัย 4 จะอยู่ตรงกันข้ามกับโชคชัย 4 ซอย 48 ค่ะ อีกจุดสังเกตคือจะอยู่ตรงข้ามกับจิตจันทร์ นวดแผนไทย
จิตจันทร์ นวดแผนไทย จะอยู่ตรงข้ามกับที่ตั้งโครงการพลัมคอนโด โชคชัย 4 ซึ่งสังเกตเห็นได้ง่ายมากค่ะ
รู้ที่ตั้งโครงการพลัมคอนโด โชคชัย 4 กันไปแล้วต่อไปจะพาทุกคนไปชม sales gallery ต่อค่ะ ซึ่งอยู่ห่างจากที่ตั้งโครงการประมาณ 1.9 กม.เท่านั้นเองค่ะ
ขับรถตรงมาเรื่อยๆ ให้สังเกตป้ายที่บอกซอยฝั่งซ้าย เมื่อเลยโชคชัย 4 ซอย 83 มาแล้ว ให้เลี้ยวซ้ายซอยถัดไปค่ะ โดยจะมีป้ายบอกทางแจ้งว่า ทางไปลาดพร้าววังหินค่ะ
ขับตรงมาอีก 500 เมตร ให้เลี้ยวซ้ายค่ะ สำหรับที่ตั้งของ sales gallery จะอยู่ฝั่งตรงกันข้ามค่ะ
ข้อแนะนำในการเดินทางไปชม sales gallery ค่ะ เนื่องจากตอนนี้ตัวโครงการยังสร้างไม่เสร็จหลายคนอาจจะมุ่งหน้าไปที่สำนักงานขายได้เลย โดยเส้นทางการเดินทางสามารถเดินทางตามภาพแผนที่ด้านล่างได้เลยค่ะ
การเดินทางไปที่สำนักงานขาย ที่กรีน พลาซ่า วังหิน 77 นั้นหากต้องการเดินทางบนถนนที่กว้างและโล่งกว้างให้เลือกเปลี่ยนเส้นทางไปที่ถนนลาดพร้าววังหินค่ะ
โดยเริ่มจากรพ.เปาโลเมโมเรียล โชคชัย 4 ให้ขับตรงไปค่ะ
ประมาณ 200 เมตร เมื่อถึงสามแยก มีป้ายบอกทางไปลาดพร้าววังหิน ให้เลี้ยวซ้ายเลยค่ะ จากนั้นก็ตรงมาเรื่อยๆ ประมาณ 2.9 กม. แม้ระยะทางจะต่างกันไม่มากเพียง 100 เมตรเท่านั้น แต่เมื่อขับบนถนนลาดพร้าววังหินจะเห็นว่าสะดวกและรวดเร็วกว่าเพราะถนนค่อนข้างกว้างและมีการจราจรที่คล่องกว่าด้วยค่ะ
ขับรถตรงมาเรื่อยๆ ถึงลาดพร้าววังหิน ซอย 77 จะสังเกตเห็นป้ายโครงการสีชมพูติดบริเวณด้านบริเวณกรีน พลาซ่า วังหิน 77
ขับรถเข้าไปด้านใน กรีน พลาซ่า วังหิน 77 เพื่อชมห้องตัวอย่างได้เลยค่ะ
1.3 การเดินทางด้วยการขนส่งสาธารณะ ( การเดินทางไปโครงการ Plum Condo โชคชัย 4 )
หากใครไม่มีรถยนต์ส่วนตัวก็สามารถโดยสารด้วยรถมอเตอร์ไซค์รับจ้างหรือรถกระป๊อคันเล็กได้โดยมีคิวรถที่เริ่มวิ่งจากตลาดโชคชัยจอดรับระหว่างทางตลอดเวลา
แถมยังมีรถแดงที่ใหญ่ขึ้นมาอีกนิดสามารถรับผู้โดยสารได้ค่อนข้างเยอะและนั่งสะดวกสบายหรือไม่ก็สามารถเรียกแท็กซี่ได้หากต้องการความรวดเร็วในการเดินทางค่ะ
เนื่องจากซอยโชคชัย 4 เป็นย่านที่มีผู้คนอยู่อาศัยเป็นจำนวนมากประกอบกับห้างร้านมากมายทำให้กลายเป็นย่านที่คึกคักตลอดเวลา ดังนั้นเรื่องการเดินทางจึงนับว่าสะดวกสบายไม่แพ้ทำเลอื่นใด อีกทั้งตัวโครงการ Plum Condo โชคชัย 4 ยังอยู่ติดถนนซึ่งไม่ต้องเดินเข้าออกซอยให้เหนื่อยเลยค่ะ
รวมทั้งมีการเดินทางที่สะดวกด้วยรถไฟฟ้า MRT สถานีลาดพร้าว และรถไฟฟ้าในอนาคต สถานีโชคชัย4 ( สายสีเหลือง ลาดพร้าว 53 ) สถานีภาวนา สถานีเสนานิคม ( ปากซอยภาวนา ลาดพร้าว 41 ) ( สายสีเขียว ใกล้ๆ เมเจอร์รัชโยธิน )
Environment
สำรวจโลเคชันรอบโครงการ Plum Condo โชคชัย 4
สำหรับโลเคชั่นรอบๆ โครงการ พลัมคอนโด โชคชัย 4 สามารถกล่าวได้ว่าเป็นโครงการที่ตอบโจทย์การใช้ชีวิตได้อย่างครอบครัน เพราะมีสถานที่กิน แหล่งชอป community mall รายล้อมโครงการ บางแห่งก็สามารถเดินไปได้ เพราะอยู่ใกล้โครงการเพียงไม่กี่สิบก้าวเท่านั้น สำหรับการสำรวจโลเคชันนั้นเราจะขอเริ่มต้นที่ถนนโชคชัย 4 ช่วงต้นซอยกันก่อนค่ะ
ห่างจากที่ตั้งโครงการพลัม คอนโด โชคชัย 4 ประมาณ 1 กม. เป็นโรงพยาบาเปาโล เมโมเรียล โชคชัย 4 ซึ่งเป็นโรงพยาบาลเอกชนค่ะ แต่รองรับการรักษาสิทธิ์ประกันสังคมค่ะ
ผ่อนคลายสบายตัวด้วยร้านนวดแผนไทยที่อยู่ตรงกันข้ามกับโครงการเพียงข้ามถนนมาเท่านั้นค่ะ
ร้านอาหารและร้านถ่ายเอกสารที่ช่วยให้การใช้ชีวิตง่ายขึ้นค่ะ ในกรณีต้องปริ้นเอกสารหรือทำสำเนา
นอกจากร้านอาหารคาวก็ยังมีของหวานของร้านนั่งดื่มเอาใจคอรักกาแฟ เพียงเดินออกจากคอนโดไม่ถึง 100 เมตร
บริเวณถนนหน้าโครงการมีร้านค้าต่างๆ มากมายรวมทั้งโรงรับจำนำที่อาจสามารถช่วยเหลือเราได้ในยามฉุกเฉินค่ะ
นอกจากอาหารทั่วไปแล้วยังมีอาหารพื้นเมือง เช่น อาหารอิสาน อาหารเวียดนามอีกด้วยค่ะ สังเกตมีตู้ ATM ของธนาคารกรุงไทยอยู่ใกล้ๆ ด้วยนะคะ
มีร้าน Fresh Mart ที่มีตู้ ATM กสิกรไทยอยู่ด้านหน้าด้วยค่ะ
ฝั่งตรงกันข้ามเป็นสามแยก โชคชัยซอย 54 ซึ่งเป็นทางไปยังตลาดรวมโชคค่ะ
ตลาดรวมโชคที่อยู่ไม่ไกลนักจากที่ตั้งของโครงการเป็นแหล่งรวมอาหารขึ้นชื่อของบริเวณนั้น
ฝั่งซ้ายมือจากสามแยกมี 7-11 และร้านอาหารหลากหลายสไตล์
ด้านหน้า 7-11 มี ตู้ ATM ธนาคารกรุงเทพ และธนาคารไทยพาณิชย์
ตลาดรวมโชคแหล่งที่กินของอร่อย การันตีด้วยจำนวนผู้คนที่เดินซื้ออาหารอย่างไม่ขาดสาย
พาข้ามไปอีกฝั่งซึ่งเป็นถนนลาดพร้าววังหิน ใกล้ๆ กับสำนักงานขายมี KFC ค่ะ
ขยับไปอีกนิดคือ The Jas ตั้งอยู่ที่ถนนลาดพร้าว-วังหิน อยู่ห่างจากที่ตั้งโครงการประมาณ 1.9 กิโลเมตร
The Jas ลาดพร้าว-วังหิน ห้างที่รวบรวมแหล่งกินช้อปและสถานที่พบปะสังสรรค์ในวันสบาย
Green Plaza อยู่ตรงข้ามกับ The Jas เป็นแหล่งรวมของกินอีกแหล่งที่เหมาะแก่การพักผ่อนหย่อนใจค่ะ
ใกล้สี่แยกไม่ไกลจาก Green Plaza เป็นร้าน เฝอLA ซึ่งอยู่ในโลตัสวังหินค่ะ
Lotus วังหิน ซึ่งอยู่ไม่ไกลจาก The Jas ลาดพร้าว-วังหิน หรือ Green Plaza มากนัก ซึ่งเหมาะกับคนที่ชอบจับจ่ายซื้ออาหารหรือข้าวของเข้าห้องค่ะ หรือพูดง่ายๆเหมาะกับพ่อบ้านแม่บ้านนั้นเอง
Crystal Park เป็นอีก community mall แห่งหนึ่งที่อยู่บนถนนประดิษฐ์มนูธรรม ห่างจากโครงการ พลัม คอนโด โชคชัย 4 ไม่ไกลนักราว 4 กม เป็นแหล่งชอป เที่ยวเหมาะกับไลฟ์สไตล์คนยุคใหม่เป็นอย่างมาก ห่างจากที่ตั้งโครงการ ประมาณ 4 กม.มี Central Festival East Ville แห่งที่ช้อปอีกแห่งค่ะ
ไม่ไกลจาก Central Festival East Ville นักก็มี Tesco Lotus เลียบด่วน ค่ะ หากใครไปช้อปปิ้งแถวๆ Central Festival East Ville ก็สามารถแวะซื้อข้างของเครื่องใช้เข้าคอนโดได้เช่นกันค่ะ
ไม่ไกลจากโลตัส เลียบด่วน มีโฮมโปรสำหรับคนรักการแต่งบ้าน หรือใครอยากแต่งห้องก็แวะเข้าชมได้ ซึ่งห่างจากโครงการราว 4 กม.เท่านั้นค่ะ
Insight
เจาะลึกภาพรวมโครงการ Plum Condo โชคชัย 4
สำหรับโครงการ Plum Condo โชคชัย 4 ตั้งอยู่ที่ ถนนโชคชัย 4 แขวงลาดพร้าว เขตลาดพร้าว เป็นคอนโดมิเนียม Low Rise 8 ชั้น มี 2 อาคารที่พักอาศัยด้วยกันค่ะ คืออาคาร A และอาคาร B โดยอาคาร A มี 224 ยูนิต อาคาร B มี 252 ยูนิต รวมทั้งหมด 496 ยูนิต ส่วนตัวอาคารมีลักษณะเป็นตัว L ค่ะ
จาก Master Plan ทางเข้าจะอยู่ทางฝั่งทิศตะวันออกค่ะ ลานจอดรถอยู่ใต้อาคารทั้งสองอาคารค่ะรวมทั้งลานกลางแจ้งที่อยู่ใกล้กับอาคาร A จากภาพจะเห็นว่าการขับรถสามารถขับได้แบบ two way ใต้อาคารทั้งสองอาคารค่ะ
อาคารที่อยู่อาศัยจะเริ่มที่ชั้น 2 ขึ้นไป ส่วนสีที่เห็นนั้นคือขนาดของห้องแต่ละห้องค่ะ สีชมพูอ่อนเป็น 1 ห้องนอน ขนาด 22.50 ตร.ม. สีชมพูเป็นแปลนแบบ 1 ห้องนอน ขนาด 24.50 ตร.ม. สีชมพูเข้มเป็นแปลนแบบ 1 ห้องนอน พลัส ขนาด 32.50 ตร.ม. สีชมพูเข้มขึ้นมานิดหนึ่งเป็นแปลนแบบ 1 ห้องนอนพลัส ขนาด 35.50 ตร.ม. และสีชมพูเข้มจนเกือบม่วงเป็นแบบ 2 ห้องนอน ( Combine ) คือห้องที่ทะลุถึงกัน ขนาด 48.50 ตร.ม.นั่นเองค่ะ
ความแตกต่างระหว่างแปลนระหว่างชั้นที่ 2-3 และ 4-8 นั้น คืออาคาร A ห้องทางฝั่งทิศตะวันออกฐานตัว L ชั้น 4-8 จะมีห้องเพิ่มเข้ามาอีก 4 ห้องค่ะ คือห้อง 1 ห้องนอน ขนาด 24.50 ตร.ม. จำนวน 2 ห้อง และห้อง 1 ห้องนอน พลัส ขนาด 32.50 ตร.ม.จำนวน 2 ห้องค่ะ
UNIT TYPE
1 ห้องนอน ขนาดประมาณ 22.5 ตารางเมตร
1 ห้องนอน ขนาดประมาณ 24.5 ตารางเมตร
1 ห้องนอน พลัส ขนาดประมาณ 32.5 – 35.50 ตารางเมตร
ในส่วนของแปลนแบบ 1 ห้องนอน พลัส นั้นจะมีพื้นที่กว้างมาก และมีห้องเปล่าเพิ่มมา 1 ห้องซึ่งสามารถทำเป็นห้องนอนเล็กๆ ได้อีกหนึ่งหรือทำเป็นทำงาน ห้องสตูเล็กๆ ก็ได้ค่ะ
2 ห้องชุดรวมกัน 48.5 ตารางเมตร
เป็นห้อง combine โดยทะลุสองห้องรวมกันค่ะ
ในส่วนของ Facility นั้นทางโครงการมีการจัดเตรียมเพื่อรองรับความต้องให้กับผู้อาศัยอย่างครบครันไม่ว่าจะเป็น Lobby, Mailbox, Living Lounge, สระว่ายน้ำ 2 สระ 2 สไตล์, ฟิสเนต, สวนพักผ่อน, พื้นที่สีเขียว, ที่จอดรถ 40 %, กล้อง CCTV, รปภ. 24 ชม.และระบบ Access Card Control ซึ่งทั้งหมดที่กล่าวมานี้ลูกบ้านทั้งอาคาร A และ B สามารถใช้ร่วมกันได้ค่ะ
ภาพจำลองโครงการด้านหน้าติดถนนโชคชัย 4 ทางเข้าอยู่ฝั่งตรงกันข้ามกับโชคชัย 4 ซอย 48
เมื่อขับรถเข้าไปแล้วสามารถเลี้ยวขวาเพื่อจอดรถบริเวณกลางแจ้งได้ค่ะ หรือหากต้องการจอดรถในที่ร่มให้เลี้ยวซ้ายเพื่อจอดรถใต้อาคารของอาคาร A และอาคาร B ค่ะ
การขับรถเป็นลักษณะ two way ค่ะ ซึ่งโครงการออกแบบถนนภายในให้กว้างพอที่จะให้รถของผู้อาศัยสามารถขับสวนกันได้ค่ะ
ลานจอดรถมีทั้งกลางแจ้งและในร่ม ผู้อาศัยสามารถจอดได้ทุกที่ค่ะ
Lobby ในสไตล์โมเดิร์นบรรยากาศดีมองเห็นสระว่ายน้ำ Day Pool
living lounges ซึ่งอยู่ใต้อาคาร A
Day Pool ขนาด 5x11 ลึก 1.1 เมตร ริมสระมีศาลาสำหรับพักผ่อนพร้อมกับน้ำพุที่ทำให้รู้สึกสนุกสนานและผ่อนคลายขณะว่ายน้ำ
สระว่ายน้ำ day pool อยู่ติดกับอาคาร A ลูกบ้านอาคาร B สามารถมาว่ายได้ค่ะ
Night Pool ขนาดประมาณ 5 x 25 เมตร มีความลึกขนาด 1.1 เมตร ข้างสระมีเตียงและศาลาสำหรับพักผ่อนค่ะ
สระว่ายน้ำ Night Pool อยู่ติดกับอาคาร B ลูกบ้านอาคาร A ก็สามารถมาว่ายน้ำได้เช่นกันค่ะ
นอกจากสิ่งอำนวยสะดวกที่ได้กล่าวมาแล้วยังมีพื้นที่สีเขียวและสวนที่เหมาะให้ลูกบ้านพักผ่อนหย่อนใจในเวลาว่างหรือวันหยุดอีกด้วยค่ะ
สำหรับทิศแดดทิศลมนั้นด้วยการจัดวางตัวอาคารจะเป็นแนวยาวด้านทิศเหนือทิศใต้ ตัวอาคารไม่ได้ติดกับตึกสูง ดังนั้นการรับแดดหรือลมจึงได้รับเต็มๆ เพราะไม่มีตึกหรืออาคารใดบังแดดบังลมให้ สำหรับเหนือนั้นจะได้รับแดดน้อยกว่าทิศใต้ค่ะ แต่เรื่องการรับลมนั้นทางด้านทิศใต้จะได้รับลมดีกว่า
Showroom
สำนักงานขายของโครงการ Plum Condo โชคชัย 4
สำนักงานขายของโครงการคอนโด พลัมคอนโด โชคชัย 4 ตั้งอยู่ที่ กรีน พลาซ่า วังหิน 77ค่ะ หากใครต้องการที่ไปชมห้องตัวอย่างแต่ยังไม่มีเวลาก็ตามมาชมกันได้เลยค่ะ
สถานที่ตั้งสำนักงานขายโครงการ พลัมคอนโด อยู่ที่ โชคชัย 4 กรีน พลาซ่า วังหิน 77
ทางเข้ามีป้ายบอกชัดเจน สังเกตได้ง่ายค่ะ
ห้องสำนักงานเป็นห้องสองคูหาภายในอาคาร กรีน พลาซ่า มีป้ายติดอยู่ด้านหน้าค่ะ ข้อดีสำนักงานขายของโครงการ นอกจากลูกค้าจะได้ชมห้องตัวอย่างแล้ว ขากลับก็ยังสามารถแวะชมสินค้าแฟชั่นและเติมพลังคลายหิวให้ท้องได้ที่ กรีน พลาซ่า แห่งนี้อีกด้วยค่ะ
ขอพาทุกคนเข้ามาด้านในสำนักงานขายกันเลยค่ะ ภายในมีโมเดลอาคารของโครงการตั้งโชว์อยู่ส่วนซ้ายมือที่เห็นจากภาพนั้นเป็นห้องตัวอย่างซึ่งจะขอกล่าวในห้วข้อถัดไปนะคะ
ผนังด้านซ้ายของ sales gallery มี Unit Plan และ Master Plan บอกค่ะ
ทางด้านซ้ายมือเป็นผนังวอลเปเปอร์ที่เล่าถึงคอนเซ็ปต์ของโครงการ ที่ตั้ง รวมทั้ง facility ที่อำนวยความสะดวกสบายอย่างครบครัน พร้อมกับที่โต๊ะสำหรับต้อนรับลูกค้าจำนวน 3 ชุดพร้อมเก้าอี้
หลังจากพาชมสำนักงานขายกันไปแล้วเมื่อสักครู่ ต่อไปเราจะไปชมห้องตัวอย่างกันค่ะ ซึ่งห้องตัวอย่างที่จะพาไปชมนั้นมี 2 ขนาดด้วยกันค่ะ
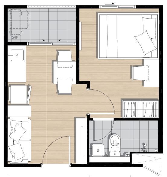
ห้องตัวอย่าง 1 ห้องนอน ขนาด 22.50 ตร.ม.
ห้องตัวอย่าง 1 ห้องนอน ขนาด 22.50 ตร.ม.
แบบแปลน 1 ห้องนอน ขนาด 22.50 ตร.ม.
ภาพ 360 องศาของห้องนั่งเล่น
ห้องที่พาทุกคนมาชมนี้เป็นห้อง 1 ห้องนอน ขนาด 22.50 ตร.ม. มีการตกแต่งแบบ Fully Furnished ซึ่งห้องจริงจะเป็นห้องแบบ Fully fitted ค่ะ ดั้งนั้นการชมห้องตัวอย่างที่เป็น Fully Furnished จึงสามารถช่วยสร้างไอเดียหรือต่อยอดการตกแต่งห้องในแบบ Fully fitted ได้ค่ะ
ประตูห้องเป็นแบบคันโยกเขาควายค่ะ เนื่องจากห้องตัวอย่างไม่ได้ใส่ประตูให้ได้ชมกันเลยขออธิบายในส่วนของพื้นกันเลยนะคะ สำหรับพื้นนั้นเป็นพื้นลามิเนตซึ่งทางโครงการเค้ามีการยกพื้นสูงจากโถงทางเดินของอาคารค่ะ ช่วยป้องกันฝุ่นไม่ให้ปลิวเข้ามาภายในห้องพักค่ะ
เพดานห้องสูง 2.5 เมตร ไฟของห้องเป็นไฟดาวน์ไลท์พร้อมกับระบบสัญญานเตือนเพลิงไหม้เพื่อความปลอดภัยภายในห้องพักด้วยค่ะ
ในส่วนสวิตซ์ไฟเป็นแบบมาตรฐานค่ะ
ฝั่งขวามือของห้องเมื่อเปิดประตูเข้าไปจะเป็นโซฟาขนาด 2 เมตร ถัดไปจะเป็นโต๊ะทำงานค่ะ
สำหรับระยะห่างโซฟาและทีวีนั้นประมาณ 2.7 เมตร ซึ่งยังไม่เหมาะสำหรับการวางโซฟาเบดเพราะเมื่อเปิดประตูห้องจะชนค่ะ
ตรงข้ามโซฟาเป็นชั้นวางทีวีกว้างประมาณ 2 เมตร สูงติดเพดานค่ะ ด้านหลังที่เห็นโครงการมีการกรุด้วยกระจกเงาเพื่อช่วยให้ห้องดูกว้างขึ้นค่ะ
ด้านหลังทีวีมีเต้าเสียบปลั๊กและช่องสัญญาณทีวีให้ค่ะ
ด้านบนชั้นวางทีวีเป็นชั้นลอยค่ะ แนะนำให้วางเฉพาะกรอบรูป กระถางดอกไม้พลาสติกเล็กๆ ไม่ควรวางของประดับที่มีขนาดใหญ่หรือที่เสี่ยงตกลงมาแล้วแตก และด้านล่างเป็นลิ้นชักและชั้นวางของค่ะ
สำหรับโต๊ะทำงานกว้างประมาณ 80 ซม.ค่ะ ดูเล็กกะทัดรัดเแต่สามารถใช้งานได้เป็นอย่างดีค่ะ
ด้านบนเป็นชั้นลอยที่สามารถวางหนังสือหรือวางของโชว์เล็กๆ น้อยๆ ได้เช่นกันค่ะ
มีลิ้นชักที่สามารถเก็บอุปกรณ์ เช่น ปากกา ไม้บรรทัด หรือไดอารีก็ได้เช่นกันค่ะ
ด้านล่างมีเต้าเสียบปลั๊กและสายสัญญาณโทรศัพท์เพื่อรองรับการใช้โน้ตบุ๊กและอินเทอร์เน็ตค่ะ
ติดกับโต๊ะทำงานไปทางด้านฝั่งซ้ายเป็นห้องนอนค่ะ
อีกมุมมองหนึ่งจะห็นได้ว่าโซฟา โต๊ะทำงาน ห้องนอน อยู่ฝั่งเดียวกันค่ะ
ภาพห้องนอนแบบ 360 องศา
สำหรับห้องนอนทางโครงการใช้กระจกบานเลื่อน 3 บาน มีฟิกซ์ 1 บานที่ติดกับโต๊ะทำงานค่ะ ซึ่งการใช้กระจกกั้นทำให้ห้องดูเป็นสัดส่วนและดูโปร่งมากขึ้นค่ะ รางของบานเลื่อนเป็นแบบสมูทราบกับพื้น ไม่เป็นธรณีสูงหมดกังวัลกลัวว่าเท้าจะไปเตะโดนขอบเข้าให้ค่ะ
ภายในห้องนอนสามารถวางเตียงขนาด 5 ฟุตได้พอดี แต่ไม่แนะนำให้ซื้อถึงขนาด 6 ฟุตนะคะ เพราะห้องจะดูแน่นเดินลำบาก ส่วนตรงหัวเตียงเป็นการกรุกระจกเงา
ขวามือของหัวเตียงมีโต๊ะเล็กๆ และมีเต้าเสียบปลั๊กไฟให้ด้านหลังค่ะ
ไฟในห้องนอนเป็นไฟดาวน์ไลท์ 2 ดวงพร้อมติดตั้งระบบสัญญานเตือนเพลิงไหม้
ด้านซ้ายของที่นอนติดกับหน้าต่างค่ะ
ตัวล็อกหน้าต่างเป็นประเภทดันขึ้นและกดลงเพื่อเปิดปิดล็อกค่ะ
แนะนำให้ขยับเตียงให้ห่างออกมาเล็กน้อยนะคะเพราะในกรณีติดผ้าม่านจะทำให้ใช้งานลำบากค่ะ
ด้านฝั่งของปลายเตียงเป็นตู้เสื้อผ้าแบบ built in ขนาด 1.3 เมตรที่ทางโครงการพลัม คอนโด โชคชัย 4 จัดให้กับลูกบ้านค่ะ
พื้นที่จากปลายเตียงและตู้เสื้อผ้านั้นค่อนข้างแคบดังนั้นจึงไม่เหมาะสำหรับการเดินไปเดินมาบ่อยๆ ควรเลือกเสื้อผ้าให้แล้วเสร็จในครั้งเดียวค่ะ
ตู้เสื้อผ้าสูง 2.3 เมตร ติดชิดเพดานห้อง ด้านในมีการจัดสรรพื้นที่ให้เป็นที่วาง ที่แขวนไม่ว่าจะเป็นชั้นบนสุดที่สามารถวางเสื้อผ้าหรือชุดปลอกหมอนผ้าห่ม หรือราวแขวนผ้าที่ยาวตามความกว้างของตู้สามารถแขวนผ้าได้เยอะขึ้น อีกทั้งยังมีชั้นวางเสื้อผ้าและลิ้นชักให้เก็บของชิ้นเล็กชิ้นน้อยได้อีกด้วยค่ะ
ติดกับตู้เสื้อผ้ามุมขวาบนเป็นแอร์ยี่ห้อ DAIKIN ซึ่งทางโครงการไม่ได้ให้มาค่ะ ต้องซื้อเองแต่ก็ถือว่าเป็นข้อดีค่ะเพราะผู้อาศัยสามารถเลือกยี่ห้อที่ชอบ หรือเลือกจุดในการติดตั้งได้เองค่ะ
มุมมองห้องนอน โต๊ะทำงาน โซฟานั่งเล่น จากฝั่งห้องครัวค่ะ
ต่อไปเราจะพาเข้าไปชมห้องน้ำ ห้องครัว และระเบียงกันค่ะ
หากเดินเข้ามาที่ครัวจากห้องนั่งเล่น ห้องน้ำจะอยู่ทางฝั่งซ้ายมือค่ะ ทางเข้าฝั่งขวาเป็นสวิตซ์ไฟค่ะ
ห้องน้ำในมุมมองแบบ 360 องศา
พื้นของห้องน้ำยกสูงจากพื้นห้องปกติประมาณ 12 ซม.ค่ะ
พื้นห้องปูกระเบื้องขนาด 30x 30 ซม.ค่ะ เปิดประตูเข้าไปจะเจอกับอ่างล้างหน้าขนาด 135 x 125 ซม.
ใกล้อ่างล้างหน้าเป็นเค้าท์เตอร์เล็กๆ ที่มีไว้สำหรับวางข้างของเครื่องใช้
ขวามือของอ่างล้างหน้าเป็นโถสุขภัณฑ์ยี่ห้อ COTTO ค่ะ พร้อมสายฉีด และแกนสแตนเลสเสียบกระดาษชำระค่ะ
มุมมองจากโซนอาบน้ำค่ะ จะเห็นว่ามีราวแขวนผ้าอยู่ใกล้กับประตูขนาด 60 ซม.
พื้นทั้งโซนแห้งและโซนเปียกเป็นพื้นกระเบื้องขนาดและแบบเดียวกันค่ะ
มาต่อกันที่โซนอาบน้ำ ซึ่งทางโครงการไม่มีฉากกั้นให้ค่ะ แต่มีการยกธรณีสูงขึ้นประมาณ 5 ซม. เพื่อกั้นไม่ให้น้ำไหลท่วมโซนแห้งค่ะ
สำหรับโซนอาบน้ำจะมีฝักบัวแบบฝักบัวสายอ่อน มีด้ามจับ แต่ไม่มีแกนปรับระดับค่ะ
มีรูกระจายน้ำที่สามารถปรับระดับความแรงได้ค่ะ
ที่วางสบู่อยู่ขวามือใกล้ๆ กับวาล์วน้ำ
ส่วนวาล์วน้ำเป็นยี่ห้อ COTTO ค่ะ
มุมมองห้องครัวแบบ 360 องศา
ออกมาจากห้องน้ำก็เป็นห้องครัวค่ะ ซึ่งภายในห้องครัวประกอบไปด้วยโต๊ะอาหาร ชุดครัว และมุมของตู้เย็นค่ะ ซึ่งเป็นครัวแบบเปิดออกไปแนวๆ ครัวปิดเล็กน้อยเพราะที่ตั้งของโซนครัวนั้นเหมือนแยกออกไปอีกห้องหนึ่งโดยไม่อยู่รวมกับห้องนั่งเล่นหรือห้องนอน เป็นห้องใหญ่ประกอบไปด้วยโต๊ะกินข้าวและจุดตั้งของตู้เย็น แต่หากพูดถึงเรื่องกลิ่นแล้วเมื่อทำอาหารกลิ่นก็จะกระจาย เป็นลักษณะทั่วไปของครัวแบบเปิดค่ะ
ในส่วนของพื้นของครัวยังคงเป็นพื้นลามิเนตอยู่ค่ะ ดังนั้นเวลาทำอาหารหรือต้องล้างจานแนะนำให้หาผ้าหรือพลาสติกมารองค่ะ
โต๊ะอาหารขนาด 80 x 80 ซม. จะอยู่ตรงหัวมุมตรงกันข้ามกับห้องน้ำค่ะ จะสังเกตเห็นโคมไฟลอยอยู่เหนือโต๊ะซึ่งหากใครสนใจก็อยากทำเหมือนห้องตัวอย่างก็สามารถทำได้เช่นกันค่ะ
โซนทำอาหารทางโครงการมีการจัดชุดครัวแบบ Built in ให้กับผู้ซื้อค่ะ สำหรับชุดครัวนั้นกว้างขนาด 120 ซม พื้นที่ยื่นออกมา 60 ซม.สูงประมาณ 80 ซม. และลอยเหนือพื้นประมาณ 6 ซม. ส่วนพื้นที่สำหรับวางตู้เย็นนั้นกว้างประมาณ 85 ซม.ค่ะ
มาดูที่ TOP ของชุดครัวกันค่ะ ที่เห็นนั้นเป็นท็อปครัวพื้นสีขาวเคลือบลามิเนต ซึ่งหากทำอาหารที่เลอะหน่อยหรือเปื้อนง่ายก็จะเห็นได้อย่างชัดเจน ส่วนผนังชุดครัวนั้นพลัม คอนโด โชคชัย 4 มีการออกแบบ โดยกรุกระเบื้องโมเสคอย่างสวยงามซึ่งห้องจริงจะเป็นวอลสีขาวเท่านั้นค่ะ หรือหากต้องการมีผนังที่ช่วยป้องกันคราบสกปรกหรือคราบเลอะแต่ไม่อยากติดกระเบื้องหรือโมเสคก็สามารถหากระดาษมากั้นไว้เพื่อไม่ให้โดนสิ่งสกปรกค่ะ
ด้านบนชุดครัวเป็นชั้นลอยที่มีระยะห่างจากขอบซิงค์ประมาณ 65 ซม. ซึ่งนับว่าสูงพอดีเวลาล้างจานศีรษะก็จะไม่ชนขอบชั้นลอยค่ะ
ในส่วนของซิงค์เป็นยี่ห้อ HAFELE ขนาดหลุมมีความลึกพอใช้ค่ะ
มาดูกันที่ตู้และชั้นวางของชุดครัวกันต่อค่ะ ตู้ที่อยู่ใต้ซิงค์ล้างจานสามารถเก็บถังขยะหรือถุงดำได้ค่ะ ส่วนที่เห็นเป็นท่อนั้นเป็นท่อที่สามารถดักกลิ่นได้ ส่วนด้านขวามือเป็นช่องสำหรับวางไมโครเวฟ จากรูปเป็นไมโครเวฟ Electrolux ขนาด 44 x 25.8 x 35.6 ค่ะ ขยับลงไปเป็นลิ้นชัก 2 ชั้นค่ะ
สำหรับห้องครัวมีแอร์อีก 1 ตัวซึ่งติดอยู่เหนือประตูบานเลื่อนที่ออกไปยังระเบียงด้านนอกค่ะ
ในส่วนของระเบียงด้านนอกนั้นพื้นด้านนอกเป็นกระเบื้องสีเทาเข้มค่ะ ประตูเป็นแบบกระจกบานเลื่อน 2 ราง
สวิตซ์ฟอยู่ขวามือใกล้กับทางออกระเบียง
พื้นมีการยกธรณีสูง 15 ซม.ค่ะ
ตัวพื้นของระเบียงมีขนาด 1.45 x 1.20 เมตร ตัวระเบียงสูง 1 เมตร ซึ่งถือว่าอยู่ในเกณฑ์มาตรฐานความปลอดภัย ไม่ต้องกลัวตกค่ะ จากรูปเป็นภาพจำลองการตั้งเครื่องซักผ้าซึ่งทางโครงการทำให้เห็นว่าหากตั้งเครื่องซักผ้าตรงที่ดังกล่าวแล้วจะมีเต้าเสียบปลั๊กและก๊อกน้ำให้เพื่ออำนวยความสะดวกสบายในการใช้ค่ะ
ด้านบนเป็นที่ติดตั้งคอมเพรสเซอร์แอร์ค่ะ ซึ่งในส่วนนี้ผู้อาศัยต้องจัดการเองทั้งในเรื่องการจัดหาแอร์และติดตั้ง ทั้งนี้ผู้เขียนแนะนำให้ติดตั้งคอมเพรสเซอร์ที่เป็นแบบกริลแอร์ค่ะ เพราะจะช่วยในเรื่องของการเปลี่ยนทิศทางลม และทำให้เมื่อยื่นอยู่บนระเบียงจะไม่รู้สึกร้อนอีกด้วยค่ะ
ห้องตัวอย่าง 1 ห้องนอน ขนาด 24.50 ตร.ม.
ห้องตัวอย่าง ขนาด 1 ห้องนอน ขนาด 24.50 ตร.ม.
แบบแปลนห้องตัวอย่าง 1 ห้องนอน ขนาด 24.50 ตร.ม.
ภาพ 360 องศาโซนนั่งเล่น
ห้องที่ 2 เป็นแบบ 1 ห้องนอน ขนาด 24.50 ตร.ม. มีการตกแต่งแบบ Fully Furnished ห้องจริงจะเป็นห้องแบบ Fully fitted เหมือนกันกับห้องขนาด 22.50 ตร.ม ค่ะ
เพดานห้องสูง 2.5 เมตร ไฟเป็นไฟดาวน์ไลท์จำนวน 3 ดวง พร้อมกับระบบสัญญานเตือนเพลิงไหม้เพื่อความปลอดภัยค่ะ
พื้นของห้องเหมือนกันกับห้องแรกคือพื้นลามิเนตค่ะ ฝั่งซ้ายมือของห้องจะเป็นโซฟานั่งเล่น ถัดไปขวามือเป็นตู้เย็นและชุดครัวค่ะ
สำหรับโซฟาเป็นขนาด 2 เมตรจากขนาดของห้องไม่เหมาะในการเลือกใช้โซฟาเบดค่ะ
ในส่วนของชั้นวางทีวีนั้นมีรูปแบบคล้ายๆ กันค่ะ แต่ไม่ได้กรุผนังด้วยกระจกเงา
มีชั้นลอยที่ช่วยให้สามารถตกแต่งหรือวางของโชว์ได้ค่ะ ซึ่งในส่วนชั้นวางทีวีนี้โครงการไม่ได้แถมมาให้นะคะ ผู้ซื้อต้องจัดการเองค่ะ
ด้านล่างของชั้นวางทีวีมีช่องเก็บของเยอะกว่าห้องแรกแต่ความกว้างของช่องนั้นค่อนข้างน้อยกว่ามาก ดังนั้นจึงเหมาะแค่ไว้สำหรับวางหนังสือเท่านั้นค่ะ อีกอย่างชั้นวางทีวีของห้องนี้เป็นชั้นลอยซึ่งห้องแรกเป็นชั้นที่ติดกับพื้นห้องค่ะ สำหรับผู้อ่านชอบไอเดียแบบไหนก็ลองนำไปปรับเปลี่ยนได้เลยนะคะ
ถัดไปอีกนิดเป็นห้องครัวค่ะ ด้วยแบบแปลนห้องที่ต่างกันดังนั้นโซนครัวของห้องนี้จะเป็นลักษณะเปิดมากกว่าห้องแรก เพราะทั้งโซนนั่งเล่น ทีวี โซฟา ตู้เย็น โต๊ะกินข้าวอยู๋บริเวณเดียวกันหมด ดังนั้นเวลาประกอบอาหรจึงต้องระมัดระวังเรื่องกลิ่นและเรื่องความสปกรกที่จะตามมา
ลักษณะของชุดครัวเหมือนกันกับห้องแรกค่ะ เป็นพื้นลามิเนต
ด้านบนมีชั้นลอย ผนังกรุกระเบื้องแบบโมเสค
ตู้และชั้นวางต่างๆ มีขนาดเท่ากันกับห้องแรกค่ะ
ตรงข้ามกับชุดครัวเป็นโต๊ะกินข้าวขนาด 80 x 80 ซม.มีการตกแต่งด้วยการติดตั้งโคมไฟแบบลอยเหมือนห้องแรกค่ะ
จะเห็นว่าโต๊ะกินข้าวอยู่ใกล้กับประตูทางเข้าห้องนอนค่ะ
ภาพห้องครัวที่มองจากห้องนอนค่ะ
สำหรับระเบียงของห้องจะติดกับโซนครัวค่ะ ประตูทางออกระเบียงเป็นแบบบานเลื่อน 2 ราง ด้านบนติดตั้งแอร์
ตัวล็อกเป็นแบบเซาะร่องที่ใช้การดันขึ้นลงเพื่อเปิดปิดล็อกค่ะ ความสูงของระเบียงเท่ากันกับห้องแรกคือ 1 เมตร
ธรณีประตูถูกยกสูง 15 ซม.พื้นเป็นกระเบื้องสีเทาเข้มขนาด 30 x 30 ซม. โดยพื้นระเบียงมีขนาด 2.20 x 1.20 เมตร ซึ่งมขนาดกว้างกว่าห้องแรก
มีเต้าเสียบปลั๊กไฟและก็อกน้ำเพื่อความสะดวกสบายหากต้องการติดตั้งเครื่องซักผ้า
ไฟด้านนอกระเบียงถูกติดชิดผนังด้านนอกค่ะ
กลับเข้ามาในห้องกันต่อค่ะ ซึ่งจะพาทุกคนเข้าไปชมห้องนอน โดยห้องนอนของห้องที่ 2 นี่ เป็นห้องนอนที่มีห้องน้ำภายในตัวค่ะ อารมณ์คล้ายๆ บ้าน ตัวห้องนอนไม่ได้ถูกกั้นด้วยกระจกแต่ถูกแยกด้วยตัวโครงสร้างของห้องโดยตรงค่ะ
มุมมองด้านนอกจากโซนนั่งเล่น จะเห็นว่าประตูทางเข้าของห้องนั้นติดกับโต๊ะกินข้าว
ห้องนอนในแบบ 360 องศา
ห้องค่อนข้างโล่งและโปร่งแม้ว่าตัวห้องจะไม่ได้กั้นด้วยกระจกใสก็ตาม เพราะขนาดห้องที่มีพื้นที่กว้างอยู่เดิมแล้วรวมกับผนังเหนือหัวที่นอนนั้นกรุด้วยกระจกเงาจึงทำให้ห้องดูโล่งขึ้นกว่าเดิมเยอะ แต่ก็ควรเลือกเตียงขนาด 5 ฟุตไว้นะคะ หรือหากต้องการเตียงขนาดคิงส์ไซส์ก็อาจจะต้องตัดโซนโต๊ะทำงานออกไปค่ะ
สำหรับไฟในห้องนอนเป็นไฟดาวน์ไลท์ 3 ดวง พร้อมกับระบบสัญญานเตือนเพลิงไหม้อีก 1 ตัวค่ะ
ภายในห้องนอนนั้นสามารถติดตั้งทีวีแบบแขวนได้ค่ะ เหมาะสำหรับคนที่ชอบดูละคร ดูหนัง หรือดูฟุตบอล ส่วนการติดตั้งแอร์ของห้องตัวอย่างนั้นจะติดอยู่ตรงผนังห้องปลายเตียง สำหรับกระจกหน้าต่างห้องนอนนั้นจะเหมือนกันกับห้องแรกค่ะ
ข้อแนะนำของการติดตั้งม่านของหน้าต่างห้องนอน ควรเว้นระยะห่างระหว่างเตียงและผนังด้านหน้าต่างไว้เพื่อความสะดวกในการใช้ม่านค่ะ
สำหรับโต๊ะทำงานนั้นห้องนี้มีการบิวท์ให้ติดกับที่นอนค่ะ ส่วนห้องจริงนั้นเราสามารถดีไซน์เองได้ค่ะ นี่เป็นเพียงไอเดียของห้องตัวอย่างเท่านั้น ในส่วนห้องนอนที่ผู้ซื้อจะได้ก็มีเพียงตู้เสื้อผ้าแบบ Built in เท่าน้นค่ะ
สำหรับโต๊ะทำงานของห้องนี้จะเหมือนกันกับห้องแรกค่ะ มีเต้าเสียบปลั๊กไฟให้ด้านล่างค่ะ
ใกล้กับโต๊ะทำงานด้านขวามือเป็นตู้เสื้อผ้าแบบ Built in เหมือนกับห้องแรกค่ะ ซึ่งตามที่บอกตอนแรกค่ะว่าทางโครงการแถมให้ แต่ไม่มีไฟภายในตู้ให้นะคะ อยากได้ก็ต้องจ้างช่างมาติดหลอดไฟให้อีกทีค่ะ ในส่วนของประตูตู้เสื้อผ้านั้นเป็นแบบบานเลื่อน สามารถเลื่อนประตูได้ทั้งสองฝั่ง
ตู้เสื้อผ้ามียกพื้นสูงประมาณ 10 ซม.
ฝั่งขวามือของตู้เสื้อผ้าเป็นทางเข้าประตูห้องน้ำค่ะ ซึ่งห้องน้ำของแปลนนี้จะอยู่ในห้องนอนค่ะ ค่อนข้างมีความเป็นส่วนตัวสูงเลยทีเดียว
มุมมองของห้องน้ำในแบบ 360 องศา
ห้องน้ำของแบบที่สองนี้มีรูปแบบคล้ายกันกับห้องแบบแรกเลยค่ะ เพียงแค่มีขนาดที่กว้างกว่าเพียงเล็กน้อย
พื้นห้องน้ำที่ยกสูง 12 ซม.พื้นปูด้วยกระเบื้องขนาด 30 x 30 ซม.
ภายในแบ่งเป็น 2 โซนคือโซนแห้งและโซนเปียก แต่ไม่มีกระจกฉากกั้นค่ะ สูง 2.3 เมตร
ส่วนไฟภายในห้องน้ำเป็นแบบลมระบายอากาศที่มีโคมไฟล้อมรอบ
มีราวสเตนเลสยาว 60 ซม.สำหรับแขวนผ้าภายใน
รูปแบบของห้องและวัสดุเป็นเหมือนกันกับห้องแรกค่ะ
analysis
วิเคราะห์โครงการ Plum Condo โชคชัย 4
ทำเล : โครงการ Plum Condo โชคชัย 4 เป็นอีกย่านที่น่าสนใจไม่น้อย เพราะนอกจากจะมีแหล่งกินที่มีอาหารอร่อยขึ้นชื่อ แหล่งชอปที่ไม่ไกลมากนักสามารถเดินทางไปบนถนนได้หลายสาย ในอนาคตก็จะมีรถไฟฟ้าสายสีเหลืองพาดผ่านถนนตรงปากซอยโชคชัย 4 นับว่าช่วยร่นระยะเวลาในการเดินทางกับผู้ที่อยู่อาศัยในละแวกนั้นได้เป็นอย่างมาก อีกทั้งยังสามารถเดินทางไปยังสถานีรถไฟฟ้าสายอนาคต (สายสีเขียว ) ได้อีกด้วย
แม้ทำเลที่ตั้งจะอยู่ใกล้ชิดกับสิ่งก่อสร้าง บ้านเรือนผู้คนแต่ก็ไม่ได้ทำให้ผู้อยู่อาศัยเกิดความอึกอัดแต่อย่างใดเพราะอาคารหรือบ้านเรือนผู้คนบริเวณรอบๆ ไม่ได้สูงหรือแออัดเกินไป ดังนั้นสภาพแวดล้อมจึงค่อนข้างน่าอยู่ โดยทางทิศตะวันออกเปนทางเข้าติดกับถนนโชคชัย 4 ทิศใต้เป็นบ้านคนอาคารสูง 2 ชั้น ทิศเหนือเป็นอาคารพาณิชย์ค้าขาย และทิศตะวันตกติดกับบ้านเรือยผู้คนและที่ดินเปล่า
สภาพแวดล้อม :สำหรับสภาพแวดล้อมบริเวณโครงการ Plum Condo โชคชัย 4 ส่วนใหญ่เป็นย่านชุมชนที่พักอาศัยและร้านค้าอาคารพาณิชย์ต่างๆ รอบโครงการค่อนข้างสะดวกสบายไมว่าจะเรื่องอาหารการกิน ร้านสะดวกซื้อ 7-11 ร้านนั่งดื่ม เซอร์วิสต่างๆ เช่น ร้านถ่ายเอกสาร ร้านยา ร้านนวดแผนไทย นับได้ว่าเป็นย่านที่ตอบโจทย์คนที่รักความสะดวกสบายเป็นอย่างมาก อีกทั้งยังเอาใจไลฟ์สไตล์สำหรับคนที่ชอบช้อปปิ้งด้วย community mall มากมาย ไม่ว่าจะเป็น Green Plaza, Crystal Park, Central East Ville และ โรงพยาบาลที่ห่างเพียง 1.2 กม.และนอกจากนี้ยังไม่ใกล้จากสถานศึกษาชื่อดังหลายแห่งอีกด้วย ซึ่งนับว่าเป็นย่านที่ค่อนข้างอุดมสมบูรณ์พอสมควรโดยผู้อาศัยไม่จำเป็นต้องเดินทางออกจากที่พักอาศัยไกลก็สามารถใช้ชีวิตได้อย่างลงตัวค่ะ
แบบห้อง : แบบห้องของโครงการ Plum Condo โชคชัย 4 มีอยู่ 4 แบบแปลนด้วยกัน ดังนี้ขนาด 1 ห้องนอน ขนาด 22.5 ตร.ม., ขนาด 1 ห้องนอน ขนาด 24.5 ตร.ม., ขนาด 1 ห้องนอน พลัส ขนาด 32.5 - 35.5 ตร.ม., ขนาด 2 ห้องชุดรวมกัน ขนาด 48.5 ตร.ม. ทุกห้องเป็นห้องแบบ Fully Fitted โดยมี ชุดครัวแบบ Built in ตู้เสื้อผ้าแบบ Built in ให้เท่านั้นซึ่งเป็นข้อดีสำหรับคนที่ชอบการแต่งห้องหรือมีไอเดียในการออกแบบห้องค่ะ
สิ่งอำนวยความสะดวก : ด้วยความที่โครงการ Plum Condo โชคชัย 4 มีอาคาร 2 อาคารและมีห้องหลายยูนิต โครงการจึงมีสิ่งอำนวยความสะดวกรองรับการใช้ชีวิตของผู้อาศัยได้ค่อนข้างครบครัน เช่น Lobby, Mailbox, Living Lounge, สระว่ายน้ำ 2 สระ 2 สไตล์ ที่ผู้อาศัยทั้งสองตึกสามารถ share ร่วมกัน มีฟิสเนต, สวนพักผ่อน, พื้นที่สีเขียว รวมทั้ง Access Card Control CCTV และรปภ. 24 ชม.
ราคา : ราคาเริ่มต้นของโครงการ Plum Condo โชคชัย 4 เริ่มที่ 1.49 ล้านบาท (pre sales) หลังจากนั้นจะเป็นราคาเริ่มต้นที่ 1.6 ล้านบาท ซึ่งเมื่อเทียบกับทำเลที่ตั้งแล้วนับว่าเป็นโครงการที่มีราคาไม่สูงมากนักเมื่อเทียบกับทำเลอื่นๆ อาจจะเป็นเพราะด้วยสาเหตุที่โครงการยังสร้างไม่แล้วเสร็จราคาจึงอยู่ในช่วงล้านต้นๆ แต่หากสร้างเสร็จแล้วราคาที่แจ้งไว้นั้นต้องมีการปรับอย่างแน่นอน ดังนั้นหากใครต้องการซื้อเพื่ออยู่อาศัยก็สามารถตัดสินใจในช่วง pre sales ค่ะ สำหรับในกรณีผู้ที่ต้องการซื้อเพื่อลงทุนหรือซื้อเพื่อปล่อยเช่านั้นอาจจะต้องศึกษาข้อมูลเพิ่มเติมเพราะทำเลของ
โครงการ Plum Condo โชคชัย 4 แม้จะอยู่ในย่านที่อุดมสมบูรณ์แต่หากพูดถึงเรื่องของสถานศึกษา สถานที่ทำงาน นับว่ามีจำนวนค่อนข้างน้อย หากตั้งใจซื้อเพื่อปล่อยเช่าให้กลุ่มนักเรียนนักศึกษาหรือวัยทำงานจึงไม่ค่อยเหมาะนัก ยิ่งหากไม่มีรถส่วนตัวก็อาจจะลำบากเล็กน้อยเพราะสถานีรถไฟฟ้าสายอนาคตสีเขียวและสีเหลืองยังอยู่ในช่วงดำเนินการคาดการณ์ 2 -3 ปี จึงจะแล้วเสร็จค่ะ
สำหรับโครงการ Plum Condo โชคชัย 4 มี บริษัท พฤกษา เรียลเอสเตท จำกัด (มหาชน) Pruksaเป็นผู้พัฒนา ด้วยประสบการณ์ในการสร้างคอนโด และอสังหาริมทรัพย์มากมายไม่ว่าจะเป็นทาวน์เฮาส์ หรือบ้าน เป็นได้รับการยอมรับ ไม่ว่าจะเป็นด้านวัสดุที่มีคุณภาพ facility ต่างๆ ที่ค่อนข้างครบถ้วนรองรับความต้องการผู้อาศัยได้เป็นอย่างดีอีกทั้งยังใส่ใจระบบความปลอดภัยของผู้อาศัยในทุกๆ ด้าน จึงไม่แปลกนักที่โครงการได้รับการตอบรับไม่น้อย อีกทั้งโครงการส่วนใหญ่มักจะตั้งอยู่ในที่ทำเลที่ค่อนข้างสมบูรณ์ตอบโจทย์ความต้องการของผู้คนที่ต้องพักอาศัยไม่น้อยเลยทีเดียว
พลัมคอนโด โชคชัย 4
585c88b51de72e4ccececb72
plumcondo-chockchai-4-พลัมคอนโด-โชคชัย








































































































































































