[Review] Sucharee Life Laksi - Chengwattana ( สุชารี ไลฟ์ หลักสี่ - แจ้งวัฒนะ ) คอนโดLow Rise ย่านหลักสี่ ใกล้รถไฟฟ้าสายสีแดง และสนามบินดอนเมือง
ถนนกำแพงเพชร 6 ซอย 5 แยก 2 แขวงทุ่งสองห้อง เขตหลักสี่ กรุงเทพมหานคร

Review info
Sucharee Life Laksi - Chengwattana (สุชารี ไลฟ์ หลักสี่ - แจ้งวัฒนะ) ชีวิตสบาย เพียง 5 นาทีจากสถานีรถไฟฟ้าหลักสี่
Sucharee Life Laksi - Chengwattana (สุชารี ไลฟ์ หลักสี่ - แจ้งวัฒนะ) คอนโดแบบ Low rise ภายใต้คอนเซ็ปต์ “ชีวิตสบาย” ที่สามารถ ตอบโจทย์ชีวิตเร่งรีบในปัจจุบันได้เป็นอย่างดี ในอนาคตจะมีสถานีรถไฟฟ้ามาอยู่ใกล้ๆ เพียงแค่ 5 นาที อีกทั้งราคาก็ไม่สูง เพียง 1.79 ล้าน ที่ตกแต่งด้วยเฟอร์นิเจอร์แบบ fully furnished พร้อมกับสิ่งอำนวยความสะดวกมาตรฐาน
ชื่อโครงการ
Sucharee Life Laksi - Chengwattana (สุชารี ไลฟ์ หลักสี่ - แจ้งวัฒนะ)
ราคาห้องเริ่มต้น
1.79 ล้านบาท
ราคาเฉลี่ยต่อ ตร.ม ทั้งโครงการ
60,000 บาท
เว็บไซต์โครงการ
www.suchareelife.com
เบอร์ติดต่อ
02 - 5742555
วงเงินกู้ 100%
ทุกธนาคาร
Location
ทำเลที่ตั้งโครงการ Sucharee Life Laksi - Chengwattana (สุชารี ไลฟ์ หลักสี่ - แจ้งวัฒนะ)
Sucharee life
ตั้งอยู่ที่
ถนนกำแพงเพชร6 ซอย 5 แยก2
สามารถเข้าออกได้ถึง 3 เส้นทางด้วยกัน คือ ถนนแจ้งวัฒนะ10 , ถนนกำแพงเพชร6 (เลียบรางรถไฟเส้นวิภาวดี) และ ถนนสรงประภา
การเดินทางด้วยรถส่วนตัว
เริ่มต้นที่ถนนวิภาวดี มุ่งหน้าดอนเมือง
จากนั้นให้เลี้ยวซ้ายเข้าถนนแจ้งวัฒนะตามป้าย อ.ปากเกร็ด
เมื่อเข้าถนนแจ้งวัฒนะแล้วให้ตรงไปอีกประมาณ 800 เมตรแล้วกลับรถ เมื่อกลับรถแล้วตรงมาอีกประมาณ 500 เมตรให้เลี้ยวเข้าซอย แจ้งวัฒนะ 10 (มีร้านกาแฟชื่อ The Cafe Lab อยู่ปากซอย)
เมื่อเข้าซอยมาแล้วให้ขับตามทางไปเรื่อยๆ จนมาบรรจบกับถนนกำแพงเพชร 6 ซอย 5 จากนั้นให้เลี้ยวซ้ายที่แยก 2 และขับตรงไปอีกประมาณ 1 กิโลเมตร จะเจอคอนโดอยู่ซ้ายมือ
คอนโดจะอยู่ฝั่งซ้ายมือตรงข้ามกับ Today Plaza ส่วนตัว Sale office ให้ขับเลยไปอีกนิดจะอยู่ ทางขวามือ มีป้ายบอกชัดเจน
Project Insight
เจาะลึกภาพรวมโครงการ Sucharee Life Laksi - Chengwattana (สุชารี ไลฟ์ หลักสี่ - แจ้งวัฒนะ)
โครงสร้างคอนโดทำจากอิฐมวลเบา เป็นงานก่อแล้วฉาบ มีทั้งหมด 8 ชั้น 1 อาคาร 177 ยูนิต
คอนโดมีลักษณะเป็นรูปตัว U หันหน้าไปทางทิศตะวันออก
พื้นที่โดยรอบโครงการเป็นบ้านพักอาศัย และร้านค้าทั่วไป ตัวอาคารจัดพื้นที่ชั้นล่างเป็นที่จอดรถทั้งหมด
สระว่ายน้ำที่อยู่ที่ชั้น 2 มี 2 สระคือสระเด็ก กับสระผู้ใหญ่ สระเด็กขนาด 2.3 x 4.9 เมตรสระผู้ใหญ่ 5 x 15 เมตร
ชั้นที่ 1 เป็นที่จอดรถ สามารถจอดในซองได้ 67 คัน ซึ่งคิดเป็น 40% ของพื้นที่ทั้งหมด ไม่รวมจอดซ้อนคัน มีทางเข้า ออกทางเดียว ส่วนชั้น 2 จะเป็นสิ่งอำนวยความสะดวกทั้งหมด ทั้งสระว่ายน้ำ ฟิตเนส พื้นที่ส่วนกลาง ฯลฯ
ชั้น 3-8 เป็นที่พักอาศัยแต่ละชั้นจะมีทั้งหมด 26 ห้อง
แบบห้องของโครงการ มีทั้งหมด 5 แบบ แบ่งเป็นแบบ 1 Bedroom และ 2 Bedroom
1 ห้องนอน A 30.25 ตร.ม.
1 ห้องนอน B 30 ตร.ม.
1 ห้องนอน C 33.45 ตร.ม.
1 ห้องนอน D 43.40 ตร.ม.
และแบบ 2 ห้องนอน E ขนาดพื้นที่ใช้สอย 55.50 ตร.ม.
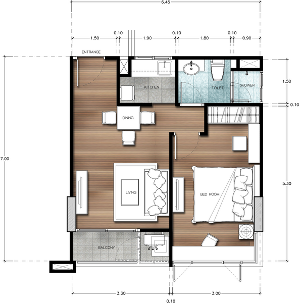
ห้องตัวอย่าง 1 Bedroom C 33.45 ตร.ม.
ชมห้องตัวอย่างแบบ 1 ห้องนอน 33.45 ตารางเมตร โครงการ
Sucharee Life Laksi - Chengwattana (สุชารี ไลฟ์ หลักสี่ - แจ้งวัฒนะ)
ห้องตัวอย่างแบบ 1 ห้องนอน Type C มีพื้นที่ใช้สอยทั้งหมด 33.45 ตารางเมตร
ถือว่ากำลังดีกับการอยู่คนเดียว
ด้านในตกแต่งด้วยโทนสีเทาเป็นหลัก โดยเฟอร์นิเจอร์ที่เป็นสีเทาทางคอนโดจะแถมให้หมดทุกชิ้น ทั้งตู้รองเท้า โต๊ะทานข้าว โซฟา และแอร์ 2 ตัว ในห้องรับแขก และห้องนอน
พื้นเป็นลามิเนตไม้ มีขอบบัว สูงกว่าพื้นด้านนอกห้องเล็กน้อย
เลย์เอาท์ของห้องขนาด 33.45 ตร.ม. จะถูกแบ่งเป็นครึ่งๆ ด้านซ้ายจะเป็น ที่นั่งเล่นกับครัว อีกด้านเป็นห้องนอนกับห้องน้ำ
โต๊ะทานข้าวแบบ 2 คน อยู่ชิดติดผนังด้านซ้ายของห้อง ด้านหลังมีตู้เก็บรองเท้าให้ 1 ตู้
ข้างๆโต๊ะทานข้าวจะมีเต้าเสียบปลั๊กให้ 1 จุด
โซนนั่งเล่น
จากโซฟาถึงชั้นวางทีวีจะห่างหันประมาณ 1 เมตร
ด้านข้างโซฟาก็จะมีเต้าเสียบปลั๊กให้อีก 1 จุด อาจจะเอาว้เสียบโคมไฟแบบห้องตัวอย่างหรือเครื่องใช้อื่นๆก็ได้
ชั้นวางทีวีจะมีลิ้นชักและช่องเก็บของ
มีเต้าเสียบปลั๊กและช่องสายเคเบิลให้พร้อมใช้งาน
ด้านบนจะมีชั้นวางของแบบยึดติดผนังกับแอร์ของ Samsung ขนาด 12,000 BTU ให้ 1 ตัว
โซนครัว
จุดเด่นของห้อง Type C 33.45 ตร.ม คือการกั้นครัวเป็นครัวปิด เวลาทำอาหารกลิ่นจะไม่เข้าไปรบกวนภายในห้อง แต่ก็ต้องเปิดหน้าต่างเพื่อให้กลิ่นระบายออกไป เพราะไม่มีที่ดูดอากาศ ส่วนตู้เย็นทางโครงการไม่ได้แถมให้
ประตูทางออกครัวจะเป็นกระจกบานเลื่อนกรอบอะลูมิเนียมสีขาว โดยมีธรณีประตูกั้นสูงจากพื้นห้องเล็กน้อย
เคาท์เตอร์ครัว
จะมีซิงค์ล้างมาให้ แต่ไม่มีเตาไฟฟ้าเหมือนโครงการอื่นๆ ด้านบนจะเป็นตู้เก็บของยึดผนัง
อ่างล้างจานเป็นแสตนเลสหลุมเดียว ด้านบนเคาท์เตอร์มีเต้าเสียบปลั๊กให้อีก 1 จุดไว้เสียบเตาไฟฟ้า,กระติกน้ำร้อน ฯลฯ
ด้านใต้อ่างก็จะมีช่องเก็บของอีก 2 ช่อง
ชั้นวางของแบบยึดผนังจะมีเต้าเสียบปลั๊กด้วยกัน 2 จุด เพื่อความสะดวกในการใช้งานพร้อมๆกัน
หน้าต่างห้องครัวเป็นแบบบานเลื่อนกรอบอลูมิเนียมมีตัวล็อกตรงกลางบาน
ในห้องครัวจะมีประตูออกไประเบียงอีก 1 บาน เป็นแบบผลัก
ระเบียงจะเป็นที่ติดคอมเพสเซอร์แอร์ แต่ก็ยังมีเต้าเสียบปลั๊กไว้ใช้งานอีก 1 จุด ซึ่งน่าจะเหมาะกับการตั้งเครื่องซักผ้า
ห้องนอน
ห้องนอนจะติดวอลเปเปอร์สีเทา ส่วนเฟอร์นิเจอร์ในห้องนี้จะเป็น Built in หมดทุกอย่าง
เตียงเป็นขนาด 5 ฟุต และมีโต๊ะหัวเตียงอีก 2 ตัว ทั้งซ้ายและขวา ปลายเตียงเหลือพื้นทีประมาณ 50 ซม.
ผนังปลายเตียงเป็นที่ติดตั้งแอร์ โดยบริเวณผนังมีเต้าเสียบปลั๊กและช่องสายเคเบิล เตรียมไว้เผื่อลูกบ้านจะติดทีวีตรงจุดนี้
ด้านขวามือของเตียงนอนจะเป็นโต๊ะเครื่องแป้งและตู้เสื้อผ้า
ที่โต๊ะเครื่องแป้งมีเต้าเสียบปลั๊กอีก 1 จุด
ตู้เสื้อผ้าเป็นแบบ Built in หน้าบานเลื่อน 2 บานและกระจกเงาอยู่ด้านนอก
ห้องน้ำ
ภายในห้องน้ำสุขภัณฑ์จะเป็นของอเมริกัน แสตนดาร์ด ทั้งหมด ทั้งอ่างล้างหน้า , ชักโครก, ฝักบัว ฯลฯ
ห้องน้ำจะแยกส่วนเปียกส่วนแห้ง
ด้วยการกั้นพื้นที่อาบน้ำด้วยกระจกสูงประมาณ 2 เมตร
บริเวณพื้น ก่อขึ้นมาให้สูงจากพื้นประมาณ 10 ซม.เพื่อป้องกันน้ำกระเด็น
พื้นที่อาบน้ำมีชั้นวางอุปกรณ์อาบน้ำเป็นกระจก เพื่อความสะดวกในการอาบน้ำ
อ่างล้างหน้าจะเป็นวงรีแบบฝังลงบนเคาท์เตอร์ ด้านใต้ไม่มีตู้เก็บของให้ และมีกระจกเงาบานใหญ่ให้ 1 บาน
ห้องตัวอย่าง 2 Bedroom E 55.50 ตร.ม.
ชมห้องตัวอย่างแบบ 2 ห้องนอน 55.50 ตารางเมตร โครงการSucharee Life Laksi - Chengwattana (สุชารี ไลฟ์ หลักสี่ - แจ้งวัฒนะ)
ห้องTYPE E เป็นห้องแบบ 2 ห้องนอน 1 ห้องน้ำ 1 ห้องนั่งเล่น ขนาด 55.50 ตรม
ห้อง Type นี้จะได้แอร์ 3 เครื่อง คือในห้องนอน และ ห้องนั่งเล่น โดยเฟอร์นิเจอร์จะได้หมดทุกชิ้นเช่นกัน และ
ห้อง Type นี้จะมีแค่ชั้นละ 2 ห้องเท่านั้น จะอยู่ห้องมุม ได้วิวของริมสระว่ายน้ำ
เมื่อเปิดประตูเข้ามาจะเจอโซนนั่งเล่นตรงหน้า ด้านขวาจะเป็นโซนครัวกับโต๊ะทานข้าว
ทางด้านซ้ายข้างประตูทางเข้าจะเป็นตู้เก็บรองเท้า ที่เก็บร่ม ชั้นวางของและที่แขวนกุญแจ
ตู้เก็บรองเท้าสามารถเปิดใช้งานได้จริง
เมื่อมองจากโซนนั่งเล่นไปทางประตูจะเห็นตามรูปนี้
โซนครัว
เคาท์เตอร์ครัวรูปตัว L เป็นครัวแบบเปิด ท็อปเคาท์เตอร์เป็นแกรนิตโตสีดำ ด้านข้างเป็นพื้นที่สำหรับวางตู้เย็น ส่วนเตาไฟฟ้ากับที่ดูดควันนั้น คอนโดไม่ได้แถมให้ ลูกบ้านต้องติดเพิ่มเอง
ท็อบเคาท์เตอร์ครัวมีเต้าเสียบปลั๊กไฟพร้อมใช้งาน 1 จุด สามารถเอากระติกน้ำร้อน กระทะไฟฟ้า มาเสียบใช้ได้เลย
ชั้นเก็บของด้านบนก็สามารถเก็บของได้หลายอย่าง ทั้งไมโครเวฟ , เครื่องปิ้งขนมปัง ฯลฯ
ด้านล่างเป็นตู้เก็บของและลิ้นชัก
อ่างล้างจานเป็นแบบหลุมเดียว ทำจากสแตนเลส
โต๊ะทานข้าวจะเป็นแบบ 4 คน ชิดผนังใกล้ๆกับหน้าต่าง
โซนนั่งเล่น
ที่นั่งเล่นจะมีโซฟายาว แบบนั่ง 2 คนให้ 1 ตัว เก้าอี้เดี่ยว 1 ตัว โต๊ะกลางและชั้นวางทีวี ผนังกั้นระหว่างห้องนั่งเล่นกับห้องนอนจะเป็นพื้นที่ติดแอร์
มองจากโต๊ะทานข้าวมา ประตูด้านซ้าย ขวาเป็นห้องนอน ตรงกลางเป็นประตูห้อง
ระยะห่างจากโซฟาถึงทีวีประมาณ 1 เมตร ข้างๆโซฟาจะเป็นประตูออกไประเบียง
ประตูออกระเบียงเป็นบานเลื่อนสูงกว่า 2 เมตร
ประตูระเบียงมีธรณีประตูสูงประมาณ 10 ซม
ระเบียงกว้างประมาณ 1 เมตร ปูด้วยกระเบื้องสีโอรส
ระเบียงแบ่งเป็นพื้นที่ติดคอมเพรสเซอร์แอร์ ส่วนหนึ่ง ที่เหลือเหลือสามารถทำเป็นสวนเล็กๆได้เลย
ด้านหลังโซฟาจะเป็นโต๊ะทานข้าว ซึ่งสามารถมองเห็นทีวีได้เช่นกัน
ชั้นวางทีวีมีลิ้นชักสามารถเก็บข้าวของได้
ใต้ชั้นวางทีวีมีเต้าเสียบปลั๊กและช่องเสียบสายเคเบิลไว้พร้อมใช้งาน
โต๊ะกลางที่โครงการให้มาก็มีลิ้นชักเก็บของให้อีก 1 ช่อง
ห้องนอนที่1
ห้องนอนทั้ง 2 ห้องมีขนาดพอๆกัน จะใหญ่กว่ากันเพียงเล็ก น้อย โดยมีฟังค์ชั่นด้านในๆคล้ายๆกัน ทั้งเตียง ตู้เสื้อผ้า โต๊ะเครื่องแป้ง ฯลฯ
เดินเข้าห้องมาจะเจอโต๊ะเครื่องแป้งเป็นอันดับแรก ซึ่งจะมีเต้าเสียบปลั๊กตรงนี้ 1 จุด ติดๆกันจะเป็นตู้เสื้อผ้า
โต๊ะเครื่องแป้งมีลิ้นชักเก็บของให้ 2 ช่อง
ตรงโต๊ะเครื่องแป้ง จะมีเก้าอี้ให้ 1 ตัวและกระจกเงาบานใหญ่ไม่มีกรอบอีก 1 บาน
เตียงนอนเป็นขนาด 5 ฟุต ด้านขวาจะเป็นโต๊ะหัวเตียงและเป็นหน้าต่าง
เตียงที่โครงการให้มาจะมีช่องเก็บของด้านข้างด้วย
พื้นที่ข้างเตียงมีประมาณ 50 ซม
ปลายเตียงมีชั้นวางของให้อีก 1 ตัว ซึ่งสามารถวางทีวีได้ เหนือขึ้นไปจะเป็นที่ติดแอร์
ชั้นวางของก็มีลิ้นชักให้อีก 4 บาน และช่องเก็บของกระจกกระจิกอีก 2 ช่อง
ตู้เสื้อผ้าที่โครงการให้มาจะเป็นแบบ Built in มี 2 บานสูงกว่า 2 เมตรชิดฝ้าเพดาน
ด้านในสามารถใส่เสื้อผ้าได้พอสมควร
ห้องนอนที่ 2
ห้องนอนที่ 2 จะเล็กกว่าห้องนอนแรกเล็กน้อย และต่างกันตรงที่เลย์เอาท์ของห้องกับไม่มีชั้นวางของปลายเตียง นอกนั้นมีเหมือนกันหมด ทั้งโต๊ะเครื่องแป้ง ,ตู้เสื้อผ้า ,แอร์
เตียงนอนก็เป็นขนาด 5 ฟุต
ข้างเตียงก็มีช่องเก็บของเช่นกัน
หน้าต่างจะเป็นบานพับ
ห้องน้ำจะอยู่กึ่งกลางระหว่าง ห้องนอนทั้ง 2 ห้อง ซึ่งฟังชั่นด้านในก็จะเหมือนกับห้องแบบ 1 ห้องนอน
อ่างล้างหน้าของAmerican Standard เหมือนกัน แบบติดผนัง มีพื้นที่ให้วางของด้านข้างเล็กน้อย
ชักโครกและสุขภัณฑ์เป็นของAmerican Standard
กั้นที่อาบด้วยการก่ออิฐขึ้นมาสูงประมาณ 10 ซม.
กั้นที่อาบน้ำด้วยกระจก Tempered Glass ประตูแบบเปิดเข้า ออก
ผนังด้านใน Shower Box เซาะร่องทำเป็นที่วางเครื่องอาบน้ำ และมีหน้าต่างบานกระทุ้งอีก 2 บาน เพื่อระบายอากาศ
Analysis
วิเคราะห์โครงการ Sucharee Life Laksi - Chengwattana (สุชารี ไลฟ์ หลักสี่ - แจ้งวัฒนะ)
ทำเล : Sucharee life ถือว่าอยู่ค่อนข้างไกล จากใจกลางกรุงเทพฯ แต่ในปัจจุบันระบบขนส่งมวลชน กำลังพัฒนาเพื่อรองรับการขยายของเมือง ส่งผลให้ในอนาคตการเดินทางจะสะดวก สบายมากขึ้น โดยในปี 2561 รถไฟฟ้าสถานี
หลักสี่กับการเคหะ จะก่อสร้างเสร็จ ซึ่งจะส่งผลดีต่อคอนโดเพราะใกล้เพียง 5 นาที
แบบห้อง : หลักๆห้องพักมีให้เลือก 2 แบบ คือ 1 ห้องนอน และ 2 ห้องนอน แต่แบบ 1 ห้องนอนจะมีให้เลือกอีก 4 แบบ ตามขนาดห้องที่เพิ่มขึ้น
สภาพแวดล้อม : รอบๆคอนโดเป็นทั้งที่พักอาศัย, หอพัก,คอนโด และแหล่งชุมชน จึงทำให้มีร้านอาหาร , ร้านสะดวกซื้อ ,ตลาด ให้เลือกมากมาย แต่สำหรับคนที่อยากอยู่ที่เงียบๆ อาจจะทำให้รู้สึกวุ่นวายไปหน่อย และจากคอนโดยังสามารถเดินทางไปได้หลายเส้นทางซึ่งถือเป็นข้อดีอีกอย่างหนึ่ง
สิ่งอำนวยความสะดวก : สระว่ายน้ำกับห้องฟิตเนส เป็นสิ่งอำนวยความสะดวกมาตรฐานที่คอนโดทั่วๆไปต้องมี แต่ดูเหมือนจะน้อยไปหน่อย เพราะปกติคอนโดแบบ Low rise จะมีห้องอบไอน้ำ ห้องซาวน่าด้วย
ราคา : 1.79 ล้าน ฟังดูไม่แพงมาก แต่ด้วยความที่ปัจจุบันยังไม่มีรถไฟฟ้า ดังนั้นคนที่เดินทางโดยรถสาธารณะอาจจะต้องลำบากเสียหน่อย เพราะต้องลงรถจากปากซอยแล้วนั่งรถประจำทางเข้ามาอีกต่อ แต่สำหรับคนที่อาศัยอยู่ในละแวกนี้ หรือทำงานย่านดอนเมือง,รังสิตก็ถือว่าคุ้มค่ากับการลงทุน เพราะเมื่อไหร่ที่รถไฟฟ้าสร้างเสร็จราคาห้องก็จะเพิ่มขึ้นทันที และเมื่อถึงเวลานั้นจะอยู่ต่อก็สะดวกสบาย จะปล่อยเช่าก็ได้ หรือขายก็ไม่เสียหลาย เพราะอย่างน้อยราคาน่าจะขึ้นประมาณ 20-30 เปอร์เซ็นต์
Sucharee Life Laksi - Chengwattana ( สุชารี ไลฟ์ หลักสี่ - แจ้งวัฒนะ )
5865c3a61de72e0c1fef8e2f
sucharee-life-laksi-chengwattana-สุชารี-ไลฟ์-หลักสี่-แจ้งวัฒนะ-

















































































