[Review] Urban Attitude คอนโดใหม่ใกล้เมือง เดินจากรถไฟฟ้า BTS แบริ่งเพียง 5 นาที
ซอยแบริ่ง 14 ถนนสุขุมวิท 107 ตำบลสำโรงเหนือ อำเภอเมืองสมุทรปราการ สมุทรปราการ

information - ข้อมูลโครงการ
ข้อมูลโครงการ Attitude Bearing โดยละเอียด
Attitude Bearing โครงการตั้งอยู่ ซอยสุขุมวิท 107 แยกแบริ่ง 14 โครงการน้องใหม่จาก The urban property เดินทางได้หลายหลากเส้นทาง และยังอยู่ห่างจาก BTS แบริ่งเพียง 1 กิโลเมตร โคงการออกแบบภายใต้คอนเซ็ป city condo จัดสรรพื้นที่การใช้งานให้เกิดประโยชน์สูงสุด แต่รายล้อมด้วยธรรมชาติที่ซ่อนอยู่ในตัวเมือง
ชื่อโครงการ
Attitude Bearing
เว็บไซต์โครงการ
http://www.theurban-attitude.com/
เบอร์โทรติดต่อ
02-744-4114
วงเกินกู้ 100%
ทุกธนาคาร
Project Insight
เจาะลึกภาพรวมโครงการ Attitude bearing
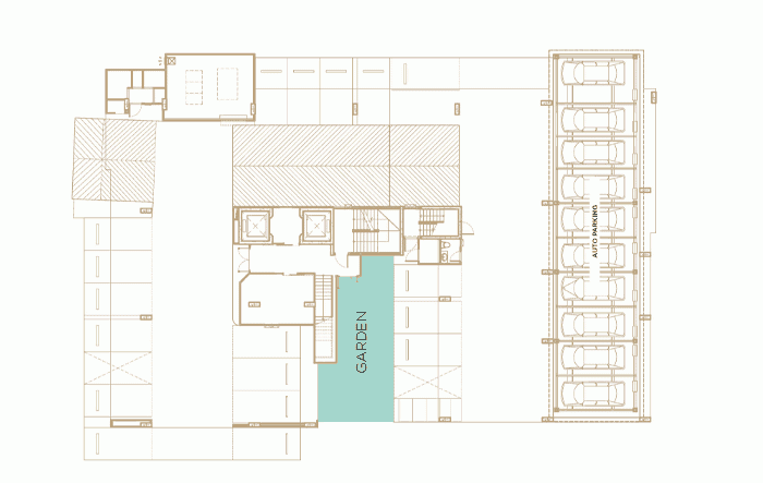
โครงการ Attitude bearing เป็นโครงการคอนโด low rise จำนวน 1 ตึก มีจำนวนห้องทั้งหมด 137 ห้อง
ทางเข้าด้านหน้าโครงการอยู่ติดกับถนนซอยเชื่อมระหว่างแบริ่ง 14 และแบริ่ง 16
ส่วนด้านหลังจะติดกับถนนซอยสันติคาม 13
แปลนอาคารชั้น 1 ของโครงการ เป็นพื้นที่จอดทั้งหมด โดยพื้นที่จอดรถของโครงการมี 40% หรือประมาณ 55 คันในช่องจอด
พื้นที่สวนตรงกลางอาคารชั้น 1 เป็นพื้นที่เชื่อมต่อ สามารถขึ้นไปยัง Multi-purpose lobby ที่ชั้น 2 ได้
ส่วนชั้น 2 เป็น Lobby และห้องพักอาศัย 18 ยูนิต
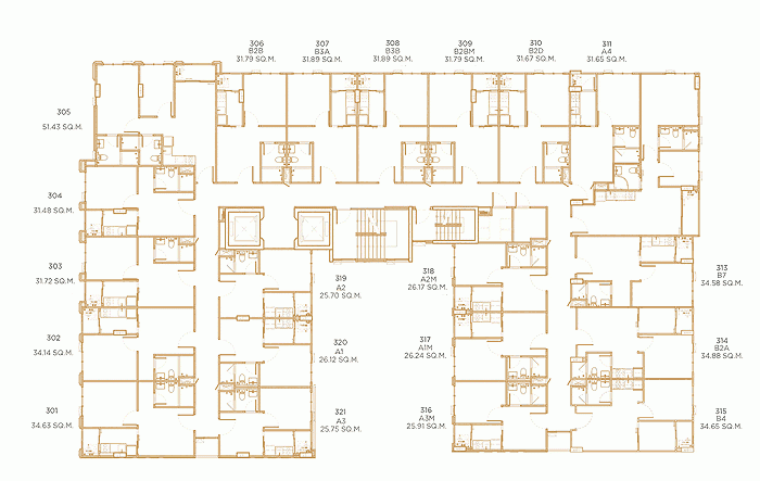
แปลนอาคารชั้น 3 - 7 เป็นห้องพักอาศัยทั้งหมดจำนวน 21 ยูนิต
พอขึ้นมาที่ชั้น 8 ครึ่งหนึ่งจะเป็น Outdoor Facilities ส่วนของสระว่ายน้ำ และสวนหย่อม ห้องฟิตเนส และSteam Room และอีกครึ่งเป็นห้องพัก 14 ยูนิต
สระว่ายน้ำขนาด 4 x 10 เมตร แบ่งสระเด็กและสระผู้ใหญ่ ส่วน Steam Room และห้องฟิตเนสจะอยู่อีกด้าน
ชั้นดาดฟ้า หรือชั้น 9 เป็นพื้นที่สีเขียว สวนหย่อม และ BBQ Area
โมเดลสวนหย่อมบนชั้นดาดฟ้า ซึ่งสามารถเดินขึ้นมาได้จากส่วนกลางที่ชั้น 8
1 Bedroom 26.17 sq.m.
Showroom - ชมห้องตัวอย่างโครงการ Attitude Bearing 1 ห้องนอน 26.17 ตร.ม.
ห้องแรกเริ่มกันที่ห้อง TYPE A 1ห้องนอน ขนาด 26.17 sq.m. เหมาะสำหรับอยู่อาศัย1-2 คน
เข้าไปดูที่ห้องตัวอย่างกันเลยค่ะ
เมื่อเข้ามาภายในห้อง จะสังเกตุได้เลยว่าทางโครงการจัดสรรแยกพื้นที่การใช้งานแต่ละส่วนไว้อย่างชัดเจน
ส่วนแรกเลยเมื่อเปิดประตูห้องเข้ามาคือส่วนของ living area ก่อนอื่นต้องแจ้งก่อนว่า เฟอร์นิเจอร์ทางโครงการ build in มาให้โดยที่นอกเหนือจากเฟอร์นิเจอร์ build in แล้ว ทางโครงการยังให้โต๊ะเตียงต่างๆมาด้วยค่ะ กลับมาพูดถึงส่วน living area กันต่อ โซฟาทางโครงการจัดสำหรับ 2 ที่นั่งมาให้ ส่วนกระจกด้านหลัง ส่วนนั้นทางโครงการตกแต่งสำหรับห้องตัวอย่าง แต่ห้องจริงจะเป็นผนังฉากเรียบทาสี
ทางด้านตรงข้าม build in ชั้นวางทีวี โดยที่มีตู้เก็บของด้วย
ตู้เก็บของสามารถบรรจุของได้เยอะทีเดียวค่ะ
โต๊ะทานข้วชุดนี้อยู่ในส่วนของการตกแต่งจากทางโครงการแต่ในส่วนของห้องจริงจะเป็นแบบในภาพด้านล่าง
คือเป็นโต๊ะทานอาหารที่ build in สำหรับ 2 ท่าน
เมื่อกางออกมาแล้วจะหน้าตาเป็นแบบนี้ค่ะ ทางโครงการบอกว่าสามารถปรับได้ 4 ระดับ ทั้งนี้ทางโครงการไม่มีได้มีเก้าอี้มาให้สำหรับโต๊ะทานอาหารชุดนี้นะคะ
ส่วนถัดมาค่ะ ตรงข้ามกับโซนทานอาหาร จะเป็นส่วนของห้องน้ำ ทั้งนี้ทางโครงการไม่ได้ใส่ประตูมาให้ดูภายในห้องตัวอย่างนะคะ เข้าไปดูที่ห้องน้ำกันดีกว่าค่ะ
ห้องน้ำแยกโซนแห้งและโซนเปียกค่ะ ในส่วนของโซนแห้งนั้นก็จะมีโถสุขภัณฑ์ อ่างล้างหน้า กระจกขนาดครึ่งตัว 1 บาน
ถัดเข้ามาในส่วนของโซนเปียก มีประตูกระจกกั้นอยู่ โซนแห้งและโซนเปียกจึงแยกกันอย่างชัดเจน ฝักบัวทางโครงการมีมาให้ 2 แบบด้วยกันทั้งแบบ head shower และ hand shower
ประตูกระจกมีที่จับที่สะดวกกับการใช้งาน
ระหว่างโซนแห้งและโซนเปียกมีการยกระดับ เพื่อไม่ให้น้ำในส่วนของโซนเปียกไหลมาเลอะที่โซนแห้งได้
ที่วางเครื่องใช้ภายในโซนเปียกมีเพียงแค่ตรงที่เปิดน้ำ ลูกบ้านอาจต้องเพิ่มพื้นที่การใช้งานเอง
เข้ามาดูส่วนต่อมา คือ ห้องนอน ที่ห้องจริงทางโครงการจัดใส่ประตูมาให้ แต่ที่ห้องตังอย่างใน sale gallery ไม่ได้ใส่มานะคะ ภายในห้องนอนตกแต่งเรียบง่าย แต่เพียงพอสำหรับการใช้งาน
เตียงนอนขนาด 5 ฟุตที่หัวนอนบุผ้าให้ แต่จะไม่ได้บุยาวทั้งหมดเหมือนในรูป จะมีให้เพียง 2 ช่วงในส่วนของหัวเตียงเท่านั้นค่ะ
ที่หัวนอนยังมีปลั๊กไฟ ทางโครงการแจ้งว่าตำแหน่งของปลั๊กไฟของห้องตัวอย่าง และห้องที่จะขายจริงจะเหมือนกันนะคะ
ฝั่งด้านข้างหัวเตียงจะเป็นตู้เสื้อผ้าแบบ build in และ โต๊ะเครื่องงแป้งที่ทางโครงการจัดมาให้ แต่ส่วนของโต๊ะเครื่องแป้งจะไม่มีเก้าอี้ให้นะคะ
มาดูรายละเอียดกันชัดๆค่ะ ตู้เสื้อผ้า และ โต๊ะเครื่องแป้ง
เมื่อเปิดออกมาจะมีพื้นที่ใช้งานดังที่เห็นในรูปนะคะ ส่วนของตู้เสื้อผ้าสำหรับ 2 คนอาจจะเล็กไปหน่อย แต่ในส่วนของโต๊ะเครื่องแป้งมีพื้นที่ใช้งานมากพอสมควร มีพื้นที่ให้แยกเก็บของได้เป็นสัดส่วน
ที่โต๊ะเครื่องแป้งยังมีไฟและปลั๊กให้ใช้ได้ที่โต๊ะเลยอีกด้วยค่ะ
พื้นที่ข้างเตียงอีกด้านไม่สามารถวางโต๊ะหัวเตียงได้ แต่ยังมีพื้นที่เหลือทำให้ไม่ดูอึดอัดเกินไป บวกกับติดกับหน้าต่าง ทำให้ห้องดูกว้างขึ้น อยู่อาศัยแล้วไม่อึดอัดค่ะ
กำแพงด้านข้างเตียงจะเป็นกระจกทั้งหมด 3 บานเต็มนะคะ และสามารถเปิดได้ครึ่งนึงของบานริมซ้าย โดยที่ที่เปิดเป็นแบบคันโยกขึ้น ( รูปแบบกระจกอยู่ในส่วนการรีวิวห้องถัดไปค่ะ ) เมื่อเปิดคันโยกสามารถระบายอากาศได้ แต่ไม่ได้สามารถรับลมได้เต็มที่เพราะกระจกจะสามารถเปิดขึ้นได้ประมาณ 45 องศา
ราวผ้าม่านเป็นแบบ drop ราว หรืออาจเป็นแบบตัวกั้น อยู่ที่หน้างานว่า ห้องนั้นๆด้านบนมีท่ออะไรผ่านหรือไม่นะคะ
ตรงข้ามเตียงจะมีทีวีแบบแขวนติดให้อยู่ ส่วนด้านล่างยังพอมีพื้นที่เล็กน้อย ลูกบ้านสามารถนำโต๊ะตัวเล็กๆมาวางเอาไว้สำหรับวางของใช้จุกจิกได้ค่ะ เครื่องปรับอากาศเป็นอีกสิ่งหนึ่งที่ทางโครงการจัดเต็มให้เลยค่ะ มีที่ห้องนั่งเล่นหนึ่งตัวแล้ว ยังมีที่ห้องนอนด้วยอีกหนึ่งตัว จะเห็นน้อยมากที่โครงการจะให้เครื่องปรับอากาศถึง 2 ตัวกับห้องขนาด 26 ตร.ม.
ส่วนถัดมาที่ติดกับห้องนอนคือ ห้องครัว
ห้องครัวเป็นห้องครัวแบบปิด โดยทีมีประตูบานสไลด์ 2-3 ตอนแล้วแต่หน้างานค่ะ ทำให้ตัดปัญหาเรื่องกลิ่นรบกวนขณะทำอาหารไปได้เลยค่ะ
วัสดุพื้นทางโครงการใส่ใจรายละเอียดมาเป็นอย่างดีค่ะ ส่วนของ living area ด้านซ้ายจะเป็นไม้ลามิเนต แต่ในส่วนของครัวด้านขวาจะเป็นกระเบื้อง เผื่อการปรุงอาหารเกิดกระเด็นเลอะขึ้นมา จะได้ง่ายต่อการทำความสะอาด
ห้องครัวจะมีลักษณะเป็นสีเหลี่ยมผืนผ้า ทะลุออกไปเป็นส่วนระเบียง พื้นที่การใช้งานอาจไม่กว้างขวางมากนักในส่วนนี้ แต่เมื่อเทียบกับผู้อยู่อาศัย 1-2 ก็ไม่อึดอัดเกินไปค่ะ
ส่วนของเคาท์เตอร์ทำครัวมีซิงค์ล้างจาน เตาไฟฟ้าแบบ 2 เตา ถ้านำพร้อบออกสามารถนำกล่องมาวางสำหรับเก็บจานได้อีกค่ะ
ด้านบนของเคาท์เตอร์ทางโครงการ build in ตู้สำหรับเก็บของมาให้ค่ะ
เมื่อเปิดออกมาก็จะเป็นพื้นที่สำหรับใช้เก็บของสำหรับการทำครัวได้ ทางโครงการมีที่ดูดควันมาให้ด้วยนะคะ ที่ดูควันนั้นดูดไปปล่อยข้างนอก และท่อครัว กับท่อห้องน้ำยังแยกกันอีกด้วยค่ะเพื่อป้องกันกลิ่นไหลย้อนกลับ
เช่นเดียวกับด้านล่าง ก็ build in ตู้สำหรับเก็บของมาให้
เมื่อเปิดออกมาจะเป็นลักษณะนี้ค่ะ ที่วางไมโครเวฟทางโครงการมีช่องให้ใส่อยู่ด้านล่าง เวลาใช้งานยกขึ้นมาอาจต้องใช้ความระมัดระวังนิดนึง
ไปต่อกันที่ส่วนของระเบียงค่ะ ระเบียงมีขนาดประมาณ 120 90 เซนติเมตร ถึงจะมีคอมเพรสเซอร์แอร์แต่ก็ยังสามารถวางเครื่องซักผ้าได้ค่ะ จะเห็นก๊อกด้านตรงข้ามเครื่องซักผ้า แต่ที่จริงด้านหลังเครื่องซักผ้าก็มีก๊อกน้ำให้ใช้อีกหนึ่งที่ค่ะ
1 Bedroom 31.67 sq.m.
Showroom - ชมห้องตัวอย่างโครงการ Attitude Bearing 1 ห้องนอน 31.67 ตร.ม.
ต่อมาเป็นห้อง TYPE B ค่ะ ห้องนี้ขนาด 31.67 sq.m. เหมาะสำหรับผู้อยู่อาศัย 1-2 คนเช่นกันค่ะ แต่ด้วยขนาดพื้นที่ที่ใหญ่กว่าทำให้หากอยู่ 2 คนแต่ละคนจะมีพื้นที่ส่วนตัวมากยิ่งขึ้น
เข้าไปดูด้านในกันเลยค่ะ
ลักษณะห้องเป็นสี่เหลี่ยมผืนผ้าโดยที่ทะลุยาวเข้าไปด้านในค่ะ ถึงจะเป็นสี่เหลี่ยมผืนผ้าแต่พื้นด้วยที่และการตกแต่งนั้นทำให้ห้องดูกว้างขวาง
เมื่อเข้ามาส่วนแรกของห้องจะเป็นส่วนของ living area ค่ะ ซึ่งโซฟานั้นหน้าตาเหมือนกับห้องแรกที่เราพาไปชมค่ะ เป็นโซฟา 2 ที่นั่งแต่ขนาดจะใหญ่กว่าห้องแรก ผนังที่ห้องจริงจะเป็นแบบฉาบเรียบทาสีนะคะ ไม่ได้ตกแต่งให้เหมือนในห้องตัวอย่าง
ส่วนของเฟอร์นิเจอร์ที่หน้าทีวียังสามารถเปิดออกมาเป็นฟังก์ชันสำหรับเก็บของ โดยที่การออกแบบจะแตกต่างกับห้องแรกค่ะ ที่ห้องนี้จะเป็นตู้ build in รูปตัวแอล สามารถจุของได้เยอะกว่า
โต๊ะทานอาหารของห้อง type นี้จะให้มาเป็นโต๊ะกระจกพร้อมเก้าอี้ 2 ตัวค่ะ แอร์ 2 ตัวในห้องนี้ทางโครงการให้มาในขนาด 12000 BTU
ฟังก์ชันที่เพิ่มขึ้นมาในห้องนี้คือพื้นที่เก็บของหน้าห้องน้ำค่ะ จะเห็นเป็นประตูบานใหญ่ๆอยู่ช่องหน้าห้องน้ำนี่เอง
เมื่อเปิดออกมาจะพบพื้นที่เก็บของขนาดใหญ่ เรียกได้ว่าสะดวเลยค่ะหากใครมีของที่ไม่ค่อยได้ใช้ นำมาเก็บในตู้นี้ ไม่รกเกะกะภายในห้อง
เข้ามาดูในส่วนของห้องน้ำกันต่อเลยค่ะ ห้องน้ำแยกโซนแห้งและโซนเปียกโดนมีประตูกระจก Tempered กั้น
ชุดสุขภัณฑ์ทางโครงการใช้ของ american standard อ่างล้างหน้าเซรามิกมีขนาดใหญ่ เวลาใช้งานน้ำ
จะได้ไม่กระเด็นออกมาเลอะพื้นด้านนอก
ชักโครกแบบ 2 ปุ่มกดช่วยประหยัดน้ำ
ฝักบัวทางโครงการจัดเต็มมาให้ทั้ง hand shower และ head shower
ที่วางชุดอาบน้ำ ลูกบ้านอาจต้องหาตระกร้า หรือ ชั้นมาวาง เพราะในชุดสุขภัณฑ์ที่ทางโครงการจัดมาสามารถวางสบู่ได้เพียงก้อนเดียวค่ะ
ไปต่อกันที่ห้องถัดไปค่ะ ห้องนอน ทางโครงการให้เตียงขนาด 5 ฟุต
หัวเตียงมีการบุผ้าให้แต่ห้องจริงจะไม่ได้บุทั้งหมดแบบในรูปนะคะ
ตู้เสื้อผ้าแบบ build in อยู่ด้านซ้ายมือของเตียงนอน พร้อมโต๊ะเครื่องแป้ง ฟังก์ชันการใช้งานเหมือนกับห้องแรกเลยค่ะ คือโต๊ะเครื่องแป้งสามารถเปิดออกมาเอาไว้สำหรับเก็บของได้ หากตู้เสื้อผ้าในห้องนอนมีพื้นที่การใช้งานไม่เพียงพอสำหนับลูกบ้าน ลูกบ้านสามารถไปประยุกต์ตู้เก็บของหน้าห้องน้ำไว้สำหรับเก็บเสื้อผ้าเพิ่มเติมได้อีกค่ะ
ที่โต๊ะเครื่องแป้งมีปลั๊กให้ ลูกบ้านสามารถมาเป่าผมไดร์ผมตรงนี้ได้เลย สะดวกมากค่ะ
ปลายเตียงสามารถติดทีวีปลายเตียง มีปลั๊กไว้สำหรับเครื่องรับสัญญาณ
ด้านผนังอีกฝั่งเป็นแบบกระจกเต็มบาน 3 ตอน ช่วงกลางวันสามารถเปิดม่านรับแสงเพื่อประหยัดไฟได้อีกด้วยค่ะ
มาถึงเกือบจะส่วนสุดท้ายของห้องนี้กันแล้วค่ะ “ห้องครัว”
ห้องครัวเป็นแบบปิด กั้นด้วยประตูกระจกบานสไลด์ 3 ตอน
ชุดครัว build in ตู้และลิ้นชัก ทำให้พื้นที่การใช้งานเหมาะสมกับคนเมือง ปัจจุบันคนเมืองอาจจะไม่ได้ประกอบอาหารหนักทุกมื้อ แต่เมื่อคราวที่อยากทำก็สะดวก เพราะทางโครงการให้มาครบครันทั้งเตาไฟฟ้า และ เครื่องดูดควัน
ส่วนของเคาท์เตอร์ด้านบน เมื่อเปิดออกมานะคะ จะเจอพื้นที่การใช้งานที่เอาไว้สำหรับใส่ของเช่นเครื่องปรุง หรือถ้วยชามต่างๆ
เคาท์เตอร์ด้านล่าง แบ่งเป็นช่องระบบท่อ ลูกบ้านสามารถเก็บอุปกรณ์ทำความสะอาดชิ้นเล็กๆไว้ที่ช่องนี้ได้ และยังมีลิ้นชักไว้สำหรับเก็บจำพวกช้อนส้อม และช่องวางไมโครเวฟก็อยู่ในส่วนของเคาท์เตอร์ด้านล่างเช่นกัน
โครงการแถมเตาไฟฟ้า แบบสองหัวค่ะ เลือกใช้งานได้ตามความเหมาะสมเลยค่ะ
มาถึงส่วนสุดท้ายของห้องนี้ “ระเบียง” กั้นด้วยกระจกบานสไลด์ 2-3 ตอนตามหน้างาน
ขนาดระเบียงกว้างประมาณ 1.5 x 1 เมตร
ด้านนอกมีการต่อท่อน้ำให้ทั้งด้านซ้ายและขวา สามารถวางเครื่องซักผ้าใต้คอมเพรสเซอร์แอร์ได้ และก๊อกอีกฝั่งก็สามารถใช้สำหรับซักล้างขนาดเล็กอีกได้ด้วยค่ะ
Environment
Environment - สภาพแวดล้อมรอบโครงการ Attitude Bearing
ซอยสุขุมวิท 107 หรือซอยแบริ่งนี้เรียกได้ว่าเป็นเขตชุมชนอุดมสมบูรณ์ไปด้วยร้านค้า ร้านอาหารมากมาย อีกทั้งราคายังถูกมากๆอีกด้วยค่ะ
เดินมาประมาณ 300 เมตรจะเจอหมีสีส้ม ซึ่งจะอยู่ตรงข้ามกับซอยแบริ่ง 6 เราถึง sale gallery กันแล้วค่ะ เราจะเดินต่อไปยังที่ตั้งโครงการจริงกัน เดินตรงจาก sale gallery ไปเรื่อยๆเลยค่ะ
จาก sale gallery เดินมาประมาณ 200 เมตรจะถึงซอยแบริ่ง 14 ที่เป็นที่ตั้งโครงการจริง ระหว่างทางที่ผ่านมาก็จะมีร้านสะดวกซื้อ ร้านค้ามากมายเลยค่ะ มีของกินหลากหลายประเภทให้เลือกกัน หรือจะเป็นคาเฟ่ก็มีให้มานั่งชิลกันค่ะ
ส่วนบรรยากาศภายในซอยแบริ่ง 14 ค่ะ ร่มรื่นไปด้วยต้นไม้ของบ้านแถวนี้ ทำให้รู้สึกสดชื่น ไม่วุ่นวายเหมือนอยู่ในตัวเมืองเลยค่ะ
เดินเข้ามาประมาณ 300 เมตรจะเจอสี่แยกเล็กๆ เลี้ยวซ้ายไปก็จะเป็นตัวโครงการจริงแล้วค่ะ
ด้านซ้ายมือคือพื้นที่ที่กำลังก่อสร้างโครงการ the attitude bearing ค่ะ โดยที่ใกล้ๆยังมีตู้เอทีเอ็มของธนาคารกรุงเทพอีกด้วยค่ะ ถนนหน้าโครงการสามารถเชื่อมต่อไปยังซอยแบริ่ง 16 ได้อีกด้วยนะคะ
เราจะเดินสำรวจเลยซอยแบริ่งไปอีกหน่อยค่ะ
เดินเลยมาอีกหน่อยด้านซ้ายมือดูเหมือนจะเป็นผับนะคะ และมีโรงแรมอยู่ตรงข้ามกันเลย
ตลอดถนนเส้นนี้มีร้านค้า ร้านอาหารมากมายจริงๆค่ะ จริงๆร้านค้าเยอะขนาดนี้ แต่ไม่รู้สึกถึงความวุ่นวายเลยค่ะ
Location
Location – ที่ตั้งโครงการ Attitude Bearing
โครงการ Attitude Bearing ตั้งอยู่ในซอยสุขุมวิท 107 หรือซอยแบริ่ง ซึ่งเป็นซอยเชื่อมถนนสุขุมวิทและถนนศรีนครินทร์ได้ ตัวโครงการเข้าซอยไปประมาณ 700 เมตร และระยะเดิน 1 กิโลเมตร จากสถานีรถไฟฟ้า BTS แบริ่ง
เรามาเริ่มกันตั้งแต่ bts แบริ่งกันค่ะ
พอลงที่บีทีเอส แบริ่ง เดินมาทางสุขุมวิท 107 เลี้ยวซ้ายเข้าไปเลยค่ะ
เข้าซอยแบริ่งแล้ว ก็ตรงมาอีกประมาณ 200 เมตร
เดินมาประมาณ 300 เมตรจะเจอหมีสีส้ม ซึ่งจะอยู่ตรงข้ามกับซอยแบริ่ง 6 เราถึง sale gallery ค่ะ
จาก sale gallery เดินมาประมาณ 200 เมตรจะถึงซอยแบริ่ง 14 ที่เป็นที่ตั้งโครงการจริง
บรรยากาศภายในซอยแบริ่ง 14 ค่ะ เดินเข้าซอยมาประมาณ 300 เมตรจะเจอสี่แยกเล็กๆ เลี้ยวซ้ายไปก็จะเป็นตัวโครงการจริงค่ะ
ด้านซ้ายมือคือพื้นที่ที่กำลังก่อสร้างโครงการ the attitude bearing ค่ะ ถนนหน้าโครงการสามารถเชื่อมต่อไปยังซอยแบริ่ง 16 ได้อีกด้วย
กลับออกมาที่ sale gallery ค่ะ จะตั้งอยู่ตรงข้ามกับซอยแบริ่ง 6 ซึ่งจะเห็นพี่หมีสีส้มยืนอยู่ หาเจอแน่นอนค่ะ ถ้าจะใช้บริการมอเตอไซด์เข้ามาจากหน้าปากซอยบอกพี่วินว่ามาหมีสีส้มก็ได้ค่ะ
ดูพี่หมีกันชัดๆ ก่อนเข้าไปด้านในตัว sale gallery กันค่ะ
ด้านใน sale gallery จัดพื้นที่กว้างขวางสำหรับรองรับลูกค้า ห้องตัวอย่างจะอยู่ด้านใน เดี๋ยวเราไปดูในส่วนต่อไปกันค่ะ
Analysis
Project analysis - วิเคราะห์โครงการ Attitude Bearing
ทำเล : โครงการ the attitude bearing เป็นโครงการตามแนวรถไฟฟ้าสีเขียว ซึ่งปัจจุบันกำลังก่อสร้างต่อไปยังเคหะสมุทรปราการ ส่งผลทำให้ราคาที่ดินมีราคาสูงขึ้นทุกปี ย่านนี้จึงถูกวิเคราะห์ว่ากำลังจะกลายเป็นย่านที่อยู่อาศัยที่คึกคักในอีกไม่กี่ปีข้างหน้า โดยเฉพาะเมื่อรถไฟฟ้าสายสีเขียวส่วนต่อขยายสำโรง - สมุทรปราการเปิดให้บริการในปี 61 ราคาที่อยู่อาศัยในย่านสำโรงลงไปถึงสมุทรปราการก็จะขยับขึ้น ทำให้ย่านแบริ่งขยับขึ้นไปอีก โครงการ the attitude bearing เดินทางได้หลากหลายเส้นทาง ไม่ว่าจะเดินทางโดยรถยนต์ส่วนตัว (โดยย่านนี้เกือบทุกซอยจะสามารถเชื่อมต่อกันได้) หรือจะเดินทางโดยการขนส่งสาธารณะรถไฟฟ้า BTS สถานีแบริ่ง จากการสอบถามคนในพื้นที่ทราบว่าการจราจรให้ซอยนี้รถจะเยอะช่วงเวลาชั่วโมงเร่งด่วน แต่ถ้าเวลาปกติก็จะไม่ค่อยมีรถมากเท่าไหร่ สงบเหมือนอยู่นอกเมืองเลยค่ะ
สภาพแวดล้อม : สภาพแวดล้อมรอบโครงการ ตั้งแต่ปากซอยสุขุมวิท 107 เข้าไปถึงซอยแบริ่ง 14 ระยะทางประมาณ 800 เมตร ตลอดเส้นทางคึกคักไปด้วยร้านค้า ร้านอาหารมากมาย เป็นย่านที่อุดมสมบูรณ์ไปด้วยของอุปโภค บริโภคจริงๆค่ะ กลุ่มคนที่อยู่อาศัยยังเป็นกลุ่มคนเมือง ด้วยทำเลที่ใกล้เมืองเดินทางสะดวก บวกกับที่ดินที่ยังราคาไม่แรงมากนัก จึงเป็นที่สนใจสำหรับคนเมืองมาก เมื่อออกไปที่ถนนสุขุมวิท ในรัศมี 10 กิโลเมตรยังเต็มไปด้วยห้างสรรพสินค้า โรงพยาบาล โรงเรียนนานาชาติ และ ไบเทคบางนา
แบบห้อง : ทางโครงการมีแบบห้องให้เลือกด้วยกันทั้งหมด 3 types โดยที่แต่ละ type ก็จะมีอีกหลากหลายขนาดให้เลือกตั้งแต่ 26.12 - 53.26 sq.m. ทำให้ลูกบ้านสามารถเลือกแบบห้องได้ตรงกับไลฟ์สไตล์ของตัวเองได้มากที่สุด แบบห้องเป็นแบบ
Fully Furnished โดยที่ห้องจริงจะลดเฟอร์นิเจอร์ลอยตัวบางชิ้น และทางโครงการยังมีแอร์ให้ แต่จำนวนขึ้นอยู่กับขนาดห้อง มีการจัดสรรพื้นที่เพื่อการใช้งานคนเมืองได้อย่างลงตัว ประตูห้องเป็นแบบ digital door lock
สิ่งอำนวยความสะดวก : โครงการ the attitude bearing ครบครันไปด้วยสิ่งอำนวยความสะดวกที่เหมาะสมกับไลฟ์สไตล์คนรุ่นใหม่ เช่น ฟิตเนส สระว่ายน้ำ ระบบรักษาความปลอดภัยที่แน่นหนา และยังให้ความสำคัญกับการทำกิจกรรมกลางแจ้ง มีการจัดโซนบาบีคิว และ พื้นที่ co-working space ไว้บริการลูกบ้าน อีกทั้งยังมี shuttle bus สำหรับรับ - ส่งลูกบ้านจากตัวโครงการไปยัง บีทีเอสแบริ่ง ส่วนที่จอดรถตอนนี้โครงการกำลังส่งเรื่องไปที่ EIA เพื่อขอทำที่จอดรถเป็นแบบ automated parking system ซึ่งสามารถจอดได้มากถึง 40%
ราคา : โครงการ the attitude bearing ราคาเฉลี่ยต่อตารางอยู่ที่ 65,000 บาท ราคาเริ่มต้นของโครงการอยู่ที่ 1.65 ล้านบาท ราคานี้ในทำเลที่กำลังพัฒนาขึ้นเรื่อยๆรวมถึงราคาที่ดินยังมีแนวโน้มสูงขึ้นเรื่อยๆถือว่าเป็นราคาที่น่าลงทุน
สรุป : ทำเลแบริ่งเป็นอีกหนึ่งทำเลที่นักลงทุนให้ความสนใจ สังเกตุได้จากมีโครงการขึ้นเยอะมากมาย ทั้งรายใหญ่และรายย่อย ด้วยการคมนาคมที่สะดวกสบายทำให้สะดวกต่อผู้บริโภค Attitude bearing เองก็เป็นหนึ่งในโครงการที่น่าสนใจด้วยราคา แบบห้อง และสิ่งอำนวยความสะดวกต่างๆครบครันสำหรับคนเมือง และ ยังสามารถเดินทางเข้าเมืองได้หลายเส้นทาง อีกทั้งในอนาคตยังมีรถไฟฟ้าสายสีเขียวขยายต่อไปอีก ทำให้ที่ดินมีแนวโน้มราคาสูงขึ้นเรื่อยๆ
แอทติจูด แบริ่ง
58bcd3d61de72e3a7c855ca3
urban-attitude-แบริ่ง





















































































