[Review] รีวิว MONIIQ Sukhumvit 64 (โมนีค สุขุมวิท 64) โครงการใหม่สไตล์ Modern Japanese คอนโด Low Rise 8 ชั้น ใกล้รถไฟฟ้า BTS สถานีปุณณวิถี
ซอยสุขุมวิท 64 (ซอยพงษ์อนุสรณ์ 1) แขวงบางจาก เขตพระโขนง กรุงเทพมหานคร

Review info
MONIIQ Sukhumvit 64 (โมนีค สุขุมวิท 64)
โครงการใหม่สไตล์ Modern Japanese คอนโด Low Rise 8 ชั้น ใกล้รถไฟฟ้า BTS สถานีปุณณวิถี
สวัสดีค่ะ วันนี้ ESTOPOLIS จะพาทุกท่านไปรีวิวคอนโดโครงการใหม่ในย่านปุณณวิถี โครงการ MONIIQ Sukhumvit 64 (โมนีค สุขุมวิท 64) จาก บริษัท ซันเคียว โฮม (ไทยแลนด์) จำกัด คอนโด Low Rise สูง 8 ชั้น จำนวน 2 อาคาร ตั้งอยู่ในซอยสุขุมวิท 64 ซอยติดกับสถานี BTS ปุณณวิถี เป็นคอนโดแบบ Modern Japanese เน้นการออกแบบห้องในสไตล์ญี่ปุ่น ราคาเริ่มต้นเพียง 2.29 ล้านบาท ขายแบบ Fully Furnished ตัวโครงการมีส่วนกลางและรายละเอียดที่น่าสนใจมากมาย เราจะไปรีวิวคอนโดโครงการนี้กันเลยค่ะ
Project Insight
เจาะลึกภาพรวมโครงการ MONIIQ Sukhumvit 64 (โมนีค สุขุมวิท 64)

MONIIQ Sukhumvit 64 (โมนีค สุขุมวิท 64)
คอนโดมิเนียม Low Rise สูง 8 ชั้นจำนวน 2 อาคาร ผู้พัฒนาโครงการคือ บริษัท ซันเคียว โฮม (ไทยแลนด์) จำกัด ประกอบด้วยอาคาร A ลักษณะอาคารเป็นรูปตัว L และอาคาร B ลักษณะอาคารเป็นรูปตัว U ตัวโครงการใช้โทนสีและลายเส้นแนวตั้งและแนวนอนได้ความรู้สึกเรียบง่าย เป็น Element เล็กๆน้อยๆที่สื่อความเป็นคอนโดสไตล์ญี่ปุ่นได้ดีค่ะ ในโครงการก็จะมียูนิตห้องพักในโครงการทั้งหมด 366 ยูนิต และมียูนิตร้านค้า 2 ยูนิต

ภาพจำลองบรรยากาศโครงการ ส่วนกลางจะแบ่งอยู่ทั้งที่อาคาร A และอาคาร B ค่ะ ทางเข้าโครงการอยู่ติดกับถนนซอยสุขุมวิท 64 ที่เป็นซอยลัดออกสุขุมวิท 62 ได้ ด้านข้างโครงการติดกับโครงการคอนโดมิเนียมเก่า อาคารสำนักงาน และบ้านพักอาศัย ถือว่าไม่ค่อยมีอะไรมาบังวิวมากนัก แต่ด้วยความที่เป็นคอนโด Low Rise ก็ไม่ซีเรียสกับวิวระยะไกลเท่าไหร่อยู่แล้ว

ตัวอาคารทั้ง 2 อาคารหันหน้าเอาส่วนกลางเข้าหากัน พื้นที่ชั้นล่างของอาคารเป็นที่จอดรถค่ะ จอดได้ 149 ช่องจอด หรือประมาณ 40% ไม่รวมซ้อนคัน ถ้ารวมก็จะได้ประมาณ 50% ค่ะ

พื้นที่ส่วนกลางจากด้านบน ตรงอาคาร A จะเป็นสวน และอาคาร B เป็นสระว่ายน้ำ ทั้งสองอาคารที่อยู่ด้านในก็จะได้วิวแลกกัน

ภาพจำลองบรรยากาศ Lobby ของโครงการ ซึ่งออกแบบมาเป็น Double Space ความสูงประมาณ 5 เมตร ใช้ผนังกระจกเปิดรับวิวด้านทางเข้าโครงการ

ภาพจำลอง Library ที่อยู่ในอาคาร A

สระว่ายน้ำของโครงการเป็นสระว่ายน้ำระบบเกลือ อยู่บริเวณชั้น 2 ของอาคาร B ความลึกของสระแบ่งเป็น 2 ระดับ คือ 1.2 ม. และ 0.6 ม. ขนาดสระ 8 x 20 ม.

ฝั่งชั้น 2 ของอาคาร A จะเป็นพื้นที่สวน ในอาคาร A จะมีส่วนกลางคือห้อง Fitness, Entertainment Room, Library และยูนิตร้านค้า ซึ่งการเข้าไปใช้งานส่วน Facilities ของโครงการจะเป็นระบบ Key Card ทั้งหมด และประตู double door lock เพิ่มความปลอดภัยให้ลูกบ้านค่ะ

ส่วนของห้องออกกำลังกายของโครงการก็ทำเป็นห้องผนังกระจก รับวิวถนนซอยด้านหน้าทางเข้าโครงการ

ต่อไปเป็นอีกจุดที่น่าสนใจในสำนักงานของของ MONIIQ Sukhumvit 64 (โมนีค สุขุมวิท 64) ที่นี่ เพราะไม่ค่อยมีคอนโดโครงการไหนทำห้อง Materials Room แยกออกมาให้ลูกค้าชมตัวอย่างวัสดุที่ทางโครงการใช้ค่ะ


มีประวัติความเป็นมา แนวคิด Conceptโครงการของ ซันเคียว โฮม (ไทยแลนด์) ติดไว้ให้ชมตลอดทางเดินค่ะ

เคยได้รางวัลการออกแบบด้วย

ที่ผนังก็มีผลงานที่ผ่านมาของบริษัท ซันเคียว โฮม จำกัด แสดงไว้ให้ชม
เข้ามาเจอกับรายการวัสดุที่ทางโครงการเลือกใช้ทั้งแบบประตู แอร์ และสุขภัณฑ์
แอร์ที่ทางโครงการแถมให้ จะเป็นแอร์ยี่ห้อ TRANE ขนาด BTU ตามแต่ละพื้นที่ของแบบห้องค่ะ
ส่วนของสุขภัณฑ์ในห้องน้ำทาง MONIIQ Sukhumvit 64 (โมนีค สุขุมวิท 64) ใช้ของแบรนด์ TOTO ค่ะ
ต่อไปดูบานประตูกันบ้างค่ะ เพราะในห้องตัวอย่างไม่มีประตูติดมาให้ชม
สำหรับประตูหน้าห้องจะได้เป็นบานไม้สีน้ำตาล มี 2 สี มือจับและตาแมว สำหรับประตูหน้าห้องจะเป็นบานไม่สีน้ำตาล ส่วนปนะตูห้องนอนจะได้เป็นสีเบจค่ะ
มือจับประตูหน้าและประตูห้องนอนจะเป็นแบบก้านโยกพร้อมตัวล็อคค่ะ
ส่วนประตูของห้องน้ำด้านในจะได้ประตูไม้กับมือจับลูกบิดแบบนี้ค่ะ
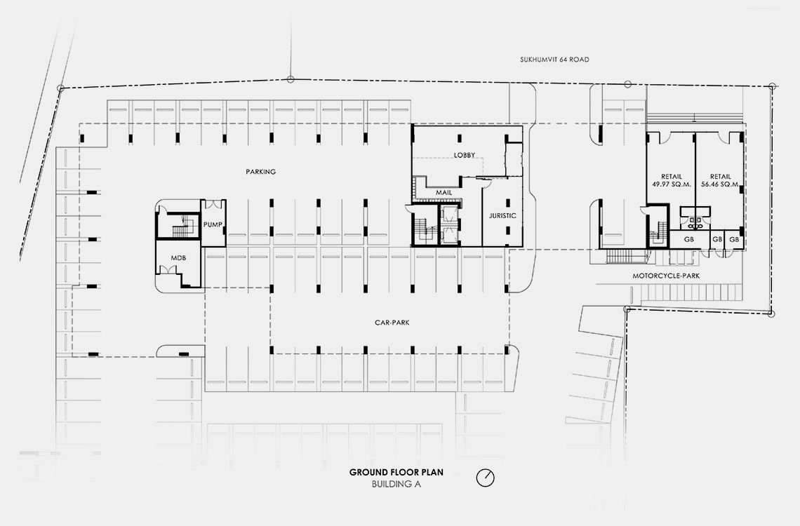
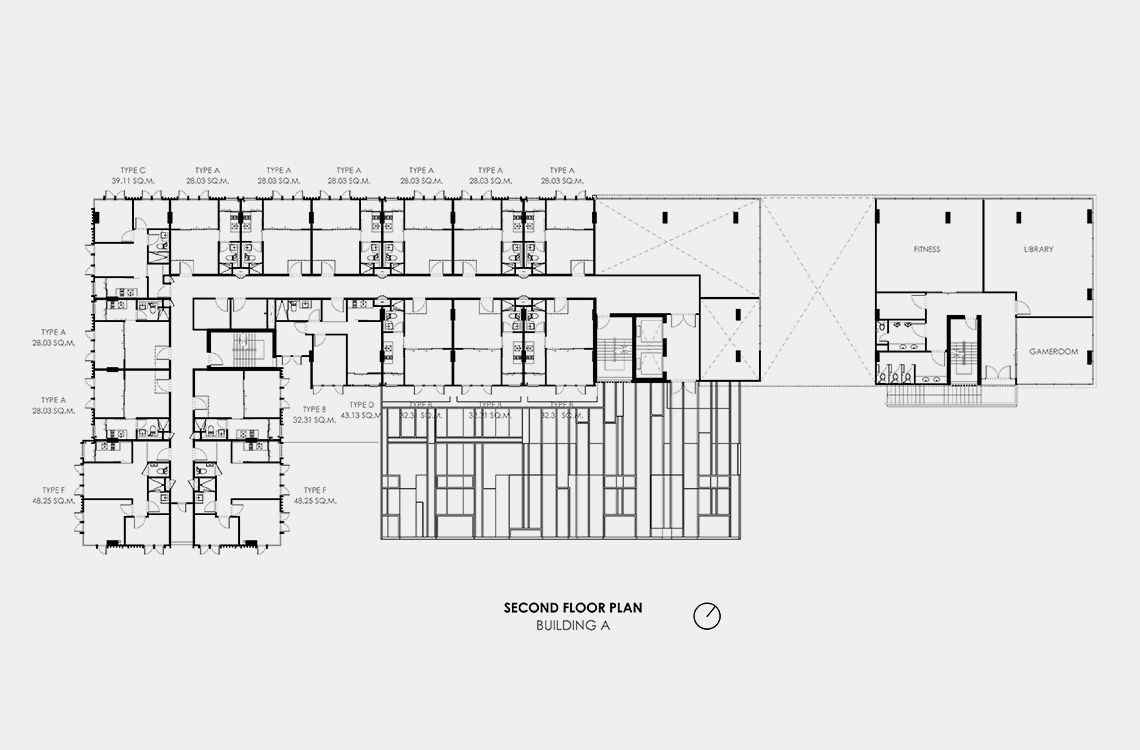
มาดูผังโครงการ MONIIQ Sukhumvit 64 (โมนีค สุขุมวิท 64) กันบ้าง เริ่มจากผังอาคาร A กันก่อนเลย อาคารสูง 8 ชั้น อยู่ติดถนนด้านหน้าโครงการ พื้นที่ด้านล่างของอาคาร A จะเป็นที่จอดรถ ที่อาคาร A จะมีส่วนของ Facilities หลายอย่าง รวมถึงร้านค้าด้วย
แปลนอาคาร A ชั้น 2 จะเป็นส่วนของห้องพักอาศัย และ Facilities ของโครงการคือ ห้องFitness, Library, Entertainment Room และสวนส่วนกลาง ในชั้นนี้มีห้องทั้งหมด 16 ห้อง แบ่งเป็นห้องแบบ 1 ห้องนอน 12 ห้อง และห้องแบบ 2 ห้องนอน 4 ห้องค่ะ

ส่วนชั้น 3-8 จะเป็นส่วนของห้องพักอาศัยทั้งหมดค่ะ มีห้องทั้งหมด 27 ห้อง คือแบบ 1 ห้องนอน 21 ห้อง และ 2 ห้องนอน 6 ห้อง

ต่อมาเป็นแปลน Groundfloor ของอาคาร B ค่ะ อาคารนี้จะมีรูปทรงเป็นตัว U หันหน้าเข้าหาอาคาร A พื้นที่ชั้นล่างก็เป็นที่จอดรถกับทางเข้าอาคารเช่นกันค่ะ

มาดูที่แปลนชั้น 2 ของอาคาร B ซึ่งจะมีพื้นที่ส่วนกลางคือสระว่ายน้ำอยู่ด้วย ซึ่งตัวส่วนกลางตรงนี้ทางโครงการก็จัดให้เชื่อมต่อกับโถงลิฟต์ได้เลย ไม่ต้องผ่านหน้าห้องของคนอื่น ได้ความเป็นส่วนตัวด้วย ห้องพักอาศัยที่ชั้นนี้มีทั้งหมด 26 ห้อง เป็นแบบ 1 ห้องนอน 21 ห้อง และ 2 ห้องนอน 5 ห้องค่ะ

แปลนอาคาร B ชั้น 3 - 8 เป็นส่วนของห้องพักอาศัยทั้งหมด จำนวน 27 ห้องค่ะ ห้อง 1 ห้องนอน 21 ห้อง และ 2 ห้องนอน 6 ห้อง ตัวห้อง 2 ห้องนอนที่อยู่ตรงมุมอาคารก็จะได้หน้าต่างแบบ Bay Window แบบห้องตัวอย่างค่ะ
แบบห้องของ MONIIQ Sukhumvit 64 (โมนีค สุขุมวิท 64) มีทั้งหมด 2 แบบหลักๆ และแบบย่อยตามขนาดห้องอีกหลายแบบเลยค่ะ แบบ 1 ห้องนอน ขนาด 28 และ 32 ตร.ม. เริ่มต้น 2.29 ล้านบาท
ตัวห้องมีพื้นที่ Foyer หรือโถงเข้าห้อง ที่ทำแบบสไตล์ญี่ปุ่น ได้ห้องนอนแบบกั้นประตูบานสไลด์ ครัวเป็นครัวปิด และห้องน้ำกับระเบียงอยู่ในครัวค่ะ

- แบบ 2 ห้องนอน ขนาด 39-51 ตร.ม.
ตัวห้องมี Foyer ตรงประตูทางเข้าเช่นกัน ตรวเป็นครัวปิด ระเบียงในครัว จุดเด่นของแบบห้องนี้คือห้องน้ำ ซึ่งแยกห้องสุขากับห้องอาบน้ำออกจากกัน ได้อารมณ์ห้องน้ำแบบญี่ปุ่น

ห้องตัวอย่าง 1 Bedroom 28 ตร.ม
ห้องตัวอย่าง 1 ห้องนอน ขนาด 28.03 ตร.ม. ของโครงการ MONIIQ Sukhumvit 64 (โมนีค สุขุมวิท 64)
สำนักงานขาย โครงการ MONIIQ Sukhumvit 64 (โมนีค สุขุมวิท 64) จัดห้องตัวอย่างไว้ให้ชม 2 แบบ คือแบบ 1 ห้องนอน ขนาดพื้นที่ใช้สอย 28.03 ตารางเมตร และแบบ 2 ห้องนอน ขนาด 48.25 ตารางเมตรค่ะ
ห้องแรกที่เราจะมารีวิวคอนโดนี้ก็คือ แบบ Type A ขนาด 28.03 ตารางเมตร 1 ห้องนอน 1 ห้องน้ำ และห้องครัว
Layout ของห้อง Type A และ B จะเป็นแบบของห้อง 1 ห้องนอน มี Foyer ด้านหน้าประตูทางเข้า เข้ามาส่วนแรกเป็น Living Area แยกห้องนอนกับส่วนห้องครัวและห้องน้ำค่ะ MONIIQ Sukhumvit 64 ขายแบบ Fully Furnished เฟอร์นิเจอร์ที่ทางโครงการแถมให้จะมีสติกเกอร์โลโก้โครงการติดอยู่
เรามองจากประตูห้องเข้ามาจะได้มุมตามนี้ มองเห็นส่วนของ Living ก่อนเลย
เข้ามาส่วนแรกที่เราจะเจอก็คือ Foyer อย่างที่บอกค่ะ เป็นพื้นที่สำหรับวางตู้รองเท้า และที่เก็บของอื่นๆได้
โครงการ Moniiq Sukhum*vit 64 (โมนีค สุขุมวิท 64)* เป็นคอนโดสไตล์ญี่ปุ่น ซึ่งเอกลักษณ์หนึ่งก็คือจุดนี้ ที่มีการยกระดับพื้นในห้องขึ้น จากพื้นตรง Foyer ที่เป็นกระเบื้อง เพื่อให้เป็นที่ถอดและเปลี่ยนรองเท้าก่อนเดินเข้าบ้าน เหมือนชาวญี่ปุ่นค่ะ อีกทั้งยังช่วยกันฝุ่นหรือสิ่งสกปรกที่จะติดมากับรองเท้าได้ด้วย
ต่อไปจะมาดูส่วนของ Living Area กันค่ะ
พื้นที่นั่งเล่ตรงนี้ให้มาค่อนข้างกว้าง ระยะห้างระหว่างโซฟากับทีวีค่อนข้างสบายตา และยังได้ช่องแสงจากหน้าต่างภายในห้องนอนอีกด้วย พื้นในห้องจะได้เป็นกระเบื้องยางลายไม้นะคะ พื้นแบบนี้จะทนความชื้นได้ดีกว่าพื้นลามิเนตค่ะ ส่วนไฟได้เป็นดาวน์ไลท์
ตรงนี้เป็นอีก Gimmick หนึ่ง คือทางโครงการจะมีฉากระแนงไม้กั้นบริเวณ Foyer หน้าห้องกับส่วนที่วางโซฟาไว้ เพื่อความเป็นสัดส่วน และเพิ่มความเป็นส่วนตัวด้วยค่ะ
เฟอร์นิเจอร์ที่ทางโครงการแถมให้จะมีสติกเกอร์โลโก้โครงการติดอยู่นะคะ สำหรับชั้นวางทีวีที่ให้มาจัดแบบเต็มพื้นที่ผนัง สามารถวางทีวีได้ถึง 50 นิ้ว และมีพื้นที่เก็บของด้านข้างได้อีก สำหรับแอร์ในห้องนี้ได้ขนาด 9,000 BTU จะติดอยู่ด้านบนเหนือประตูในห้องนอนค่ะ
ด้านบนมีตูเก็บของแบบบานเปิดและวางของข้างบนเพิ่มอีกได้ค่ะ ด้านล่างก็มีลิ้นชักเก็บของให้เช่นกัน
มาดูอีกฝั่งกันบ้าง โครงการวางโซฟาแบบ 2 ที่นั่งมาให้พร้อมกับโต๊ะกลาง 1 ตัว
โซฟานั่งได้ ขนาดกำลังดีค่ะ หรือใครจะหาโซฟาแบบ Armchiar เล็กๆ หรือ Beanbag มาวางเพิ่มอีกก็ได้นะคะ
ติดกับส่วน Living Area คือห้องนอนนั่นเอง
ประตูห้องนอนเป็นประตูกระจกใสบานสไลด์แบบ 3 ตอน กรอบสีขาวค่ะ ให้ความรู้ลึกโล่งไปอีกแบบ กับโครงการส่วนใหญ่ที่มักจะใช้กรอบสีเทาหรือสีดำ
กรอบรางเลื่อนประตูเป็นแบบไม่ฝังพื้น เวลาเดินต้องก้าวกันหน่อยนะคะ
ด้านในห้องนอนได้เตียงขนาด 5 ฟุต วางเกือบชิดผนังฝั่งหน้าต่าง เหลือพื้นที่เดินรอบๆเตียงได้ค่ะ
พื้นที่ด้านข้างเตียงพอให้เดินเปิดปิดม่านได้ค่ะ แต่ไม่สามารถวางของได้ ทางโครงก็บิ้วท์หัวเตียงมาให้ สามารถวางของได้นิดหน่อย ส่วนตัวชั้นวางของด้านบนหัวเตียงโครงการทำให้ดูเป็นตัวอย่างค่ะ
ข้างเตียงฝั่งประตูกระจกมีลิ้นชักเก็บของใต้เตียงสามาระเปิดออกมาได้ และมีปลั๊กให้ตรงข้างหัวเตียงค่ะ
ในสุดของห้องเป็นหน้าต่าง ได้เป็นบาน Fix และบานเปิด 2 บานนะคะ
ส่วนปลายเตียงเป็นโต๊ะเครื่องแป้ง Biult-in มาให้ติดกับผนังและด้านข้างของตู้เสื้อผ้าค่ะ ตรงนี้ถือว่าให้พื้นที่ได้ค่อนข้างดีเลย
ชั้นที่ติดผนังมีช่องวางของด้านล่างและปลั๊กไฟมาให้ สามารถประยุกต์เป็นโต๊ะทำงานเล็กๆได้ด้วย
ติดกันคือตู้เสื้อผ้า เปิดออกมามีชั้นเก็นของด้านบน ลิ้นชักด้านล่าง และราวแวขนเสื้อทั้งแบบตัวสั้นและตัวยาว
ภาพรวมของห้องนอนฝั่งปลายเตียง ระยะห่างปลายเตียงกว้างพอเดินได้สบายนะคะ
พอกั้นห้องนอนด้วยกระจกบานสไลด์ก็ทำให้แสงจากหน้าต่างสามารถผ่านเข้ามาในตัวห้องนอนและห้องนั่งเล่นได้ ถือว่าช่วยประหยัดไฟได้ด้วยนะคะ
ต่อไปเรามาดูส่วนของครัวกันบ้างค่ะ ด้านในครัวมี Counter ครัว และมีที่วางตู้เย็นมาให้ สามารถวางตู้เย็นได้ถึงขนาด 8 คิวค่ะ
หน้าตามือจับประตู ประตูครัวกั้นด้วยประตูกระจกกรอบสีขาว
พื้นในครัวได้เป็นพื้นกระเบื้อง ง่ายต่อการทำความสะอาด ขอบพื้นของ Living เก็บงานพื้นด้วยขอบอลูมิเนียม
ในครัวเคาท์เตอร์ให้มาเป็น Top แกรนิตสีดำ มีอ่างล้างจาน และเตาไฟฟ้ามาให้
อ่างล้างจานให้มาแบบ 1 หลุม ไม่มีที่พักจานด้านข้างนะคะ ก๊อกน้ำเป็นแบบก้านโยก
สำหรับชุดเตาไฟฟ้าและที่ดูดควันของ Moniiq Sukhumvit 64 (โมนีค สุขุมวิท 64) ให้มาของ Teka เตาจะได้แบบ 2 หัวค่ะ
ลิ้นชักตู้ด้านล่างเป็นถังขยะ และลิ้นชักเก็บของ
มีถาดสำหรับเก็บอุปกรณ์ครัว ช้อนส้อมด้วยค่ะ
ช่องสำหรับวางเตาไมโครเวฟอยู่ด้านล่าง พื้นที่ในช่องเหลือกว้าง สามารถวางหม้อหุงข้าวข้างๆได้อีกค่ะ
ส่วนเคาท์เตอร์ด้านบนก็เป็นตู้เก็บของแบบบานเปิดทั้งหมดค่ะ
ไฟในครัวได้เป็นดาวน์ไลท์สี่เหลี่ยมนะคะ
ต่อไปมาดูประตูระเบียงกันบ้าง ได้เป็นประตูกระจกสไลด์ 3 บาน กรอบสีเทาค่ะ
รางประตูเป็นแบบไม่ฝังพื้น พื้นด้านนอกระเบียงลดระดับลงไปประมาณ 4 ซม. กันน้ำฝนกระเด็น กระเบื้องแบบ 30x30 ซม.
ผนังระเบียงมีปลั๊กไฟพร้อมกรอบพลาสติกกันน้ำ และก๊อกน้ำให้ค่ะ
ด้านบนสามารถติด DCU แอร์ แบบแขวนได้ 1 เครื่อง
ระแนงไม้ตรงระเบียง ติดมาสูงตลอดแนว ช่วยบังสายตาจากด้านนอกได้
พื้นที่ระเบียงประมาณ 1.5x0.9 ม. สามารถวางเครื่องซักผ้าได้ และพอวางราวตากผ้าขนาดไม่ใหญ่มากได้อีกนะคะ
ต่อไปเรากลับเข้ามาด้านใน มาดูห้องน้ำกันบ้างค่ะ ห้องน้ำได้ฟังก์ชั่นมาตรฐาน แยกส่วนเปียกส่วนแห้งมาให้เรียบร้อยค่ะ พื้นในห้องน้ำได้เป็นกระเบื้องสีขาวแบบด้านกันลื่นขนาด 60x60 ซม. ไฟดาวน์ไลท์สี่เหลี่ยม ผนังด้านข้างสุขภัณฑ์เจาะช่องสำหรับวางของมาให้ด้วย
อ่างล้างหน้าได้แบบบิ้วท์ติดผนังทรงสี่เหลี่ยม ของ TOTO ก๊อกน้ำได้แบบก้านโยก ใต้อ่างเป็นช่องเก็บของได้
โถสุขภัณฑ์ของ TOTO เช่นกัน เป็นแบบ 2 ชิ้น ด้านข้างติดที่ใส่กระดาษทิชชูและสายชำระให้ค่ะ
ผนังอีกด้านติดราวแขวนผ้า ก่อนถึงส่วนของ Shower Box ค่ะ
สำหรับ Shower Box ของ Moniiq Sukhumvit 64 (โมนีค สุขุมวิท 64) กั้นกระจก Tempered Glass แบบเปิดเข้าด้านใน พื้นที่ด้านในประมาณ 80x85 ซม. ยืนอาบน้ำได้สะดวกค่ะ
ด้านในมีฝักบัวแบบ Hand Shower ติดผนังให้ และมีตำแหน่งติดตั้งเครื่องทำน้ำอุ่นไว้ให้นะคะ แต่ห้องจริงไม่ได้แถม
หน้าตาฝักบัว ขนาดกำลังดีค่ะ
ก็อกน้ำได้เป็นแบบก้านโยกค่ะ
ห้องตัวอย่าง 2 Bedroom 48.25 ตร.ม
ห้องตัวอย่าง 2 ห้องนอน ขนาด 48.25 ตร.ม. ของโครงการ MONIIQ Sukhumvit 64 (โมนีค สุขุมวิท 64)

ห้องแบบที่ 2 ของ MONIIQ Sukhumvit 64 (โมนีค สุขุมวิท 64) ที่เราจะมารีวิวห้องตัวอย่างก็คือ Type F ขนาดพื้นที่ใช้สอย 48.25 ตารางเมตรค่ะ

เข้ามาในห้องส่วนแรกที่เจอก็คือ Foyer โครงการทำพื้นกระเบื้องตรงส่วนนี้ ด้านข้างมีตู้เก็บรองเท้าบิ้วท์มาให้ค่ะ
พื้นตรง Foyer เป็นกระเบื้องแกรนิตโต ลดระดับจากพื้นกระเบื้องยางในห้องประมาณ 2 ซม.
สำหรับ Foyer ตรงนี้พอวาง slipper สำหรับเปลี่ยนไว้ก่อนเข้าห้องแล้วยิ่งให้ความรู้สึกแบบบ้านคนญี่ปุ่นเลยค่ะ ต้องบอกว่าโครงการ MONIIQ Sukhumvit 64 (โมนีค สุขุมวิท 64) ค่อนข้างเก็บรายละเอียดเล็กๆน้อยๆ ที่แสดงเอกลักษณ์ตาม Concept โครงการได้ดีมาก
ถัดมาเป็นตู้ Built-in หน้าบานกระจก สำหรับเก็บของ หรือวางโชว์ที่ชั้นเปิดก็ได้ค่ะ ตรงนี้เอาไววางกุญแจบ้าน กุญแจรถ ก่อนออกจากห้องก็หยิบไป สะดวกดีค่ะ
ที่ผนังห้องได้สวิซต์ไฟและปลั๊กไฟหน้าตาตามนี้ค่ะ
ตู้เก็บรองเท้ามีทั้งแบบบานเปิด และลิ้นชัก เก็บรองเท้าได้หลายคู่เลย น่าจะถูกใจโดยเฉพาะคุณผู้หญิงค่ะ
เข้ามาในห้องส่วนแรกเป็นส่วนของ Living Area และส่วนทานอาหารค่ะ
ส่วนนี้จะมีพื้นที่นั่งเล่นดูทีวี และโต๊ะทานข้าวเชื่อมต่อกัน ในสุดเป็นหน้าต่างห้อง แบบบาน fix และบานเปิด
ชุดSideboard วางทีวีแบบ Built-in ติดผนังให้มาพื้นที่กว้างค่ะ ทางโครงการเลยออกแบบเฟอร์นิเจอร์ผนังด้านหลังทีวี สามารถรับน้ำหนักทีวี 50 นิ้ว ได้อย่างสบาย ด้านข้างมีตู้และชั้นเก็บของให้ด้วย ติดแอร์ให้ข้างบน
ชั้นด้านล่างเป็นลิ้นชัก และตู้เก็บของแบบบานเปิด
ผนังด้านหลังมีปลั๊กไฟและช่องสายเคเบิลให้ค่ะ
ตู้ด้านข้างให้มาเป็นแบบบานเปิด ด้านในแบ่งเก็บของเป็นชั้น
พื้นที่ด้านบนทีวีสามารถติดตู้หรือชั้นเก็บของแบบติดผนังเพิ่มได้นะคะ
อีกฝั่งคือโซฟา และโต๊ะกลางแบบเก็บของได้
โซฟาได้แบบ 2 ที่นั่งค่ะ
ติดกันเป็นที่ตั้งโต๊ะทานข้าว ได้โต๊ะขนาด 4 ที่นั่ง ฝั่งที่ติดกับทางเดินมีที่เหลือนั่งได้สบายค่ะ ส่วนอีกฝั่งจะถูกจำกัดด้วยพื้นที่ติดกับโซฟา
แน่นอนว่า MONIIQ Sukhumvit 64 (โมนีค สุขุมวิท 64) เป็นคอนโดสไตล์ญี่ปุ่น จัดโต๊ะอาหาร วางภาชนะแบบบ้านญี่ปุ่น น่ารักไปอีกแบบค่ะ
ต่อไปมาดูส่วนของห้องครัวกันบ้างค่ะ ได้เป็นประตูบานสไลด์กระจกกรอบสีขาวตัวล็อกด้านในเช่นเดิม
ฟังก์ชั่นในครัวก็ตามมาตรฐานโครงการเลยค่ะ มีที่วางตู้เย็นขนาดถึง 8 คิว และเคาท์เตอร์ครัวด้านใน
พื้นในครัวเป็นกระเบื้องสีขาวขนาด 60x60 ซม.จบงานพื้นด้านนอกด้วยอลูมิเนียม
เคาท์เตอร์ Top เป็นแกรนิตสีดำ ด้านล่างได้ช่องวางไมโครเวฟ ตู้ถังขยะใต้อ่างล้างจาน และลิ้นชักเก็บของค่ะ
เตาไฟฟ้าแบบ 2 หัวพร้อมที่ดูดควันของ Teka ค่ะ
ผนังเคาท์เตอร์มีปลั๊กไฟมาให้ สำหรับเสียบใช้งานเครื่องใช้ไฟฟ้าในครัว
อ่างล้างจานได้แบบ 1 หลุม ไม่มีที่พักจานค่ะ มีพื้นที่ Pantry ด้านข้างสำหรับวางหรือเตรียมอาหารได้
เคาท์เตอร์ด้านบนเป็นตู้เก็บของเช่นกัน
มาที่ระเบียงบ้างค่ะ ประตูเป็นบานสไลด์กรอบสีเทา
พื้นที่ระเบียงของแบบ 2 ห้องนอนจะวาง CDU แอร์แบบแขวน 1 ตัว และวางที่พื้น 1 ตัว ไม่มีที่วางเครื่องซักผ้านะคะ
กลับเข้ามาดูด้านในกันบ้าง ห้องน้ำในห้องแบบ 2 ห้องนอนของ MONIIQ Sukhumvit 64 (โมนีค สุขุมวิท 64) จะแบ่งการใช้งานออกจากกัน ห้องแรกที่มาดูคือห้องน้ำสำหรับแขก คือมีเฉพาะโถสุขภัณฑ์ และอ่างล้างมือ พื้นด้านในเป็นกระเบื้อง 60x60 ซม.
สุขภัณฑ์ในห้องได้ของ TOTO อ่างล้างมือแบบติดผนังไม่มีที่เก็บของด้านล่างค่ะ
ด้านหลังโถสุขภัณฑ์ โครงการ Built ตู้เก็บของมาให้ด้านบนมาให้ดูเป็นไอเดีย ใครจะติดเพิ่มตามก็ดีนะคะ สามารถเก็บของได้เยอะอยู่
ต่อไปเป็นห้องน้ำใหญ่ที่มี พื้นที่ส่วนแห้งสำหรับอ่างล้างหน้าและเครื่องซักผ้า และส่วนของ Shower Box ค่ะ
ที่ผนังติดปลั๊กไฟพร้อมกล่องกันน้ำ และก๊อกน้ำมาให้หลังที่ตั้งเครื่องซักผ้า
อ่างล้างหน้าแบบ Built ติดผนังสี่เหลี่ยม ด้านล่างมีชั้นวางของได้
ในสุดเป็น Shower Box ฟังก์ชั่นเหมือนห้องน้ำแบบ 1 Bedroom กั้น Tempered Glass มาให้ ขนาดพื้นด้านในกว้างประมาณ 90x120 ซม.
ด้านในติดฝักบัวแบบ Hand Shower และที่วางสบู่ กับจุดติดตั้งเครื่องทำน้ำร้อนค่ะ
ต่อไปมาดูห้องนอนใหญ่กันบ้างค่ะ
ห้องนอนใหญ่วางเตียง Queen Size ขนาด 5 ฟุต วางชิดผนังมุมด้านใน พื้นที่ด้านข้างเตียงประมาณ 1 เมตร และปลายเตียงประมาณ 80 ซม.ค่ะ
ด้านข้างเป็นโต๊ะเครื่องแป้ง ได้กระจกเต็มผนัง และตู้เก็บของด้านข้างติดกับประตูทางเข้าห้อง
ตู้เสื้อผ้าให้มาเป็นแบบ 3 บานเปิด เป็นบานกระจก 1 บน ด้านในเป็นตู้เก็บของ ลิ้นชัก และราวแขวนเสื้อค่ะ
พื้นที่โต๊ะเครื่องแป้งได้กระจกเต็มบาน มีที่วางของกระจุกกระจิกได้เล็กน้อย ใต้โต๊ะมีปลั๊กไฟไว้ให้ เผื่อเสียบที่ไดร์ผม หรือเครื่องใช้ที่เป็นไฟฟ้าค่ะ
หน้าต่างห้องนอนได้เป็นแบบบาน fix และบานเปิด
หน้าตาที่เปิดหน้าต่าง
ห้องตัวอย่าง 2 ห้องนอนทาง MONIIQ Sukhumvit 64 (โมนีค สุขุมวิท 64) ทำห้องแบบเดียวกับห้องที่อยู่มุมอาคาร ทำให้ได้หน้าต่างแบบ Bay Window
ห้องต่อไปคือห้องนอนเล็กค่ะ
ส่วนห้องนอนเล็ก วางเตียงชิดมุมผนัง ได้พื้นที่ด้านข้างประมาณ 1 เมตร และปลายเตียงอีกประมาณ 60 ซม.ค่ะ
วางเตียงเดี่ยว 3.5 ฟุตได้ วางชิดหน้าต่างด้านใน ได้พื้นที่เหลือด้านข้างวางโต๊ะทำงานเล็กๆได้อีกค่ะ
โต๊ะข้างเตียงในห้องตัวอย่างจัดมาให้เป็นกึ่งโต๊ะทำงาน สามารถวางของเล็กๆน้อยๆได้
ส่วนพื้นที่ปลายเตียงเป็นโต๊ะเครื่องแป้ง และตู้เสื้อผ้าค่ะ
ตู้เสื้อผ้าได้เป็นตู้บานเลื่อน 2 บานซ้ายขวา ด้่านในมีชั้นเก็บของ ลิ้นชัก และราวแขวนผ้า
ตัวหน้าต่างได้เป็นบาน fix และบานเปิดค่ะ
Environment
สภาพแวดล้อมรอบโครงการ MONIIQ Sukhumvit 64 (โมนีค สุขุมวิท 64)

สำหรับสภาพแวกล้อมรอบๆโครงการ MONIIQ Sukhumvit 64 (โมนีค สุขุมวิท 64) เป็นโครงการที่ตั้งอยู่ในซอยสุขุมวิท 64 ตามชื่อโครงการ เริ่มตั้งแต่หน้าปากซอยเข้าไปก็เป็นทางขึ้นสถานีรถไฟฟ้า อีกฝั่งเป็นโรงเรียนนานาชาติ แองโกล สิงคโปร์ค่ะ ปากซอยจะมีวินมอร์เตอร์ไซค์อยู่

เลยเข้ามาในซอยอีกจะเจอโรงเรียนที่ตั้งอยู่ดั้งเดิมคือ โรงเรียนพิพัฒนา
ถัดมาก็เป็น Showroom Design สินค้าของ HAFELE แล้วก็มีอาคารสำนักงานอื่นๆในซอยอีกค่ะ
ในซอยนี้นอกจาก MONIIQ Sukhumvit 64 (โมนีค สุขุมวิท 64) แล้วยังเต็มไปด้วยโครงการคอนโดมิเนียมเยอะแยะมากมาย ทั้งโครงการเก่าและโครงการใหม่ มีทั้งแบบเปิดขายใหม่ ขายต่อ หรือให้เช่า ใครสนใจทำเลในซอยนี้ก็ลองเข้ามาเลือกชมกันได้นะคะ
ด้านในสุดเป็นแก๊งค์โครงการ ELIO ของอนันดาค่ะ
นอกจากนี้ก็มีรั้วโครงการของพฤกษา ซึ่งน่าจะเป็นโครงการ Low Rise ขึ้นในเร็วๆนี้ ต้องรอติดตามกันต่อไปค่ะ
ในซอยสุขุมวิท 64 มีร้านอาหาร ร้านค้า เปิดอยู่ตลอดทางเลยค่ะ
ส่วนสภาพแวดล้อมด้านถนนสุขุมวิทส่วนใหญ่ก็จะเป็นอาคารพาณิชย์และอาคารสำนักงานทั่วไป และร้านอาหาร ร้านค้าค่ะ
ออกมาหน้าปากซอย แน่นอนว่าต้องเจอกับรถไฟฟ้า BTS สถานีปุณณวิถี
เลยสถานีปุณณวิถีมาก็มีโครงการคอนโดมิเนียมอีกโครงการอยู่ติดถนนสุขุมวิท คือ The Room Sukhumvit62
เลยมาทางอ่อนนุช จะมี Community Mall The Phyll อยู่ปากซอยสุขุมวิท 54
ติดกันอีกฝั่งของซอยคือสำนักงานเขตพระโขนงค่ะ
เลยมาอีกก็จะเป็นห้างเทสโก โลตัส อ่อนนุชค่ะ
แต่ถ้าเลยมาฝั่งอุดมสุขเองก็มี Community Mall เก่าแก่ดั้งเดิมที่เป็นที่รู้จักของคนในย่านนี้ดี ก็คือปิยะรมย์เพลส ด้านในมีทั้งร้านอาหาร ร้านค้า และสปอร์ตคลับด้วยค่ะ
มาที่ซอยอุดมสุขกันบ้าง แน่นอนว่าต้องพูดถึงตลาดอุดมสุข ซึ่งเป็นที่พึ่งทางอาหารของคนในย่านนี้ มีทั้งของแห้งของสดและร้านค้า สำหรับคุณแม่บ้านที่ชอบซื้อของทำอาหารหรือชอบเดินตลาดเองน่าจะถูกใจเลยค่ะ
Location
ที่ตั้งโครงการ MONIIQ Sukhumvit 64 (โมนีค สุขุมวิท 64)

โครงการ MONIIQ Sukhumvit 64 (โมนีค สุขุมวิท 64)
ตั้งอยู่ในซอยสุขุมวิท 64 ช่วงท้ายซอย ซึ่งสามารถไปทะลุออกสุขุมวิท 62 ได้ ด้านหลังของโครงการก็จะติดกับทางด่วนเฉลิมมหานคร ใกล้จุดทางออกสุขุมวิท 62 ตัวโครงการสามารถเดินทางมาได้สะดวกทั้งออกตรงซอยสุขุมวิท 62 ลัดเข้ามาทางด้านหลัง หรือมาจากทางบางนาตรงเข้าเส้นสุขุมวิทก็เลี้ยวเข้าซอยได้เลย ส่วนถ้ามาจากสุขุมวิทฝั่งในเมืองก็สามารุกลับรถได้ก่อนถึงอุดมสุขค่ะ สำนักงานขายโครงการตั้งอยู่ติดถนนสุขุมวิท ใกล้กับสถานี BTS ปุณณวิถี สังเกตุได้ชัดเจน วันนี้เราเดินทางมารีวิวคอนโด MONIIQ Sukhumvit 64 (โมนีค สุขุมวิท 64) จากทางสุขุมวิทฝั่งอ่อนนุชค่ะ เราจะไปดูเส้นทางมายังสำนักงานขายกัน

เรามาจากถนนสุขุมวิทผ่านอโศก มาเรื่อยๆจนถึงอ่อนนุชค่ะ เดินทางมาสำนักงานขายโครงการง่ายมาก เพราะวิ่งตรงมาอย่างเดียวเลย
เลยอ่อนนุชมาก็จะถึงย่านบางจาก มีตลาดบางจาก และย่านนี้ก็มีโครงการคอนโดมิเนียมขึ้นเยอะด้วยค่ะ
ผ่าน BTS สถานีบางจาก และแยกซอยสุขุมวิท 62 ที่เป็นทางขึ้นทางด่วนมา
เลยมาสองข้างทางก็เป็นอาคารพาณิชย์และสำนักงาน กับโครงการคอนโดมิเนียมที่สร้างมานานแล้วค่ะ ช่วงระหว่างสถานีนี้ยังไม่ค่อยมีโครงการใหม่ขึ้นเท่าไหร่
ใกล้ถึงซอยสุขุมวิท 101 ด้านหน้าซอยจะมีร้านอาหารฮั่ว เซ่ง ฮง และป้ายทางเข้าวัดธรรมมงคลค่ะ ซอยนี้สามารถเป็นทางลัดไปออกถนนศรีนครินทร์ได้ด้วย
เลยซอยมาก็เป็นสถานีปุณณวิถีค่ะ ซึ่งเป็นสถานีรถไฟฟ้าที่ใกล้โครงการ MONIIQ Sukhumvit 64 (โมนีค สุขุมวิท 64) มากที่สุด
เลยสถานีปุณณวิถีมาให้เตรียมตัวกลับรถค่ะ
แล้วขับตรงผ่านซอยสุขุมวิท 64 และเลยสถานีมาอีกนิดนึง
แล้วก็มาถึงสำนักงานขายโครงการ MONIIQ Sukhumvit 64 (โมนีค สุขุมวิท 64) แล้วค่ะ เราจะเข้าไปรีวิวคอนโด Lifestyle แบบ Modern Japanese โครงการนี้กัน
สำนักงานขายอยู่ติดกับ สถานีปุณณวิถี ทางออก2 ที่จอดรถอยู่ในสำสักงานขายสามารถเลี้ยวเข้ามาจอดได้เลย
ด้านในสำนักงานขาย เป็นสำนักงานขาย 2 ชั้นจัดไว้ได้อารมณ์ Concept โครงการ
จากสำนักงานขายเรามาดู location จริงของโครงการกันบ้างค่ะ จากซอยสุขุมวิท 64 แยก4 เราก็ขับตรงตามซอยมาเลยค่ะ ช่วงแรกๆจะเป็นโครงการคอนโดมิเนียมทั้งสองฝั่ง
พอเข้ามาลึกหน่อยจะเริ่มเป็นที่ดินและบ้านพักอาศัย ถนน 2 เลนวิ่งสวนกัน
ตรงมาจนมุมสุดซอยซ้ายมือจะเห็นโครงการ MONIIQ Sukhumvit 64 (โมนีค สุขุมวิท 64) กำลังก่อสร้างอยู่ ซึ่งทางโครงการห่อพื้นที่ก่อสร้างไว้ทั้งอาคาร ให้ความรู้สึกการก่อสร้างแบบที่ญี่ปุ่น เพราะที่เมืองไทยไม่ค่อยจะเห็นโครงการที่กั้นกันมิดชิดเท่าไหร่
ด้านหน้าทางเข้าเขตก่อสร้างโครงการ เราจะเลยไปและเลี้ยวขวาไปออกสุขุมวิท 62 กันค่ะ
เราออกมาทางซอยสุขุมวิท 62 มองกลับไปที่โครงการ ซ้ายมือคือคอนโด Regent Home 9
มองจากทางเชื่อมสุขุมวิท 62 กลับไปที่โครงการ ซอยทางซ้ายมีตรงรั้วเขียวก็สามารถไปออกถนนสุขุมวิทได้อีก ใครที่เดินทางโดยใช้ทางด่วน เข้าจากด้านหลังถือว่าสะดวกมากเลยค่ะ
ตรงนี้คือทางที่เข้ามาจากทางด่วนเฉลิมมหานคร ซึ่งไม่สามารถตรงไปได้ ต้องเลี้ยวขวาไปออกซอยสุขุมวิท 62 ค่ะ
Analysis
วิเคราะห์โครงการ MONIIQ Sukhumvit 64 (โมนีค สุขุมวิท 64)
ทำเล : โครงการMONIIQ Sukhumvit 64 (โมนีค สุขุมวิท 64) อยู่ในซอยสุขุมวิท 64 ซึ่งเป็นซอยที่เชื่อมต่อกับเส้นสุขุมวิท และซอยสุขุมวิท 62 ซึ่งเป็นจุดขึ้นลงทางด่วนได้ ทำให้การเดินทางไปมาโครงการค่อนข้างสะดวก อีกทั้งยังใกล้รถไฟฟ้า BTS สำหรับคนที่ทำงานในเมืองและใช้บริการรถไฟฟ้าก็สะดวก หรือคนที่ใช้รถยนต์ส่วนตัวก็มาได้ทั้งจากเส้นบางนา ศรีนครินทร์ เส้นสุขุมวิทขาออก ทางด่วนเฉลิมมหานคร ก็เดินทางได้ง่ายค่ะ
สภาพแวดล้อม : สถาพแวดล้อมของโครงการถือว่าค่อนข้างเงียบสงบ เพราะในซอยสุขุมวิท 64 เองเป็นซอยที่พักอาศัยซะส่วนใหญ่ ส่วนออกมาถนนสุขุมวิทย่านนี้ก็ไม่พลุกพล่านมาก ไม่ได้อยู่ในเมืองหรือนอกเมืองจนเกินไป ใกล้กับแหล่งอำนวยความสะดวก ห้างสรรพสินค้า โรงเรียน โรงพยาบาลมากมาย
แบบห้อง : แบบห้องของทางโครงการก็เป็นมาตรฐานคือมีแบบ 1 ห้องนอนและ 2 ห้องนอน สำหรับใครที่ชอบสไตล์ญี่ปุ่นก็อาจจะชอบโครงการนี้ ส่วนคนที่สนใจห้องแบบ 2 ห้องนอน ก็อาจจะปรับตัวกับห้องน้ำแบบแยกนิดนึง แต่การออกแบบพื้นที่ใช้สอยภายในห้องทั้ง 2 แบบ ถือว่าค่อนข้างตอบโจทย์ โดยเฉพาะห้องครัวที่กันประตูเป็นครัวปิดมาให้เรียบร้อย ทำให้ไม่ต้องกังวลเรื่องกลิ่นรบกวน และการที่ออกแบบห้องมาให้มี Foyer ด้านหน้ากระตูก็เป็นดีไซน์ที่ดี เป็นวิถีแบบญี่ปุ่นกับประเทศแถบยุโรปก็ใช้กัน คนไทยอาจจะไม่ค่อยชิน แต่มีประโยชน์มากกับการถือข้าวของเข้ามาในบ้าน สามารถพักวางของถอดรองเท้าก่อนได้ ไม่ต้องลุยทั้งรองเท้าเข้าไปวางของเพราะหิ้วเต็มไม้เต็มมือ หรือไม่ต้องวางกองไว้กับพื้นเพื่อถอดรองเท้า
ราคา : ราคาเริ่มต้นของโครงการอยู่ที่ 2.29 ล้าน สำหรับห้องขนาด 1 ห้องนอน 28 ตารางเมตร ขายแบบ Fully Furnished กับราคานี้ในย่านนี้ถือว่าค่อนข้างคุ้ม เพราะบางโครงการในซอยเดียวหับ อาจจะอยู่ต้นซอยกว่า แต่ราคาเฉลี่ยเกินแสนไปแล้วก็มี อีกทั้งยังเป็นโครงการใหม่ เหมาะกับคนที่ยังไม่รีบเข้าอยู่ สามารถผ่อนดาวน์รอให้การก่อสร้างแล้วเสร็จ ถือเป็นการออมเงิน และลดยอดการกู้ธนาคารสำหรับคนที่จะขอสินเชื่อได้อีกทางด้วยค่ะ
สิ่งอำนวยความสะดวก : สิ่งอำนวยความสะดวกในโครงการถือว่าให้มาค่อนข้างเยอะ ด้วยจำนวนยูนิตที่ไม่เยอะมาก ส่วนกลางมีความหลากหลาย ทำให้สามารถกระจายความหนาแน่นในการใช้บริการได้ดี ระบบคามปลอดภัย และการใช้ระบบ Key Card ในส่วนต่างๆก็ถือว่าโอเค เพราะโครงการคอนโด Low Rise บางที่อาจจะมี Key Card เข้าอาคารจริง แต่ไม่ได้ลิฟต์ล็อคชั้น ส่วนความสะดวกในการเดินทาง โครงการก็มีบริการ Shuttle Service สำหรับลูกค้าที่ใช้บริการรถไฟฟ้าอีกด้วย ส่วนนิติบุคคลของครงการจะบริหารโดย พลัส พร็อพเพอร์ตี้ค่ะ
สรุป โครงการ MONIIQ Sukhumvit 64 (โมนีค สุขุมวิท 64) เป็นโครงการที่เหมาะกับคนที่ชอบทำเลที่พักที่สะดวกต่อการเดินทาง สามารถเชื่อมต่อกับถนนได้หลายเส้น และอยู่ใกล้รถไฟฟ้า โครงการนี้ถือว่าเป็นอีกโครงการที่น่าสนใจ แม้ว่าจะเป็น Developer เจ้าใหม่ แต่จากการนำเสนอและการบริหารการขาย (ทางโครงการบริหารขายโดย Plus Property) ก็ดูมีความเป็นมืออาชีพ และใส่ใจกับรายละเอียดต่างๆของโครงการ และการให้ข้อมูลกับผู้ที่เข้าไปเยี่ยมชม สำหรับสิ่งอำนวยความสะดวกก็ไม่ได้อยู่ห่างไกล เพียงแค่ 10 นาทีก็สามารถไปเอกมัย ทองหล่อได้ หรือจะไปเซ็นทรัลบางนา เมกาบางนาก็สะดวก รอบๆโครงการก็ค่อนข้างสงบเพราะเป็นย่านที่พักอาศัย อีกอย่างย่านปุณณวิถีก็เป็นย่านที่ไม่ออกจากเมืองมาไกลมาก เรียกได้ว่าเกือบจะเจริญพอๆกับย่านพระโขนงแล้ว สำหรับคอนโดมิเนียมห้องขนาดและราคาประมาณนี้ ใครที่มีกำลังผ่อนตั้งแต่ประมาณ 15,000 - 30,000 ต้นๆ ถือว่าเป็นทำเลที่น่าลงทุน และน่าอยู่อีกทำเลนึงเลยค่ะ
MONIIQ Sukhumvit 64
58636abf1de72e6bc3cc3448
moniiq-sukhumvit-64













































































































































