[Review] [Review] รีวิว PG Rama 9 (พีจี พระราม 9) คอนโดพร้อมอยู่ใกล้ MRT พระราม 9
21 ถนนพระราม9 แขวงห้วยขวาง เขตห้วยขวาง กรุงเทพมหานคร
Preecha group (ปรีชากรุ๊ป)

Project Info :
PG Rama 9 (พีจี พระราม 9) อีกหนึ่ง คอนโดพร้อมอยู่ ที่น่าสนใจในย่าน NEW CBD อย่างพระราม 9 เปิดตัวมาภายใต้คอนเซ็ปต์ ‘จะทำให้คุณหลงรักตั้งแต่แรกเห็น จนกลายเป็นที่ๆ อยากเข้ามาใช้ชีวิตและค้นพบความสุขที่แท้จริงที่นี่’ เพื่อตอบโจทย์ไลฟ์สไตล์คนเมืองที่มีทั้งอำนวยความสะดวกที่หลากหลายและการเดินทางที่สะดวกสบาย
รายละเอียดคอนโด PG Rama 9 (พีจี พระราม 9)
- ผู้พัฒนา : PREECHA GROUP
- ที่ตั้ง : ถนนพระราม 9 แขวงห้วยขวาง เขตห้วยขวาง กรุงเทพมหานคร
- ขนาดที่ดิน : 2-2-60 ไร่
- อาคาร :
อาคาร Low Rise 1 อาคาร 8 ชั้น (อาคาร A)
อาคาร High Rise 1 อาคาร 15 ชั้น (อาคาร B) - จำนวนยูนิต :
อาคาร A จำนวน 119 ยูนิต
อาคาร B จำนวน 401 ยูนิต - สร้างเสร็จ : ปี 2555
- ราคาต่อตารางเมตร : เริ่มต้น 70,500 บาท/ตร.ม.
- เว็บไซต์ของคอนโด : PG Rama 9 (พีจี พระราม 9)
Lifestyle :
PG Rama 9 (พีจี พระราม 9) เป็น คอนโดพร้อมอยู่ ที่ตั้งอยู่บนทำเล พระราม 9 ซึ่งเป็นย่านธุรกิจมีตึกสูงขึ้นอยู่มากมาย ไม่ว่าจะเป็นอาคารสำนักงานหรือห้างสรรพสินค้า รวมถึงมีระบบขนส่งสาธารณะ มีถนนหนทางที่ดีที่คอยอำนวยความสะดวกให้กับผู้ที่พักอาศัยและเหล่ามนุษย์เงินเดือนที่ทำงานในย่านนี้
คอนโดพร้อมอยู่ในย่านพระราม 9 ตอบโจทย์ไลฟ์สไตล์คนเมือง
PG Rama 9 (พีจี พระราม 9) ตั้งอยู่ในย่านใจกลางเมืองอย่างพระราม 9 ซึ่งเป็นย่านของห้างสรรพสินค้าชั้นนำ เช่น เซ็นทรัล พลาซ่า พระราม 9, ฟอร์จูนทาวน์, Tesco Lotus ฯลฯ จะเดินช็อปปิ้งเวลาไหน ที่ไหนก็มีให้เลือกแบบจุใจ
หากเบื่อห้างสรรพสินค้าก็ยังมีทางเลือกอื่นสำหรับสายช็อปปิ้ง บริเวณรัชดาซอย 4 (ติดกับเซ็นทรัลพระราม 9) หน้าปากซอยจะเป็นตลาดละลายทรัพย์ ตลาดใหญ่ที่มีทั้งร้านอาหาร คาเฟ่ ของใช้ราคาถูกคอยสร้างความคึกคักให้กับ พระราม 9 ตั้งแต่เช้าจรดค่ำ
นอกจากนั้น PG Rama 9 (พีจี พระราม 9) เป็นคอนโดที่อยู่ในย่านของสำนักงานใหญ่ๆ เรียกได้ว่า เป็น คอนโดพร้อมอยู่ ที่เหมาะสำหรับคนวัยทำงานที่ต้องการหาคอนโดสำหรับเช่าหรือซื้อไว้พักผ่อนใกล้ที่ทำงาน
สำหรับเมกะโปรเจ็คที่จะเกิดขึ้นใหม่นั่นก็คือ อาคารซุปเปอร์ทาวเวอร์ (Super Tower) โดยภายในอาคารแบ่งเป็นพื้นที่อาคารสำนักงาน โรงแรม ภัตตาคาร และจุดชมวิว ที่ช่วยสร้างความคึกคักให้กับ พระราม 9 ให้มีชีวิตชีวามากยิ่งขึ้นไปอีก
Location :
พระราม 9 มีการขยายการพัฒนาพื้นที่อย่างต่อเนื่องภายหลังการเข้ามาของรถไฟฟ้าสายสีน้ำเงินตัดผ่านพื้นที่แห่งนี้ตั้งแต่ปี 2554 ย่านพระราม 9 ก็ดูคึกคักขึ้นมาทันที มีคอนโดมิเนียมเปิดตัวเป็นจำนวนมาก PG Rama 9 (พีจี พระราม 9) ก็เป็นอีกหนึ่ง คอนโดพร้อมอยู่ ในย่านพระราม 9 ที่เกิดขึ้นพร้อมกับความเปลี่ยนแปลงในครั้งนั้น
PG Rama 9 (พีจี พระราม 9) อยู่ห่างจากสถานีพระราม 9 เพียง 200 เมตร และห่างจากแอร์พอร์ตลิ้งสถานีมักกะสันเพียง 800 เมตร ซึ่งถือเป็นระยะที่สามารถเดินได้อย่างสะดวก
โครงการ PG Rama 9 (พีจี พระราม 9) เป็น คอนโดพร้อมอยู่ ตั้งอยู่ติดกับถนนพระราม 9 โดยมีระยะทางห่างจากทางขึ้น-ลงทางด่วนศรีรัชเพียง 400 เมตร
แผนที่ของ PG Rama 9 (พีจี พระราม 9)
หากใครที่เริ่มสนใจ PG Rama 9 (พีจี พระราม 9) คอนโดพร้อมอยู่ แห่งนี้แล้วอยากรู้ว่าคอนโดอยู่ตรงไหน ก็ไปดูแผนที่ข้างล่างก่อนเราจะพาไปอินไซต์ในคอนโดกันเลย
Insight :
PG Rama 9 (พีจี พระราม 9) คอนโดพร้อมอยู่ จากทาง PREECHA GROUP ผสมผสานระหว่างอาคาร Low Rise และ High Rise เอาไว้ในโครงการเดียวกัน มีจำนวนยูนิตทั้ง 401 ยูนิต เป็นคอนโดติดถนนพระราม 9 เดินทางสะดวกสบาย เพราะใกล้รถไฟฟ้า MRT พระราม 9 และ Airportlink มักกะสันในระยะเดินถึง นอกจากนี้ยังมีทางด่วนศรีรัชอยู่ใกล้ๆ ระยะทางห่างจากโครงการไปประมาณ 400 เมตร
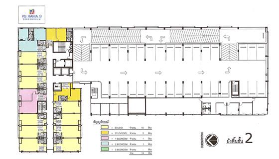
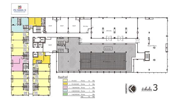
แผนผังอาคารของ PG Rama 9 (พีจี พระราม 9)
PG Rama 9 (พีจี พระราม 9) คอนโดพร้อมอยู่ แห่งนี้ประกอบด้วย 2 อาคาร คืออาคาร A และอาคาร B จะเริ่มตรงที่อาคาร A กันเลย อาคารนี้เป็นอาคารลักษณะ Low Rise สูง 8 ชั้น อาคารนี้จะเน้นไปทางอาคารอยู่อาศัยโดยในชั้น 1 จะเป็นโถง Lobby รับรองมาตรฐานตามโรงแรม
ชั้น 2-8 เป็นชั้นพักอาศัยของ PG Rama 9 (พีจี พระราม 9) โดยแต่ละชั้นมีห้องพักจำนวน 17 ห้อง ประกอบด้วยห้องพัก 3 รูปแบบ
สำหรับอาคาร B จะเป็นอาคาร High Rise 15 ชั้น บริเวณชั้น 1 จะเป็น Lobby รับรองแขก ตกแต่งในสไตล์เดียวกับอาคาร A และมีพื้นที่ลานจอดรถ
บริเวณชั้น 2 จะมีพื้นที่ส่วนใหญ่เป็นพื้นที่จอดรถ มีพื้นที่บางส่วนเป็นพื้นที่สำหรับพักอาศัย และมีพื้นที่สำหรับร้านค้าและโซนซักรีด
Facilities ทั้งหมดจะอยู่บริเวณชั้น 3 และมีพื้นที่บางส่วนเป็นโซนพักอาศัย สำหรับลูกบ้านในอาคาร A ที่ต้องการใช้พื้นที่ส่วนกลางต้องขี้นบันไดด้านข้างตึกโดยเข้าจากที่จอดรถบริเวณชั้น 2 ไม่สามารถเข้าจากโถง Lobby อาคาร B ได้ เนื่องจากทั้ง 2 อาคารใช้คีย์การ์ดที่แตกต่างกัน
นอกจากสระว่ายน้ำและ Fitness Club แล้ว ยังมีสิ่งอำนวยความสะดวกอื่นๆ ได้แก่ ห้องซาวน์น่า ห้องประชุมเล็ก รวมทั้งยังมีลิฟต์โดยสาร 3 ตัว พร้อมลิฟต์ขนของแยกส่วนอีกด้วย
ชั้น 3-15 เป็นพื้นที่สำหรับพักอาศัยทั้งหมด แต่แผนผังของอาคารจะแตกต่างกันไปตามการแบ่งยูนิตในแต่ละชั้น
Type Room :
แผนผังห้องของคอนโด PG Rama 9 (พีจี พระราม 9)

ภาพตัวอย่างบรรยากาศห้องของคอนโด PG Rama 9 (พีจี พระราม 9)
ห้องแบบ Studio จะใช้สีกระเบื้องในการแบ่งโซนครัว, ห้องนั่งเล่น และห้องนอนออกจากกันอย่างชัดเจน
สำหรับห้องแบบ 1 Bedroom และ 2 Bedroom จะมีการแบ่งห้องนอนออกจากโซนอื่นๆ อย่างชัดเจน จะแตกต่างกันตรงที่พื้นที่ใช้สอยส่วนกลางของห้องแบบ 2 Bedroom จะมีโต๊ะทานข้าว แต่ห้องแบบ Studio และ 1 Bedroom จะไม่มีพื้นในส่วนนี้ให้
PG Rama 9 (พีจี พระราม 9) คอนโดพร้อมอยู่ แห่งนี้จะใช้เฟอร์นิเจอร์ในห้องจะเป็นแบบ Built-in และจะเน้นการตกแต่งในโทนสีกลางเพื่อความสบายตาของผู้อยู่อาศัย
Analysis :
จุดเด่นของโครงการ
- PG Rama 9 (พีจี พระราม 9) เป็น คอนโดพร้อมอยู่ ติดถนนพระราม 9 ใกล้กับรถไฟฟ้า MRT พระราม 9
- อยู่ในพื้นที่ NEW CBD ซึ่งเป็นแหล่งที่ครบครันในด้านของไลฟ์สไตล์และสาธารณูปโภค
- มี Facilities ที่ค่อนข้างครบถ้วน ไม่ว่าจะเป็น Lobby ลิฟต์โดยสาร ที่จอดรถ Fitness Club มาตรฐาน ห้องซาวน์น่า สระว่ายน้ำ และปลอดภัยด้วยระบบรักษาความปลอดภัยตลอด 24 ชม.
การเดินทางของ PG Rama 9 (พีจี พระราม 9)
เป็น คอนโดพร้อมอยู่ ย่าน พระราม 9 - รัชดา ที่เดินทางสะดวกเพราะอยู่ใกล้กับรถไฟฟ้า MRT พระราม 9 เพียง 200 เมตร ห่างจากแอร์พอร์ตลิ้งสถานีมักกะสันเพียง 800 เมตรและสามารถเดินทางด้วยรถยนต์ส่วนตัวได้ง่ายเพราะโครงการตั้งอยู่ติดกับถนนพระราม 9 โดยมีระยะทางห่างจากทางขึ้น-ลงทางด่วนศรีรัชเพียงเล็กน้อยเท่านั้น
สภาพแวดล้อมของ PG Rama 9 (พีจี พระราม 9)
ใกล้แหล่งสำนักงาน ห้างสรรพสินค้า ร้านอาหาร ซึ่งเป็นแหล่งไลฟ์สไตล์หลักของย่าน พระราม 9 ถือเป็นคอนโดที่ตั้งอยู่บริเวณทำเลทองอยู่ท่ามกลางสภาพแวดล้อมคล้ายเมืองขนาดย่อม PG Rama 9 (พีจี พระราม 9) เหมาะสำหรับคนที่สำหรับคนที่ต้องการซื้อ คอนโดพร้อมอยู่ สำหรับอยู่เองหรือปล่ายเช่า รวมถึงหาทำเลในย่านพระราม 9 - รัชดา และต้องการเดินทางอย่างสะดวกรวดเร็วด้วย MRT หรือ Airport Link
หากสนใจคอนโดพร้อมอยู่อื่นๆ ในย่าน พระราม 9 ลองอ่านรีวิวอื่นๆ ได้เลยค่ะ :
พีจี พระราม 9
5a0966c5b379f47e6a2f2103
pg-rama-9-พีจี-พระราม![รูปหน้าปก [Review] รีวิว PG Rama 9 (พีจี พระราม 9) คอนโดพร้อมอยู่ใกล้ MRT พระราม 9](https://static.estopolis.com/review/5ab1f91a81c2abdf64c40200_5ab2003615f020335ce5a0d9.jpg)
































