[Review] สานความสุขทุกเจเนอเรชัน ให้ทุกวันเป็นวันพิเศษของครอบครัว ที่ ‘MULBERRY GROVE Sukhumvit’
ถนนสุขุมวิท แขวงพระโขนง เขตวัฒนา กรุงเทพมหานคร
MQDC (แมกโนเลีย ควอลิตี ดีเวลลอปเมนท์)

HIGHLIGHTS
เพราะความผูกพันของครอบครัว
คือ รากฐานแห่งความสุขที่แท้จริง
● เดินทางสะดวก โครงการตั้งอยู่ติดถนนสุขุมวิท ใกล้ทางพิเศษฉลองรัชเพียง 10 นาที และอยู่ติดกับ BTS เอกมัย เพียง 250 เมตรเท่านั้น
● โครงการเน้นตอบโจทย์ “การอยู่อาศัยแบบครอบครัว” จึงออกแบบตัวห้อง ที่ทุกตารางเมตรคิดถึงคนทุกเจเนอเรชั่น
● พร้อมด้วยพื้นที่ส่วนกลางที่ตรงใจ ทั้งเด็ก, ผู้ใหญ่ และคนสูงวัย ทั้งสวน ห้องกิจกรรม เลาจน์ สระว่ายน้ำ 4 สระ พร้อมหลากหลายพื้นที่เพื่อสานสัมพันธ์คนทุกรุ่น
● มาพร้อมเซอร์วิสครบวงจร ทั้ง CareGiver เจ้าหน้าที่บริการด้านสุขภาพตลอด 24 ชั่วโมง, Concierge อำนวยความสะดวก, และบริการดูแลความปลอดภัยในการใช้งาน Facilities ต่าง ๆ
● โลเคชั่นเข้าถึงความต้องการของคนทุกวัย ใกล้แหล่งไลฟ์สไตล์ชั้นนำทุกรูปแบบ ทั้งห้างสรรพสินค้า, สถานศึกษาอย่างโรงเรียนชั้นนำ รวมไปถึงโรงพยาบาล
Project Review
จากผลการวิจัยแสดงให้เห็นว่า… คนไทยส่วนใหญ่ต้องการอาศัยอยู่ด้วยกันเป็นครอบครัวใหญ่ แต่ขณะเดียวกัน ทุกคนก็ยังต้องการพื้นที่เป็นของตัวเอง เราจึงออกแบบการอยู่อาศัยแบบ ‘INTERGENERATION’ เพื่อสร้างพื้นที่การอยู่ร่วมกันของทุกวัยในครอบครัว ซึ่งเป็นสิ่งสำคัญที่เราเชื่อว่า “ความสุขที่แท้จริงนั้น คือการแลกเปลี่ยน และการใช้เวลาอยู่ด้วยกันภายในครอบครัว” สู่ MULBERRY GROVE Sukhumvit by MQDC โครงการที่อยู่อาศัยโครงการแรก ที่ถูกออกแบบมาเพื่อการใช้ชีวิตในแบบ Intergeneration อย่างแท้จริง
เพราะคุณค่าของครอบครัว คือ การช่วยเหลือ และยื่นมือประคองกันและกันในทุก ๆ การเดินทางของชีวิต พร้อมถ่ายทอดความรู้ คำสอน และประสบการณ์ในการใช้ชีวิตจากรุ่นสู่รุ่น เพื่อให้เราได้เข้าใจความหมาย และความสุขของชีวิต ซึ่ง มัลเบอร์รี โกรฟ ก็เข้าใจถึงแก่นแท้ของความสุขที่ประเมินค่าไม่ได้นี้ จึงอยากเห็นทุกครอบครัวได้ใช้ชีวิตอบอุ่นพร้อมหน้ากันทุกเจเนอเรชัน
รายละเอียดโครงการ MULBERRY GROVE Sukhumvit
ชื่อโครงการ : MULBERRY GROVE Sukhumvit (มัลเบอร์รี โกรฟ สุขุมวิท)
เจ้าของโครงการ : MULBERRY GROVE Sukhumvit Corporation Limited by MQDC
ที่ตั้งโครงการ : ถนนสุขุมวิท เขตวัฒนา กรุงเทพมหานคร
พื้นที่โครงการ : 2-2-1.2 ไร่
ลักษณะโครงการ : High Rise สูง 37 ชั้น 1 อาคาร
จำนวนห้อง : 287 ยูนิต
รูปแบบห้อง :
- 1 Bedroom (144 ยูนิต) : 47 ตร.ม. - 56.5 ตร.ม.
- 2 Bedrooms (136 ยูนิต) : 87 ตร.ม. – 135 ตร.ม.
- 3 Bedrooms (2 ยูนิต) : 162 ตร.ม.
- Duplex Penthouse (1 ยูนิต) : 216.5 ตร.ม.
- Penthouse (4 ยูนิต) : 180 ตร.ม. - 241.5 ตร.ม.
ที่จอดรถ : มากกว่า 100%
ราคาเริ่มต้น : 8.9 ล้านบาท (ลงทะเบียนคลิก)
Floor Plan และพื้นที่ส่วนกลางโครงการ MULBERRY GROVE Sukhumvit
เริ่มต้นสำรวจโครงการ MULBERRY GROVE Sukhumvit กันที่ชั้น Ground Floor ของโครงการก่อนเป็น ลำดับแรก เมื่อเลี้ยวรถเข้ามาด้านในโครงการแล้ว ส่วนด้านหน้าสุดจะเป็นจุด Drop Off ที่เราสามารถใช้จอดรับ-ส่งลูกบ้าน ให้เดินเชื่อมเข้าไปยังด้านในอาคารตรงส่วน Mulberry's Greeting Gallery ที่เป็นโถงล็อบบี้ได้ในทันที
การเดินรถภายในโครงการจะเป็นลักษณะเข้า-ออกทางเดียว ให้วนรถรอบอาคาร โดยทางซ้ายติดกับจุด Drop Off จะเป็นทางเข้า พื้นที่จอดรถแบบ Conventional และเมื่อขับรถวนเข้าไปถึงด้านหลังอาคาร ก็จะเจอจุดจอดรถระบบ Auto Parking แบบ 4 สล็อต อีกหนึ่งจุด นอกจากนี้รอบ ๆ ตัวอาคารยังมี Courtyard อีก 3 แห่งไว้คอยเติมความสดชื่นให้กับลูกบ้านด้วย
- Security AI : ช่วยเพิ่มความปลอดภัย และความสะดวกสบายให้กับคุณและทุกคนในครอบครัว ให้ได้รับการบริการ รวมถึงการช่วยเหลือต่าง ๆ จากหุ่นยนต์รักษาความปลอดภัยอัจฉริยะ ซึ่งเป็นการทำงานร่วมกันระหว่าง MQDC และบริษัทเทคโนโลยีชั้นนำ
- Autonomous Garage : ระบบจอดอัตโนมัติ เทคโนโลยีที่ดีที่สุดที่จะเปิดประสบการณ์การจอดรถแบบใหม่ล่าสุด ที่ทั้งง่าย, สะดวก และให้ความปลอดภัยสูงสุด จึงเหมาะสำหรับทุกคนในครอบครัว พร้อมยกระดับมาตรฐานการจอดรถ และการขับขี่ของคุณให้ก้าวไปอีกระดับ
Mulberry's Greeting Gallery ล็อบบี้สูง 7 เมตร ที่คอยต้อนรับทั้งลูกบ้าน และแขกคนสำคัญด้วยความสง่างาม กว้างขวาง จึงทำให้คุณสามารถผ่อนคลายในบรรยากาศแสนสบาย และเป็นกันเองได้อย่างเต็มที่ อีกทั้งยังสามารถใช้บริการ “Concierge Service” สำนักงานพร้อมผู้ดูแลที่พร้อมจะช่วยเหลือทุกความต้องการเร่งด่วน พร้อมให้การต้อนรับ และตอบทุกคำถาม เพื่ออำนวยความสะดวกให้คุณอย่างใส่ใจ นอกจากนี้ยังมี “Care Giver's Office” บริการผู้เชี่ยวชาญด้านการแพทย์ ที่คุณสามารถเข้ามาปรึกษา และขอความช่วยเหลือได้ตลอด 24 ชั่วโมง
Gourmet Courtyard พื้นที่ปลูกผักสวนครัวของลูกบ้านทุกคน มีกิจกรรม Workshop โดยทางโครงการ MULBERRY GROVE Sukhumvit จะมีเจ้าหน้าที่ดูแลสวนผักให้ แบ่งปันผลผลิตให้กับลูกบ้าน เพื่อแลกเปลี่ยนความสุขซึ่งกันและกันได้ อีกทั้งยังสามารถสร้างกิจกรรมสานสัมพันธ์ในครอบครัว ด้วยการให้คุณหนู ๆ เรียนรู้วิธีการปลูกผักสนุก ๆ ร่วมกับผู้ปกครองได้ด้วย
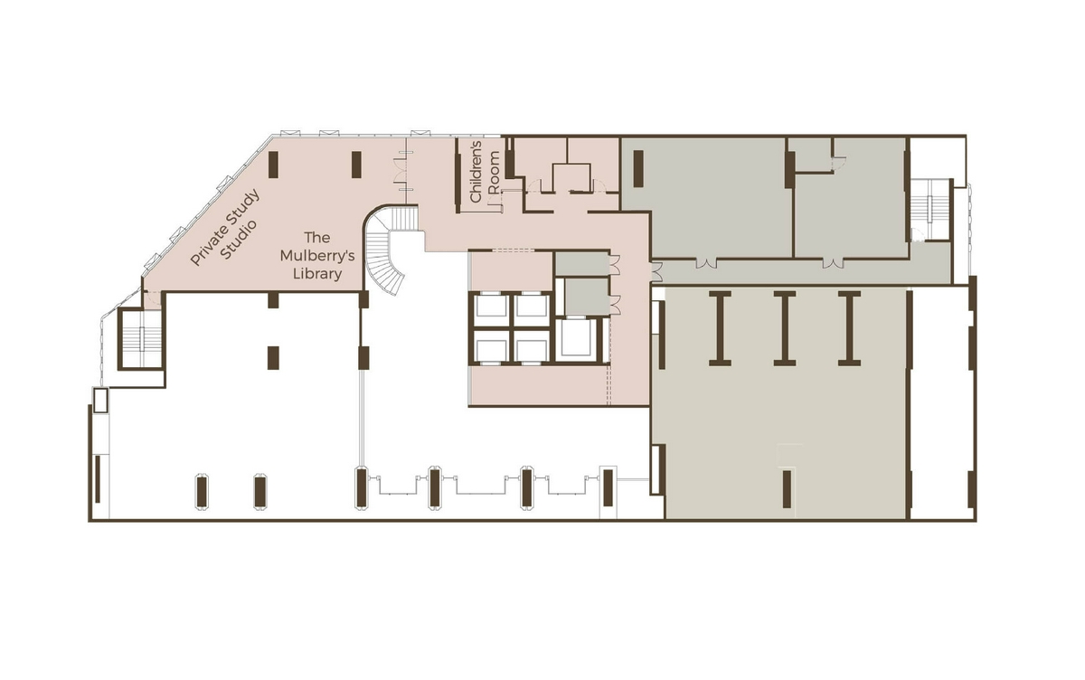
มาต่อกันที่พื้นที่ส่วนกลางบนชั้น 2 กันบ้าง ซึ่งจะประกอบไปด้วย 3 ส่วนหลัก ได้แก่...
- The Mulberry’s Library ห้องสมุดของโครงการ MULBERRY GROVE Sukhumvit ที่คุณสามารถเลือกหยิบหนังสือเล่มที่ถูกใจ มานั่งอ่านในมุมสงบได้อย่างเป็นส่วนตัว
- Children's Room ห้องสำหรับเด็ก ที่มาจากการออกแบบสภาพแวดล้อมให้เหมาะสมกับพัฒนาการด้านต่าง ๆ ของเด็ก อีกทั้งยังเป็นเหมือนคอมมูนิตี้เล็ก ๆ ของเหล่าคุณหนู ให้พวกเขาสามารถพัฒนาทักษะทางด้านสังคมได้อีกด้วย
- Private Study Studio ห้องเรียน/ห้องทำงานแบบส่วนตัว ที่คุณสามารถจองก่อนล่วงหน้าเพื่อขอใช้งานได้ และเมื่อใดที่คุณต้องการสมาธิในการทำงานมากเป็นพิเศษ หรือต้องการหาพื้นที่สำหรับติวหนังสือให้กับลูก ๆ ก็สามารถเข้ามาใช้งานได้ตามต้องการ
ขยับขึ้นมาต่อกันที่ ‘พื้นที่พักอาศัย’ บนชั้น 7 - ชั้น 18 กันบ้าง โดยแปลนทั้งหมดของโครงการ MULBERRY GROVE Sukhumvit จะประกอบไปด้วย ยูนิตพักอาศัยทั้งหมด 12 ยูนิต แบ่งเป็นฝั่งทิศเหนือ 6 ยูนิต และฝั่งทิศใต้อีก 6 ยูนิต ดังนี้...
- Type 1 Bedroom : จำนวน 7 ยูนิต
- Type 2 Bedrooms : จำนวน 5 ยูนิต
ส่วนชั้น 19 - ชั้น 30 จะมีจำนวนยูนิตรวมทั้งหมด 11 ยูนิตต่อชั้น ส่วนลักษณะแปลนก็จะเหมือนกันกับชั้น 7 - ชั้น 18 เพียงแต่บริเวณห้อง 1 Bedroom 2 ห้องด้านขวาของแปลนจะเปลี่ยนมาเป็นห้อง 2 Bedroom แทน
- Type 1 Bedroom : จำนวน 5 ยูนิต
- Type 2 Bedrooms : จำนวน 6 ยูนิต
“ความสุขของการอยู่ด้วยกัน คือ กุญแจสู่ชีวิตที่ยืนยาว” แต่การรักษาความแข็งแรงของร่างกาย และได้ทำตามไลฟ์สไตล์เพื่อสุขภาพที่ชื่นชอบ ก็เป็นสิ่งสำคัญเช่นกัน นี่จึงเป็นเหตุผลขององค์ประกอบด้านสุขภาพ และพื้นที่ส่วนกลางเพื่อสุขภาพที่โครงการ MULBERRY GROVE Sukhumvit ตั้งใจออกแบบ Facilities ให้เหมาะสำหรับคนทุกวัย ให้ทุกคนสามารถใช้งานได้เหมือนกันอย่างเท่าเทียม เพื่อสุขภาพที่ดีของทุกคนในครอบครัว ดังนั้นชั้น 32 จึงเสมือนเป็นพื้นที่ส่วนกลางหลัก ที่ทั้งครอบครัวสามารถเข้ามาใช้งานร่วมกันได้
Infinity Sky Pool สระว่ายน้ำระบบน้ำเกลือขนาดใหญ่ 6*25 เมตร แบบ Half โอลิมปิก ที่เราสามารถ เทควิวสวย ๆ ของบางกระเจ้าได้แบบ 180 องศา ที่ไม่ว่าจะมาว่ายน้ำออกกำลังกาย หรือพักผ่อนชมบรรยากาศยามพระอาทิตย์ตก สระว่ายน้ำแห่งนี้ก็ดูพิเศษ และช่วยสร้างความสุขให้กับทุกคนในครอบครัวได้ไม่ยาก
ส่วนอีกฝั่งหนึ่งของ Infinity Sky Pool จะประกอบด้วย 3 สระ 3 ฟังก์ชัน ที่ให้เด็ก ๆ และผู้สูงอายุได้ใช้งานด้วยกันในบริเวณพื้นที่แห่งนี้ โดยทั้ง 3 สระจะแบ่งเป็น...
- Children’s pool สระว่ายน้ำสำหรับเด็ก ที่สร้างขึ้นโดยคำนึงถึงความปลอดภัยของเด็กเป็นหลัก มาพร้อมพื้นที่นั่งคอยสำหรับผู้ปกครอง เอาไว้คอยดูแลลูก ๆ ให้อยู่ในสายตาตลอดเวลา
- Thermal pool สระน้ำร้อนสำหรับผู้สูงอายุโดยเฉพาะ ซึ่งสระนี้จะช่วยให้เลือดลมนั้นสูบฉีดได้ดียิ่งขึ้นนั่นเอง
- Hydrotherapy pool สระว่ายน้ำระบบนวด ที่จะช่วยผ่อนคลายร่างกายและจิตใจด้วยพลังน้ำ อีกทั้งยังสามารถรับชมภาพยนตร์ขณะที่อยู่ในสระได้ด้วย
Sky-High Gym Studio สร้างแรงบันดาลใจในการออกกำลังกายทุก ๆ วัน ด้วยทัศนียภาพอันงดงามของเมือง พร้อมครบครันด้วยอุปกรณ์ชั้นนำระดับโลกจากแบรนด์ Technogym ให้ทั้งคุณและคนในครอบครัวสามารถดูแลสุขภาพด้วยกันได้ทุกวัน หรือใครจะหากิจกรรมสนุก ๆ ทำร่วมกันในครอบครัว อย่างการแข่งขันเล็ก ๆ น้อย ๆ ก็ช่วยเพิ่มแรงกระตุ้นในการออกกำลังกายได้ดีทีเดียว
Private Sky-high Onsen ไขความลับอายุยืนยาวของชาวญี่ปุ่น ด้วยออนเซ็นส่วนตัวสไตล์ญี่ปุ่นดั้งเดิม ที่ให้คุณหลีกหนีจากเมืองที่วุ่นวาย เข้ามาพักกายพักใจอย่างสงบร่วมกับครอบครัว อีกทั้งยังมีห้องน้ำในตัว ที่ให้คุณสามารถเพลิดเพลินไปกับวิวสวย ๆ ของเมืองระหว่างการพักผ่อนได้ด้วย
Private Style Atelier อีกหนึ่งห้องพิเศษที่รับรองว่าถูกใจคุณสาว ๆ อย่างแน่นอน เพราะไม่ว่าจะเป็นคู่แม่ลูก หรือคู่เพื่อน ความสวยความงามก็ต่างเป็นเรื่องที่เราไม่ควรมองข้าม อย่าง วันหยุดสุดสัปดาห์ หากใครอยากจะเติมความสวย เปลี่ยนแปลงปรับลุคใหม่ก็สามารถเรียกช่างส่วนตัว หรือให้ทางโครงการช่วยติดต่อเรียกช่างมืออาชีพมาบริการให้ก็ได้ ไม่ว่าจะทำเล็บ, ทำผม, วัดตัว-ตัดชุด หรือแต่งหน้าออกงานสำคัญ ก็สามารถเข้ามาใช้พื้นที่ส่วนนี้ เพื่ออำนวยความสะดวกสบายได้เลย
Private Spa สปาส่วนตัวที่มาพร้อมห้องน้ำในตัว ที่ให้คุณสามารถนวดผ่อนคลายฟื้นฟูร่างกายได้ด้วยทรีตเมนต์ที่คุณต้องการ เพื่อเป็นการให้รางวัลตัวเองในวันที่เหนื่อยล้าจากการทำงาน ซึ่งคุณสามารถเรียกพนักงานส่วนตัวเข้ามาดูแล หรือจะให้ทางโครงการช่วยติดต่อให้ก็ได้เช่นกัน
นอกจากนี้ ที่ชั้น 32 ยังมีห้องแต่งตัวพร้อม Sauna แยกชายหญิง ให้ในตัวอีกด้วย, Golf Simulator & Entertainment Room ที่ทุกคนในครอบครัวสามารถมาพัตกอล์ฟ และทำกิจกรรมสนุกอื่น ๆ ร่วมกันได้
เดินถัดขึ้นมาที่พื้นที่ส่วนกลางชั้น 33 จะเป็นพื้นที่สำหรับเหล่าคนรักสุขภาพ ที่มีห้องออกกำลังกายให้เลือกหลากหลายประเภท ไม่ว่าจะเป็น…
- Patio Gym ลานออกกำลังกายกลางแจ้ง พร้อมให้คุณชม City View สวย ๆ ได้ทั้งยามเช้าและเวลาค่ำคืน พร้อมสูดหายใจและดื่มด่ำกับร่างกายที่แข็งแรงไปพร้อม ๆ กับทัศนียภาพที่สวยงามได้ทุกวัน และยังให้คุณมีพื้นที่ออกกำลังกายกลางแจ้ง โดยไม่ต้องก้าวขาออกจากบ้านให้เสียเวลา ซึ่งแน่นอนว่าจะมาพร้อมกับเครื่องออกกำลังกายแบบ Outdoor
- Yoga Suite คลาสโยคะสุดพิเศษภายในโครงการ MULBERRY GROVE Sukhumvit ที่สามารถเชิญอาจารย์ผู้สอนทั้งชาวไทย และชาวต่างชาติมากประสบการณ์มาช่วยคุณปลดล็อกสิ่งที่ดีกว่า เพื่อ เป็นการเริ่มต้นดูแลตัวเองอย่างมีความสุข ภายในที่อยู่อาศัยของคุณเอง (ทางโครงการไม่มีการจัดเตรียมผู้สอนไว้บริการครับ)
- Ballet Suite ห้องเรียนบัลเล่ต์มาพร้อมพื้นไม้, ราวจับ และกระจกบานใหญ่ครบครัน โดยที่คุณสามารถเรียกคุณครูส่วนตัวมาสอนลูก ๆ ได้ ไม่ว่าจะเรียนแบบส่วนตัว หรือชวนคุณหนู ๆ เพื่อนบ้านมาเข้าคลาสด้วยกัน เพื่อเป็นการพบปะเพื่อนใหม่ ๆ ก็น่าสนใจ ได้ฝึกทั้งทักษะร่างกาย แถมยังได้เสริมสร้างทักษะในการเข้าสังคมอีกด้วย
ปิดท้ายกันที่ชั้น 37 ชั้นสุดท้ายของพื้นที่ส่วนกลางภายในโครงการ MULBERRY GROVE Sukhumvit โดยความพิเศษของชั้นนี้ จะอยู่ที่การเชื่อมต่อความสัมพันธ์ของทุกคนในครอบครัว หรือเป็นเหมือนพื้นที่ที่ทำให้ทุกคนได้เข้ามาใช้เวลาร่วมกันนั่นเอง
Residence lounge พื้นที่สำหรับนั่งเล่นพักผ่อนขนาดกว้างขวาง ดูสง่างามเหนือกาลเวลา ซึ่งจะมาพร้อมแกรนด์เปียโนที่ออกแบบอย่างหรูหรา เพื่อสุนทรียในการพักผ่อนอย่างแท้จริง นอกจากนี้ยังมีเบิร์ดอายวิวกว้าง ๆ ให้คุณชื่นชมทัศนียภาพโดยรอบได้แบบสุดสายตา แถมด้วยบริการฟรีเซอร์วิส Afternoon Tea ในทุกช่วงบ่ายของวัน ให้วันธรรมดา ๆ ดูมีความหมายมากกว่าที่เคย
Grand Private Living & Dining Room พื้นที่รวมตัวสำหรับวันพิเศษของครอบครัว ที่ไม่ว่าจะเป็นวันเกิด, วันปีใหม่, คืนวันคริสต์มาส หรือวันสำเร็จการศึกษาของลูก ๆ คุณก็สามารถเข้ามาจับจองพื้นที่ส่วนนี้ไว้เฉลิมฉลองความสุขร่วมกันได้ เพราะพื้นที่ส่วนกลางตรงนี้จะมีครบทั้ง พื้นที่ทำครัว, โต๊ะทานอาหาร, มุมนั่งเล่น และห้องน้ำในตัว ซึ่งเราไม่จำเป็นต้องขยับออกไปไหนไกล ก็สามารถเชิญชวนเพื่อน ๆ เข้ามามีความสุขกันได้เต็มที่ โดยจะมีให้เลือกใช้บริการอยู่ 2 ขนาด ตามความต้องการในการใช้งานของเราเอง
นอกจากนี้ ทางโครงการ MULBERRY GROVE Sukhumvit ยังมี MULBERRY Activities กิจกรรม Workshop ต่าง ๆ อาทิ คลาสทำอาหาร, คลาสออกกำลังกาย และกิจกรรมอื่น ๆ อีกมากมาย ที่ทางโครงการจัดขึ้นตลอดทั้งปี เพื่อให้ผู้อยู่อาศัยทุกท่าน ได้ทำกิจกรรมสานความสัมพันธ์ระหว่างคนในครอบครัวทุกวัยอีกด้วย
Room Review
2 Bedroom ขนาด 114 ตร.ม.
แปลนห้อง 2 Bedroom ขนาด 114 ตร.ม. จะมีลักษณะแบบหน้ากว้าง ภายในประกอบไปด้วย “ห้องนอน 2 ห้อง” แยกฝั่งซ้าย-ขวาจากประตูทางเข้า ภายในมี “ห้องน้ำในตัว” พร้อม walk-in closet ให้ทุกห้อง ส่วนบริเวณตรงกลางจากประตูทางเข้าจะเป็นส่วนของ Living Zone ที่ประกอบไปด้วย “ห้องนั่งเล่น”, “ห้องครัวปิด”, “ห้องน้ำสำหรับแขก” และ ”พื้นที่อเนกประสงค์” ซึ่งทั้งหมดนี้จะมีขนาดกว้างขวาง เพียงพอสำหรับสมาชิกทุกคนในครอบครัว
- ดังนั้น ห้องนี้จึงค่อนข้างเหมาะสำหรับผู้ที่ต้องการอยู่อาศัยเป็นครอบครัว
- และผู้ที่ต้องการความเป็นส่วนตัว เนื่องจากมีห้องน้ำแยกสำหรับแขก อยู่บริเวณประตูทางเข้า
- ส่วนงานระบบอย่าง “ห้องน้ำและห้องครัว” ทางโครงการ MULBERRY GROVE Sukhumvit จะวางให้อยู่ติดกับส่วนของคอร์ริดอร์ เพื่อให้การตรวจเช็กซ่อมแซมต่าง ๆ สามารถทำได้ทันทีจากภายนอก โดยไม่จำเป็นต้องให้ช่างเข้ามารบกวนความเป็นส่วนตัวของคุณแต่อย่างใด
เริ่มพบความพิเศษของสุดยอดที่อยู่อาศัยกันตั้งแต่หน้าประตูห้อง ซึ่งโครงการ MULBERRY GROVE Sukhumvit ได้เลือกใช้กลอนประตู Digital Door Lock จากแบรนด์ Philips เป็นโครงการแรกในประเทศไทย ที่สามารถเชื่อมต่อเข้าสู่ตัวห้องได้ถึง 5 ระบบ ไม่ว่าจะเป็น คีย์การ์ด, กุญแจ, รหัสพิน, ลายนิ้วมือ และบลูทูธ อีกทั้งยังเพิ่มความสะดวกสบายแก่ผู้อยู่อาศัย ด้วยการส่งรหัสเข้าสู่สมาร์ทโฟนของเราได้
บริเวณด้านหน้าประตูทางเข้าจะดรอปพื้นที่เข้าไป 50 ซม. โดยจะมีตู้สำหรับใส่ของ, ที่แขวนร่ม, ช่องเก็บรองเท้า พร้อมกับกล่องจดหมาย Mail Box เอาไว้คอยอำนวยความสะดวก ลูกบ้านจึงไม่จำเป็นต้องลงไปเช็กจดหมายของตัวเองที่พื้นที่ส่วนกลางให้เสียเวลา และในส่วนของประตูทางเข้าจะแบ่งออกเป็น 2 ตอน ได้แก่ บานขนาด 90 ซม. และบานขนาด 40 ซม. รวมกันแล้วจะมีขนาดกว้างอยู่ที่ 130 ซม. ทำให้สามารถรองรับวีลแชร์ หรือการขนของชิ้นใหญ่ได้สะดวกมากยิ่งขึ้น
เมื่อเปิดประตูเข้าไปด้านใน จะเห็นเป็นลักษณะของช่องทางเดินที่ทอดยาวจากบริเวณทางเข้า เพื่อพาเราไปสู่ “พื้นที่นั่งเล่น” ซึ่งอยู่ติดกับกระจกบานใหญ่ไร้ขอบกั้น ทำให้คุณได้รับแสงสว่าง และวิวเมืองอย่างเต็มที่ทันทีที่เปิดประตูเข้าไป
- พื้นห้องบริเวณนี้ทั้งหมดจะเป็นพื้น Synthetic marble สีขาวหนา 1.5 ซม. ให้ความรู้สึกสะอาดตา สวยงาม และเรียบหรู ส่วนระยะความสูงเพดานบริเวณหน้าห้องจะอยู่ที่ 2.7 เมตร นับว่าค่อนข้างสูงเลยทีเดียว
ขวามือจากประตูทางเข้าจะแบ่งเป็น ห้องซักผ้า, ห้องน้ำสำหรับแขก และตู้เก็บของตามลำดับ
ภายในห้อง Laundry & Storage Room จะมีพื้นที่ค่อนข้างกว้าง พร้อมเดินระบบน้ำและไฟฟ้าเอาไว้ให้เรียบร้อย ซึ่งเราสามารถติดตั้งเครื่องซักผ้าฝาหน้า รวมไปถึงเครื่องอบผ้าได้อย่างเพียงพอ นอกจากนี้ คุณยังสามารถเพิ่มเติมชั้นวางของที่ด้านบน เพื่อไว้เก็บอุปกรณ์ซักผ้า, ติดตั้งตะขอสำหรับแขวนจักรยาน หรือใครจะเอาไว้ใช้เก็บอุปกรณ์ทำความสะอาดบ้านก็ย่อมได้
- แถมคุณจะหมดกังวลเรื่องกลิ่นอับไปได้เลย เนื่องจากภายในตู้ก็ถูกออกแบบอยางใส่ใจ ติดตั้งระบบระบายอากาศขนาดใหญ่เพื่อระบายออกสู่ด้านนอก ป้องกันให้ไม่มีกลิ่นอับชื้น
ถัดมาทางด้านห้องน้ำสำหรับแขก ซึ่งพื้นที่ภายในจะมีขนาดกระทัดรัด ประกอบด้วย อ่างล้างหน้า, กระจกส่องเงา และโถสุขภัณฑ์ เพื่อให้แขกใช้งานได้อย่างสะดวกสบาย โดยไม่จำเป็นต้องเข้าไปใช้งานในห้องส่วนตัวของเรา
- พื้นห้องน้ำเป็นกระเบื้องพอร์ซเลน ส่วนผนังจะเป็นวัสดุกระเบื้องพอร์ซเลนดูสวยงาม
ท็อปอ่างล้างหน้าเป็น ‘วัสดุหิน’ ที่ดีไซน์มาให้รับกันเป็นอย่างดี ดูสวยงาม เรียบหรู มากด้วยพื้นที่ใช้สอย ส่วนด้านล่างเป็นตู้ลามิเนต ที่สามารถใช้จัดเก็บอุปกรณ์ทำความสะอาด หรืออุปกรณ์อื่น ๆ เพิ่มเติมได้ตามต้องการด้วย
นอกจากนี้ ทางโครงการ ยังดีไซน์ให้ตัวท็อปอ่างล้างหน้า เชื่อมต่อไปถึงด้านหลังโถสุขภัณฑ์ ทำให้คุณสามารถจัดวางดอกไม้, ต้นไม้ที่มีกลิ่นหอม, เทียนกลิ่นอโรมา หรือสิ่งของที่ช่วยเพิ่มบรรยากาศในห้องน้ำให้ดูสดชื่นขึ้น เพื่อเอาไว้ต้อนรับแขกคนสำคัญ สร้างความประทับใจยามมาห้อง
ทางด้านบนสุดของ ‘ตู้เก็บของ’ บริเวณทางเข้า จะเป็นส่วนของงานระบบไฟฟ้าต่าง ๆ รวมไปถึงช่องเก็บ Router Wi-Fi และงานระบบ Home Automation ต่าง ๆ ภายในห้อง ถัดลงมาด้านล่างจึงจะเป็นตู้สำหรับเก็บรองเท้า 3 ชั้น สามารถจัดเก็บได้ประมาณ 9 คู่
และบริเวณด้านบนตู้วางรองเท้ายังพื้นที่สำหรับวางกุญแจ อุปกรณ์สื่อสาร, ปลั๊กไฟ 2 หัว และช่องเสียบ USB อีก 2 ช่อง ซึ่งคุณสามารถใช้ชาร์จหูฟังไร้สาย, แบตสำรอง, กล้อง, สมาร์ทโฟน และอื่น ๆ ได้มากมาย จึงแน่ใจได้ว่า เราจะไม่พลาดทุกความต้องการในชีวิตประจำวันอย่างแน่นอน
หันกลับมาที่ด้านซ้ายมือของประตูทางเข้ากันบ้าง โดยทางส่วนนี้จะเป็นพื้นที่ของห้องครัวปิดขนาดใหญ่ ด้านหน้ากั้นปิดด้วยประตูบานเลื่อนกระจกใส 4 ตอน เมื่อเลื่อนเปิดจนสุด ตัวบานกระจกจะซ้อนทับอยู่กับส่วนเคาน์เตอร์ครัวแบบพอดิบพอดี คุณจึงได้พื้นที่ที่กว้างขวางสะดวกต่อการใช้งานมากยิ่งขึ้น
อีกทั้งทางโครงการ MULBERRY GROVE Sukhumvit ยังได้คิดค้นให้พื้นครัวมีความปลอดภัยสำหรับทุกวัยในครอบครัว โดยการเลือกใช้กระเบื้องพอร์ซเลน และมีคุณสมบัติช่วยกันลื่น เราจึงหมดกังวลเรื่องน้ำมันกระเด็นเปรอะพื้นห้อง เมื่อต้องทำครัวหนัก ๆ ไปได้เลย
- ระหว่างประตูทางเข้าและตู้บิลต์อินภายในห้องครัว จะมีสวิทช์ที่สามารถกดปิดไฟได้ทั้งห้องภายในปุ่มเดียว มั่นใจได้ว่าจะไม่ลืมปิดไฟใด ๆ ไว้
สำหรับตู้เย็นที่ทางโครงการ MULBERRY GROVE Sukhumvit ให้มา จะมีขนาดใหญ่จัดเต็มแบบเปิด-ปิด 2 หน้าบาน พร้อมออกแบบมาอย่างเรียบหรู ด้วยการ Built-in ตัวเครื่องให้แนบเนียนไปกับตู้ไม้ ซึ่งทางโครงการก็ได้ตั้งใจเลือกสิ่งที่ดีที่สุด จากแบรนด์ LIEBHERR ที่มีความเชี่ยวชาญในการทำเครื่องเย็น ทั้งในเครื่องบินและเรือยอร์ชมาอย่างยาวนาน คุณจึงมั่นใจเรื่องคุณภาพของตู้เย็นที่ได้รับไปได้เลย
- นอกจากจะซ่อนตู้เย็นไว้แล้ว บริเวณด้านในตู้ทั้งส่วนด้านบน และด้านข้างตู้เย็น ก็ยังทำเป็นชั้นสำหรับจัดเก็บของเอาไว้ให้ เหมาะสำหรับการใช้จัดเก็บภาชนะประเภทจานชาม และแก้วน้ำโดยเฉพาะ
ส่วนตู้เก็บของฝั่งเคาน์เตอร์ประกอบอาหารนั้น จะเป็นหน้าบานแบบกันรอยนิ้วมือ ที่ทำความสะอาดได้ง่าย พร้อมมีฟังก์ชันมาให้อย่างจุใจเต็มทุกตารางนิ้ว ทั้งตู้แบบตั้งพื้น และแขวนผนัง ภายในแบ่งชั้นและช่องจัดเก็บให้อย่างเพียงพอ แม้จะเป็นมุมตู้ที่ยากต่อการจัดเก็บ และหยิบใช้ก็ไม่มีปัญหา
- ท็อปเคาน์เตอร์ครัวและ Back Splash ของทางโครงการจะเลือกใช้เป็นหินควอทซ์ที่มีจุดเด่นเรื่องความแข็งแรง ทนทาน ทนรอยขีดข่วน สามารถใช้งานได้ตั้งแต่ครัวเบาไปจนถึงครัวหนัก โดยไม่ต้องกังวลเรื่องการดูแลรักษา
- ทางด้านเตาไฟฟ้า ทางโครงการจะให้แบบ 4 เตา จากแบรนด์ Küppersbusch มา เราจึงสามารถทำอาหารพร้อมกันได้หลากหลายเมนู เหมาะสำหรับครอบครัวใหญ่เป็นอย่างยิ่ง ส่วนเครื่องดูดควันระบายอากาศ ก็เลือกใช้ของแบรนด์ Küppersbusch เช่นกัน โดยจะวางเป็นระบบแบบปล่อยออกนอกอาคาร มาพร้อมระบบระบายอากาศ Exhaust บล็อกอีกชั้น คุณจึงหมดวังวลเรื่องกลิ่นอาหารจะรบกวนการใช้ชีวิตภายในห้องไปได้
นอกจากนี้ ทาง MULBERRY GROVE Sukhumvit ยังติดตั้งเตาอบ และไมโครเวฟจากแบรนด์ Küppersbusch มาให้อีกอย่างละ 1 เตา สามารถใช้อุ่น, อบอาหาร, ทำขนมได้หลากหลาย เหมาะสำหรับการทำกิจกรรมร่วมกันภายในครอบครัว ช่วงวันหยุดสุดสัปดาห์เป็นอย่างยิ่ง
ขยับมาที่เคาน์เตอร์เตรียมอาหารที่มีพื้นที่ใช้งานจุใจ สามารถมองทะลุออกไปยังส่วนของพื้นที่นั่งเล่นได้ จึงเหมาะสำหรับผู้ปกครองที่อยากจะสอดส่องดูแลบุตรหลาน ให้อยู่ในสายตาตลอดเวลาอย่างยิ่ง อีกทั้งยังช่วยให้พื้นที่บริเวณนี้สว่าง และปลอดโปร่งขึ้นด้วย
ภายในเคาน์เตอร์ครัวฝั่งนี้ จะมีตู้เก็บของที่ทำเป็นช่องจัดเก็บต่าง ๆ เอาไว้อย่างเป็นระบบ เพื่อให้คุณสามารถจัดเก็บอุปกรณ์งานครัวต่าง ๆ ได้อย่างเป็นระเบียบมากกว่าที่เคย
ไม่ว่าจะเป็นช่องจัดเก็บช้อนส้อม หรือชั้นสำหรับวางขวดน้ำยาล้างจาน ก็จัดแบ่งและคิดคำนวณขนาดมาให้อย่างใส่ใจ
- ส่วนของซิงก์ล้างจานทางโครงการ MULBERRY GROVE Sukhumvit ก็ได้จัดเตรียมพื้นที่สำหรับติดตั้งระบบน้ำร้อนเอาไว้ให้ด้วย
ขยับมาสำรวจต่อกันที่ส่วน Living ของห้องกันบ้าง โดยพื้นที่ส่วนนี้เรียกได้ว่าเป็นจุดกึ่งกลางของตัวห้อง ที่ประกอบไปด้วย 3 ส่วนหลัก ๆ ได้แก่ ส่วนของพื้นที่อเนกประสงค์, พื้นที่วางโต๊ะอาหาร และมุมนั่งเล่นตามลำดับ ซึ่งเราสามารถจัดการพื้นที่แต่ละส่วน พร้อมวางเฟอร์นิเจอร์ได้ตามความต้องการของสมาชิกในครอบครัว จึงนับเป็นจุดศูนย์รวมที่ให้ทุกคนได้เข้ามาใช้เวลาอยู่ร่วมกันได้ทุกวัน ทุกเวลา
- ความสูงจากพื้นถึงเพดานบริเวณนี้จะให้ความรู้สึกโปร่งโล่ง ไม่อึดอัด อยู่ที่ 3 เมตร
- สำหรับเครื่องปรับอากาศโซน Living จะติดตั้งเป็นระบบ VRV ที่สามารถปรับ ‘อุณหภูมิของน้ำยา’ ได้ตามสภาวะอากาศ จึงช่วยให้เราประหยัดพลังงานมากยิ่งขึ้น
- บริเวณหน้าต่างทำการดรอปม่าน พร้อมจุดติดตั้งสายไฟไว้ให้เรียบร้อย หากใครอยากติดตั้งม่านเลื่อนอัตโนมัติก็สามารถทำได้สบาย
“พื้นที่อเนกประสงค์” หรือ Nook Multi-Purpose Space ถือเป็นพื้นที่พิเศษ ที่ทางโครงการ MULBERRY GROVE Sukhumvit คิดค้นเพื่อให้สามารถรองรับความต้องการที่หลากหลายของทุกคนในครอบครัว พร้อมกั้นสัดส่วนด้วยประตูกระจกบานเฟี้ยม ที่สามารถเปิดออกได้กว้างกว่า 100% ทำให้พื้นที่ตรงนี้สามารถเชื่อมต่อเข้ากับส่วนอื่น ๆ ของ Living Room ได้อย่างไร้ขอบเขต อีกทั้งคุณยังสามารถเปิดรับอากาศจากทางด้านนอกผ่านบานกระทุ้งได้อีกด้วย
โดยเราสามารถเลือกออกแบบห้องให้ใช้งานได้ตามความต้องการไม่รู้จบ ไม่ว่าจะเป็น…
- ห้องอ่านหนังสือเพื่อการศึกษาสำหรับเด็ก ๆ
- มุมสำหรับอ่านหนังสือ จิบน้ำชา ของคุณแม่
- มุมจัดสวนสำหรับคุณปู่ คุณย่า
- ไปจนถึงการสร้างเป็นห้องทำงานสำหรับคุณพ่อ
ถัดมาในส่วนของมุมทานอาหารกันบ้าง โดยความพิเศษของพื้นที่ตรงนี้ คือ คุณสามารถเลือกวางโต๊ะทานข้าวขนาดใหญ่ 6 - 8 ที่นั่งได้สบาย ๆ แถมยังมีวิวเมืองสวย ๆ ให้มองระหว่างมื้ออาหาร จึงช่วยให้ทุกมื้อค่ำของครอบครัวดูพิเศษมากยิ่งขึ้น นอกจากนี้ยังสามารถรับชมละคร หรือภาพยนตร์เรื่องโปรดกันแบบพร้อมหน้าพร้อมตาได้อีกด้วย
ปิดท้ายโซน Living ด้วยมุมนั่งเล่นของห้อง โดยที่เราสามารถเลือก Decorate จัดตกแต่งมุมนั่งเล่น และมุมเอ็นเตอร์เทนเมนต์ได้อย่างอิสระ ไม่ว่าจะเป็นการบิลต์อินชั้นวางทีวี, การติดตั้งชุดโฮมเธียเตอร์สำหรับใช้รับชมภาพยนตร์, การจัดวางชุดโซฟาให้เข้ากับไลฟ์สไตล์ และจำนวนสมาชิกในครอบครัว หรือใครอยากจะตั้งแกรนด์เปียโนเอาไว้ให้ลูก ๆ ได้ฝึกเล่นแบบในห้องตัวอย่าง ก็มีพื้นที่เหลือเพียงพอให้วางได้แบบสบาย ๆ
เมื่อเปิดประตูเข้าไปภายในห้อง เราก็จะเจอกับพื้นที่วางเตียงขนาดใหญ่ ที่ยังเหลือพื้นที่รอบเตียงให้ใช้งานได้อีกค่อนข้างมาก และห้องนอนทุกห้อง ทุกขนาดของโครงการ MULBERRY GROVE Sukhumvit จะสามารถวางเตียงนอน King Size ได้แบบสบาย ๆ
- พื้นห้องเป็นไม้เอ็นจิเนียร์สักแท้ ที่ถูกวางเฉียงเป็นลายก้างปลาให้ความรู้สึกสวยงาม ดูอบอุ่น เหมาะกับบรรยากาศของห้องนอนมากยิ่งขึ้น
ฝั่งข้างเตียงริมในสุดจะเป็นบานกระจก ที่ยกระดับขึ้นมาเหนือพื้นเล็กน้อย เพื่อเพิ่มความรู้สึกปลอดภัย โดยตัวกระจกจะทำเป็นบานกระทุ้งแบบ 2 บาน สามารถเปิดออกเพื่อระบายอากาศได้ดี อีกทั้งยังมีพื้นที่สำหรับวางโต๊ะหัวเตียงได้อีกด้วย
ส่วนบริเวณปลายเตียง ทางโครงการ MULBERRY GROVE Sukhumvit ก็ได้ติดตั้ง Cable TV เอาไว้ให้เรียบร้อย ถ้าใครอยากแขวนทีวีจอใหญ่ไว้รับชมขณะพักผ่อนก็สามารถทำได้ ส่วนความกว้างของพื้นที่รอบ ๆ เตียงนั้น ก็มีขนาดพอเหมาะสำหรับการเดินเข้า-ออก โดยไม่ทำให้ติดขัด หรืออึดอัดแต่อย่างใด
- ทางด้านของกระจกบานกระทุ้งก็คิดมาอย่างใส่ใจ สามารถกางออกได้อย่างจำกัด ในมุมองศาพอดีต่อการใช้งาน เพื่อป้องกันไม่ให้เด็ก ๆ ปีนป่ายออกไป
- นอกจากนี้ ยังมีเทคโนโลยีทันสมัย Energy Recoveryventilation (ERV) ที่ใช้ในการเติมอากาศจากภายนอกอาคาร เพื่อเป็นการเพิ่ม O2 และยังสร้างความมั่นใจในคุณภาพของอากาศภายในตัวอาคาร ซึ่งระบบนี้จะทำการเปิดใช้งานทันที หลังจากที่คุณเปิดเครื่องปรับอากาศภายในห้องนอนนั่นเอง
- ส่วนใครที่กังวลเกี่ยวกับการใช้งานวีลแชร์ภายในห้อง ก็สบายใจได้ เพราะทุกพื้นที่ภายในโครงการ MULBERRY GROVE Sukhumvit จะออกแบบความกว้างของประตู ไว้คอยรองรับไว้ให้เป็นที่เรียบร้อยแล้ว
และหันมาดูต่อที่อีกฝั่งของห้อง ซึ่งจะเป็นพื้นที่ในส่วนของ Walk-in Closet และห้องน้ำ ที่กั้นด้วยประตูบานสไลด์ที่สามารถระบายอากาศเข้าไปยังภายในได้ คุณผู้หญิงจึงได้รับความเป็นส่วนตัวควบคู่ไปกับความสุข ทำให้ไม่รู้สึกร้อนอบอ้าวขณะใช้งานอีกด้วย
เมื่อเดินเข้าไปภายในจะพบกับ “Walk-in Closet” ขนาดใหญ่ ที่สามารถรองรับพื้นที่จัดเก็บได้อย่างเต็มที่ โดยทางโครงการ Mulberry Grove Sukhumvit ได้บิลต์อินตู้แขวนผ้าแบบไร้หน้าบาน พร้อมติดตั้งไฟอัตโนมัติที่พื้น, ราวแขวน, ชั้นวางของ และลิ้นชักเอาไว้ให้เรียบร้อย ซึ่งคุณสามารถจัดเก็บทั้งเสื้อผ้า, เครื่องประดับ และกระเป๋าต่าง ๆ ได้เพียงพอ นอกจากนี้ บริเวณพื้นห้องยังเว้นที่สำหรับวาง Luggage เอาไว้ให้ด้วย เรียกได้ว่า... เป็นการดีไซน์ที่คิดถึงการใช้งานมาเป็นอย่างดี
- เพดานห้องส่วนนี้จะสูง 2.7 เมตรเท่ากับบริเวณหน้าห้อง ทำให้ไม่รู้สึกอึดอัด คับแคบ
- ส่วนโต๊ะเครื่องแป้งก็สามารถบิลต์อินเพิ่มเติมได้เองตามสไตล์ที่ชอบ ซึ่งทางโครงการก็เว้นพื้นที่ไว้ให้แล้ว
ด้านในสุดจะเป็นส่วนของห้องน้ำ ซึ่งมีลักษณะเป็นหน้ากว้าง เมื่อเปิดเข้าไปจะเจอกับโซนแห้งก่อนเป็นอันดับแรก ประกอบไปด้วยโถสุขภัณฑ์ และอ่างล้างหน้าตามลำดับ ส่วนด้านขวาจะเป็นโซนเปียกที่กั้นด้วยกระจกเทมเปอร์แบบเต็มความสูงห้อง ภายในจะมีให้ครบทั้งอ่างอาบน้ำ, Rain Shower และ Hand shower โดยพื้นห้องน้ำจะเป็นกระเบื้องพอร์ซเลนสีขาว ลายหินอ่อน ดูหรูหรามากทีเดียว
- โถสุขภัณฑ์ที่โครงการ Mulberry Grove Sukhumvit เลือกใช้จะเป็น TOTO Washlet รุ่นล่าสุด ที่มาพร้อมเทคโนโลยีที่จะรองรับการใช้งานของเรา ให้สะดวกสบายได้มากกว่าที่เคย
- ‘เคาน์เตอร์อ่างล้างหน้า’ นอกจากจะสามารถเปิดออกเพื่อใช้เก็บของได้แล้ว ตัวบานกระจกก็ยังสามารถเปิดออกเพื่อใช้เสียบปลั๊กไฟ และเก็บของเพิ่มเติมได้
- ’ท็อปของอ่างล้างหน้า’ เป็นวัสดุหินที่มาพร้อมพื้นที่วางของแบบจุใจอีกเช่นเคย บอกเลยว่า… ต่อให้คุณผู้หญิงจะมีผลิตภัณฑ์ทำความสะอาดผิวหน้า หรือเครื่องสำอางเยอะแค่ไหน ก็สามารถจัดวางได้เพียงพอ ทั้งยังเช็ดล้าง ทำความสะอาดได้ง่าย
- ‘ก็อกน้ำ’ เลือกใช้เป็นแบรนด์ hansgrohe
- นอกจากนี้ ตัวอ่างก็ยังรองรับการติดตั้งเครื่องทำน้ำร้อนเอาไว้ให้ด้วย
ขยับมาต่อที่ด้านในของส่วน Shower กันบ้าง โดยตัวบานกระจกเทมเปอร์ที่ใช้กั้นแยกระหว่างส่วนเปียกแห้งนั้น จะมีราวจับทั้งด้านในและด้านนอก เราจึงสามารถใช้พาดผ้าขนหนูได้เพิ่มอีกหนึ่งจุด
เมื่อเข้าไปด้านในจะเจอส่วนของ Hand Shower อยู่ทางซ้ายมือ มาพร้อมกับชั้นวางของแบบ Drop Wall ที่ทางโครงการบิลต์อินเอาไว้ให้ เราจึงสามารถวางขวดสบู่ หรือแชมพูต่าง ๆ ได้อย่างสะดวก ส่วนบริเวณฝ้าด้านบนสุดจะซ่อน Rain Shower เอาไว้ โดยแบรนด์สุขภัณฑ์ทั้งหมดนี้จะเป็นของ Hansgrohe เช่นกัน
ทางด้านของอ่างอาบน้ำ ทางโครงการก็เลือกติดตั้งมาให้ทั้งหัวก็อกสำหรับเติมน้ำลงอ่าง และ Hand Shower สำหรับการใช้งานเฉพาะจุด โดยแบรนด์ที่เลือกใช้ก็ยังเป็นของ Hansgrohe อีกเช่นเคย และตรงปลายอ่างจะมีที่จับยึดสำหรับผู้สูงวัย ให้ลุกขึ้นจากอ่างได้สะดวกยิ่งขึ้น
- บริเวณรอบอ่างอาบน้ำด้านในจะมีพื้นที่ให้วางของได้สบาย ไม่ว่าจะใช้วางเทียนหอมกลิ่นอโรมา เพื่อสร้างความผ่อนคลายขณะแช่น้ำร้อนก็นับว่าเหมาะไม่น้อย
ปิดท้ายห้อง 2 Bedroom กันที่ Master Bedroom โดยห้องนี้จะกว้างกว่าห้อง Second Master Bedroom ขึ้นมาอีกประมาณหนึ่ง จึงค่อนข้างเหมาะกับคู่สามีภรรยาที่ต้องการแชร์ห้องร่วมกันอยู่เป็นพิเศษ และเมื่อเปิดเข้ามาในห้องนี้ เราก็จะเจอกับพื้นที่วางเตียงขนาดใหญ่ โดยบริเวณริมห้องทางโครงการ Mulberry Grove Sukhumvit จะออกแบบหน้าต่างให้เข้ามุม คุณจึงสามารถมองวิวภายนอกได้กว้างขวางขึ้นอีกระดับ
พื้นที่รอบเตียงค่อนข้างกว้างมากพอสมควร จนเราสามารถวางโต๊ะตัวเล็กเพิ่มได้อีกสักตัว หรือหากคุณต้องการดีไซน์ห้องให้มีความเป็นมัลติฟังก์ชันมากขึ้น ก็สามารถเพิ่มมุมทำงานแบบใกล้ชิด City View เพื่อสร้างแรงบันดาลใจในการทำงานได้เลย
ส่วนอีกฝั่งของเตียงก็ยังสามารถเลือกวางอาร์มแชร์นุ่ม ๆ เพื่อเปลี่ยนพื้นที่ตรงนี้ให้กลายเป็นมุมนั่งอ่านหนังสือ หรือจะวางเก้าอี้นวดสักตัวก็ดีไม่น้อย
บริเวณปลายเตียงยังคงติดตั้ง Cable TV เอาไว้ให้ ซึ่งเราสามารถบิลต์อินชั้นวางทีวีเพิ่มเติม รวมถึงแขวนทีวีที่ต้องการได้โดยไม่ต้องกังวลเรื่องข้อจำกัดของพื้นที่ บอกเลยว่า… ด้วยขนาดของผนังปลายเตียงที่ให้มานั้น สามารถทำเป็นโรงหนังส่วนตัวขนาดย่อมได้แบบสบาย ๆ เลยล่ะ
และแน่นอนว่าส่วน Walk-in Closet กับห้องน้ำก็ยังกั้นฉากด้วยประตูบานสไลด์ ที่มีช่องระบายอากาศมาให้เหมือนเดิม รับรองว่าทั้งคุณสามีและคุณภรรยาจะได้รับความเป็นส่วนตัวแน่นอน
ภายใน ‘Walk-in Closet’ จะยังเป็นลักษณะของตู้แขวนเสื้อผ้าแบบไร้หน้าบานอีกเช่นเคย โดยจะมีขนาดที่กว้างและใหญ่กว่าห้องนอนแรกเล็กน้อย ส่วนตัวตู้ก็จะออกแบบให้มีพื้นที่จัดเก็บได้เต็มที่ ทำให้คุณสามารถจัดเก็บได้ตั้งแต่ตุ้มหูชิ้นเล็ก ไปจนถึงกระเป๋าเดินทางใบใหญ่เลยทีเดียว
สำหรับห้องน้ำของห้อง Master Bedroom ก็จะมีความพิเศษขึ้นมาด้วยขนาดที่กว้างขวางขึ้นกว่าห้อง Second Master Bedroom พอสมควร โดยอ่างล้างหน้าจะเป็นแบบ His and Her เพื่อให้คุณผู้ชาย และคุณผู้หญิงใช้งานได้พร้อมกันในช่วงเช้าที่เร่งรีบ
ส่วนบานกระจกก็ยังคงมีจุดเด่น ด้วยการซ่อนชั้นวางของไว้ด้านในให้อีกเช่นเคย และเมื่อเปิดหน้าบานทั้งสองออก ก็จะมีปลั๊กไฟมาให้ข้างละจุด สำหรับการใช้งานไดร์เป่าผม และอุปกรณ์ไฟฟ้าอื่น ๆ เรียกว่าทั้งสะดวก ซ่อนจากสายตา และยังกันน้ำกระเด็นได้ในตัวอีกด้วย
- ‘ท็อปอ่างล้างหน้า’ ทางโครงการก็ยังเลือกใช้วัสดุหิน ที่มาพร้อมพื้นที่วางของแบบจุใจ ดูสวยงามเรียบเนียน หรูหรา แถมยังทำความสะอาดได้ง่าย
- ’เคาน์เตอร์อ่าง’ สามารถจัดเก็บของไว้ด้านใต้ได้พอสมควร ไม่ว่าจะใช้เก็บพวกผ้าขนหนูสำหรับเช็ดมือ หรือเก็บอุปกรณ์ทำความสะอาดห้องน้ำก็รองรับได้เพียงพอเลย
- อีกทั้งยังบิลต์อินเคาน์เตอร์ให้สูงเหนือพื้นขึ้นมา เราจึงสามารถทำความสะอาดได้ง่ายอีกด้วย
ติดกับเคาน์เตอร์อ่างล้างหน้าจะเป็นอ่างอาบน้ำติดกระจก ที่ให้คุณนอนแช่น้ำพักผ่อนได้อย่างเป็นส่วนตัว พร้อมชมวิวเมืองได้เต็มที่ ซึ่งจะช่วยคลายความเหนื่อยล้าจากการทำงานให้จางหายไปได้ไม่ยาก
ตรงข้ามกับอ่างล้างหน้าจะแบ่งเป็นโซน Shower และ Toilet เอาไว้ โดยบริเวณด้านหน้าจะกั้นเป็นกระจกใสเทมเปอร์ มีข้อดีคือ คุณผู้ชายและคุณผู้หญิงจะสามารถเข้ามาใช้งานห้องน้ำพร้อมกันได้ โดยไม่ต้องเสียเวลาในตอนเช้าที่เร่งรีบ อีกทั้งยังให้ความเป็นส่วนตัวด้วยการกั้นแบ่งโซนกันอย่างชัดเจน ดังนั้น เมื่อคุณผู้หญิงกำลังอาบน้ำอยู่ คุณผู้ชายก็สามารถทำธุระส่วนตัวที่ส่วนของ Toilet รอไปได้นั่นเอง
- ความพิเศษอีกอย่างหนึ่งของส่วน Shower ก็คือ บาร์ที่นั่งที่เหมาะสำหรับการใช้งานของคนสูงวัย ทำให้ไม่ต้องยืนนาน ๆ ให้ปวดเมื่อย รวมไปถึงการใช้วางเป็นที่วางขา ที่วางอุปกรณ์อาบน้ำ ซึ่งค่อนข้างสะดวก และตอบโจทย์การใช้งานแบบอเนกประสงค์มากทีเดียว
1 Bedroom ขนาด 56.50 ตร.ม.
แปลนห้อง 1 Bedroom ขนาด 56.50 ตร.ม. จะมีลักษณะเป็นสี่เหลี่ยมจตุรัส ภายในแบ่งพื้นที่ใช้งานออกเป็น 2 ส่วนเท่า ๆ กัน โดยแยกออกเป็นฝั่งพื้นที่สำหรับใช้งานอย่าง “ห้องครัวและห้องนั่งเล่น” และพื้นที่พักผ่อนส่วนตัวอย่าง “ห้องนอน” นั่นเอง
เมื่อเปิดประตูเข้ามา ทางขวามือจะเจอกับ “ห้องครัวปิด” ก่อนเป็นลำดับแรก ถัดเข้าไปจึงเป็น “พื้นที่ของห้องนั่งเล่น” และด้านในสุดถึงจะเป็น “พื้นที่ใช้งานอเนกประสงค์” โดยส่วนของห้องนั่งเล่นนั้นจะมีประตูเชื่อมเข้าไปสู่พื้นที่ของห้องนอน “Master Bedroom” ซึ่งภายในจะมี “Walk-in Closet และห้องน้ำ” ในตัว
- โดยห้องนี้จะค่อนข้างเหมาะกับคนที่ต้องการอยู่คนเดียว, คู่รัก ไปจนถึงครอบครัวขนาดเริ่มต้น ที่ไม่ได้ต้องการพื้นที่ใช้สอยขนาดใหญ่เกินไป ขณะเดียวกันก็สามารถดูแลจัดการ ทำความสะอาดได้ง่ายด้วย
แม้จะเป็นห้องที่มาขนาดเล็กลงมาจากห้องแรก แต่บริเวณด้านหน้าห้องก็ยังคงคอนเซ็ปต์ให้เหมือนกันทุกยูนิต โดยห้องนี้จะยังคงมีส่วนของตู้เก็บของ และ Mail Box บริเวณหน้าห้องให้ ส่วนตัวกลอนประตูก็ยังคงเป็น Digital Door Lock จากแบรนด์ Philips เพียงแต่ตัวหน้าบานประตู จะให้มาเฉพาะบานใหญ่ขนาด 90 ซม. ที่ยังคงมีขนาดกว้างพอสำหรับการใช้งานทั่วไป
เมื่อเข้ามาภายในห้องแล้ว... ด้านขวามือจะเป็นส่วนของครัวปิด ก่อนจะถัดไปเป็นพื้นที่ของห้องนั่งเล่น และห้องอเนกประสงค์ตามลำดับ
ส่วนด้านซ้ายมือของประตูจะเป็น ‘ตู้เก็บของ’ ที่มีรูปแบบเดียวกับห้องแรก โดยด้านบนจะใช้ซ่อนงานระบบไฟฟ้าต่าง ๆ ของห้องเอาไว้ ส่วนด้านล่างก็จะเป็นพื้นที่สำหรับวางรองเท้า 3 ชั้น ซึ่งเราสามารถวางได้มากสุด 15 คู่ และค่อนข้างมีขนาดใหญ่กว่าห้องแรกพอสมควร เหมาะสำหรับคนที่ชอบสะสมรองเท้า รับรองว่าต้องถูกใจห้องนี้กันอย่างแน่นอน
นอกจากนี้ ด้านบนตู้รองเท้าก็ยังมีพื้นที่สำหรับวางกุญแจ เครื่องมือสื่อสาร, ปลั๊กไฟ 2 หัว และช่องเสียบ USB มาให้อีก 2 ช่องด้วย จึงค่อนข้างสะดวกสบายในการชาร์จไฟให้อุปกรณ์อิเล็กทรอนิกส์ของคุณทุกชนิด
ถัดมายังห้องครัวที่มีขนาดพอเหมาะต่อการใช้งาน บริเวณด้านหน้ากั้นด้วยประตูกระจกบานสไลด์ 2 ตอน ช่วยป้องกันกลิ่นอาหารไม่ให้ออกมารบกวนพื้นที่ส่วนอื่น ๆ ของห้องได้เป็นอย่างดี และยังป้องกันเพิ่มอีกชั้นด้วยระบบระบายอากาศที่ติดตั้งอยู่ภายใน คุณจึงอุ่นใจได้ว่า… การใช้งานครัวไม่ว่าจะหนักหรือเบา ห้องของโครงการ Mulberry Grove Sukhumvit ก็เอาอยู่ทุกความต้องการ
ด้านในห้องครัวจะมีตู้ซ่อนส่วนของ Laundry และตู้เย็นเอาไว้ ดูเป็นระเบียบเรียบร้อย
- โดยขนาดของ Laundry นี้ก็มีขนาดใหญ่พอให้ใส่เครื่องซักผ้า และเครื่องอบผ้าภายในตู้เดียวกันได้ ส่วนด้านบนก็ยังมีชั้นวางของ สำหรับใช้เก็บอุปกรณ์ซักผ้าได้อีกพอสมควร และมีระบบระบายอากาศ
- ตู้เย็นที่ได้จะเป็นขนาดมาตรฐานจากแบรนด์ LIEBHERR อีกเช่นกัน และด้านบนก็แบ่งสัดส่วนทำเป็นพื้นที่เก็บของมาให้ สามารถใช้เก็บภาชนะ หรือพวกอาหารแห้งเพิ่มเติมได้
เคาน์เตอร์ประกอบอาหารของห้อง Type นี้จะได้เป็นแบบเข้ามุมรูปตัวแอล (L) ที่มีพื้นที่ใช้สอยค่อนข้างกว้างทีเดียว ส่วนวัสดุของท็อปเคาน์เตอร์และ Back Splash จะเป็นหินควอทซ์ที่แข็งแรง ทนต่อรอยขีดข่วน ไม่ว่างานครัวของคุณจะหนักหรือเบา ก็สามารถใช้งานได้อย่างสบายใจ
พอเปิดเคาน์เตอร์ครัวด้านล่างดู ก็จะเจอลิ้นชักที่แบ่งช่องจัดเก็บช้อนส้อมเอาไว้ให้เรียบร้อย ช่วยเพิ่มความเป็นระเบียบในการจัดเก็บครัว ส่วนด้านใต้บริเวณมุมตู้ที่ยากต่อการหยิบและจัดเก็บ ทางโครงการ Mulberry Grove Sukhumvit ก็ได้ออกแบบชั้นวางแบบหมุนเอาไว้ให้ 2 ชั้น สามารถจัดเก็บและหยิบใช้งานได้อย่างสะดวก
สำหรับชุดเครื่องครัวที่โครงการ Mulberry Grove Sukhumvit ให้ จะได้เป็นเตาไฟฟ้า 2 หัว, ฮู้ดดูดอากาศ และ Microwave Ovens จากแบรนด์ Küppersbusch ซึ่งเราสามารถใช้งานได้ทั้งการอุ่น และอบในเครื่องเดียว
- ด้านข้าง Microwave Ovens จะเป็นลิ้นชักสำหรับเก็บขวดเครื่องปรุงต่าง ๆ จึงช่วยให้การจัดเก็บต่าง ๆ ดูเป็นระเบียบ ปลอดภัย หยิบใช้งานได้สะดวกยิ่งขึ้น
- นอกจากนี้ก็ยังมี Exhaust ช่วยระบายอากาศอีกชั้น หมดกังวลเรื่องกลิ่นอาหารรบกวนไปได้เลย
ถัดมาทางฝั่งของเคาน์เตอร์เตรียมอาหาร ก็จะกั้นฉากด้วยกระจกใส ทำให้เราสามารถมองออกไปยังมุมโต๊ะทานข้าว และห้องนั่งเล่นได้อย่างสบายตา คุณจึงสามารถมองเห็นความเคลื่อนไหวต่าง ๆ ภายในห้องได้ตลอดเวลา ดังนั้น หากคุณต้องการรับชมรายการทีวีโปรด ขณะที่เตรียมอาหารไปด้วย ก็เป็นเรื่องที่สามารถทำได้สบาย ๆ เลย
บริเวณด้านใต้ซิงก์ล้างจาน ทางโครงการ Mulberry Grove Sukhumvit ก็เพิ่มรายละเอียดเล็ก ๆ น้อย ๆ ในการจัดเก็บมาให้พร้อม ทั้งถังขยะ และตะแกรงใส่ขวดน้ำยาล้างจาน รับรองว่า… ครัวของคุณจะเป็นระเบียบเรียบร้อย จัดเก็บทุกอย่างได้อย่างเป็นระบบ
ถัดจากครัวออกมาจะมีพื้นที่ขนาดกว้างสำหรับวางโต๊ะทานข้าวขนาด 4-6 ที่นั่งได้พอดี ให้เราสามารถนั่งทานข้าวกันได้แบบพร้อมหน้าพร้อมตา และรับชมรายการโทรทัศน์ไปด้วยได้
เพราะติดกับมุมโต๊ะทานข้าวก็จะเป็นพื้นที่ของห้องนั่งเล่นแล้วนั่นเอง โดยบริเวณนี้จะติดตั้ง Cable TV เอาไว้ให้เราบิลต์อินชั้นวางทีวี และชุดโฮมเธียเตอร์ได้ตามต้องการ ส่วนมุมโซฟาก็สามารถวางได้ตั้งแต่ขนาด 2 ที่นั่ง ไปจนถึงโซฟาขนาดใหญ่แบบเข้ามุม แถมยังเหลือพื้นที่ให้วางโต๊ะกลางดีไซน์เก๋ได้อีกด้วย
ด้านในสุดติดกับห้องนั่งเล่นจะเป็นส่วนของพื้นที่อเนกประสงค์ กั้นด้วยประตูกระจกบานสไลด์แบบ 4 ตอน ซึ่งจะมีขนาดย่อมลงมาจากห้องแรกเล็กน้อย แต่รับรองว่า… พื้นที่นี้จะกลายมาเป็นมุมโปรดของทุกคนได้ไม่ยากเลย
และด้วยลักษณะพื้นที่ที่เป็นแบบหน้ากว้าง ยาวตามขนาดห้อง จึงทำให้เราสามารถแบ่งมุมใช้งานออกเป็น 2 ส่วนซ้าย-ขวาได้สบาย ๆ
- อย่างในห้องตัวอย่าง ก็จะแบ่งมุมซ้ายเป็นโต๊ะทำงานขนาดน่ารัก ที่มาพร้อมกับชั้นวางหนังสือบิลต์อินด้านบน เหมาะกับคนที่ชอบห้องทำงานบรรยากาศสงบ วิวสวย ไว้คอยสร้างสรรค์ไอเดียใหม่ ๆ ภายในห้อง
- ส่วนด้านขวาวางเป็นอาร์มแชร์ตัวนุ่ม พร้อมพื้นที่วางโต๊ะตัวเล็กอีกหนึ่งตัว ที่จะทำให้มุมนี้กลายเป็นพื้นที่จิบชากาแฟ และนั่งดูวิวเมืองเพลิน ๆ หรือจะทำเป็นมุมนั่งอ่านหนังสือแสนสงบของคุณก็ย่อมได้
นอกจากนี้ คุณยังสามารถสร้างสรรค์ ‘พื้นที่อเนกประสงค์’ ให้เป็นได้ทุกอย่าง อย่างที่ใจต้องการ ไม่เว้นแม้แต่การทำสวนเล็ก ๆ ไว้ภายในห้องของคุณเอง
ปิดท้ายด้วยห้อง Master Bedroom ที่เมื่อเดินเข้าไปก็จะพบกับพื้นที่วางเตียงขนาด King Size ที่มาพร้อมพื้นที่รอบเตียงกว้างขวาง ให้คุณสามารถเติมเต็มความต้องการได้มากมายตามไลฟ์สไตล์ที่ชอบ ไม่ว่าจะเป็นชั้นวางหนังสือ, มุมเก้าอี้นวด, โต๊ะทำงาน หรืออาร์มแชร์ตัวเก่ง เพื่อตอบโจทย์ความสุขได้ไม่รู้จบ
- มาพร้อมระบบ ERV จะเติมอากาศบริสุทธิ์จากภายนอกโดยอัตโนมัติ เพื่อควบคุมคุณภาพอากาศภายในห้องให้อยู่ในระดับที่เหมาะสม
ส่วนฝั่งปลายเตียงก็ติดตั้งระบบสำหรับการติดตั้งทีวี และชุดโฮมเธียเตอร์มาให้พร้อม คุณสามารถบิลต์อินชั้นวางทีวีแขวนผนังเพื่อเพิ่มพื้นที่จัดเก็บ และการได้นอนชมภาพยนตร์ดี ๆ สักเรื่องบนเตียงนุ่ม ๆ หลังจากเสร็จสิ้นหน้าที่อันแสนเหนื่อยล้า ก็คงช่วยเติมพลังงาน และความสุขให้กับเราได้มากทีเดียว
ส่วนอีกฝั่งของห้องนอนก็จะเป็นพื้นที่ของ Walk-in Closet และห้องน้ำ ที่กั้นด้วยประตูบานสไลด์ปิดมิดชิด ดูเป็นส่วนตัว
โดยบานประตูจะมาในลักษณะเลื่อนเปิดแบบ 3 ตอน พร้อมด้วยช่องระบายอากาศเพื่อให้ความเย็นจากเครื่องปรับอากาศสามารถลอดผ่านเข้าไปได้ เรียกว่าให้ทั้งความเป็นส่วนตัว และยังคงอุณหภูมิที่ดีเอาไว้เพื่อคุณ
ด้านใน ‘Walk-in Closet’ นั้น ทางโครงการ MULBERRY GROVE Sukhumvit จะให้ตู้เสื้อผ้าไร้หน้าบานขนาดใหญ่ พร้อมพื้นที่จัดเก็บหลากหลาย ทั้งราวแขวนผ้า, ชั้นวางของ, ลิ้นชัก 3 ชั้น และพื้นที่วาง Luggage นอกจากนี้ ยังเว้นพื้นที่สำหรับให้ติดตั้งชุดโต๊ะเครื่องแป้งด้วย ไม่ว่าจะชอบแบบไหนก็สามารถเลือกได้ตามใจเลย
- ใส่ใจด้วยระบบไฟนำทางอัตโนมัติ ที่ส่องพื้นทางเดินไปห้องน้ำตอนกลางคืน เพื่อความปลอดภัย และไม่รบกวนการนอน
ทางด้านของห้องน้ำ เมื่อเปิดเข้าไปภายในจะเป็นห้องแบบหน้ากว้าง พร้อมแบ่งสัดส่วนโซนเปียกและแห้งออกจากกันชัดเจน โดยโซนแห้งจะได้เป็นโถสุขภัณฑ์ TOTO Washlet รุ่นล่าสุด และอ่างล้างหน้าพร้อมกระจกเงา ส่วนด้านในสุดของโซนเปียกจะมีอ่างอาบน้ำ, Rain shower และ Hand Shower ที่กั้นพื้นที่ด้วยกระจกใสเทมเปอร์
สำหรับดีเทลของบานกระจกก็ยังคงซ่อนพื้นที่เก็บของ พร้อมปลั๊กไฟเอาไว้ให้เช่นเคย โดยด้านใต้ของเคาน์เตอร์จะมีพื้นที่ให้จัดเก็บของได้สะดวก ไม่ว่าจะเป็นอุปกรณ์ทำความสะอาด, เครื่องหอม หรือผ้าขนหนูสำหรับเช็ดมือ ก็มีพื้นที่เพียงพอสำหรับทุกความต้องการ
ภายในโซนเปียกจะมีดีเทลที่หน้าบานประตูกระจกเทมเปอร์ ซึ่งติดเป็นราวแขวนผ้าขนหนู ส่วนบริเวณผนังก็ทำการ Drop Wall พร้อมชั้นสำหรับวางของเอาไว้ให้ นอกจากนี้ ตรงด้านในของผนังห้องก็จะมีพื้นที่สำหรับวางของ และส่วนปลายอ่างที่มีราวจับสำหรับช่วยพยุงตัวขึ้นจากน้ำอีกด้วย
- สำหรับ Rain Shower และ Hand Shower รวมไปถึงก็อกน้ำที่อ่างอาบน้ำ ทางโครงการจะยังคงเลือกใช้เป็นของ Hansgrohe
ทุกห้องของโครงการ Mulberry Grove Sukhumvit สามารถควบคุมแสงสว่าง เครื่องปรับอากาศ พร้อมตรวจสอบค่า Indoor Air Quality (IAQ) และการใช้พลังงานในบ้านได้ผ่าน App ในสมาร์ทโฟนส่วนตัวอีกด้วย
Location
โครงการ Mulberry Grove Sukhumvit ตั้งอยู่บนถนนสุขุมวิท ใกล้กับทางพิเศษฉลองรัชเพียง 10 นาที และยังอยู่ติดกับ BTS เอกมัย เพียง 250 เมตรเท่านั้น ซึ่งย่านนี้ถือได้ว่าเป็น “ศูนย์กลางธุรกิจสำคัญของกรุงเทพฯ” รวมถึงเป็นศูนย์กลางของการดำเนินชีวิต และวัฒนธรรม ที่สามารถตอบโจทย์ทุกความต้องการได้อย่างครบถ้วน เพราะรอบ ๆ โครงการ Mulberry Grove Sukhumvit นั้นรายล้อมไปด้วยย่านธุรกิจ, ศูนย์การค้าแหล่งความบันเทิง, โรงพยาบาลชั้นนำ และระบบขนส่งสาธารณะที่สะดวกสบาย เนื่องจากทางโครงการคำนึกถึงการใช้ชีวิตของแต่ละช่วงวัย ให้มีความลงตัวมากที่สุด
“สะดวก” ด้วยระบบขนส่งสาธารณะที่ใกล้ ในระยะเดินถึง
เริ่มต้นเดินทางด้วยระบบขนส่งมวลชนที่ใกล้โครงการ Mulberry Grove Sukhumvit ที่สุด อย่าง BTS เอกมัย ที่จะช่วยให้คุณเดินทางเข้าถึงทุกพื้นที่สำคัญในกรุงเทพฯ ได้อย่างสะดวกสบาย ประหยัดเวลา และปลอดภัย ถ้าหากคุณเร่งรีบ หรืออยากเดินทางไปยังจุดหมายได้อย่างรวดเร็ว การเลือกใช้รถไฟฟ้าก็ยังคงเป็นทางเลือกที่ดีที่สุดสำหรับคนเมือง ที่ต้องการหลีกเลี่ยงสภาพการจราจรที่แน่นหนา
เข้าถึง “ศูนย์การค้า แหล่งความบันเทิงครบวงจร” ได้ในระยะ 250 เมตร เอาใจคนทุก Gens
มาต่อกันติด ๆ กับไลฟ์สไตล์ความบันเทิงชั้นนำอย่างศูนย์การค้า “Gateway Ekamai” ที่อยู่เชื่อมกับ BTS เอกมัย ที่สามารถเดินทางได้สะดวกจากตัวโครงการ ภายในประกอบไปด้วยร้านอาหารชั้นนำหลากหลายสัญชาติ โดยเฉพาะสไตล์ญี่ปุ่น นอกจากนี้ ยังมีชอปร้านค้าสำหรับชอปปิง ทั้งสินค้าแฟชัน, เครื่องใช้ในครัวเรือน รวมไปถึงพื้นที่กิจกรรมสำหรับเด็ก ๆ ที่บริเวณชั้นบนอีกด้วย สำหรับใครที่ชอบเดินเล่น เลือกชมสินค้า หรือกำลังตามหาร้านอาหารอร่อยหลังเลิกงาน บอกเลยว่า… ที่นี่เหมาะจะเป็นปลายทางสุดโปรดที่คุณจะแวะมาบ่อย ๆ แน่นอน
แต่ถ้าใครอยากรับชมความบันเทิงเต็มรูปแบบ ห่างจากโครงการ Mulberry Grove Sukhumvit ประมาณ 600 เมตร ก็จะพบกับ Major Cineplex Sukhumvit ที่มาพร้อม 8 โรงภาพยนตร์ระบบดิจิตอลระดับ World Class สมบูรณ์แบบทั้งภาพและเสียง พร้อมเสิร์ฟคนรักหนังด้วยภาพยนตร์ครบทุกประเภทให้ได้เลือกชมก่อนใคร ทั้งในระบบดิจิตอล และระบบดิจิตอลสามมิติ โดยเราสามารถเดินเชื่อมจากสกายวอล์ค BTS เอกมัยได้ทันที
ถัดจาก Major Cineplex Sukhumvit ไปอีกราว 200 เมตร คุณก็จะได้พบกับ Park Lane คอมมูนิตีมอลล์ที่รวบรวมร้านค้า, ร้านอาหาร และสปาไว้หลากหลาย ซึ่งตัวอาคารจะออกแบบสถาปัตยกรรมในสไตล์ยุโรปสีขาว ดูหรูหรา ภายในมีร้านอาหารชั้นนำหลากหลาย ไม่ว่าจะเป็น Moshi Moshi Yakiniku, Honmono Sushi, Yamagoya Ramen, Salute Bistro Wine Bar นอกจากนี้ ยังมี Play Time สวนสนุกและศูนย์การเรียนรู้ของเด็ก ๆ ไว้ให้พวกเขาได้มาสนุก และเสริมสร้างพัฒนาการไปพร้อมกัน
ส่วนใครที่กำลังตามหาวัตถุดิบนำเข้าจากประเทศญี่ปุ่นชั้นดี แนะนำให้ลองแวะมาที่ Donki Mall Thonglor รับรองไม่ผิดหวัง โดยเราสามารถขับรถจากโครงการ Mulberry Grove Sukhumvit มาได้ง่าย ๆ ภายใน 10 นาที และนอกจากจะมีวัตุดิบชั้นยอดจากประเทศญี่ปุ่นให้เลือกเยอะแล้ว ที่นี่ยังมีขนม, เครื่องสำอาง และสินค้าต่าง ๆ ขาย ชนิดที่เรียกว่าเหมือนกำลังเดินอยู่ในซูเปอร์มาร์เก็ตที่ญี่ปุ่นเลยทีเดียว
“โรงเรียนชั้นนำ” สำหรับคุณหนู ๆ
ต้องบอกเลยว่า... ทำเลของโครงการ Mulberry Grove Sukhumvit ยังรายล้อมไปด้วยโรงเรียนนานาชาติชั้นนำหลากหลาย ที่คุณพ่อคุณแม่สามารถวางใจในคุณภาพการศึกษา และความปลอดภัยของเด็ก ๆ ได้อย่างแน่นอน อีกทั้งยังสามารถดูแลเด็ก ๆ ได้ง่าย เนื่องจากโรงเรียนที่ใกล้ที่สุดอย่าง St Andrews International School นั้น ตั้งอยู่ฝั่งตรงข้ามของโครงการในระยะ 30 เมตรเท่านั้น!
และยังมีอีกกว่า 5 สถานศึกษาชั้นนำ ที่ใกล้คุณในระยะไม่เกิน 3 กิโลเมตร...
- St Andrews International School : 30 เมตร
- Kids’ Academy International School : 800 เมตร
- Bangkok International Preparatory & Secondary School : 1.4 กิโลเมตร
- Wells International School : 1.7 กิโลเมตร
- OISCA International : 2.4 กิโลเมตร
Gens คุณปู่-คุณย่าก็อุ่นใจ ใกล้ “โรงพยาบาลชั้นนำหลายแห่ง” ในระยะ 150 เมตร
สำหรับครอบครัวใหญ่ที่อาศัยอยู่ร่วมกับคุณปู่คุณย่า อาจจะยังกังวลเรื่องระยะทางจากที่พักไปยังโรงพยาบาลที่ใกล้ที่สุด หากเกิดเหตุการณ์ฉุกเฉินขึ้น ซึ่งบอกเลยว่า... หมดห่วงไปได้เลย เพราะโครงการ Mulberry Grove Sukhumvit ตั้งอยู่ใกล้กับ Sukumvit Hospital เพียงแค่ 150 เมตร นอกจากนี้ ก็ยังมี Kluaynamthai Hospital (1.2 กิโลเมตร) และ Samitivej Sukhumvit Hospital (2.6 กิโลเมตร) เป็นทางเลือกดี ๆ ที่อยู่ไม่ไกลจากโครงการมากนัก ให้เลือกใช้บริการอีกด้วย
ถ้าคุณกำลังตามหาซูเปอร์ลักซ์ชัวรี่ เรสซิเดนซ์ ที่รองรับการอยู่อาศัยหลากหลายช่วงวัยอยู่ละก็ โครงการ MULBERRY GROVE Sukhumvit จะเป็นคำตอบหนึ่งที่ดีที่สุดของคุณอย่างแน่นอน เพราะไม่ว่าจะเป็นความใส่ใจในการออกแบบห้อง, บริการเซอร์วิสหลังการขาย ที่ช่วยให้ชีวิตคุณง่ายดายมากยิ่งขึ้น หรือจะเป็นทำเลที่ตอบโจทย์สำหรับทุกวัย ที่แห่งนี้ก็พร้อมจะเติมเต็มทุกความต้องการ ของทุก Gens ได้อย่างแน่นอน
- สำหรับใครที่ต้องการสัมผัสความพิเศษเหนือระดับทั้งหมดนี้ด้วยตาของตัวเอง ก็สามารถเข้าไปที่ Sale Gallery ของโครงการ MULBERRY GROVE Sukhumvit เพื่อเยี่ยมชมห้องตัวอย่างได้ทุกวัน
ลงทะเบียนเพื่อรับสิทธิพิเศษได้ที่ คลิก
มัลเบอร์รี โกรฟ สุขุมวิท
5e2e62306441a413d1cd2dc8
20005239



































































































