[Review] Conner Ratchathewi สถานีต่อไปจาก ‘ราชเทวี’ ถึง ‘อนาคต’
250/3 ซอย เพชรบุรี 7 แขวง ถนนเพชรบุรี เขต ราชเทวี กรุงเทพมหานคร 10400 ประเทศไทย
The Creators HQ

Project Info
CONNER Ratchathewi (คอนเนอร์ ราชเทวี) คอนโดใหม่สไตล์หรูหรา Luxury จากดีเวลลอปเปอร์ The Creators HQ ที่มีเป้าหมายจะใช้ 'พื้นที่' ทุกตารางเมตรให้เกิดประโยชน์สูงสุด ด้วยการออกแบบที่ตอบโจทย์ 'การอยู่อาศัยแห่งอนาคตของคนเมือง' ภายใต้แนวคิด
The Future is just around the corner
โครงการ CONNER Ratchathewi (คอนเนอร์ ราชเทวี) ตั้งอยู่บนทำเลศักยภาพ 'ราชเทวี' ติด MRT ราชเทวี (ในอนาคต) และใกล้ BTS ราชเทวี เพียง 300 เมตร ช่วยเชื่อมต่อทุกการเดินทางหลากหลายรูปแบบ และพร้อมด้วยสิ่งอำนวยความสะดวกครบครัน ในราคาเริ่มต้น 8.7 ล้านบาท*
รายละเอียดโครงการ CONNER Ratchathewi (คอนเนอร์ ราชเทวี)
- ชื่อโครงการ : CONNER Ratchathewi (คอนเนอร์ ราชเทวี)
- ผู้พัฒนา : The Creators HQ
- ที่ตั้งโครงการ : ถนนเพชรบุรี กรุงเทพมหานคร
- พื้นที่ : 1-3-21 ไร่
- ลักษณะอาคาร : High Rise สูง 38 ชั้น
- จำนวนยูนิต : 294 ยูนิต
- แบบห้อง
- 1 Bedroom Loft พื้นที่ใช้สอย 30.0 - 42.0 ตารางเมตร
- 1 Bedroom พื้นที่ใช้สอย 34.9 และ 35.4 ตารางเมตร
- 1 Bedroom Plus พื้นที่ใช้สอย 50.0 ตารางเมตร
- 2 Bedroom พื้นที่ใช้สอย 69.0 - 73.0 ตารางเมตร - จำนวนที่จอดรถ : 232 คัน คิดเป็น 78.9%
- ราคาเริ่มต้น : เฉลี่ย 260,000 บาทต่อตารางเมตร (คิดแบบไม่รวมชั้นลอฟท์) ถ้าเอาชั้นลอฟท์มาเฉลี่ยอยู่ที่ต่ำกว่า 210,000 บาทต่อตารางเมตร
- เว็บไซต์ : www.conner-ratchathewi.com
ทำความรู้จักกับอนาคตที่ CONNER Ratchathewi
Insight
โครงการ CONNER Ratchathewi (คอนเนอร์ ราชเทวี) ตั้งอยู่ในย่าน 'ราชเทวี' ซึ่งอยู่ใกล้กับศูนย์กลางแหล่งไลฟ์สไตล์และอาคารสำนักงานของคนเมืองอย่าง 'สยาม' ตัวโครงการตั้งอยู่บริเวณหัวมุมระหว่างถนนราชเทวีและถนนเพชรบุรี โดยในอนาคตทางเข้าโครงการจะอยู่ติดกับ MRT สถานีราชเทวี (สายสีส้ม) และใกล้กับ BTS ราชเทวีในระยะเดินถึงประมาณ 300 เมตร ทำให้เราสามารถเชื่อมต่อทุกจุดปลาย ทุกรูปแบบการเดินทางได้อย่างง่ายดาย จนอาจเรียกได้ว่า
ในอนาคต...
ทุกความสะดวกสบายจะหมุนอยู่รอบๆ ตัวเรา
CONNER Ratchathewi (คอนเนอร์ ราชเทวี) เป็นอาคาร High Rise สูง 38 ชั้น ออกแบบและใส่ใจในทุกๆ รายละเอียด โดยรูปแบบห้องที่เป็นจุดเด่นของโครงการจะอยู่บริเวณชั้น 4 เรื่อยไปถึงชั้น 21 ซึ่งเป็นห้องพักอาศัยรูปแบบ Loft ทั้งหมด และมีความสูงของแต่ละชั้นอยู่ที่ 4.5 เมตร จึงทำให้ชั้น 4 ของอาคาร CONNER ราชเทวี นั้น มีความสูงเทียบเท่ากับชั้น 7 ของอาคารปกติทั่วไป
ทางเข้า-ออกโครงการ CONNER Ratchathewi (คอนเนอร์ ราชเทวี) ติดกับถนนเพชรบุรี ซึ่งเป็นถนนเส้นหลักที่ทำให้เราสามารถเดินทางไปยังที่ต่างๆ ได้สะดวกสบาย อีกทั้งในอนาคตอันใกล้นี้จะมีรถไฟฟ้าสายสีส้มพาดผ่านตัวโครงการ ยิ่งเพิ่มความสะดวกสบายให้สูงขึ้นเป็นทวีคูณ โดยโครงการจะอยู่ใกล้กับ MRT สถานีราชเทวี นั่นเอง
แม้โครงการจะอยู่ใจกลางเมืองใหญ่ แต่ก็ยังไม่ละเลยพื้นที่สีเขียว จึงออกแบบให้มีต้นไม้น้อยใหญ่แซมอยู่ตลอดทาง ตั้งแต่หน้าโครงการเรื่อยไปจนถึงบริเวณรอบๆ อาคาร
เมื่อเข้าสู่โครงการจะมีทางทอดไปสู่โถงจอดรถ โดยใช้ระบบ 'Automatic Parking : Smart Park Gen3' ในการลำเลียงรถเข้า-ออกอาคารจอดรถ ซึ่งการทำงานของระบบจะใช้ระยะเวลาไม่เกิน 2 นาทีในการลำเลียงแต่ละครั้ง จึงไม่ต้องกังวลว่าจะเสียเวลาช่วงตอนเช้าก่อนไปทำงานมากนัก
อาคารจอดรถที่จะมีทั้งหมด 6 ชั้นไล่มาตั้งแต่ชั้นใต้ดินชั้น 3 จนถึงบริเวณชั้น 3 ของอาคาร โดยอาคารจอดรถสามารถรองรับการจอดได้ทั้งหมด 232 คัน (หรือคิดเป็นประมาณ 78.9%) นอกจากนี้ยังมีที่จอดรถอยู่บริเวณด้านนอกอาคารไว้สำหรับรับรองแขกเพิ่มอีก 15 คันด้วย
ขยับมาที่พื้นที่ส่วนกลางส่วนแรกของโครงการ CONNER Ratchathewi (คอนเนอร์ ราชเทวี) ซึ่งก็คือ 'Lobby Lounge' ที่มีการออกแบบให้เหมือนลอยอยู่ในน้ำ โดยบริเวณนี้จะประกอบด้วย 'Delivery Box' และ 'Storage Room' ที่คอยรองรับเทรนด์การซื้อของออนไลน์ของคนรุ่นใหม่
ที่จุดเด่นจะอยู่ที่ Delivery Box ก็คือ มีตู้สำหรับรักษาอุณหภูมิอาหารที่เราสั่งออนไลน์ไว้ แต่เรายังไม่ได้มารับ ก็จะมี Concierge Service คอยเก็บไว้ให้ เมื่อเรามาถึงก็สามารถนำขึ้นไปทานบนห้องได้เลย แถมยังคุณภาพและรสชาติของอาหารไว้อีกด้วย
ส่วนต่อมาจะถูกเรียกว่า 'Hideaway Courtyerd' สวนส่วนกลางที่ให้ความรู้สึกเหมือนเป็นหลุมหลบภัย พาเราหลบออกจากความวุ่นภายนอก ด้วยการดรอปพื้นลงไปใต้ดินประมาณ 2.10 เมตร พร้อมทั้งปลูกตั้นไม้น้อยใหญ่ไว้รอบๆ สวนให้ความรู้สึกร่มรื่น และมีม่านน้ำตกช่วยถ่ายเทความร้อนและให้ความรู้สึกผ่อนคลาย
บริเวณชั้น 4 และ 5 ของโครงการ CONNER Ratchathewi (คอนเนอร์ ราชเทวี) จะถูกเนรมิตรให้เป็นพื้นที่สุดพิเศษที่เรียกว่า 'Recreation Zone' สามารถตอบโจทย์การใช้ชีวิตของผู้อยู่อาศัยได้ทุกคน
โดยที่ชั้น 4 จะเป็น 'Study Area' ออกแบบพื้นที่ให้เป็น Co-Working Space สำหรับนิสิต-นักศึกษา รวมไปถึงคนทำงาน มีการจัดวางพื้นที่ภายในได้อย่างลงตัว ส่วนใครที่อยากอ่านหนังสือเงียบๆ ต้องการใช้สมาธิอยู่กับการทำงาน ทางโครงการก็มีโต๊ะเดี่ยวพร้อมปลั๊กพ่วงไว้คอยบริการ หรือหากใครอยากได้ห้องประชุมงานหรือติวหนังสือก็สามารถเลือกใช้ห้อง Meeting room ได้เช่นกัน
สำหรับผู้ใหญ่ที่โตขึ้นมาหน่อยคงจะถูกใจ 'The Club' บริเวณชั้น 5 อยู่ไม่น้อย โดยพื้นที่นี้จะถูกออกแบบให้เหมาะกับการใช้พบปะพูดคุย, เจรจาทางธุรกิจ หรือไว้จัดงานปาร์ตี้ต่างๆ
รอบๆ อาคาร CONNER Ratchathewi (คอนเนอร์ ราชเทวี) ถูกประดับตกแต่งด้วย 'Vertical Forest' หรือสวนแนวตั้ง 80 เมตร โดยจะเริ่มตั้งแต่ชั้น 4 ขึ้นไปจนถึงชั้น 21 ซึ่งจะประกอบด้วยต้นไม้จำนวนกว่า 145,000 ต้น และในแต่ละมุมก็จะมีพันธุ์ไม้แตกต่างกันออกไปตามความต้องการแสง
ส่วนการให้น้ำนั้นจะใช้ระบบรดน้ำแบบ 'Smart Irrigation System' ในการดูแลพื้นที่รอบๆ อาคารให้เขียวชอุ่มอยู่ตลอดเวลา โดยระบบรดน้ำอัจฉริยะนี้จะคอยคำนวณว่าต้นไม้แต่ละชนิดควรให้น้ำปริมาณเท่าใดและควรรดน้ำเวลาไหนบ้าง ตามสภาพอากาศในแต่ละวันด้วย
พร้อมทั้งเพิ่มความพิเศษให้เราสามารถออกไปชมวิวรอบๆ โครงการ พร้อมรับความสดชื่นของพื้นที่สีเขียวได้ด้วย 'Outdoor Terrace' ที่อยู่บริเวณชั้น 13, 15 และ 17
ส่วนสุดท้ายของ Facilities จะอยู่ที่ชั้น 19 และชั้น 20 ซึ่งเป็นพื้นที่ของสระว่ายน้ำและฟิตเนส
โดยจะออกแบบให้เราสามารถมองเห็นวิวเมืองกรุงเทพฯ ได้อย่างสุดลูกหูลูกตา ในระหว่างที่เรากำลังออกกำลังกาย สำหรับระบบน้ำที่ใช้กับสระว่ายน้ำและส่วนอื่นๆ ทั้งโครงการจะเป็นระบบ 'Hydrosmart Water System' จากประเทศออสเตรเลีย ที่จะทำความสะอาดน้ำด้วยระบบแม่เหล็ก พร้อมย่อยสลายตะกอนและโมเลกุลในน้ำให้มีขนาดเล็กลง
ข้อดีก็คือการทำให้ลดค่า Maintenance ในส่วนต่างๆของโครงการที่ใช้น้ำ เพราะทำให้การเกิดตะกอน หรือคราบเกิดได้ยากขึ้นนั่นเอง นอกจากนี้ระบบนี้ยังได้รับการรับรองว่าสามารถลดการใช้คลอรีนในการทำความสะอาดได้ถึง 70% ปลอดภัยต่อผิวคุณผู้หญิงหลายๆคนที่แพ้คลอรีนแน่นอน
ภาพจำลองบรรยากาศของโครงการ CONNER Ratchathewi (คอนเนอร์ ราชเทวี)
ชั้นตั้งอยู่บนทำเลราชเทวี ติดถนนเพชรบุรี โดยในอนาคตตัวโครงการจะอยู่ติดกับ MRT สถานีราชเทวี
ที่ให้ความรู้สึกเหมือนลอยอยู่กลางน้ำ พร้อมด้วยพื้นที่รับรองแขกที่ดูหรูหรา
ที่ให้ผู้อยู่อาศัยได้รู้สึกสดชื่นไปกับบรรยากาศสีเขียว ในรูปแบบไม่ซ้ำใคร
ที่จัดวางพื้นที่ให้รองรับการใช้งานของผู้อยู่อาศัยทั้งแบบเดี่ยวและแบบกลุ่ม
พร้อมทั้งให้เราได้ใกล้ชิดธรรมชาติด้วยการตกแต่งพื้นที่สีเขียวด้านใน
และให้เราได้ชมวิวกรุงเทพฯ ในบรรยากาศสดชื่นบน Outdoor Terrace ตรงบริเวณชั้น 13, 15 และ 17
ให้เราได้ออกกำลังกายไปพร้อมๆ กับการชมวิวเมืองกรุงเทพฯ แบบสุดสายตา
แผนผังอาคารของโครงการ CONNER Ratchathewi (คอนเนอร์ ราชเทวี)
CONNER Ratchathewi (คอนเนอร์ ราชเทวี) ตั้งอยู่บนพื้นที่ทรงสี่เหลี่ยมผืนผ้า ออกแบบให้มีต้นไม้รายล้อมตั้งแต่ทางเข้าโครงการมาจนถึงบริเวณรอบๆ โครงการ ให้ความรู้สึกสงบและร่มรื่น โดยบริเวณชั้น Ground จะประกอบไปด้วย Lobby Lounge, Hideaway Courtyard, Waiting Lounge เพื่อให้ผู้พักอาศัยใช้รอขณะกำลังลำเลียงรถออกมาจากที่จอดรถ และลิฟต์โดยสารแบบล็อคชั้น 4 ตัว (โดยมีชั้น 4, 5, 13, 15, 17, 19 และ 20 ที่ไม่ได้ล็อคชั้น เนื่องจากเป็นชั้น Facilities พื้นที่ส่วนกลาง)
ผังอาคารชั้น 4 - 5 เป็นชั้นเริ่มต้นของการพักอาศัย (โดยห้องพักอาศัยของชั้น 4 - 21 จะเป็นแบบ Loft ทั้งหมด) แต่ละชั้นจะมีห้องพักประมาณ 13 ยูนิตต่อชั้น ซึ่งถือว่าให้ความเป็นส่วนตัวมากพอสมควร
และในชั้น 4 - 5 จะมี facilities ส่วนกลางอย่าง Recreation Zone รวมอยู่ด้วย แต่ทางโครงการได้มีการแบ่งสัดส่วนออกจากกันอย่างชัดเจน เพื่อไม่ให้รบกวนความเป็นส่วนตัวของผู้อยู่อาศัย
พอขึ้นมาที่ชั้น 6 - 18 ก็จะเป็นโซนพักอาศัยทั้งหมด มีจำนวนยูนิตแต่ละชั้นลดหลั่นกันไปตั้งแต่ 10 - 14 ยูนิตและจะเห็นว่าแต่ละชั้นจะมีห้องมุมเป็นจำนวนมากเพื่อให้เอื้อต่อการชมวิวเมืองอย่างแท้จริง ซึ่งอย่างที่บอกไปตอนต้นว่าตึกนี้ในแต่ละชั้นจะมีความสูงกว่าคอนโดทั่วไปเพราะตั้งแต่ชั้น 4-21 เป็นห้องพักอาศัยแบบ Loft ที่เพดานสูง 4.5 เมตร ทำให้ชั้นเตี้ยของที่นี่รับวิวเมืองได้ไม่แพ้ชั้นสูงๆเลยทีเดียว
ชั้น 19 เป็นสระว่ายน้ำที่ล้อมรอบอาคารเป็นรูปตัวเจ (J) พร้อมที่นั่งพักผ่อนริมสระให้เราได้นั่งชิลล์ๆ หลังว่ายน้ำเสร็จ เมื่อขยับขึ้นไปที่ชั้น 20 ก็จะเป็นห้องฟิตเนสที่มีอุปกรณ์ครบครัน ให้ผู้อยู่อาศัยได้ออกกำลังกายไปพร้อมๆ กับชมวิวจากสระว่ายน้ำ
ชั้น 21 เป็นชั้นสุดท้ายที่มีห้องพักอาศัยแบบ Loft โดยชั้นนี้จะเน้นให้ความเป็นส่วนตัว โดยจะมีห้องพักอาศัยเพียง 7 ยูนิตเท่านั้น
ตั้งแต่ชั้น 22 ขึ้นไปจนถึงชั้น 37 ทางโครงการจะคละประเภทของห้องพักอาศัย ซึ่งมีตั้งแต่ห้องแบบ 1 Bedroom, 1 Bedroom Plus และ 2 Bedrooms เพื่อตอบโจทย์ความต้องการของคนทุกกลุ่ม โดยจะมีห้องพักอาศัยอยู่เพียง 6 ยูนิตเท่านั้น
และก็มาถึงชั้น 38 ซึ่งเป็นชั้นที่สูงสุดของโครงการ CONNER Ratchathewi (คอนเนอร์ ราชเทวี) เหมาะสำหรับคนที่ชอบความเป็นส่วนตัว เพราะชั้นนี้จะมีห้องแบบ Penthouse อยู่เพียง 3 ยูนิตเท่านั้น
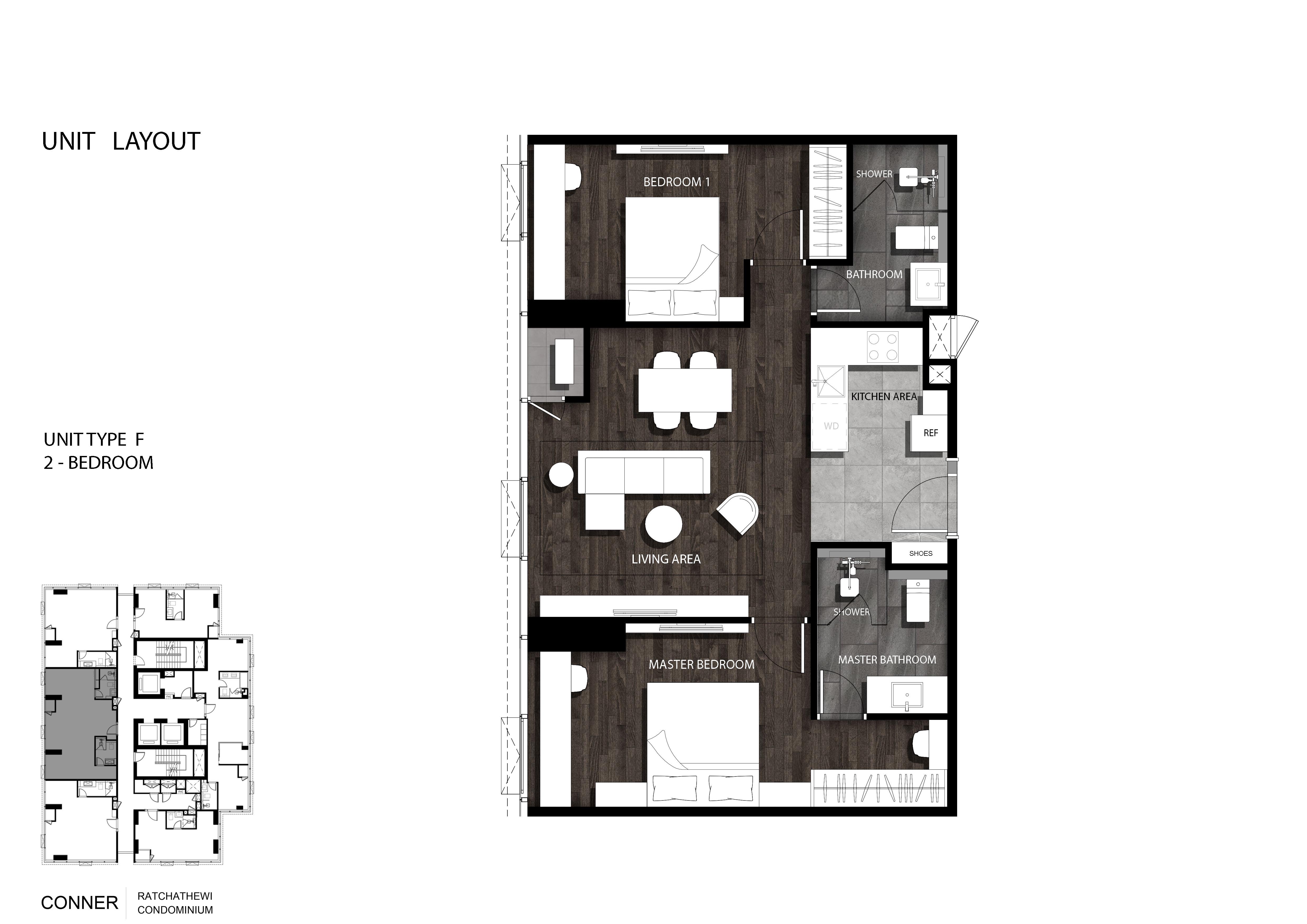
Type F : 2BR 73.00 Sq.m.
สำหรับห้องตัวอย่างแรกที่ Estopolis จะพาไปเยี่ยมชมกันก็คือห้อง Type F แบบ 2 Bedrooms มีพื้นที่ใช้สอยมากถึง 73.00 ตารางเมตร ซึ่งทั้งโครงการจะมีเพียง 16 ยูนิตเท่านั้น ภายในห้องตกแต่งแบบ Fully Fitted พร้อมให้เครื่องใช้ไฟฟ้าบางรายการ
ในส่วนของการจัดวาง Layout ห้องนั้น เมื่อเปิดประตูเข้ามาจะเจอกับ 'ห้องครัว' และ 'ห้องนั่งเล่น' ก่อนเป็นอันดับแรก โดยโถงทางเดินฝั่งซ้ายมือจะนำไปสู่ 'ห้อง Master Bedroom' ที่มีห้องน้ำอยู่ในตัว ส่วนโถงฝั่งขวาจะทอดไปสู่ 'ห้องนอนเล็ก' และ 'ห้องน้ำส่วนกลาง' ที่ใช้รับรองแขกและการใช้งานในเวลาปกติ
ประตูห้องเป็นแบบ Digital Door Lock จาก Yale ที่สามารถปลดล็อคได้ถึง 4 ระบบ ผ่านทางคีย์การ์ด, กุญแจ, ลายนิ้วมือและรหัสผ่าน ให้ความทั้งปลอดภัยและหมดกังวลเรื่องการลืมกุญแจไว้ภายในห้องพักไปเลย ส่วนด้านข้างประตูจะมีกล่อง Mailbox สำหรับใส่จดหมายที่ทางนิติของอาคารนำมาส่งให้เราถึงหน้าประตูห้อง
ถัดลงมาข้างล่างจะเป็นช่องระบายอากาศที่สามารถเปิด-ปิดได้ หากวันไหนอากาศดีๆ ก็สามารถเปิดให้อากาศภายนอกถ่ายเทเข้ามายังในห้องได้โดยไม่จำเป็นต้องเปิดเครื่องปรับอากาศ ถือเป็นการออกแบบที่ช่วยเราประหยัดไฟไปในตัว
เพิ่มความสะดวกให้เราด้วยตู้วางรองเท้าบิลท์อิน (Built-in) บานเปิดกรุกระจกสีชา อยู่ทางซ้ายมือของประตู เหมือนเป็นจุด Check Point แรกก่อนเข้าสู่โซนพักผ่อน ภายในสามารถวางรองเท้าได้สูงสุดถึง 20 คู่ ส่วนข้างๆ กันจะติดตั้งสวิตซ์ไฟสำหรับใช้เปิด-ปิด Welcome Light และไฟ Led ในตู้วางรองเท้า
ทางโครงการ CONNER Ratchathewi (คอนเนอร์ ราชเทวี) ใส่ใจในรายละเอียดทุกๆ ตารางเมตรของห้อง จึงเลือกที่จะติดตั้งสวิตซ์ไฟ, เต้าเสียบปรับ รวมถึงจุดพ่วงสายเคเบิลเป็นสีทองดูหรูหรา ภายใต้ดีไซน์เรียบหรูจากแบรนด์ Schneider พร้อมทั้งติดตั้งเครื่องปรับอากาศแบบฝังฝ้าจาก Daikin หรือเทียบเท่าไว้ให้ โดยภายในห้องจริงจะติดตั้งเครื่องปรับอากาศให้ 3 ตัวด้วยกัน ได้แก่ บริเวณพื้นที่นั่งเล่น, Master Bedroom และห้องนอนเล็ก
เปิดประตูเข้ามาในห้อง เราจะได้เจอกับห้องที่โปร่งสบาย ด้วยความสูง Floor to Ceiling ถึง 3 เมตร พร้อมติดตั้งไฟดาวน์ไลท์ แสงวอร์มไลท์ไว้ทั่วห้อง ทำให้ห้องดูสว่างและอบอุ่นไปในตัว
ต้อนรับการกลับห้องด้วย 'ห้องครัวแบบเปิด' เหมาะสำหรับคุณพ่อบ้านแม่บ้านที่มักซื้อวัตถุดิบการทำอาหารเข้ามา ก็สามารถวางข้าวของต่างๆ ไว้ที่เคาน์เตอร์ครัวได้เลย โดยเคาน์เตอร์ครัวจะเป็นหินอ่อนที่ให้ความสวยงาม หรูหรา และการใช้งานที่คงทน โดยทางโครงการ CONNER Ratchathewi (คอนเนอร์ ราชเทวี) จะออกแบบให้เคาน์เตอร์ครัวด้านล่างมีช่องใส่เครื่องซักผ้าจาก Electrolux ขนาด 7 กิโลกกรัม ซึ่งเป็นส่วนที่ทางโครงการแถมมาให้ทั้งหมด
รองรับการใช้งานครัวอย่างจัดเต็มด้วยเตาไฟฟ้าขนาด 4 เตาจาก Gorenje ให้เราสามารถทำอาหารหลายๆ อย่างพร้อมกันได้ในเวลาเดียว ส่วนผนังบริเวณด้านหลังเคาน์เตอร์ทำเป็น Backsplash หินอ่อนเช่นเดียวกับตัวเคาน์เตอร์ ช่วยป้องกันคราบน้ำมันและเช็ดทำความสะอาดง่าย
หากใครอยากใช้เครื่องใช้ไฟฟ้าอื่นๆ อย่าง กาน้ำร้อนหรือเครื่องปั่นเล็กๆ ก็สามารถทำได้เพราะทางโครงการได้ติดตั้งปลั๊กไฟไว้รองรับการใช้งานอยู่บริเวณมุมเคาน์เตอร์
พร้อมติดตั้งเครื่องดูดควันแบบปล่อยออกนอกอาคาร ระบบสัมผัสจากแบรนด์ Gorenje by Ora Ito ภายใต้ดีไซน์เหนือระดับที่ให้เราสามารถเลือกปรับระดับความแรงของการใช้งานได้ตามต้องการ ช่วยในเรื่องของการระบายกลิ่นและช่วยถ่ายเทอากาศได้เป็นอย่างดี
ด้านล่างเคาน์เตอร์มีเตาไฟฟ้าบิลท์อิน (Built-in) แบบ Combi-Oven จากแบรนด์ Gorenje ที่มาพร้อมฟังก์ชันการใช้งานหลากหลาย เป็นได้ทั้งเตาอบและเตาไมโครเวฟให้เราสนุกไปกับการทำอาหาร ของหวานได้ครบทุกรูปแบบ
ฝั่งตรงข้ามกับเคาน์เตอร์ครัว ทาง CONNER Ratchathewi (คอนเนอร์ ราชเทวี) ก็ได้บิลท์อิน (Built-in) ตู้เย็นของ Gorenje ให้ด้วยเช่นกันเพื่อความสะดวกในการใช้งานของผู้พักอาศัย
บริเวณเคาน์เตอร์ครัวมีการออกแบบเป็นตู้ไม้ใส่ของ บานเปิด-ปิดแบบ Soft close เพื่อรองรับการเก็บข้าวของเครื่องใช้ต่างๆ ภายในครัว พร้อมทั้งบิลท์อิน (Built-in) ชั้นวางจานให้เราสามารถเก็บจานชามไว้ใกล้ๆ มือ สามารถหยิบใช้งานได้สะดวก
เมื่อสนุกกับการทำอาหารกันไปแล้ว ก็มาปิดท้ายด้วยงานเช็ดล้างทำความสะอาดจานชาม โดยทางโครงการได้ติดตั้งซิงค์ล้างจานทรงสี่เหลี่ยมก้นลึกจาก Teka ที่มาพร้อมกับก๊อกน้ำแบบดึงออกได้ ให้เราสามารถทำความสะอาดสิ่งต่างๆ ได้อย่างง่ายดายและสะดวกสบายมากขึ้น
บริเวณพื้นของห้องครัวจะปูด้วย 'กระเบื้องพอร์ซเลน' ของ Cotto Italia เพื่อรองรับกิจกรรมการประกอบอาหารและให้เราสามารถดูแลรักษาความสะอาดพื้นที่ครัวได้ง่าย โดยโซนอื่นๆ ในห้องนั้นจะเปลี่ยนมาปูพื้นด้วย 'Engineering Wood' สีน้ำตาลเข้มเพื่อความสวยงาม
ออกแบบ 'ห้องนั่งเล่น' ให้มีขนาดใหญ่ เพื่อช่วยเติมเต็มช่วงเวลาพักผ่อนให้ผู้พักอาศัยได้อย่างเต็มที่ ด้วยขนาดห้องที่กว้างขวางเป็นพิเศษ เราจึงสามารถวางโซฟาตัวใหญ่ได้สบายๆ และยังเหลือพื้นที่ให้ตกแต่งเป็นมุมทานข้าวสำหรับทุกคนในครอบครัวได้อีกด้วย
ระยะห่างหน้าโซฟากว้างพอที่จะบิลท์อิน (Built-in) ชั้นวางโทรทัศน์พร้อมติดตั้งทีวีขนาดใหญ่ได้โดยไม่ทำให้เสียสุขภาพตา นอกจากนี้ยังมี 'จุดชมวิว' ที่ให้เราได้มองเห็นวิวรอบๆ ผ่านทางหน้าต่างบานใหญ่กรุกระจกแบบตัดแสงสีเขียว ทำให้ห้องดูโปร่งโล่งขึ้นด้วยแสงธรรมชาติในตอนกลางวัน และให้แสงสวยงามในยามค่ำคืน ช่วยสร้างบรรยากาศผ่อนคลายไปได้อีกแบบ
ทางโครงการ CONNER Ratchathewi (คอนเนอร์ ราชเทวี) เลือกที่จะตกแต่งห้องนี้ด้วยเฟอร์นิเจอร์ลอยตัวสีเอิร์ธโทนดูอบอุ่น และเพิ่มความเรียบหรูด้วยการใช้เส้นสายสีทองในการดึงดูดสายตา พร้อมสอดแทรกของแต่งห้องสไตล์ทรอปิคอลเข้าไปเพื่อให้ความรู้สึกเหมือนได้ใกล้ชิดธรรมชาติอยู่เสมอ... สำหรับใครที่ชอบการตกแต่งห้องสไตล์นี้ก็สามารถนำไปปรับใช้กับห้องของตัวเองได้เลย
ให้มื้ออาหารธรรมดาๆ มีความพิเศษมากขึ้นด้วยโต๊ะรับประทานอาหาร ที่เราสามารถเลือกปรับเปลี่ยนได้เองตามความชอบ
ใกล้กันจะมีห้องอเนกประสงค์สำหรับใช้แขวนคอมเพลสเซอร์แอร์แยกไว้เป็นสัดส่วน พร้อมติดตะแกรงกันนกให้เรียบร้อย ซี่งบริเวณนี้จะเหลือพื้นที่มากพอให้เราวางต้นไม้ได้
หากหัวใจของการพักผ่อนอยู่ที่ 'ห้องนอน' แล้วละก็…เราคงปฏิเสธไม่ได้ว่าห้องนอนที่แยกสัดส่วนมาเป็นอย่างดีจะช่วยตอบโจทย์การพักผ่อนได้สมบูรณ์แบบกว่า อย่างที่โครงการ CONNER Ratchathewi (คอนเนอร์ ราชเทวี) ได้จัดวางให้ 'ห้อง Master Bedroom' และ 'ห้องนอนเล็ก' อยู่ถัดไปจากโถงทางเดินทั้งสองด้าน เพื่อมอบความเป็นส่วนตัวให้แก่ผู้พักอาศัย
'ห้องนอน' ถือเป็นห้องที่ทางโครงการให้ความสำคัญไม่แพ้ส่วนอื่นๆ เพราะทุกคนล้วนแต่ใช้เวลาในแต่ละวันอยู่ที่ห้องนี้มากที่สุด ทาง CONNER Ratchathewi (คอนเนอร์ ราชเทวี) จึงจัดสรรพื้นที่ให้ห้องนอนของทุกยูนิตนั้น กว้างมากพอที่จะวางเตียงขนาดคิงไซส์ได้โดยที่ยังเหลือ space รอบเตียงให้เราสามารถออกแบบพื้นที่ให้พอดีกับการใช้ชีวิตของตัวเองได้
โดยช่องรับแสงภายในห้องนอนจะเป็นหน้าต่างแบบบานฟิกซ์ผสมบานกระทุ้ง ให้เราสามารถเปิดออกไปรับลม ระบายอากาศได้
ตัวอย่างเช่น 'ห้อง Master Bedroom' ของ Type นี้ ที่แม้จะวางเตียงคิงไซส์ไปแล้วก็ยังมีมุมทั้งสองด้านให้วางโต๊ะหัวเตียงเล็กๆ พร้อมวางโคมไฟสวยๆ ให้เราได้หยิบหนังสือเล่มโปรดมาอ่านก่อนเข้านอนได้ หรือสาวๆ คนไหนจะเปลี่ยนมุมนี้ให้เป็นโต๊ะเครื่องแป้งเก๋ๆ แทนก็ทำได้เช่นกัน
ใกล้กันยังเหลือพื้นที่ให้จัดเป็นมุมโต๊ะทำงาน หรือใครอยากเปลี่ยนเป็นโซนเอกเขนกไว้นอนเล่นชมวิวด้านนอกก็ได้
อีกฝั่งของห้องนอนจะบิลท์อิน (Built-in) เป็นตู้เสื้อผ้าบานเปิด-ปิด กรุด้วยกระจกสีชาดูสวยงาม ภายในตู้แยกสัดส่วนการใช้งานชัดเจน ประกอบด้วยราวแขวนและลิ้นชักสำหรับใส่ของ พร้อมทั้งติดตั้งไฟ led ไว้ภายในเพื่อให้ง่ายต่อการใช้งานในเวลากลางคืน
นอกจากนี้ภายในห้อง Master Bedroom ยังมี 'ห้องน้ำ' ในตัว ผู้อยู่อาศัยจึงไม่จำเป็นต้องเดินเข้า-ออกเพื่อไปใช้ห้องน้ำข้างนอก และป้องกันการเดินสะดุดธรณีประตูในตอนกลางคืนด้วยการออกแบบให้พื้นห้องเสมอกัน แต่เราก็ไม่ต้องกังวลเรื่องน้ำไหลย้อนออกมาเปื้อนพื้นห้องนอน เพราะทางโครงการได้ทำ Slope ลาดลงไปที่ห้องน้ำไว้ให้เล็กน้อย
พื้นและผนังห้องน้ำปูด้วยกระเบื้องพอร์ซเลนสีเทาเรียบหรู โดยทางโครงการ CONNER Ratchathewi (คอนเนอร์ ราชเทวี) ได้จัดการแยกส่วนเปียกและส่วนแห้งไว้ให้เรียบร้อย พร้อมติดตั้งโถสุขภัณฑ์ไว้ใกล้ๆ กับอ่างล้างหน้า และมีราวแขวนผ้าให้อยู่ข้างกันในส่วนแห้ง
ห้องน้ำเป็นมาตรฐานเดียวกันทั้งโครงการ คือ จะได้สุขภัณฑ์จาก COTTO รุ่น TUNIO ที่ติดตั้งมาให้ครบชุด โดยชักโครกจะเป็นแบบ Dual Dlush ที่ช่วยในการประหยัดน้ำ พร้อมมีระบบทำความสะอาดอัตโนมัติแบบ Washlet ส่วนด้านข้างมีที่ใส่กระดาษทิชชูและแปรงขัดห้องน้ำเอาไว้ให้เรียบร้อย
อ่างล้างหน้าจากแบรนด์ TOTO ติดตั้งแบบฝังลงบนเคาน์เตอร์ลายหินอ่อน ซึ่งมีขนาดพื้นที่อ่างกว้างพอสมควร โดยก็อกน้ำจะมีระบบทำน้ำร้อน-น้ำเย็นให้ ส่วนด้านข้างมีพื้นที่ให้เราวางของใช้ อย่าง สบู่ล้างมือหรือแปรงสีฟัน พร้อมกับติดตั้งเต้าเสียบปลั๊กสำหรับใช้งานเครื่องใช้ไฟฟ้าในห้องน้ำ
เหนืออ่างล้างหน้าเป็นกระจกบานใหญ่ที่ถูกออกแบบบิลท์อิน (ฺBuilt-in) ให้เป็นตู้เก็บของในตัว พร้อมติดไฟ led แบบซ่อนไว้ใต้ตู้ เพื่อเพิ่มความสว่างและความสวยงามขณะใช้งาน ส่วนด้านล่างอ่างล้างหน้าออกแบบเป็นชั้นเก็บของ ที่แยกฟังก์ชันเอาไว้ให้เราวางผ้าเช็ดตัว, ผ้าเช็ดหน้าและผลิตภัณฑ์ทำความสะอาดอื่นๆ เพิ่มเติมได้
โซนเปียกติดตั้ง Shower box มาให้ และมีการดรอปพื้นลงเพื่อป้องกันน้ำไหลย้อนออกมา
ภายในติดตั้งฝักบัวยี่ห้อ Hansgrohe ดีไซน์โมเดิร์น โดยมีฟังก์ชันการใช้งานให้เลือกทั้งแบบ Hand Shower และ Rain Shower พร้อมติดตั้งระบบปรับอุณหภูมิมาให้ในตัว เพื่อเพิ่มความสุขให้กับการอาบน้ำในแต่ละครั้ง
ขยับมาต่อที่ 'ห้องนอนเล็ก' ที่น่าจะถูกใจครอบครัวใหญ่ที่มีเด็กๆ อาศัยอยู่ด้วยไม่น้อย โดยห้องนอนนี้จะอยู่อีกฝั่งของโถงทางเดิน ส่วนพื้นที่ห้องก็ไม่ได้มีขนาดเล็กเหมือนชื่อเพราะภายในกว้างขวางพอให้วางเตียงขนาดคิงไซต์ได้สบายๆ แถมยังเหลือพื้นที่ด้านข้างให้ใช้สอยได้อีกด้วย
บริเวณปลายเตียงเหลือพื้นที่ให้เดินได้สะดวก สามารถติดตั้งโทรทัศน์แบบแขวนผนังเพิ่มได้ ซึ่งทางโครงการ CONNER Ratchathewi (คอนเนอร์ ราชเทวี) จะเตรียมปลั๊กและระบบสายเคเบิลมาให้เรียบร้อยพร้อมใช้งาน
ตกแต่งห้องเพื่อช่วยส่งเสริมพัฒนาการของน้องๆ หนูๆ โดยครอบครัวไหนที่มีน้องหลายคน แนะนำให้ปรับมาใช้เป็นเตียง 2 ชั้นแทนได้ เพราะด้วยความสูงพื้นจรดเพดานถึง 3 เมตร จึงไม่ทำให้รู้สึกอึดอัดแต่อย่างใด ซึ่งนอกจากจะช่วยประหยัดพื้นที่ห้องแล้ว ยังมีพื้นที่เหลือให้เราใช้สอยเพิ่มมากขึ้นอีกด้วย
ใกล้ๆ กันจะบิลท์อิน (Built-in) ตู้เสื้อผ้าไว้ให้ 2 ตู้ โดยตู้นี้จะมีรูปแบบและดีไซน์เหมือนกับห้องก่อนหน้า
ถัดออกมาจากห้องนอนเล็กก็คือ 'ห้องน้ำกลาง' ที่ใช้สำหรับรับรองแขกและการใช้งานในเวลาปกติ โดยห้องน้ำนี้จะมีลักษณะเหมือนห้องน้ำที่อยู่ใน Master Bedroom ที่มีการแบ่งโซนแห้งและเปียกออกจากกันชัดเจน พร้อมติดตั้งชุดสุขภัณฑ์จากแบรนด์คุณภาพมาให้ครบชุดเช่นกัน
Type B3 Loft : 1BR 34.90 Sq.m.
สำหรับใครที่ตามหาห้องขนาดพอดี มีพื้นที่เหมาะกับการอยู่คนเดียวหรือเป็นคู่ น่าซื้อไว้เพื่ออยู่อาศัยเองหรือจะซื้อลงทุนก็ดี ขอแนะนำให้มาชมห้อง 1 Bedroom ที่ออกแบบมาในสไตล์ Loft พร้อมด้วยพื้นที่ใช้สอย 34.90 ตารางเมตร
ด้วยการออกแบบในสไตล์ Loft ที่ให้ความสูง Floor to ceiling ถึง 4.5 เมตร ทางโครงการ CONNER Ratchathewi (คอนเนอร์ ราชเทวี) จึงจัดสรร space ส่วนหนึ่งแบ่งเป็นชั้นลอย ตกแต่งเป็น ‘ห้องนอน’ ไว้ให้เราพักผ่อนได้อย่างเป็นส่วนตัว ทำให้บริเวณชั้นล่างมีพื้นที่มากพอให้เราออกแบบเป็นโซนต่างๆ ได้ตามรูปแบบการใช้ชีวิต โดยทางโครงการก็ได้แบ่งสัดส่วนห้องน้ำและห้องครัวไว้คร่าวๆ บ้างแล้ว
ยกระดับการใช้ชีวิต
เปลี่ยนมุมมองบนพื้นที่ 34.9 ตารางเมตร
ประตูห้องยังคงใช้ระบบ Digital Door Lock เหมือนกับห้องก่อนหน้า เพียงแค่เราแง้มประตูเข้ามาก็สัมผัสได้ถึงความโปร่งโล่งสบายของห้องกันแล้ว
ตู้เก็บของพร้อมตู้ใส่รองเท้าแบบบิลท์อิน (Built-in) หน้าบานกรุด้วยกระจกสีชา ตั้งอยู่ทางขวาของประตูห้อง ภายในติดตั้งไฟ led เพื่อความสะดวกในการใช้สอย ทำให้เราสามารถใช้เป็นตู้โชว์ของสะสมหรือของแต่งห้องได้ และเหนือขึ้นไปจะเป็นตู้ไม้ขนาดใหญ่ที่ให้เราเก็บของต่างๆ ได้อย่างเป็นระเบียบ
ส่วนที่เราเปิดประตูเข้ามาเจอเป็นอันดับแรกจะเป็นพื้นที่ของ 'ห้องนั่งเล่น' ที่ทางโครงการ CONNER Ratchathewi (คอนเนอร์ ราชเทวี) ยังคงตกแต่งมาในสไตล์ Modern Loft สร้างความอบอุ่นให้ห้องด้วยสีแบบเอิร์ธโทน ซึ่งตัดกับพื้นไม้ Engineering Wood ได้อย่างลงตัว
โดยพื้นที่ตรงกลางจะมี space ที่กว้างขวางให้เราสามารถวางโซฟารูปตัวแอล (L) ตัวใหญได้สบายๆ ใช้นอนดูหนังฟังเพลงหรืออ่านหนังสือชิลล์ๆ ในวันหยุด ส่วนวันไหนนึกอยากชวนเพื่อนมาสังสรรค์ก็จัดปาร์ตี้กันตรงนี้ได้เลย
ตรงข้ามโซฟามีที่ว่างด้านหน้าเกือบ 2 เมตร ทำให้เราสามารถติดตั้งโทรทัศน์ขนาด 65 นิ้วได้โดยไม่เสียสุขภาพตา และอาจหาโต๊ะรับแขกเล็กๆ มาตกแต่งเพิ่มเพื่อใช้วางแก้วกาแฟ หรือจานอาหารว่างให้เราเพลิดเพลินไปกับการดูโทรทัศน์ได้ตลอดวัน
สำหรับใครที่อยากได้มุมทำงานส่วนตัว ก็สามารถใช้พื้นที่ตรงนี้วางโต๊ะทำงานขนาดใหญ่ได้ แถมยังมีพื้นที่เหลือพอให้เราบิลท์อินชั้นวางของ วางของตกแต่งสวยๆ ได้อีกด้วย
ส่วนใครที่อยากใช้เวลาช่วงเย็นๆ หลังเลิกงานกลับมาทานมื้อค่ำไปกับคนพิเศษ แนะนำให้วางโต๊ะอาหารไว้บริเวณนี้แทนก็ได้เช่นกัน
ใกล้ๆ กันจะมีห้องอเนกประสงค์สำหรับแขวนคอมเพลสเซอร์แอร์ที่ทางโครงการติดตั้งให้มา 2 ตัว และเรายังใช้เปิดรับแสงธรรมชาติในตอนกลางวันผ่านหน้าต่างแบบบานฟิกซ์ผสมบานกระทุ้งที่มีความสูงถึง 4 เมตรได้
บริเวณใต้บันไดขึ้นสู่ชั้น Loft จะถูกออกแบบให้เป็น 'ห้องเก็บของ' ภายในติดตั้งระบบท่อน้ำไว้ให้เรียบร้อย ซึ่งเราอาจใช้บริเวณนี้เป็นที่วางเครื่องซักผ้า โดยเครื่องซักผ้าที่ทางโครงการ CONNER Ratchathewi (คอนเนอร์ ราชเทวี) นำมาตั้งโชว์นั้นจะเป็นของยี่ห้อ Electrolux ขนาด 7 กิโลกรัม แต่สำหรับห้องรูปแบบนี้ไม่ได้มีเครื่องซักผ้าแถมมาด้วย
เอาใจคนรักการทำอาหารด้วย 'ห้องครัวแบบปิด' ที่ถูกกั้นแยกจากส่วนอื่นๆ ของห้องด้วยพาร์ติชั่นบานเลื่อนกระจก 2 ตอน ช่วยป้องกันกลิ่นและควันจากการทำอาหารไม่ให้ออกมารบกวนส่วนอื่นๆ ในห้องได้เป็นอย่างดี
ภายในห้องครัวจะถูกออกแบบพื้นที่ให้ง่ายต่อการทำความสะอาด ด้วยการเลือกใช้กระเบื้องพอร์ซเลนสีขาวในการปูพื้นตัดกับผนังหินอ่อนสีดำ พร้อมบิลท์อินเคาน์เตอร์ไม้สีโอวัลติน ท็อปครัวด้วยหินอ่อนสีเทา
ใกล้ๆ กันมีการบิลท์อินเครื่องใช้ไฟฟ้าอย่างไมโครเวฟกับตู้เย็น และให้เราส่งต่อความสุขผ่านทางเมนูอาหารแสนอร่อยด้วยเตาไฟฟ้า 2 หัวที่มาพร้อมกับเครื่องดูดควันแบบปล่อยออกนอกอาคารจากแบรนด์ Gorenje
เหนือเคาน์เตอร์ครัวจะเป็นชั้นลอยแบบบิลท์อิน (Built in) สำหรับเก็บวัตถุดิบต่างๆ พร้อมแบ่งฟังก์ชันเป็นช่องเก็บของอีกหลายช่อง
สำหรับตำแหน่งห้องน้ำจะอยู่ใกล้กับห้องครัว และมีการจัดสรรพื้นที่รวมถึงฟังก์ชันการใช้งานต่างๆ ให้เหมือนกับห้องก่อนหน้า เป็นมาตรฐานเดียวกันทั้งโครงการ
โซนต่อมาที่เราจะพาไปสำรวจคือชั้น 'Loft' ที่อยู่ถัดขึ้นไปจากบันไดไม้ดีไซน์โมเดิร์น แบบปิดทึบเพื่อป้องกันการสะดุดล้ม
เพราะทางโครงการ CONNER ราชเทวี ไม่อยากให้ชั้น Loft ถูกใช้เป็นห้องนอนอย่างเดียว จึงได้ออกแบบให้ชั้นนี้มีพื้นที่กว้างมากพอที่จะวางเตียงขนาดคิงไซส์ และยังเหลือที่ว่างรอบเตียงอีกประมาณ 60 เซนติเมตร ให้เราดีไซน์พื้นที่ตรงนี้ได้ตามใจ สอดรับกับกิจกรรมที่ชอบ
ส่วนคนที่อยากได้ห้องสมุดอยู่ในห้องนอน ก็อาจเปลี่ยนมาใช้เตียงขนาดควีนไซส์แทน แล้วค่อยวางตู้หนังสือพร้อมโต๊ะทำงานไว้ตรงพื้นที่ด้านข้างก็ได้
เมื่อมองออกไปอีกฝั่งห้องจะเจอกับตู้เสื้อผ้าบิลท์อิน (Built-in) แบบ Walk-in closet เอาใจเหล่าแฟชั่นนิสต้าที่รักในการแต่งตัวด้วยจำนวนตู้เสื้อผ้าจัดเต็มให้ถึง 3 ตู้ เป็นรูปตัว U
กั้นกระจกใสที่มีความสูงเต็มบาน ให้เรามั่นใจได้ว่าบริเวณชั้น Loft นี้จะมีความปลอดภัย ขณะเดียวกันเมื่อนำมารวมกับความสูง 2 เมตรก็ไม่ทำให้อึดอัดสายตา หรือใครอยากได้ความเป็นส่วนตัวก็อาจหามู่ลี่หรือฟิล์มขุ่นมาติดกระจกเพิ่มได้
หากมองลงมาจะเห็นพื้นที่ของชั้นล่างในมุมมองที่แตกต่างไปจากที่เราเคยสัมผัส ด้วย space ที่ลงตัว ทำให้เราพื้นที่ใช้สอยอย่างอิสระ สามารถทำกิจกรรมต่างๆ ได้ตามต้องการ
เกี่ยวกับ 'ราชเทวี'
CONNER Ratchathewi (คอนเนอร์ ราชเทวี) ตั้งอยู่บนทำเล 'ราชเทวี' ที่เต็มไปด้วยศักยภาพทุกตารางนิ้ว ปกติแล้วไลฟ์สไตล์ของคนราชเทวีมักตื่นขึ้นมาเจอกับวิวเมืองหลาง มองออกไปเห็นแนวรถไฟฟ้าพาดผ่านตึกสูงที่ตั้งอยู่ท่ามกลางวิถีชีวิตแบบดั้งเดิมที่ยังหลงเหลือให้เห็นอยู่ เป็นรูปแบบการใช้ชีวิตที่ผสมความเป็นสังคมเมืองกับวิถีชุมชนได้อย่างลงตัว ช่วยสร้างเสน่ห์ให้ 'ราชเทวี...กลายเป็นทำเลในฝัน ที่ใครหลายคนเลือกจะวางอนาคตไว้'
ราชเทวี...ที่สุดของการเชื่อมต่อ
ที่สุดของการเดินทางอันแสนสะดวกสบาย
จากสถิติพบว่ากรุงเทพฯ ได้ครองแชมป์รถติดเป็นอันดับ 1 ของเอเชีย จึงไม่แปลกใจเลย...หากการย่นระยะเวลาบนท้องถนนจะเป็นปัจจัยแรกๆ ที่ทำให้อนาคตชีวิตคนเมืองสบายขึ้น และ 'ราชเทวี' ก็ห่างจากใจกลางกรุงเทพฯ อย่าง 'แยกปทุมวัน' เพียง 600 เมตร นับเป็นระยะทางที่ไม่ว่าจะเดินทางด้วยรูปแบบใดก็สะดวกสบายไปหมด!!
การเดินทางด้วยขนส่งสาธารณะ...ใกล้รถไฟฟ้า
ขอเริ่มจากการเดินทางด้วยระบบขนส่งยอดฮิตอย่าง รถไฟฟ้า BTS บนพื้นที่แห่งนี้มี 'สถานีราชเทวี' เป็นสถานีหลักที่พาดผ่านอยู่บนพื้นที่แห่งนี้ ทำให้การเดินทางไปยังพื้นที่ข้างเคียงเป็นไปอย่างสะดวกสบาย ใช้เวลาเพียงไม่กี่นาทีก็สามารถมุ่งหน้าไปยัง สยาม, ชิดลม, เพลินจิต สถานีแห่งความสุข ให้ไปใช้ชีวิตสนุกๆ กันได้อย่างเต็มที่
สำหรับคนที่มีเป้าหมายจะเดินทางไปต่างประเทศหรือต่างจังหวัด หากย้อนกลับไปยัง สถานีพญาไท ก็จะมีเส้นทางให้เราเชื่อมต่อกับ 'แอร์พอร์ตลิ้งก์' มุ่งหน้าไปยังท่าอากาศยานสุวรรณภูมิ
หรือจะขยับไปอีกหนึ่งสถานีจะเป็น สถานีอนุสาวรีย์ชัยสมรภูมิ ศูนย์กลางของการคมนาคมที่มีรถโดยสารประจำทางคอยให้บริการหลากหลายสาย
การเดินทางด้วยขนส่งสาธารณะ...ติดรถไฟใต้ดิน
ยิ่งไปกว่านั้น...ในอนาคตจะมี MRT สายสีส้ม (ช่วงตลิ่งชัน-ศูนย์วัฒนธรรม) เข้ามาย่านนี้ด้วย โดย 'สถานีราชเทวี' จะอยู่บริเวณซอยเพชรบุรี 3-7 ก่อนขึ้นสะพานข้ามแยกราชเทวี (สะพานหัวช้าง) ทำให้รูปแบบการเดินทางของราชเทวีตอบโจทย์ชีวิตคนเมือง คนทำงานยิ่งขึ้น
และสำหรับใครที่ต้องการใช้บริการเรือโดยสาร ที่นี่ก็มีท่าเรือสะพานหัวช้างอยู่ไม่ไกล รองรับการเดินทางด้วยเรือด่วนจากคลองแสนแสบและคลองมหานาค เหมาะสำหรับคนทำงานและนักท่องที่อยากนั่งเรือเล่นดูสักครั้ง
การเดินทางด้วยรถส่วนตัว...ใกล้ใจกลางเมือง
สำหรับการเดินทางด้วยรถส่วนตัวนั้น ก็นับว่าสะดวกสบายไม่แพ้กัน มีถนนหลัก 2 เส้นตัดผ่านบริเวณแยกราชเทวี ได้แก่ 'ถนนพญาไท' และ 'ถนนเพชรบุรี' ทำให้เราสามารถเดินทางไปไหนก็ได้ตามใจ หรือหากต้องการประหยัดเวลา อาจหนีไปใช้ทางด่วนศรีรัช บนถนนพระราม 6 ได้
ตลอดเส้นพญาไทจะเป็นที่ตั้งของอาคารสูงเสียส่วนใหญ่ และหากเรามุ่งตรงไปเรื่อยๆ จะผ่าน 'แยกปทุมวัน' เข้าสู่สยามได้โดยตรง หรือหากขับย้อนไปอีกนิดก็จะกับอนุสาวรีย์ชัยสมรภูมิแล้ว
ส่วน 'ถนนเพชรบุรี' จะเป็นแหล่งที่พักอาศัยเสียมากกกว่า หากมุ่งหน้าจากถนนเส้นนี้ไปทางทิศตะวันออกก็จะเข้าสู่ 'แยกประตูน้ำ' แหล่งรวมสินค้าแฟชั่นในราคาสบายกระเป๋า ที่มีภาพของทั้งชาวไทยและชาวต่างชาติต่างมาจับจ่ายใช้สอย เลือกซื้อเสื้อผ้าของฝากกันอย่างคึกคัก
และหากมุ่งหน้าไปอีกทางจะพบกับ 'แยกอุรุพงษ์' ซึ่งจะใกล้กับทางขึ้น-ลงทางด่วน 2 เส้นทางด้วยกัน ได้แก่
- ทางขึ้น-ลงทางด่วนยมราช
- ขึ้นทางด่วนไปบางนา-ดาวคะนอง
ปักหมุด 'ราชเทวี' อยู่ที่นี่เที่ยวที่ไหนได้บ้าง ?
ปฏิเสธไม่ได้เลยว่า...สถานที่รอบๆ โครงการก็เป็นปัจจัยสำคัญที่ช่วยประกอบการตัดสินใจที่จะวางอนาคตลงบนทำเล 'ราชเทวี' ทำเลที่แวดล้อมไปด้วยแหล่งไลฟ์สไตล์ ตอบรับทุกแง่ทุกมุมของอนาคตคนเมือง
ปักหมุด ราชเทวี ที่แห่งนี้มีอะไรมากกว่าที่คุณคิด
มาจากที่ไหน...ก็สนุกได้ทุกมุม สุขได้ทุกตารางเมตรที่ 'ราชเทวี'

'ราชเทวี' พร้อมต้อนรับนักท่องเที่ยวทั้งไทยและเทศด้วยโฮสเทล (Hostel) ที่เปิดให้บริการกันมากมาย ทำให้ราชเทวีเป็นเหมือนบ้านพักหลังแรกของนักท่องเที่ยว ก่อนเดินทางเข้าสู่กรุงเทพฯ
เที่ยวสนุกทุกตารางที่ 'ราชเทวี'
ขณะนั่ง BTS ผ่านสถานีราชเทวี หากลองมองลงมาจะเห็นว่าพื้นที่แห่งนี้เต็มไปด้วยอาคารสวยๆ หลากหลายสไตล์ ตามตรอกซอกซอยแทรกล้วนถูกแต่งแต้มด้วยภาพกราฟฟิตี้ที่มีให้เห็นเยอะแยะไปหมด โดยเฉพาะ 'สวนเฉลิมหล้า' สวนสาธารณะกราฟฟิตี้ที่คนรุ่นใหม่รู้จักกันดี
สวนสาธารณะสุดชิคเอาใจคนชอบถ่ายรูปแนวสตีทอาร์ท (Street Art) ถึงพื้นที่ของสวนจะไม่มากนักแต่เต็มด้วยมุมสวยๆ มากมาย ให้เราตามถ่ายรูปได้ตลอดแนวกำแพงลวดลายกราฟฟิกสะดุดตา เมื่อเข้ามาแล้วจะต้องได้ภาพไปอวดลงโซเชียลแน่นอน
การเดินทางมา 'สวนเฉลิมหล้า' ก็แสนสะดวกสบาย แค่ลงจาก BTS ราชเทวีประตู 2 เดินต่อมาเพียง 200 เมตร ก็สามารถเช็คอินที่สวนนี้ได้ทุกวันตั้งแต่เวลา 05.30 - 19.00 น.
อิ่มอร่อยทุกซอกซอยที่ 'ราชเทวี'

ไหนๆ ก็แวะมาพัก มาเที่ยวที่ราชเทวีกันขนาดนี้แล้ว...จะขาดที่กินได้อย่างไร? เพราะตลอดสองฝั่งทางนั้นเต็มไปด้วยร้านอาหา และคาเฟ่หลากสไตล์ให้เราได้เข้าไปฝากท้องกันได้ไม่ซ้ำ เรียกว่า 7 วัน 7 ร้านกันไปเลย
และร้านที่ Estopolis จะพาไปชิมกันวันนี้คือ 'B-STORY Cafe' คาเฟ่สวยๆ ที่รวมร้านอาหารกับคาเฟ่เข้าไว้ในร้านเดียว ตัวร้านตกแต่งสไตล์ยุโรปเหมือนหลุดเข้าไปอยู่ในโลกแห่งเทพนิยายตั้งแต่แรกเห็น ให้ความรู้สึกสดชื่นและสบายตาด้วยต้นไม้สีเขียวที่เรือนกระจก
สำหรับเมนูอาหารแสนอร่อยนี้ก็มีให้เลือกจัดเต็มกันทั้งคาวหวาน วันไหนเหนื่อยจากความวุ่นวายภายนอก ก็แวะมาเติมพลังที่ B-STORY Cafe ได้ ร้านตั้งอยู่ใกล้กับ BTS ราชเทวีทางออก 4 เปิดให้บริการตั้งแต่เวลา 10.00 - 23.00 น.
ช็อปปิ้งง่ายทุกสไตล์ที่ 'ราชเทวี'
เปลี่ยนบรรยากาศไปเอาใจสาย Street Style กันที่ 'ตลาดสดซอยเพชรบุรี 10' บรรยากาศคึกคักเต็มด้วยผู้คนและสินค้าไม่ว่าจะเป็นของสดหรืออาหารสำเร็จให้ได้เดินเลือกยาวไปตลอด 2 ฝั่งทาง วันไหนอยากซื้อของกลับห้องไปทำอาหารเองในราคาสบายกระเป๋า... รับรองว่าที่นี่แล้วจะไม่ผิดหวัง
ตระเวนตามแนวรถไฟฟ้า...ไม่ใกลไม่ใกล้ 'ราชเทวี'
ใช่ว่าความสุขหยุดลงเพียงเท่านี้ เพราะไม่ไกลไม่ใกล้จาก 'ราชเทวี' ก็มีแหล่งไลฟ์สไตล์ ที่ท่องเที่ยวอีกมากไว้เอาใจคนรุ่นใหม่ ไม่ว่าคุณจะเป็นคนสายไหน ทั้งสายฮิปเตอร์, สายช็อปหรือสายชิลล์ ก็เลือกเที่ยว เลือกจุดหมายได้ใจตาม
Next Station at 'สยาม'
เมื่อพูดถึงแหล่งไลฟ์สไตล์ใจกลางเมืองที่เต็มไปด้วยเสน่ห์แล้วล่ะก็... 'สยาม' ก็ยังเป็นย่านช็อปปิ้งขนาดใหญ่ ที่มีทั้งห้างสรรพสินค้า, คอมมูนิตี้ มอลล์, ร้านเสื้อผ้า, ร้านอาหารและอีกหลากหลายที่ครองใจทั้งวัยรุ่นและคนทำงานมาทุกยุคทุกสมัย
แลนด์มาร์คแห่งแรกที่ไม่พูดถึงคงไม่ได้ กับ สยามพารากอน (SIAM PARAGON) ศูนย์การค้าลักซ์ชัวรี่ที่มีร้านค้าแฟชั่นชั้นนำจากแบรนด์ดังๆ ทั้งในและออกประเทศ และยังมีโซน Paragon Gourmet Market ให้เลือกช็อปอาหารและเครื่องดื่มนำเข้าจากนานาประเทศด้วย
ใกล้ๆ กันเป็น สยาม เซ็นเตอร์ (SIAM CENTER) ศูนย์การค้าอีกแห่งที่ตอบโจทย์นักช็อปทั้งวัยรุ่นและวัยทำงานด้วยสินค้าหลากหลาย ภายในถูกแบ่งออกเป็น 4 ชั้น โดยแต่ละชั้นจะแตกต่างกันออกไป ได้แก่ Fashion Avenue, Fashion Galleria, Fashion Visionary และ Food Factory
มาต่อที่ สยาม วัน (SIAM ONE) คอมมูนิตี้ มอลล์กลางสยามสแควร์ที่วัยรุ่นส่วนใหญ่ต้องรู้จัก เพราะภายในได้รวบรวมเอาร้านอาหาร, คาเฟ่ และเสื้อผ้าของใช้ไว้มากมาย แม้แต่ตามตรอกซอกซอยก็ยังมีสินค้าชิคๆ ไม่ซ้ำใครให้ได้เลือกซื้อกันอย่างจุใจ
และไม่เพียงแค่ที่กล่าวมาเท่านั้น 'สยาม' ยังมีห้างสรรพสินค้าอีกมากมาย ไม่ว่าจะเป็น SIAM DISCOVERY, Digital Gateway ถัดไปเป็น MBK ที่พูดได้เต็มปากว่า...ที่นี่เป็นเหมือนสวรรค์ของนักช็อปจริงๆ
นอกจากสยามจะเติมเต็มไลฟ์สไตล์ให้กับเราแล้ว 'สยาม' ยังสามารถเติมออกซิเจนให้เราได้อีกด้วย เพราะที่นี่มี 'Park @ Siam' ให้เราได้ออกกำลังกายและักผ่อนหย่อนใจไปท่ามกลางพื้นที่สีเขียวใจกลางเมือง
Next Station at 'ชิดลม' : เดินชิลล์ๆ ตามสกายวอร์ค
หากเดินเรียบตามสกายวอร์คจากสถานีสยามมาเรื่อยๆ ก็จะพบกับ 'ชิดลม' อีกหนึ่งสถานีที่มีความหลากหลายทางไลฟ์สไตล์ เป็นที่ถูกอกถูกใจของชาวไทยและชาวต่างชาติ หรือหากจะนั่งรถไฟฟ้ามาก็ลงที่สถานีชิดลมได้ และยังคงเอาใจนักช็อปกันอย่างต่อเนื่องด้วยศูนย์การค้าอีก 2 แห่งในย่านชิดลม
ที่แรกคือ 'Central World' ศูนย์การค้าขนาดใหญ่ที่รวมสินค้าและร้านอาหารไว้มากมาย ยิ่งช่วงไหนที่ทางห้างจัดกิจกรรมหรืออีเว้นท์ที่ลานด้านหน้าจะยิ่งคึกคักเป็นพิเศษ โดยเฉพาะช่วงสิ้นปีที่เซ็นทรัล เวิลด์จะกลายเป็นแลนด์มาร์ค จุดถ่ายรูปยอดฮิตประจำเทศกาลปีใหม่
ไม่ไกลกันนักจะมี 'เกษรวิลเลจ' ห้างสรรพสินค้าที่กลับมาโดดเด่นอีกครั้งหลังปรับปรุงรูปแบบใหม่ จากศูนย์การค้าระดับบนให้กลายเป็นห้างไลฟ์สไตล์วิลเลจสำหรับคนเมือง เหมาะที่จะจูงมือคนในครอบครัวมาเดินเล่น
You can change to 'สนามกีฬาแห่งชาติ' : ผ่อนคลายด้วยงานศิลป์
สถานีถัดไปที่เราจะพามาในวันนี้ คือ สถานีสนามกีฬาแห่งชาติ ซึ่งครั้งนี้เราจะชวนกันมาผ่อนคลายท่ามกลางบรรยากาศดีๆ ที่อยู่ไม่ไกลจากราชเทวี แต่จะมีที่ไหนกันบ้างนั้น ต้องตามไปดูเลย!
หันมาเสพงานศิลป์กันที่ 'หอศิลปวัฒนธรรมแห่งกรุงเทพมหานคร' ศูนย์แสดงศิลปะแห่งใหญ่ใจกลางกรุงเทพฯ ภายในจะจัดแสดงผลงานศิลปะจากหลากหลายศิลปิน ที่ถูกผลัดเปลี่ยนหมุนเวียนกันมา เรียกได้ว่าเป็นสถานที่ปล่อยของสำหรับคนมีของเลยทีเดียว
สำหรับผู้เยี่ยมชมงานศิลป์แบบเราๆ ก็สามารถเดินชื่นชมงานกันได้เต็มอิ่มถึง 9 ชั้น พร้อมมีโซนห้องสมุด, โซนพักผ่อนให้ได้ถ่ายรูปสวยๆ กันอีกหลายมุม และหากใครอยากลองมา หอศิลปวัฒนธรรมแห่งกรุงเทพมหานคร บ้าง ที่นี่ก็เปิดให้บริการทุกวัน (ยกเว้นวันจันทร์) ตั้งแต่เวลา 10.00 - 21.00 น.
ใกล้ๆ กันเป็น 'พิพิธภัณฑ์บ้านจิม ทอมป์สัน' ตั้งอยู่บริเวณริมคลองแสนแสบ ภายในเปิดแสดงศิลปะการทอผ้าแบบดั้งเดิม มีบ้านไม้ทรงไทยตั้งโดดเด่นเป็นเอกลักษณ์ ตกแต่งด้วยสีเขียวของต้นไม้สลับกับยสีสันสดใสจากดอกบัว เป็นอีกหนึ่งสถานที่ที่ควรค่ากับการเข้าชม ใครสนใจสัมผัสมาบรรยากาศของความเป็นไทยได้ทุกวันตั้งแต่เวลา 09.00 - 18.00 น.
ใครที่มองหาสถานที่ออกกำลังกายอยู่ก็ไม่ต้องผิดหวัง พราะไม่ไกลจากราชเทวีมี 'สนามกีฬาแห่งชาติ' เปิดให้บริการ รับรองว่าการเล่นกีฬาของคุณจะไม่น่าเบื่ออีกต่อไป
ปักหมุด 'ราชเทวี' อยู่ที่นี่เที่ยวไหนได้บ้าง
สถานที่ๆ Estopolis พาไปชมกันวันนี้ เป็นเพียงส่วนหนึ่งของราชเทวีเท่านั้น แต่บนทำเลแห่งนี้ยังมีอีกหลายที่ๆ รอให้คุณเข้าไปสัมผัสและวางอนาคตผ่านมุมมองของตัวคุณเอง
Analysis
จุดเด่นของคอนโด CONNER Ratchathewi (คอนเนอร์ ราชเทวี)
- ตั้งอยู่บนทำเลศักยภาพในอนาคต 'ราชเทวี' เป็นจุดเชื่อมระหว่างความเจริญใจกลางเมืองและวิถีดั้งเดิมได้อย่างลงตัว จึงเหมาะกับการพักอาศัยของคนเมือง
- โครงการอยู่ใกล้กับจุด Interchange ระหว่าง MRT สายสีส้มและ BTS สายสีเขียว
- MRT สายสีส้ม : สถานีราชเทวี 0 เมตร
- BTS สายสีเชียว : สถานีราชเทวี 300 เมตร - การเดินทางสะดวกสบาย เพราะตั้งอยู่ติดกับถนนเพชรบุรี และใกล้ถนนพญาไท สามารถเชื่อมต่อกับย่านสำคัญได้หลากหลาย ทั้งยังใกล้กับจุดขึ้นทางด่วนบนพระราม 6 จึงสะดวกต่อผู้ใช้รถส่วนตัวเช่นกัน
- ราชเทวีและย่านใกล้เคียงถือเป็นทำเลที่รายล้อมไปด้วยความอุดมสมบูรณ์ มีแหล่งช็อปปิ้งและไลฟ์สไตล์แห่งใหม่ของกรุงเทพฯ อย่าง Stadium one, The Market by Platinum, Pathum wananurak park, King Place market, Smile square เป็นต้น
- Design concept คือการ Blending ธรรมชาติเข้ามาไว้ในทุกส่วนของตัวโครงการ ทำให้ผู้พักอาศัยสัมผัสธรรมชาติได้ตลอดเวลา โดยจุดเด่นโครงการ CONNER Ratchathewi (คอนเนอร์ ราชเทวี) ได้พัฒนามาจาก Pain-point ของคนเมือง ทั้งเรื่องมลภาวะทางอากาศ, พฤติกรรม Online delivery ของคนเมืองในปัจจุบัน, พฤติกรรมการทำงานในที่ที่ flexible เป็นที่มาของ co-working space ในปัจจุบัน รวมไปถึงเรื่องระบบน้ำที่ใช้ในคอนโด
- ดีเวลลอปเปอร์ผู้พัฒนาโครงการ CONNER Ratchathewi (คอนเนอร์ ราชเทวี) ได้รับรางวัลจาก Asia Pacific Property Award 2018-2019 ด้าน Architecture จึงมีความน่าเชื่อ เหมาะที่จะซื้อหามาไว้ในครอบครอง
- ราคาเฉลี่ยอยู่ที่ 210,000 บาทต่อตารางเมตร (หรือ 260,000 บาทต่อตารางเมตร แบบไม่รวมชั้นลอฟท์) ซึ่งถือเป็นราคาที่หาได้ยากบนทำเล 'ราชเทวี' ที่เต็มไปด้วยศักยภาพและโอกาสในการพัฒนาต่อไปได้อีกในอนาคต!
หากใครอยากสัมผัสทุกตารางเมตรของความครบครันที่เริ่มจาก 'มุมหนึ่งของราชเทวี' ก็สามารถเข้าไปจับจอง 'อนาคต' กันได้ที่ CONNER Ratchathewi (คอนเนอร์ ราชเทวี)
ลงทะเบียนรับสิทธิพิเศษก่อนใคร คลิ๊ก!!!
โปรโมชั่นสุดพิเศษ !!!
จองห้องภายในวันที่ 18 - 19 สิงหาคมนี้
ฟรีเฟอร์นิเจอร์แพคเกจในราคาเริ่มต้น 8.7 ล้าน*
คอนเนอร์ ราชเทวี
5b10b3352da7a7a1d3f99221
conner-ratchathewi-คอนเนอร์-ราชเทวี















































































































