[Review] [Review] LESTO CONDO สุขุมวิท 113-สถานีสำโรง สนุกกับการใช้ชีวิต พร้อมทุกการเดินทาง เพลินทุกช่วงเวลา
ซอยสุขุมวิท 113 ต.สำโรงเหนือ อ.เมืองสมุทรปราการ จ.สมุทรปราการ
Built Land (บิลท์ แลนด์)

Review Info :
เมื่อมีสถานีรถไฟฟ้า สิ่งที่ตามมาก็คือความเจริญในย่านนั้น เช่นเดียวกับ “สำโรง” ที่กลายเป็นทำเลที่น่าสนใจของผู้อยู่อาศัยและผู้พัฒนาอสังหาริมทรัพย์ เพราะเป็นพื้นที่ที่สามารถพัฒนาศักยภาพได้อีกมาก อีกทั้งยังเป็นจุดเชื่อมต่อของการใช้ชีวิตในทุกมิติ
สำหรับใครที่กำลังมองหาคอนโดดีๆ บนทำเลสำโรง วันนี้ Estopolis ขอพาทุกคนมาทำความรู้จักกับโลเคชั่นนี้ พร้อมนำเสนอไลฟ์สไตล์การใช้ชีวิต ผ่านโครงการ LESTO CONDO สุขุมวิท 113-สถานีสำโรง คอนโดทำเลเยี่ยมในราคาแสนคุ้มค่า ใกล้ BTS สำโรง มาพร้อมโปรโมชั่นสุดคุ้ม ฟรีเฟอร์นิเจอร์ 10 รายการ, แอร์, เครื่องทำน้ำอุ่น, วอลล์เปเปอร์ พิเศษ! จองวันนี้รับเพิ่ม ฟรีค่าใช้จ่ายวันโอน* หรือ เลือกรับเครื่องใช้ไฟฟ้าครบ พร้อมรับส่วนลดพิเศษเพิ่มอีก 100,000 บาท (เป็นไปตามเงื่อนไขที่โครงการกำหนด)
รายละเอียดโครงการ LESTO CONDO สุขุมวิท 113-สถานีสำโรง
ชื่อโครงการ : LESTO CONDO SUKHUMVIT 113-SAMRONG STATION (เลสโต คอนโด สุขุมวิท 113-สถานีสำโรง)
เจ้าของโครงการ : BUILT LAND PLC (บริษัท บิลท์ แลนด์ จำกัด (มหาชน) )
ที่ตั้งโครงการ : เลขที่ 945 ซอยสุขุมวิท 113 ถ.สุขุมวิท ต.สำโรงเหนือ อ.สมุทรปราการ จ.สมุทรปราการ
เนื้อที่โครงการ : 7-0-44 ไร่
ประเภทโครงการ : คอนโด Low rise สูง 8 ชั้น จำนวน 4 อาคาร และอาคารสันทนาการ 3 ชั้น 1 อาคาร
จำนวนยูนิต : 786 ยูนิต และห้องชุดเพื่อการพาณิชย์ 5 ยูนิต
ยูนิตต่อชั้นสูงสุด : 24 ยูนิต
แบบห้อง :
- 1 ห้องนอน TYPE A ขนาดประมาณ 26.50 ตารางเมตร
- 1 ห้องนอน TYPE B ขนาดประมาณ 36.00 ตารางเมตร
- 1 ห้องนอน TYPE C ขนาดประมาณ 38.00 ตารางเมตร
สิ่งอำนวยความสะดวก :
- ร้านค้าเพื่อการพาณิชย์
- LOBBY
- LIBRARY ROOM
- FITNESS ROOM
- SAUNA ROOM แยกชายหญิง
- SWIMMING POOL ระบบเกลือ
- YOGA & YOGA FLY STUDIO
- CO-WORKING SPACE
- สวนส่วนกลางรอบอาคารกว่า 3,000 ตร.ม.
- ลิฟต์โดยสารอาคารพก็อาศัยละ 2 ตัว ต่ออาคาร
- ที่จอดรถ 35% รวมจอดซ้อนคัน
- ระบบรักษาความปลอดภัย
- ระบบกล้องวงจรปิด CCTV ทางเข้า-ออกโครงการ, ในลิฟต์โดยสาร, โถงหน้าลิฟต์ทุกชั้น
- พนักงานรักษาความปลอดภัย 24 ชั่วโมง
- ระบบเข้า-ออกอาคาร KEY CARD ACCESS ล็อกชั้น
การตกแต่ง : Fully Furnished
เฟอร์นิเจอร์ที่ได้รับ :
- เฟอร์นิเจอร์แบรนด์ออกแบบให้เพฉาะโครงการ LESTO CONDO เท่านั้น Design By Index
- เครื่องปรับอากาศ 1 ตัว
- เครื่องทำน้ำอุ่น 1 ตัว
- ชุดสุขภัณฑ์แบรนด์ American Standard
- ชุดครัว ซิงค์ล้างจาน แบรนด์ HAFELE
- วอลล์เปเปอร์
ราคาเริ่มต้น : 1.45 ล้านบาท
เว็บไซต์โครงการ : www.builtland.co.th/lestocondo
สอบถามข้อมูลเพิ่มเติม : โทร. 1783 กด 3
Insight :
โครงการ LESTO CONDO สุขุมวิท 113-สถานีสำโรง ตั้งอยู่ในซอยสุขุมวิท 113 หรือซอยวัดด่าน ใกล้รถไฟฟ้า BTS สถานีสำโรง ได้รับการออกแบบอย่างพิถีพิถัน โดยเน้นความต่อเนื่องสอดคล้องกับธรรมชาติ ด้วยสวนส่วนกลางกว่า 3,000 ตารางเมตร ทอดตัวยาวตลอดแนวอาคาร ให้ทุกยูนิตใกล้ชิด ธรรมชาติ สัมผัสความร่มรื่นเปิดรับอากาศบริสุทธิ์ในทุกๆ วัน
สัมผัสไลฟ์สไตล์ใหม่บนถนนสุขุมวิท 113
ใกล้รถไฟฟ้าสายสีเขียวและเป็นจุดเชื่อมต่อสายสีเหลือง
โดดเด่นด้วยสถาปัตยกรรมโมเดิร์นทรอปิคอล ที่มีการใช้วัสดุหรือลวดลายของธรรมชาติ อย่างการใช้ไม้มาเป็นองค์ประกอบหลักในการตกแต่ง และการใช้เหล็ก Wrought Iron ที่ตัดเป็นลวดลายเสมือนปีกของผีเสื้อ นอกจากจะสะท้อนถึงความทันสมัยแล้ว ยังมีความแข็งแรงทนทานอีกด้วย
มาพร้อมกับคอนเซ็ปต์ "Feel...The Rhythm of Nature" ให้คุณได้สัมผัสกับจังหวะอันงดงามของธรรมชาติที่อยู่รอบตัว ควบคู่กับไลฟ์สไตล์ เพลย์-พร้อม-เพลิน ที่ตอบโจทย์การใช้ชีวิตในทุกมิติ
- PLAY สนุกไปกับการใช้ชีวิตในทุกพื้นที่ของโครงการด้วยสิ่งอำนวยความสะดวกระดับ 5 ดาว
- PROMPT พร้อมทุกการเดินทาง ไม่ว่าจะเป็นรถไฟฟ้า 2 สาย ทางด่วน 2 เส้น และถนนหลักรายล้อมตัวโครงการ
- PLOEN เพลินไปกับการอยู่อาศัยที่แสนสบาย เพลินไปกับสาธารณูปโภคที่พรั่งพร้อม
Master Plan โครงการ LESTO CONDO สุขุมวิท 113-สถานีสำโรง
หน้าโครงการอยู่ติดกับซอยสุขุมวิท 113 ทางเข้าอยู่ตรงด้านขวาของ Clubhouse ซึ่งโซนด้านหน้าของ Clubhouse ในส่วนที่เป็น Sales Gallery จะถูกแทนที่ด้วยร้าน 7-11 ที่ให้บริการ 24 ชั่วโมง เพื่ออำนวยความสะดวกของลูกบ้านอย่างเต็มที่ อีกทั้งยังถูกล้อมรอบด้วยสวนขนาดใหญ่กว่า 3000 ตารางเมตร พร้อมต้นไม้ที่กระจายไปทั่วทุกจุด โดยแบ่งเป็น 4 อาคาร ดังนี้
อาคาร A มี Core Lift 1 จุด ลิฟต์โดยสาร 2 ตัว และบันได้หนีไฟ 2 จุด ห้องพักแบ่งออกเป็น 2 ขนาด
- 1 ห้องนอน ขนาด 26.5 ตารางเมตร จำนวน 24 ยูนิต/ชั้น
- 1 ห้องนอน ขนาด 36 และ 38 ตารางเมตร จำนวน 11 ยูนิต/ชั้น (บนชั้น 8 ของอาคาร A เท่านั้น)
โดยชั้น 1 จะเป็นพื้นที่จอดรถทั้งหมด ชั้น 2-7 จะเป็นห้องพักขนาด 26.5 ตารางเมตร ส่วนชั้น 8 จะเป็นห้องพักขนาด 36-38 ตารางเมตร ซึ่งเป็นยูนิตพิเศษไม่มีในอาคารอื่นๆ และถูกขายหมดเป็นที่เรียบร้อย
อาคาร B และ D มี Core Lift 1 จุด ลิฟต์โดยสาร 2 ตัว และบันได้หนีไฟ 3 จุด บริเวณชั้น 1 แบ่งเป็นที่จอดรถอีกครึ่งหนึ่ง และพื้นที่พักอาศัยครึ่งหนึ่ง โดยห้องพักทั้งหมดจะเป็นขนาด 26.5 ตารางเมตร
อาคาร C มี Core Lift 1 จุด ลิฟต์โดยสาร 2 ตัว และบันไดหนีไฟ 2 จุด บริเวณชั้น 1 โซนด้านหน้าจะเป็นห้องสมุด และโซนด้านหลังจะเป็นสวนพักผ่อนขนาดใหญ่ โดยส่วนของห้องพักจะเป็นขนาด 26.5 ตารางเมตรทั้งหมด
อาคาร Clubhouse ขนาด 3 ชั้น ตั้งอยู่ด้านหน้าทางเข้าโครงการ ประกอบด้วย สระว่ายน้ำระบบเกลือ, Sauna แบบแยกชายหญิง, ห้อง Fitness, ห้อง Yoga Fly, Play Room, Mini Home theater และ Co-Working Space
โดยทางโครงการจัดการเดินรถทางเดียวรอบอาคารเพื่อการเดินรถที่ดีขึ้น และสามารถจอดซ้อนคันโดยไม่กีดขวางการจราจร ที่สำคัญยังมีการแยกส่วนของ PUBLIC ZONE ซึ่งเป็นส่วนของผู้มาติดต่อ และ PRIVATE ZONE ส่วนของผู้อยู่อาศัย ออกจากกันอย่างชัดเจน เพื่อความเป็นส่วนตัวและความปลอดภัยแก่ลูกบ้าน
เพลินไปกับการอยู่อาศัยที่แสนสบาย
ด้วยการวางผังตึกที่ชาญฉลาด
จุดเด่นที่สำคัญอีกข้อเลยก็คือจัดวางโครงการตามแนวทิศเหนือ-ใต้เพื่อลดความร้อนโดยตรงจากแสงแดดตอนเช้าและตอนบ่าย ทำให้ภายในโครงการไม่ร้อนอบอ้าว
ยังจัดวางโครงการเป็นช่องลมตามหลักภูมิศาสตร์ของประเทศลมฤดูร้อน หรือลมมรสุมตะวันตกเฉียงใต้ ลมฤดูหนาวหรือลมมรสุมตะวันออกเฉียงเหนือ ทำให้โครงการมีอากาศถ่ายเทที่ดี ทุกห้องพักสามารถรับลมเย็น ท่ามกลางวิวของพื้นที่สีเขียวโดยรอบ
สนุกไปกับการใช้ชีวิตด้วยพื้นที่ส่วนกลางขนาดใหญ่
อาคาร Clubhouse 3 ชั้น มาพร้อม Facilities ระดับ 5 ดาว เฉพาะลูกบ้านเท่านั้น ครอบคลุมทุกกิจกรรมและเข้าถึงลูกบ้านได้อย่างเต็มที่ ไม่ว่าจะเป็น Lesto Shop, Infinity edge swimming pool, Mini Home Theater, Game room, Fitness Center, Yoga Studio, Co-Working Space, Library พร้อมพื้นที่สีเขียวรอบโครงการกว่า 3,000 ตารางเมตร
บริเวณชั้น 1 โซนด้านหน้าโครงการจะมี 7-11 ขนาดใหญ่ เพื่อให้ลูกบ้านได้เข้าถึงความสะดวกสบายในการจับจ่ายใช้สอย และนอกจากนี้พื้นที่ชั้น 1 ก็ยังแบ่งเป็นส่วนของนิติบุคคล ล็อบบี้สำหรับผู้มาติดต่อ ซึ่งจะแยกออกจากส่วนของตึกพักอาศัยอย่างชัดเจน
ขึ้นมาชั้น 2 จะพบกับความสนุกในพื้นที่ส่วนตัวอย่าง Mini Home Theater ห้องชมภาพยนตร์สุดเอ็กซ์คลูซีพ
ถัดมาจะเป็น Game room เอาใจคนรุ่นใหม่ที่ชอบความสนุกด้วยกิจกรรมชิคๆ อย่างเกมพูล
ซึ่งถัดจากห้อง Game room จะเป็นพื้นที่นั่งพักผ่อนชิลๆ จะนั่งทำงานหรือนั่งจิบกาแฟยามเช้าก็ไม่เลว
Infinity Edge Swimming Pool สระว่ายน้ำขนาดใหญ่ โดยมุมนี้จะรับแสงแดดเฉพาะช่วงเช้าเท่านั้น จึงไม่เป็นปัญหาสำหรับผู้ที่ต้องการมาว่ายน้ำในช่วงบ่าย นอกจากจะเย็นสบายแล้ว ยังสามารถมองเห็นอาคารพักอาศัยทั้ง 4 ตลอดจนเห็นพื้นที่สีเขียวรอบโครงการ ทำให้การพักผ่อนจุดนี้เหมือนได้เข้าใกล้ธรรมชาติอย่างแท้จริง
บริเวณรอบสระมีที่นั่งพักผ่อน เตียงนอนริมสระ จุดชำระร่างกาย พร้อมมีห่วงยางและเสื้อชูชีพ
ห้องน้ำแยกชายหญิง โดยประกอบด้วยห้องน้ำ 5 ห้อง ห้องอาบน้ำ 1 ห้อง และห้องซาวน่าอีก 1 ห้อง
ห้องอาบน้ำ พร้อมตู้ล็อกเกอร์ มอบความเป็นส่วนตัวให้กับลูกบ้าน
ห้องซาวน่า สามารถใช้บริการได้ 2-3 คน ต่อครั้ง ซึ่งแยกความเป็นส่วนตัวระหว่างชายหญิง
เมื่อขึ้นมาชั้น 3 จะพบกับ Yoga Fly & Yoga Studio ขนาดใหญ่ สามารถรองรับกิจกรรมของลูกบ้านได้อย่างเต็มที่ พร้อมตกแต่งด้วยกระจกรอบด้าน ช่วยให้มองเห็นสรีระขนาดออกกำลังกายได้อย่างชัดเจน
ถัดมาอีกห้องจะเป็น Co-working Space มีพื้นที่กว้างขวาง สามารถเก็บเสียงได้ดี เหมาะสำหรับผู้ที่หามุมเงียบๆ ไว้นั่งทำงาน
อีกด้านหนึ่งของชั้น 3 จะเป็นห้องฟิตเนสขนาดใหญ่ ที่พร้อมด้วยเครื่องเล่นครบครัน รองรับการใช้บริการของลูกบ้านได้อย่างเต็มที่ ตกแต่งด้วยเสากระจก ช่วยให้ภายในห้องดูมีมิติ โอ่โถ่ง ไม่อึดอัด
ขณะออกกำลังกายยังสามารถมองเห็นพื้นที่สีเขียวของโครงการ และสระน้ำชั้น 2 เสมือนได้รับชมวิวธรรมชาติไปในตัว
ภายในห้องฟิตเนสมีตู้เก็บของเพื่อความเป็นระเบียบเรียบร้อย และความเป็นส่วนตัวของลูกบ้าน
นอกจากพื้นที่ส่วนกลางที่อาคาร Clubhouse ยังมีส่วนของห้องสมุดที่ตั้งอยู่ชั้น 1 ของตึก C ให้ลูกบ้านได้นั่งอ่านหนังสือสบายๆ ท่ามกลางบรรยากาศของสวนโดยรอบ พร้อมเพดานแบบ Double Volume ที่ทำให้ห้องดูปลอดโปร่งกว้างขวาง
พื้นที่สีเขียวที่กระจายอยู่รอบโครงการ ช่วยสร้างความร่มรื่นและบรรยากาศที่น่าอยู่เปรียบเสมือนว่าลูกบ้านนั้นมีรีสอร์ตส่วนตัวเลยทีเดียว
ไม่เพียงจัดเต็มในเรื่องของสวนรอบโครงการ บริเวณด้านหลังตึก C ถูกเนรมิตให้กลายเป็น Central Park หรือสวนหลังบ้านขนาดใหญ่ พร้อมที่นั่งพักให้คุณได้สัมผัสกับความสุขสบายใจไม่ได้ต่างกับการมีสวนในบ้านเดี่ยวเป็นของตัวเอง
เพลินไปกับพื้นที่ส่วนตัวที่ถูกรังสรรค์มาอย่างพิถีพิถัน
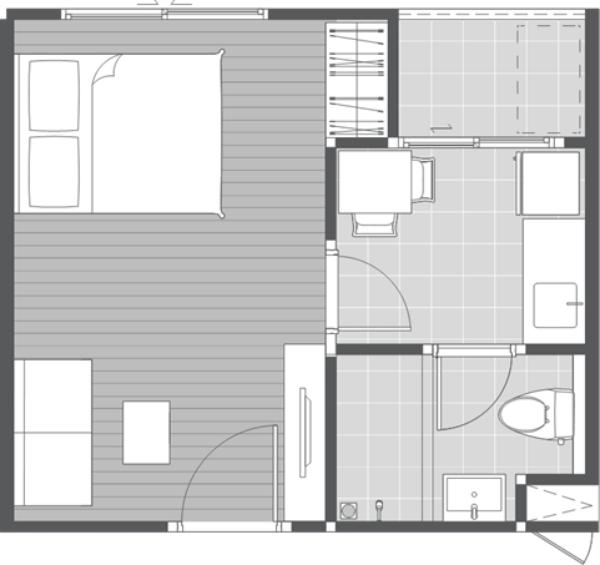
แปลนห้องพักอาศัย โครงการ LESTO CONDO สุขุมวิท 113-สถานีสำโรง
แปลนห้องของโครงการ LESTO CONDO สุขุมวิท 113-สถานีสำโรง จะเป็นห้อง 1 Bedroom โดยส่วนใหญ่จะเป็นห้องพักขนาด 26.5 ตารางเมตร มีขนาดพื้นที่ใช้สอยเป็นสัดส่วน เหมาะกับ Lifestyle ความเป็นคนรุ่นใหม่ที่ชอบความเป็นส่วนตัว และมีการจัดวางผังห้องที่ถูกทิศ ทำให้ห้องพักมีอากาศถ่ายเทที่ดี
1 Bedroom ขนาดพื้นที่ใช้สอย 26.5 ตารางเมตร
Type A1 ขนาด 26.5 ตารางเมตร
Type A2 ขนาด 26.5 ตารางเมตร
ทั้ง Type A1 และ Type A2 จะมีขนาดห้องเท่ากัน โดยประกอบไปด้วยห้องนอน ห้องรับแขก ห้องครัว ห้องน้ำ ระเบียงห้อง ซึ่งถูกจัดวางเป็นสัดส่วน ต่างกันที่ Layout และทิศทางของห้อง
จุดเด่นของการวางผังห้องของ โครงการ LESTO CONDO สุขุมวิท 113-สถานีสำโรง
ห้องหน้ากว้าง 5.2 เมตร เปิดรับแสง และลมธรรมชาติได้มากขึ้น
แบ่งแยกห้องรับประทานอาหาร และส่วนเตรียมอาหาร ป้องกันกลิ่นในส่วนของห้องพักผ่อน
1 BR 26.50 SQ.M.
ห้องตัวอย่าง 1 ห้องนอน ขนาดพื้นที่ใช้สอย 26.5 ตารางเมตร
สำหรับห้องตัวอย่างที่โครงการ LESTO CONDO สุขุมวิท 113-สถานีสำโรง จัดให้เข้าชมเป็นแบบ 1 ห้องนอนขนาด 26.5 ตารางเมตร ซึ่งเป็นยูนิตที่มีจำนวนมากที่สุด และถึงแม้จะเป็นยูนิตที่เล็กที่สุด แต่เมื่อเปิดเข้าไปแล้วกลับสัมผัสได้ถึงความโปร่งโล่งไม่แคบอย่างที่คิด สำหรับใครที่อาศัยอยู่เพียงคนเดียว Type นี้ก็ตอบโจทย์การอยู่อาศัยได้อย่างสบาย
โดยห้องตัวอย่างขนาด 26.5 ตารางเมตร ถูกแบ่งเป็น 4 ห้อง 4 การตกแต่งที่แตกต่างกันในแต่ละสไตล์ ซึ่งห้องนี้จะเป็นการตกแต่งสไตล์ Modern Classic ที่มอบความรู้สึกหรูหราและทันสมัย คุมโทนห้องด้วยสกรีมสีอ่อนสบายตา ทำให้ห้องดูกว้างอยู่สบาย
เมื่อเข้าไปภายในห้องจะพบกับห้องรับแขก และห้องนอนที่ถูกกั้นพาร์ติชั่นกระจกบานใหญ่ เพื่อแบ่งพื้นที่ออกจากกัน แต่ก็ยังสามารถเปิดพื้นที่แบบ Open Space ได้เพื่อทำให้ห้องดูกว้าง ปลอดโปร่ง ไม่อึดอัด
ห้องรับแขก LESTO CONDO สุขุมวิท 113-สถานีสำโรง
เมื่อเข้ามาในห้อง ด้านซ้ายมือจะเป็นส่วนของทีวี มีชั้นวางของและชั้นลอยจากแบรนด์ Index Living Mall เป็น 2 ใน 10 เฟอร์นิเจอร์ที่โครงการให้มา ถัดไปจะเป็นประตูของห้องครัว ที่แยกพื้นที่ออกจากกันอย่างเป็นสัดส่วน
แผงปลั๊กไฟ 2 ตัว 4 จุด สายเคเบิ้ลทีวี และสายเคเบิ้ลอินเทอร์เน็ต ที่จัดมาให้อย่างครบครัน
อีกด้านหนึ่งจะเป็นโซฟา 2-3 ที่นั่ง คุณภาพเยี่ยมจาก Index Living Mall เป็นส่วนที่โครงการมีให้พร้อม บนผนังตกแต่งด้วยภาพวาด และกระจกซึ่งจะช่วยให้ห้องดูมีมิติ
จะพบว่าช่องทางเดินระหว่างส่วนที่นั่งและชั้นวางของนั้นมีพื้นที่ค่อนข้างกว้าง สามารถเดินได้อย่างสบาย
ในส่วนของโต๊ะกลางก็เป็นของแบรนด์ Index Living Mall ที่แถมมากับโครงการเช่นเดียวกัน โดยขาตั้งเป็นวัสดุสเตนเลส ท็อปทำจากไม้ลามิเนต สามารถวางของได้เยอะพอสมควร
ด้านขวามือของประตูทางเข้ามีสวิตช์ไฟห้องรับแขก เมื่อเข้ามาในห้องก็สามารถเปิดไฟได้อย่างสะดวก ไม่ต้องเดินไกล
พื้นห้องเป็นพื้นสำเร็จรูปลามิเนตเกรดคุณภาพ เล่นลวดลายของเนื้อไม้ที่สะท้อนความเป็นธรรมชาติ และยังสร้างบรรยากาศที่อบอุ่นในการพักผ่อน และ Door Stopper กันประตูกระแทก
ห้องนอน LESTO CONDO สุขุมวิท 113-สถานีสำโรง
ห้องนอนและห้องรับแขก ถูกแบ่งพื้นที่จากห้องรับแขกด้วยพาร์ติชั่นกระจกใส ตกแต่งอินทีเรียด้วยสกรีมสีเอิร์ธโทนให้ความรู้สึกที่อบอุ่น
ห้องนอนสามารถวางเตียงขนาด 5 ฟุตได้ พร้อมกับผ้าม่านที่โครงการมอบให้ทุกห้อง
มีกระจกบานกระทุ้งขนาดใหญ่ สามารถรับลมและแสงได้ดี โดยไม่ต้องเปิดไฟตอนกลางวัน สามารถมองเห็นทัศนียภาพของพื้นที่สีเขียวภายในโครงการได้อย่างชัดเจน
โครงการมาพร้อมตู้เสื้อผ้าบิลท์อินจาก Index Living Mall ที่มอบให้กับทุกห้อง ภายในทำเป็นราวแขวนผ้าและชั้นวางของอยู่ด้านล่าง
พื้นที่ข้างเตียงสามารถวางโต๊ะข้างได้อย่างลงตัว หรือหากต้องการแทนที่ด้วยโต๊ะทำงานก็เพียงขยับเตียงไปทางหน้าต่างอีกนิด ก็จะมีพื้นที่วางโต๊ะทำงานได้อย่างพอดี
ในส่วนของห้องนอนก็จะได้เครื่องปรับอากาศจากทางโครงการ 1 ตัว
ห้องครัว LESTO CONDO สุขุมวิท 113-สถานีสำโรง
ขยับมาที่ห้องครัวที่ออกแบบมาอย่างเป็นสัดส่วน แยกออกจากส่วนของ ห้องรับแขกและห้องนอนอย่างชัดเจน เพื่อป้องกันกลิ่นของอาหารกระจายออก
จะพบว่าพื้นที่ของห้องครัวถูกจัดวางอุปกรณ์เครื่องครัวได้อย่างลงตัว สามารถวางตู้เย็น ซิงค์ล้างจาน ท็อปครัว ชั้นลอยวางของ และโต๊ะรับประทานอาหารขนาด 2 คน ได้อย่างพอดี และไม่คับแคบ
ชั้นวางของบิลท์อิน ช่วยทำให้การจัดเก็บของเป็นระเบียบเรียบร้อย บรรจุของได้มาก มีความแข็งแรงด้วยวัสดุคุณภาพจากแบรนด์ HAFELE
ชั้นวางของบิลท์อิน สามารถวางเครื่องปรุง หรือของใช้ในครัวได้ อีกทั้งยังหยิบจับได้สะดวก
ท็อปครัวแบรนด์ HAFELE สามารถวางเตาไฟฟ้าและทำครัวได้อย่างสะดวก มาพร้อมตู้อเนกประสงค์ สามารถบรรจุของได้เยอะพอสมควร โดยชั้นล่างสามารถวางเตาไมโครเวฟได้อย่างพอดี
ซิงค์ล้างจานแบรนด์ HAFELE ทำจากสเตนเลสเกรดคุณภาพ ทนทาน ทำความสะอาดง่าย
มีปลั๊กไฟสำหรับใช้อุปรณ์เครื่องครัวไฟฟ้าต่างๆ ไม่ต้องลำบากต่อสายไฟให้ยุ่งยาก
โต๊ะรับประทานอาหารอยู่ในส่วนของมุมห้องครัว ได้เพลิดเพลินไปกับมื้ออาหารพร้อมทั้งทอดสายตามองวิวสวนด้านนอก
พื้นห้องครัวจะเป็นกระเบื้องเซรามิก เพื่อการดูแลความสะอาดที่ง่าย
ติดยางกันชนประตูเพื่อความเงียบ ป้องกันรอบกระแทก และยืดอายุการใช้งานของประตูให้เพิ่มมากขึ้น
ห้องน้ำ LESTO CONDO สุขุมวิท 113-สถานีสำโรง
ถัดจากห้องครัว จะเป็นส่วนของห้องน้ำ ซึ่งถูกแย่งพื้นที่ออกจากกันอย่างชัดเจน
ประตูเข้าห้องน้ำได้ยกธรณีประตูขึ้นประมาณ 4 นิ้ว เพื่อป้องกันน้ำจากห้องน้ำกระเด็นเข้าสู่ห้องครัว
ภายในห้องน้ำประกอบด้วยชุดสุขภัณฑ์และอ่างล้างหน้าแบรนด์ American Standard ที่โครงการมอบให้ลูกบ้านทุกห้อง
แบ่งแยกโซนแห้งและโซนเปียกออกจากกัน ง่ายต่อผู้ที่อยากจะติดพาร์ติชั่นในภายหลัง ส่วนพื้นเป็นกระเบื้องกันลื่น
ชักโครกถูกจัดวางในตำแหน่งมุมห้องน้ำที่เหมาะสม ทำให้การทำธุระส่วนตัวจะรู้สึกไม่อึดอัด มาพร้อมกับสายฉีดชำระและแท่นใส่กระดาษทิชชู่และผนังต่างระดับสำหรับวางของ ถือว่าเป็นการออกแบบการใช้งานที่เหมาะสมกับพื้นที่ได้อย่างคุ้มค่า
บนอ่างล้างหน้ามาพร้อมกับกระจกบานใหญ่ สามารถแต่งหน้าหรือแต่งตัวได้อย่างเต็มที่
ในส่วนของโซนเปียกนั้นประกอบด้วยเครื่องทำน้ำอุ่น ผนังกระเบื้องโมเสค และราวแขวนเสื้อผ้า
เครื่องทำน้ำอุ่นแบรนด์ Rinnai ติดตั้งสายดินเรียบร้อยพร้อมใช้งาน ซึ่งเป็นสิ่งที่โครงการมีมาให้พร้อมสรรพ
มีท่อระบายน้ำทั้งโซนแห้งและโซนเปียก ไฟดาวน์ไลท์ และช่องดูดอากาศ
ระเบียงห้อง LESTO CONDO สุขุมวิท 113-สถานีสำโรง
ในส่วนของระเบียงห้องนั้นอยู่ติดกับห้องครัว มีกระจกขนาด 180*120 ซึ่งกว้างพอที่จะสามารถมองเห็นวิวจากภายนอกได้เป็นอย่างดี
เมื่อออกมาที่ระเบียงจะพบกับพื้นที่ขนาดกว้างที่สามารถวางเครื่องซักผ้าฝากหน้าขนาดใหญ่ได้อย่างสบายๆ และมีราวเหล็ก Wrought Iron ความสูงขนาดพอเหมาะ
ผนังด้านขวาติดหลอดประหยัดไฟ ส่วนผนังด้านซ้ายติด คอมเพรสเซอร์ ของเครื่องปรับอากาศ
นอกจากนี้ยังมีปลั๊กไฟสำหรับการใช้ไฟฟ้าด้านนอก ก๊อกน้ำ และช่องระบายอากาศออกมาจากห้องครัว
ด้านหน้าระเบียงยกธรณีสูงประมาณ 4 นิ้ว เพื่อป้องกันน้ำฝนและสิ่งสกปรกเข้ามาในห้องครัว
อยากได้ห้องสไตล์ไหน ก็เลือกได้อย่างที่ใจชอบ
นอกจากห้องตัวอย่างในสไตล์ Modern Classic แล้ว ที่โครงการ LESTO CONDO สุขุมวิท 113-สถานีสำโรง ยังมีห้องตัวอย่างอีกหลายสไตล์ อาทิ วินเทจ, ลอฟท์, โมเดิร์น ซึ่งที่นี่จะมีบริหารตกแต่งอินทีเรียตามที่คุณต้องการ ด้วยอินทีเรียดีไซเนอร์มากฝีมือจาก Index Living Mall ในราคาที่คุ้มค่ากว่าท้องตลาดทั่วไป
ห้องตัวอย่างสไตล์ Industrial Loft

ตกแต่งด้วยโทนสีที่ให้ความรู้สึกสุขุมนุ่มลึก ผนังลวดลายอิฐที่สะท้อนเท็กเจอร์ของสไตล์ลอฟท์
เน้นการตกแต่งที่เรียบง่าย มีการใช้โคมไฟที่เห็นเท็กเจอร์ของงานเหล็กดัด ซึ่งเป็นกลิ่นอายของลอฟท์ที่ชัดเจน
ห้องตัวอย่างสไตล์ Modern Black
สไตล์ Modern Black สะท้อนความทันสมัย ใช้สีเอิร์ธโทนที่ทำให้ห้องดูเรียบง่าย ไม่ฉูดฉาด ตัดกับสีดำที่ให้ความรู้สึกเรียบเท่ได้อย่างลงตัว
ตกแต่งผนังด้วยรูปตึกสูง บ่งบอกถึงความทันสมัย มีพาร์ติชั่นกระจกแยกห้องนอนและห้องรับแขกออกเป็นสัดส่วน แต่ก็ยังได้ความโปร่งด้วยการจัดวางพื้นที่แบบ Open Space ในสไตล์ของโมเดิร์น
ห้องตัวอย่างสไตล์ Vintage
ตกแต่งห้องในสไตล์วินเทจ สะท้อนความเรียบง่ายและอ่อนโยน ใช้โทนสีสว่าง ช่วยให้ห้องดูกว้างและปลอดโปร่ง
เสริมความย้อนยุคด้วยภาพวาดรถโบราณ และโคมไฟเหล็กตัดสไตล์คลาสสิก และเช่นเดียวกับทุกห้องที่มีพาร์ติชั่นกระจกกั้นระหว่างห้องนอนกับห้องรับแขกแยกเป็นสัดส่วน
ซึ่งไม่ว่าจะเป็นสไตล์ไหน ก็สามารถใช้บริการตกแต่งอินทีเรียกับโครงการได้ ซึ่งจะมีอินทีเรียดีไซเนอร์จาก Index Living Mall มาช่วยเนรมิตห้องของคุณให้สวยถูกใจได้อย่างแน่นอน
Location :
LESTO CONDO สุขุมวิท 113-สถานีสำโรง มอบความสะดวกสบายในทุกการเดินทาง
“จุดเชื่อมต่อการเดินทางที่สำคัญจุดหนึ่งของสมุทรปราการ”
ในแต่ละวันลองคำนวณดูสิว่าเราเสียเวลาไปกับการเดินทางเท่าไร และนานแค่ไหนที่เราไม่ได้ใช้เวลาอยู่กับตัวเองหรือคนที่รัก ถ้าเป็นแบบนี้แล้วคงจะดีกว่าหากเลือกคอนโดที่สามารถอำนวยความสะดวกในการเดินทางให้เราใช้เวลาบนถนนน้อยลง เพื่อที่จะได้อยู่กับตัวเองมากขึ้น
อย่างเช่น LESTO CONDO สุขุมวิท 113-สถานีสำโรง ที่จะช่วยให้คุณใช้ชีวิตท่ามกลางบรรยากาศที่ดี ตั้งอยู่ไม่ไกลจากใจกลางเมืองและเป็นคอนโดฯ เพียงไม่กี่แห่งที่มีรถไฟฟ้าผ่านถึง 2 เส้นทาง (สายสีเขียว และสายสีเหลือง) เพื่อความสะดวกในการเลือกเดินทาง
แผนที่ LESTO CONDO สุขุมวิท 113-สถานีสำโรง
LESTO CONDO สุขุมวิท 113-สถานีสำโรง นอกจากโดดเด่นในเรื่องของพื้นที่ส่วนกลางและ Facilities ที่ทางโครงการจัดมาเอาใจให้ลูกบ้านสนุกกับการใช้ชีวิตอย่างเต็มที่แล้ว เส้นทางการเดินทางในบริเวณรอบๆ ก็สะดวก มีหลากหลาย ทั้งระบบขนส่งสาธารณะและรถยนต์ส่วนตัว อีกทั้งทำเลแถวนี้ยังคงกลิ่นอายความเป็นอยู่ของชุมชนดั้งเดิมผสมผสานกับความสมัยใหม่ได้อย่างลงตัว ซึ่งนับเป็นสิ่งที่ยากมากแล้วในกรุงเทพมหานครและพื้นที่รอบๆ
การเดินทางด้วยระบบขนส่งสาธารณะ :
LESTO CONDO สุขุมวิท 113-สถานีสำโรง อยู่ห่างจากรถไฟฟ้า BTS สถานีสำโรง เพียง 400 เมตร เป็น HUB STATION จุดเชื่อมต่อรถไฟฟ้า 3 สาย คือ สายสีเขียว, สายสีเขียวส่วนต่อขยาย (แบริ่ง-สมุทรปราการ) และสายสีเหลือง ซึ่งปัจจุบันเปิดโดยสารถึงสถานีสำโรงเป็นอันดับแรก ส่วนสถานีที่เหลือ พร้อมเปิดภายในปีนี้
นอกจากมีรถไฟฟ้าแล้ว หน้าซอยสุขุมวิท 113 ยังคับคั่งไปด้วยขนส่งสาธารณะต่างๆ ไม่ว่าจะเป็น วินมอเตอร์ไซต์ รถสองแถว รถเมล์ รถแท็กซี่ รถตู้ และในซอยยังมีสามล้อปั่น ยานพาหนะสุดคลาสสิคค่อยให้บริการผู้คนที่อยู่บริเวณนั้น
การเดินทางด้วยรถยนต์ส่วนตัว :
LESTO CONDO สุขุมวิท 113-สถานีสำโรง ตั้งอยู่บนถนนสุขุมวิท ซอยสุขุมวิท 113 สามารถเข้า-ออก ได้ 2 เส้นทาง คือ ถ้าเลี้ยวขวาจากโครงการจะเจอถนนสุขุมวิท แต่เนื่องด้วยปากซอยเป็น One Way ทำให้ต้องลัดเลาะเข้าซอยสำโรงเหนือ 3 ไปเชื่อมกับซอยสุขุมวิท 111ออกถนนสุขุมวิทหลัก
หรือถ้าเลี้ยวซ้ายออกจากโครงการประมาณ 3.4 กิโลเมตร ก็จะเชื่อมต่อกับถนนศรีนครินทร์ที่มีเส้นทางจากสมุทรปราการถึงบางกะปิ
ทั้งนี้หากใครจะหนีการจราจรบนท้องถนนหรือต้องออกเดินทางไปต่างจังหวัดก็มี วงแหวนกาญจนาภิเษก และเฉลิมมหานคร-บูรพาวิถี ไปยังภาคตะวันออก และอยู่ใกล้กับสนามบินสุวรรณภูมิด้วย
Lifestyle :
LESTO CONDO สุขุมวิท 113-สถานีสำโรง ให้คุณสนุกและมีความสุขไปกับการใช้ชีวิตได้ตามใจหวัง
“เขาบอกว่า...อยู่สำโรง ยังไงก็ไม่อดตาย”
เมื่อตัดสินใจจะซื้อที่พักอาศัย สิ่งหนึ่งที่ต้องคำนึงนอกจากการเดินทางที่สะดวกรวดเร็วเเล้ว ที่ขาดไม่ได้คือเรื่องของอาหารการกิน...สุขุมวิท 113 หรือที่เราเรียกว่า สำโรง ได้ชื่อว่าเป็นแหล่งย่านการค้าแหล่งใหญ่ มีชุมชนอย่างหนาแน่นทำให้มีตลาดและที่กินที่เที่ยวมากมาย
ตลาดเอี่ยมเจริญ ตั้งอยู่หน้าปากซอยสุขุมวิท 113 ตลาดสดค้าปลีก ที่มีสินค้าและอาหารการกินมากมาย ทั้งร้านอาหารตามสั่ง อาหารสด อาหารแห้ง อาหารทะเลทั้งหลาย ที่สำคัญตกเย็นบริเวณรอบๆ ตลาดจะกลายเป็นตลาดโต้รุ่ง มีอาหารตั้งเรียงรายให้เลือกจับจ่ายได้ทั้งคืน
ข้ามถนนมาจะเป็น ตลาดใหม่สำโรง เป็นอีกหนึ่งตลาดที่คึกคักไม่แพ้กัน ส่วนใหญ่จะขายของสด เเละอาหารสำเร็จรูปให้เลือกสรรมากมาย โดยด้านหลังก็เป็นตลาดค้าส่งที่ใหญ่อีกหนึ่งแห่งในสำโรงด้วย
บางครั้งอยากเปลี่ยนบรรยากาศไปเดินห้าง ไม่ไกลก็มีห้างอิมพีเรียลสำโรง ที่เต็มไปด้วยร้านอาหารชื่อดังมากมาย
เเต่หากย้อนกลับมาบนถนนบางนา ก็จะมีเซ็นทรัลบางนา, Mega บางนา และในอีกไม่นานจะมีการลงทุนศูนย์การค้าขนาดใหญ่ อย่าง แบงค็อก มอลล์ (Bangkok Mall) โครงการห้างสรรพสินค้าขนาดใหญ่ในอนาคตของกลุ่ม The mall ซึ่งเเน่นอนว่าหากโครงการนี้สร้างเสร็จเมื่อไร ความเจริญจะเข้ามาในทำเลนี้อย่างเต็มรูปแบบแน่นอน
ส่วนสถานพยาบาลไม่ไกลก็มี โรงพยาบาลสำโรงการแพทย์ เปิดให้บริการ
หรืออยากจะทำบุญไหว้พระขอพร ที่สำโรงจะมีศาลเจ้าพ่อทัม หรือหลวงปู่ทวด สำโรง ให้เรามากราบไหว้ขอพร
เนื่องจากทำเลนี้ติดกับแม่น้ำเจ้าพระยา วันไหนอยากพักผ่อน ปั่นจักรยาน สัมผัสอากาศบริสุทธิ์และนั่งชิลล์ในคาเฟ่น่ารักๆ เราก็สามารถไปที่ 'บางกระเจ้า' ที่ได้ชื่อว่าเป็นโอเอซิสใกล้กรุง
Analysis :
วิเคราะห์โครงการ LESTO CONDO สุขุมวิท 113-สถานีสำโรง
ทำเล : LESTO CONDO สุขุมวิท 113-สถานีสำโรง ถือแม้จะอยู่ค่อนข้างไกลจากใจกลางกรุงเทพฯ แต่ก็มีเส้นทางการคมนาคมที่หลากหลาย ใกล้ทางด่วน ที่สำคัญหากรถไฟฟสายอื่นๆ สร้างเสร็จสมบูรณ์จะยิ่งส่งผลให้การเดินทางไม่ว่าจะเข้าเมืองหรือออกต่างจังหวัดง่ายยิ่งขึ้น
ห้อง : LESTO CONDO สุขุมวิท 113-สถานีสำโรง มีห้องให้เลือก 3 ขนาด คือ1 ห้องนอน TYPE A ขนาดประมาณ 26.50 ตารางเมตร (มีมากที่สุดในโครงการ), 1 ห้องนอน TYPE B ขนาดประมาณ 36.00 ตารางเมตร และ 1 ห้องนอน TYPE C ขนาดประมาณ 38.00 ตารางเมตร ที่สำคัญยังมีบริการตกแต่งด้วยอินทีเรียดีไซเนอร์มากฝีมือจาก Index Living Mall
สภาพแวดล้อม : รอบๆ คอนโดส่วนใหญ่ยังเป็นบ้านพักอาศัย, อาคารพาณิชย์ และแหล่งชุมชน จึงยังทำให้มีความสงบพอสมควร แต่หากออกไปหน้าปากซอยสุขุมวิท 113 ก็จะได้บรรยากาศที่คึกคักไปอีกแบบ
สิ่งอำนวยความสะดวก : ที่สุดของพื้นที่ส่วนกลางกว่า 3000 ตารางเมตร และสิ่งอำนวยความสะดวกมากมาย ไม่ว่าจะเป็น ร้านค้าเพื่อการพาณิชย์, LOBBY, LIBRARY ROOM, FITNESS ROOM, SAUNA ROOM แยกชายหญิง, SWIMMING POOL ระบบเกลือ, YOGA & YOGA FLY STUDIO, CO-WORKING SPACE, สวนส่วนกลาง ชั้น 1 ใกลตึก B, C และ D, ลิฟท์โดยสารอาคารพักอาศัยละ 2 ตัวต่ออาคาร , ที่จอดรถ 35% รวมจอดซ้อนคัน, ระบบกล้องวงจรปิ ด CCTV ทางเข้า-ออกโครงการ, ระบบรักษาความปลอดภัย 24 ชั่วโมง, ระบบเข้า-ออกอาคาร KEY CARD ACCESS ล็อกชั้น
ราคา : เริ่มต้นที่ 1.45 ล้านบาท ซึ่งถือว่าเป็นราคาที่ไม่แพงจนเกินไป ที่นอกจากคุ้มค่าในเรื่องของเฟอร์นิเจอร์ที่ได้รับแล้ว หากจะซื้อไว้อยู่เองหรือจะซื้อไว้ลงทุนในอนาคตก็ดี เพราะเมื่อไรที่รถไฟฟ้าสายสีเขียวส่วนต่อขยาย (แบริ่ง-สมุทรปราการ) และสายสีเหลืองสร้างเสร็จ ทำเลนี้จะกลายเป็นศูนย์กลางการคมนาคมแน่นอน
เลสโต คอนโด สุขุมวิท 113
592bfe00719b2bc4ff136a1d
lesto-condo-sukhumvit-113-เลสโต-คอนโด-สุขุมวิท![รูปหน้าปก [Review] LESTO CONDO สุขุมวิท 113-สถานีสำโรง สนุกกับการใช้ชีวิต พร้อมทุกการเดินทาง เพลินทุกช่วงเวลา](https://static.estopolis.com/review/5b06900c2da7a7a1d3a4167a_5b0b900415f0206fe7ccbba5.jpg)






























































































