[Review] [Preview] โอบอุ้มทุกความสุข อบอุ่นเสมือนบ้าน เข้าถึงทุกแหล่งไลฟ์สไตล์ชั้นนำได้ง่าย ๆ ที่ ‘Living Nest Udomsuk 30'
ซอยอุดมสุข 30 แขวงบางนาเหนือ เขตบางนา กรุงเทพมหานคร
Human Nest (ฮิวแมนเนสท์)

โอบอุ้มทุกความสุข อบอุ่นเสมือนบ้าน เข้าถึงทุกแหล่งไลฟ์สไตล์ชั้นนำได้ง่าย ๆ ที่ ‘Living Nest Udomsuk 30'
โครงการ Living Nest Udomsuk 30 ได้รับแรงบันดาลใจในการออกแบบมาจาก “Nest” หรือ รังนกที่มีความน่าสนใจในเรื่องเส้นสายและ Pattern ที่สะท้อนถึงความรู้สึกอบอุ่นและปลอดภัย ซึ่งถือเป็น “Sense of Living” สำหรับทุกเพศทุกวัย
นอกจากนี้ยังต้องการสร้างความกลมกลืนระหว่าง ‘ธรรมชาติ’ กับ ‘การใช้ชีวิตของคนเมือง’ ที่ต้องการความสะดวกสบาย “Harmony of Urban Living and Nature” โดยให้ความสำคัญกับทุกฟังก์ชั่น บนทุกพื้นที่การใช้งานทั้งภายในยูนิตพักอาศัยที่เป็นส่วนตัว, พื้นที่ส่วนกลาง และพื้นที่สีเขียวในโครงการ ให้สามารถรองรับการใช้งานได้ทุกรูปแบบความต้องการ ทั้งการพักผ่อน, การทำงาน, การคิดสร้างสรรค์ผลงาน, การออกกำลังกาย และกิจกรรมสันทนาการต่าง ๆ กลายเป็นคอนโดในเมืองที่ให้อารมณ์อบอุ่นเหมือนบ้าน เพื่อคุณภาพชีวิตที่ดีทั้งกายและใจของผู้อยู่อาศัย
Well Being of both Body and Soul
Project Info
รายละเอียดโครงการ Living Nest Udomsuk 30 (ลิฟวิ่งเนสท์ อุดมสุข 30)
ชื่อโครงการ : Living Nest Udomsuk 30 (ลิฟวิ่งเนสท์ อุดมสุข 30)
เจ้าของโครงการ : บริษัท ฮิวแมนเนสท์ จำกัด
ที่ตั้งโครงการ : ซอยอุดมสุข 30 สุขุมวิท 103
พื้นที่โครงการ : 0-3-24 ไร่
ลักษณะโครงการ : อาคารชุดพักอาศัย 8 ชั้น 1 อาคาร
จำนวนห้อง : 119 ยูนิต
ประเภทยูนิต :
- 1 Bedroom 25.61-36.74 ตร.ม.
- 1 Bed-L 30.43-35.63 ตร.ม.
- 1 Bedroom Plus 34.96 ตร.ม.
จำนวนที่จอดรถ : ประมาณ 43% หรือ 51 คัน (ไม่รวมซ้อนคัน)
ค่าส่วนกลาง : 55 บาท/ ตร.ม.
ค่ากองทุนส่วนกลาง : 600 บาท/ ตร.ม.
คาดว่าจะเริ่มก่อสร้าง : ภายในไตรมาส 1 ปี 2563
คาดว่าจะก่อสร้างแล้วเสร็จ : ภายในไตรมาส 4 ปี 2564
ระบบรักษาความปลอดภัย : กล้องวงจรปิดตลอด 24 ชั่วโมง, Key Card Access, Digital Door Lock, เจ้าหน้าที่รักษาความปลอดภัยตลอด 24 ชั่วโมง
ราคาเริ่มต้น : 1.89 ล้านบาท
สิ่งอำนวยความสะดวกในโครงการ Living Nest Udomsuk 30 (ลิฟวิ่งเนสท์ อุดมสุข 30)
แม้จะเป็น Low Rise แต่ Facilities ที่ Living Nest Udomsuk 30 จัดมาให้ผู้อยู่อาศัยนั้น ก็ถือว่าจัดเต็ม แน่นทุกความต้องการ ตอบสนอง Activities ที่หลากหลายของทุกเพศทุกวัยได้อย่างแน่นอน
- HIGH CEILING LOBBY : Lobby เพดานสูงโปร่ง กับ โถงต้อนรับที่มาพร้อมบริการ Wi-Fi ฟรี ให้ลูกบ้าน สามารถใช้งานอินเทอร์เน็ตในบริเวณนี้ได้
- WAITING AREA : โซน Waiting Area สำหรับการรอรับรถจากอาคารจอดรถอัตโนมัติ
- LAUNDRY AREA : ให้คุณสามารถนั่งรอผ้าที่กำลังซักได้แบบสบาย ๆ เพราะมีมุมนั่งเล่นให้อ่านหนังสือ หรือเล่นมือถือได้แบบชิลล์ ๆ
ภาพตัวอย่าง CO-WORKING SPACE ชั้น 2
- CO-WORKING SPACE : พื้นที่สำหรับใช้ความคิดของคนทำงาน มาพร้อมกับ Wi-Fi ให้คุณสามารถเชื่อมต่ออินเทอร์เน็ต เพื่อใช้ค้นหาข้อมูลได้อย่างสะดวก ไม่ว่าจะนั่งทำงาน, นั่งประชุม หรือพูดคุยสัมนา ก็สามารถรองรับทุกความต้องการได้เป็นอย่างดี
ภาพตัวอย่าง TROPICAL PRIVATE GARDEN ชั้น 2
- TROPICAL PRIVATE GARDEN : สวนสวย บรรยากาศสงบบนชั้น 2 ที่ให้คุณสามารถนั่งชิลล์ อ่านหนังสือสบาย ๆ หรือจะเปลี่ยนบรรยากาศมาทำงานนอกสถานที่ก็ย่อมได้
ภาพตัวอย่าง SKY GYM ชั้น 8
- SKY GYM : ฟิตเนสเพื่อคนรักสุขภาพ ที่ชื่นชอบการออกกำลังกายเป็นชีวิตจิตใจ มาพร้อมกับอุปกรณ์พื้นฐานครบครัน
- JOGGING TRACK : สำหรับผู้ที่ชื่นชอบการวิ่งเบา ๆ ยามเช้า บริเวณชั้นดาดฟ้าของโครงการก็มีลู่วิ่งความยาว 104 เมตร ให้เราได้ Jogging ยืดเส้นยืดสายท่ามกลางวิวเมือง และธรรมชาติสีเขียวกันอีกด้วย
- SKY MULTI-PURPOSE AREA : ยืดเส้นยืดสายเบา ๆ กับ ‘ลานอเนกประสงค์’ ที่รองรับกิจกรรมอย่าง Aerobic, Yoga และ Chinese dancing ได้
- TROPICAL SKY GARDEN : เต็มอิ่มกับสวนสวยสีเขียวสบายตา ที่ให้คุณได้สูดอากาศบริสุทธิ์ พร้อมพักผ่อนไปกับธรรมชาติที่สวยงามบนดาดฟ้า
- PARTY AREA, BBQ TERRACE : มุมปาร์ตี้สำหรับจัดงานลี้ยงสังสรรค์เล็ก ๆ ที่มาพร้อมเตาปิ้งบาร์บีคิวถึง 2 เตา ให้คุณชวนครอบครัว หรือเพื่อนฝูงมาประกอบอาหารร่วมกันได้
- RELAXING SPACE : มุมผ่อนคลายสำหรับนั่งเล่น, อ่านหนังสือ หรือชมวิวเมืองมุมสูง
- IMAGINE PLAY AREA : Play Area ลานกิจกรรมสำหรับเด็ก ที่สามารถให้เด็ก ๆ คิดสร้างสรรค์กิจกรรมได้อย่างปลอดภัย ด้วยพื้นยางสังเคราะห์สีสันสดใสที่ช่วยลดแรงกระแทก ให้เด็ก ๆ สนุกได้แบบไร้กังวล
- ROCK CLIMBING WALL : ผาจำลองที่มีไว้ให้เด็ก ๆ ได้พัฒนากล้ามเนื้อมือ, แขน และขา ด้วยการฝึกไต่ผาแนวข้าง
ภาพตัวอย่าง SKY SWIMMING POOL, IMAGINE POOL และ JACUZZI ชั้นดาดฟ้า
- SKY SWIMMING POOL, IMAGINE POOL และ JACUZZI : สระว่ายน้ำยาวเกือบ 20 เมตร สามารถว่ายได้ทั้งเด็กและผู้ใหญ่ พร้อมอ่างจากุซชี่สำหรับใช้แช่น้ำให้สบายใจ
- GOAL TABLE : ใครที่เป็นคอเกม สามารถนัดกลุ่มเพื่อนมาฝึกทักษะการควบคุมเกมกันได้ ด้วย “โต๊ะโกลล์” หรือฟุตบอลมือ ที่ช่วยผ่อนคลายความเหนื่อยล้าร่วมไปกับเพื่อน ๆ
ภาพตัวอย่าง CREATIVE CONNERS ชั้นดาดฟ้า
- CREATIVE CONNERS : ศาลาพักริมสระว่ายน้ำ ให้คุณพ่อ-คุณแม่ได้นั่งดูลูกน้อยเล่นน้ำอย่างปลอดภัย
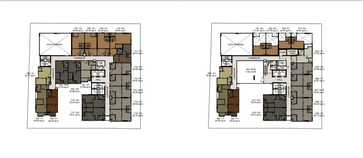
แปลนอาคาร Living Nest Udomsuk 30 (ลิฟวิ่งเนสท์ อุดมสุข 30)
โครงการ Living Nest Udomsuk 30 (ลิฟวิ่งเนสท์ อุดมสุข 30) ตั้งอยู่ภายในซอยอุดมสุข 30 ทางเข้า-ออกของโครงการจะใช้การเดินรถแบบทางเดียว เมื่อตรงเข้าไปที่ตัวโครงการจะเป็นจุดจอดรถใต้อาคารทั้งหมด 19 ช่องจอด และมีทางเข้าจุดจอดรถ Auto Parking 11 ชั้น 32 ช่องจอดอยู่ในบริเวณเดียวกัน พอรวมพื้นที่กันแล้วจะสามารถจอดรถได้ทั้งหมด 51 คัน และยังมีจุดจอดรถสำหรับมอเตอร์ไซค์รองรับไว้ให้ด้วย
สำหรับพื้นที่ส่วนกลางชั้น G ก็จะประกอบไปด้วยส่วน High Ceiling Lobby โถงล็อบบี้สูงคอยต้อนรับลูกบ้านพร้อม Wi-Fi, Waiting Area จุดรอรับรถจากอาคารจอดรถอัตโนมัติ, Relaxation Area มุมนั่งเล่นพักผ่อน, Laundry และ ลิฟท์โดยสารอีก 2 ตัว
ขยับขึ้นมาที่ชั้น 2 โดยชั้นนี้จะเป็นส่วนของ Facilities ที่อยู่รวมกันกับพื้นที่ยูนิตพักอาศัย ซึ่งจะมียูนิตพักอาศัยที่ชั้นนี้ทั้งหมด 15 ยูนิตด้วยกัน แบ่งออกเป็น…
- Type A ขนาด 25.61 ตร.ม. จำนวน 1 ห้อง
- Type B ขนาด 25.96-30.29 ตร.ม. จำนวน 5 ห้อง
- Type F ขนาด 34.54 ตร.ม. จำนวน 1 ห้อง
- Type G ขนาด 30.46-36.74 ตร.ม. จำนวน 5 ห้อง
- Type H ขนาด 30.64 ตร.ม. จำนวน 1 ห้อง
- Type I ขนาด 32.43 ตร.ม. จำนวน 1 ห้อง
- Type J ขนาด 34.93 ตร.ม. จำนวน 1 ห้อง
ทางด้านของพื้นที่ส่วนกลางก็จะประกอบด้วย Co-Working Space สำหรับนั่งทำงานอ่านหนังสือ, Tropical Private Garden สวนสีเขียวสำหรับพักผ่อนหย่อนใจ และนิติบุคคลก็อยู่รวมกันที่ชั้นนี้ด้วย
ชั้น 3 - ชั้น 6 จะเป็นพื้นที่พักอาศัยเต็มชั้น ซึ่งแต่ละชั้นจะมีจำนวนยูนิตและ Type ห้องเหมือนกันทุกประการ โดยแต่ละชั้นจะมีทั้งหมด 18 ยูนิต ประกอบไปด้วย…
- Type A ขนาด 25.61 ตร.ม. จำนวน 1 ห้อง
- Type B ขนาด 25.96-30.29 ตร.ม. จำนวน 5 ห้อง
- Type D ขนาด 27.06 ตร.ม. จำนวน 1 ห้อง
- Type F ขนาด 29.24 ตร.ม. จำนวน 1 ห้อง
- Type G ขนาด 30.24-31.03 ตร.ม. จำนวน 7 ห้อง
- Type H ขนาด 30.64 ตร.ม. จำนวน 1 ห้อง
- Type I ขนาด 32.43 ตร.ม. จำนวน 1 ห้อง
- Type J ขนาด 34.93 ตร.ม. จำนวน 1 ห้อง
ทางด้านของชั้น 7 จะเป็นพื้นที่ของยูนิตพักอาศัยทั้งหมด 18 ยูนิต ประกอบไปด้วย…
- Type A ขนาด 25.61 ตร.ม. จำนวน 1 ห้อง
- Type B ขนาด 25.96-30.29 ตร.ม. จำนวน 5 ห้อง
- Type D ขนาด 27.06 ตร.ม. จำนวน 1 ห้อง
- Type E ขนาด 28.01 ตร.ม. จำนวน 1 ห้อง
- Type F ขนาด 29.24 ตร.ม. จำนวน 1 ห้อง
- Type G ขนาด 30.24-31.03 ตร.ม. จำนวน 4 ห้อง
- Type J ขนาด 34.93 ตร.ม. จำนวน 1 ห้อง
- Type K ขนาด 30.43-35.63 ตร.ม. จำนวน 4 ห้อง (1 Bedroom Loft)
โดยชั้นพักอาศัยบนสุดอย่างชั้น 8 ก็จะมีส่วนของ Sky Gym สำหรับออกกำลังกายเพิ่มเข้ามาอยู่รวมกับยูนิตพักอาศัยด้วย แบ่งออกเป็น…
- Type A ขนาด 25.61 ตร.ม. จำนวน 1 ห้อง
- Type B ขนาด 25.96-30.29 ตร.ม. จำนวน 5 ห้อง
- Type C ขนาด 27.03 ตร.ม. จำนวน 1 ห้อง
- Type D ขนาด 27.06 ตร.ม. จำนวน 1 ห้อง
- Type F ขนาด 29.24 ตร.ม. จำนวน 1 ห้อง
- Type G ขนาด 30.24-31.03 ตร.ม. จำนวน 4 ห้อง
- Type J ขนาด 34.93 ตร.ม. จำนวน 1 ห้อง
- Type K ขนาด 9.19-11.07 ตร.ม. จำนวน 4 ห้อง (เป็นส่วนชั้นลอยของห้อง Loft Type K บริเวณชั้น 7)
และบนชั้น Rooftop ของโครงการ Living Nest Udomsuk 30 นี้ จะเป็นชั้นที่รวบรวม Facilities ขนาดใหญ่ หลากหลายกิจกรรมเข้าไว้ด้วยกัน ไม่ว่าจะเป็น Sky Swimming Pool, Imagine Pool, Jacuzzi, Creative Conner, Jogging Track, Imagine Area, Goal Table, Sky Multi-Purpose Yard และ Party Terrace ซึ่งบอกเลยว่า… บริเวณนี้จะเป็นพื้นที่ขนาดใหญ่ ให้ลูกบ้านทุกคนขึ้นมาทำกิจกรรมร่วมกันได้
แปลนห้อง Living Nest Udomsuk 30 (ลิฟวิ่งเนสท์ อุดมสุข 30)
ในส่วนของห้องพักอาศัยโครงการ Living Nest Udomsuk 30 (ลิฟวิ่งเนสท์ อุดมสุข 30) จะมีตัวเลือกให้คุณทั้งหมด 11 Type ดังนี้...
- Type A ขนาด 25.61 ตร.ม.
- Type B ขนาด 25.96 - 30.29 ตร.ม.
- Type C ขนาด 27.03 ตร.ม.
- Type D ขนาด 27.06 ตร.ม.
- Type E ขนาด 28.01 ตร.ม.
- Type F ขนาด 29.24-34.54 ตร.ม.
- Type G ขนาด 30.24-36.74 ตร.ม.
- Type H ขนาด 30.64 ตร.ม.
- Type I ขนาด 32.43 ตร.ม.
- Type J ขนาด 34.93 ตร.ม.
- Type K ขนาด 30.43-35.63 ตร.ม.
โดยมี Type หลัก ๆ ที่มีเอกลักษณ์เฉพาะตัวอยู่ 7 Types ดังรูป
ภาพห้องตัวอย่าง Living Nest Udomsuk 30 (ลิฟวิ่งเนสท์ อุดมสุข 30)
โดยโครงการ Living Nest Udomsuk 30 จะตกแต่งทุกห้องเป็นแบบ Fully Furnished โดยมี SB Furniture ออกแบบให้เฉพาะโครงการ ซึ่งจะมีชุดเฟอร์นิเจอร์ภายในห้องทั้งหมด ดังนี้…
- โซฟาแบบ 2 ที่นั่ง พร้อมพนักพิงขนาดใหญ่ และที่เท้าแขน
- โต๊ะกลางที่มีช่องใส่ของ ให้คุณสามารถวางแจกัน หรือใส่ขวดน้ำได้สบาย ตัวหน้าบานเป็นกระจก ที่สามารถยกขึ้นเพื่อวางโน้ตบุ๊กนั่งทำงานได้ และยังมีช่องยาวด้านข้างสำหรับใส่ของ หรือจัดเก็บรีโมท อุปกรณ์เครื่องเล่นเกมต่าง ๆ ได้ด้วย
- ชั้นวางทีวี มีช่องเก็บของขนาดใหญ่ พร้อมชั้นวางของ ส่วนบริเวณผนังด้านบนจะโล่ง เหมาะสำหรับการติดทีวีขนาด 49 นิ้วได้แบบสบาย ๆ ซึ่งแต่ละ Type จะได้ขนาดของชั้นเก็บของที่แตกต่างกันไป
- เครื่องปรับอากาศที่ทางโครงการติดตั้งให้ จะได้ทั้งหมด 2 เครื่อง แบ่งเป็นส่วน Living Room กับ Bedroom
- เตียงนอนขนาด 5 ฟุต พร้อมมีลิ้นชักข้างเตียงให้เก็บของได้ถึง 2 ลิ้นชัก
- โต๊ะอเนกประสงค์ข้างเตียง และชั้นวางของด้านบน พร้อมเก้าอี้อีก 1 ตัว ซึ่งเราสามารถใช้งานเป็นโต๊ะเครื่องแป้งได้ด้วย เนื่องจากมีกระจกบานใหญ่ให้พร้อม หรือจะใช้งานเป็นโต๊ะทำงานก็ได้เช่นกัน
- ตู้เสื้อผ้าบานสไลด์ที่มีหน้าบานสูงชนติดเพดาน เพื่อช่วยป้องกันฝุ่นและเพิ่มพื้นที่ใช้สอย มาพร้อมฟังก์ชันเก็บของครบครัน อย่าง ลิ้นชักที่สามารถล็อกกุญแจเก็บของได้, ช่องด้านบนที่สามารถเก็บกระเป๋าเดินทางขนาด 20-22 นิ้วได้ และยังมีส่วนให้คุณผู้หญิงแขวนชุดเดรสตัวยาวได้ด้วยเช่นกัน
- สุขภัณฑ์ครบชุดจากแบรนด์ Mogen โดยตัวอ่างล้างหน้าจะมี Cabinet ด้านล่างให้เก็บของ ส่วนบริเวณหน้าบานจะเป็นวัสดุกันน้ำ พร้อมโถสุขภัณฑ์ระบบประหยัดน้ำเพียง 3/4.5 ลิตร ฝาโถปิดแบบ Soft Closing
- สำหรับชุดครัวจะได้เครื่องดูดควัน และเตาไฟฟ้าอย่างดีจากแบรนด์ Hafele ท็อปครัวเป็นหินแกรนิตสีดำ ทนทานต่อการใช้งาน มาพร้อม Backsplash ผนังกระเบื้อง ที่ช่วยให้การทำความสะอาดหลังงานครัวเป็นเรื่องง่าย
ส่วนห้อง Type G จะมีรายละเอียดที่เหมือนกัน และมี Side Table สำหรับความเหมาะสมตามแต่ละ Unit Type แต่จะเพิ่มเติมมาบางส่วน ดังนี้...
- Type G มีความพิเศษตรงที่ บริเวณชั้นวางทีวี จะมีตู้เก็บของบน-ล่างแบบติดผนัง พร้อมปุ่ม ที่สามารถแขวนของได้สารพัดทั้งกระเป๋า, พวงกุญแจ, ผ้าพันคอ, หมวก ฯลฯ
- ได้โต๊ะรับประทานอาหาร พร้อมเก้าอี้อีก 2 ตัว
- มีพื้นที่พิเศษ Double Living Space ตรงระเบียงที่ทำเป็นประตูระเบียง 2 ชั้น แบบกระจกบานสไลด์ 3 ตอน เปิดกว้างเต็มที่ ใช้งานได้ในหลายกิจกรรม ไม่ว่าจะเป็นพื้นที่ออกกำลังกาย, เก็บจักรยาน, ตากผ้า, ทำเป็นมุมนั่งจิบกาแฟยามเช้า พอตกเย็นไว้นั่งท์สังสรรค์กับคนรู้ใจ, หรือจะนั่งทำงานก็ได้เพียงเปิดหรือปิดประตูระเบียง 2 ชั้นนี้ ก็จะได้พื้นที่พิเศษแล้ว นอกจากนี้ก็ยังมีประตูเก็บคอมเพรสเซอร์แอร์บริเวณระเบียง ทำให้สามารถใช้พื้นที่ในการตั้งเครื่องซักผ้าได้อีกด้วย จึงทำให้ Type นี้ ได้พื้นที่แบบ Double Living Space ซึ่งเป็นเอกลักษณ์ของโครงการ Living Nest ที่ได้รับการตอบรับอย่างดีทุกโครงการ
- ห้องตัวอย่างจะแสดงเฟอร์นิเจอร์จริงที่ลูกค้าจะได้รับ
ทำเลโครงการ Living Nest Udomsuk 30 (ลิฟวิ่งเนสท์ อุดมสุข 30)
ทำเลปลอดภัย หมดห่วงเรื่องน้ำท่วม
ทำเลโครงการ Living Nest Udomsuk 30 (ลิฟวิ่งเนสท์ อุดมสุข 30) ตั้งอยู่บนถนนสุขุมวิท 103 ภายในซอยอุดมสุข 30 โดยถนนเส้นนี้จะเป็นถนนที่เชื่อมระหว่างถนนสุขุมวิท กับถนนศรีนครินทร์ เข้าหากัน สำหรับสภาพแวดล้อมในทำเลนี้จะเป็นแหล่งชุมชนขนาดใหญ่ ทำให้ย่านนี้ค่อนข้างมีความอุดมสมบูรณ์สูง บรรยากาศคึกคักตลอดทั้งวัน ทั้งยามกลางวันและกลางคืน
ซึ่งตัวโครงการจะอยู่ช่วงใจกลางของถนนอุดมสุข ค่อนไปทางถนนสุขุมวิท และใกล้สถานีรถไฟฟ้า BTS อุดมสุข เพียง 5 นาที (1.5 กิโลเมตร) บรรยากาศโดยรอบโครงการจะค่อนข้างเงียบสงบ เมื่อเทียบกับบริเวณต้นถนนที่เชื่อมเข้าถนนสุขุมวิท นอกจากนี้ก็ยังมีตัวเลือกในการเดินทางที่ค่อนข้างหลากหลาย ทั้งวินมอเตอร์ไซค์, รถสองแถว, แท็กซี่ ที่เป็นตัวเลือกนอกเหนือจากรถไฟฟ้าให้อีกด้วย
เข้าถึงทุกไลฟ์สไตล์ยอดนิยมมากมาย ได้ภายในระยะทางไม่เกิน 3 กิโลเมตร
Central Plaza Bangna (1.5 กิโลเมตร)
Central Plaza Bangna ศูนย์การค้าขนาดใหญ่ 6 ชั้น ที่มีไลฟ์สไตล์พร้อมสรรพ ทั้งเรื่องชอปกับแบรนด์แฟชันชั้นนำ, เรื่องกินด้วยร้านอาหารหลากสไตล์หลายเชื้อชาติ, เรื่องเอ็นเตอร์เทนเมนต์ที่ครบวงจร ทั้งโรงภาพยนตร์, สวนน้ำ และศูนย์รวมเครื่องเล่นทันสมัย บอกเลยว่าแค่แวะมาที่นี่ที่เดียว ก็ได้ครบ ตอบโจทย์ทุกความต้องการแล้ว
BITEC (1.7 กิโลเมตร)
อีกทั้งตัวโครงการก็ยังตั้งอยู่ใกล้กับศูนย์ประชุมและแสดงสินค้านานาชาติ BITEC บางนา ซึ่งจะมีอีเวนต์ และงานแสดงต่าง ๆ ที่น่าสนใจมาเปิดบูธกิจกรรมให้เราเข้าไปเดินเลือก เดินชมอยู่เสมอ นอกจากนี้ที่ BITEC บางนาก็ยังมีคาเฟ่ และศูนย์อาหารขนาดใหญ่ให้เราแวะมาฝากท้องกันอีกด้วย
True Digital Park (1.7 กิโลเมตร)
คุณก็สามารถเข้าถึงแหล่งดิจิทัลชั้นนำของเมืองไทย อย่าง True Digital Park ได้ในระยะทางเพียง 1.7 กิโลเมตร โดยภายใน True Digital Park จะรวบรวม 3 พื้นที่หลักอย่าง พื้นที่เพื่อการสร้างสรรค์นวัตกรรมดิจิทัล, พื้นที่ไลฟ์สไตล์ และที่พักอาศัย ไว้ด้วยกัน จึงเป็นสถานที่ที่รวบรวมไว้ครบทั้งร้านค้า, ร้านอาหาร, คาเฟ่, Co-Working Space และพื้นที่ทำงานพร้อมห้องประชุมสัมมนา เหมาะสำหรับใครที่อยากหาสถานที่เปลี่ยนบรรยากาศในการทำงาน พร้อมมีสิ่งอำนวยความสะดวกให้แล้ว ก็สามารถแวะมาได้ทุกเมื่อ
Paradise Park (3 กิโลเมตร)
แม้แต่แหล่งชอปปิงที่ยิ่งใหญ่สุดในทำเลกรุงเทพตะวันออกอย่าง Paradise Park ก็สามารถเข้าถึงได้ง่ายเช่นกัน ภายในรวมร้านค้าชั้นนำไว้กว่า 500 ร้านค้า ภายใต้คอนเซ็ปต์ The Oasis of Eastern Bangkok โดยความพิเศษของศูนย์การค้าแห่งนี้ คือจะมีทั้งห้างสรรพสินค้า Tokyu, Villa Market และ ตลาดเสรีมาร์เก็ต บอกเลยว่า.... ถูกใจสายชอปอย่างแน่นอน
ราคาคอนโด Living Nest Udomsuk 30 (ลิฟวิ่งเนสท์ อุดมสุข 30)
โครงการ Living Nest Udomsuk 30 (ลิฟวิ่งเนสท์ อุดมสุข 30) ราคาเริ่มต้นอยู่ที่ 1.89 ล้านบาท หากสนใจสามารถลงทะเบียนเพื่อรับสิทธิพิเศษได้ที่ คลิก
ลิฟวิ่ง เนสท์ อุดมสุข 30
5d36bb0c2d17abf3bf751088
20005148![รูปหน้าปก [Preview] โอบอุ้มทุกความสุข อบอุ่นเสมือนบ้าน เข้าถึงทุกแหล่งไลฟ์สไตล์ชั้นนำได้ง่าย ๆ ที่ ‘Living Nest Udomsuk 30'](https://static.estopolis.com/review/5d720a892d17abf3bf63da0d_5d75a4ec15f0203b2cb3e014.jpg)
































