[Review] The Base Park West สุขุมวิท 77 คอนโดพร้อมอยู่ ใกล้รถไฟฟ้า BTS อ่อนนุช จาก แสนสิริ
ซอยปรีดีพนมยงค์ 2 ถนนสุขุมวิท 77 แขวงพระโขนงเหนือ เขตวัฒนา กรุงเทพมหานคร
Areeya (อารียา)

Review Info :
รู้จัก The Base Park West Sukhumvit 77 (เดอะ เบส พาร์ค เวสต์ สุขุมวิท 77) หนึ่งในคอนโด อ่อนนุชบนพื้นที่สร้างความสุข จากแสนสิริ

โดยในปัจจุบันมีโครงการใน T77 ทั้งหมด 9 โครงการ แต่ในวันนี้เราจะพาไปแนะนำหนึ่งในโครงการคุณภาพที่สร้างเสร็จพร้อมอยู่แล้วกับ The Base Park West คอนโด High Rise ใจกลางย่านอ่อนนุช ที่มาพร้อมกับจุดเด่น 'วิวสวย' ช่วยทำให้คุณเข้าใกล้กับคำว่าผ่อนคลายได้อย่างแท้จริง
รายละเอียดโครงการ The Base Park West Sukhumvit 77 (เดอะ เบส พาร์ค เวสต์ สุขุมวิท 77)

ชื่อโครงการ : The Base Park West Sukhumvit 77 (เดอะ เบส พาร์ค เวสต์ สุขุมวิท 77)
เจ้าของโครงการ : บริษัท แสนสิริ จำกัด (มหาชน)
ที่ตั้งโครงการ : ถนนสุขุมวิท 77 (อ่อนนุช) แขวงอ่อนนุช เขตสวนหลวง กรุงเทพมหานคร 10250
เนื้อที่โครงการ : 3-1-48.2 ไร่
ประเภทโครงการ : คอนโด High Rise 39 ชั้น และอาคารจอดรถสูง 8 ชั้น
จำนวนยูนิต : 711 ยูนิต
แบบห้อง :
1 ห้องนอน 1 ห้องน้ำ 25.00 – 29.50 Sq.m.
2 ห้องนอน 1 ห้องน้ำ 42.50 – 43.50 Sq.m.
2 ห้องนอน 2 ห้องน้ำ 51.00 Sq.m.
ราคาเริ่มต้น : 1.89 ล้านบาท
เว็บไซต์โครงการ : https://www.sansiri.com
Insight :
เจาะลึกโครงการ The Base Park West Sukhumvit 77 (เดอะ เบส พาร์ค เวสต์ สุขุมวิท 77) คอนโดพร้อมอยู่ ย่านอ่อนนุช
และ T77 นี้เองที่เป็นพื้นที่ตั้งของคอนโดดีๆ อย่าง คอนโด The Base Park West Sukhumvit 77 (เดอะ เบส พาร์ค เวสต์ สุขุมวิท 77) คอนโด High Rise สูง 39 ชั้น หนึ่งในคอนโดแบรนด์ 'The Base' ที่ออกแบบมาให้ตอบโจทย์ทุกไลฟ์สไตล์ของการใช้ชีวิต ด้วยพื้นที่สีเขียวของธรรมชาติรอบด้านและอยู่ใกล้กับแหล่งไลฟ์สไตล์ที่ครอบคลุมได้ทั้งวันทำงานละวันพักผ่อน
แผนผังอาคารของโครงการ The Base Park West Sukhumvit 77 (เดอะ เบส พาร์ค เวสต์ สุขุมวิท 77)

สำหรับผังอาคารของ The Base Park West Sukhumvit 77 (เดอะ เบส พาร์ค เวสต์ สุขุมวิท 77) จะเห็นว่าทีดินจะแบ่งออกเป็นส่วนของอาคารที่พักและลานจอดรถแยกออกจากกัน ตัวอาคารที่เป็นยูนิตห้องพักจะหันหน้าไปทางทิศตะวันออกและตะวันตกเป็นส่วนใหญ่ ซึ่งถ้าแบ่งตามทิศและวิว สิ่งที่ลูกบ้านเห็นจะเป็นดังต่อไปนี้
ทิศเหนือ - วิวทางด่วนและวิวซอยปรีดีพนมยงค์
ทางทิศใต้ - วิงคลองพระโขนง ถ้าอยู่สูงเกินชั้น 30 ขึ้นไปจะสามารถมองเห็นวิวบางกระเจ้าและเเม่น้ำเจ้าพระยาได้ด้วย
ทิศตะวันตก - ชั้นล่างๆ มองเห็นวิวทางด่วนรามอินทรา ชั้นสูงๆ จะมองเห็นวิวเมืองทางฝั่งสุขุมวิท
ทิศตะวันออก - วิวคลองพระโขนงและถนนอ่อนนุช
ขึ้นมาถึงชั้น 8 จะเป็นพื้นที่ส่วนกลางประกอบด้วย สระว่ายน้ำ, สระเด็ก, ห้องเปลี่ยนเสื้อผ้า, สวน, ฟิตเนส และ Lounge ช่วยสร้างความเป็นส่วนตัวให้กับลูกบ้านที่อยากใช้ส่วนกลางแบบส่วนตัว แยกจากส่วนของห้องพักแบบชัดเจน
ในชั้นที่ 2-38 จะเป็นส่วนของยูนิตที่พักทั้งหมด
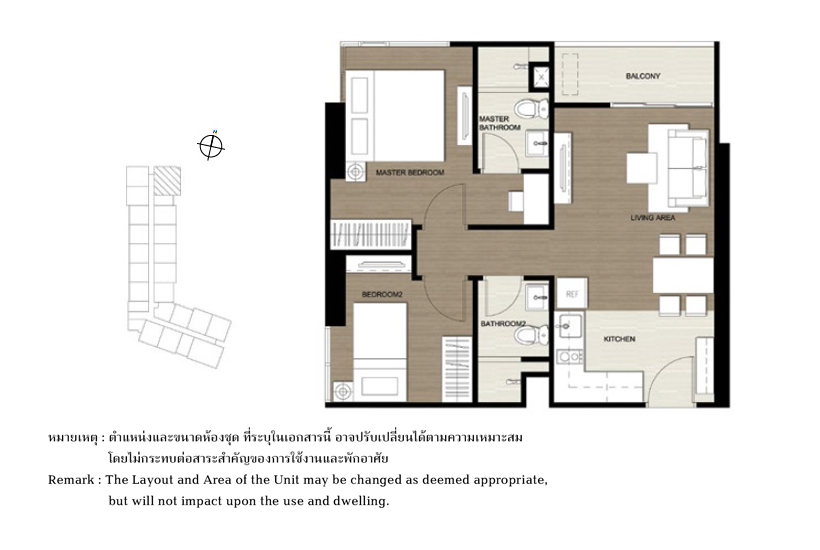
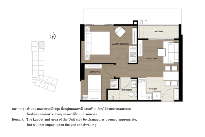
ผังห้องของโครงการ The Base Park West Sukhumvit 77 (เดอะ เบส พาร์ค เวสต์ สุขุมวิท 77)
ภาพบรรยากาศของโครงการ The Base Park West Sukhumvit 77 (เดอะ เบส พาร์ค เวสต์ สุขุมวิท 77)
สรุปรายละเอียดสิ่งอำนวยความสะดวกของคอนโด

Lifestyle :
ใช้เวลา 1 วันที่ The Base Park West Sukhumvit 77 (เดอะ เบส พาร์ค เวสต์ สุขุมวิท 77) @ T77

ใครที่เลือกอยู่คอนโด The Base Park West Sukhumvit 77 (เดอะ เบส พาร์ค เวสต์ สุขุมวิท 77) รับรองว่า ไม่ผิดหวัง เพราะนอกจากจะได้ทำกิจกรรมแบบสนุกๆ บนพื้นที่ Facilities ซึ่งโครงการจัดเตรียมไว้ให้แล้ว 'The Base Park West' ยังมอบความสุขด้านการพักผ่อนให้แบบครบวงจรในด้านไลฟ์สไตล์อีกด้วย
พักสายตาด้วยบรรยากาศสงบที่สะพานแสนสำราญ ณ T77
เริ่มต้นเช้าวันใหม่กับบรรยากาศสบายๆ ใกล้กับคลองพระโขนงที่ช่วยเสริมเสน่ห์ให้กับ T77 โครงการ Mega Project ซึ่งเป็นที่ตั้งของคอนโด The Base Park West Sukhumvit 77 (เดอะ เบส พาร์ค เวสต์ สุขุมวิท 77) ดูเงียบสงบ สมกับเป็นวิถีชีวิตริมคลองแบบดั้งเดิม เราสามารถมองเห็นชาวบ้านพายเรือล่องคลอง วัดวาอารามที่เงียบสงบ ตลอดจนวิวสวยๆ ที่ช่วยทำให้จิตใจอันว้าวุ่นได้หยุดนิ่ง และเข้าใกล้กับคำว่า 'พักผ่อน' ได้มากที่สุด
ช็อป ชิม ชิลล์กันแบบไม่มีวันหยุดได้ทุกวันกับห้างสรรพสินค้าชั้นนำย่านอ่อนนุช
นอกจาก ฮาบิโตะ (Habito) แล้ว The Base Park West Sukhumvit 77 (เดอะ เบส พาร์ค เวสต์ สุขุมวิท 77) ยังอยู่ใกล้กับห้างสรรพสินค้าชั้นนำอีกหลายแห่งไม่ว่าจะเป็น Century The Movie Plaza, Tesco Lotus สุขุมวิท 50, Big C Extra อ่อนนุช เป็นต้น เรียกได้ว่าครบครันด้านการช็อปปิงได้ในทุกๆ วัน แบบไม่ต้องเดินทางไปไหนให้ลำบากเลย!
Location :
ใกล้ความเป็นเมืองด้วยการเดินทางที่สะดวกสบายย่านอ่อนนุช

The Base Park West Sukhumvit 77 (เดอะ เบส พาร์ค เวสต์ สุขุมวิท 77) เป็นคอนโดพร้อมอยู่ ย่านอ่อนนุช ตั้งอยู่ในซอยสุขุมวิท 77 ห่างจากบริเวณ BTS อ่อนนุชประมาณ 1 กิโลเมตรนิดๆ อาจจะไม่ได้ติดกับรถไฟฟ้ามากแต่ก็ยังถือว่าเป็นคอนโดตามแนวรถไฟฟ้าที่สามารถนั่งวินมอเตอร์ไซค์หรือใช้รถโดยสารประจำทางมายัง BTS ได้ง่ายๆ จึงสะดวกสบายสำหรับคนทำงานในย่าน CBD ที่อยากได้คอนโดพร้อมอยู่ ใกล้ใจกลางเมือง
อยู่คอนโด The Base Park West สุขุมวิท 77 ดีไหม
นอกจากจะเข้าสู่ตัวเมืองได้ง่ายในไม่กี่สถานีแล้ว ด้านการออกเมืองก็ยังโดยสารรถไฟฟ้าออกสู่โซนตะวันออกสมุทรปราการได้ แถมยังอยู่ใกล้กับรถไฟฟ้าสายสีเหลือง (ลาดพร้าว – สำโรง) ที่รัฐบาลมีแผนจะพัฒนา ซึ่งเป็นเส้นทางที่เชื่อมต่อกับรถไฟฟ้าแอร์พอร์ตลิงค์บริเวณสถานีพัฒนาการอีกด้วย
ด้านการใช้รถใช้ถนนก็สะดวกสบาย โดยจาก The Base Park West Sukhumvit 77 (เดอะ เบส พาร์ค เวสต์ สุขุมวิท 77) สามารถเชื่อมต่อไปยังย่านสุขุมวิทตอนกลาง อโศก พร้อมพงษ์ ทองหล่อ หรือจะขับออกไปยังฝั่งสุขุมวิทตอนปลายอย่างย่าน แบริ่ง-สมุทรปราการ ได้ง่ายๆ ด้วยการใช้ถนนสุขุมวิทเป็นเส้นทางหลัก
แต่ถ้าใครอยากจะไปทางโซนบางนาแนะนำให้ใช้ถนนศรีนครินทร์แทนการวิ่งเส้นสุขุมวิท หรือจะใช้จุดขึ้น-ลงทางด่วนบริเวณซอยสุขุมวิท 50 เพื่อมุ่งหน้าสู่ย่านสีลม และในซอยสุขุมวิท 62 เองก็เป็นอีกหนึ่งเส้นทางด่วนที่พาคุณมุ่งหน้าสู่ย่านดินแดง-ดาวคะนอง-แจ้งวัฒนะได้เช่นดียวกัน
Analysis :
จุดเด่นของโครงการ The Base Park West Sukhumvit 77 (เดอะ เบส พาร์ค เวสต์สุขุมวิท 77)
- เป็นคอนโดพร้อม ย่านอ่อนนุชจากแสนสิริ
- เป็นหนึ่งในคอนโด High Rise ภายใต้โครงการ T77 เมกกะโปรเจ็กต์ขนาดใหญ่ในชุมชนเมือง
- อยู่ใกล้กับแหล่ง Community mall อย่าง HABITO ซึ่งเป็นแหล่งแฮงค์เอาท์ขนาดใหญ่ในโครงการ T77
- เป็นคอนโดพร้อมอยู่ ในแนวรถไฟฟ้า BTS อ่อนนุช ระยะห่างประมาณ 2.2 กม.
การเดินทางไปยัง The Base Park West Sukhumvit 77 (เดอะ เบส พาร์ค เวสต์ สุขุมวิท 77)
คอนโดตั้งอยู่ในซอยสุขุมวิท 77 ซึ่งถือเป็น Hub คอนโดของย่านอ่อนนุช โดยจากถนนสุขุมวิทเราสามารถเข้าถึงตัวโครงการได้จากถนนอ่อนนุช หรือถนนปรีดีพนมยงค์ 2 ได้ นอกจากนี้ยังสามารถใช้เส้นทางถนนพระราม 9 วิ่งลัดเข้าย่านพระโขนงโดยตรงได้เช่นกัน
ส่วนฝั่งขาออกเมืองสามารถขับเชื่อมต่อจากช่วงแบริ่ง-สมุทรปราการ หรือจะขับจากย่านบางนามุ่งหน้าขับเข้าถนนศรีนครินทร์ก็สามารถมาถึงตัวโครงการได้โดยไม่ต้องผ่านเส้นสุขุมวิทได้เช่นกัน
สิ่งอำนวยความสะดวกจากโครงการ The Base Park West Sukhumvit 77 (เดอะ เบส พาร์ค เวสต์ สุขุมวิท 77)
ตัวโครงการยึดสโลแกน 'ความสะดวกสบาย…มีได้ทุกวัน' จึงจัดเต็มด้าน Facilities ให้กับลูกบ้าน ซึ่งประกอบไปด้วย...
- แสนสิริ แฟมิลี่
- ที่จอดรถ
- เจ้าหน้าที่รักษาความปลอดภัย ตลอด 24 ชั่วโมง
- ห้องออกกำลังกาย พร้อมอุปกรณ์
- อินเตอร์เน็ตไร้สายบริเวณ Lobby และสระว่ายน้ำ
- กล้องวงจรปิดตลอด 24 ชั่วโมง
- สวนส่วนกลาง พร้อมพื้นที่สันทนาการกลางแจ้ง
- สระว่ายน้ำ
แบบห้องของโครงการ The Base Park West Sukhumvit 77 (เดอะ เบส พาร์ค เวสต์ สุขุมวิท 77)
สำหรับแบบห้องของโครงการมีให้เลือกทั้งหมด 3 แบบ แบ่งเป็น ห้อง 2 ห้องนอน ชั้นละ 2 ยูนิต นอกนั้นจะป็นห้องขนาด 1 Bedroom หรือ Studio
The Base Park West Sukhumvit 77 (เดอะ เบส พาร์ค เวสต์ สุขุมวิท 77) ดีไหม เหมาะกับใคร?
เป็นคอนโดที่เหมาะสำหรับคนที่กำลังมองหาคอนโดพร้อมอยู่ในย่านอ่อนนุช-พระโขนง และเน้นการใช้รถยนต์ส่วนตัวในการเดินทางเป็นหลัก ด้านการลงทุนก็ต้องการคอนโดในทำเลมีศักยภาพ โดยสามารถปล่อยเช่าได้ในราคาเฉลี่ยประมาณ 500-600 บาทต่อ ตร.ม. หรือคิดเป็นผลการตอบแทน (Rental Yield) เฉลี่ยอยู่ที่ 5-7%
เดอะ เบส พาร์ค เวสท์ สุขุมวิท 77
592bfdff719b2bc4ff136971
the-base-park-west-sukhumvit-77-เดอะ-เบส-พาร์ค-เวสท์-สุขุมวิท


































