[Review] อิสระใหม่แห่งการใช้ชีวิต The Tree Pattanakarn-Ekkamai (เดอะ ทรี พัฒนาการ-เอกมัย) คอนโดใหม่ตอบโจทย์ทุกความลงตัว
ถนนพัฒนาการ แขวงสวนหลวง เขตสวนหลวง กทม.
บริษัท พฤกษา เรียลเอสเตท จำกัด (มหาชน)

HIGHLIGHTS
- ใกล้สถานีแอร์พอร์ต ลิงค์ รามคำแหง 300 เมตร พร้อมมีท่าเรือราม 1 และรถไฟสายตะวันออกอยู่ในบริเวณเดียวกัน
- สะดวกต่อผู้ใช้รถใช้ถนน เพราะอยู่ใกล้บนถนนพัฒนาการ ห่างจากจุดขึ้น-ลงทางด่วนฉลองรัช ด่านพัฒนาการ 250 เมตร
- ตัวห้องจัดวางแปลนไว้ดูกว้างขวาง และมีความสูงฝ้าเพดานอยู่ที่ 2.8 เมตร
- สำหรับห้อง 2 Bedroom จะได้กระจกโค้งที่มองเห็นวิวได้กว้างกว่า
- ราคาเริ่มต้นที่ 1.59 ล้านบาท พร้อมโปรโมชันผ่อนสบายเพียง 999 บาท/เดือน* 0% นาน 6 เดือนพบกันในงาน VVIP DAY 21 กันยายน 2562
Project Review
เกือบจะกลายเป็นความเคยชิน ที่แต่ละวันเรามักจะพบเจออะไรเดิม ๆ บรรยากาศเดิม ๆ อย่างตื่นเช้ามา ลุกจากเตียงออกไปทำงาน พอเย็นก็กลับห้องมาทานข้าว แล้วเข้านอนเพื่อตื่นขึ้นไปทำงานอีกครั้ง จนบางครั้งก็เกิดเป็นคำถาม ว่านี่คือไลฟ์สไตล์ที่เราต้องการจริง ๆ เหรอ?
คงจะดีกว่า ถ้าเราสามารถสร้างสไตล์ชีวิตของตัวเอง
เปลี่ยนวันที่เคยเหนื่อยล้า จำเจ ให้มีอิสระขึ้นได้…
รายละเอียดโครงการ The Tree Pattanakarn-Ekkama
ชื่อโครงการ : The Tree Pattanakarn-Ekkamai (เดอะ ทรี พัฒนาการ-เอกมัย)
เจ้าของโครงการ : พฤกษา เรียลเอสเตท
ที่ตั้งโครงการ : ถนนพัฒนาการ แขวงสวนหลวง เขตสวนหลวง กทม.
พื้นที่โครงการ : 2-2-73.4 ไร่
ลักษณะโครงการ : อาคาร High Rise สูง 29 ชั้น
จำนวนยูนิต : ห้องชุดพักอาศัย 697 ยูนิต ร้านค้า 2 ยูนิต
รูปแบบห้อง :
- 1 Bedroom 23.15 -30.95 ตร.ม
- 1 Bedroom 31- 40.6 ตร.ม
- 2 Bedrooms : 55.85-56.55 ตร.ม
ที่จอดรถ : ประมาณ 36%
ราคาเริ่มต้น : 1.59 ล้านบาท พร้อมโปรโมชันผ่อนสบายเพียง 999 บาท/เดือน*
Master Plan โครงการ The Tree Pattanakarn-Ekkamai
ตัวอาคารมีลักษณะเป็นรูปตัวยู (U) สูง 29 ชั้น โดยห้องทางฝั่งด้านในจะสามารถมองเห็นวิวพื้นที่ส่วนกลางบริเวณชั้น 5 ได้ชัดเจน
- สำหรับสิทธิ์ที่จอดรถ : 1 ห้องนอนจะได้ที่จอดแบบไม่ระบุตำแหน่ง 1 คัน ส่วน 2 ห้องนอนจะได้ที่จอดแบบไม่ระบุตำแหน่ง 2 คัน
ส่วนใคร หรือครอบครัวไหนที่อยากได้ห้องใหญ่แบบ 2 ห้องนอน ที่ทางโครงการ The Tree พัฒนาการ-เอกมัย ก็จะจัดไว้ให้อยู่บริเวณมุมอาคาร เพียงชั้นละ 2 ห้อง พร้อมด้วยจุดเด่นกระจกโค้งมน ที่จะให้เรามองวิวเมืองได้แบบไม่มีสะดุด
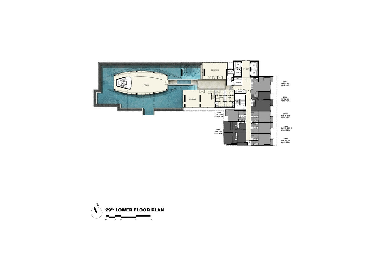
ถัดไปมาดูส่วนของ Facilities พื้นที่ส่วนกลางต่าง ๆ ที่อยู่ภายในโครงการกันบ้าง โดยส่วนใหญ่แล้วจะแบ่งเป็น 3 จุดหลัก คือ บริเวณชั้น 1, 5 และชั้น 29 พร้อมตกแต่งชั้นดาดฟ้าเป็นสวนสวย เพื่อรองรับการพักผ่อน และออกกำลังกายเพิ่มเติม
แต่ก่อนอื่นขอเริ่มที่ด้านในอาคารชั้น 1 กันเลยดีกว่า เมื่อผ่านประตูเข้ามาจะเจอ ‘Hive Lobby’ โถงล็อบบี้สไตล์หรูหรา ดูโมเดิร์น พร้อมแบ่งสัดส่วน จัดสรรเป็นที่นั่งกึ่ง Free Space ให้ทุกคนลงมานั่งพูดคุย ผ่อนคลาย หรืออ่านหนังสือกันได้ และข้าง ๆ กันก็จะมี ‘Hive Mailbox’ ตู้รับจดหมายตามหมายเลขห้อง ให้แวะเข้ามาเช็คเอกสาร พัสดุก่อนขึ้นห้องกัน
ต่อมาจะเป็นพื้นที่ส่วนกลางบนชั้น 5 ที่ออกแบบเป็น ‘Leafy Garden’ สวนหย่อมสวยที่แค่มองลงมาก็สัมผัสได้ถึงความชุ่มชื่น เย็นสบาย เหมือนเป็นจุดพักสายตาให้กับผู้อาศัยทุกคน
ขยับขึ้นไปเพิ่มสีสันให้ชีวิตบนชั้น 29 ที่มาพร้อมพื้นที่ส่วนกลางหลากหลาย ตอบโจทย์คนได้ทุกไลฟ์สไตล์ โดยจุดเด่นของชั้นนี้จะอยู่ที่ Facilities แบบยกชั้น พร้อมตกแต่งสวยงาม ดูมีเอกลักษณ์ ไม่ว่าจะเป็นสระว่ายน้ำ, ห้องฟิตเนส หรือ Co-working space เป็นต้น
กระจกนิรภัยใสยื่นออกไปให้สัมผัสกับวิวได้ใกล้มากขึ้นอีกนิด
สวย ๆ ขณะออกกำลังกาย
เชื่อมต่อทุกกิจกรรมและความชอบให้เข้าถึงมากขึ้น ด้วยพื้นที่ส่วนกลางรูปแบบอิสระ ที่เราสามารถมองเห็นกันและกัน รวมถึงบรรยากาศภายนอกได้ชัดเจนผ่านกระจกบานสูง
ระหว่างที่คนหนึ่งกำลังว่ายน้ำ เล่นฟิตเนสออกกำลังอยู่ อีกคนก็สามารถมานั่งชิลล์รอได้ที่ ‘Sky Lounge’ ส่วนพักผ่อนที่รองรับไลฟ์สไตล์สุดชิลล์ ให้เรายกโน๊ตบุ๊กส์มาทำงาน, หยิบหนังสือมานั่งอ่าน หรือจะพูดคุย ออกแบบสร้างสรรค์อย่างไรก็ตามแต่ใจต้องการเลย
โดยบริเวณนี้ทางโครงการก็จะจัดเตรียม Wifi ไว้ให้เช่นเดียวกับ Hive Lobby, Sky Fitness, Sky Co-Working Nest, Playing Nest และ Recreation Nest ด้วยโดยทางผู้ดูแลโครงการเป็นผู้ดูแล
ปิดท้ายด้วยชั้นดาดฟ้าที่ทางโครงการ The Tree Pattanakarn-Ekkamai ได้ออกแบบให้กลายเป็นสวนพักผ่อน สามารถมองเห็นวิวได้รอบทิศทาง หรือใครจะขึ้นมาออกกำลัง ยืดเส้นยืดสายก็ให้ความรู้สึกสดชื่นไปอีกแบบ แถมมี ‘Sky Nest Garden’ ให้เดินเล่นชิลล์ ๆ รอดูพระอาทิตย์ตก หรือท้องฟ้ายามค่ำคืนด้วย
Floor Plan โครงการ The Tree Pattanakarn-Ekkamai
- 1 Bedroom : ขนาดตั้งแต่ 23.15 - 25.70 ตารางเมตร
- 1 Bedroom : ขนาดตั้งแต่ 25.85 - 27.51 ตารางเมตร
- 1 Bedroom : ขนาดตั้งแต่ 31.55 - 35.25 และ 40.60 ตารางเมตร
และสำหรับใคร หรือครอบครัวไหนที่ต้องการห้องใหญ่ไว้รองรับไลฟ์สไตล์ที่กว้างขึ้น ห้อง 2 Bedrooms ของโครงการเดอะ ทรี พัฒนาการ-เอกมัย ก็นับว่าตอบโจทย์ด้วยขนาดตั้งแต่ 55.85 - 56.55 ตารางเมตร ทั้งยังมีจุดเด่นอยู่ที่กระจกโค้ง ที่ให้เราเปิดรับวิวได้สวยงาม และลื่นไหลขึ้น โดยจะมีอยู่เพียงชั้นละ 2 ห้องเท่านั้น
ถัดมาในส่วนของลิฟต์โดยสารที่จะมีทั้งหมด 3 ตัว และลิฟต์หนีไฟ 1ตัว (ระบบล็อกชั้น) ติดตั้งอยู่บริเวณมุมอาคาร เพื่อให้ความเป็นส่วนตัวแก่การพักอาศัย ซึ่งถ้าหากใครไม่อยากเดินไกล หรือต้องการความสะดวกสบายก็สามารถเลือกห้องทางฝั่งขวามือได้เลย
Room Review 1 Bedroom 29.55 SQ.M
เปลี่ยนความรู้สึกการอยู่คอนโดให้ smooth ด้วยแปลนห้องที่เชื่อมต่อพื้นที่ชีวิตต่าง ๆ ไว้อย่างลงตัว เริ่มต้นด้วย ‘ห้องนั่งเล่น’ กว้างขวางให้เราได้ผ่อนคลายทุกความรู้สึก ก่อนถัดไปจะเป็น ‘ห้องครัวปิด’ ที่มีระเบียงอยู่ด้านใน ช่วยระบายอากาศได้ดียิ่งขึ้น ส่วนอีกฝั่งจะเป็นพื้นที่ ‘ห้องนอน’ มีประตูปิดมิดชิด เพื่อความเป็นส่วนตัว และ ‘ห้องน้ำรับรอง’ ด้านนอก
- บานประตูได้คุณภาพ ซึ่งค่อนข้างกว้างกว่าคอนโดทั่วไป ทำให้เราเคลื่อนย้ายสิ่งของ และเดินผ่านเข้าออกได้สะดวกขึ้น พร้อมติดตั้งกลอนประตูระบบ Digital Door Lock จากแบรนด์ Samsung
- พื้นห้องปูลามิเนตลายไม้ ผนังฉาบเรียบทาสี ส่วนเพดานจะติดไฟดาวน์ไลท์ พร้อมระบบป้องกันอัคคีภัยให้ตามจุดต่าง ๆ
- ระยะฝ้าเพดานสูง 2.8 เมตร ซึ่งนับว่าสูงกว่าคอนโดมิเนียมทั่วไป ทำให้บรรยากาศภายในห้องเปิดโล่ง ไม่อึดอัด
ส่วนใครที่อยากมีพื้นที่ให้นั่งทำงาน อ่านหนังสืออย่างสบายใจ โดยไม่ต้องรบกวนพื้นที่ส่วนอื่น อาจแบ่งสัดส่วนจัดเป็นมุมทำงานส่วนตัวก็ดูเข้าที นอกจากนี้บริเวณด้านหลังโซฟายังสามารถ Built in ชั้นวางของ หรือแขวนรูปภาพสวย ๆ เพิ่มเติมได้
- สำหรับผู้ที่อยากตกแต่งห้องให้มีสไตล์เป็นของตัวเอง อาจหาวอลล์เปเปอร์ลายที่ชอบมาติด หรือจะเลือกเป็นกระจกติดผนังเก๋ ๆ ก็ช่วยให้ห้องดูกว้างขึ้นได้เช่นกัน
ระยะหน้าโซฟากว้างเกือบ 3 เมตร จึงมีพื้นที่มากพอให้เราตั้งโต๊ะกลางไว้วางจานขนม ถ้วยกาแฟระหว่างนั่งดูหนังได้สบาย ส่วนขนาดจอทีวีที่เหมาะสมกับระยะรับชมก็จะสามารถเลือกได้ถึง 42 - 50 นิ้ว พร้อมมีจุดติดตั้งปลั๊กไฟ-สายเคเบิลให้เรียบร้อย
และเมื่อมองขึ้นด้านบนจะมีเครื่องปรับอากาศ Daikin ที่ทางโครงการติดตั้งไว้อยู่บริเวณหน้าห้องครัว ช่วยกระจายความเย็นให้ทั่วทั้งห้องรู้สึกเย็นสบาย
หากใครต้องการพื้นที่เก็บของเพิ่มเติม ก็เพียง Built in ชั้นวางทีวี หรือติดชั้นแขวนผนังเข้าไปได้ตามต้องการ ส่วนบริเวณด้านข้างก็จะเป็นประตูทางเข้าไปยัง ‘ห้องน้ำรับรอง’ ที่อยู่กึ่งกลางระหว่างห้องนอนกับห้องนั่งเล่น ทำให้ใช้งานสะดวกทั้งผู้อยู่ และผู้มาเยือน
- พื้นปูกระเบื้องแบบกันลื่น ลงตัวกับส่วนผนังที่ถูกปูทับด้วยกระเบื้องเช่นกัน
- เพดานด้านบนติดไฟ LED ให้ 2 จุด พร้อมระบบดูดอากาศ สำหรับใช้ระบายอากาศและกลิ่นอับชื้น
บริเวณโซนแห้งจะวางอ่างล้างหน้าไว้ริมสุดตรงกับประตูห้องน้ำ เมื่อเปิดเข้าไปก็สามารถล้างไม้ล้างมือได้ทันที โดยตัวอ่างจะใช้ผลิตภัณฑ์จากแบรนด์ American Stadrad รูปทรงได้มาตรฐาน พร้อมมีตู้เคาน์เตอร์บานเปิด-ปิดแบบ Soft Close ให้เราใช้เก็บของเพิ่มเติมได้ที่ด้านล่าง
สำหรับหนุ่มสาวคนไหนที่มีผลิตภัณฑ์บำรุงผิว โลชั่น ขวดน้ำหอมเยอะ ๆ ก็สบายหายห่วง เพราะทางโครงการได้ทำส่วน Low wall หินไว้ให้วางของได้ตลอดแนว หรือใครจะหาแจกันดอกไม้มาตั้งเพิ่มความสดชื่นให้ห้องก็ดูดีไม่น้อย
ด้านในสุดเป็นห้องอาบน้ำที่กั้นด้วยประตูกระจกบานสูง ช่วยป้องกันน้ำกระเด็นออกมาข้างนอกได้เป็นอย่างดี พร้อมมีราวจับที่แข็งแรงสามารถใช้แขวนผ้าขนหนูได้อีกจุดหนึ่ง
สำหรับชุดฝักบัวที่ได้ ทางโครงการ The Tree พัฒนาการ-เอกมัย จะติดตั้งให้ทั้งแบบ Hand Shower และ Rain Shower พร้อม Drop Wall ทำเป็นช่องให้วางของได้สะดวก ซึ่งเราสามารถหาชั้นวางเล็ก ๆ มาตั้งเสริมไว้ด้านใน เพื่อใช้แบ่งสัดส่วนให้วางของได้เยอะขึ้นได้ด้วย
อาบน้ำเสร็จเรียบร้อยแล้ว ก็เดินไปหยิบผ้าขนหนูที่แขวนอยู่บนราวแขวนจากแบรนด์ American Standrad ตรงข้างประตูห้องน้ำได้เลย
‘ห้องครัวแบบปิด’ มีขนาดกว้างขวาง ซึ่งทางโครงการ เดอะ ทรี พัฒนาการ-เอกมัย จะ Built in ชุดครัวมาให้ครบ ทั้งตู้เก็บของด้านบน และเคาน์เตอร์ครัวด้านล่าง ทั้งยังเหลือพื้นที่ให้วางโต๊ะอาหารเหมือนในห้องตัวอย่างได้สบาย ๆ
- พื้นครัวปูด้วยกระเบื้องแกรนิตโต้ ที่มีความแข็งแรง ทนทาน และทำความสะอาดง่ายกว่ากระเบื้องทั่วไป ส่วนเพดานด้านบนจะติดไฟดาวน์ไลท์ และระบบป้องกันอัคคีภัยให้เรียบร้อย
Top ครัวตอบโจทย์คนชอบทำอาหารด้วยวัสดุที่แข็งแรง มีคุณภาพจาก SCG ไม่ว่าจะเป็นมื้อใหญ่ หรือพิเศษแค่ไหนก็รองรับได้หมดทุกงานครัว รับรองว่าต้องถูกใจเหล่าพ่อครัวแม่ครัวหลายคนอย่างแน่นอน โดยพื้นที่ใช้งานหลัก ๆ ก็จะแบ่งเป็น 3 ส่วน ได้แก่ เตาไฟฟ้า, พื้นที่เตรียมอาหาร และซิงก์ล้างจานนั่นเอง
ทำอาหารอย่างสุขใจด้วยชุดเตาไฟฟ้าขนาด 2 หัว ที่มาคู่กับเครื่องดูดควันระบบปล่อยนอกอาคารจาก FRANKE เราจึงรังสรรค์เมนูต่าง ๆ ได้โดยไม่ต้องกังวลเรื่องกลิ่นและควัน แถมยังใช้งานสะดวก มีพื้นที่ให้จัดเตรียมวัตถุดิบ อุปกรณ์อย่างเหลือเฟือ
ขยับไปอีกฝั่งจะเป็นซิงก์ล้างจานจากแบรนด์ FRANKE เช่นเดียวกัน มีลักษณะเป็นทรงสี่เหลี่ยมหลุมลึก ช่วยให้ล้างภาชนะ แช่ผักผลไม้ได้สะดวก ส่วนตัวก็อกน้ำก็สามารถหมุนปรับทิศทางได้ด้วย
มองลงมายังส่วนของเคาน์เตอร์ครัวด้านล่าง จะแบ่งฟังก์ชันการใช้งานต่าง ๆ ไว้ครบครัน ทั้งถาดใส่ช้อนส้อม, ลิ้นชักเก็บของ, ช่องใส่ไมโครเวฟ, ตู้เก็บของ และตู้ใหญ่ใต้ซิงก์ที่มีถังขยะมาให้ด้วย ส่วนตัวเคาน์เตอร์จะหุ้มด้วยเมลามีนสวยงาม บานเปิด-ปิดทั้งหมดเป็นแบบ Soft Close ช่วยป้องกันเสียงดัง และลดแรงกระแทกขณะใช้งาน
สำหรับตู้เก็บของด้านบนเองก็มีพื้นที่ให้จัดวางขวดโหล, แก้วน้ำ หรือเครื่องครัวต่าง ๆ ได้หลากหลายไม่แพ้กัน
พื้นที่ครัวเชื่อมต่อกับระเบียงที่ให้เราเลื่อนเปิดระบายอากาศได้สะดวกขึ้น ขณะเดียวกันก็ยังช่วยให้ห้องดูสว่างและสดชื่น เหมาะกับการนั่งทานอาหารร่วมกัน โดยเราสามารถปรับเปลี่ยนมุมทานข้าวนี้ได้เองตามใจ อาจทำเป็นเคาน์เตอร์บาร์บิลต์อินเก๋ ๆ หรือติดชั้นลอยสำหรับวางข้าวของเครื่องใช้เพียงอย่างเดียวก็ได้เช่นกัน
ประตูระเบียงเป็นแบบบานเลื่อน 2 ตอน โดยตัวกระจกจะสามารถช่วยป้องกันความร้อนได้ส่วนหนึ่ง บริเวณใกล้กันจะเป็นพื้นที่สำหรับใช้วางตู้เย็นกว้างประมาณ 60 เซนติเมตร และหากใครอยากให้บรรยากาศส่วนนี้เย็นสบายขึ้น ก็อาจติดฟิล์มกันความร้อนเพิ่มเติมได้
เดินออกมายังด้านนอกจะเจอพื้นที่ระเบียงกว้างตามขนาดครัว ซึ่งเพียงพอให้เราวางเครื่องซักผ้าทั้งแบบฝาบนและฝาหน้าได้สบาย ๆ โดยทางโครงการจะติดตั้งระบบท่อน้ำและปลั๊กไฟไว้ให้เรียบร้อย
- พื้นปูกระเบื้องเซรามิก 30×30 เซนติเมตร พร้อมกั้นธรณีประตูสูงประมาณ 2 นิ้ว เพื่อป้องกันน้ำฝนและสิ่งสกปรก
- ราวกันตกสูงราว 1.1 เมตร ส่วนฝั่งที่แขวนคอมเพรสเซอร์แอร์จะมีระแนงสูงขึ้นไปจนถึงเพดาน
ริมระเบียงฝั่งขวามือจะแขวนคอมเพรสเซอร์ทั้ง 2 ตัวไว้ด้านบน ในลักษณะหันหน้าออกนอกอาคาร ทำให้เรามีพื้นที่สำหรับตั้งเครื่องซักผ้า หรือจัดสวนริมระเบียงได้เต็มที่
กลับเข้ามายังพื้นที่ความสุข ที่เป็นเหมือนหัวใจหลักของห้องพักอาศัยอย่าง ‘ห้องนอน’ ที่ให้เราเข้ามาเอนกายเพื่อชาร์ตพลังกันได้ตลอดเวลา ซึ่งโครงการ The Tree Pattanakarn-Ekkamai ก็ได้สร้างบรรยากาศให้ห้องนี้เหมาะสมกับการพักผ่อน ด้วยพื้นที่กว้างขวาง ปลอดโปร่ง และมีช่องรับแสงบานใหญ่อยู่ด้านในสุด
พักผ่อนให้เต็มที่ในห้องนอนขนาดใหญ่ ซึ่งเราสามารถวางเตียง 5-6 ฟุตได้อย่างลงตัว แถมยังมีพื้นที่ให้ Built in โต๊ะเครื่องแป้ง หรือโต๊ะหัวเตียงสำหรับใช้วางโคมไฟ, หนังสือ, ของตกแต่งต่าง ๆ ได้อีกด้วย
มาผ่อนคลายความเหนื่อยล้าด้วยบรรยากาศที่สดใส โดยด้านในสุดของห้องนอนจะมีหน้าต่างบานใหญ่คอยเปิดรับวิว และแสงสว่างจากธรรมชาติ ช่วยให้ห้องปลอดโปร่งขึ้นอีกหลายเท่าตัว ส่วนวันไหนที่แดดจ้า หรืออยากได้ความเป็นส่วนตัวก็แค่เลื่อนม่านปิด
บริเวณปลายเตียงเดินผ่านสะดวก พร้อมติดตั้งจุดเชื่อมต่อสัญญาณโทรทัศน์ให้ครบทั้งปลั๊กไฟ, จุดเชื่อมต่อเคเบิล และสาย LAN ไว้ให้เรานอนดูหนัง ชมซีรีส์เรื่องโปรดได้เต็มอิ่มจนถึงเวลาเข้านอนเลยทีเดียว
ส่วนอีกฝั่งของห้องนอนจะมีตู้เสื้อผ้าที่ทางโครงการ The Tree Pattanakarn-Ekkamai (เดอะ ทรี พัฒนาการ-เอกมัย) บิลต์อินให้ โดยในห้องจริงจะเปลี่ยนเป็นตู้เสื้อผ้าแบบบานทึบ 1 ด้านและอีกด้านติดกระจกเงาให้แทน
สำหรับห้อง 1 Bedroom 29.55 ตารางเมตร จะตกแต่งแบบ Fully Fitted โดยโครงการ The Tree Pattanakarn-Ekkamai จะให้ชุดครัวบิลต์อินครบชุด ที่มาพร้อมเตาไฟฟ้า 2 หัว, เครื่องดูดควัน และซิงก์ล้างจาน ส่วนสุขภัณฑ์ห้องน้ำจะมาจากแบรนด์ Marvel , American Standard และเทียบเท่า, เครื่องปรับอากาศ Daikin จำนวน 2 ตัว อยู่ภายในห้องนั่งเล่นและห้องนอน พร้อมด้วยตู้เสื้อผ้าบิลต์อินอีก 1 ตัว
Room Review 1 Bedroom 25.85 SQ.M
กระชับพื้นที่ให้เข้ากับคนเมืองที่อาศัยอยู่คนเดียวมากขึ้นด้วยห้องขนาด 25.85 ตารางเมตร ที่ภายในยังครบถ้วนด้วยฟังก์ชันการใช้งาน พร้อมกั้น ‘ส่วนครัวปิด’ ให้เรียบร้อย แล้วค่อยรวมหัวใจหลักของการพักผ่อนเข้าไว้ด้วยกัน ทำให้เรามีพื้นที่ให้ออกแบบดีไซน์ชีวิตมากขึ้น
โดยแปลนของห้อง Type นี้จะมีลักษณะเป็นแบบตอนลึก ทอดยาวไปถึงระเบียงด้านนอก ทำให้ห้องสว่างและดูกว้างกว่าที่คิดไว้ อีกทั้งยังเป็นห้องตัวอย่างที่ทางโครงการ The Tree Pattanakarn-Ekkamai ได้ออกแบบไว้ให้เป็นระเบียงแบบเฉียง เพื่อทัศนียภาพที่สวยงามขึ้น ถ้าพร้อมแล้วก็เปิดประตูเข้าไปดูในห้องกันเลย….
“วันนี้ทานอะไรดี ?” หากใครยังคิดไม่ออกก็ลองเข้ามายืนเลือกเมนูใน ‘ห้องครัวปิด’ ที่มีชุดครัวบิลต์อินให้ครบทั้งตู้เก็บของด้านบน และเคาน์เตอร์ครัวด้านล่างเป็นมาตรฐานเดียวกับห้อง Type แรก
ข้างกันจะเป็น ‘ห้องน้ำรับรอง’ ที่ปรับขนาดให้เหมาะสมกับขนาดห้อง แต่ก็ยังคงความสะดวกในการใช้งาน มีการแบ่งโซนแห้งและเปียกด้วยประตูกระจกบานสูง สำหรับชุดสุขภัณฑ์ก็จะมีลักษณะ และดีไซน์เหมือนกันทั้งโครงการ ครบทั้งอ่างล้างหน้า, โถสุขภัณฑ์พร้อมสายฉีดชำระ และแท่นใส่กระดาษทิชชู่, กระจกเงาบานใหญ่ ด้านในสุดติดตั้งชุดฝักบัว Hand และ Rain Shower ให้เรียบร้อย
อ่างล้างหน้าสีขาวสะอาดตา มีเนื้อที่ขอบอ่างให้วางขวดสบู่ หรือเจลล้างมือได้ถนัด ส่วนใครที่มีของบำรุงผิวเยอะ ก็สามารถนำไปวางไว้ที่ส่วนของ Low wall หน้ากระจกได้เลย
ห้องอาบน้ำยังคงดูกว้าง ไม่ค่อยต่างจากห้อง Type 29.55 ตร.ม. สักเท่าไร ทำให้คนตัวใหญ่สามารถใช้งานได้สะดวก พร้อมตกแต่งทำ Drop wall ให้วางของได้เยอะ เหมาะสำหรับคนที่ชอบใช้เวลาและมีความสุขไปกับการอาบน้ำ
- พื้นปูลามิเนตลายไม้ ให้ความรู้สึกอบอุ่น ส่วนผนังจะฉาบเรียบทาสีเช่นเดียวกับส่วนอื่น ๆ พร้อมติดตั้งไฟดาวน์ไลท์ และเครื่องปรับอาการ Daikin ให้อีก 1 ตัว
หากยังไม่อยากนอนก็ลองหาหนังเรื่องโปรด ซีรีส์ที่ชอบมาเปิดดูที่ ‘มุมนั่งเล่น’ ก่อนได้ โดยบริเวณนี้พร้อมจะรองรับชั่วโมงพักผ่อนของเราได้หลากหลาย อย่าง การวางโซฟาตัวกลางไว้นั่งเล่น หรือจะเปลี่ยนเป็นโซฟารูปตัวแอล (L) แบบเข้ามุม ก็ช่วยเพิ่มพื้นที่ให้ชวนเพื่อนมานั่งดูด้วยกันได้มากขึ้น
- ส่วนฝั่งตรงข้ามจะเป็นมุมสำหรับติดตั้งโทรทัศน์ และชั้นวางทีวีที่เราสามารถเลือกเฟอร์นิเจอร์มาตกแต่งเองได้
บรรยากาศที่ดีจะช่วยให้เรามีความสุขกับการใช้ชีวิตมากขึ้น อย่าง ‘มุมทำงาน’ เองก็เป็นอีกไลฟ์สไตล์หนึ่งที่คนรุ่นใหม่หลายคนอยากให้มีอยู่ในห้องของตัวเอง และด้วยพื้นที่ที่กว้าง พร้อมมีวิวให้พักสายตา ทำให้บริเวณนี้เหมาะจะตั้งโต๊ะทำงานสักตัว หรือสาว ๆ จะเปลี่ยนเป็นโต๊ะเครื่องแป้งก็น่าสนใจ เพราะจะได้แสงจากธรรมชาติส่องผ่านเข้ามาเต็ม ๆ
ปลายเตียง Built in ตู้เสื้อผ้าบานใหญ่ที่สามารถรองรับการใช้งานได้ 1 - 2 คน เหมาะสำหรับคนที่ชอบแต่งตัว ซึ่งภายในห้องจริงทางโครงการจะให้เป็นตู้แบบบานทึบแทน
ย้ายตัวเองออกไปยืนมองวิวนอกระเบียง ซึ่งระเบียงของห้องนี้จะมีลักษณะคล้ายกับห้อง Type แรก โดยจะแขวนคอมเพรสเซอร์แอร์ 1 ตัวไว้ด้านบนพร้อมกั้นระแนงปิด เราจึงมีพื้นที่ให้วางเครื่องซักผ้าได้ทั้งแบบฝาหน้าและฝาบน ส่วนพื้นที่ก็จะเฉียงออกเล็กน้อย เพื่อให้ได้มุมองศาที่สวยงาม ไม่ติดสิ่งปลูกสร้างให้ขวางกั้นสายตา
สำหรับห้อง 1 Bedroom 25.85 ตารางเมตร จะยังคงตกแต่งแบบ Fully Fitted ที่ให้เราดีไซน์พื้นที่พักผ่อนได้อย่างอิสระ เหมาะทั้งผู้ที่ชอบความเป็นส่วนตัว และสายเอ็นเตอร์เทนที่อาจขยับเตียงให้เล็กลง แล้วขยายมุมนั่งเล่นให้ใหญ่ขึ้น โดยภายในจะได้เฟอร์นิเจอร์เป็นชุดครัวบิลต์อิน, สุขภัณฑ์ห้องน้ำ, ตู้เสื้อผ้าบิลต์อิน และเครื่องปรับอากาศ Daikin 1 ตัว
Room Review 2 Bedrooms 55.85 SQ.M
แบ่งปันความสุขด้วยขนาดพื้นที่ที่กว้างขึ้น สามารถรองรับการอยู่อาศัยแบบครอบครัวได้สบาย ๆ ด้วยห้อง 2 Bedrooms พร้อมมุมส่วนกลางที่ออกแบบให้มี ‘ครัวปิด’ แบบเปิดโล่งอยู่ใกล้กับ ‘Living Zone’ ทำให้เรามองเห็นกันได้ในทุก ๆ กิจกรรม ขยับไปด้านในจะเป็นพื้นที่ส่วนตัว ที่แยกสัดส่วนเพื่อความสงบในการอยู่อาศัย ประกอบไปด้วย ห้องน้ำรับรอง, ห้องนอนมาตรฐาน และ Master Bedroom ที่มีห้องน้ำอยู่ในตัว
ส่วนการตกแต่งทั่วไปจะยังเหมือนกับ Type ห้องอื่น ๆ พื้นปูลามิเนต ผนังฉาบเรียบทาสี พร้อมติดตั้งไฟดาวน์ไลท์ และระบบป้องอัคคีภัยให้ตามจุดต่าง ๆ ทั่วทั้งห้อง
เอาใจคนรักการทำอาหารไปกับชุดครัวรูปตัวแอล (L) ชิดมุมห้อง เราจึงมีพื้นที่ตรงกลางให้ยืนทำกับข้าวได้สะดวก ไม่ว่าจะเคลื่อนย้ายไปทางไหนก็คล่องตัว หรือจะชวนเพื่อน ชวนคนในครอบครัวเข้ามาเป็นส่วนหนึ่งของมื้อพิเศษนี้ โดยแบ่งหน้าที่กันให้คนหนึ่งล้างภาชนะ วัตถุดิบ ส่วนอีกคนก็ยืนปรุงอาหารได้สบาย ๆ
ย้ายไป ‘โซนนั่งเล่น’ ที่กว้างพอให้จัดสรรพื้นที่ทำเป็นมุมดูหนัง อยู่คู่กับมุมทานอาหารแบบนี้ ซึ่งทางโครงการ The Tree Pattanakarn-Ekkamai จะติดตั้งเครื่องปรับอากาศให้ 1 ตัว และเมื่อมองออกไปจะเจอระเบียงด้านนอก ที่เชื่อมต่อเป็นทางผ่านให้แสงธรรมชาติส่องเข้ามาได้เต็มที่ ทำให้บริเวณสว่าง และเหมาะจะนั่งผ่อนคลายได้ตลอดทั้งวัน
ด้านหลังโซฟามีเนื้อที่เหลือให้ตั้งโต๊ะทานอาหาร พร้อมเก้าอี้นั่งได้อย่างไม่อึดอัด หรือจะเปลี่ยนเป็นเคาน์เตอร์บาร์ก็เก๋ ดูมีสไตล์ไปอีกแบบ ส่วนใครที่อยากให้ห้องดูกว้างขึ้น ก็อาจเลือกติดกระจกตกแต่งผนังเพิ่มเติม เช่นเดียวกับห้องตัวอย่างได้
บริเวณด้านบนแขวนคอมเพรสเซอร์แอร์ทั้ง 3 ตัวให้หันออกนอกอาคาร ช่วยให้อุณหภูมิในห้องไม่ร้อนขึ้น นอกจากนี้ยังมีพื้นที่ให้เราวางเครื่องซักผ้า, ราวตากผ้า หรือจะจัดเป็นมุมกาแฟ Outdoor, สวนริมระเบียงเพื่อเพิ่มความสดชื่นในการอยู่อาศัยก็ทำได้เต็มที่
กลับเข้าภายในห้องส่วน Living Room ที่มองจากข้างหลังจะเห็นว่า พื้นที่ค่อนข้างเยอะ ให้เราออกแบบ ดีไซน์มุมพักผ่อนต่าง ๆ ได้เอง อย่างใครที่ชอบดูหนังเป็นชีวิตจิตใจ ก็อาจ Built in ชั้นวางทีวีไว้ติดตั้งเครื่องเสียง Home Theater หรือจะเอาโต๊ะทานข้าวออก แล้วขยายชุดโซฟาให้เหมาะกับไลฟ์สไตล์ก็เลือกได้เต็มที่
หลังจากดูพื้นที่ส่วนกลางกันไปแล้ว คราวนี้ก็ลองเดินเข้าไปดูพื้นที่ส่วนตัวที่ตอบโจทย์การอยู่อาศัยต่อเลยดีกว่า ซึ่งทางโครงการจะออกแบบคล้ายเป็นทางเดินเข้าไปด้านใน ทำให้พื้นที่ส่วนนี้ค่อนข้างเงียบสงบ มีความเป็นส่วนตัวมากขึ้น
โดยห้องแรกที่เจอจะเป็น ‘ห้องน้ำรับรอง’ ที่อยู่ด้านนอกใกล้กับห้องนั่งเล่น จึงสะดวกต่อผู้อาศัยที่พักอยู่ในห้องนอนมาตรฐาน ตลอดจนแขกที่มาเยือน
สำหรับครอบครัวไหนที่ต้องการพื้นที่ส่วนตัวให้ลูก ๆ ก็สามารถยกห้องนอนนี้ให้ได้เลย ซึ่งภายในจะมีขนาดพอ ๆ กับห้องนอน 1 Bedroom คุณจึงจัดวางเตียง 5 ฟุตได้สบาย พร้อมมีเครื่องปรับอากาศให้เรียบร้อย
มาถึง ‘ห้อง Master Bedroom’ ที่มาพร้อมจุดเด่นอย่าง ‘กระจกโค้ง’ ที่ให้เราซึมซับบรรยากาศ ชมวิวเมืองสวย ๆ ได้อย่างลื่นไหลตลอดการทอดสายตา ส่วนการตกแต่งทั่วไปจะคล้ายกับห้องนอน Type อื่น เช่น ปูพื้นด้วยลามิเนตลายไม้, ผนังฉาบเรียบทาสี พร้อมติดไฟดาวน์ไลท์ และเครื่องปรับอากาศให้เรียบร้อย
ซึ่งเราจะสามารถวางเตียง 5-6 ฟุตไว้นอนพักผ่อนได้สบาย ๆ แล้วอย่าลืมเพิ่มมิติให้ห้องดู Modern Luxury ขึ้นอีกนิด ด้วยไอเดียการตกแต่งกระจกเงา เพื่อเสริมให้ห้องดูกว้างและทันสมัย หรือจะติดเป็นวอลล์เปเปอร์ กรอบรูปที่ชอบก็ดูดีตามสไตล์ของแต่ละคน
วันหยุดเสาร์-อาทิตย์แม้จะไม่ได้ออกไปไหน ก็สามารถนอนเพลิดเพลินอยู่เตียงได้ตลอดทั้งวัน และคงจะดีไม่น้อย ถ้าได้มองเห็นวิวมุมกว้างแบบนี้ทุกวัน ไม่ว่าจะเป็นแสงแดดอ่อน ๆ ยามเช้า หรือแสงไฟของวิวเมืองยามค่ำคืน
สำหรับห้อง Master Bedroom จะได้ตู้เสื้อผ้าบิลต์อิน 1 ตัวอยู่ข้างกับประตูห้องน้ำ ทำให้เราแต่งตัว เปลี่ยนเสื้อผ้าได้สะดวก
ส่วนใครที่อยากได้พื้นที่เก็บของเพิ่ม ก็อาจ Built in ตู้กระจกใส่เข้าไปที่ช่องว่างข้างประตูห้อง ซึ่งทางโครงการ The Tree พัฒนาการ-เอกมัย ก็ได้ตกแต่งเป็นตู้เสื้อผ้าอีกบานให้ดูเป็นตัวอย่างด้วย
สะดวกต่อการอยู่อาศัยด้วย ‘ห้องน้ำส่วนตัว’ ที่อยู่ภายในห้อง Master Bedroom โดยส่วนประกอบต่าง ๆ จะเหมือนกับห้องน้ำด้านนอก แต่จะให้ความเป็นส่วนตัวมากขึ้นอีกนิด เพราะแค่เดินจากห้องน้ำมา ก็เจอตู้เสื้อผ้าแล้ว
Location & Lifestyle : ทำเลที่เชื่อมเมืองสู่เมือง
ชวนกันออกไปพบเจอสิ่งใหม่ในเส้นทางอิสระกับถนนพัฒนาการ-เอกมัย ทำเลที่เหมือนจะไม่มีอะไรน่าตื่นเต้น แต่ด้วยเอกลักษณ์ความเรียบง่าย เป็นกันเองเนี้ยแหล่ะ ที่ดึงดูดทำให้หลายคนหันกลับมามองย่านนี้เสียใหม่
แถมยังอยู่ใกล้จุดขึ้นลงทางด่วนฉลองรัช ด่านพัฒนาการเพียง 250 เมตร เสมือนตัวช่วยที่จะพาเราไปไหนก็ได้ ทั้งในและนอกเมือง
ส่วนบริเวณด้านล่างสถานีรามคำแหงเองก็มี ‘การรถไฟแห่งประเทศไทย’ ไว้ให้เราเลือกใช้ยามที่ไม่รีบร้อนนัก เหมาะจะนั่งชิลล์ ๆ ออกไปเที่ยวตามต่างจังหวัดแถบภาคตะวันออก อย่าง ชลบุรี ฉะเชิงเทรา เป็นต้น นับเป็นตัวเลือกที่สะดวก ประหยัด และผ่อนคลายไปอีกแบบ หรือหากใครต้องการความรวดเร็ว แบบที่ไม่อยากไปเผชิญปัญหาบนท้องถนน บริเวณนี้ก็ยังมี ‘ท่าเรือรามหนึ่ง’ ให้เลือกใช้บริการด้วย
ส่วนใครที่อยากหาของอร่อยทานระหว่างวัน บริเวณรอบ ๆ โครงการก็มีคาเฟ่ ร้านอาหารสไตล์คนรุ่นใหม่เปิดขายกันอยู่ ทั้งร้านอาหารไทย, อาหารสไตล์ตะวันตก สเต็ก-สปาเก็ตตี้, ร้านอาหารสุขภาพคลีน ๆ, Coffee House ไปจนถึง Street Food ที่แม้แต่ชาวต่างชาติยังยืนรอซื้อ
หรือถ้าใครอยากไปหาความสนุกที่ย่านอื่น ๆ ใกล้เคียง ก็แค่ขับออกจากหน้าโครงการ แล้ววนรถออกไปเที่ยวที่ย่านเอกมัยได้ง่าย ๆ ในเวลาไม่ถึง 10 นาที
แวะมาทักทายเพื่อนบ้านย่านเอกมัย ทำเลไลฟ์สไตล์ขึ้นชื่ออีกหนึ่งแห่งของกรุงเทพมหานคร ที่มีทั้ง Community Mall, Cafe, แหล่ง Hang out และร้านอาหารอร่อยให้นั่งกิน นั่งพักผ่อนกันได้ในช่วงวันหยุดเสาร์-อาทิตย์
ร้านคาเฟ่เอกมัยหลายร้าน ล้วนมีจุดเด่นน่ารัก ๆ ให้เราอยากเข้าไปเช็กอิน อย่างร้าน Zakka เองก็ตกแต่งมาในสไตล์ญี่ปุ่น ดูอบอุ่น มินิมอล แถมยังมีเสื้อผ้า, กระเป๋า, ของตกแต่งขายอยู่ด้านในด้วย
ส่วนร้านต้นตำรับที่เปิดมานานอย่าง ‘วัฒนาพานิช’ ก็ยังได้รับความสนใจมาจนถึงทุกวันนี้ ด้วยเมนูเนื้อตุ๋นสูตรเฉพาะ ที่แค่เราเดินผ่านก็ได้กลิ่นหอมฟุ้งลอยออกมาจากหม้อตุ๋นใบโตแล้ว
ตรงข้ามกันจะเป็น ‘Acmen Ekamai’ อเวนิวขนาดย่อมที่มีร้านอาหารอร่อยตั้งอยู่
โดยหนึ่งร้านที่น่าสนใจ เหมาะจะมาใช้เวลาร่วมกันก็ต้องนี่เลย ‘Sheldon’ คาเฟ่ แอนด์ บอร์ดเกม ที่เป็นพื้นที่สำหรับคนรักบอร์ดเกมส์ ภายในแบ่งเป็นโซนต่าง ๆ ให้เราสนุกกันตลอด 24 ชั่วโมง และถ้ารู้สึกหิวเมื่อไรก็สามารถเดินไปสั่งเมนูหรือเครื่องดื่มที่หน้าเคาน์เตอร์ได้เลย
ขับรถต่อไปอีกหน่อยจะเจอสี่แยกที่เป็นทางลัดไปยัง ‘พระโขนง’ เพื่อนบ้านอีกหนึ่งแห่งที่อยู่ไม่ไกลจากโครงการ แต่ตอนนี้เราขอเลี้ยวขวาพาทุกคนไปชอปที่ Shop Store ชื่อดังบนย่านเอกมัยกันก่อนดีกว่า
ต้องบอกเลยว่า ข้างในห้างนี้มีสินค้าหลากหลายมาก ตั้งแต่ของกิน, ของใช้, วัตถุดิบของสดประกอบอาหาร, ขนมนำเข้า, อุปกรณ์ครัว, เครื่องสำอาง และอีกสารพัดสิ่งของที่เราแทบไม่ต้องเดินทางไปญี่ปุ่น ก็สามารถซื้อหากันในนี้ได้
แม้แต่ผลไม้นำเข้าก็ยังดูสดใหม่น่าทาน ไม่ว่าจะเป็นลูกพีชสีสวย, สตอว์เบอร์รี่ลูกโต หรือเมล่อนหอม ๆ ที่แค่เดินผ่านก็อยากหยิบกลับไปนั่งทานที่ห้องแล้ว
หากใครที่สนใจ The Tree พัฒนาการ-เอกมัย
คอนโดใหม่ใกล้ Airport Link รามคำแหง 300 ม.
ก็มาพบกันได้ใน งาน VVIP DAY 21 กันยายน 2562
- เริ่ม 1.59 ล.* ผ่อน 999 บ.* รับเพิ่ม 0% 6 เดือน
- ลงทะเบียนรับส่วนลดสูงสุด200,000 บาท คลิก
- ชมห้องตัวอย่างที่สำนักงานขาย หรือสอบถามเพิ่มเติมโทร 1739
เดอะ ทรี พัฒนาการ-เอกมัย (The Tree Pattanakarn-Ekkamai)
5d7897992d17abf3bfd237f9
20005186

















































































































