[Review] The Tree Onnut Station (เดอะ ทรี อ่อนนุช สเตชั่น) สัมผัสความคุ้มค่า บนทำเลครบครัน พบทุกสีสันของการใช้ชีวิต
ซอยสุขุมวิท 54 แขวงบางจาก เขตพระโขนง กรุงเทพมหานคร

Review Info :
เมื่อความคุ้มค่าปรากฏอยู่ตรงหน้าใครล่ะจะอดใจไหว

เคยคิดเล่นๆ กันไหมว่า หนึ่งวันเราใช้เวลาหมดไปกับเรื่องอะไรมากที่สุด ?
แน่นอนว่า สำหรับการใช้ชีวิตในเมืองใหญ่อย่างกรุงเทพมหานคร เวลาของเราส่วนใหญ่มักจะหายไปกับ ‘การเดินทาง’ ไม่ว่าจะเป็นการออกไปทำงานในช่วงเช้าของทุกวัน หรือจะออกไปใช้ชีวิตในแบบที่ฝันในวันหยุด...จนบางทีก็อยากให้วันหนึ่งมีมากกว่า 24 ชั่วโมง เพื่อเก็บตกทุกวินาที และใช้ชีวิตได้เต็มที่มากยิ่งขึ้น
เพราะแบบนี้เราจึงไม่ควรละเลยเรื่องของที่อยู่อาศัย ต้องเลือกให้ครบครัน พร้อมตอบโจทย์ทุกไลฟ์สไตล์การใช้ชีวิตในแบบที่คุณต้องการ และนี่คือที่มาของคอนโดพร้อมอยู่จากพฤกษา The Tree Onnut Station (เดอะ ทรี อ่อนนุช สเตชั่น) คอนโด Low Rise ในซอยสุขุมวิท 54 ที่มาพร้อมกับความคุ้มค่า ในราคาที่จับต้องได้ บนทำเลศักยภาพอย่าง ‘อ่อนนุช’ ที่จะช่วยอัพเกรดเวลาชีวิตของคุณให้ดีมากกว่าที่เคย
รายละเอียดโครงการ The Tree อ่อนนุช สเตชั่น

เจ้าของโครงการ : บริษัท พฤกษา เรียลเอสเตท จำกัด
ที่ตั้งโครงการ : ซอยสุขุมวิท 54 แขวงบางจาก เขตพระโขนง กทม.
เนื้อที่โครงการ : 1-1-26 ไร่
ประเภทโครงการ : คอนโด Low rise สูง 8 ชั้น และชั้นใต้ดิน 1 ชั้น จำนวน 1 อาคาร
จำนวนยูนิต : 166 ยูนิต
ยูนิตต่อชั้นสูงสุด : 25 ยูนิต
แบบห้อง :
1 Bedroom 25.75 – 34.3 ตร.ม.
1 Bedroom Plus 38.95 ตร.ม.
ที่จอดรถ : 73 คันคิดเป็น 44% รวมจอดซ้อนคัน คิดเป็น 52%
ราคาเฉลี่ยต่อตารางเมตร : 115,000 บาท/ตร.ม.
ราคาเริ่มต้น : 2.9 ล้านบาท
เว็บไซต์โครงการ : The Tree Onnut Station (เดอะ ทรี อ่อนนุช สเตชั่น)
Insight :
ความคุ้มค่าในราคาจับต้องได้ที่ The Tree อ่อนนุช สเตชั่น
The Tree Onnut Station (เดอะ ทรี อ่อนนุช สเตชั่น) ถือว่าตั้งอยู่บนทำเลศักยภาพอีกแห่งหนึ่งของสุขุมวิทตอนกลาง ที่หาได้ยากแล้วในอนาคต เนื่องจากที่ดินในย่านใจกลางเมืองกำลังถูกพัฒนาเป็นสิ่งอำนวยความสะดวกต่างๆ มากขึ้น ทำให้เกิดการขยายตัวของเมือง จากเดิมที่กระจุกตัวอยู่แถว CBD อย่างอโศก, พร้อมพงษ์, ทองหล่อ และเริ่มกระจายสู่ทำเลใกล้เคียง ซึ่งอ่อนนุชก็เป็นอีกหนึ่งทำเลที่รองรับการขยายตัวของเมืองจนกลายเป็น “HUB ที่อยู่อาศัยใหม่ของทั้งชาวไทยและชาวต่างชาติ”
รู้จัก The Tree Onnut Station (เดอะ ทรี อ่อนนุช สเตชั่น) คอนโดพร้อมอยู่ใกล้รถไฟฟ้า BTS อ่อนนุช
ชื่อ ‘The Tree’ คงเป็นชื่อโครงการที่หลายคนคุ้นหูกันเป็นอย่างดี เนื่องจากเป็นแบรนด์คอนโดจากค่ายพฤกษา Developer ชั้นนำของประเทศไทย โดยเฉพาะโครงการ The Tree Onnut Station (เดอะ ทรี อ่อนนุช สเตชั่น) ที่เปิดตัวอยู่ในย่าน Hub ที่อยู่อาศัยของกรุงเทพฯ แถมยังมีที่ตั้งอยู่ใกล้กับรถไฟฟ้า BTS อ่อนนุช ในระยะเดินถึงเพียง 480 เมตร
ทิศที่ตั้งของอาคาร The Tree Onnut Station (เดอะ ทรี อ่อนนุช สเตชั่น)

แต่ถ้าหากแบ่งตามทิศที่ตั้งของอาคาร จะแบ่งเป็น...
- ด้านข้างอาคารทางฝั่งทิศตะวันตกจะติดกับร้านค้าสูงประมาณ 2 ชั้น
- ส่วนทางด้านทิศตะวันออกจะเป็นตัวอาคารจอดรถของ Phill Community mall ที่อยู่ใกล้ๆ สูงประมาณ 8 ชั้น
- ด้านหน้าอาคารหันออกมาจะเป็นถนนคั่นกลางระหว่างอาคารพาณิช์สูง 4 ชั้น
- ด้านหลังอาคารส่วนหนึ่งจะเป็นที่ดินเปล่าและสิ่งก่อสร้างสูงประมาณ 3-4 ชั้น
แผนผังอาคารของคอนโด The Tree Onnut Station (เดอะ ทรี อ่อนนุช สเตชั่น)
The Tree Onnut Station (เดอะ ทรี อ่อนนุช สเตชั่น) เป็นคอนโด Low rise สูง 8 ชั้นจำนวน 1 อาคาร ตั้งอยู่บนพื้นที่ขนาด 1-1-26 ไร่ ในซอยสุขุมวิท 54 ซึ่งเป็นซอยที่มีจุดเด่นในเรื่องของความสงบ เพราะอยู่ในย่านชุมชน
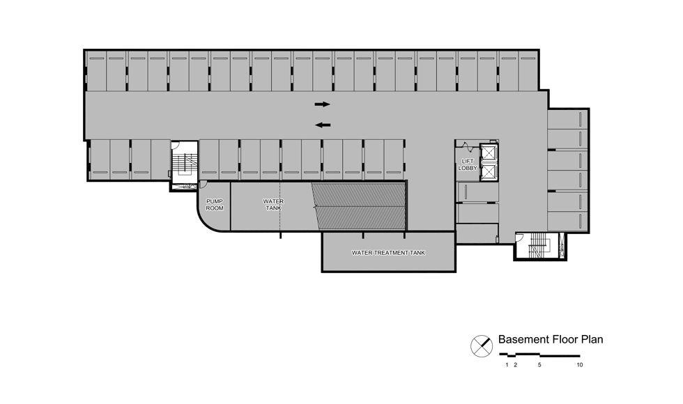
สำหรับผังชั้น Ground Floor จะเห็นว่าที่ดินมีลักษณะเป็นหน้ากว้าง ปากทางเข้าติดกับถนนซอยสุขุมวิท 54 ด้านหน้าทางเข้ามีระบบรักษาความปลอดภัยทั้งรปภ. และการใช้ระบบ keycard access ในการเข้าใช้บริการลานจอดรถ ซึ่งมีที่จอดรถให้ 44% รวมการจอดแบบซ้อนคัน ทั้งแบบจอดใต้อาคารและจอดใต้ดิน
ส่วนด้านในอาคารของ The Tree อ่อนนุช สเตชั่น ในชั้น Ground floor จะเป็น Lobby เพดานสูงโปร่งที่สามารถเดินเข้าตัวอาคารได้จากทางด้านหน้าอาคารและลานจอดรถ นอกจากนี้จะมีห้องนิติบุคคล, Mail box และมีโถงลิฟต์แบบล็อกชั้น ให้มาทั้งหมด 2 ตัวด้วยกัน
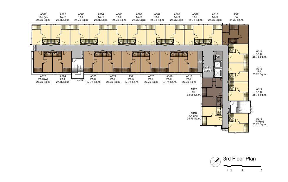
นอกจากส่วนกลางแล้ว ชั้น 2 ยังมีจำนวนที่พักอาศัยทั้งหมด 19 ยูนิต โดยมีประตูกั้นแยกส่วนกัน ทำให้เกิดความสงบและปลอดภัยแม้จะอยู่ใกล้กับพื้นที่ส่วนกลาง
สำหรับชั้น 3-8 จะเป็นพื้นที่พักอาศัยแบบเต็มๆ โดยห้องพักที่นี่จะเน้นเป็นขนาด 1 Bedroom ทั้งหมด เหมาะกับกลุ่มหนุ่มสาววัยทำงาน หรือถ้าอยากจะขยายพื้นที่ให้กว้างขึ้นก็เลือกเป็นห้องแบบ 1 Bedroom Plus ที่มีห้องอเนกประสงค์เพิ่มเข้ามาก็ได้
สำหรับทิศที่ตั้งของห้องพักส่วนใหญ่จะหันไปในทางทิศตะวันออกเฉียงใต้และตะวันตกเฉียงเหนือ โดยห้องที่รับลมได้ดีที่สุดจะเป็นห้องทางฝั่งสระว่ายน้ำ
ในชั้น 7 จะพิเศษขึ้นมาอีกนิด เพราะนอกจากห้องพักแล้ว ยังมีสวนแบบ Out door เล็กๆ สำหรับออกมานั่งเล่นในช่วงวันหยุดได้
ชมบรรยากาศน่าอยู่สไตล์เงียบสงบของคอนโด The Tree Onnut Station (เดอะ ทรี อ่อนนุช สเตชั่น)

The Tree Onnut Station (เดอะ ทรี อ่อนนุช สเตชั่น) ได้มอบความคุ้มค่าให้กับผู้พักอาศัยด้วยบรรยากาศสงบที่หาได้ยากในย่านใจกลางเมือง ด้วยการเลือกทำเลที่ตั้งให้อยู่ภายในซอยสุขุมวิท 54 ที่เป็นย่านชุมชน พร้อมทั้งออกแบบอาคารมาในโทนสีน้ำตาล-เทาดูสบายตา และยังไม่ลืมที่จะสร้างพื้นที่สีเขียวเล็กๆ สอดแทรกไว้รอบๆ อาคารเพื่อเพิ่มความสดชื่นให้แก่การอยู่อาศัยมากยิ่งขึ้น
The Tree Onnut Station (เดอะ ทรี อ่อนนุช สเตชั่น) จัดพื้นที่จอดรถไว้ให้สำหรับลูกบ้านเป็นแบบจอดใต้อาคารและชั้นใต้ดิน โดยคิดเป็น 40% รวมการจอดแบบซ้อนคัน ซึ่งลูกบ้านส่วนใหญ่จะเน้นการใช้บริการรถไฟฟ้า หรือไม่ก็เป็นกลุ่มคนที่ทำงานอยู่ในละแวกอ่อนนุชอยู่แล้ว จึงไม่มีปัญหาเรื่องที่จอดรถจะไม่เพียงพอต่อความต้องการ
ด้านข้างอาคารมีพื้นที่สวนสีเขียวขนาดเล็กไว้สำหรับนั่งพักผ่อนและเดินเล่นได้ตลอดทั้งวัน
ภายในอาคารของ The Tree Onnut Station (เดอะ ทรี อ่อนนุช สเตชั่น) จัดพื้นที่นั่งรับรองบริเวณ Lobby เป็นแบบโถงเพดานสูงให้ความรู้สึกโปร่งโล่งตั้งแต่เดินเข้ามา นอกจากนี้ก็มีห้อง Mail box แยกช่องใส่จดหมายให้ตามห้อง และห้องนิติบุคคลอยู่ไกลกัน ส่วนโถงลิฟต์จะเข้า-ออกด้วยระบบ Keycard Access ซึ่งมีประตูเข้าได้ 2 ฝั่ง ทั้งจากฝั่งลานจอดรถและด้านโถง Lobby ของโครงการ
ขึ้นมายังชั้น 2 ของอาคารฝั่งหนึ่งจะเป็นพื้นที่ส่วนกลางประกอบด้วยสระว่ายน้ำ, ห้องฟิตเนส, ซาวน่าและ Living Lounge โดยบริเวณนี้จะมีประตูช่วยกันเสียงและความวุ่นวายแยกระหว่างส่วนที่พักอาศัยและส่วนการทำกิจกรรมให้เรียบร้อย เริ่มเปิดให้บริการตั้งแต่ 7.00-22.00 น.
เพิ่มสมาธิให้จดจ่อกับการทำงานมากขึ้นด้วย Living Lounge พื้นที่นั่งเล่นที่เปรียบเสมือน Co-working space ของคนรุ่นใหม่ ใช้ทำงานก็ได้หรืออ่านหนังสือก็ดี
เรียกเหงื่อให้ร่างกายฟิต แอนด์ เฟิร์ม ด้วยห้องฟิตเนสที่มีอุปกรณ์สำหรับการออกกำลังกายแบบครบครัน พร้อมทั้งสร้างความสุนทรีย์ให้เพิ่มขึ้นด้วยวิวสระว่ายน้ำที่มองเห็นได้จากภายในยิม
ตามมาติดๆ กับการดูแลสุขภาพให้เลือดลมได้สูบฉีดที่ “ห้องซาวน่าแยกชาย-หญิง” ช่วยให้ร่างกายแข็งแรงได้มากขึ้นไปอีกขั้น
ส่วนใครที่จะใช้บริการสระว่ายน้ำก็มีจุดล้างตัวให้ พร้อมอุปกรณ์ป้องกันอันตรายขณะเล่นน้ำอย่างเสื้อชูชีพและห่วงยาง
สำหรับสระว่ายน้ำของโครงการ The Tree Onnut Station (เดอะ ทรี อ่อนนุช สเตชั่น) เป็นสระว่ายน้ำระบบเกลือ ขนาด 5 x 15 เมตร แบ่งเป็นสระเด็กลึก 5 x 5 เมตร และสระผู้ใหญ่ลึก 0.6 เมตร โดยรอบๆ สระมีจุด Deck pool สำหรับนั่งพักรับลมเย็นๆ ได้
ใกล้ชิดความเงียบสงบในแบบชุมชนน่าอยู่มากขึ้นด้วยสวนหย่อมขนาดย่อมที่อยู่ติดกับสระว่ายน้ำ
ขึ้นมาถึงชั้น 7 จะมีสวนส่วนกลาง Roof Garden ที่บริเวณด้านหน้าอาคารฝั่งทางทิศตะวันออกเฉียงเหนือ ให้เราได้ขึ้นมานั่งเล่นหลบแดดหลบร้อนกันได้ชิลล์ๆ ในช่วงเย็น
จากความสูงของ The Tree อ่อนนุช สเตชั่น ทำให้สามารถมองเห็นวิวเมืองของย่านอ่อนนุชได้อยู่เหมือนกัน
แผนผังห้องของคอนโด The Tree Onnut Station (เดอะ ทรี อ่อนนุช สเตชั่น)
แบบห้องทั้งหมดของคอนโด The Tree อ่อนนุช สเตชั่น จะเป็นแบบ 1 Bedroom โดยมีการจัด Layout ดังนี้
1 BR 25.75 SQ.M. (ห้องตัวอย่าง) :
หลังจากที่เราได้ไปเยี่ยมชม Sale Gallery ที่ The Tree Onnut Station (เดอะ ทรี อ่อนนุช สเตชั่น) มาแล้วครั้งหนึ่ง คราวนี้มาชมห้องจริงในบรรยากาศจริงกันดูดีกว่าว่า จะน่าอยู่และคุ้มค่ากับการลงทุนซื้อขนาดไหน
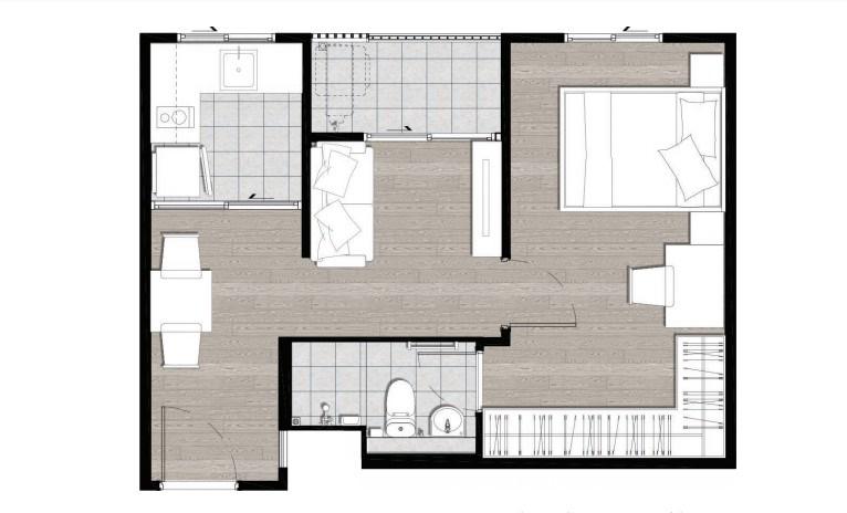
แบบห้อง 1 Bedroom พื้นที่ใช้สอย 25.75 ตารางเมตร
ห้องของคอนโด The Tree Onnut Station (เดอะ ทรี อ่อนนุช สเตชั่น) จะเป็นโปรโมชั่น Fully Furnished ที่มาพร้อมกับเฟอร์นิเจอร์แบบลอยตัวสำหรับยูนิตที่ร่วมรายการ นอกจากนี้ยังมีวอลล์เปเปอร์, ชุดเคาน์เตอร์ครัว, เครื่องปรับอากาศและสุขภัณฑ์แถมให้ครบชุดพร้อมลากกระเป๋าเข้าอยู่ได้ทันที
The Tree Onnut Station (เดอะ ทรี อ่อนนุช สเตชั่น) คำนึงถึงระบบของความปลอดภัยในการอยู่อาศัยด้วยการติดตั้ง Digital door lock ของ COLT หรือเทียบเท่า และมีตาแมวมาให้ ส่วนด้านหลังประตูมี Door stopper ป้องกันประตูกระแทกกับผนังจนเกิดเสียงดัง
ห้องนั่งเล่นของคอนโด The Tree Onnut Station (เดอะ ทรี อ่อนนุช สเตชั่น)
เมื่อเดินเข้ามาภายในห้องจะเจอกับส่วนของห้องนั่งเล่นก่อนเป็นอันดับแรก โดยแปลนห้องแบบนี้จะเหมาะสำหรับคนที่มีเพื่อนเยอะ ชอบพบปะสังสรรค์กัน
พื้นห้องถูกปูด้วยลามิเนตสีอ่อนทำให้ห้องดูกว้างและสบายตา นอกจากนี้โครงการยังแถมโซฟาแบบสองที่นั่งและชั้นวางทีวีมาให้ ซึ่งจากระยะชั้นวางไปจนถึงโซฟาจะกว้างประมาณ 1.5 เมตร ทำให้สามารถติดตั้งทีวีขนาด 32-42 นิ้วได้สบายๆ
โซฟาขนาดสองที่นั่งนี้กว้างพอที่จะใช้พักผ่อนได้สบาย ส่วนด้านข้างก็ยังเหลือพื้นที่ให้วางโต๊ะกลางสำหรับการตกแต่งเพิ่มเติมได้ด้วย
ชั้นวางทีวีแบบตั้งพื้นสามารถปรับเปลี่ยนให้เป็นชั้นวางของแต่งห้อง ส่วนทีวีอาจย้ายขึ้นไปติดไว้กับผนังแทนก็ได้ เพื่อเป็นการเพิ่มพื้นที่ใช้สอยในห้องให้มากขึ้น
ตรงด้านหลังชั้นวางโทรทัศน์ จะติดตั้งปลั๊กและระบบ cable สำหรับการใช้งานทีวีไว้ให้เรียบร้อย
ฝ้าเพดานของห้องสูงประมาณ 2.5 เมตร ทำให้ห้องขนาด 25.75 ตร.ม. นั้นดูโปร่งมากขึ้นกว่าที่เคย นอกจากนี้ยังเชื่อมต่อพื้นที่ของห้องนั่งเล่นและห้องครัวเข้าไว้ด้วยกัน ทำให้ Space ภายในห้องดูมีมากขึ้นไปอีกระดับ ทั้งยังมองแล้วรู้สึกโล่ง สบายตา น่าอยู่อาศัย
สำหรับระบบไฟภายในห้องจะเป็นดาวน์ไลท์ (Down light) พร้อมติดตั้งเครื่องตรวจจับสัญญาณควันไฟเพื่อความปลอดภัยไว้ให้เป็นมาตรฐานเดียวกันทั้งโครงการ
ห้องครัวของคอนโด The Tree Onnut Station (เดอะ ทรี อ่อนนุช สเตชั่น)
ห้องครัวของ The Tree อ่อนนุช สเตชั่น เหมาะกับไลฟ์สไตล์ของคนรักการทำอาหารแบบเบาๆ เน้นการอบหรือซื้อแบบสำเร็จรูปมานั่งทานที่ห้อง แต่ถ้าใครอยากได้ครัวไว้สำหรับเตรียมอาหารแบบจริงจัง แนะนำให้กั้นพาร์ทิชั่นเพิ่ม เพื่อป้องกันกลิ่นและควันรบกวนส่วนอื่นๆ ของห้อง
ทางโครงการ The Tree Onnut Station (เดอะ ทรี อ่อนนุช สเตชั่น) จัดชุดครัว Built-in มาให้สวยงาม โดยจะแยกเป็นตู้เก็บของด้านบนและเคาน์เตอร์ครัวด้านล่าง พร้อมมีพื้นที่เก็บของหลากหลายฟังก์ชัน ทั้งช่องวางไมโครเวฟ, ลิ้นชัก และตู้เก็บของใต้อ่างล้างจาน
บริเวณ Top ครัวเป็นลามิเนตสีขาว มีอ่างล้างจาน, เตาไฟฟ้า และเครื่องดูดควันมาให้ครบชุด ส่วนด้านหลังผนังมีการปิดทับด้วยกระเบื้องสีดำทำเป็น Backsplash เพื่อใช้ป้องกันรอยเปื้อนและคราบสกปรกจากการประกอบอาหาร เมื่อต้องการทำความสะอาดก็ง่ายดาย เพียงแค่ใช้ผ้าชุบน้ำเช็ดเท่านั้น
ด้านบนเคาน์เตอร์ติดตั้งปลั๊กไฟไว้ให้สำหรับใช้เสียบอุปกรณ์ไฟฟ้าที่จำเป็นในการประกอบอาหาร
เตาไฟฟ้าของ The Tree Onnut Station (เดอะ ทรี อ่อนนุช สเตชั่น) ให้มาแบบ 2 หัว ยี่ห้อ MEX หรือเทียบเท่า ส่วนด้านบนจะติดตั้งเครื่องดูดควัน ไว้ช่วยระบายกลิ่นและควันเวลาทำอาหารให้ดียิ่งขึ้น
อ่างล้างจานเป็นแบบสเตนเลสหลุมเดี่ยวก้นลึก เหมาะสำหรับงานล้างหรือจะใช้แช่ผักผลไม้ก็สะดวก ส่วนก๊อกน้ำก็สามารถหันปรับเปลี่ยนทิศทางได้ จึงสะดวกสบายต่อการใช้งานมากยิ่งขึ้น
มุมรับประทานอาหารเหมาะสำหรับผู้อยู่อาศัย 1-2 คน ตั้งอยู่ใกล้กับพื้นที่ระเบียง ซึ่งบริเวณจะทำหน้าที่เป็นช่องแสงธรรมชาติ ช่วยให้ห้องของเราสว่างมากขึ้น
ระเบียงของคอนโด The Tree Onnut Station (เดอะ ทรี อ่อนนุช สเตชั่น)
ประตูระเบียงเป็นประตูบานเลื่อนแบบสองตอน กรอบสีดำ ส่วนพื้นธรณีประตูก็จะยกสูงขึ้นมาจากพื้นภายในห้องปกติประมาณ 3 นิ้ว เพื่อป้องกันสิ่งสกปรกและน้ำไหลย้อนเข้ามาด้านใน
พื้นที่ระเบียงของ Tree Onnut Station (เดอะ ทรี อ่อนนุช สเตชั่น) ค่อนข้างกว้างขวางพอให้เราสามารถตกแต่งทำสวนริมระเบียงได้สบายๆ
ส่วนคอมเพรสเซอร์แอร์จะแขวนหันหน้าเข้าระเบียง ซึ่งถ้าใครซักผ้าเป็นประจำ แนะนำให้ติดราวตากผ้าไว้ที่ฝั่งตรงข้าม รับรองว่าหมดห่วงเรื่องผ้าไม่แห้งเลย
พื้นระเบียงปูด้วยกระเบื้องเซรามิกสีเทา ขนาด 30x30 ซม. พร้อมติดตั้งระบบท่อน้ำและก็อกสนามให้เรียบร้อย สำหรับการใช้งานเครื่องซักผ้า
ห้องนอนของคอนโด The Tree Onnut Station (เดอะ ทรี อ่อนนุช สเตชั่น)
ขยับเข้ามาในห้องนอน ที่ทางโครงการ The Tree อ่อนนุช สเตชั่น ได้จัดพื้นที่พักผ่อนส่วนนี้ให้แยกออกจากส่วนอื่นอย่างชัดเจน เพื่อให้ความเป็นส่วนตัวและตอบโจทย์ช่วงเวลาพักผ่อนมากยิ่งขึ้น
ทางคอนโดจัดเตรียมเฟอร์นิเจอร์มาให้แบบพร้อมอยู่ มีฐานเตียงขนาด 5 ฟุต, ตู้เสื้อผ้า, เครื่องปรับอากาศ และโต๊ะข้างหัวเตียง โดยจะเน้นรองรับไลฟ์สไตล์การพักผ่อนที่ผู้อยู่สามารถปรับเปลี่ยนได้เองตามความชอบ
เครื่องปรับอากาศที่ทางโครงการจัดเตรียมให้เป็นของยี่ห้อ Daikin หรือเทียบเท่า จำนวน 1 ตัว
ส่วนบริเวณปลายเตียงนั้น เราสามารถออกแบบตกแต่งห้องได้เอง เช่น การติดตั้งทีวีแบบแขวนผนังที่บริเวณปลายเตียง หรือถ้าต้องการเพิ่มความ Luxury อาจลองตกแต่งด้วยผนังด้วยกระจก, กระเบื้องลายหินอ่อน หรือกรอบรูปสวยๆ สักอัน ถ้าใครไม่อยากให้พื้นที่ตรงนี้ลดลงอาจเปลี่ยนไปติดเป็นวอลล์เปเปอร์แทนก็ได้เช่นกัน
ให้ชีวิตสุนทรีย์มากขึ้นด้วยช่องแสงธรรมชาติ มีหน้าต่างบานสไลด์แบบ 2 ตอนที่ทำหน้าที่คอยเปิดรับแสงอาทิตย์ในแต่ละวัน
นอกจากเตียงที่เป็นพระเอกของห้องแล้ว ทางโครงการยังบิลท์อินตู้เสื้อผ้าบานสไลด์มาให้ โดยหน้าบานจะปิดทับด้วยกระจกเงาไว้สำหรับการแต่งตัว
ส่วนบริเวณหน้าตู้จะเหลือพื้นที่ให้ตั้งโต๊ะทำงานเล็กๆ ได้ หรือจะเปลี่ยนเป็นโต๊ะเครื่องแป้งน่ารักๆ ไว้สำหรับนั่งแต่งหน้าแทนก็ไม่ว่ากัน
ห้องน้ำของคอนโด The Tree Onnut Station (เดอะ ทรี อ่อนนุช สเตชั่น)
ห้องน้ำของคอนโด The Tree Onnut Station (เดอะ ทรี อ่อนนุช สเตชั่น) จะอยู่ภายในห้องนอน เพื่อความสะดวกในการใช้งานตอนกลางคืน โดยด้านในจะติดตั้งชุดสุขภัณฑ์ให้ครบชุดเป็นมาตรฐานเดียวกันทั้งโครงการ
พื้นและผนังปูด้วยกระเบื้องเพื่อให้ง่ายต่อการทำความสะอาด นอกจากนี้ยังมีการแยกพื้นที่โซนเปียกและแห้งออกจากกันอีกด้วย
สำหรับโซนแห้งจะติดตั้งอ่างล้างหน้าและโถสุขภัณฑ์ของ Cotto เอาไว้ข้างกัน ส่วนด้านหลังจะติดตั้งกระจกบานใหญ่ไว้ให้ พร้อมเพิ่มพื้นที่ใช้สอยแบบ Low wall สำหรับใช้วางสิ่งของเพิ่มเติม
โถสุขภัณฑ์จะเป็นแบบ Dual Flush ซึ่งจะช่วยในการประหยัดน้ำ และติดตั้งสายฉีดชำระกับที่ใส่กระดาษทิชชู่ไว้ด้านข้าง ให้หยิบใช้งานได้สะดวก
สำหรับไฟในห้องน้ำจะเป็นแบบโคมซาลาเปาที่ตรงกลางเป็นระบบระบายอากาศในตัว
ฝั่งโซนเปียกในห้องจริงนั้นจะไม่ได้กั้นพาร์ทิชั่นให้ แต่ผู้พักอาศัยสามารถติดตั้งเพิ่มเองได้
หน้าห้องอาบน้ำจะยกธรณีขึ้นสูงเล็กน้อย เพื่อป้องกันน้ำไหลย้อนออกมาเปื้อนด้านนอก
ภายในติดตั้งชุดฝักบัวของ Cotto ให้ครบชุด เมื่อมองขึ้นไปจะเป็นตำแหน่งสำหรับติดตั้งเครื่องทำอุ่น เมื่อติดตั้งแล้วก็อย่าลืมเดินสายดินทุกครั้งเพื่อความปลอดภัย
1 BR 25.75 SQ.M. (ห้องจริง) :
แบบห้อง 1 Bedroom พื้นที่ใช้สอย 25.75 ตารางเมตร (ห้องจริง)

เมื่อได้ชมไอเดียการตกแต่งห้องแบบจัดเต็มกันไปแล้ว คราวนี้ก็ถึงเวลาของห้องจริงที่ทางโครงการ The Tree Onnut Station (เดอะ ทรี อ่อนนุช สเตชั่น) เปิดให้เข้าชมกันบ้าง ซึ่งห้องนี้จะเป็นห้องขนาด 25.75 ตร.ม. เช่นเดียวกับห้องตัวอย่าง
เฟอร์นิเจอร์ที่ได้จะมีทั้งแบบ Built-in และลอยตัว โดยในห้องนั่งเล่นจะได้เป็นชุดโซฟาและชั้นวางทีวี
ส่วนพื้นที่ครัวจะมีโต๊ะรับประทานอาหารพร้อมเก้าอี้ให้ 2 ตัว และมีเคาน์เตอร์ครัวแบบ Built-in ที่แยกชั้นบน-ล่างไว้ตามฟังก์ชั่นการใช้งาน
ถัดมาเป็นระเบียงห้องที่ค่อนข้างกว้างเหมาะสำหรับงานซักล้าง มีพื้นที่ให้วางเครื่องซักผ้าและจัดสวนแนวตั้งได้สบายๆ
สำหรับห้องนอนจะวางฐานเตียงและตู้เสื้อผ้าบานสไลด์ที่หน้าบานด้านหนึ่งได้ตกแต่งด้วยกระจกให้เรียบร้อย เหมาะสำหรับใช้แต่งตัว
ขนาดเตียงที่ได้รับจะเป็นขนาด 5 ฟุต ซึ่งด้านข้างจะมีโต๊ะข้างหัวเตียงให้ 1 ตัว และติดตั้งเครื่องปรับอากาศให้อีก 1 ตัว (สำหรับห้องขนาด 1 Bedroom) ซึ่งทางโครงการจะติดให้ไว้ที่บริเวณห้องนอน
ภายในห้องน้ำประกอบไปด้วยสุขภัณฑ์ครบชุดทั้ง ชักโครก, อ่างล้างหน้า, สายฉีดชำระ, ที่ใส่กระดาษทิชชู่ และฝักบัว โดยสุขภัณฑ์ทั้งหมดจะเป็นของ Cotto ตามมาตรฐานเดียวกับห้องตัวอย่างทุกประการ
Location :
The Tree Onnut Station (เดอะ ทรี อ่อนนุช สเตชั่น) ตั้งอยู่บน “อ่อนนุช” ทำเลแห่งการพักอาศัยที่ยอดเยี่ยม เนื่องจากซอยสุขุมวิท 54 ยังคงความเงียบสงบและวิถีชุมชนดั้งเดิมไว้ได้เป็นอย่างดี เหมาะสำหรับคนที่ต้องการความพื้นที่สงบ ผู้คนไม่พลุกพล่าน ซึ่งสถานที่แห่งนี้สามารถมอบช่วงเวลาแห่งการพักผ่อนนั้นให้คุณได้แน่นอน
ขนส่งสาธารณะระบบรางด้วย “รถไฟฟ้า BTS อ่อนนุช”
การเดินทางไป โครงการ The Tree Onnut Station (เดอะ ทรี อ่อนนุช สเตชั่น) ได้มอบความสะดวกสบายให้แก่ผู้ใช้ระบบขนส่งสาธารณะอย่าง รถไฟฟ้า BTS เพราะคอนโดตั้งอยู่ใกล้กับสถานีอ่อนนุชเพียง 480 เมตร และยังสามารถเชื่อมถึงใจกลางเมือง CBD ได้ภายในเวลาอันรวดเร็ว
บริการรับ-ส่งในเวลาเร่งรีบอย่างวินมอเตอร์ไซค์
ในช่วงเวลาที่เร่งรีบนั้นจะขาดการให้บริการที่รวดเร็วฉับไวอย่างวินมอเตอร์ไซด์ไปไม่ได้ เพราะในย่านอ่อนนุชแห่งนี้ แทบจะเรียกได้ว่ามีวินมอเตอร์ไซต์ตั้งอยู่เกือบทุกหัวมุมถนน แถมบางช่วงเวลาที่การสัญจรคึกคักเป็นพิเศษอย่างชั่วโมง Rush Hour ก็มักพบการเรียกใช้บริการอยู่ตลอดเส้นทาง
การเดินทางด้วยรถยนต์ไป The Tree Onnut Station (เดอะ ทรี อ่อนนุช สเตชั่น)
“อ่อนนุช” เป็นโซนพักอาศัยที่พร้อมรองรับการขยายตัวเป็น CBD ขนาดใหญ่ของอโศก ซึ่งปัจจุบันได้ผันตัวกลายเป็น Hub ไว้เชื่อมพื้นที่พักอาศัยเข้ากับใจกลางเมืองต่างๆ และพร้อมด้วยเส้นทางขึ้น-ลงทางด่วนที่ครบครัน
จุดขึ้นทางด่วนอาจณรงค์ จะอยู่ภายใน “ซอยสุขุมวิท 50” ทำให้สามารถเดินทางเข้าออกเมืองได้อย่างสะดวกสบายรวดเร็วภายในเวลา 20 นาทีถึงย่านสีลม
และหากการเดินทางบนถนนสุขุมวิทเส้นหลักนั้นใช้เวลานานเกินไป ภายในซอยสุขุมวิท 54 ก็ยังมีทางลัดเชื่อมออกไปยังซอยสุขุมวิท 50 ได้เช่นกัน
หากใครต้องการมุ่งหน้า “ดินแดง-ดาวคะนอง-แจ้งวัฒนะ” ก็สามารถมาใช้ทางด่วนที่อยู่ภายในซอยสุขุมวิท 62 ได้เช่นกัน ซึ่งเราสามารถเดินทางจากซอยสุขุมวิท 54 ได้โดยไม่จำเป็นต้องออกไปทางถนนสุขุมวิทเส้นหลักเลยด้วยซ้ำ เรียกว่าเราสามารถเลือกใช้ทางด่วนได้หลากหลาย เพื่อให้ไปถึงจุดหมายได้เลยอย่างสะดวกรวดเร็ว
แผนที่การเดินทางของโครงการ The Tree Onnut Station (เดอะ ทรี อ่อนนุช สเตชั่น)
The Tree Onnut Station (เดอะ ทรี อ่อนนุช สเตชั่น) ตั้งอยู่บนทำเลที่ได้เปรียบด้านเส้นทางการเชื่อมต่อที่หลากหลายและง่ายดาย ทำให้เหมาะสำหรับทั้งผู้ที่ใช้รถยนต์และผู้ที่ใช้บริการรถสาธารณะ
Lifestyle :
พื้นที่แห่งความสงบรอบโครงการ The Tree Onnut Station (เดอะ ทรี อ่อนนุช สเตชั่น)
บรรยากาศภายในซอยสุขุมวิท 54 จะค่อนข้างเงียบสงบ จนเผลอลืมไปเลยว่า “เรากำลังอยู่ในย่านอ่อนนุช ที่ใกล้ใจกลางเมืองสุขุมวิท” ส่วนตัวโครงการ The Tree Onnut Station (เดอะ ทรี อ่อนนุช สเตชั่น) จะติดกับ Community Mall จากพฤกษา ที่มีนามว่า Phyll (ฟิล) ทำให้เดินได้ค่อนข้างสะดวก
ซอยสุขุมวิท 54 จะมีบรรยากาศของชุมชนดั้งเดิมที่เงียบสงบ เหมาะแก่การพักผ่อนอย่างยิ่ง เพราะแทบจะไม่ได้รับเสียงรบกวนจากท้องถนน หรือรถไฟฟ้าเลย
จุดเด่นอันยอดเยี่ยมของซอยสุขุมวิท 54 คือ มีสำนักงานเขตพระโขนงตั้งอยู่บริเวณหน้าปากซอย ซึ่งเป็นส่วนสำคัญอย่างหนึ่งที่สามารถการันตีได้ว่า ที่ซอยสุขุมวิท 54 นี้จะได้รับความปลอดภัยและความสะอาดในระดับดีทีเดียว
สีสันของความอิ่มท้องบนทำเลอ่อนนุช ใกล้ The Tree Onnut Station (เดอะ ทรี อ่อนนุช สเตชั่น)
“ร้านอาหารพริกหอม” นับว่าเป็นร้านดังที่มีความน่าสนใจมากร้านหนึ่งในย่านอ่อนนุชฝั่งเลขคู่ เพราะความเข้มข้นของรสชาติอาหาร ที่เสิร์ฟพร้อมความอร่อยสมราคา ด้านบรรยากาศร้านจะแบบดั้งเดิมที่ดูสะอาดตาและอบอุ่น เสมือนได้ลิ้มรสฝีมือคุณแม่
แหล่งไลฟ์สไตล์สำคัญของโครงการ The Tree Onnut Station (เดอะ ทรี อ่อนนุช สเตชั่น) คือ Phyll (ฟิล) ซึ่งเป็น Community Mall จากพฤกษา ที่อยู่ติดกับโครงการ ภายในรวบรวมร้านอาหาร, คาเฟ่ และ Co-working space สำหรับคนที่ต้องการพื้นที่นั่งเล่นผ่อนคลาย เอาใจคนรักสุขภาพด้วย ฟิตเนส 24 ชั่วโมง ให้เราเข้ามาออกกำลังกาย ฟิต&เฟิร์ม ได้เครื่องกันไปเลยได้เต็มที่
ก่อนเดินทางไปทำงานช่วงเช้า ก็สามารถแวะทานอาหารเช้าราคาประหยัด รสชาติอร่อย ได้ใกล้ๆ กับTesco Lotus อ่อนนุช
เสน่ห์ของTesco Lotus อ่อนนุช แห่งนี้ คือ นอกจากจะสามารถหาซื้อสินค้า-ของใช้ภายในบ้านได้แล้ว บริเวณด้านหน้าห้างยังมีตลาดนัดใกล้รถไฟฟ้า BTS ให้แวะเวียนเข้ามาเดินเล่นได้ โดยเฉพาะช่วงหลังเลิกงานบรรยากาศจะเริ่มคึกคักเป็นพิเศษ
ถ้าใครชอบหากต้องการดูหนัง แนะนำให้ลองไปเดินชิลล์ๆ ที่ศูนย์การค้า Century The Movie Plaza ได้ ภายในมีร้านค้าหลากหลายทั้ง Tops Market, B2S และอื่น ๆ อีกมากมาย
ส่วนช่วงไหนอยากไปเดินเล่น เที่ยวชมภาพความครึกครื้นของความเป็นสังคมเมือง ก็สามารถไปได้ที่ซอยสุขุมวิท 77 เพราะตลอดสองฝั่งทางล้วนเต็มไปด้วยร้านค้า, ตลาด และสาธารณูปโภคหลากหลาย นับเป็นสัญลักษณ์ที่แสดงถึงความอุดมสมบูรณ์ของย่านที่พักอาศัย “อ่อนนุช” เลยทีเดียว
บนซอยสุขุมวิท 77 จะมี T77 ที่มี Community Mall น่าเดินเล่นพักผ่อนอย่าง Habito ที่มาพร้อมกับร้านอาหารน่าทานและพื้นที่เดินเล่นสวยงามร่มรื่นรายล้อม
ครบครันทุกจังหวะของความสุข
ปัจจุบันย่านอ่อนนุชได้รับอิทธิพลความเป็นใจกลางเมืองมาจากสุขุมวิท จึงทำให้มีโรงเรียนนานาชาติเข้ามารองรับความต้องการและมักมีชาวต่างชาติย้ายเข้ามาอยู่มากขึ้น อย่างเช่น Bangkok Prep International School
Wells International School ตั้งอยู่ตรงข้ามกับซอยสุขุมวิท 54/1 และซอยสุขุมวิท 56 ก็เป็นหนึ่งในโรงเรียนนานาชาติในย่านอ่อนนุช ทำให้ชาวต่างชาติเริ่มให้ความสนใจและขยับถิ่นฐานเข้ามาอยู่ในละแวกนี้มากขึ้น
Analysis :
The Tree Onnut Station (เดอะ ทรี อ่อนนุช สเตชั่น) เป็นหนึ่งในโครงการจากพฤกษา ที่เข้ามาตีตลาดอ่อนนุชได้อย่างสวยงามไม่แพ้ที่อื่น ที่พักอาศัยอันเงียบสงบเหมาะแก่การพักผ่อน แต่ขณะเดียวกันก็ยังคงสะดวกด้านการเดินทางได้อย่างลงตัวด้วยช่องทางที่หลากหลาย
จุดเด่นของโครงการThe Tree Onnut Station (เดอะ ทรี อ่อนนุช สเตชั่น)
- ใกล้รถไฟฟ้า BTS สถานีอ่อนนุชเพียง 480 เมตร
- เดินทางสะดวกสบายด้วยระบบคมนาคมที่หลากหลายเส้นทางและยังใกล้ทางขึ้น-ลงทางด่วนถึงสองทาง
- ได้บรรยากาศชานเมืองแบบชุมชนทั้งที่อยู่ใจกลางเมือง
- ติดกับ Community Mall อย่าง Phyll จากพฤกษา
- ราคาที่เอื้อมถึง เฉลี่ยต่อตารางเมตรทั้งโครงการประมาณ 115,000 บาท/ตร.ม. โดยเริ่มต้นที่ราคาไม่ถึง 3 ล้านบาทที่นับว่าหาได้ยากแล้วในย่านนี้
- ในการลงทุนย่านอ่อนนุช โครงการThe Tree Onnut Station (เดอะ ทรี อ่อนนุช สเตชั่น) นับว่าให้ผลตอบแทนที่คุ้มค่าด้วยห้องราคา 3 ล้านนี้ สามารถปล่อยเช่าได้ถึง 16,000 บาทต่อเดือน คิดเป็น Yield 6% เรียกว่าเหมาะทั้งการซื้อเพื่อการลงทุนและการซื้อเพื่ออยู่เอง
- อยู่ในทำเลที่อุดมสมบูรณ์และสามารถหาของกินของใช้ได้อย่างครบครันเพียงก้าวเดิน
การเดินทางไปยัง The Tree Onnut Station (เดอะ ทรี อ่อนนุช สเตชั่น)
ถนนสุขุมวิท เป็นเส้นทางที่เชื่อมใจกลางเมืองแห่งต่างๆ เข้าด้วยกัน จึงมีรถสัญจรค่อนข้างมาก แต่ถึงเช่นนั้นการเดินทางภายในซอยของสุขุมวิทก็ยังคงสะดวกสบาย สามารถเชื่อมต่อออกไปสู่ทางด่วนได้ง่าย ช่วยกระชับเวลาและระยะทางในการเข้า-ออกเมือง ขณะเดียวกันก็สามารถไปยังรถไฟฟ้า BTS สถานีอ่อนนุชได้ไม่ไกล ในระยะเดินถึง
สิ่งอำนวยความสะดวกจากโครงการ The Tree Onnut Station (เดอะ ทรี อ่อนนุช สเตชั่น)
ปกติพื้นที่ส่วนกลางของโครงการ Low Rise มักจะมีไม่มากนัก แต่สำหรับ The Tree Onnut Station (เดอะ ทรี อ่อนนุช สเตชั่น) นับว่ามีเยอะพอสมควร ทั้งที่ตั้งอยู่บนชั้น 2 และบริเวณสวนหย่อมบนชั้น 7 เพื่อให้ผู้พักอาศัยพักผ่อนได้เต็มที่กว่าที่เคย
- สระว่ายน้ำระบบเกลือทั้งเด็กและผู้ใหญ่
- ห้องฟิตเนส
- ห้องซาวน่า
- สวนหย่อม
แบบห้องของThe Tree Onnut Station (เดอะ ทรี อ่อนนุช สเตชั่น)
The Tree Onnut Station (เดอะ ทรี อ่อนนุช สเตชั่น) ออกแบบห้องพักมาเพื่อตอบสนองการพักผ่อนได้อย่างเป็นสัดเป็นส่วน พร้อมให้ความเป็นส่วนตัวด้วยอยู่จำนวนห้องเพียง 166 ห้องเท่านั้น
- 1 ห้องนอน ขนาดประมาณ 25.75 ตารางเมตร
- 1 ห้องนอน ขนาดประมาณ 27.75 ตารางเมตร
- 1 ห้องนอน ขนาดประมาณ 34.30 ตารางเมตร
- 1 ห้องนอน พลัส ขนาดประมาณ 38.95 ตารางเมตร
ราคา The Tree Onnut Station (เดอะ ทรี อ่อนนุช สเตชั่น)
การตามหาที่พักอาศัยที่ให้ทั้งความเงียบสงบ ได้ทั้งกลิ่นอายของชุมชนดั้งเดิมในย่านอ่อนนุชนั้น นับว่าเป็นเรื่องยาก แต่ The Tree Onnut Station (เดอะ ทรี อ่อนนุช สเตชั่น) ยังใกล้กับแหล่งไลฟ์สไตล์อีกมากมาย ที่มาพร้อมความสะดวกสบายในการเดินทาง ให้ผู้พักอาศัยสามารถเชื่อมต่อไปยังย่านสำคัญๆ ใจกลางเมืองได้อย่างง่ายดายอีกด้วย ตอบโจทย์ทั้งผู้ใช้รถยนต์และระบบขนส่งสาธารณะอย่างรถไฟฟ้า BTS ในราคาเริ่มต้นเพียง 2.9 ล้านบาท เรียกว่าคุ้มค่าทั้งด้านการลงทุนและซื้อไว้อยู่อาศัยเอง
เดอะ ทรี อ่อนนุช สเตชั่น
586235581de72e0bd265f459
the-tree-onnuch-station-เดอะ-ทรี-อ่อนนุช-สเตชั่น
















































































