[Review] WYNN Condo โชคชัย4 คอนโด Low Rise บรรยากาศส่วนตัว ในถนนโชคชัย 4 ใกล้รถไฟฟ้าสายสีเหลือง
ถนนโชคชัย 4 แขวงสะพานสอง เขตวังทองหลาง กรุงเทพมหานคร

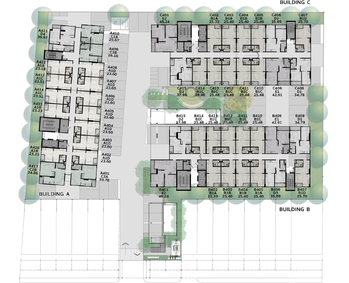
Project Infomation
WYNN Condo โชคชัย4 คอนโด Low Rise บรรยากาศส่วนตัว ในถนนโชคชัย 4 ใกล้รถไฟฟ้าสายสีเหลือง
WYNN Condo โชคชัย4 โครงการคอนโดมิเนียมสูง 8 ชั้น 3 อาคารในถนนซอยโชคชัย 4 ใกล้กับ Big C เดินทางสะดวกเข้าออกทะลุได้ทั้งจากลาดพร้าวและเกษตร-นวมินทร์ ใกล้กับเส้นรถไฟฟ้าในอนาคตสายสีเหลือง เหมาะกับคนเมืองที่ชอบใช้ชีวิตชิลล์ๆ จาก Asset Wise
Factsheet
WYNN Condo (วินน์ คอนโด ลาดพร้าว-โชคชัย4)
- ผู้พัฒนา Asset Wise
- ที่ตั้ง ถนนโชคชัย 4 เขตวังทองหลาง กรุงเทพมหานคร
- ขนาดที่ดิน 2-1-54 ไร่
- ลักษณะอาคาร อาคารชุดพักอาศัย 8 ชั้น 3 อาคาร
- ยูนิตห้องพักในโครงการ 325 ยูนิต
- จำนวนที่จอดรถ 40 % รวมจอดซ้อนคัน
- ค่าส่วนกลาง 45 บาท/ ตร.ม.
WYNN Condo (วินน์ คอนโด ลาดพร้าว-โชคชัย4)
ที่ตั้งโครงการ ถ.โชคชัย4 เขตวังทองหลาง กรุงเทพมหานคร
ราคาเริ่มต้น 1.6 ล้านบาท
Project Insight
เจาะลึกภาพรวมโครงการ WYNN Condo (วินน์ คอนโด ลาดพร้าว-โชคชัย4)

















แบบห้องของโครงการมี 2 Type หลักๆก็คือแบบ 1 Bedroom และ 2 Bedroom โดยแบบห้อง 1 Bedroom จะแยกเป็นอีก 3 แบบห้องได้แก่ Extra, Exclusive และ Plus ซึ่งสามารถจัดเป็นแบบ 2 ห้องนอนได้





2 Bedroom 42.91 sq.m.
ห้องตัวอย่าง 2 ห้องนอน ขนาด 42.91 ตร.ม. ของโครงการ WYNN Condo (วินน์ คอนโด โชคชัย4)
แบบห้องตัวอย่างแบบแรกที่เราจะพามาชมกันก็คือ แบบ 2 Bedroom 42.91-48.24 ตารางเมตร
ประตูห้องได้บานไม่สีขาว มือจับก้านโยก โครงการติด Digital Door Lock ของ Samsung ได้แบบนี้เหมือนกันทุกยูนิต
เปิดเข้ามาส่วนแรกจะเจอกับประตูห้องนอนใหญ่ ข้างๆคือพื้นที่ห้องนั่งเล่น ที่เราจะเข้าไปดูกันก่อน
พื้นในห้องจะได้เป็น Smart Vinyl ข้อดีคือทน และเช็ดทำความสะอาดง่าย ไม่บวมน้ำง่ายเหมือนพื้นลามิเนต
ห้องนั่งเล่นจะอยู่หน้าห้องนอนเล็กที่เป็นห้องกั้นด้วยประตูบานกระจก สำหรับเฟอร์นิเจอร์ที่โครงการแถมให้ในจุดต่างๆ สังเกตุได้จากสติกเกอร์สีเขียวๆติดอยู่ได้เลย ติดตรงไหนก็แถมตรงนั้น
โซฟาให้มาแบบ 2 ที่นั่ง กางออกมาเป็นที่นอนได้ เผื่อวันไหนมีเพื่อนๆมาหาก็นอนได้สบาย
มีโต๊ะกลางแบบพอนั่งกินข้าวได้ 1 ตัว นั่งดูทีวีกำลังสบาย ระยะห่างจากทีวีประมาณ 3 เมตร
ฝั่งตรงข้ามเป็นพื้นที่ติดตั้งทีวี ไซด์บอร์ดด้านล่างบิ้วท์อินติดผนังมาให้เป็นเฟอร์นิเจอร์ตามโปรโมชั่นของแถม พื้นที่ติดทีวีก็มีเยอะอยู่สามารถติดได้ถึงขนาด 40 นิ้ว
ไฟในห้องได้เป็นดาวน์ไลท์ดวงสี่เหลี่ยม มีลำโพงติดมาให้ 1 ตัว
ลำโพงที่ให้มาก็คือลำโพงที่เชื่อมกับ Bluetooth Stereo System ที่โครงการแถมให้
ต่อมาข้างๆโซฟาจะเป็นพื้นที่ครัวซึ่งได้เป็นครัวเปิด และมีโต๊ะทานอาหารมาให้
โต๊ะทานข้าวให้มาแบบ 2 ที่นั่ง เป็นเฟอร์นิเจอร์แบบลอยตัว ใครไม่อยากวางติดกับโซฟาก็ขยับขยายได้
เคาท์เตอร์ครัวให้มาเป็นบิ้วท์อิน มีช่องเก็บของทั้งด้านบนและด้านล่าง ข้างๆเป็นที่วางตู้เย็น วางได้ถึง 8 คิว สองประตู หรือถ้าใหญ่กว่านั้นต้องวัดพื้นที่ไม่ให้ไปติดช่วงประตูทางเข้าห้อง
เปิดตู้เก็บของออกมาได้ช่องเก็บตามนี้ ช่องบนเหนืออ่างล้างจานเป็นจุดติดกล่อง Service เอาไว้
อ่างล้างจานให้มาแบบ 1 หลุม ไม่มีที่พักจานข้างๆ แต่ Top ของเคาท์เตอร์เป็นวัสดุสังเคราะห์สามารถเช็ดทำความสะอาดง่ายอยู่แล้ว หาถาดรองจานมาวางสักอันก็โอเค
ด้านล่างของเคาท์เตอร์มีช่องสำหรับวางเครื่องซักผ้าแบบฝาหน้า อยู่ติดกับจุดวางตู้เย็นพอดี โครงการทำปลั๊กไฟเอาไว้ให้เรียบร้อย
เคาท์เตอร์ด้านบนมีที่วางเตาไมโครเวฟ และมีปลั๊กไฟเอาไว้ให้เผื่อเสียบเครื่องใช้ไฟฟ้าอื่นด้านล่าง
Top เคาท์เตอร์เป็นไฟเบอร์ทนการเปียกและทำความสะอาดง่าย มีพื้นที่เตรียมอาหารมาให้เยอะพอสมควร
ต่อไปเราเข้าไปดูในห้องนอนเล็กกันบ้าง โครงการกั้นเป็นบานกระจกสไลด์แบบ 3 ตอน
ด้านในมีเตียงเดี่ยว 3 ฟุตวางไว้ตรงกลางห้อง มีโต๊ะทำงานเล็กๆ และตู้เสื้อผ้า
โต๊ะทำงานหรือจะใช้เป็นโต๊ะเครื่องแป้งก็ได้ วางมาให้ข้างเตียงฝั่งติดกับประตูกระจก
เตียงนอนวางชิดกับตู้เสื้อผ้า ในสุดเป็นหน้าต่าง ห้องนอนเล็กนี้จะไม่มีระเบียง
หัวเตียงโครงการติดชั้นวางของมาให้ดูเป็นไอเดีย
ตู้เสื้อผ้าให้มาแบบ 2 บานเปิด บิ้วท์ติดเต็มพื้นที่จนถึงเพดานห้อง ทำให้ได้พื้นที่เก็บของเพิ่มขึ้นอีก
หน้าต่างของห้องจะได้เป็นบานสไลด์ 2 ข้างซ้ายขวา หรอกอลูมิเนียมอบดำ
มองจากห้องนอนเล็กออกมาที่ Living Area ต่อไปเราจะไปดูห้องน้ำและ Master Bedroom กัน
กลับมาที่หน้าประตูห้อง โครงการวางชั้นวางของโครงเหล็กมาให้เป็นไอเดีย หน้าตาสวยดี แต่ห้องจริงแนะนำให้หาชั้นที่ Practical เก็บของวางของได้สะดวกๆมาวางดีกว่า
เหนือชั้นวางของโครงการทำเป็นที่ติดตั้งแอร์ในส่วนของ Living Area
ต่อมาข้างๆชั้นวางของเลยคือห้องน้ำ ห้องTypeนี้มี 2 ห้องนอนแต่จะได้ห้องน้ำเดียว ในห้องนอนใหญ่จะไม่มีห้องน้ำในตัว
พื้นด้านในห้องน้ำเป็นกระเบื้องผิวด้านขนาด 30x30 ซม. ลดระดับจากพื้นห้องประมาณ 5 ซม.
ส่วนเรกเป็นชุดสุขภัณฑ์และอ่างล้างหน้าของ MOGEN
กระจกเป็นแบบบานเรียบๆติดยาวให้ถึงมุมเพดาน อ่างล้างหน้าทรงสี่เหลี่ยมแบบพิมพ์นิยมของ MOGEN มีช่องเก็บของด้านล่างได้นิดหน่อย
โถสุขภัณฑ์ก็ของ MOGEN เช่นกัน ติดสายชำระและที่ใส่กระดาษทิชชู่มาให้ด้านข้าง
ผนังห้องน้ำฝั่งตรงข้ามติดราวแขวนผ้าเช็ดตัวมาให้ ด้านหน้าประตู Shower Box
Shower Box โครงการติดบานสไลด์ 3 ตอน กรอบสีขาวมาให้ตามนี้ พื้นที่อาบน้ำประมาณ 1.2x1 เมตร
วัสดุในห้องน้ำที่โครงการแถมให้ก็ติดสติกเกอร์เอาไว้เช่นกัน ไฟในห้องน้ำก็เป็นดาวน์ไลท์เหลี่ยม
ตู้อาบน้ำมีขอบกั้นขึ้นมาจากพื้นประมาณ 5 ซม. กันน้ำกระเด็นเปียกส่วนแห้ง
ชุดฝักบัวแบบ Hand Shower ของ American Standtard มีช่องวางของมาให้ด้านข้าง และก๊อกน้ำใต้ฝักบัว
ต่อไปออกจากห้องน้ำมาดูห้องนอนใหญ่ หรือ Master Bedroom กันบ้าง ห้องนอนใหญ่จะอยู่ตรงกันประตูทางเข้าห้อง ด้านข้างห้องน้ำ
ไฟในห้องนอนใหญ่เป็นดาวน์ไลท์สี่เหลี่ยม และจะได้ลำโพงที่ต่อจาก Bluetooth Stereo System ด้วย
เตียงในห้องนอนใหญ่ให้มาเป็นเตียงคู่ขนาด 5 ฟุต วางไว้กลางห้องระหว่างตู้เสื้อผ้าและระเบียง
ปลายเตียงมีพื้นที่ว่าง โครงการบิ้วท์เป็นโต๊ะทำงานให้ดูเป็นไอเดีย แต่ถ้าใครชอบนอนดูทีวีจะติดทีวีแบบแขวนผนังแทนก็ได้
ตู้เสื้อผ้าบิ้วท์มาให้ติดผนังฝั่งข้างประตูห้องนอน เป็นแบบ 2 บานเปิด ได้พื้นที่เก็บของกว้างกว่าตู้เสื้อผ้าในห้องนอนเล็กข้างนอก
ต่อไปเป็นระเบียงห้องนอนกันบ้าง ประตูระเบียงเป็นบานกระจกสไลด์ 2 ตอนกรอบสีดำ
บานประตูเป็นกระจกเขียวตัดแสง พื้นด้านนอกเป็นแกรนิตลดระดับจากในห้องประมาณ 5 ซม.
ราวกันตกเป็นระแนงเหล็กสีอ่อน สูงประมาณ 1 ม. พื้นที่ระเบียงประมาณ 3x0.9 เมตร
มุมระเบียงมีจุดวาง CDU แอร์ สามารภวางได้ 3 ตัวซ้อนกัน โครงการทำระแนงเหล็กบังสายตา และช่วยเปลี่ยนทิศทางลมเอาไว้ให้
1 Bedroom 25.48 sq.m.
Layout ห้องแบบ 1 ห้องนอน ขนาดพื้นที่ใช้สอย 25.33-25.70 ตารางเมตร
ห้องนี้เป็นแบบ 1 ห้องนอน มีจำนวนยูนิตอยู่มากในโครงการ เปิดเข้ามาในห้องส่วนแรกก็จะเป็นครัวและห้องน้ำ
พื้นในห้องเป็น Smart Vinyl
เคาท์เตอร์ครัวได้มาแบบมีช่องเก็บของด้านบนและด้านล่าง ข้างเคาท์เตอร์เป็นที่วางตู้เย็น
เปิดตู้ออกมาได้พื้นที่เก็บของตามนี้
มีอ่างล้างจานแบบ 1 หลุม ของ MEX ไม่มีที่พักจาน
ที่วางเตาไมโครเวฟอยู่ที่เคาท์เตอร์ด้านบน สาวๆไซส์มินีต้องเอื้อมหน่อย หรือจะวางที่ Top เคาท์เตอร์ข้างล่างก็ได้ มีปลั๊กไฟมาไว้ให้เหมือนกัน
ตรงข้ามกับครัวก็คือห้องน้ำ ได้แบบ 3 ฟังก์ชั่นมาตรฐาน
พื้นห้องน้ำเป็นกระเบื้อง ลดระดับจากพื้นห้องลงไปประมาณ 4 ซม.
สุขภัณฑ์ในห้องของ MOGEN ติดสายชำระและที่ใส่ทิชชู่มาให้สองข้าง
หน้าตาสายชำระและที่ใสทิชชู่แบบชัดๆ สองอย่างนี้ใช้ของ American Standard
ต่อไปมาดูอ่างล้างหน้าของ MOGEN เป็นแบบอ่างเหลี่ยม ก๊อกน้ำก้านโยก มีที่วางของขอบอ่างได้นิดหน่อย
ใต้อ่างล้างหน้าเปิดออกมาเป็นตู้เก็บของได้ประมาณหนึ่ง
ข้างๆเป็น Shower Box กั้นแบบห้องสี่เหลี่ยมบานสไลด์ 3 ตอน พื้นที่ด้านในประมาณ 90x70 ซม.
ฝักบัวของ American Standard หน้าตามาตรฐานโครงการ เหมือนห้องที่แล้ว
ต่อไปมาดู Living Area กันบ้าง ระยะดูทีวีตรงนี้ประมาณ 3.3 เมตร
มีชุดโซฟาและไซด์บอร์ดมาให้ มุมผนังฝั่งห้องน้ำวางชุดโซฟามาให้ พอดีกับความกว้างของห้อง
โซฟาให้มาแบบ 2 ที่นั่ง กางออกมาเป็นที่นอนได้
โต๊ะกลางเป็นแบบสูงพอดีกับโซฟา ตรงนี้จะใช้เป็นโต๊ะนั่งทานข้าวไปด้วยเลยก็ได้
ไฟในห้องเป็นดาวน์ไลท์สี่เหลี่ยมมาตรฐานโครงการ
มี Bluetooth Stereo System ติดบริเวณผนังข้างโซฟา
ฝั่งตรงข้ามเป็นชั้นวางทีวี
ไซด์บอร์ดด้านล่างมีลิ้นชักและช่องเก็บของ
ส่วนชั้นวางของด้านบนก็ให้ด้วยเช่นกัน
ต่อไปเข้าไปดูในห้องนอนกันบ้าง ห้องนอนจะกั้นด้วยระตูบานสไดล์ 3 ตอน ใครต้องการความเป็นส่วนตัวเพิ่มก็ติดม่านได้ เวลามีแขกมาก็รูดปิดซะ
ไฟในห้องนอนก็เป็นดาวน์ไลท์ และมีลำโพงให้ด้านในด้วย เอาไว้นอนฟังเพลง
หน้าตาสวิสต์ไฟของโครงการ ใช้ของ SIEMENS
เข้าไปดูด้านในห้องกัน พื้นที่ในห้องนอนก็กว้างดี ไม่เล็กเกินไป เดินได้แบบไม่อึดอัด
เตียงนอนให้มาแบบ 5 ฟุต วางตรงกลางฝั่งประตูกระจก ข้างเตียงสองข้างมีที่ว่างสามารถวางโต๊ะข้างเตียงได้ โครงการมีปลั๊กไฟมาให้
ปลายเตียงโครงการจัดตัวอย่างมาเป็นโต๊ะทำงาน และเป็นที่ติดตั้งแอร์ ในสุดบิ้วท์ตู้เสื้อผ้า
ต่อไปมาดูมุมหน้าตู้เสื้อผ้า เป็น Bay Window ช่วยให้ห้องดูโปร่งขึ้น มุมตรงนี้น่ารักดี ถ้าไม่ติดว่าเปิดตู้มาจะโดน ตั้งโต๊ะเล็กๆตรงนี้ไว้นั่งเล่นก็ได้มุมชิลล์เพิ่ม

มุมตรงตู้เสื้อผ้าเป็นมุมหน้าต่าง Bay Window ใครชอบยื่นเปลี่ยนเวื้อผ้าตรงนี้อย่าลืมเชคม่านกันให้ดีด้วยนะ
หน้าต่างตรงนี้มีบานกระทุ้งให้ 1 บาน เอาไว้เปิดระบายอากาศได้
ต่อไปดูระเบียงกันบ้าง ประตูระเบียงก็เป็นกระจกบานเลื่อน 2 ตอน
ราวกันตกเป็นระแนงเหล็กซี่สีน้ำตาลอ่อนๆ และมีระแนงบังช่วงวางเครื่องซักผ้าและ CDU แอร์ พื้นที่ระเบียงประมาณ 1.7x0.8 ม.
ที่ติด CDU แอร์แบบแขวนได้ 1 ตัว ด้านล่างเว้นไว้เผื่อตั้งเครื่องซักผ้า แต่ผ้าเป็นแบบฝาหน้าก็ติดแอร์เพิ่มอีกตัวได้
Project Environment
สภาพแวดล้อมรอบโครงการ WYNN Condo Chokchai4 (วินน์ คอนโด ลาดพร้าว-โชคชัย4)








Location
ที่ตั้งโครงการ WYNN Condo (วินน์ คอนโด ลาดพร้าว-โชคชัย4)
โครงการ WYNN Condo (วินน์ คอนโด ลาดพร้าว-โชคชัย4) ตั้งอยู่ในถนนโชคชัย 4 ช่วงต้นซอยก่อนถึงทางลัดถนนสังคมสงเคราะห์ และ รพ.เปาโล ทางเข้าออกของตัวโครงการอยู่ติดถนนโชคชัย 4 สามารถเข้าออกได้ทางเดียว แล้วไปทะลุออกถนนลาดพร้าว หรือเกษตร-นวมินทร์ทางด้านหลังได้
การเดินทางจากถนนเลียบด่วนเอกมัย-รามอินทรา
การเดินทางมายังโครงการในวันนี้เราจะมาจากทางเลียบด่วนเอกมัย-รามอินทรา โดยเริ่มวิ่งจากต้นทางถนนพระรามเก้า มุ่งหน้ามาลาดพร้าว
ขับตรงตามเส้นถนนมาเรื่อยๆจะมีป้ายบอกทางตั้งแต่แยกประชาอุทิศ เราก็ขับตรงไปตามป้าย ลาดพร้าว
ถึงแยกประชาอุทิศ-ประดิษฐ์มนูธรรมให้เราตรงไปก่อน
จนมาถึงแยกใต้สะพานที่ตัดกับถนนลาดพร้าว จะมีป้ายบอกทางว่าเลี้ยวซ้ายไปโชคชัย 4 และรัชดาภิเษกชัดเจน ให้เบี่ยงออกซ้ายก่อนขึ้นสะพานข้ามแยก
พอเลี้ยวซ้ายมาก็จะเข้าสู่ถนนลาดพร้าว ก็ให้ขับตรงตามเส้นทางไปเรื่อยๆ
ขับมาประมาณเกือบ 2 กิโลเมตร ก็จะมีป้ายแยกโชคชัย 4 เขียลี้ยวขวาไปเสนานิคม ให้เตรียมเข้าช่องขวาไว้
พอถึงแยกโชคชัย 4 ก็เลี้ยวขวาเข้าถนนโชคชัย 4 ได้เลย
พอเข้าเส้นโชคชัย 4 มาแล้วก็โค้งตามทางบังคับตรงไปเรื่อยๆ
สองข้างทางในซอยจะเป็นอาคารพาณิชย์และร้านค้า ขับตรงไปจนเลย Big C Market ทางซ้ายมือ
พอผ่าน Big C ไปประมาณ 100 เมตร ให้สังเกตุทางขวามือจะเห็นสำนักงานขายโครงการ WYNN Condo (วินน์ คอนโด ลาดพร้าว-โชคชัย4) จะอยู่ตรงข้ามกับสำนักงานศรีสวัสดิ์ เงินติดล้อทางฝั่งซ้าย
ถึงโครงการ WYNN Condo (วินน์ คอนโด ลาดพร้าว-โชคชัย4) แล้วค่ะ สำนักงานขายเป็นอาคารพาณิชย์ตึกหัวมุมด้านหน้าที่เข้าพื้นที่ดินโครงการ
Analysis
วิเคราะห์โครงการ WYNN Condo (วินน์ คอนโด โชคชัย4)
ทำเล: โครงการ WYNN Condo (วินน์ คอนโด ลาดพร้าว-โชคชัย4) ตั้งอยู่ในทำเลที่ปัจจุบันจะสะดวกสำหรับคนที่ใช้รถส่วนตัว หรือคนที่เดินทางด้วยรถไฟฟ้าเส้นรัชดา แล้วต่อรถมานิดหน่อย แต่ในอนาคตหากรถไฟฟ้าสายสีเหลืองสร้างเสร็จผ่านหน้าแยกโชคชัย4 ก็จะสะดวกมากๆ ตัวโครงการอยู่ติดถนนโชคชัย4 สามารถเชื่อมต่อถนนได้หลายเส้น ทั้งลาดพร้าว เกษตร-นวมินทร์ และออกเลียบด่วนรามอินทราไม่ยาก ไปได้ทั้งบางกะปิ หรืออกอีกฝั่งเพื่อไปรัชดาภิเษกก็สะดวก
สภาพแวดล้อม: สภาพแวดล้อมรอบโครงการภายในซอยโชคชัย4 อย่างที่รู้กันดีว่าย่านนี้เป็นแหล่งชุมชน ค่อนข้างจะจอแจนิดหน่อย แต่ตัวโครงการอยู่หลบเข้าไปหลังแนวตึกแถว เลยห่างจากเสียงในแนวถนนไปได้หน่อย และด้วยความทีี่โชคชัย4 เป็นย่านชุมชน ก็ต้องมาพร้อมกับความอุดมสมบูรณ์ เรื่องอาหารการกินไม่ต้องพูดถึง มีให้เลือกได้ตลอดทาง และมี Big C อยู่ใกล้ๆโครงการในรยะเดินได้สบาย ใครที่ชอบใช้ชีวิตอยู่บ้านในวันว่าง หรือไม่ชอบออกไปไหนไกลก็สบายใจได้เลย
แบบห้อง: แบบห้องของโครงการ WYNN Condo (วินน์ คอนโด ลาดพร้าว-โชคชัย4) ถือว่าจัดพื้นที่ใช้สอยมาค่อนข้างลงตัว ทั้งแบบ 1 และ 2 ห้องนอน พื้นที่ภายในห้องเป็นแบบมาตรฐานโครงการคอนโดมิเนียม ไม่เล็กจนเกินไป แบ่งพื้นที่การใช้งานได้เป็นสัดส่วน และมีขนาดห้องให้เลือกได้ตามการใช้งานและจำนวนคนที่พักอาศัย เพราะในย่านนี้และลักษณะโครงการประมาณนี้ ก็คงอยู่กันเต็มที่ไม่เกินห้องละ 2-3 คน ดังนั้นแบบห้องที่ทำมาจนถึง 2 ห้องนอนก็ถือว่าสามารถอยู่และใช้งานได้จริง
ราคา: ราคาของโครงการปัจจุบันเริ่มที่ 1.6 ล้านบาทสำหรับแบบ 1 ห้องนอน ราคาเฉลี่ยต่อตารางเมตรของโครงการอยู่ที่ 70,000 บาทต่อตารางเมตร ซึ่งถือว่าไม่แพงสำหรับทำเลในย่านลาดพร้าวที่ไม่ห่างจากถนนใหญ่มาก เพราะในย่านโชคชัย4 นี้ก็มีโครงการคอนโดมิเนียมขึ้นตามถนนในซอยอีกมากมาย ทั้งโครงการใหม่และโครงการพร้อมอยู่ Developer เจ้าเล็กและเจ้าใหญ่ ราคาเริ่มเท่าของโครงการเทียบกับทำเลรถไฟฟ้าในอนาคตก็ถือว่าคุ้มค่าทั้งอยู่เองและปล่อยเช่า
สิ่งอำนวยความสะดวก: Facilities ในโครงการ ก็ถือว่าให้มาโอเคตามมตรฐานโครงการคอนโดสมัยใหม่ ระบบ Security มีเจ้าหน้าที่ รปภ. 24 ชั่วโมง ระบบ Key Card และพื้นที่ส่วนกลางที่ให้มาไม่มากไม่น้อยกับจำนวนยูนิต ทั้งสระว่าน้ำ ฟิตเนส Lounge และห้องสมุด รวมถึงสวนหย่อมทั้งด้านล่างของอาคารและบนดาดฟ้าของอาคาร A และ C ทำให้ลูกบ้านสามารถกระจายกันใช้บริการได้โดยไม่ต้องแออัดกันอยู่ที่เดียว
วินน์ คอนโด ลาดพร้าว-โชคชัย 4
58f4527c719b2bc4ff135803
wynn-condo-โชคชัย-4


































































































